増築(リフォーム)パターン別の事例と費用

増築(リフォーム)3階部(屋根勾配変更)事例

既存建物の3階部分は小屋裏収納の様な天井高の低いお部屋でした。

それを子供部屋を2部屋確保する為に屋根勾配を替えて増築して造った事例です。

既存図面
増築(リフォーム)3階部 既存図面
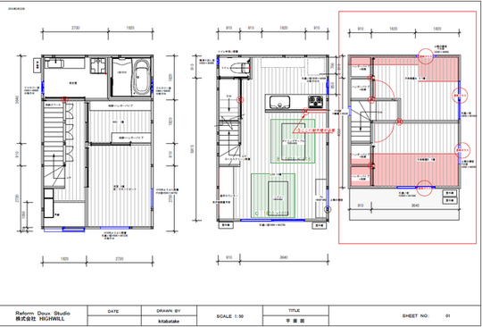
新規図面
増築(リフォーム)3階部 新規図面

増築(リフォーム)3階の事例 施工前

増築(リフォーム)3階部 施工前

もともと3階に階段で登った上に1部屋小屋裏の様なスペースがありました。ここを上手く活かして、洋室2部屋+バルコニーを増築も含み造りたいとご要望を頂きました。

増築(リフォーム)3階の事例 解体後

増築(リフォーム)3階部 解体後

全面改築をし、骨組だけにします。現場監督と大工とで現状の構造を見て打合せをして構造を組んでいきます。

増築(リフォーム)3階部の事例 構造

増築(リフォーム)3階部 構造

屋根勾配も変えて洋室2部屋を造っていきます。

増築(リフォーム)3階部の事例 竣工

増築(リフォーム)3階部 竣工

1階や2階より天井高は低くはなりますが、屋根勾配形に天井を造ったので圧迫感はありません。

よくある増築のケースを4パターンわけて解説
増築(リフォーム)パターン別の事例と費用に戻る

フルリフォームをどこに相談すればいいか迷っている方は、木造戸建て専門会社の増改築.com®にご相談下さい。木構造を熟知する技術者が直接現場を担当致します。お問い合わせはこちらからどうぞ!

 

 

 

ハウスメーカーで高い見積もりをもらった...良質安価で一戸建てリフォームしたい方 

          創業大正8年ハイウィルがお悩みを解消します!

                 

戸建てリノベーション・リフォームに関するお問合せはこちら

増改築.comの一戸建てリフォーム専用ホームページに
お越しいただき、誠に有難うございます。
 
増改築.comメンバーは技術集団となり、
他社のような営業マンがおりません。
技術者が直接ご相談にのり問題解決を行います。
 
従いまして、
お客様の方である程度のご要望が整理されました段階、
お悩みが工事内容のどのようなところにあるのか?
ご予算がどの程度絞る必要があるのか?
など明確になった段階でのご相談をお願いしております。
お問合せ・ご相談はお電話・メールにて受け付けております。
メールの場合は以下のフォームに必要事項をご記入の上、
「送信する」ボタンをクリックをお願いします。

代表稲葉高志

戸建てリノベーションの専属スタッフが担当致します。
一戸建て家のリフォームに関することを
お気軽にお問合せください

よくあるご質問
  • 他社に要望を伝えたところできないといわれたのですが・・・
  • 他社で予算オーバーとなってしまい要望が叶わないのですが・・・
  • サービスについて詳しく聞きたいのですが・・・

どのようなお悩みのご相談でも結構です。

あなたの大切なお住まいに関するご相談をお待ちしております。

営業マンはおりませんので、しつこい営業等も一切ございません。

設計会社(建築家様)・同業の建築会社様のご相談につきましては、プランと共にご指定のIw値及びUa値等の性能値の目安もお願い申し上げます。

2026年の大型補助金が確定したことで現在大変込み合っております。

耐震性能と断熱性能を向上させるフルリフォームには6か月~7か月の工期がかかります。

補助金獲得には年内に報告を挙げる必要があることから、お早目にご相談をお願いいたします。(6月着工までが目安

ご提案までに大変お時間がかかっております。ご了承のほどお願い申し上げます。

(5月までの着工枠が埋まりました)・・・2026/03/01更新

※すでにプランをお持ちのお施主様・設計資料をお持ちのお施主様は内容をフォームで送信後、フォーム下のメールアドレスに資料をお送りください。対応がスムーズです。

必須

(例:増改築太郎)

必須

(例:contact@high-will.co.jp)

(例:03-5615-2826)

必須

(例:東京都荒川区西日暮里2-35-1)

(例:築40年)

(例:25坪・100㎡など)

(例:2000万程度など)

  • ※再建築不可のリフォームでは金融機関が限られます。事前審査をお勧めいたします。

    (例:2024年3月くらいに完成希望など)

    必須

    できるだけ具体的にお知らせくださいませ。既存設計資料、リフォーム後のイメージ図等をお持ちであれば下記のメールアドレスより添付をお願いします。

    ※次の画面がでるまで、4~5秒かかりますので、
    続けて2回押さないようにお願いいたします。

    ※次の画面が出るまで、4〜5秒かかりますので、
    続けて2回押さないようにお願いいたします。

    図面や写真等を送信いただく場合、また入力がうまくいかない場合は、上記内容をご確認のうえ、下記メールアドレスまでご連絡ください。

    お電話でのお問合せはこちら

    0120-246-991

    営業時間:10:00~17:00(土日祝日を除く)

    ★YouTube「増改築.comチャンネル」チャンネル登録して新動画解説をいち早くGET!!★
    「増改築.comリノベ診断」であなたに一番ふさわしいフルリフォームを診断!!(動画解説付き)
    ★Facebookページにいいね!を押して最新コンテンツ情報をいち早くGET!!★
    パソコン|モバイル
    ページトップに戻る