戸建てフルリフォームなら「増改築.com®」TOP>お役立ち情報>リノベーション(全面リフォーム)のビフォーアフター詳細解説

リノベーション(全面リフォーム)のビフォーアフター詳細解説

リノベーションビフォーアフター詳細解説

 

こちらのコンテンツは、戸建てリノベーションのビフォーアフターを紹介していきます。一般的なビフォーアフターは施工前と完成後の写真が掲載されていることが多いと思います。

しかし、皆さんが知りたいのは現場の中身、一体現場ではどのような工事がされているのか?とても気になるところですね。

ここでは最も工事ボリュームの多い外壁までを解体するフルリノベーションの実際の事例を通して、どのような工事をするのか?工事の注意点やポイントなども細かく見ていきたいと思います。

1 リノベーション(全面リフォーム)のビフォーアフターを見る際のポイント

ビフォーアフターだけじゃない!一番大切なのは工事の過程、中身です!

ここで題材にする事例は、築60年を超える戸建てフルリノベーション、つまり内部(内壁)だけでなく外部(外壁)までを解体し、躯体の状態から間取り変更をしつつ、耐震性能と断熱性能を現在の新築の最高基準まで引き上げる戸建て性能向上リノベーションの施工事例の中身を公開したいと思います。

築60年を超える一軒家の建物が、戸建て(一軒家)フルリノベーションでどこまで変化するのかを細かく見ていきたいと思います。

他のサイトの施工事例で公開されているような、いわゆるビフォーアフターといったビジュアル的な結果としての事例では、学びが少ないと思いますので、『増改築.com®』ならではの他ではあまり公開されることのない戸建て(一軒家)リノベーションの工事の中身の部分にフォーカスしたと思います。

戸建てリノベーションという工事は、ここでお伝えする中身をすべてやって初めて「戸建てリノベーション」であるということ。

築年数30年以上経過した建物を戸建てリノベーションする際には、耐震性能、断熱性能を無視した簡易リフォームでは許されないと「増改築.com®」では考えています。

大切なのはその工事過程、中身であるということから、最も大事な工事過程のハイライトを試みたいと思います。かなり長くなりますがお付き合いいただければ幸いです。

建物の一番大事な構造に触れるのが戸建てリノベーション工事。そのリアルな過程を公開!

紹介されることが少ないリフォームの詳細過程
戸建てリフォーム 作業風景

 

なぜこのような過程をお見せするかといいますのは、マンションでも一戸建て(一軒家)住宅であっても現在は、不動産再販業者がこのような物件を先に安く仕込み(購入し)、費用をかけず簡単な改装で、表面的にきれいに化粧直しをして高く売るというビジネスモデルが横行しているからです。

不動産の中古住宅の物件情報でリノベーション済物件などと記載されている物件です。

また、TVで紹介されているリフォーム番組や、どの大手リフォーム会社にも言えますが、ビフォーアフターの写真はあっても、施工事例の詳細過程までを公開できる会社がいないという悲しい現実から、あえて本来の木造の改修、昨今でいうところの戸建てリノベーション(戸建リノベ)の本来の形をあえて公開したいと考えたからです。

戸建てリノベーション工事は心臓部の手術のようなもの

戸建てリノベーションの費用を検証する際に、セットで考えなくてはないないのが、工事の規模もそうですが、工事の中身です。戸建てリノベーションはマンションとは違い、建物の構造を触る作業が含まれています。人間の身体でいうところの心臓部の手術をするようなものです。

この手術(オペ)が出来る確かな技術を伴っているかが前提となって参ります。

戸建てリノベーション物件(戸建リノベ物件)で家を購入予定の方、また中古戸建て(中古住宅)リノベーションをご検討中の方、あるいはこれから戸建て(一軒家)リノベーションを予定されている方に、これから紹介するような戸建改築、いわゆる戸建てリノベーション(戸建リノベ)のリアルな過程をみていただき、施工会社選び、販売業者選びの一助になれば幸いです。

戸建てリノベーションイメージ
戸建てリノベーションイメージ

2 リノベーション(全面リフォーム)のビフォー 
〈リフォームの経緯(中古住宅購入まで)〉

 

「増改築.com®」運営会社ハイウィル株式会社において、中古戸建(中古住宅)+フルリノベーションをワンストップで、中古住宅探しから購入そしてフルリノベーションまでをご依頼されましたお客様の施工事例と共にご紹介させていただきます。

建物概要
名前 S様
場所 東京都北区
築年数 築60年以上(昭和24年)
構造種別 木造戸建
家族構成 ご夫婦・お子様2人の4人ご家族
対象面積 45坪
リフォーム部位 フルリノベーション・全面リフォーム (ベタ基礎/間取変更/断熱サッシ取替/外壁サイディング/断熱セルロース/減築/)
工期 5ヶ月
費用 2500万(税別)

お子様の小学校入学を前に、念願の一戸建て(一軒家)を

S様はご結婚されて東京都の郊外の家で生活をされておられましたが、お子様の成長にあわせ、息子様の小学校のご入学と同時に、奥様が生まれ育った家の周辺エリアへお引越し、お子さんを奥様の通われた小学校の学区内で探したいという経緯で相談にこられたのがきっかけでした。できれば主要駅からは10分かからない程度ともご希望がありました。

現在マンションに住んでいて手狭なこともあり、マンションではなく、一戸建て(一軒家)の家を要望されてましたので、立地へを最重視しての物件選びを弊社でお手伝いさせていただきました。当初は、土地+新築というご希望で検討されておりました。

都心でお手頃価格の一戸建て・・・物件がない!

エリア的に駅から徒歩10分圏内という条件では、S様の希望エリアにおいては住宅地がそもそも少なく、新築はおろか、中古住宅での一戸建て(一軒家)物件すらも少なく、もちろん新築用の売土地などは、ほぼ皆無という状況下でした。物件を見つけるまでに半年以上の時間がかかりました。

半年の間に、一戸建て(一軒家)というくくりでは、新築の建売なども数件出てきましたので、ご紹介はしておりましたが、土地が高かったため、ご予算費用と照らし合わせると狭小住宅のものしか手が届きません。

途中、S様が、新築を売りたいだけの不動産会社に何度も営業されたとお話しておりましたが、弊社からは時間をくださいとお願いしておりました。

やっと出会った約45坪(!)の築古物件

このようなやりとりを半年以上繰り返し、ついにご希望に沿える中古戸建て(中古住宅)の物件が見つかりました。約45坪の土地に築60年を経過した古屋付の物件(家)、それが下記の一戸建て(中古住宅)の建物です。

戸建(一軒家)フルリフォーム既存
戸建(一軒家)フルリフォーム既存

でもやっぱり・・・老朽化が気になる

学区内に入ることと、敷地が45坪以上ありましたので、広いことはご満足いただけましたが、やはり、築60年の老朽化した中古住宅の一戸建て(一軒家)の外観やその部屋(室内)をみてしまうと、気落ちしてしまっておりました。

一般のお客様では、その建物が莫大な費用をかけてまでこの一軒家をフルリノベーションをしたとしても、どのような家建物へ生まれ変わるのかがイメージしづらいためか、築60年の今回の建物があまりに古すぎるたこともあり、戸建てフルリノベーションという選択肢を想定してはいませんでした。戸建てフルリノベーションではなく、すべて解体をして建て替えを検討したいというお話に初期の段階ではなっていました。

さらに立ちはだかるセットバックの壁!

新築のプランをご提案させていただきましたが、すでに何度も増築を重ねてこられた建物となっており、土地45坪に目一杯に建てられた築60年一軒家でしたが、現在と照らし合わせると建築条例や法規が60年前とは当然変わっております。

セットバック等の問題で、確認申請が必要になる新築にしてしまうとせっかくの費用を投じても家建物自体が大幅に狭くなってしまうため、お施主様の希望する間取りを提案することが、かなり難しい状態でした。

弊社の提案~フルリノベーションへの道~

新築にするための費用もご予算をオーバーしておりました。それでも今の広さは確保したい。ここで、戸建てフルリノベーションする提案をしました。

それでもこの古家が、戸建てフルリノベーション後にどのようになるのかイメージができない。ということでしたので、さまざまな過去の戸建てフルリノベーション事例、実例をお見せし、どのようなイメージになるか、イメージの共有をしました。

今回の戸建てフルリノベーションでのS様のご要望は次の通りでした。

3 リノベーション(全面リフォーム)のビフォー 
〈リフォームの要望とリノベーションプラン〉

お客様の戸建て(一軒家)リノベーションでの要望は・・・

  • 築60年の古家の構造が不安。戸建てフルリノベーションで構造補強をしたい。リストアイテム2
  • 部屋が暗いので戸建てフルリノベーション後は明るくしたい。リストアイテム4
  • 夏涼しく、冬暖かい断熱性能の高いサッシに変えたい。
  • 駐車場がないので、戸建(一軒家)フルリノベーション後は駐車スペース2台分が欲しい
  • ベランダがないので戸建(一軒家)フルリノベーション後はベランダを南面に作りたい。
  • 線路沿いの建物の為、戸建てフルリノベーション後は防音性の高い建物にしたい

これらの要望を反映し、戸建てフルリノベーションの費用は2000万ぐらいで済ませたいとかなり明確で具体的です。

このようなSさまの一戸建て(一軒家)フルリノベーションのご要望をヒアリングさせていただき大幅な間取り変更が予想されることから、メインとなる工事は、増築を重ねられた建物の構造の耐震補強だと考えました。

次のようなプランをご提案させていただきました。

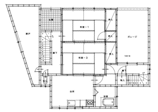
戸建(一軒家)フルリフォーム既存1階図面

 フルリノベーション前1階平面図

戸建(一軒家)フルリフォーム既存2階図面

 フルリノベーション前2階平面図

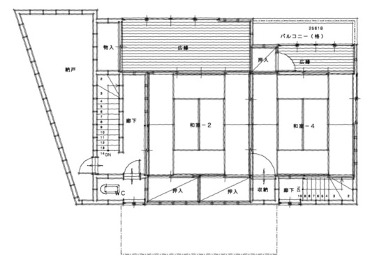
戸建(一軒家)フルリフォーム 新規1階図面

 フルリノベーション後1階平面図

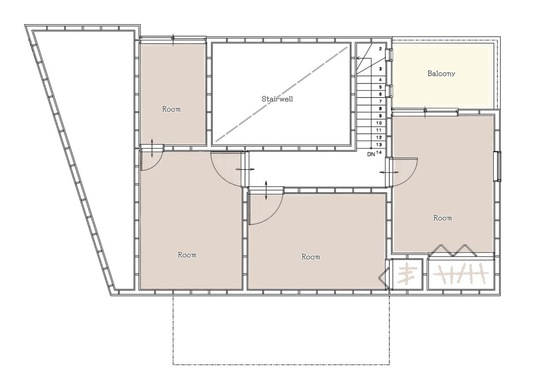
戸建(一軒家)フルリフォーム新規2階図面

 フルリノベーション後2階平面図

 

内部だけでなく外壁までも解体する躯体残しの戸建てフルリノベーションをご提案

築60年中古住宅の一軒家は、在来軸組工法の木造一戸建て(一軒家)で、いただいていた図面と、実際のお部屋では、かなり間取りが違っていましたので、60年の間で数回に渡り、大掛かりな一軒家のリフォームをされていたことがわかりました。

新築をそもそも想定していたこと、また、大幅な間取り変更に伴うため、窓の位置を変えないでの一戸建て(一軒家)リノベーションをすることが難しかったため、費用は高くなってしまいますが、内部だけでなく外部の壁までも解体する費用をみた躯体残しのスケルトン状態での戸建てフルリノベーションを提案させていただきました。

住宅購入資金の振り分けは、住宅ローンを物件購入(中古住宅購入)+戸建て(一軒家)リノベーションの費用の50%に充当し、リノベーション費用の残り50%は現金にてプランしました。

4 リノベーション(全面リフォーム)のビフォー 
〈現場調査・打ち合わせ〉

S様邸の一戸建て住宅リノベーション前の既存の戸建外観

S様邸の戸建てリノベーション前のビフォーの戸建外観部分です。築60年ではこのような外観が一般的です。

S様邸の一戸建て住宅リノベーション前の既存の戸建外観

敷地は広いですが、老朽化した外観は否めません。

S様邸の一戸建て住宅リノベーション前の既存の戸建台所

既存の台所(流し)があったところです。流し台は撤去されていました。瞬間湯沸かし器が設置されていました。築60年の一戸建て(一軒家)リノベーションでは家全体がこのように老朽化していることが多いです。

S様邸の一戸建て住宅リノベーション前の既存の戸建洗面所

レトロなお風呂場。脱衣所スペースはありませんでした。

S様邸の一戸建て住宅リノベーション前の既存の戸建浴室

既存浴室

S様邸の一戸建て住宅リノベーション前の既存の戸建トイレ

既存トイレ

S様邸の一戸建て住宅リノベーション前の既存の戸建洗面所

既存洗面台

S様邸の一戸建て住宅リノベーション前の既存の戸建和室

2階部分は和室2部屋のみ

お客様は、既存(ビフォー)の状態が築60年であまりに古かったため、戸建て(一軒家)リノベーション後にこちらが提案した住まいのイメージになるいうお話を、リアルなところでは、半信半疑のままでしたが、お任せいただくということで今回の戸建て(一軒家)リノベーションが着工スタートとなりました。

5 リノベーション(全面リフォーム)の着工(施工中)

足場工事・解体工事スタート

S様邸の一戸建て住宅リノベーション前の既存の戸建て足場

足場を架けシートを張っていきます。


S様邸の一戸建て住宅リノベーション前の既存の解体工事

今回の戸建て(一軒家)リノベーションは、内部の解体もそうですが、外壁まで解体する費用までをみた、完全な構造体残し(躯体残し)となるリノベーションです。まずは家の屋内、室内部の内部天井、壁、床を解体していきます。リノベーション後の間取り、構造を検討しながら戸建て(一軒家)を手壊しで解体していきます。


S様邸の一戸建て住宅リノベーション前の既存の戸建解体後

家建物が築60年超えの戸建てリノベーションでは多いのですが、内壁は土壁(竹で編み泥を塗った木舞壁)となっているため、解体時に相当な粉じんが出ることと残土がかなりでます。これを機械ではなく人力で解体していきます。外壁を解体する際の戸建リノベーションの費用が高くなってしまうのはこのためです。


柱の補強・1

内部のスケルトン状態が確認できると外部の解体へと工程は移っていきますが、戸建て(一軒家)リノベーション後の新規間取りへの変更がありますので、一部の柱を抜いている状況なります。

また、1階はほぼLDKとなる間取りになりますので、柱を抜く箇所も多い為、このように、戸建て(一軒家)リノベーションの場合、倒壊しないように仮の補強を入れながら解体をしていきます。

 

S様邸の一戸建て住宅リノベーション一次的に補強

抜いた柱を一次的に補強

解体職人ではなくあえて棟梁に解体をさせるのもマンションと木造一戸建てでの解体は大きく異なるからです。解体時の構造体の負荷を理解していないものが解体をしてしまうと家の骨格が歪んでしまい大変危険です。補強を入れながら解体を進めていかなければなりません。


柱の補強・2

仮の土台の上に支柱をたてることで、抜いた柱の補強を入れていきます。これは戸建て(一軒家)リノベーションでは必須となります。

解体費用が機械壊しの新築以上にかかってくるのはこのような理由です。

今回の戸建て(一軒家)リノベーションは外部までを手壊しで解体するためその分の費用もかかってまいります。

S様邸の一戸建て住宅リノベーション柱を補強

土台の上に支柱を立てて、柱を補強

解体の手間費用、建物ひとまわりの外壁材の廃棄物の処理費用が、一般的な改築である通常の内部のみの戸建て(一軒家)リノベーションに加えてかかってまいります。


仮筋交い
S様邸の一戸建て住宅リノベーション仮筋交い

一階部分の外部も解体が進んできました。支柱を入れながら、仮での筋交いもいれ補強を更に加えていきます。一般的な一軒家の改装リフォームで活躍をする内装大工ではこのような補強ができません。そのため、戸建て(一軒家)をまるまる一人で建てることのできる、木構造を熟知した棟梁が解体をしなければならないのです。

2階部分解体の様子
S様邸の一戸建て住宅リノベーション2階解体

二階の外壁部分も解体がかなり進んでいます。戸建てリノベーションには、内部の構造体を裸にする内部スケルトンリフォームと、今回のように外部までを剥がす、内外部スケルトンリフォームがあります。2階解体時もリノベーション後の間取りを想定し柱を抜いています。2階は小屋組みを支えるための仮の補強をしながら解体をしていきます。築60年を超えている一軒家となるため、外壁は木舞壁となり外周部はほとんどが土になります。

既存の建物の状態によっては家の構造を熟知する棟梁が解体も担当します

このように戸建て(一軒家)リノベーションでも、外部までを解体するフルリノベーションになると、解体も次の間取りを検討しながら解体を進めていくため、さきほどご説明したように誰が解体しても良いというわけではありません。

このようなケースでは、家を最も知る木工事で構造を担当する棟梁が解体を担当します。そのため、一気に解体して終わりというわけではなく、壊しながら補強を加え、のちの工程である木工事にスムーズに移行できるようにしています。

費用が内部スケルトンの戸建て(一軒家)リノベーションと比較しても大幅にかかることは、このような工程を見ていただくとわかるかと思います。ここまでやるかという判断は、お客様のご要望ももちろんですが、建物の痛み状況、セットバックの問題、法的な規制の問題など総合的な問題を検討して決定をされることをお勧めいたします。

基礎補強工事

無筋状態の部分を配筋を入れて基礎で補強
S様邸の一戸建て住宅リノベーション基礎補強

解体が終わると、基礎工事に入ります。こちらのS様邸は築60年の戸建て(一軒家)リノベーションになりますので、既存の建物の基礎も現在の基礎とは違います。布基礎が一部入っていても、無筋状態であったり一部の基礎がなく大谷石で固定していたりと、基礎からやり直しが必要な部分もあります。このように配筋で補強し既存の無筋基礎と一体化させなくてはいけません。基礎補強の準備に入ります。

土台下をコンクリートで固めて基礎ベース補強
S様邸の一戸建て住宅リノベーション基礎ベース補強

今回のS様の一戸建て(一軒家)のリフォーム&リノベーションでは、基礎がなく大谷石で土台を乗せていた既存の構造部に関して、2階を背負うような重要な柱となる箇所へは、独立基礎で補強を図ります。このように1m掘りD13の鉄筋を新たに組み込み土台との固定をしベースを作ります。耐震補強上大切な部分になってきます。コンクリートで固め土台の補強金物と緊結する方法を提案しました。 


S様邸の一戸建て住宅リノベーションジャッキアップ

ジャッキアップによる建物歪みの補正

9センチのゆがみをジャッキアップで補正

基礎をやりながらS様の戸建てリノベーションは、木工事も同時に進んでいきます。
築60年の中古戸建住宅にもなると構造もかなり歪んでおります。築60年の中古住宅であるS様邸も例外ではありませんでした。レーザーでレベルをとると、一部の構造が歪み、道路側に9センチほどの歪み(傾き)がありました。

このような場合、全体が傾いているのか、一部の構造がよじれているのかを検証しますが、S様邸のケースでは、一部の構造のゆがみであることが判明。

 

ジャッキアップによって一部の構造を押し上げ傾きを補正していきます。その後、補強部材を入れていきます。ここでは尺梁を入れて補強を入れました。このような施工事例を公開する会社は少ないと言えます。


木工事(大工工事・構造体補強工事)

尺梁と金物による入念な補強
S様邸の一戸建て住宅リノベーション耐震補強

S様の戸建て(一軒家)リノベーション後の間取りでは、1階部は広いLDKのプランとなり吹き抜けの大空間のLDKとなっております。柱を抜く箇所も多くなるため、補強はかなり入念に入れていきます。ここでも尺梁をいれて金物で固定してきます。かすがいのみ補強しているリフォーム会社がおりますが、耐震補強上ありえない納まりとなります。必ず耐震金物で耐震補強していきます。

S様邸の一戸建て住宅リノベーション梁と筋交い

梁と筋交いを構造を見ながら棟梁が入れていきます。

補強金物で補強する
S様邸の一戸建て住宅リノベーション金物補強

家の骨格を形成する木構造で大事なのは、金物での補強になりますので、何度もチェックをしながら入念に補強金物を入れていきます。こちらの建物は築60年を超えていた為、耐震診断した際は、評点は最悪と呼べる状態でしたが、耐震補強を加えることで耐震等級3相当の建物へと性能を上げることが可能です。


ジャッキアップをした面に構造材を入れ補強、金物を加える
S様邸の一戸建て住宅リノベーションホールダウン金物補強

弊社の場合、棟梁の技術水準が高いため、棟梁を指揮する現場監督も相応の経験が要求されます。弊社の現場監督は、長年の間、伝統構法による茶室、数寄屋造り、蔵、社寺建築などを専門に施工していた大工を務めていた職人が直接管理をするため、チェックはかなり厳しいのです。写真は、一階柱と二階床梁を繋ぐホールダウン金物設置した部分。

複雑に入り組んだ構造
S様邸の一戸建て住宅リノベーション構造金物補強

もともとの構造部と新たな構造部の仕掛けが終わり金物で補強を入れます。複雑ですがこのように仕掛けができるのは内装大工では難しく、家一棟を刻んで一人で建てられるレベルの棟梁でなければなりません。

吹き抜け部分
S様邸の一戸建て住宅リノベーション吹抜け部分補強

吹き抜け部分の最も重要な構造となるところです。吹き抜け空間の四方は梁でフレームになるように設計し、ここにも金具補強をしていきます。このように仕上がってしまえば隠れてしまうところが戸建て(一軒家)では最も重要な部分になり、注意点になるのです。S様はこのような構造補強へ予算費用を大目に分配されました。

2台分の駐車スペースを拡張確保

S様のお住まいは、戸建て(一軒家)リノベーション後は、車が2台駐車できるスペースが絶対条件としてありました。ここも難易度が高いところでした。既存状態で2台の駐車スペースがありましたが、1台の既存スペースは普通車が駐車するには幅が足りない状態、もう1台の駐車スペースは奥行が普通車が納まらない状態でした。

普通車2台を入れたいとのご要望でしたので、それぞれの駐車スペースの拡張が必要な状態となっておりました。恐らくもともとはバイクなどが停めてあったのだと想定します。そのため、幅が足りない1台の駐車スペースへは、既存の戸建住居スペースを一部解体減築し、駐車スペース確保への工事が必要でした。

住宅部分の基礎を含む構造部を一部解体し補強しなくてはなりません。既存の構造部を駐車スペース分解体する大掛かりな工事となります。2階の居室を背負っている重要な柱を抜く必要がありましたので、このようなケースでは、鉄梁を採用し、外部は鉄柱を立て補強を加えました

S様邸の一戸建て住宅リノベーションH鋼補強

H鋼での鉄梁補強。戸建て(一軒家)リノベーション後は、一部居住スペースへ駐車スペースが食い込んでくるため補強をこのように仕掛けていきます。このような過程も大手リフォーム会社の施工事例では公開していません。

S様邸の一戸建て住宅リノベーションH鋼鉄梁補強

右側が元々の駐車スペース・左側が元々の居住スペース

S様邸の一戸建て住宅リノベーション鉄柱補強

もう一方のもともとあった駐車スペースは、普通車が入れられるほどの奥行がなかったため、奥へと駐車スペースを拡張しました。もともと2階部が跳ねだして片持ちの状態となっており、不安定な状態となっていた為、鉄柱を入れて補強を加えました。


S様邸の一戸建て住宅リノベーション吹抜け部分大工工事

一階のリビングの採光を入れるために道路面の2階部分は吹き抜けを提案していましたので、既存の和室空間がそのまま吹き抜けとなります。補強をいれながら、棟梁も2班にわかれ室内にも足場を架け造作工事を進めていきます。2階からの写真です。

S様邸の一戸建て住宅リノベーション吹抜け部分

1階から吹き抜け部分を見上げた写真です。このように、戸建て(一軒家)リノベーションになると既存の構造材が一部残っておりますがほとんど新築と同じ程度の材木量を使うことがお分かりいただけれかと思います。S様の中古住宅(中古戸建て)では既存の状態よりも材木の量は増えております。

S様邸の一戸建て住宅リノベーションオープン階段補強

採光をとるために必要であった吹き抜け部分に設置を提案しているオープン階段部分です。既存の梁下にあらたに梁補強を加えます。

内部足場の設置
S様邸の一戸建て住宅リノベーション内部足場

一階から2階への階段を見た写真です。吹き抜け部分には4方に大梁をいれ補強を加えております。右端に見えるのは吹き抜け部の高所作業に使うために単管で内部足場をつくり作業をできるようにしたものです。

S様邸の一戸建て住宅リノベーション1階部分大工工事

1階の木工事

ガルバリウム鋼板を貼るための下地
S様邸の一戸建て住宅リノベーション外壁下地

外壁はガルバリウム鋼板での提案をしておりましたので、下地となる構造用合板を全面に張りますので壁倍率があがります。

ベランダ設置のための減築
S様邸の一戸建て住宅リノベーションベランダ補強

もともとベランダはありませんでしたが戸建て(一軒家)リノベーション後はベランダ設置となっておりますので、既存の戸建建物を一部を減築し、ベランダスペースを確保しています。写真は防水層立ち上がり部です。

S様邸の一戸建て住宅リノベーションベランダ防水層下地

減築後に中からみるとこのような形です。防水層の下地まで完成しています。

断熱改修工事(セルロースファイバーを採用)

騒音対策にセルロースファイバー採用

戸建てリノベーションでは内壁をすべて解体するため、本格的な断熱改修が可能となります。当初、気密効果の高い外張り断熱をご希望されましたが、S様のお住まいは、線路から近く騒音が激しいため、断熱材は、機能性の断熱材である、吸音効果の高い、セルロースファイバーを提案させていただきました。

充填面積が多いため、費用は割高になりますが、このような大掛かりなリノベーションの際にしか選択できない工事になりますので、予算は大変厳しかったのですが、提案を受け入れていただけました。

建物の外壁面すべての天井と壁にセルロースファイバーを充填し、家を魔法瓶のように包み込みます。

S様邸の一戸建て住宅リノベーション断熱工事

セルロースファイバーを充填している様子

S様邸の一戸建て住宅リノベーションセルロースファイバー

沈下しないようにかなりの圧をかけて充填していきますのでこのように壁が盛り上がってきますので、加工胴縁を打ちプラスターボードが貼りやすいように下地を組みます。

S様邸の一戸建て住宅リノベーションセルロースファイバー

吹き抜け部分も外壁面なりますので、魔法瓶のように外周部の壁面、そして2階の天井裏にすべて充填していきます。

見えない80%が最も重要!

ここまでで木工事の主要構造補強と造作工事の導入工事が終了しました。リノベーションでは、スケルトン&インフィルと呼ばれておりますが、躯体と仕上げという意味に置き換えて良いと思います。戸建て(一軒家)リノベーションで重要なのがこのスケルトン(躯体)までの過程です。リフォームサイトや大手リフォーム会社の施工事例では滅多にお目にかかれない、リアルな部分がお分かりいただけたかと思います。

ここまでのスケルトン(躯体)工事の工程で80%といっても良いでしょう。お気づきの方もおられるかと思いますが、この80%は、リノベーション完了後は見えない部分となります。しかし、この見えないスケルトン(躯体)である80%が最も大切ですし、最も注意をしなければならないポイントになってきます。

このスケルトン(躯体)部分の工事をしっかりとやっていれば、長期間維持できる間違いのない建物の完成が約束されます。残り20%はインフィル部分です。内装材による化粧工事、造作工事です。

これから戸建てリノベーションをご検討の方へ・・・

中古住宅を購入予定の方で、リノベーション済物件を購入される場合の、最大のポイントと言えるのが、ここまでのスケルトン(躯体)木工事での補強と断熱です。ここをしっかりなされているのかを判断いただき購入する必要があるということです。

これから戸建て(一軒家)リノベーションを検討している方は、ここまでの工事の面倒を抜かりなくみれる木造を熟知した施工会社に依頼をするということです。

我々も不動産会社の物件をリノベーション依頼されることがありますが、このような要求は不動産会社はしてきませんし、構造部の補強、断熱性の必要性を説いても、必要以上の費用がかかることから受け入れることはまずないのが現実です。残念ながらお施主様を見て仕事をしている会社が少ないのが正直なところなのです。

そもそも構造を理解していないケースが大半となりますし、見た目と販売価格、そして不動産業者の利益しかみません。

いかに安く見た目を良くするかという完全な不動産業者視点なのです。不動産業者が我々に相談される予算費用は、改装レベルの予算となります。

したがって、本来最も費用をかけたい木造の構造部(スケルトン(躯体)に費用をかけず、見た目重視の化粧部分に費用ウェイトを置くのが大半です。これは不動産会社の利益の問題と売りやすさの問題かもしれませんが、戸建てリノベーションは、残念ながら木造になりますので、マンションとは違います。

施主視点での施工がされているか?を確かめる目を持ちましょう

ここでお見せした流れの部分は、この後の化粧工程ですべて隠ぺいされてしまうために、リノベーション後は、見えなくなってしまう部分となります。このように、リノベーション後に長期にわたり建物を維持することを前提とした、住まわれる施主視点で考えて施工がされているのか?ここが最も重要なポイントなのです。

相場に対して安すぎるリノベーション済の戸建て物件はこのような補強をされていない可能性がかなり高いといえます。その為、勧められない仕様のものが多いのが正直なところであります。
欲しい物件がどのような物件なのかをしっかりと確かめる目を持つことが必須と言えます。

戸建て(一軒家)のリノベーションを戸建で検討されている方は、施工事例のこのような過程を見せてくれる会社を探すことが最大のポイントになります。
知識不足が原因で、かえって大幅な出費をしてしまうことは避けたいと誰もが思うはずです。

 

 

 

今回の築60年越えの築古中古住宅がどのように生まれ変わったのか、アフター写真をご覧いただきたいと思います。

6 リノベーション(全面リフォーム)のアフター

 

ここまでお付き合い有難う御座いました。

戸建てリノベーション(全面リフォーム)のビフォーアフターの工事の中身を中心に解説させていただきました。

工事の中身がいかに大切であるかがお分かりいただけたのではないでしょうか。そして、建物の性能を大幅に向上させるにあたり、現行の新築の最低基準を満たすのではなく、最高基準から逆算して、現在の建物に足りない性能を補う視点が大切だということです。

国で定められている基準は、耐震性能・断熱性能ともにあくまで最低基準であるということを施主自身も気づいていく必要があります。

戸建てリノベーションは改装リフォームと違い、金額もそれなりにかかって参ります。その為、見た目にのみ目を奪われ性能を見ないリノベーションをしてしまうのは大変もったいないことです。戸建てリノベーションをされる以上は、是非とも性能向上を意識したリノベーションをしていただきたいと思いますし、戸建てリノベーションに特化した施工会社に相談されることをお勧め致します。

フルリフォームをどこに相談すればいいか迷っている方は、木造戸建て専門会社の増改築.com®にご相談下さい。木構造を熟知する技術者が直接現場を担当致します。お問い合わせはこちらからどうぞ!

更新日:2021/07/29

< 事例担当者・著者情報 >

稲葉 高志

Twitterで戸建てリノベーションのポイントをオンタイムで配信しています♪

 

ハイウィル株式会社 四代目社長

1976年生まれ 東京都出身。

【経歴】

家業(現ハイウィル)が創業大正8年の老舗瓦屋だった為、幼少よりたくさんの職人に囲まれて育つ。

中学生の頃、アルバイトで瓦の荷揚げを毎日していて祖父の職人としての生き方に感銘を受ける。 日本大学法学部法律学科法職課程を経て、大手ディベロッパーでの不動産販売営業に従事。

この時の仕事環境とスキルが人生の転機に。  TVCMでの華やかな会社イメージとは裏腹に、当たり前に灰皿や拳が飛んでくるような職場の中、東京営業本部約170名中、営業成績6期連続1位の座を譲ることなく退社。ここで営業力の基礎を徹底的に養うことになる。その後、工務店で主に木造改築に従事し、100棟以上の木造フルリフォームを職人として施工、管理者として管理

2003年に独立し 耐震性能と断熱性能を現行の新築の最高水準でバリューアップさせる戸建てフルリフォームを150棟、営業、施工管理に従事。2008年家業であるハイウィル株式会社へ業務移管後、 4代目代表取締役に就任。250棟の木造改修の営業、施工管理に従事

2015年旧耐震住宅の「耐震等級3」への推進、「断熱等級4」への推進を目指し、 自身の500棟を超える木造フルリフォーム・リノベーション経験の集大成として、性能向上に特化した日本初の木造フルリオーム&リノベーションオウンドメディア 「増改築com®」をオープン

戸建てリノベーション・リフォームに関するお問合せはこちら

増改築.comの一戸建てリフォーム専用ホームページに
お越しいただき、誠に有難うございます。
 
増改築.comメンバーは技術集団となり、
他社のような営業マンがおりません。
技術者が直接ご相談にのり問題解決を行います。
 
従いまして、
お客様の方である程度のご要望が整理されました段階、
お悩みが工事内容のどのようなところにあるのか?
ご予算がどの程度絞る必要があるのか?
など明確になった段階でのご相談をお願いしております。
お問合せ・ご相談はお電話・メールにて受け付けております。
メールの場合は以下のフォームに必要事項をご記入の上、
「送信する」ボタンをクリックをお願いします。

代表稲葉高志

戸建てリノベーションの専属スタッフが担当致します。
一戸建て家のリフォームに関することを
お気軽にお問合せください

よくあるご質問
  • 他社に要望を伝えたところできないといわれたのですが・・・
  • 他社で予算オーバーとなってしまい要望が叶わないのですが・・・
  • サービスについて詳しく聞きたいのですが・・・

どのようなお悩みのご相談でも結構です。

あなたの大切なお住まいに関するご相談をお待ちしております。

営業マンはおりませんので、しつこい営業等も一切ございません。

設計会社(建築家様)・同業の建築会社様のご相談につきましては、プランと共にご指定のIw値及びUa値等の性能値の目安もお願い申し上げます。

2026年の大型補助金が確定したことで現在大変込み合っております。

耐震性能と断熱性能を向上させるフルリフォームには6か月~7か月の工期がかかります。

補助金獲得には年内に報告を挙げる必要があることから、お早目にご相談をお願いいたします。(6月着工までが目安

ご提案までに大変お時間がかかっております。ご了承のほどお願い申し上げます。

(5月までの着工枠が埋まりました)・・・2026/03/01更新

※すでにプランをお持ちのお施主様・設計資料をお持ちのお施主様は内容をフォームで送信後、フォーム下のメールアドレスに資料をお送りください。対応がスムーズです。

必須

(例:増改築太郎)

必須

(例:contact@high-will.co.jp)

(例:03-5615-2826)

必須

(例:東京都荒川区西日暮里2-35-1)

(例:築40年)

(例:25坪・100㎡など)

(例:2000万程度など)

  • ※再建築不可のリフォームでは金融機関が限られます。事前審査をお勧めいたします。

    (例:2024年3月くらいに完成希望など)

    必須

    できるだけ具体的にお知らせくださいませ。既存設計資料、リフォーム後のイメージ図等をお持ちであれば下記のメールアドレスより添付をお願いします。

    ※次の画面がでるまで、4~5秒かかりますので、
    続けて2回押さないようにお願いいたします。

    ※次の画面が出るまで、4〜5秒かかりますので、
    続けて2回押さないようにお願いいたします。

    図面や写真等を送信いただく場合、また入力がうまくいかない場合は、上記内容をご確認のうえ、下記メールアドレスまでご連絡ください。

    お電話でのお問合せはこちら

    0120-246-991

    営業時間:10:00~17:00(土日祝日を除く)

    ★YouTube「増改築.comチャンネル」チャンネル登録して新動画解説をいち早くGET!!★
    「増改築.comリノベ診断」であなたに一番ふさわしいフルリフォームを診断!!(動画解説付き)
    ★Facebookページにいいね!を押して最新コンテンツ情報をいち早くGET!!★
    パソコン|モバイル
    ページトップに戻る