戸建フルリフォームなら「増改築.com®」TOP施工事例東京都渋谷区O様邸 再建築不可スケルトンリフォーム

難易度の高い再建築不可をフルリノベーション

基礎がない?再建築不可物件を新築同様にスケルトンリフォーム 渋谷区O様

戸建てフルスケルトンリフォーム 基礎が無かった
渋谷区O様邸_竣工写真
渋谷区O様邸_戸建てスケルトン竣工
渋谷区O様邸_戸建てリノベーション竣工
渋谷区O様邸_一戸建てリノベーション竣工

何とこちらの現場は、不動産会社より中古住宅で売りに出された際に、6人もの購入希望者様が弊社ハイウィル株式会社にそれぞれリノベーションのご相談にこられた人気物件です。取引のあるの不動産業者さまではないので、何名の方が購入希望されたのかはわかりませんが、立地の良さから相当数おられたのではないかと思います。

結果的に今回O様がご購入されたわけですが、接道の間口こそ足りない状況でございましたが、超都心の好立地で都心の人間なら誰もが憧れる場所でのリノベーションとなりました。

建物概要
名前 O様
場所 東京都渋谷区
築年数 築60年
構造種別 木造
家族構成 大人2人+子供2人+犬1匹
対象面積 31.2坪
リフォーム部位 中古物件購入後戸建スケルトンリフォーム
工期 6カ月
価格 2300万(税別)※基礎新設別途

お客様のご要望

・耐震を強化して子供の代までもつ建物にしたい

・広めのバルコニーが欲しい

・2世帯住宅にリフォーム(完全分離型)

・2階をLDKにして明るい空間にしたい

・床下を布基礎からべた基礎へ

・外壁は全て剥がしてサイディングへ

プランニングのポイント

再建築不可特有の入り組んだロケーション。

この入り組んだロケーションを逆手にとって、プライバシーが確保できるルーフバルコニーを設計し、お二人の小さなお子様が遊べ、2世帯でバーベキューもできるよう、既存の平屋部分を解体し、全面ルーフバルコニーとするプランニングを提案させていただきました。

 

渋谷区O様邸 戸建てリノベーション施工事例テーマカテゴリー

  • 再建築不可リフォーム
  • 中古(住宅)を買ってリフォーム&リノベーション
  • 減築リフォーム
  • 賃貸併用住宅リフォーム
  • 内外部スケルトンリフォーム

打合せから完成まで

1 着工前

1-1 打合せ

 

超都心「初台」より徒歩数分の好立地の再建築不可の物件を購入されたO様。

このような物件は建物の価値はほぼないケースが多く、実際の建物も昭和初期の建物でした。

 

渋谷区O様邸_戸建てリノベーション施工前

渋谷区戸建てリノベーション_施工前

接道条件を満たしていないため、再建築不可となっている建物ですが、再建築不可のため、新たに新築を建てることもできないわけです。

そこでスケルトンリフォームの選択をされたわけです。こちらの物件はかなり人気の中古取引だったようで、弊社だけで6人の方からフルリノベーションのご相談があったくらいです。(工事中も近隣の方に職人さんに物件を売って欲しいと言われたと職人さんが言ってました。)

 

渋谷区再建不可 既存写真

二世帯の親世帯となる平屋部分。
スケルトンリフォーム後は平屋の屋根を解体し、
母屋のルーフバルコニーへリノベーションされます。

渋谷区再建不可 リフォーム

なぜ再建築不可なのかがよくわかる一枚。
旗竿地となっている敷地の道路の接道を見てください。
ここがわずか10センチ接道を満たしていないのです。

建物は、構造躯体を残してすべて解体を想定しました。

渋谷区再建不可 フルリフォーム
渋谷区再建不可 フルリノベーション

 

空き家の状態が長く、かなりの傷み具合です。構造補強に相当費用がかかることをお伝えいたしました。

 

渋谷区再建不可 賃貸併用
渋谷区再建不可 スケルトンリフォーム

室内はカビだらけとなっており、土台は見えませんでしたが腐食している想定でのお話しをさせていただきました。

渋谷区再建不可物件 リフォーム
渋谷区再建不可 スケルトンリフォーム

あとからお神楽して二階へ増築している造りとなっていました。構造的に、かなり危険な状態です。

渋谷区 再建不可 リフォーム
渋谷区 再建不可 リノベーション

外部の板も手で取れそうな状態でした。メンテナンスをしてこなかったのでしょう、改装ではどうにもならない状態です。

渋谷区 再建不可 既存写真
渋谷区再建不可 スケルトン

このO様邸では、この後の解体で、さまざまな傷みが出てきます。構造躯体も全く使える状態ではなく役所とも掛け合いながらのフルリノベーションになりました。

1-2 提案
渋谷区O様邸_既存平面図

■施工前の既存図面■

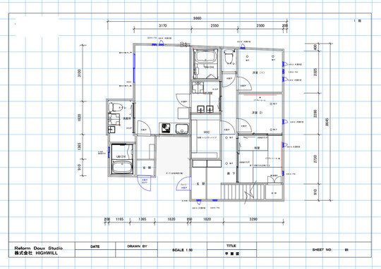
渋谷区O様邸_新規平面図

■施工後の1階平面図■

渋谷区O様邸_新規平面図

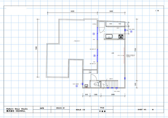
■施工後の2階平面図■

渋谷区O様邸_施工後イメージ

既存建物は外階段を設置して2階は3世帯賃貸造りになっていました。1階は増改築を何回も重ねられた跡がみられ、再建築不可という理由にあり、ピッチも一部狂っている状態でした。

親世帯が図面上左、子世帯であるO様宅は図面右側のゾーニングとなっています。親世帯の平屋屋根部分は、子世帯2階のルーフバルコニーへ設計させていただきました。

 

2 着工

2-1 解体

渋谷区「初台駅」徒歩数分の昭和初期の建物の解体に着手しました。

予想以上の傷み具合に、木造フルリフォーム専門部隊も驚きを隠せませんでした。構造躯体のねじれや傾きなどは、補正可能な範疇です、この渋谷区の建物の一番の問題は土台でした。

 

問題があったのは、四方の土台のほとんどが、腐食しているという状況だったのです。それもそのはずです。。

 

石に土台を乗せる社寺建築の「石場建て工法」ではなく、外周にさまざまな石を並べ、土台を乗せていた形跡はありますが、建物をお神楽して、二階建てへ増築しているため、土台ごと沈下している状態となっていたのです。土台が沈下しているわけですから、土台がすべて土に直に接触している状態となってしまっております。当然、水を吸っているわけですから、腐食するのは当然です。

つまり、使える土台は一本もないという状態です。

 

 

平屋部分の一部がなんとか石に土台が乗っている状態ですが、3方向の土台がほぼ壊滅状態です。

 

2階のアパートとなっていた建物側の土台は完全に地中にめり込んでおり、水を吸い柱までが溶けている状態です。

 

基礎が使える想定で添え基礎(抱き基礎)を想定しての補強を計画していましたが、この状態を見て、このまま抱き基礎で増し打ちをしてもGLレベルに土台が来ている状態では、雨水にさらされることになってしまいます。

役所と協議をして、再度計画変更を致しました。再建築不可の建物のフルリノベーションやフルリフォームは、建て替えができないため既存不適格の建物が圧倒的に多いわけですが、国で、定められた法に基づき、耐震改修を行うことになります。

 

2-2 基礎

 

土台がGL(地盤面)と同じラインとなっているため、基礎をどうしても上げなければ建物として安心できる構造体とは言えない状況です。その為、鋤取り量は当初の想定をはるかに上回る残土量となり、工事ロケーションの悪さから、搬出に相当な人手がかかりました。

 

 

 

ここからが大変です。既存の構造躯体はすでに歪んでおります。既存の躯体を仮で補強し、構造体自体をジャッキアップする準備に入ります。基礎は砕石の段階です。

 

土台を一部入れ直し、仮で躯体が倒れないように固定します。
建物全体をジャッキアップするために補強しました。
柱も使えるレベルのものが少なく芯まで腐食してしまっている
ものが多く添え柱で補強できるものが少なく苦労を要しました。

 
仮で土台を支えます。
渋谷区O様邸_基礎

一部の柱に抱き柱で補強し既存の構造体を仮補強しジャッキアップに備えます。

渋谷区O様邸_基礎

再利用が不可能な柱

布の高さを決め、ジャッキアップしました。
外周に型枠を設置します。

地盤面にあった土台がジャッキアップで構造体ごと240㎜上がっています。

砕石後に転圧を加え防湿シートを張ってきます。

重ね厚を確保し、束部分をテープで補修します。

タテ筋D10、ヨコ筋D13、アンカー筋D10で配筋をしていきます。

ヨコ筋を150㎜ピッチで千鳥格子上に配筋していきます。

土台下に布基礎を設置するため、
このような例外的なケースでは工程は逆ですが、
ジャッキアップ後に建て筋を立ち上げます。

新規で土台が来る位置にはタテ筋を立ち上げます。

 

配筋工事が終わりました。

配筋が終わり型枠の工程へ移行します。

渋谷区O様邸_基礎

布が立つ位置に型枠を組んでいきます。

渋谷区O様邸_基礎

躯体が浮いているのがお分かりいただけるかと思います。

渋谷区O様邸_基礎

コンクリートを打設していきます。

渋谷区O様邸_基礎

再建築不可のロケーションの悪さから、人海戦術で100メートル以上離れたポイントにミキサー車を置き、ネコで運びました。

渋谷区O様邸_基礎

型枠を取りベタ基礎が完成しました。

渋谷区O様邸_基礎

いよいよ土台(構造躯体)をジャッキで降ろしていきます。

 

今回の渋谷区の超都心かつ再建築不可という工事ロケーションとしては、最悪とも呼べる環境での最も苦労する基礎工事が終わりました。商店街に面している立地ということもあり、道路使用許可を搬入、搬出のタイミングをみて警察へ取りにいくなど、再建築不可リフォームを数多く手掛ける弊社でも、苦労した現場です。

基礎工事で新築の2.5倍の費用が掛かりました(大半は人工です)役所との協議もしながら、一部減築をし検査も終了しました。

 

2-3 大工工事

 

基礎を補強後はいよいよ大工工事となります。基礎があまりに苦労した為、ここからは手間のかかる作業も楽に思えるほどでした。使用できる土台がほとんどない事、柱も曲がりがひどく1000分の3以上の曲がりがあるものは、施主様ともお話しし、差し替えをさせていただきました。結果として、ほぼ新築と変わらない材木量となりました。

 

一部の既存柱を抱き柱で補強を入れ躯体を補強

防蟻材を塗布

O様邸は2世帯のリフォームとなっています。




 

2階バルコニー側。梁掛けと耐力壁の設置。

 

旧アパートとなっていた棟は、O様の母屋となっており、二階はの間取りはルーフバルコニーと一体化出来る様開放的なLDKで空間をプランニングしています。大変広いLDKとなっており、O様邸ではリビングよりルーフバルコニーが望める設計になっております。

 

再建築不可ならではの奥まった敷地ですが、この閉塞感を
逆手にとってプライバシーを確保された広いルーフバルコニーを
プランニングしました。

閉鎖的な再建築不可のロケーションが
プライベートな空間を演出します。

2階バルコニーを2階フロアとフラットにしたいご要望をいただいておりましたが、防水層を設置するのに懐が必要になります。一階部の天井が下げることでフラットにすることは可能ではありましたが、親御様世帯のリビングになることもありこちらの段差を許容していただきました。

2-4 外壁工事

O様邸の再建築不可の躯体残しのスケルトンリフォームでは、外壁は構造用合板を4方全面に張り壁強度を高めます。外壁仕上げがサイディング仕上げとなりますので、外周面の構造用合板全面張り後、防水シートを張り、通気胴縁を打ち、サイディングを張っていく工程となります。

 

渋谷区O様邸_外壁工事
渋谷区O様邸_外壁工事
渋谷区O様邸_外壁工事
渋谷区O様邸_外壁工事

 

3 竣工

 

 

渋谷区O様邸_竣工

O様邸は、手前に賃貸用の玄関。奥に母屋の玄関と2箇所玄関があります。

渋谷区O様邸_竣工

こちらは、賃貸用の玄関になります。

渋谷区O様邸_竣工

賃貸のキッチンです。トクラスBb I型1650サイズです。
扉は開き戸になっています。

渋谷区O様邸_竣工

賃貸の脱衣室スペースです。限られた中でコンパクト洗面器を設置しました。

渋谷区O様邸_竣工
渋谷区O様邸_竣工

▲ O様邸のサッシはスリットの縦滑り出し窓とFIX窓を多く使用しております。

渋谷区O様邸_竣工
渋谷区O様邸_竣工

下駄箱はpanasonicのwide

渋谷区O様邸_竣工
渋谷区O様邸_竣工

▲ 1階のご両親様の寝室は畳で納めさせて頂きました。少しでも収納力をとご要望を頂きましたので畳の床下収納を入れさせて頂いております。

 

渋谷区O様邸_竣工
渋谷区O様邸_竣工
渋谷区O様邸_竣工
渋谷区O様邸_竣工
渋谷区O様邸_竣工
渋谷区O様邸_竣工
渋谷区O様邸_竣工
渋谷区O様邸_竣工
渋谷区O様邸_竣工

金属防水が可能にする木造でのルーフバルコニー技術

渋谷区O様邸_竣工

平屋屋根を解体しルーフバルコニーに設計施工。
仕上げはタイル張りです。

3-1 外壁 Before → After
渋谷区O様邸_施工前

リフォーム前

築年数が50年以上、二階は落ちそうなほどグラついており、

押せば柱が動くものもあり大変危険な状態でした。

渋谷区O様邸_竣工

スケルトンリフォームで新築同様、かつ開放的なルーフバルコニーが出来ました。

3-2 キッチン Before → After
渋谷区O様邸_施工前

リフォーム前

既存キッチンはボックス型のキッチンです。

キッチンの廻りには必要以上の窓があります。

渋谷区O様邸_竣工

トクラスBbI型2550のシステムキッチンです。引出は全てスライド式なので収納力はかなりの量です。
 

3-3 階段 Before → After
渋谷区O様邸_施工前

リフォーム前

外階段は今まで賃貸で貸していたお部屋の為に渡り廊下も兼ねて設置されて

いました。

渋谷区O様邸_竣工

リフォーム後は屋内階段です。勾配も緩やかにしてあります。
panasonicベリティス システム階段です。

3-4 洗面 Before → After
渋谷区O様邸_施工前

リフォーム前

リフォーム前は、洗面室という空間がありませんでした。

畳の部屋の脇に浴室が造られてました。

渋谷区O様邸_竣工

新規では洗面室には2人立てる様にしたいとご要望を頂き、すっきりと洗面ボウル2個とシンプルな鏡を設置しました。

3-5 トイレ Before → After
渋谷区O様邸_施工前

リフォーム前

既存トイレは床がタイルになっており、かなり年季の入った洋風トイレでした。

渋谷区O様邸_竣工

トイレはハイウィルオリジナルトイレです。ウォシュレット紙巻き器がセットになった商品になります。

3-6 リビング Before → After
渋谷区O様邸_施工前

リフォーム前

既存建物は長い間空家の状態だったので各お部屋かなり傷んでました。

全体的に居室は和室で造られてます。

2階は賃貸で貸していた様で、廊下で各居室分かれた空間になっています。

施工後のお客様のご要望はワンフロアのLDKです。

渋谷区O様邸_竣工

2階は補強を入れてワンフロアにし、I型キッチンを対面の形に設置しました。
既存1階屋根の分部を屋上庭園にしたので、より開放感がでます。

更新日:2020/12/10

基礎がない建物の再生工事は『耐震補強リフォーム完全ガイド』で詳しく解説されています。
➡️ 記事『26.【難関事例④:無基礎】「この家には、基礎がありません」。絶望の宣告から始まった、奇跡の再生工事』へ
ハイウィルスタッフ

4 担当者より ハイウィル株式会社四代目代表 稲葉高志

O様の購入された渋谷区本町の初台駅から徒歩数分という再建築不可の物件は、大変人気の物件でして、O様より戸建リノベーションのご相談を受ける前にも、複数名のお施主様からリノベーションのご相談がありました。

弊社に戸建リノベーションのご相談が複数名あったくらいですから、恐らくかなりの倍率であったのでしょう。

結果的にO様がご購入されたわけですが、接道の間口こそ足りない状況でございましたが、超都心の好立地で都心の人間なら誰もが憧れる場所でのリノベーションとなりました。

工事をやる立場の人間としては、これ以上ない程工事ロケーションが悪く(笑)

かなりの苦労を要した現場でもありました。最も苦労したのが、基礎がほぼない状態であったことです。

築60年を超える建物には、石場建てのような工法で建てられた建物がありますが、こちらは、石場建てとは言えず、一部の石で支えられた土台がすでに荷重で沈下、

土台が土に沈んでしまっている状態で、基礎を新規でやり直す工程が必要でした。

外壁まで解体し、今にも倒壊しそうな構造躯体を仮筋交いで補強し。ジャッキアップをして建物を持ち上げ、新たに基礎を新設しました。

このような工事自体、弊社では珍しい事例ではありませんでしたが、超都心の入り組んだ場所でコンクリートミキサー車も入れないようなロケーションとなっていたため、離れたところから人海戦術で生コンクリートを運び、基礎打設をした現場でした。

工期もこの基礎でかなりの時間を要しお客様にもご協力いただき、結果として再建築不可築60年超の建物が新築同様の建物に生まれ変わった貴重な事例となりました。

工事期間中は、O様にも何度も現場に足をお運びいただき、打ち合わせを重ね、大変満足いただける建物をお引渡しすることが出来ました。工事完了後は弊社にわざわざご家族でお礼に来られ、その後も季節ごとにお中元を頂いたりと業者冥利につきる仕事となりました。いつも有難う御座います。

 

 

パターン別『再建築不可リフォーム施工事例6選』これさえ読めば再建築不可のポイントがわかる!

全国のフルリフォーム・リノベーション『ピックアップ事例』※プロの詳細解説付きレポート

HEAT20-G2/耐震等級3
新耐震基準の性能向上リノベーション
築30年ハウスメーカー軽量鉄骨
断熱改修&リノベーション
 
中古住宅を新築以上の耐震性能と断熱性能へ!
耐震等級3フルリフォーム
地下付き木造2階建て
自然素材をつかった性能向上リノベーション&フルリフォーム

東京都文京区 K様邸

長屋を切り離して1つの構造体へフルリフォーム&リノベーション
隣家との距離がない!
部屋から外壁を張り替えるフルリノベーション
中古住宅を耐震等級3へ!
中古住宅リノベーション
 
基礎がない??
築60年の古屋をジャッキアップで基礎新設フルリノベーション

東京都渋谷区 O様邸

戸建てリノベーション・リフォームに関するお問合せはこちら

増改築.comの一戸建てリフォーム専用ホームページに
お越しいただき、誠に有難うございます。
 
増改築.comメンバーは技術集団となり、
他社のような営業マンがおりません。
技術者が直接ご相談にのり問題解決を行います。
 
従いまして、
お客様の方である程度のご要望が整理されました段階、
お悩みが工事内容のどのようなところにあるのか?
ご予算がどの程度絞る必要があるのか?
など明確になった段階でのご相談をお願いしております。
お問合せ・ご相談はお電話・メールにて受け付けております。
メールの場合は以下のフォームに必要事項をご記入の上、
「送信する」ボタンをクリックをお願いします。

代表稲葉高志

戸建てリノベーションの専属スタッフが担当致します。
一戸建て家のリフォームに関することを
お気軽にお問合せください

よくあるご質問
  • 他社に要望を伝えたところできないといわれたのですが・・・
  • 他社で予算オーバーとなってしまい要望が叶わないのですが・・・
  • サービスについて詳しく聞きたいのですが・・・

どのようなお悩みのご相談でも結構です。

あなたの大切なお住まいに関するご相談をお待ちしております。

営業マンはおりませんので、しつこい営業等も一切ございません。

設計会社(建築家様)・同業の建築会社様のご相談につきましては、プランと共にご指定のIw値及びUa値等の性能値の目安もお願い申し上げます。

2026年の大型補助金が確定したことで現在大変込み合っております。

耐震性能と断熱性能を向上させるフルリフォームには6か月~7か月の工期がかかります。

補助金獲得には年内に報告を挙げる必要があることから、お早目にご相談をお願いいたします。(6月着工までが目安

ご提案までに大変お時間がかかっております。ご了承のほどお願い申し上げます。

(5月までの着工枠が埋まりました)・・・2026/03/01更新

※すでにプランをお持ちのお施主様・設計資料をお持ちのお施主様は内容をフォームで送信後、フォーム下のメールアドレスに資料をお送りください。対応がスムーズです。

必須

(例:増改築太郎)

必須

(例:contact@high-will.co.jp)

(例:03-5615-2826)

必須

(例:東京都荒川区西日暮里2-35-1)

(例:築40年)

(例:25坪・100㎡など)

(例:2000万程度など)

  • ※再建築不可のリフォームでは金融機関が限られます。事前審査をお勧めいたします。

    (例:2024年3月くらいに完成希望など)

    必須

    できるだけ具体的にお知らせくださいませ。既存設計資料、リフォーム後のイメージ図等をお持ちであれば下記のメールアドレスより添付をお願いします。

    ※次の画面がでるまで、4~5秒かかりますので、
    続けて2回押さないようにお願いいたします。

    ※次の画面が出るまで、4〜5秒かかりますので、
    続けて2回押さないようにお願いいたします。

    図面や写真等を送信いただく場合、また入力がうまくいかない場合は、上記内容をご確認のうえ、下記メールアドレスまでご連絡ください。

    お電話でのお問合せはこちら

    0120-246-991

    営業時間:10:00~17:00(土日祝日を除く)

    ★YouTube「増改築.comチャンネル」チャンネル登録して新動画解説をいち早くGET!!★
    「増改築.comリノベ診断」であなたに一番ふさわしいフルリフォームを診断!!(動画解説付き)
    ★Facebookページにいいね!を押して最新コンテンツ情報をいち早くGET!!★
    パソコン|モバイル
    ページトップに戻る