全国対応!『増改築.com®』セカンドオピニオンサービス

zoomによる”住まい建物”何でも相談サービスの流れ

建築セカンドオピニオン

過去実際にあった相談事例

1年前に400万円かけてリフォームしたが、使い勝手が良くなっていない・・

 

1年前にLDKを400万円掛けてリフォームしたが、ダイニングの位置に柱が残っていて邪魔だったり、システムキッチンと冷蔵庫が離れすぎているなど使い勝手が悪いことと、相変わらず冬寒いので、最悪今の家を売却して他に建てることも考えているがどうすればいいか相談に乗ってほしい。とのご相談でした。

まずは、既存の間取りと写真を送っていただき、ご要望もヒアリングさせていただきました。

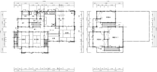
頂いた既存図面

既存内観写真

既存内観写真

既存内観写真

既存内観写真

〈プランの問題点〉

在来工法で抜けない柱は基本的にないことを説明させていただきました。

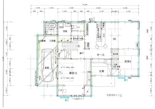
基礎・壁・梁を補強することで開放的な間取りになることを提案新しい間取り図と補強図面で説明

基礎補強・梁補強提案図

壁補強提案図

思い通りの間取りと断熱対策ができることが分かったので、今の家をリノベーションすることを決断される経緯となった事例です。

結婚して実家で母との同居を考えているが、寒いことと二世帯で住むのに使い勝手が悪いので相談したい

 

アパートで暮らしているが、子供も二人できたので手狭になったので、実家で母と同居を考えている。

とにかく冬寒くて結露にも悩まされていることと、二世帯で暮らすには使い勝手が良くないので、暮らしやすい間取りに変えたい。

近くのリフォーム専門会社にプランを依頼したが、見積書の内容で暖かい家になるかどうか疑問なことと、望んでいる暮らしの間取りになっていないので、相談に乗ってほしい。

リフォーム会社のプランと見積書、家の写真等を送って頂きアドバイスをさせていただいた事例です。

 

 

既存外観写真

既存内観写真

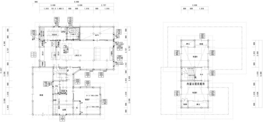
既存平面図

リフォーム会社提案プラン

〈プランの問題点〉

●キッチンが狭く収納が不十分

●ダイニングがテーブルセットを置くだけでいっぱいになり、ゆとりがない

●テレビの設置場所がない

●脱衣室が2帖しかなく、洗濯機と洗面台を置くと、着替えのスペースや収納が取れない

●廊下が既存のままで、無駄なスペースになっている

1階のトイレ両側の押し入れの形状が使い勝手が悪く合理的でない

●リビング隣の和室が広い割りに使い方が曖昧

2階廊下のスペースを広く取り過ぎていて無駄

●部屋が小間切れで、それぞれに冷暖房機が必要になり、それに掛かるランニングコストが膨らむ

●全体的に通風が考慮されていない

 

ここまでのアドバイスをさせていただきました。

是非プランも制作して欲しいとのご要望でしたので、

「リノベーションプランニングサービス」にもお申し込みをいただきご提案しました。

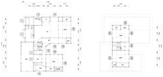
アドバイス提案プラン

〈見積りの仕様の問題点〉

 

①壁・天井の断熱材がグラスウール➡数量から推測すると断熱性能が不十分

➁リビングの床暖房を既存のまま使用➡床下の付加断熱がないので34万円/月の光熱費が変わらない

➂サッシの性能が一般的なアルミ樹脂複合で、結露対策が不十分

合板のカラーフロアなので、冬の冷たさ対策が不十分

収納の床・壁がクッションフロアとビニールクロスで湿気対策が不十分

 

〈仕様の提案〉

① ➡壁・天井の断熱の材料を変えて性能を上げる

➁ ➡床下に断熱材を入れて、床自体の断熱性能を上げる

➂ ➡樹脂複層サッシ(Low-Eガラス)にして窓の性能を上げる

④ ➡30㎜厚の無垢床材をおすすめ

⑤ ➡自然素材を使って、調湿性能を高める

提案に加え、

◎メンテナンスコストのかからない外壁材(漆喰塗り壁)を提案

◎全体的に、お金を掛ける部分と、既存をそのまま使用する部分をはっきりと分けて整理する

性能を充実させた仕様での提案、ライフプランを作成して、建築費とメンテナンス費を考慮した計画を提案させていただきました。

お問合せからお申込みまでの流れをご説明します。

フォームよりお問合せ

増改築.com

このページからご相談内容につきまして「お問い合わせ」をお願いいたします。

必要資料等の
ご案内

増改築.com

ご相談を受ける際にご要望に応じた必要資料等をご案内いたします。

日時の確定

増改築.com

ご希望のご相談日時をお伺いしてご相談日時の確定を行います。

申込受付完了

増改築.com

ショッピングカートのURL(別ページ)をご案内致しますのでご購入手続きをお願いします。、正式なお申込み(クレジット決済)をお願いいたします。

お申し込み後の流れ

お申込みからサービス提供までの流れをご説明します。

確定日時にzoom
ご招待

増改築.com

ご相談日時に、zoomの招待メールをお送りいたします。

セカンドオピニオンサービススタート

増改築.com

ご相談サービスのスタートです。相談者専用に作成したスライドをもとに、ご要望に応じたアドバイスを第3者の立場でじっくりご納得いただけるまでアドバイス致します。

セカンドオピニオンサービス終了

増改築.com

解決法をご提案してセカンドオピニオンサービスが終了します。プランニング作成をご希望の場合は再度お申し込みをいただきます。

満足度100%達成中!続々と寄せられるお客さまの声

ここではお客さまの声をご紹介します。

丁寧な対応に感動!

イメージができたのが特に良かった!

T様(熊本市)
 
お話が聞けて大変良かったです。
特にプロの目線から気になる項目(断熱や耐震など)とその理由、
ただ建てるのではなく住むためのものとして5年後10年後の
イメージができたのが特に良かったです。
あえて言うならば、大沼社長と稲葉様でお話をしていた際に、
どの工事のどの項目の話をしてるか2度見失いましたので(床工事あたり?)、
スライドで確認できながらだとありがたかったです。
今回は、こちらの都合にも関わらず、
すぐに相談日を設定していただき、大変ありがたかったです。
またお世話になることがありましたらよろしくお願いいたします。
丁寧な対応に感動!

業者への具体的な要請事項も明確になり大満足です

M様(京都市)
 
私は2度ほど利用させていただきました。
この度はお忙しい中、貴重なご意見賜わりありがとうございました。
現在知り合いの業者よりリノベーション提案を受けていた内容が5000万円近くのもので、こちらの要望がすべて満たされるのかを相談しました。
一度目のセカンドオピニオンサービスでは、業者への具体的な要請事項もご教示賜り大変助かりました。
大沼社長や稲葉社長の要請事項に沿い業者と打合せや協議を重ね、各種不明な部分を明らかにしていくことができました。
最終的な提案が業者より提出された段階で、プランをお送りし二度目のセカンドオピニオンサービスを再度利用させていただきました。
 
私自身非常に勉強になりましたし、結果として満足いく結果となりリノベーションも成功いたしました。
また何かあれば御相談させていただきます。
 
丁寧な対応に感動!

構造計算サービスも併せて利用させていただきスムーズにリノベーションが完了しました!

E様(青森県十和田市)
 

先日は、zoomミーティングありがとうございました。

丁寧に聞いて下さり感謝しております。

付き合いのある工務店に耐震等級3相当の耐震リフォームしたいと希望しましたが、その結果、できないと言わてしまいました。できない理由がはっきりしないので、こんどは付き合いのある近所の建設会社に相談しました。がそこでも、難色を示されてしまい困っているときにセカンドオピニオンサービスを利用させていただきました。結果的にプランサービスも利用させていただきましたが建設会社にもプラン提案の際にアドバイスを頂け大変ありがたかったです。
東北では、古い木造住宅を耐震等級3相当にリフォームすること自体があまりないのかもしれません。経験豊富な大沼社長、稲葉社長が味方してくださったおかげで、地元の建設にもスムーズに工事をしていただくことが出来ました。

今後ともよろしくお願いいたします。

丁寧な対応に感動!

見積を詳細に分析いただき要不要の工事がハッキリしました

T様(名古屋市)
 
大沼 勝志 さま
 
とてもありがたいお話に感謝しております。
ついつい工事をはやめてしまいたいと気が急っていましたが、
予算の配分などを細かく解説頂き、再度見直す良いきっかけを作っていただきました。
良いご縁にしていただきありがとうございました。
またお世話になることがございましたらよろしくお願いいたします。
 
 

戸建てリノベーション‘セカンドオピニオン‘サービスに関するお問合せはこちら

木造一戸建ての専属スタッフが担当致します。
一戸建て家のリフォームに関することを
お気軽にお問合せください

増改築.com®戸建てリノベーション‘セカンドオピニオン‘サービス専用お問い合わせフォームにお越しいただき、誠に有難うございます。

 

増改築.com®メンバーは技術集団となり、他社のような営業マンがおりません。技術者が直接ご相談にのり問題解決を行います。

 

まずは下記フォームより、お客様のお悩みや現在の状況についてお聞かせください。担当者よりご連絡申し上げます。

どのようなお悩みのご相談でも結構です。

あなたの大切なお住まいに関するご相談をお待ちしております。

必須
必須

(例:増改築 太郎)

必須

(例:東京都荒川区西日暮里2-35-1)

必須

(例:0120-246-991)

必須

(例:sample@zoukaichiku.jp)

(在来・ツーバイ・プレハブ など)

(ご要望などできるだけ具体的にご記入くださいませ)

必須

(ご要望・ご相談などできるだけ具体的にご記入くださいませ)

テキストを入力してください

※次の画面が出るまで、4〜5秒かかりますので、
続けて2回押さないようにお願いいたします。

入力がうまくいかない場合は、上記内容をご確認のうえ、メールにてご連絡ください。

お電話でのお問合せはこちら

0120-246-991

営業時間:9:00~18:00(土日祝日を除く)

パソコン|モバイル
ページトップに戻る