戸建フルリフォームなら「増改築.com®」TOP > 施工事例 > 都道府県で探す大阪府 > 大阪市天王寺区 > 施工事例 K様 アパートを2世帯住宅へスケルトンリフォーム

昔に増築して違法扱いとなってしまっている建物(既存不適格)をスケルトンリフォーム

アパートを2世帯住宅へスケルトンリフォーム 大阪市天王寺区K様 施工事例

大阪市天王寺区K様邸_TOP

 

大阪市天王寺区のK様はフルリノベーションをご検討されはじめた2年前より当社の「増改築com」をご覧いただいておられたお施主様で、株式会社ハイウィルの関西拠点のオープンからほどなくご相談いただきましたお客様です。

建物概要
名前 K様
場所 大阪府大阪市天王寺区
築年数 築35年
構造種別 木造戸建
家族構成 大人3人
対象面積 38.8坪
リフォーム部位 間取り変更/断熱サッシ取替/外壁サイディング/グラスウール/水まわり一式/屋根葺き替え
工期 5ヶ月
価格 2400万

お客様のご要望

今回のリフォームで、K様からのご要望は以下の2点です。

  • 元々アパートだった2世帯住宅を、高齢の母のためにこれからの生活を考えた住まいにフルリフォームしたい。
  • 風致地区であるが、部屋数を減らさずリフォームしたい

大阪市天王寺区のこちらの物件は、元々アパートだったため1階と2階が外階段でしか繋がっておらず、玄関も別々な2世帯住宅でした。
K様は新築への建替えも検討しましたが、大阪市内でも珍しい風致地区であるため2階建てを3階建てにすることもできず、建替えすると部屋数を減らさなければなりませんでした。そのような経緯から、部屋数を減らさずフルリフォームで希望を叶えてくれるリフォーム会社を数年に渡り探していらっしゃったそうです。

 

「増改築.comはスケルトンリフォームをはじめ、木造戸建の制限付き物件のフルリフォームについて、実例をもとに詳しく説明してくれていたので注目していましたが、東京や横浜しか施工してくれないと諦めていました。しかし今回関西も施工エリアになったため、思い切って相談させていただきました。」

 

このようなご縁をいただき私ども増改築.comにご相談いただいたことを大変光栄に思います。

※風致地区(ふうちちく)とは、1919年(大正8年)に制定された都市計画法において、都市内外の自然美を維持保存するために創設された制度である。指定された地区においては、建設物の建築や樹木の伐採などに一定の制限が加えられる。「風致」とは、「おもむき、あじわい、風趣」の意。(出典: フリー百科事典『ウィキペディア(Wikipedia)』)

プランナー 北畠より ~プランニングのポイント~

K様のお宅は大阪市天王寺区の築35年の木造建築です。現場調査で拝見しましたところ、屋根・外装のクラックや亀裂からの雨仕舞が悪く、腐食が進んでいるようでした。また外階段を内階段に再構築するにあたり、外装を解体する必要があったため、屋根と外装もリノベーションする内外部スケルトンリフォームをご提案させていただきました。

結露が酷かったため、根本原因である既存サッシの取替が重要であり、YKKの断熱ペアガラスへの総取替をおすすめさせていただきました。リフォーム予算のコストダウンを図るため、必要のないサッシは大工造作で塞ぎ、サッシ位置も変えずにサイズアップのみご提案させていただきました。

 

大阪市天王寺区K様邸 戸建てリノベーション施工事例テーマカテゴリー

 

  • 2世帯住宅リフォーム
  • 内外部スケルトンリフォーム

打ち合わせから着工、完成までの詳細施工事例紹介

1 着工前

1-1 現場調査・打合せ

K様は、ご両親から相続された築35年の木造アパートで息子さん世帯との2世帯住宅として長らくお住まいになられておられました。建替えを希望されていましたが大阪市天王寺区の風致地区に該当するため建替えには色々と制限が多い上、お父様が生前強引に増築して違法建築住居となっているため、建替えではなくフルリフォームで、とご検討されておられました。

私ども増改築.comの施工事例の中で、木造戸建を寮にリノベーションされた品川区H様邸の施工事例をよく見ていただいており、スムーズにお打合せさせていただくことができました。

大阪市天王寺区K様邸_施工前

当社代表の稲葉も東京から合流.大阪市天王寺区のK様邸フルリフォームの現場調査が始まりました。

大阪市天王寺区K様邸_施工前

お父様が生前増築された建屋。こちらは建蔽率オーバーの増築であり違法建築扱いとなってしまいます。

大阪市天王寺区K様邸_施工前

お写真では生活感溢れるお住まいですが、室内は大切にお住まいされていることがよく分かりました。

大阪市天王寺区K様邸_施工前

築35年を思わせる懐かしいブロックキッチン仕様。若奥様はお料理がお好きであり、食洗器付きの最新型のシステムキッチンのリフォームをご希望でした。

大阪市天王寺区K様邸_施工前

長年使い慣れた外階段ですが、老朽化が進んでおり、安全性にも問題が。コストダウンも含めて外階段と2階玄関は撤去し、ワンウェイをご提案。

大阪市天王寺区K様邸_施工前

1階2階を問わず、既存サッシまわりの結露が酷いというお悩みをいただきました。結露が多いということは周辺部の腐食が進んでいる証拠です。

1-2 大阪市天王寺区K様邸 戸建リノベーションプラン

  間取りの変更プラン  

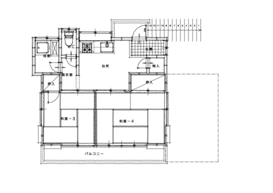
大阪市天王寺区K様邸_既存平面図

1階 既存平面図

大阪市天王寺区K様邸_既存平面図

2階 既存平面図

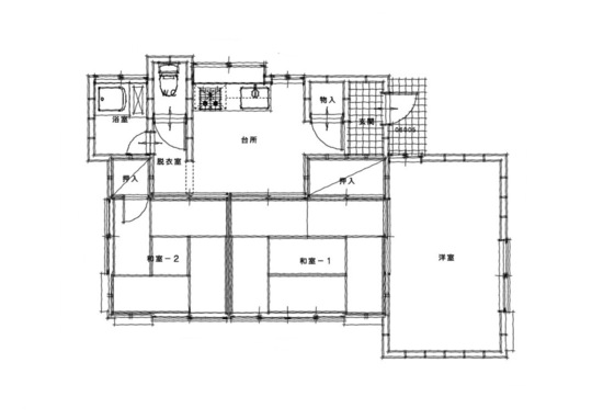
大阪市天王寺区K様邸_新規平面図

1階 新規平面図

大阪市天王寺区K様邸_新規平面図

2階 新規平面図

一階からの外階段を撤去し、既存の二階玄関スペースを有効活用。パントリースペースとして、お家そのものの収納力をアップさせました。
新しい内階段によって二階のダイニングとリビングも自然にセパレートさせることができ、K様も大変喜んでいただきました。

一階、二階共に浴室はサイズアップ。広々と快適にご入浴いただけます。その分トイレは向きを変え、スライドさせることになりましたが、構造を触らないリフレッシュリフォームではなく、スケルトンリフォームのため、給排水の移設もスムーズに進めることができました。
マンションでは、スケルトンにしても、勾配やコンクリートにより移設が制限されるため、今回のサイズアップとスライド移設は木造戸建住宅における、フルリフォームならではのご選択と言えるかと思います。

当初のK様のご希望通り、部屋数を減らすことなく、また外階段を内階段仕様に。ハイウィル関西のフルリフォームによって、素敵に快適に再構築させていただくことができました。

2 着工

2-1 足場・解体

足場を設置

まずは第一工程として足場を架けさせていただくことからスタートさせていただきました。
大阪市内の中でも天王寺区や北区、中央区はお隣との境界スペースがほとんどない物件が多く、再建築不可(2メートルの道路接道がない)物件も多いため、足場を掛けられないケースが多々ありますが、K様邸は以前強引な増築により既存不適格物件ではあるものの、幸い境界スペースが45cm以上確保できたため、無事に足場を設置することができました。

足場を掛けられない場合、外壁面はセメント板サイディングの裏打ち工法に限定されてしまうため、工期だけなくコスト面でも順調な滑り出しとなりました。

大阪市天王寺区K様邸_解体

いよいよK様邸のフルリフォームの着工です。お家まわりにはスペースがあったため足場をかけるのは容易でした。

大阪市天王寺区K様邸_解体

ご近所に埃がたたないように、足場に養生シートを掛けさせていただきました。

解体は手壊しで

解体は主要構造部を残すスケルトンリフォームのため、重機による解体ではなく、専門の職人達による手壊し解体で進めさせていただきました。安全第一の現場を心がけているハイウィルでは、解体した産業廃棄物をマメに搬出しながら進めさせていただいております。
作業効率を考えながら、1階、2階、水まわり、サッシ、外壁をはじめ諸々の解体を2週間程で完了し、厳密に柱や梁といった主要構造部の状態を確認させていただきました。幸い築35年を経て、木造部の老朽化は進んでいるものの、白蟻被害等はなく、状態の良い主要構造部であることが分かりました

大阪市天王寺区K様邸_解体

解体が進むにつれ柱や梁の主要構造部があらわになりました。元々アパートであったため良質な構造が施工されており、造られた大工さんの心いきを感じました。

大阪市天王寺区K様邸_解体

梁も精緻な等間隔で施工されており、外装面と異なり、湿気も少なくこれかも補強すれば問題のない品質を保っていました。

大阪市天王寺区K様邸_解体

基礎も鉄筋が入っており、水平レベルを保っていました。白蟻被害もなく良質な新築工事だったと思います。

大阪市天王寺区K様邸_解体

スケルトンリフォームで解体箇所が多かったため、廃材処分はかなりの量がでました。大工さんが工事しやすいように同時進行で処分。

大阪市天王寺区K様邸_解体

配水管も問題なく使えていましたが、これから30年、40年後のことを考え、撤去の上、新しい樹脂管にお取替えです。

2-2 基礎

基礎は再利用

解体工事も無事に終了し、通常、次は基礎工事に入ります。
大阪市天王寺区のK様邸は外装の経年劣化が激しかったものの、基礎は湿気の少ないベタ基礎が良い状態で再利用することができました。

大阪市天王寺区K様邸_基礎

湿気がこもりやすい布基礎ではなく、状態の良いベタ基礎仕様でした。

K様は当初、耐震性について危惧されておられましたが、元々アパートであったこともあり、築35年にも関わらず基礎にも鉄筋がしっかり入っており、腐食等の問題もなかったことから、耐震工法に限りある予算を掛けなくとも、柱や梁の主要構造部の補強で十分であると判断しました

2-3 大工工事

順調に工事が進む中、いよいよ木造戸建のスケルトンリフォームのメイン工程である木工事に入っていきます。
築35年の木造戸建としては、主要構造部の状態が非常に良かったK様邸は、基本的には既存躯体の補強がメインでした。
全て新築同様にということで、全ての柱や梁を撤去されることを望まれるお客様もいらっしゃいますが、状態の良いものを残すことで強度はより高いものとなり、新しいフルリフォーム木造戸建に生まれ変わることができるのです。

大阪市天王寺区K様邸_大工工事

解体から大工工事の初期段階は埃も大量となるため、足場シートが必須です。

大阪市天王寺区K様邸_大工工事

まずは大工さん達が安全に作業するために、屋根や壁が倒れてこないように仮補強します。

大阪市天王寺区K様邸_大工工事

築35年で状態のよかった柱を新しい躯体にガッチリと補強させていただきました。

大阪市天王寺区K様邸_大工工事

窓まわりの構造部は湿気や雨仕舞で状態が悪かったため、ほぼ新しく造り直しました。

大阪市天王寺区K様邸_大工工事

天井部分もこの通り。状態の良い梁を残しつつ、最先端の金属金具で新しい梁としっかり固定します。

大阪市天王寺区K様邸_大工工事

今年の夏は記録的な猛暑でした。大工さんも程度に休憩しながら水分補給徹底です。

大阪市天王寺区K様邸_大工工事

35年前の大工さんと現代の大工さんの技が融合。監督をしていてテンションの上がる木造戸建フルリーフォームの醍醐味です。

大阪市天王寺区K様邸_大工工事

2階の大工工事に順調に進行しました。この頃には秋も深まり、日中も随分涼しくなりました。

大阪市天王寺区K様邸_大工工事

筋交い入りの耐力壁は、入っていない箇所の倍以上の耐震強度を実現します。

大阪市天王寺区K様邸_大工工事

ハイウィルプランナーの構造計算に大工さんの経験を加味し、要所に筋交いを施工させていただきました。

大阪市天王寺区K様邸_大工工事

すべての耐力壁に筋交いを入れると、強度のバランスが崩れ、逆に耐震性を落としてしまうことも。木造戸建のフルリフォームは経験が命です。

大阪市天王寺区K様邸_大工工事

筋交いが適所に入ったら、外装面に構造用合板を貼り付けます。

大阪市天王寺区K様邸_大工工事

3尺ピッチでテンポ良く構造用合板を設置。昔の合板より強度は数倍に高まっています。

大阪市天王寺区K様邸_大工工事

K様のお話しのスタートだった1階と2階を結ぶ階段もついに完成。行き来しやすい2世帯住宅となりました。

大阪市天王寺区のK様邸は耐震性を推し量る構造計算において必要とされる筋交いの耐力壁を要所要所に確実に入れ、特に天井の梁補強は担当した大工の棟梁の長年の勘もあり、地震が起きても倒れないだけなく、地震の後もゆがみがでにくい構造にグレードアップさせることができました。

南海トラフ地震が警戒される中、大阪も危険エリアであることは変わりありません。2018年の北摂地震でも、耐震性の低い木造戸建程、構造躯体でだけでなく屋根にもひどい影響がでました。
構造用合板はもちろん、耐震金具も益々性能が上がっています。

大切なご家族の安全を守るために、築古の木造戸建は箇所毎の切り貼りのようなリフレッシュリフォームではなく、耐震、断熱、あらゆる面を根本的に解決するスケルトンによるフルリフォームをおすすめ致します。

2-4 給排水工事

基礎工事の工程がなかったK様邸は、先行で1階の床下から新しい樹脂管の仕込みを行いました。
工程を間違うとせっかく大工さんが造作してくれた木部を再度解体、あるいは穴をあけなくてはならず、強度や調湿にも影響がでます。
1階と2階の間の天袋スペースも同様に、大工さんだけなく水道設備職人もチーム一丸、息を合わせて工事を進めていきます。 

大阪市天王寺区K様邸_給排水工事

基礎の状態が非常に良かったため、添え基礎等の補強は必要ありませんでした。その分新しい給排水工事を先行で行えました。

大阪市天王寺区K様邸_給排水工事

2階の給排水工事も大工工事と同時進行。すべてを塞いだ後では配管を通せないので、要所要所で工程に組み込みます。

大阪市天王寺区K様邸_給排水工事

要所で仕込んでおいた給排水管と新しい水まわりを結合。完成が楽しみです。画像はユニットバスの設置後の様子。

2-5 断熱工事

大阪市天王寺区のK様邸で採用された断熱材は高性能グラスウール材です。
当社では断熱性だけはなく、防音性も高いセルロースファイバー工法をご提案させていただくことが主ですが、K様は大人3人暮らしでそこまで強い防音性を求めていらっしゃらず、またお家が大きいことからコスト面も考慮して、スペード施工が可能でコストパフォーマンスの良いグラスウールをお選びいただきました。

大阪市天王寺区K様邸_断熱

大工工事も後半に差し掛かり、グラスウールによる断熱工事をさせていただきました。

大阪市天王寺区K様邸_断熱

窓まわりのグラスウール

大阪市天王寺区K様邸_断熱

リビングのグラスウール施工

大阪市天王寺区K様邸_断熱

廊下のグラスウール

大阪市天王寺区K様邸_断熱

夏涼しく、冬あったかな断熱工事が高性能グラスウールで実現。コストもお得です。

断熱工事はグラスウールに限らず、一部分だけに施工するだけは意味がありません。
壁面はもちろんのこと、熱されやすく、冷やされやすいサッシまわりにも断熱材をくまなく敷き詰めることで、室内がきっちり断熱されることで、本当の効果をご実感いただくことができるのです。

2-6 サッシ工事
大阪市天王寺区K様邸_サッシ

玄関扉もいよいよ取付です。近年人気の引き戸タイプで、玄関前のスペースも有効活用。おばあちゃんの自転を駐輪する予定です。

大阪市天王寺区K様邸_サッシ

新しい建具も搬入されてきました。大工工事も終盤です。

大阪市天王寺区K様邸_サッシ

今回のK様邸では掃出窓、腰窓の全てを取り替えさせていただくことに予算を割いていただきました。

大阪市天王寺区K様邸_サッシ

同じ窓でも現代のペアガラスは35年前と比べ、断熱性、遮音性、気密性全て段違いです。これから先を考えサッシ交換は重要なフルリフォームカテゴリーです。

大阪市天王寺区K様邸_サッシ

断熱性能が高いトリプルガラスの構造

サッシは進化しています

木造戸建市場において、この10年で最も性能が進化した商材とは何でしょうか?
もちろん水まわり機器の日進月歩やエコキュートや太陽光発電に代表される省エネ商材の進化が目立ちますが、実は最も性能が向上したのはペアガラスに代表される断熱サッシではないだろかと私は考えています

そもそも木造戸建にとって一番の害とは何か?

それを考えた場合、1番は連想しやすいのは雨漏りでしょう。
木が水に弱いのは当たり前のことで腐食が進み、白蟻の恰好の住処にもなってしまいます。

ただ、雨漏りよりももっと木造戸建を痛めているのは、結露なのです
冬場の暖房器具によって外気との温度さが広ければ広い程結露は深刻となり、日々木造戸建にとって有害が湿気を呼び込んでいるのです。
私どもはこの結露による木部の腐食を数多く見て来る中で、これこそ木造の最大の課題であると感じています。

そういう意味で、近年のペアガラス、トリプルガラス、2重サッシに代表される断熱サッシ商材の進化はめざましく、完全には言い切れませんが、木造における結露問題は大きく改善しました。
私どもはK様にこの想いを強くお伝えすると共に、予算の配分では将来のためにも断熱サッシ工事は優先順位が高いことをご説明させていただきました。
大小合わせて20カ所をこえるサッシ工事となりましたが、これから末永くその価値をご実感いただけると思っています。

 

2-7 内装仕上げ工事

室内には防火性能が高い石膏ボードを貼ります。
内壁は新築同然ですので、凹凸はほぼありませんが、継ぎ目部分にはパテを入れて平らにならしてからクロス貼りに進みます。

大阪市天王寺区K様邸_内装仕上げ

リビング

大阪市天王寺区K様邸_内装仕上げ

居室

大阪市天王寺区K様邸_内装仕上げ

ウォークインクローゼット内

大阪市天王寺区K様邸_内装仕上げ

建具

 PICK UP!フルリフォーム

高品質床養生シート「エコフルガード(フクビ化学工業)」

大阪市天王寺区K様邸_内装仕上げ

施工中は現場監督や大工さんはもちろん、メーカー担当、下見の内装職人、そしてもちろんお施主様等たくさんの皆様が現場を往来します。
ここで重要なのは新しいフローリングにキズを付けないよう、床養生が重要です。
ビスを踏んでしまったり、重い商品を搬入したりと、せっかくの新しいフローリングにキズが付いてしまうシーンはたくさんあります。

当社もこれまでプラスチック養生材や段ボール素材の養生材と、多くの商品を試行錯誤してきましたが、No.1の耐久性とキズ防止力を誇るのが、フクビ化学工業の「エコフルガード」です。
粘り気のある表層のエンポスシートに、再生紙と発砲ポリエチレンシートの複層構造で、新しいフローリングもキズ安心。
折りたたみ仕様であらゆる形状にカットしやすい。

木造戸建に限らず、マンションリフォームでも定番の高品質養生シートです。

3 竣工

約5か月の工事を経て、いよいよ竣工です。
大阪市天王寺区の風致地区築35年元アパートの木造建築がどのように生まれ変わったのか。
K様邸の様子をご紹介します。


  =外観==  

大阪市天王寺区のK様邸既存の外壁は塗装によるモルタル仕上げでした。
15年程前に一度塗り替えリフォームをされていたため、酷い劣化を起こしている訳ではありませんでしたが、窓サッシまわりを中心に構造クラックやヘアクラックが入っており、雨水が主要躯体に浸透していました。コスト面も考え、今回も塗装仕上げでお話しは一度まとまりましたが、最終的には断熱材付きのガルバニウム金属サイディングをお選びいただきました。
サイディングは塗装に比べ、塗り替え頻度(シリコン塗装は目安10年、サイディングは目安25年)が長く、これからもう一度35年が過ぎたとしても、十分に元が取れるとご判断されたためです。もちろん、見た目に高級感があり、同じくらいの築年数が多いご近所と比較しても一軒だけ新築が混じっているような印象です。大変喜んでいただきました。

Before

大阪市天王寺区K様邸_施工前

塗装によるモルタル仕上げの外壁でした

After

大阪市天王寺区K様邸_竣工

断熱材付きのガルバニウム金属サイディングの外壁に変更

大阪市天王寺区K様邸_竣工
大阪市天王寺区K様邸_竣工

  == 水まわり ==  

新しいお家にふさわしい最先端の水まわり商品を時間をかけてお選びいただきました。
K様はご夫婦もおばちゃんも毎日使う物だからと梅田に集まる主要メーカーショールームのほとんどをまわっていただき、ご納得の商品とオプション仕様をお決めになられました。

  • キッチンは奥様のご判断で人工大理石カウンターの品質がトップクラスのトクラス「Bb」をお選びいただきました。
  • お風呂はおばあちゃんが落ち着いた色が良い、お掃除のしやすさが評判のTOTOの戸建用ユニットバスルーム「サザナ」をチョイス。
  • 洗面化粧台は各社甲乙付け難く、非常に悩まれましたが、最後は奥様とおばあちゃんに吊り戸型の収納キャビネットが決め手となり、LIXILのピアラをご選択いただきました。
  • おトイレはご家族の一目惚れでTOTOのレストパルで一致。収納付きで故障しにくいタンク付タイプでスッキリデザインが大人気です。
大阪市天王寺区K様邸_竣工

トクラス Bb

大阪市天王寺区K様邸_竣工

TOTO戸建用ユニットバスルーム サザナ

大阪市天王寺区K様邸_竣工

LIXIL ピアラ

大阪市天王寺区K様邸_竣工

TOTOレストパル


  == 内装 ==  

内装工事はおばあちゃんがお暮しになる1階とご夫婦が生活される2階で内装クロスやフローリングを貼り分けさせていただきました。
室内階段も出来上がり、これからを楽しむ2世帯住宅が木造スケルトン、ハイウィル関西のフルリフォーム工事で完成させることができました。

大阪市天王寺区K様邸_竣工

懸案の室内階段もしっかり完成。

大阪市天王寺区K様邸_竣工

明るいお部屋はおばあちゃんの専用スペース

大阪市天王寺区K様邸_竣工

ご夫婦の寝室は収納力を重視

大阪市天王寺区K様邸_竣工

2階のセカンドリビングも完成。稲葉も納得のクオリティです。

ハイウィルスタッフ

4 担当者より(ハイウィル株式会社・稲葉)

数年前より増改築.comで当社のスケルトンリフォームの事例を見て、ファンになっていただいていたK様は、ハイウィル関西のスタートを大変喜んでくださいました。

大阪市天王寺区の中でも、風致地区で違法建築物扱いの増築を以前しているというレアケースなお客様でしたが、旦那様も奥様も明るい方で、お話しの面白いおばあちゃんはまさに大阪人。東京生まれ東京育ちの私でしたが、お腹を抱えて笑わせていただきました。
関西の担当スタッフも東京本社で10年以上修行し、現在責任者に据えております人材です。関東同様の品質で木造スケルトンのフルリフォームをお届け致しますので、まずはお気軽にお問合せくださいませ。

今回のK様邸は関西の大工さんの技術の高さが良く分かる物件でした。
築30年以上の木造戸建は基本的に無筋の布基礎ですが、築35年にも関わらず有筋のベタ基礎仕様。元々アパートであったと言えばそれまでかも知れませんが、安全性や耐久性をよく考えており、柱や梁といった主要構造部の状態が大変良質でした。
一方、外壁面の劣化は進んでおり、窓まわりを中心に雨仕舞から腐食が進んでいた状況。これから10年で一気に劣化するだろうな、という状態でしたので、良いタイミングでフルリフォームに入れたと思っております。
結露が酷かったサッシも全て交換させていただき、これから夏場、冬場でその快適さをご実感いただけるのではないかと思います。

関西よりお問合せいただくお客様より、「ハイウィルはお高いんでしょ?」とよく聞かれます。
ただ、当社はいたずらに値段が高いのではなく、大切なご家族の木造戸建がこれから40年、50年経っても、変わらずに良質であり続ける為に、性能の高い工法や商材をご提案させていただく木造戸建の専門集団であることに誇りと自信を持っています。
今回のK様のようにご予算に合わなければ、セルロースファイバーではなくローコストなグラスウールの断熱を。良質な主要構造は残し強固な補強で工事するなど、ご予算に合わせたご提案をさせていただきますので、どうかご安心ください。

十人十色、百人百色の住まいづくりを。大阪・神戸・京都の木造戸建フルリフォームなら、ハイウィルにお任せください。

K様この度は本当にありがとうございました。

 

画像をクリックすると解説ページにジャンプします。

この事例と似たテーマカテゴリーを見る

全国のフルリフォーム・リノベーション『ピックアップ事例』※プロの詳細解説付きレポート

HEAT20-G2/耐震等級3
新耐震基準の性能向上リノベーション
築30年ハウスメーカー軽量鉄骨
断熱改修&リノベーション
 
中古住宅を新築以上の耐震性能と断熱性能へ!
耐震等級3フルリフォーム
地下付き木造2階建て
自然素材をつかった性能向上リノベーション&フルリフォーム

東京都文京区 K様邸

長屋を切り離して1つの構造体へフルリフォーム&リノベーション
隣家との距離がない!
部屋から外壁を張り替えるフルリノベーション
中古住宅を耐震等級3へ!
中古住宅リノベーション
 
基礎がない??
築60年の古屋をジャッキアップで基礎新設フルリノベーション

東京都渋谷区 O様邸

戸建てリノベーション・リフォームに関するお問合せはこちら

増改築.comの一戸建てリフォーム専用ホームページに
お越しいただき、誠に有難うございます。
 
増改築.comメンバーは技術集団となり、
他社のような営業マンがおりません。
技術者が直接ご相談にのり問題解決を行います。
 
従いまして、
お客様の方である程度のご要望が整理されました段階、
お悩みが工事内容のどのようなところにあるのか?
ご予算がどの程度絞る必要があるのか?
など明確になった段階でのご相談をお願いしております。
お問合せ・ご相談はお電話・メールにて受け付けております。
メールの場合は以下のフォームに必要事項をご記入の上、
「送信する」ボタンをクリックをお願いします。

代表稲葉高志

戸建てリノベーションの専属スタッフが担当致します。
一戸建て家のリフォームに関することを
お気軽にお問合せください

よくあるご質問
  • 他社に要望を伝えたところできないといわれたのですが・・・
  • 他社で予算オーバーとなってしまい要望が叶わないのですが・・・
  • サービスについて詳しく聞きたいのですが・・・

どのようなお悩みのご相談でも結構です。

あなたの大切なお住まいに関するご相談をお待ちしております。

営業マンはおりませんので、しつこい営業等も一切ございません。

設計会社(建築家様)・同業の建築会社様のご相談につきましては、プランと共にご指定のIw値及びUa値等の性能値の目安もお願い申し上げます。

2026年の大型補助金が確定したことで現在大変込み合っております。

耐震性能と断熱性能を向上させるフルリフォームには6か月~7か月の工期がかかります。

補助金獲得には年内に報告を挙げる必要があることから、お早目にご相談をお願いいたします。(6月着工までが目安

ご提案までに大変お時間がかかっております。ご了承のほどお願い申し上げます。

(5月までの着工枠が埋まりました)・・・2026/03/01更新

※すでにプランをお持ちのお施主様・設計資料をお持ちのお施主様は内容をフォームで送信後、フォーム下のメールアドレスに資料をお送りください。対応がスムーズです。

必須

(例:増改築太郎)

必須

(例:contact@high-will.co.jp)

(例:03-5615-2826)

必須

(例:東京都荒川区西日暮里2-35-1)

(例:築40年)

(例:25坪・100㎡など)

(例:2000万程度など)

  • ※再建築不可のリフォームでは金融機関が限られます。事前審査をお勧めいたします。

    (例:2024年3月くらいに完成希望など)

    必須

    できるだけ具体的にお知らせくださいませ。既存設計資料、リフォーム後のイメージ図等をお持ちであれば下記のメールアドレスより添付をお願いします。

    ※次の画面がでるまで、4~5秒かかりますので、
    続けて2回押さないようにお願いいたします。

    ※次の画面が出るまで、4〜5秒かかりますので、
    続けて2回押さないようにお願いいたします。

    図面や写真等を送信いただく場合、また入力がうまくいかない場合は、上記内容をご確認のうえ、下記メールアドレスまでご連絡ください。

    お電話でのお問合せはこちら

    0120-246-991

    営業時間:10:00~17:00(土日祝日を除く)

    ★YouTube「増改築.comチャンネル」チャンネル登録して新動画解説をいち早くGET!!★
    「増改築.comリノベ診断」であなたに一番ふさわしいフルリフォームを診断!!(動画解説付き)
    ★Facebookページにいいね!を押して最新コンテンツ情報をいち早くGET!!★
    パソコン|モバイル
    ページトップに戻る