戸建フルリフォームなら「増改築.com®」TOP > 施工事例 > 都道府県で探す > 東京都板橋区 > 施工事例 外断熱リフォームで蘇る築60年の戸建住宅 板橋区S様邸|断熱等級6・構造評点1.5以上

築古一軒家でも新築以上の耐震性能と断熱性能に生まれ変わる!

外断熱リフォームで蘇る築60年の戸建住宅 板橋区S様邸|断熱等級6・構造評点1.5以上

板橋区S様邸 施工事例

 

S様は、ご夫婦とお子様一人のご家族であり、今回のリノベーション計画は、親御様から贈与された建物を快適な住まいとして活用することが目的でした。もともとこの建物は、築60年以上が経過しており、古くからの伝統的な木造住宅でしたが、年月が経つにつれて耐震性や断熱性などに不安が生じていました。特に、建物が立地する地域は、地震リスクが高いため、家族の安全を確保するためにも耐震性の強化が重要課題となっていました。

S様ご家族は、親御様から贈与されたこの住宅に大きな愛着を持っており、家を壊して新築するのではなく、できるだけ現状を活かして快適な住まいに改修したいというご希望を持っていました。しかしながら、建物の老朽化は進んでおり、特に外壁や基礎部分に劣化が見られたため、耐震補強を含めた大規模なリノベーションが必要不可欠でした。

そこで私たちは、S様のご要望に応えるために、「外断熱リフォーム」と「内外部スケルトンリフォーム」を提案しました。このリフォーム計画は、建物の骨組み(構造体)をしっかりと残しつつ、外部と内部をすべて新しくする大規模な改修です。これにより、元の建物の特徴や形状を残しながらも、最新の耐震基準に適合した安全な住まいを実現することができます。

また、リノベーションに際しては、S様が将来の生活を見据えた間取り変更や、家族全員が快適に暮らせるような住環境の改善が求められました。特にS様は、「広めのバルコニーが欲しい」というご希望を持っていたため、設計段階から「インナーバルコニー」を提案しました。インナーバルコニーは、建物の内側に設置されるため、外部の視線を気にせずに家族がリラックスできるスペースを提供し、天候に左右されない屋外空間を実現します。

S様ご家族のリノベーション計画の中で、もう一つ重要だったのが「断熱性能の向上」です。親御様から贈与されたこの建物は、古い木造住宅であるため、冬場の寒さや夏場の暑さが非常に厳しいものでした。特に築年数が長いことから、柱が細く、壁の厚さも十分ではなかったため、一般的な断熱材の使用では不十分な断熱効果しか得られないという課題がありました。これを解決するために、外断熱工法を採用し、建物全体の断熱性能を飛躍的に向上させることが可能となりました。

外断熱工法では、建物の外側に断熱材を設置することで、内部の柱や壁の厚みを減らすことなく断熱効果を高めることができます。これにより、冬は暖かく、夏は涼しい快適な住環境を実現し、エネルギー効率の向上や冷暖房費の削減にも貢献します。特に、HEAT20(断熱等級6)に対応することで、S様ご家族が求めていた高水準の断熱性能を確保することができました。

加えて、S様邸では築年数の古い建物に共通する課題として、耐震性の確保も重要な要素でした。耐震改修では、基礎部分の補強や、壁の補強、梁や柱の補強など、建物全体の耐震性を強化するための工事を実施しました。特に、無筋の基礎では地震時の揺れに耐えることができないため、鉄筋コンクリートで基礎を補強し、上部構造評点1.5以上を目指しました。これにより、大地震が発生しても建物の倒壊リスクを最小限に抑えることが可能となり、S様ご家族に安心して暮らせる住まいを提供できました。

S様ご夫婦は、これからも長くこの家で生活していく予定であり、リノベーションによって家族全員が快適に過ごせるようになったことに大変満足されていました。

建物概要
名前 S様
場所 東京都板橋区
築年数 築60年
構造種別 木造一戸建て
家族構成 大人2人 子供1人
対象面積 26.3坪
リフォーム部位 基礎補強/間取り変更/断熱サッシ/外断熱/インナーバルコニーテラス/耐震補強/
工期 8ヶ月
価格 3700万

お客様のご要望

今回のリフォームで、S様からのご要望は以下の8点です。

  • 築60年以上の親から贈与された建物をリノベーションして住み続けたい
  • 建物の耐震性を向上させ、安全な住環境を実現したい
  • 外断熱工法を採用して、断熱性能を大幅に向上させたい
  • 冬は暖かく、夏は涼しい快適な住環境にしたい
  • 広めのバルコニーを新設したい
  • インナーバルコニーを設置し、家族がリラックスできる屋外スペースを確保したい
  • 無筋基礎を鉄筋コンクリート基礎に補強し、耐震性を強化したい
  • 再建築不可の条件下で、建物をできる限り現状を活かして改修したい

プランナー 北畠より ~プランニングのポイント~

今回、S様邸のリノベーションにおいて、プランナーが特に重視したポイントは、築60年以上の古い住宅を現代の生活に適応させ、安全性と快適性を両立させることです。S様のご家族は、親から贈与されたこの建物に強い愛着があり、建物の歴史を尊重しながらも、耐震性や断熱性能を大幅に向上させたいというご要望がありました。プランニングの際に注目した具体的なポイントを以下にまとめます。

1. 耐震補強 まず、最優先されたのは建物の安全性です。築60年以上の建物であり、特に無筋の基礎や細い柱が耐震性に問題を抱えていました。そこで、耐震性能を高めるために、鉄筋コンクリート基礎への補強を行い、上部構造評点1.5以上を目指す計画が組み込まれました。また、建物の歪みを修正する「家起こし」の作業を実施し、しっかりとした基盤の上に耐震補強を施すことで、家全体の構造安定性を高めました。

2. 外断熱工法の採用 断熱性能の向上は、居住環境を快適にするための重要な課題でした。S様邸の柱が3寸(約9cm)と細く、壁厚が薄いため、通常の内側からの断熱材充填だけでは十分な断熱効果が得られません。そのため、外断熱工法を採用し、建物全体を覆う形で断熱材を設置しました。これにより、冬は暖かく、夏は涼しい、エネルギー効率の高い住まいを実現しています。

3. バルコニー設置と空間活用 S様からの「広めのバルコニーを設置したい」という要望に応じて、インナーバルコニーを提案しました。従来のバルコニーとは異なり、外観と一体化したデザインにすることで、建物の美観を損なわず、プライベートな屋外空間を確保しました。バルコニーの位置は家族がリラックスできる場所に配慮し、外部からの視線も遮られるように設計されています。

4. 再建築不可の条件を活かす工夫 S様邸は「再建築不可」の条件を持つ土地に建てられており、この条件を踏まえたリノベーションが必要でした。プランナーは、この制約を逆にチャンスと捉え、現存する建物の特徴や配置を活かしながら、工事全体が効率よく進むように計画を立てました。特に、外断熱工法の採用による壁厚の調整や、越境していた軒の部分をカットするなど、限られた条件の中で最適なプランニングが行われました。

5. 環境に配慮した設計 リノベーション全体を通じて、環境に配慮した設計が重視されました。廃材を最小限に抑え、既存の外壁材や内装材をできる限り再利用することで、環境負荷を軽減しました。また、省エネ性能を向上させるために、断熱改修や窓の断熱性向上に取り組み、冷暖房の効率化を図っています。

これらのポイントを踏まえたプランニングにより、S様邸は現代の快適な住環境を備えた安全な家へと生まれ変わりました。親から受け継いだ家への愛着を守りながらも、将来にわたって安心して住み続けられる家づくりを実現しました。

 

 

板橋区S様邸 戸建てリノベーション施工事例テーマカテゴリー

  • 再建築不可リフォーム
  • 耐震等級3相当(上部構造評点1.5以上)リフォーム(性能向上リノベーション)
  • HEAT20-G2リフォーム(性能向上リノベーション)
  • 外張り断熱
  • 補助金活用リフォーム

打ち合わせから着工、完成までの詳細施工事例紹介

1 戸建てリノベーション着工前

1-1 現場調査・打合せ

S様邸は「再建築不可物件」という条件があり、一般的には大きな制約となりますが、幸運にも周囲に建物が少なく、工事を進める上でのロケーションは非常に良好でした。通常、再建築不可物件では建物の形状や構造に限界があり、リノベーションには工夫が求められますが、S様邸の場合、4面全てに足場を架設できたことで、外装や屋根の工事をスムーズに進められる環境が整っていました。

 

板橋区S様邸 現場調査
板橋区S様邸 現場調査
板橋区S様邸 現場調査

しかし、一部で問題となったのが、屋根の軒先が隣接する敷地境界線を越えてしまっていたことです。この越境部分は法的に問題となるため、削る作業が必要不可欠でした。プランナーは越境部分を切り取りつつ、既存の建物を最大限に活かしたデザインを計画し、必要最低限の調整で美観と機能性を保つ方法を提案しました。このように、越境問題への対処と再建築不可物件の特性を踏まえながら、S様邸のリノベーションは工事が円滑に進められる見込みとなりました。

板橋区S様邸 現場調査
板橋区S様邸 現場調査
板橋区S様邸 現場調査
板橋区S様邸 現場調査
板橋区S様邸 現場調査
板橋区S様邸 現場調査

1-2 東京都板橋区S様邸 戸建リノベーションプラン

  間取りの変更プラン  

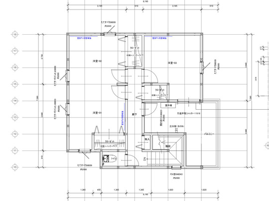
板橋区S様邸 施工前平面図

1階 戸建てリノベーション前平面図

板橋区S様邸 施工前平面図

2階 戸建てリノベーション前平面図

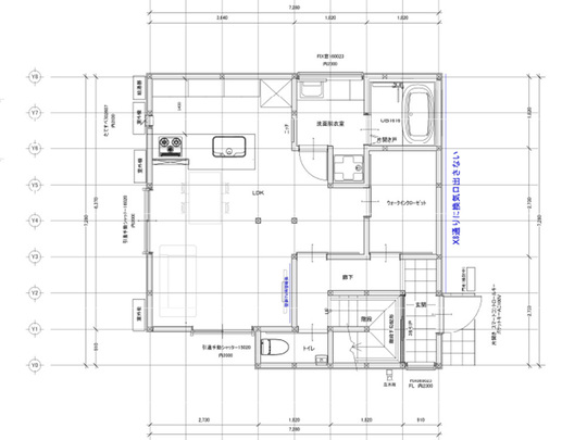
板橋区S様邸 新規平面図

1階 戸建てリノベーション後プラン

板橋区S様邸 新規平面図

2階 戸建てリノベーション後プラン

既存図面は昔ながらの和室で何部屋も区切られた作りになっていました。リフォーム後はLDKを大きく取り、残りのスペースで和室・洋室を造りました。S様は極力家族がLDKを通ってお部屋に入る様にしたいとおっしゃられてました。

S様の再建築不可戸建てのフルリフォーム&フルリノベーション工事はこうしてはじまりました。

2 戸建てリノベーション着工

2-1 足場・解体

解体は手壊し作業

解体工事は「内外部スケルトンリフォーム」の重要な工程として、建物の内部と外部の両方を一新するために実施されました。S様邸では築60年以上という古さから、内部の状態は相当な劣化が見込まれており、徹底的な解体が求められました。内部はすべて躯体まで解体され、特に慎重な作業が必要だったのは手作業による解体箇所です。狭いスペースや繊細な構造の部分では、重機を使用できないため、職人たちが一つひとつ丁寧に取り壊しを進めました。

外壁の下見板(古い外壁材)は、長年の風雨によるダメージで劣化が進み、脆くなっていたため、剥離作業を行いました。さらに、内部の土壁も同様に、湿気や老朽化でひび割れや崩れが生じており、これを取り除くことで、新しい断熱材を導入するスペースを確保しました。

解体が進むにつれ、建物全体に長年蓄積された歪みが露わになりました。S様邸では、特に柱や梁の位置が経年変化によってずれていたため、「家起こし」と呼ばれる歪み矯正の作業が不可欠でした。この家起こしによって、基礎や柱の位置が正しく修正され、建物全体の構造バランスが整いました。この工程により、次のステップでの耐震補強工事が確実に進められる土台ができ、耐震性能を飛躍的に向上させる準備が整ったのです。

板橋区S様邸 解体
板橋区S様邸 解体
板橋区S様邸 解体
板橋区S様邸 解体
板橋区S様邸 解体
板橋区S様邸 解体

解体後の躯体チェック

解体工事が完了し、産業廃棄物の廃棄が終了し、大工による仮補強が終わった段階で、S様邸の躯体チェックがようやく始まりました。S様邸は築60年以上の古い住宅であり、長年の使用や経年劣化により内部構造の傷みが予想されていました。そのため、手壊しによる解体作業を丁寧に進め、建物の躯体が露わになった時点で本格的な状態確認が行われました。

この段階では、使用可能な躯体部分と、修繕や交換が必要な箇所の選別が重要な工程となります。特にS様邸では、柱や梁などの主要な構造材が古いため、その強度が問題視される部分が多く、傷んでいる箇所が目立ちました。湿気やシロアリによる影響を受けた木材も多く、躯体の一部は再利用が難しい状態でした。

具体的には、柱が腐食している箇所や、構造的に重要な梁が劣化している部分があり、補強が必要と判断されました。また、基礎部分にも微細な亀裂や沈下が見受けられたため、補強工事の計画が立てられました。この躯体チェックにより、次の工程である耐震補強や基礎補強の具体的な工事内容が確定され、S様邸のリノベーションにおける耐震性能の向上と長寿命化が目指されます。

板橋区S様邸 解体
板橋区S様邸 解体
板橋区S様邸 解体

大事な構造部のすべてが目視可能となるスケルトンリフォーム

内部の天井・壁・床だけでなく外壁まで解体しスケルトン状態(躯体残し)にする戸建てリノベーションの最大のメリットはこのような重要な主要構造部のすべての状態が目視でわかることになります。

フルリノベーション後は、これらの構造上の弱点をすべて修正し補強することで新築と同水準、もくしくはそれ以上の建物性能をもつ構造躯体へ甦らせることが可能となります。

2-2 基礎

築60年以上が経過しているS様邸は、旧耐震基準で建てられた無筋基礎の建物であり、耐震性能の向上が急務となっていました。無筋基礎では、いくら上部構造を補強しても、必要な耐震性能を確保することが非常に難しいため、基礎部分の補強が欠かせませんでした。そこで、S様邸では、内部から基礎に沿って400mm程度掘り、鉄筋を用いて基礎を補強する工法を採用しました。この工程は、地震などの大きな揺れに対して建物全体の強度を大幅に向上させるための重要なステップです。

まず、無筋の基礎に対して、鉄筋コンクリート基礎を新たに設置し、基礎の補強を行いました。掘削後、配筋を施し、強度を高めるための骨組みを構築。その後、鉄筋を配置して、後施工アンカーを使用して既存の基礎と新たに設置した基礎部分を緊結しました。このアンカーは、基礎と鉄筋を強固に連結する役割を果たし、上部構造を支えるために不可欠な要素です。

基礎補強には、鉄筋コンクリートの2度打ちを行い、ベース部分と立ち上がり部分をしっかりと形成しました。これにより、従来の基礎の弱点を克服し、耐震性能が飛躍的に向上。S様邸の安全性は、地震に対する耐久性を大幅に強化することができました。この基礎補強工事は、建物全体を安定させ、長期的に安心して暮らせる住まいに仕上げるための最も重要な工程の一つとなりました。

S様邸の基礎工事において、この無筋基礎を鉄筋コンクリートで補強することにより、現代の耐震基準をクリアするだけでなく、住まいの安全性と快適性を長期的に維持することが可能となりました。

板橋区S様邸 基礎
板橋区S様邸 基礎
板橋区S様邸 基礎
板橋区S様邸 基礎
板橋区S様邸 基礎
板橋区S様邸 基礎
ベタ基礎とは

ベタ基礎って?

布基礎が立ち上がりとフーチングで持たせる基礎に対して、ベタ基礎は、立上りだけでなく、底板一面も耐圧盤を設け、立ち上がりと底面が一体化された鉄筋コンクリートになっている基礎をいいます。

建物の荷重を底板全体の面で受け止めるため、ベタ基礎は不同沈下を起こさない。といわれますが、それは良好な地盤での話です。

基礎の下の地盤面の地耐力が均一でない場合は、不同沈下が起こる可能性が充分あるのです。

 

耐震の世界では、重い瓦屋根は外して、軽いものに変えましょうと言われておりますが、それ自体は間違っていませんが、この理屈でいくと。屋根の瓦を外して、基礎はベタ基礎にしても、地盤に与える荷重は、瓦屋根以上の荷重がベタ基礎の荷重により地盤面にかかることになります。

地盤が軟弱な場合、布基礎を採用した方が有利な場合も出てきます。

そもそも正しい基礎補強方法を知らず、基礎補補修程度しか行わないリフォーム会社が多くを占めている現状ですが、

戸建て一軒家のリノベーションで、基礎補強をする際は、このような知識のある会社に相談することが必要です。

2-3 木工事

S様邸のリノベーションにおいて、木工事は非常に重要かつ繊細な工程のひとつとなりました。特にリノベーション後の間取りでは、広い空間を確保するために柱を抜く箇所が多くなり、大スパンの構造を支えるためには梁の架け替えが必要不可欠でした。しかし、この作業は単なる補強作業以上の技術と計画性が求められました。

まず、柱を抜いた際に生じる荷重の再配分を行うため、梁の補強が必要となりました。既存の構造材は長年の使用による劣化や歪みが見られたため、ただ単に新しい梁を設置するだけではなく、手刻みの技術を用いて既存の構造材に新しい構造材を組み込む作業が行われました。これは、内装大工では対応できない高度な技術を必要とする工程で、リノベーションにおいて建物の耐久性を大きく左右する重要な作業です。

S様邸では、剛床構造を採用することで、建物全体の剛性を高める計画を立てました。剛床構造とは、床材を梁に直接固定し、床全体を一体化させることで、地震や風による揺れを効率的に分散し、建物の強度を高める工法です。特に広い空間を持つS様邸のようなリノベーションでは、この工法が有効であり、構造全体の安定性を大幅に向上させました。

また、梁の架け替え作業には通常の方法では対応できない問題がありました。S様邸の構造には長年の経年劣化による歪みが発生しており、これを矯正するための「屋起こし(家起こし)」が必要となりました。通常、屋起こし作業は既存の建物の歪みを直し、基礎から上部構造全体のバランスを整えるための工程ですが、S様邸の場合は、**鉄筋棒(D棒)**を基礎に150mm以上埋め込み、さらに天端から50mm以上出してワイヤーを用いて建物全体を引き起こす特殊な方法が採用されました。この方法は、単なる修正作業ではなく、建物の構造全体を正確に調整し、後の補強作業において歪んだままの状態で進行することを防ぐための重要な技術です。

このように、S様邸のリノベーションにおける木工事は、建物の価値や耐久性を決定づける非常に重要な工程でした。既存の構造材を慎重に選別し、新しい梁や補強材を手刻みで組み込むことで、S様邸の構造的な強度を確保しました。また、剛床構造の採用により、広い空間でも揺れやたわみを感じさせない、快適で安定した住環境が実現しました。

加えて、梁や床の設置はもちろん、耐震性能の向上にも貢献する重要なポイントとなりました。特に柱を抜いた部分の梁の補強は、建物の荷重を効率的に分散させ、全体の強度を高めるための必須の工程です。このように、S様邸の木工事は、単なるリノベーション工事の一部にとどまらず、建物全体の耐震性、耐久性、そして住み心地を大きく向上させるための中核的な作業でした。

木材の特性を熟知し、手刻みの技術を駆使して丁寧に行われたこれらの作業により、S様邸は耐震性と断熱性を兼ね備えた快適で安全な住まいに生まれ変わりました。これからの生活を支える基盤となる部分が、確実に強化されたといえるでしょう。

板橋区S様邸 木工事
板橋区S様邸 木工事
板橋区S様邸 木工事
板橋区S様邸 木工事
板橋区S様邸 木工事
板橋区S様邸 木工事
2-4 断熱工事

断熱工事では、S様邸において高性能断熱材「キューワンボード」を使用し、外壁全体の断熱性能を大幅に向上させる施工が行われました。この「キューワンボード」は、非常に優れた断熱性能を持つことで知られており、建物内部からの熱損失を劇的に抑え、冬場の暖房効率や夏場の冷房効率を高めることが期待されています。特に、S様邸のように築年数の古い住宅では、断熱性能が著しく低いため、このような最新の高性能断熱材を使用することで、現代の住宅性能基準に見合った快適な居住環境を実現することができます。

板橋区S様邸 断熱工事
板橋区S様邸 断熱工事

アキレス(株)ホームページより

設置方法について
キューワンボードの設置は、柱や間柱に仮止めを行った後、外装材にしっかりと固定するという手順で進められました。外断熱工法として、断熱材を建物の外側から覆う形で設置することで、内壁や柱に直接接触しないため、断熱材の性能を最大限に発揮することができます。この方法は、柱間に断熱材を充填する「内断熱」と比べて、より高い断熱効果を発揮し、外気温の影響を受けにくくすることが可能です。S様邸では、建物全体を覆うように断熱材を配置し、建物内部の温度が外部の影響を受けにくくなるように計画しました。

越境部分での工夫
特にS様邸では、隣接する敷地との境界線に越境が見られたため、外断熱の施工には慎重な計画が必要でした。本来、S様邸では61mm厚のキューワンボードを2枚重ねて使用し、合計122mmの断熱材を外壁に設置する計画でした。しかし、越境面においては、この厚みでは軒の部分から外壁がはみ出してしまう恐れがありました。そこで、この越境面については、61mmのキューワンボードを1枚だけ使用し、さらに壁内にも断熱材を充填することで、断熱性能を損なうことなく、空間を有効に利用する工夫がなされました。これにより、見た目の美しさを保ちながらも、断熱効果を確保することができました。

柱間充填断熱の問題
S様邸では、柱が3寸角(約9cm)と非常に細いため、柱間に断熱材を充填するだけでは、求められる断熱性能を達成することが困難でした。特に、S様邸のリフォームでは、断熱性能の評価基準であるHEAT20の断熱等級6を目指していたため、柱間充填断熱だけではその基準に達することが難しかったのです。そこで、外断熱工法が採用され、外側からしっかりと断熱材を配置することで、柱の細さによる断熱材の制約を補い、高い断熱性能を実現することができました。この外断熱工法により、冷暖房効率が飛躍的に向上し、エネルギーコストの削減にも大きく寄与する結果となりました。

板橋区S様邸 断熱工事
板橋区S様邸 断熱工事
板橋区S様邸 断熱工事
板橋区S様邸 断熱工事
板橋区S様邸 断熱工事
板橋区S様邸 断熱工事

窓の断熱性能向上

また、窓の断熱性能向上もS様邸の断熱工事における重要な要素でした。窓は建物の中で最も熱が逃げやすい部分であるため、ここでの断熱対策は住宅全体のエネルギー効率に大きな影響を与えます。S様邸では、既存の窓を撤去し、断熱性能の高いサッシを採用した新しい窓を設置しました。この新しいサッシは、外気の影響を効果的に遮断し、室内の温度を一定に保つことができるように設計されています。さらに、窓の周りには通気部材や胴縁がしっかりと取り付けられ、気密防水テープを用いて接合部を厳密に処理することで、隙間風や結露を防ぎ、より快適な居住環境を実現しました。

板橋区S様邸 窓の断熱性向上
板橋区S様邸 窓の断熱性向上
板橋区S様邸 窓の断熱性向上

断熱工事の全体的な効果

これらの断熱工事の結果、S様邸では、建物全体の断熱性能が大幅に向上し、冷暖房の効率が飛躍的に改善されました。特に、冬場の暖房効率や夏場の冷房効率が向上したことで、エネルギーコストの大幅な削減が期待できます。また、外断熱工法により、建物の構造が外気温の影響を受けにくくなり、年間を通じて快適な温度環境が維持されるようになりました。

さらに、S様邸では、HEAT20の断熱等級6を達成するために計画されたこれらの工事により、断熱性能だけでなく、住環境全体の快適性も飛躍的に向上しました。

板橋区S様邸 断熱工事

床断熱材設置

板橋区S様邸 断熱工事

天井断熱材設置

板橋区S様邸 断熱データ

場所 製品 断熱グレード
床断熱材 押出法ポリスチレンフォーム ミラフォームラムダ F(熱伝導率0.022W/(m・K))

壁断熱材

(外断熱)

硬質ウレタンフォーム アキレス キューワンボード F(熱伝導率0.021W/(m・K))
天井断熱材

高性能グラスウール アクリア

B(熱伝導率0.043W/(m・K))
玄関ドア YKKAP イノベストD50 防火 A(ZEHレベル)
サッシ

YKKAP APW330 防火 樹脂窓

S~A(ZEHレベル)

HEAT20-G2リフォームとは?

<HEAT20とは?>

HEAT20とは、「2020年を見据えた住宅の高断熱化技術開発委員会」という団体名です。

その団体が設定しているのが、屋根や外壁、床、窓などの「外皮」と呼ばれる部位の断熱や遮熱などといった性能の評価基準であり、G1とG2の2段階あります。G2の方がより高性能な性能を有する外皮となっています。

<省エネ基準の家とHEAT20の家の違い>
HEART20とは

HEAT20-G2の家は、省エネ基準の家の30~50%の暖房費を削減できる

 

「増改築.com®」によると、断熱リフォームの基準として、平成28年の建築物省エネ法基準に相当するUa値0.87が等級4(最高等級)とされています。しかし、この基準だけでは、真の省エネ住宅とは言えません。実際に、日本の断熱等級4は、2020年の建築基準法で努力義務とされているに過ぎません。しかし、2022年4月には断熱等級5が新設され、さらに2022年10月には断熱等級6・7が新設されました。断熱等級6・7は、これまでの断熱等級4と比べて、はるかに高いレベルの断熱性能が求められます。 HEAT20の計画においては、ZEH基準のUa値0.6を基準としています。これは、外壁105mm、U値2.33の樹脂アルミ複合サッシ窓で、天井の断熱材は105mmあれば実現できるとされています。さらに上位の「HEAT20 G1」グレードでは、6地域でUa値0.56となり、このレベルでは断熱環境を体感できるとされています。

最上位の「HEAT20G2」グレードでは、5地域でUa値0.46となっています。

断熱改修(温熱改修)リフォームを成功させるためには、これらの基準や計画をしっかりと理解し、適切な施工方法を選択することが重要となります。

2-5 外壁工事

外壁工事は、断熱材の施工が完了した後、S様邸の外観と耐久性を向上させるために重要な工程として進められました。今回のS様邸では、断熱材として使用された「キューワンボード」などの外断熱パネルの上に、サイディングボードを取り付けることで、耐久性と美観を兼ね備えた外装仕上げを実現しました。外断熱パネルは122mmの厚みがあり、これに対応するためには特別な施工技術と素材が必要です。例えば、通常のビスではなく、外断熱工事専用に開発されたビス「パネリードⅡ」を使用することで、断熱材の厚みに対応しつつ、外壁材をしっかりと固定することが可能となります。

外断熱ビス「パネリードⅡ」の活用
外断熱パネルを取り付ける際には、断熱材を損傷させずに外壁材をしっかりと固定することが求められます。特に、S様邸では122mmという厚みのある断熱材を使用していたため、一般的なビスでは対応しきれない部分が多くありました。このため、S様邸の外壁工事では「パネリードⅡ」という外断熱用のビスを採用しました。このビスは、外断熱工法において効果的に断熱材を貫通し、外装材を強固に固定できるよう設計されています。パネリードⅡは、断熱材の厚みや設置箇所に応じて長さや種類が異なり、適切なビスを選ぶことで、断熱材の性能を維持しつつ、外壁材を確実に取り付けることが可能となります。

サイディングボードの設置
断熱材の上には、耐久性と美観を兼ね備えたサイディングボードが取り付けられました。サイディングボードは、外壁材として非常に人気があり、耐久性に優れているだけでなく、デザイン性も高いため、さまざまな外観に対応可能です。S様邸でも、建物全体の美しさを保ちながら、長期間にわたりメンテナンスの手間を最小限に抑えるため、サイディングボードが採用されました。このボードは、断熱材の上に設置されることで、断熱効果をさらに高める役割も果たしています。

通気経路の確保
外壁工事においては、断熱材の性能を最大限に発揮するために、通気経路を確保することが非常に重要です。S様邸では、屋根の形状や軒天井、小屋裏の換気口に合わせた設計が行われ、建物全体に効率的な通気システムが組み込まれました。この通気経路は、屋根や外壁内部に滞留する湿気を適切に排出し、結露を防止するために重要な役割を果たします。結露は断熱材の劣化を促進し、建物の耐久性を低下させる原因となるため、適切な通気経路の設計が欠かせません。S様邸では、通気層を設けることで、空気が常に流れ、湿気がこもらないように配慮されており、断熱材の性能を長期間にわたって維持できるよう工夫されました。

屋根や小屋裏の換気にも対応
特に、屋根や小屋裏は熱がこもりやすい場所であるため、これらの部分の通気経路を確保することは、建物全体の温度管理にも大きな影響を与えます。S様邸では、屋根形状に合わせた通気設計を行い、屋根裏に熱が溜まらないように工夫されました。これにより、夏場の室温上昇を抑え、冷房効率を高めることができるだけでなく、冬場の結露を防ぐことで断熱材の寿命を延ばす効果も期待できます。

板橋区S様邸 外壁工事
板橋区S様邸 外壁工事
板橋区S様邸 外壁工事
板橋区S様邸 外壁工事
板橋区S様邸 外壁工事
板橋区S様邸 外壁工事
2-6 インナーバルコニー工事

S様邸のリフォームにおいて、S様からのご要望の一つとしてインナーバルコニーの設置がありました。このインナーバルコニーは、居住空間における快適性と利便性を高めるために計画されましたが、設置には多くの課題がありました。特に、既存の建物の梁がインナーバルコニーの重量に耐えられないという問題が浮上しました。そのため、工事の初期段階で、梁を鉄骨で補強する作業が必要となりました。この補強により、バルコニーの耐荷重を十分に確保し、建物全体の安全性を高めることができました。

インナーバルコニーの設置場所は、1階のLDKの直上に位置していたため、特に構造上の歪みやねじれに対する対策が重要でした。木造建築では、時間の経過とともに構造材が変形し、バルコニー部分が歪んでしまうリスクがあります。そこで、S様邸ではこの問題に対応するために、バルコニーの防水には木造特有のねじれや歪みに強い金属防水を採用しました。この金属防水は、通常の防水材料と比較して耐久性が高く、長期間にわたって防水機能を維持することができます。また、金属防水は、ねじれや歪みの影響を最小限に抑え、バルコニーの構造的安定性を確保するのに非常に有効です。

さらに、インナーバルコニーの仕上げにはタイルが採用されました。タイル仕上げは、見た目の美しさだけでなく、耐久性やメンテナンスの容易さという面でも優れた選択肢です。特に、バルコニーは雨風にさらされる場所であるため、タイル仕上げにすることで防水性能と耐久性を確保し、長期間にわたって快適な空間を維持することができます。また、タイルの質感や色合いを選ぶことで、S様の好みに合わせたデザイン性の高いバルコニーが実現しました。

このインナーバルコニーの設置によって、S様邸は住まいとしての快適性が大幅に向上しました。バルコニーは、屋外でありながらプライバシーが守られる空間として活用できるため、家族の憩いの場としても最適です。特に、外部からの視線を遮りながらも、自然光を取り入れることができる設計となっており、S様からも高い評価をいただきました。

板橋区S様邸 インナーバルコニー
板橋区S様邸 インナーバルコニー
板橋区S様邸 インナーバルコニー
板橋区S様邸 インナーバルコニー
板橋区S様邸 インナーバルコニー
板橋区S様邸 インナーバルコニー
板橋区S様邸 インナーバルコニー
板橋区S様邸 インナーバルコニー
板橋区S様邸 インナーバルコニー
2-7 屋根工事

S様邸の屋根工事において、まずは既存の軒裏をカットする作業が行われました。既存の建物では、軒裏が敷地境界を越えていたため、この越境部分を削ることが必要となりました。この際、単に軒裏を削るだけではなく、新たに破風(はふ)と軒裏を造作し直し、外観の美しさと機能性を両立させる工事が進められました。破風は屋根の端部に取り付けられ、雨風の影響を防ぐ重要な部分であり、軒裏とともに建物全体の耐久性や防水性能にも大きな役割を果たしています。

屋根材には、耐久性に優れたガルバリウム鋼板が使用されました。このガルバリウム鋼板は、錆びにくく、耐候性が高いため、長期的なメンテナンスの負担が少なく、住宅に適した素材です。S様邸の屋根は緩やかな勾配で設計されていたため、緩勾配の屋根に適した縦葺きという施工方法が採用されました。縦葺きは、雨水がスムーズに流れるように設計されており、緩い勾配でも水がたまりにくい構造を作ることができます。また、見た目もシャープで現代的な仕上がりになるため、建物の外観を一新する効果もあります。

さらに、S様邸の屋根工事では、越境部分における断熱対策も重要なポイントとなりました。通常の屋根工事では、断熱材を屋根全体に均一に張り付けますが、越境部分においては断熱材を張りすぎると軒から壁がはみ出してしまうという問題がありました。そこで、越境部分については断熱材を一枚張りにすることで、屋根の形状を損なわないように工夫しました。また、壁内にも断熱材を充填することで、全体の断熱性能を保ちながら、バランスの取れた屋根の仕上がりを実現しました。

このような工夫を施したことで、屋根全体の断熱性能が向上し、夏場の熱気や冬場の冷気を遮断する効果が高まりました。加えて、ガルバリウム鋼板の特性により、雨音や風の騒音も軽減され、快適な居住空間が確保されました。最終的に、S様邸の屋根工事は見た目の美しさと高い機能性を両立したものとなり、S様にも大変ご満足いただける仕上がりとなりました。

板橋区S様邸 屋根工事
板橋区S様邸 屋根工事
板橋区S様邸 屋根工事
板橋区S様邸 屋根工事
板橋区S様邸 屋根工事

3 戸建てリノベーション竣工

S様邸のリノベーション工事が無事竣工し、完成いたしました。

今回のリノベーションプロジェクトでは、築60年以上の古い住宅を現代の性能基準に合わせ、住み心地の良い快適な住環境に生まれ変わらせることを目的とした大規模なリフォームを行いました。S様邸は、再建築不可物件という特殊な条件下にありましたが、プランニングから施工までの全過程において、S様のご要望に寄り添い、細部にわたる計画を立て、施工を進めてまいりました。

主な施工内容と工事のハイライト

  1. 基礎補強と耐震改修  S様邸は築年数が60年以上経過しているため、旧耐震基準のままでした。基礎は無筋であり、これでは現行の耐震性能を確保することが難しかったため、基礎補強を重点的に行いました。基礎に沿って内部から400mm程度掘削し、鉄筋を配筋してコンクリートを打設する工法を採用。主要な柱脚部には引き抜き防止金物を取り付け、建物全体の耐震性能を飛躍的に向上させました。これにより、S様邸は地震に対して強固な構造となり、安心して暮らせる住まいへと生まれ変わりました。

  2. 外断熱と内外部スケルトンリフォーム  断熱性能向上のため、外断熱工法を採用し、断熱材として「キューワンボード」を使用しました。外壁には高性能な断熱パネルを設置し、さらに壁内にも断熱材を充填することで、冬は暖かく、夏は涼しい快適な居住空間を実現。また、外壁は美観と耐久性を両立させるためにサイディングボードを採用し、耐候性に優れた外装仕上げを施しました。これにより、住宅の断熱性能はHEAT20の断熱等級6に対応し、エネルギー効率の良い住まいとなりました。

  3. インナーバルコニーの設置  S様のご要望により、広めのバルコニーを設置しました。1階のLDK直上に位置するため、木造建物のねじれや歪みを防ぐために鉄骨で補強し、バルコニー部分には金属防水を施して雨漏り対策も万全に。仕上げにはタイルを使用し、耐久性とデザイン性を兼ね備えたバルコニーが完成しました。インナーバルコニーの採用により、プライバシーを守りながらも外部空間を楽しめる住まいが実現しました。

  4. 屋根工事と断熱対策  屋根材には耐久性の高いガルバリウム鋼板を使用し、緩勾配の屋根には縦葺きの施工方法を採用しました。屋根の一部は敷地境界線を越えていたため、越境部分の断熱材を工夫し、軒裏や破風を新たに造作。これにより、断熱性能を維持しつつ、外観もシャープで美しい仕上がりとなりました。また、外断熱による断熱性向上により、夏場の熱気や冬場の冷気を大幅に遮断し、冷暖房効率が飛躍的に向上しました。

  5. 内部のリノベーションと仕上げ  S様邸の内部空間は大スパンを求められ、柱を抜く箇所が多かったため、梁の架け替え工事を行いました。通常の方法では困難な家起こし作業も、基礎に鉄筋棒を埋め込み、ワイヤーで建物を引き起こす技術を駆使し、建物全体の歪みを矯正しました。これにより、構造の安定性を確保し、将来にわたって安全な住環境を提供することができました。

約8か月の工事を経て、いよいよ竣工です。
築60年戸建てがどのように生まれ変わったのか。
S様邸の様子をご紹介します。


  =外観==  

Before

板橋区S様邸 竣工

S様ご夫妻は親御様から寄贈されたご自宅に愛着を持ってきましたが、築60年以上が経過しており、耐震性や断熱性などに不安が生じていました。

After

板橋区S様邸 竣工

S様のご要望に応えるために、「外断熱リフォーム」と「内外部スケルトンリフォーム」を提案しました。このリフォーム計画は、建物の骨組み(構造体)をしっかりと残しつつ、外部と内部をすべて新しくする大規模な改修です。これにより、元の建物の特徴や形状を残しながらも、最新の耐震基準に適合した安全な住まいを実現することができます。

板橋区S様邸 竣工

外壁はLIXILの金属サイディングを採用。スタイリッシュな外観となりました。窓はYKKAPのAPW330防火窓で断熱性能も格段にアップしています。

板橋区S様邸 竣工

玄関ドアはYKKAPのイノベストD50防火ドア


  == 1F LDK ==  

Before

板橋区S様邸 竣工

施工前は昔ながらの和室で何部屋も区切られた作りになっていました

After

板橋区S様邸 竣工

リフォーム後は部屋をつなげて広いLDKに。周りに水周りを配置し、LDKがご家族の生活の中心となる間取りに変更しました。

板橋区S様邸 竣工

LDKと一体感を感じられるオープンなキッチン

板橋区S様邸 竣工

フローリングと内装建具はパナソニックのベリティスシリーズ


  == 1F 水まわり ==  

Before

板橋区S様邸 竣工

After

板橋区S様邸 竣工

キッチンとカップボードはトクラスのコラージア

板橋区S様邸 竣工

ユニットバスはTOTOサザナ

板橋区S様邸 竣工

トイレはTOTOネオレストAS1、手洗はTOTOコンフォート


  == 2F 居室・インナーバルコニー ==  

Before

板橋区S様邸 竣工

施工前は和室がありました

After

板橋区S様邸 竣工

ほぼひと部屋分の広さのインナーバルコニー。金属防水を施して雨漏り対策も万全に。仕上げにはタイルを使用し、耐久性とデザイン性を兼ね備えたバルコニーが完成しました。

板橋区S様邸 竣工

開放的なバルコニーでご家族の楽しみが増えますね

板橋区S様邸 竣工

2階の居室からもバルコニーへアクセスできます

板橋区S様邸 竣工

ふた部屋をつなげて広い居室に。ドアを2つ付けたので将来的には仕切ることも可能です。

4 補助金利用

板橋区SK邸の工事では、国の補助金「子育てエコホーム支援事業」と「先進的窓リノベ事業」、東京都の補助金「既存住宅における省エネ改修促進事業」を活用予定です。(申請中)

省エネにつながるエコ住宅設備や、断熱性能の高い断熱材・ドア・窓の設置などに対して交付される補助金です。

 

S様邸の補助金対象工事

エコ住宅設備の設置 給湯器(エコジョーズ)、高断熱浴槽、節水型トイレ、節湯水栓
断熱改修 外壁・床・天井の断熱材、断熱窓、断熱ドア
子育て対応改修 ビルトイン自動調理対応コンロ、掃除しやすいレンジフード、ビルトイン食洗器、浴室乾燥機

 

S様邸の補助金交付額(予定):190万円

5 担当者より
(「増改築.com®」本部ハイウィル株式会社四代目代表稲葉高志)

築60年以上が経過したS様邸は、再建築不可物件という特殊な条件もあり、耐震性や断熱性などの性能面において現代基準に適合させるための大きなチャレンジでした。特に基礎の無筋構造や外断熱の採用、インナーバルコニーの設置など、設計段階から非常に綿密な計画が求められました。S様からいただいた具体的なご要望をもとに、施工の細部にわたってプランを最適化し、ひとつひとつ丁寧に仕上げてまいりました。

基礎補強では、無筋基礎の状態から鉄筋コンクリートを用いた補強工事を行い、耐震性能を大幅に向上させました。また、外断熱工事では断熱材の張り方を工夫し、S様邸の熱効率を最適化。夏は涼しく、冬は暖かい快適な環境を整えることができたと確信しております。

工事中は、度重なる変更や調整にも迅速に対応していただき、スムーズに進行することができました。特にインナーバルコニーや梁の架け替えに関しては、S様からの柔軟なご意見と協力のおかげで、理想的な仕上がりを実現することができました。

S様ご家族が、この新たな住まいで快適に過ごされることを心より願っております。今後とも何かお困りごとやご相談がございましたら、どうぞお気軽にご連絡ください。引き続き、アフターフォローも含め、末永くお付き合いさせていただければ幸いです。

この度は誠にありがとうございました。

他のリフォーム事例を見る

再建築不可のフルリフォーム&リノベーション

兵庫県神戸市 N様邸

再建築不可リノベーション

東京都杉並区 M様邸

再建築不可 中古住宅リフォーム&リノベーション

東京都目黒区 A様邸

地盤沈下(家の傾き)補正の戸建リノベーション

東京都板橋区 O様邸

戸建てリノベーション・リフォームに関するお問合せはこちら

増改築.comの一戸建てリフォーム専用ホームページに
お越しいただき、誠に有難うございます。
 
増改築.comメンバーは技術集団となり、
他社のような営業マンがおりません。
技術者が直接ご相談にのり問題解決を行います。
 
従いまして、
お客様の方である程度のご要望が整理されました段階、
お悩みが工事内容のどのようなところにあるのか?
ご予算がどの程度絞る必要があるのか?
など明確になった段階でのご相談をお願いしております。
お問合せ・ご相談はお電話・メールにて受け付けております。
メールの場合は以下のフォームに必要事項をご記入の上、
「送信する」ボタンをクリックをお願いします。

代表稲葉高志

戸建てリノベーションの専属スタッフが担当致します。
一戸建て家のリフォームに関することを
お気軽にお問合せください

よくあるご質問
  • 他社に要望を伝えたところできないといわれたのですが・・・
  • 他社で予算オーバーとなってしまい要望が叶わないのですが・・・
  • サービスについて詳しく聞きたいのですが・・・

どのようなお悩みのご相談でも結構です。

あなたの大切なお住まいに関するご相談をお待ちしております。

営業マンはおりませんので、しつこい営業等も一切ございません。

設計会社(建築家様)・同業の建築会社様のご相談につきましては、プランと共にご指定のIw値及びUa値等の性能値の目安もお願い申し上げます。

2026年の大型補助金が確定したことで現在大変込み合っております。

耐震性能と断熱性能を向上させるフルリフォームには6か月~7か月の工期がかかります。

補助金獲得には年内に報告を挙げる必要があることから、お早目にご相談をお願いいたします。(6月着工までが目安

ご提案までに大変お時間がかかっております。ご了承のほどお願い申し上げます。

(5月までの着工枠が埋まりました)・・・2026/03/01更新

※すでにプランをお持ちのお施主様・設計資料をお持ちのお施主様は内容をフォームで送信後、フォーム下のメールアドレスに資料をお送りください。対応がスムーズです。

必須

(例:増改築太郎)

必須

(例:contact@high-will.co.jp)

(例:03-5615-2826)

必須

(例:東京都荒川区西日暮里2-35-1)

(例:築40年)

(例:25坪・100㎡など)

(例:2000万程度など)

  • ※再建築不可のリフォームでは金融機関が限られます。事前審査をお勧めいたします。

    (例:2024年3月くらいに完成希望など)

    必須

    できるだけ具体的にお知らせくださいませ。既存設計資料、リフォーム後のイメージ図等をお持ちであれば下記のメールアドレスより添付をお願いします。

    ※次の画面がでるまで、4~5秒かかりますので、
    続けて2回押さないようにお願いいたします。

    ※次の画面が出るまで、4〜5秒かかりますので、
    続けて2回押さないようにお願いいたします。

    図面や写真等を送信いただく場合、また入力がうまくいかない場合は、上記内容をご確認のうえ、下記メールアドレスまでご連絡ください。

    お電話でのお問合せはこちら

    0120-246-991

    営業時間:10:00~17:00(土日祝日を除く)

    ★YouTube「増改築.comチャンネル」チャンネル登録して新動画解説をいち早くGET!!★
    「増改築.comリノベ診断」であなたに一番ふさわしいフルリフォームを診断!!(動画解説付き)
    ★Facebookページにいいね!を押して最新コンテンツ情報をいち早くGET!!★
    パソコン|モバイル
    ページトップに戻る