戸建フルリフォームなら「増改築.com®」TOP施工事例東京都目黒区>A様 再建築不可 中古住宅リフォーム&リノベーション

再建築不可はどこまでリフォームできる?

再建築不可 中古住宅リフォーム&リノベーション 
東京都目黒区A様邸施工実例

目黒区A様邸_TOP
目黒区A様邸_竣工
目黒区A様邸_竣工
目黒区A様邸_竣工
目黒区A様邸_竣工
目黒区A様邸_竣工
目黒区A様邸_竣工
建物概要
名前 A様
場所 東京都目黒区
築年数 築39年
構造種別 木造戸建
家族構成 大人3人
対象面積 27坪
工期 5ヶ月
価格 1700万(サッシ・玄関ドア・住宅設備機器・住宅建材一式は支給の為含まず実際金額は2200万相当)

お客様のご要望

・各居室間の遮音性能を上げたい。

・断熱性能を上げたい

・防犯性を高めたい

・日当たりが良い2階を広いリビングにしたい

・床暖房設置したい

・2階リビングが夏場暑くならないように遮熱をしたい

 

プランニングのポイント

ハイウィル四代目代表の稲葉と友人のA様。

職場の徒歩圏内に戸建て住宅を長期で探されていたところ、

東京都目黒区の祐天寺にて、

中古住宅付の再建築不可物件を見つけられました。

築年数も経過していましたので、

内部スケルトンリフォームを提案いたしました。

建物のスペックを重視されるA様は、

遮音性能、断熱性能、防犯性も最も重視。

お仕事がお忙しいお施主様のため、

奥様とA様と弊社でメーリングリストを使い、

相当数の打ち合わせを重ねました。

建材や設備機器なども各ショールームへ

20回を超えるほど通われるなどこだわりがございましたため、

住宅設備機器・床や建具、サッシ・玄関に至るまで、

すべて御支給をいただく形をとり、

断熱工事や耐震といった施工サイドを弊社が担当いたしました。

目黒区A様邸 戸建てリノベーション施工事例テーマカテゴリー

 

  • 再建築不可リフォーム
  • 中古住宅+リフォーム
  • セルロースファイバー仕様
  • 内部スケルトンリフォーム+サッシ交換

打合せから完成まで

1-2 提案

目黒区五本木で築40年近くの中古住宅付再建築不可物件を購入されたA様。

性能面では耐震、断熱、防犯、遮音のスペック向上、

間取りは大学生のお子様とご夫婦3人家族のため、

1階に浴室と子供部屋、夫婦寝室を、

2階に広いLDKをプランニング致しました。

■ 既存図面 ■
目黒区A様邸_既存平面図
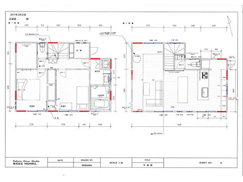
■ 新規図面 ■
目黒区A様邸_新規平面図

イメージパース:2F-LDK
目黒区A様邸_施工後イメージ
イメージパース:2F-LDK
目黒区A様邸_施工後イメージ
目黒区A様邸_施工後イメージ

2 着工

2-1 解体

東京都目黒区という高立地での

再建築不可の物件のリフォーム。

リノベーションで最も業者泣かせなのがこの解体になります。

再建築不可物件の大半が、

道路付が悪いことから

解体時の廃棄物搬出(建材の搬入も)に

最も手間がかかります。

道路の使用許可を取るケースも多々あります。

A様の解体は、

内部のみのスケルトン(+断熱サッシ取替え)に

なりますので、外壁の剥がしこそありませんが、

現場では搬出搬入に大変苦労をしました。

 

目黒区A様邸_解体

玄関の裏手から撮影。再建築不可物件ならではになりますが、今回は内部スケルトンになります。玄関側からは間口が狭く入り組んでいるために全体が取れませんでしたので裏より建物の輪郭を撮影してます。

目黒区A様邸_解体

断熱効果を予算を多めに投下しても性能向上をさせたいとの要望から、断熱性能の高いサッシへの総入れ替えを提案しましたので既存の窓周りにカッターをいれ解体をしていきます。

目黒区A様邸_解体

内部での解体が進むと、再建築不可のケースでは道路付けが悪いことが大半ですので、ある程度廃棄物が溜まるまでは整理して宅内に仮置きをし、一気に出します。搬出にはたくさんの人手が必要になってきます。

目黒区A様邸_解体

一時的にしかパレットを置くことができないため、パレットを設置したら一気に荷積みをしなければなりません。

目黒区A様邸_解体

中古住宅内部を躯体残しにしていきます。この際に主要構造部の痛みを良く見ながら解体していきます。

目黒区A様邸_解体

外に廃棄物を置くスペースがない為、解体トラックが来るまで室内に整理をしておきます。

目黒区A様邸_解体

内部がスケルトンになりました。写真は一階のバスルームになるところです。

目黒区A様邸_解体

リフォーム後のバスルーム側より寝室を撮影。内部が躯体状態になっているのがわかります。

目黒区A様邸_解体

玄関ドアの新規で断熱ドアを設置するため、カッターを入れ解体をしています。

目黒区A様邸_解体

サッシがなくなるところ、新規のプラン上で窓の位置がかわるところなども出てきますので、窓を新規で入れる場合解体に費用がかかります。

目黒区A様邸_解体

外壁がかなり厚いため、解体も苦労しました。

目黒区A様邸_解体

玄関の上部にベランダを設置したいと初期段階でご要望がありましたが、A様はサッシの費用や住宅設備の費用ウェイトが高いこともあり予算的に厳しいこともあり、断念いたしました。

目黒区A様邸_解体

既存の布は想定していたよりも状態は良く、I様邸ではベタ基礎にする予定もありませんので、この状態で良いかの確認を入念に行いました。

目黒区A様邸_解体

2階床組より一階のリフォーム後の寝室にあたる部屋を撮影

目黒区A様邸_解体

2階のリフォーム後にLDKになる空間。2階はを多く設置するため、補強箇所も多くなります。

目黒区A様邸_解体
2-2 基礎

バスルーム設置面の土間打ちを行いました。

2-3 木工事
目黒区A様邸_木工事

木工事開始と同時に現場には材木が搬入されます。

目黒区A様邸_木工事

間取りが変更になるため、補強がメインとなっていきます。

目黒区A様邸_木工事

中古住宅の旧間取りは、1階にリビングルームがありましたが、今回の中古住宅リフォームでは1階に居室を配置する間取りを提案しておりますので、耐力壁が多めにとれる設計としました。

目黒区A様邸_木工事

一階部は新規の間仕切りが増えたことから柱を立てる本数も多くなります。

目黒区A様邸_木工事

一階のリフォーム後に寝室となる空間。

目黒区A様邸_木工事

既存の躯体の仕口には金物を必ず入れ補強を加えていきます。

目黒区A様邸_木工事

構造上弱い箇所には梁を入れ補強を加えます。

2-4 断熱・遮音・遮熱工事
目黒区A様邸_断熱

A様は木造特有の音の問題も出来る限りクリアできないか?と相談があり、外部からの騒音、また室内の音を外に逃がしにくくしたい、さらに居室間の音出来る限り漏れないようにしたいというご希望から、通常外周面へのセルロースファイバー充填を各居室間へもセルロースファイバーの充填をおこないました。各居室間、2階の床下への配慮から遮音シート工事もおこないました。

目黒区A様邸_断熱

2階LDK壁へのセルロースファイバー充填が完了しました。天井へ充填をしていないのは、後ほど紹介する遮熱工事を屋根裏で行ったため、工程をずらし最後に天井への充填を行ったからです。

目黒区A様邸_断熱

外周面の階段部の壁へのセルロースファイバー充填が終わりました。

目黒区A様邸_断熱

リフォームだと注意しなければならないのが、設備の中で工程的に最も早い段階で設置される浴室まわりにもセルロースを前もって充填しておくということです。A様邸では手間はかかりますが、セルロースを3回にわけて充填しています。

目黒区A様邸_断熱

1階トイレ部の外周面へのセルロースファイバー充填

目黒区A様邸_断熱

システムバス設置後では充填ができないため先行して浴室部外周面にセルロースファイバーを充填しました。

目黒区A様邸_断熱

一階寝室となるお部屋へのセルロースファイバー充填

目黒区A様邸_断熱

寝室からつながるウォークインクローゼット部のセルロースファイバー充填後

目黒区A様邸_断熱

A様邸では各居室間への遮音のご相談も受けており、石膏ボードの2重張りと間に遮音シートを張ることで対応させていただきました。

目黒区A様邸_断熱

A様邸では、吸音ボードの上に遮音シート張り階下への遮音に最大限配慮しました。

目黒区A様邸_断熱

石膏ボードと石膏ボードの間に遮音シートをはさみ施工します。写真は寝室となり、壁上部に棚を設置するため下地を木にしています。

目黒区A様邸_断熱

2階のLDK床暖房をガス式にするか電気式にするかで悩まれましたが、予算の都合でここ出は電気式を採用させていただきました。

目黒区A様邸_断熱

一度設置してしまうとやり直しがきかないこともありA様を現場にお呼びして割り付け位置を入念に確認しました。

目黒区A様邸_断熱

遮音シートの上に石膏ボードをひいています。

目黒区A様邸_断熱

A様邸では、今回の中古住宅リフォーム&リノベーションをするにあたり、断熱性能を上げるという事が最もプライオリティの高い要素となっていたため、サッシも断熱性能が高いサッシの導入、断熱材はセルロースファイバー断熱の充填、そして屋根は遮熱塗装をしています。屋根の葺き替えをしなかったため、屋根の上からの断熱工事ができないため遮熱塗装をご提案しましたが、小屋裏へも遮熱工事を行いました。セルロースファイバーを天井に充填する前に遮熱シートを小屋裏に隙間なく張り込みます。

目黒区A様邸_断熱

2階はLDKで最も滞在時間の長い空間となることから、屋根上からの遮熱塗装と屋根裏からの遮熱フィルム、そして天井裏のセルロースファイバーというとことん断熱、遮熱にこだわった仕様となりました。

目黒区A様邸_断熱

屋根形状が複雑な中古住宅であったため、遮熱シートも細かく切ってうまく屋根形状に合うように張っていきます。

目黒区A様邸_断熱

A様邸では外周部の壁、天井をセルロースファイバー、一階の天井
、居室間の間仕切り壁にもセルロースを充填。サッシは樹脂サッシ+low-eガラス、屋根裏に遮熱シート、そして屋根材には遮熱塗装を施すといった断熱性能を一気に引き上げる内容となっております。

目黒区A様邸_断熱
2-5 外壁工事 

A様邸も当初は外壁を剥離する想定でおりました。しかしながら、住宅設備機器、建材等で費用が大幅に上がったこともあり、外部は解体せず、上張り工法で提案をさせていただきました。窯業系のサイディングは重いため、重ね張り、上張りでは使用をしませんので、建物への負担が少ない軽量の金属サイディングを提案しました。既存壁の解体がないため、最も費用がかかる外部解体をしない方向で決定致しました。

目黒区A様邸_外壁工事

A様邸では全サッシの新規新設となったため、すべての既存サッシにカッターを入れ解体となりました。

目黒区A様邸_外壁工事

既存のサッシを解体し、そこがリフォーム後に壁になる部分も間取りを変更する以上出て参りますので、リフォーム後にサッシが新設される部分にもカッターを入れることになります。

目黒区A様邸_外壁工事

通気胴縁を打っていきます。

目黒区A様邸_外壁工事

既存サッシを解体し、リフォーム後壁になるところへは構造用合板を貼っていきます。

目黒区A様邸_外壁工事

写真のように、サッシを変更する場合、サッシ新設の位置の開口の解体もすると相当な面積が解体されることがみてわかります。

目黒区A様邸_外壁工事

壁を解体し、サッシを新設、壁部分への構造用合板張りが終わると防水処理をしたのち通気胴縁を打ちサイディングを張る工程となります。

目黒区A様邸_外壁工事

再建築不可でのリフォームで最も困難を極めるのがサイディングの置き場です。今回のA様邸では奇跡的に間口の延長上に仮置きスペースがあったことが幸いでした。

目黒区A様邸_外壁工事

玄関ポーチの天井材は無垢材を使用しています。

目黒区A様邸_外壁工事

サイディングが張り終わりました。

2-7 内装工事 
目黒区A様邸_内装工事

セルロースファイバー充填が終わると、一気に内装工事が進んでいきます。キッチンは実に10回以上さまざまなメーカーショールームでプランを作っていただきましたが、工事全体の費用感を見て、コストダウンを決め、サンワカンパニー社のシステムキッチンを採用しました。

目黒区A様邸_内装工事

階段の上り口付近に隣接する洋室への採光目的で室内用サッシを設置しました。

目黒区A様邸_内装工事

階段周りは手すり設置のためボードでなくラワン材を使用します

目黒区A様邸_内装工事

2階の天井高が低くできる限り天井高を取りたいというご要望から、火打ち金物と梁が露出する形で天井高をいっぱいまでとりました。

目黒区A様邸_内装工事

リビングへは遮熱ガラスを採用しました。

目黒区A様邸_内装工事

サンワカンパニー社のカップボード

目黒区A様邸_内装工事

将来ベランダをキッチンバックスペースより設置したいとのことから、勝手口ドアを設置しています。

3 竣工

目黒区A様邸_竣工

金属サイディングが張られ、連窓で設置した2階LDKの遮熱ガラスがリビング内の採光と日中の断熱を両立します。

目黒区A様邸_竣工

再建築不可のためエントランスとなる玄関へのアプローチこそ狭いものの玄関は広く取れています。玄関ポーチ天井は無垢材を張りアクセントとなっています。

目黒区A様邸_竣工

一階寝室は防犯ガラスを採用し、内装はA様ファミリーで徹夜をして珪藻土を塗った力作となっています。

目黒区A様邸_竣工

寝室のベッド設置スペースにはニッチを作りました。このあたりの左官は苦労されたと思います。

目黒区A様邸_竣工

暗かった1階も2300のサッシを入れることでかなり明るくなりました。

目黒区A様邸_竣工

パナソニックアラウーノに手洗いはサンワカンパニー社の商品を採用しました。

目黒区A様邸_竣工

A様がLIXIL,TOTO、パナソニックとショールーム巡りをされ、結果的に採用されたのがハウステック社の1620のバスルームとなりました。

目黒区A様邸_竣工

パウダールームの化粧台の上にはサッシを入れ暗い脱衣所にも採光を考慮。奥様が最後まで迷われた化粧台はLIXILラシスで採用が決まりました。

目黒区A様邸_竣工

A様のご要望で梁はそのまま残す形となりました。天井高は限界まで上げて施工しました。

目黒区A様邸_竣工

2階トイレの手間に配置した洗面スペースは小窓が一つ。アクセントのような小窓ですが採光は十分でした。

目黒区A様邸_竣工

玄関を入った廊下スペース。この天井と壁をご家族3人で塗られたことに敬意を表したいと思います。途中何度も挫折しそうになったとのことでしたが、本当によく頑張られたと思います。

3 竣工

3-1 外壁 Before → After
目黒区A様邸_施工前

サービス提供前

既存外壁はモルタル塗装です。

 

リフォーム後はサイディングで仕上げさせて頂きました。

使用したサイディングは、KMEW 細石柄Ⅱ MAW5312V27 

アイボリーホワイトです。

 

目黒区A様邸_竣工
3-2 キッチン Before → After
目黒区A様邸_施工前

サービス提供前

既存キッチンは、1階にありブロックキッチンでした。

 

リフォーム後は2階をワンフロアLDKにしました。

対面キッチンはサンワカンパニーの商品になります。

目黒区A様邸_竣工
3-3 バス Before → After
目黒区A様邸_施工前

サービス提供前

 

既存浴室は、0.75坪のバランス窯の浴室でした。

 

リフォーム後は、ハウステック SB フェリテプラス1620サイズです。

 

目黒区A様邸_竣工
3-4 洗面 Before → After
目黒区A様邸_施工前

サービス提供前

既存洗面化粧台は、間口750の1面鏡の洗面化粧台です。

 

リフォーム後は、LIXIL ルミシス 間口1245 の商品になります。

洗面化粧台を大きく取り、採光も入れたかったのでサッシはギリギリの高さに

設置させて頂きました。

目黒区A様邸_竣工
3-5 トイレ Before → After
目黒区A様邸_施工前

サービス提供前

既存トイレは隅付トイレです。

 

リフォーム後は、Panasonic アラウーノを設置致しました。

目黒区A様邸_竣工
3-6 リビング Before → After
目黒区A様邸_施工前

サービス提供前

既存の洋室は、クロス仕上げの収納があまり無い空間でした。

 

リフォーム後は、通常の窓より大きい窓を設置し収納スペースも確保しました。

壁はお客様がご自身で珪藻土を塗って頂いたので、暖かく味のある壁面になって

おります。床フローリングは全て無垢フローリングです。

目黒区A様邸_竣工
ハイウィルスタッフ

担当者より ハイウィル株式会社四代目代表 稲葉高志

Aさんとは異業種の経営者の集まりで一緒の仲間であり友人でもあります。

職場付近に再建築不可の中古住宅付きを購入されリフォームの相談を受けました。

スペック重視のため、耐震、断熱、遮音、防犯に特にこだわりぬいたプランとなりました。

国内外を飛び回る特にお忙しい方のため、A様と奥様と私でfacebookでコミュニティを作り、掲示板方式で打ち合わせを重ねました。

トータルの予算をお聞きしていましたので、費用をかけるところ、費用をかけずにコストダウンするところのメリハリをつけ、極端ではありましたが、内装工事(珪藻土塗り)をA様と奥様と息子様の3人で、珪藻土メーカーへ研修に行っていただき、なんと3人で徹夜をして内装を仕上げました。

壁一面などお施主様に塗っていただくことは過去にありましたが、建物全体すべての天井と壁の珪藻土を塗ったお施主様は初めてでした(笑)

facebookでのやりとりは、数千回を超えました。

研修中も動画をfacebookであげていただくなど、私自身も一緒に取り組んだ本来の家づくりを考えさせられる良い経験となりました。

結果として提案できる最大限のものが提供できたと自負致しております。

全国のフルリフォーム・リノベーション『ピックアップ事例』※プロの詳細解説付きレポート

HEAT20-G2/耐震等級3
新耐震基準の性能向上リノベーション
築30年ハウスメーカー軽量鉄骨
断熱改修&リノベーション
 
中古住宅を新築以上の耐震性能と断熱性能へ!
耐震等級3フルリフォーム
地下付き木造2階建て
自然素材をつかった性能向上リノベーション&フルリフォーム

東京都文京区 K様邸

長屋を切り離して1つの構造体へフルリフォーム&リノベーション
隣家との距離がない!
部屋から外壁を張り替えるフルリノベーション
中古住宅を耐震等級3へ!
中古住宅リノベーション
 
基礎がない??
築60年の古屋をジャッキアップで基礎新設フルリノベーション

東京都渋谷区 O様邸

戸建てリノベーション・リフォームに関するお問合せはこちら

増改築.comの一戸建てリフォーム専用ホームページに
お越しいただき、誠に有難うございます。
 
増改築.comメンバーは技術集団となり、
他社のような営業マンがおりません。
技術者が直接ご相談にのり問題解決を行います。
 
従いまして、
お客様の方である程度のご要望が整理されました段階、
お悩みが工事内容のどのようなところにあるのか?
ご予算がどの程度絞る必要があるのか?
など明確になった段階でのご相談をお願いしております。
お問合せ・ご相談はお電話・メールにて受け付けております。
メールの場合は以下のフォームに必要事項をご記入の上、
「送信する」ボタンをクリックをお願いします。

代表稲葉高志

戸建てリノベーションの専属スタッフが担当致します。
一戸建て家のリフォームに関することを
お気軽にお問合せください

よくあるご質問
  • 他社に要望を伝えたところできないといわれたのですが・・・
  • 他社で予算オーバーとなってしまい要望が叶わないのですが・・・
  • サービスについて詳しく聞きたいのですが・・・

どのようなお悩みのご相談でも結構です。

あなたの大切なお住まいに関するご相談をお待ちしております。

営業マンはおりませんので、しつこい営業等も一切ございません。

設計会社(建築家様)・同業の建築会社様のご相談につきましては、プランと共にご指定のIw値及びUa値等の性能値の目安もお願い申し上げます。

2026年の大型補助金が確定したことで現在大変込み合っております。

耐震性能と断熱性能を向上させるフルリフォームには6か月~7か月の工期がかかります。

補助金獲得には年内に報告を挙げる必要があることから、お早目にご相談をお願いいたします。(6月着工までが目安

ご提案までに大変お時間がかかっております。ご了承のほどお願い申し上げます。

(5月までの着工枠が埋まりました)・・・2026/03/01更新

※すでにプランをお持ちのお施主様・設計資料をお持ちのお施主様は内容をフォームで送信後、フォーム下のメールアドレスに資料をお送りください。対応がスムーズです。

必須

(例:増改築太郎)

必須

(例:contact@high-will.co.jp)

(例:03-5615-2826)

必須

(例:東京都荒川区西日暮里2-35-1)

(例:築40年)

(例:25坪・100㎡など)

(例:2000万程度など)

  • ※再建築不可のリフォームでは金融機関が限られます。事前審査をお勧めいたします。

    (例:2024年3月くらいに完成希望など)

    必須

    できるだけ具体的にお知らせくださいませ。既存設計資料、リフォーム後のイメージ図等をお持ちであれば下記のメールアドレスより添付をお願いします。

    ※次の画面がでるまで、4~5秒かかりますので、
    続けて2回押さないようにお願いいたします。

    ※次の画面が出るまで、4〜5秒かかりますので、
    続けて2回押さないようにお願いいたします。

    図面や写真等を送信いただく場合、また入力がうまくいかない場合は、上記内容をご確認のうえ、下記メールアドレスまでご連絡ください。

    お電話でのお問合せはこちら

    0120-246-991

    営業時間:10:00~17:00(土日祝日を除く)

    ★YouTube「増改築.comチャンネル」チャンネル登録して新動画解説をいち早くGET!!★
    「増改築.comリノベ診断」であなたに一番ふさわしいフルリフォームを診断!!(動画解説付き)
    ★Facebookページにいいね!を押して最新コンテンツ情報をいち早くGET!!★
    パソコン|モバイル
    ページトップに戻る