このエントリーをはてなブックマークに追加

戸建フルリフォームなら「増改築.com®」TOP施工事例東京都杉並区>M様再建築不可物件購入+フルリノベーション(リフォーム)

東京都で再建築不可物件購入後、フルリノベーション

東京都杉並区久我山 M様再建築不可物件購入+フルリノベーション(リフォーム)

杉並区M様邸_TOP
杉並区M様邸_竣工
杉並区M様邸_竣工
杉並区M様邸_竣工
建物概要
名前 M様
場所 東京都杉並区
築年数 築50年
構造種別 木造戸建
家族構成 大人
対象面積 30.36坪
リフォーム部位 ベタ基礎/間取変更/サッシ取替/外壁サイディング/断熱セルロースファイバー/
工期 5ヶ月
価格 1968万

お客様のご要望

・庭が見える大きなLDKが欲しい。

・防音の為、断熱材はセルロースファイバーを使用したい。

・築50年のため、リフォーム後、長期間耐えうる耐震性が欲しい

・サッシは全て断熱仕様のサッシへ取替したい

・床下を布基礎からベタ基礎へ変更したい

・外壁は老朽が激しいので全て剥がしてサイディング仕上にしたい

 

プランニングのポイント

。杉並区のM様は、弊社のホームページを数年間見てこられて弊社にご用命頂きましたお施主様です。

他社との相見積もりなどがなく、着工の半年前に相談のメールが来ました。

初回のご相談は、再建築不可の物件を購入予定でおり御社でフルリフォームをしたい。とのことで、

銀行からは、再建築不可のため

1) 半分のリフォームまでしかできない

2) 足場を組んで外壁工事はできない

3) 構造躯体をい じれない

等々条件が出ております。

といった旨の相談からスタートでした。

弊社では、このようなケースでは事前に役所へ相談をしています。

M様につきましても、役所へ相談をさせていただきました。

すると、建蔽率がオーバーしていない建物であったため、斜線制限を守ること、耐震を基準値にすることという条件が加わりましたが

M様がご心配されている問題をクリアすることができました。こちらをクリアする平面図、立面図を作成し役所へ提出することで工事をスムーズに進めることが可能となりました。

また再建築不可でありましたが、耐震性能を提出することで、 大手都市銀行を通じて申し込みを行いました。  提出書類と書類の記載の手間に覚悟は必要ですが 地方銀行や大手でも上限や金利の面からもはるかに有利でした。

 

杉並区M様邸 戸建てリノベーション施工事例テーマカテゴリー

 

  • 再建築不可リフォーム
  • セルロースファイバー仕様
  • 中古住宅購入+リフォーム
  • 内外部スケルトンリフォーム

打合せから完成まで

1 着工前

1-1 打合せ

昭和40年代築の築50年を超える建物になります。外部は板張りとなっており塗装が剥げ、一部は腐食が進んでいる状態でした。

 

杉並区M様邸_施工前

杉並区M様邸_施工前

昔ながらの和室2部屋に広縁の作りです。ここをLDKにしたいとM様から相談を受けました。

杉並区M様邸_施工前
杉並区M様邸_施工前

キッチンが道路側となっていました。このスペースをLDKから続く和室へとプランニングしました。

杉並区M様邸_施工前
杉並区M様邸_施工前

既存浴室まわり。設置位置は変わりませんがサイズが変わります。築50年のため解体後は土台がどうなっているのかが気になります。

杉並区M様邸_施工前
杉並区M様邸_施工前
杉並区M様邸_施工前

玄関スペースが石の乱張りとなっておりました。こちらはその趣を残したいとのご要望があり残す設計となっています。

杉並区M様邸_施工前

1.5間の階段のため、そこまで急勾配の階段ではありませんが、今回は3尺増やし2間階段とします。

2階の2部屋は既存は和室となっておりました。こちらを2部屋の洋室へと変更します。

杉並区M様邸_施工前
杉並区M様邸_施工前

一階部の多くが下屋となっている構造のためトタンが錆びてしまっていました。こちらはガルバリウム鋼板で葺き替えをお勧めいたしました。

杉並区M様邸_施工前
杉並区M様邸_施工前

M様は弊社の施工事例を長期にわたり良く見て頂いていたため、弊社の工事の流れを良くご存じで、大変打ち合わせがスムーズでした。

ご契約の段階ですべての仕様を確定していただくなど工事側としては大変やりやすい環境をいただきました。

1-2 提案
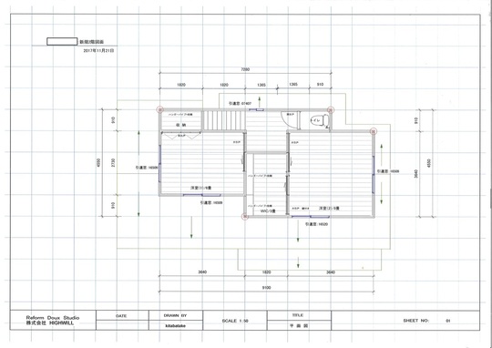
杉並区M様邸_新規図面

■ 新規1階図面 ■

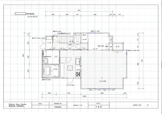
杉並区M様邸_新規図面

■ 新規2階図面 ■

 

杉並区M様邸_完成イメージ
杉並区M様邸_完成イメージ
杉並区M様邸_完成イメージ
杉並区M様邸_完成イメージ
杉並区M様邸_完成イメージ
杉並区M様邸_完成イメージ

2 着工

2-1 解体

東京都杉並区のM邸、再建築不可物件のフルリノベーション。

築50年の板張りの木造住宅を内部のスケルトン解体に加え、外壁の解体も行い木造の軸組の状態に戻す内外部スケルトンリフォームです。機械での解体ができないため手壊しによる解体を行いました。一カ月近くの期間がかかっています。

杉並区M様邸_解体
杉並区M様邸_解体

50年前の軸組が現れてきます。

杉並区M様邸_解体

基礎高がしっかりとれていて築50年にしては状態はかなり良い建物です。

杉並区M様邸_解体
杉並区M様邸_解体
杉並区M様邸_解体

東京都杉並区のM邸再建築不可物件フルリノベーションの解体後の構造材の状態は比較的良好な状態と言えました。

しかしながら、一部の柱に荷重が集中する構造体となっていたため、荷重を分散するような提案が必要だと感じました。

杉並区M様邸_解体

既存の布基礎はベタ基礎への基礎補強をするため、解体後は基礎補強へと移行していきます。

2-2 基礎

東京都杉並区の再建築不可物件を購入されたM様ですが、この建物は接道こそ満たしておりますが、この接道の通路が私道となっている状態、かつその私道所有者が私道入口で所有している状態であるため、再建築不可となっているのです。

通常再建築不可と呼ばれる建物は銀行ローンが使えない事が多いのですが、こちらの建物は、構造部の耐震を現行基準以上にするという条件で都市銀行での住宅ローンが可能となりました。

外壁がブロックと接するかどうかという状態であったため、近隣の方たちに相談させていただき足場を外に設置いたしました。

 

杉並区M様邸_基礎
杉並区M様邸_基礎

 

配筋の写真を取り損ねてしまいましたが、鋤取り→砕石→転圧→防湿シート→配筋→コンクリトート打設の工程で、コンクリートが打たれております。

杉並区M様邸_基礎
杉並区M様邸_基礎

基礎が終わると、いよいよ大工工事へと移行していきます。

 

 

2-3 大工・補強工事
杉並区M様邸_大工工事
杉並区M様邸_大工工事

現行の基準とこの建物を照らし合わせると、通路側の斜線制限を受けるため、既存の屋根組を修正し、屋根の勾配を基準の勾配へ変更していきます。

杉並区M様邸_大工工事

木工事に入る前段階で施主との現場打ち合わせを行います。現状の構造体の状態の確認、リノベーション後の間取りにするための補強法などを現地で確認をします。

杉並区M様邸_大工工事

構造体を裸にするといろんなところが浮き彫りになります。
無理をして納めている箇所など、平面図ベースで効いていると予想している柱がズレていて、実際に効いていない構造などが判明します。M邸でもそのような柱が数本あり補強が必要になりました。

杉並区M様邸_大工工事

柱がズレて聞いていない部分へ柱を新設し、既存の構造体と金物で緊結していきます。

杉並区M様邸_大工工事

一階は二階を背負う形になるため、どうしても耐力壁が多くなります。S邸2世帯住宅リフォームでは残した柱は、構造上抜けない柱を残す形で、ほぼ新たに構造体設置されました。

杉並区M様邸_大工工事

既存躯体と新設の構造体とを金物で固定。さらに外部より構造用合板にて既存躯体と固定していく事で壁倍率が倍になります。

杉並区M様邸_大工工事

2階の背負う重要な骨格となる一階LDK

杉並区M様邸_大工工事

一階部のLDKは大スパンととなるため、鉄梁を数か所に入れています。

杉並区M様邸_大工工事

キッチン部にも鉄梁による補強を行いました。

杉並区M様邸_大工工事

2階に娘様世帯のリビングルームが配置される計画となっておりますので、空間が広めに設計されております。そのため、梁を設置し開放感がある空間を作れる構造としています。

杉並区M様邸_大工工事

2階私道和側、通路斜線による屋根勾配の変更により桁の新設を行っています。

杉並区M様邸_大工工事

2階を背負う一階LDK部には鉄梁で補強

杉並区M様邸_大工工事

2階バルコニー側。梁掛けと耐力壁の設置。

杉並区M様邸_大工工事
杉並区M様邸_大工工事

2階には洋室が2部屋の設計となっており、ベランダを後々に設置したいとの要望から掃き出し窓の設置をしています。

一階の下屋部分となっており段差はどうしても出てしまいますが、M様にも現場に来ていただきまたぎ高さの確認をしていただきました。

杉並区M様邸_大工工事

既存の状態では天井はフラットでしたが、斜線を考慮し、屋根の勾配変更をおこなっているため勾配天井となります。

杉並区M様邸_大工工事

破風板、軒裏も新規です。

2-4 断熱工事

東京杉並区M様の再建築不可物件フルリノベーションでは、耐震だけでなく、断熱にもこだわりました。

ご相談ベースでの段階から優先順位の高いご要望としてセルロースファイバーの採用があります。

1階、2階の外周面となる天井、壁にはセルロースファイバーの充填を行いました。

杉並区M様邸_断熱工事

まずは、内壁に不織布を張っていきます。

杉並区M様邸_断熱工事

セルロースファイバーは、セルロースファイバーは出荷前の新聞古紙をリサイクルしたものです。靴が濡れた時に、新聞紙をまるめて入れた経験はありませんか?新聞紙には吸放出性能があり湿気を吸収し、乾くと放出する性能をもっています。

杉並区M様邸_断熱工事

セルロースファイバーを導入するお施主様の最大の理由の一つに吸音性能があります。これは体感レベルでわかる大変わかりやすい効果だと思います。

杉並区M様邸_断熱工事

不織布を全体に張り終えたら、セルロースファイバーの充填に入ります。

杉並区M様邸_断熱工事

一面の充填が完了しました。

杉並区M様邸_断熱工事

壁が盛り上がるほどの圧力で充填をしていきます。

杉並区M様邸_断熱工事

断熱・吸音・防虫・延焼防止・吸放出性能と良いことづくめのセルロースファイバーですが、デメリットとなるのが、費用がグラスファイバーと比較して割高になること。そして充填後のデメリットとしてコンセントや電気配線計画を一度してしまうとその後の移動ができないという点が挙げられます。そのため、セルロースファイバーを採用されるお施主様へは充填前にコンセントやスイッチの位置を最終確認していただくようにしております。

杉並区M様邸_断熱工事

施工日当日は、前場には他の職方は入りません。ものすごい量のセルロースファイバーは舞うからです。

杉並区M様邸_断熱工事

2日にわけて作業を行いました。まずは壁への充填を完了させます。

杉並区M様邸_断熱工事

壁面の充填が終わりました。勾配部にも充填します。

杉並区M様邸_断熱工事

壁が盛り上がっているのがわかるのではないでしょうか。

杉並区M様邸_断熱工事

外周面の壁部分の充填が完了です。

杉並区M様邸_断熱工事

2階洋室の壁充填完了。

杉並区M様邸_断熱工事

一階LDKの外周面の壁充填完了しました。

2-5 外壁工事

築50年の杉並区で再建築不可物件を購入されたM様のフルリノベーションもいよいよ外壁へ移行していきます。

既存の構造躯体と構造用合板を外周前面に、ツーバイフォー工法のように固定することで壁倍率を倍に上げることが可能となります。

この方法は新築では常識的な工法になりますがリフォーム、リノベーションでは、外壁を解体するケースでのみ施工が可能となります。

 

杉並区M様邸_外壁工事

外周面4面の構造用合板張りが完了しました。

杉並区M様邸_外壁工事

防水透湿シートを下から被せを取り張っていきます。

杉並区M様邸_外壁工事

私道側のブロックはサイディングが張れないため、
一部解体しました。

杉並区M様邸_外壁工事

一階下屋(LDK部)の外壁へサイディングを張っていきます。

杉並区M様邸_外壁工事

浴室側(庭側)のサイディング張り

杉並区M様邸_外壁工事

1階部を張り終え、2階のサイディング張りへ移行します。防水透湿シートの上に桟が打ってありますが、これが通気胴縁となります。

杉並区M様邸_外壁工事

のちのちベランダを設置したいとご要望の1階下屋部分

杉並区M様邸_外壁工事

キッチンから庭への出入りができるよう勝手口を設けています。段差があったため、こちらはデッキをタイルで作ります。

杉並区M様邸_外壁工事

サイディングが順調に張られていきます。デッキ部分のタイルも張り始めてます。

杉並区M様邸_外壁工事

寝室側から見た玄関です。外壁がかわるとイメージがガラリとかわります。

杉並区M様邸_外壁工事

デッキのタイルは玄関と同じタイルを採用しました。

杉並区M様邸_外壁工事

破風も張り終え完成です。

 

2-6 内装仕上げ
杉並区M様邸_内装仕上げ

外部が終わる頃、室内は作業の大詰め、内部の仕上げ工事へと移行していきます。

杉並区M様邸_内装仕上げ

勝手口のデッキで使用したタイルを玄関・ポーチ部分にも張っていきます。

杉並区M様邸_内装仕上げ

二階トイレの設置準備。キッチン、洗面、トイレは最終工程で取付になります。

杉並区M様邸_内装仕上げ

内装工事も終わり、残すはクリーニングとなります。

 

 

3 竣工

長いお時間を頂きまして、M様邸竣工させて頂きました。

外壁はサイディング2色ご選定頂きました。 (MFX484C リスタMGホワイト / MFX483C) 

 

 

杉並区M様邸_竣工

屋根の勾配が現行の制限に適合する勾配へ修正されています。

杉並区M様邸_竣工

庭側LDKからの掃き出しと将来ベランダを設置予定の二階掃き出し窓。

杉並区M様邸_竣工
杉並区M様邸_竣工

1階は大きくLDKを取り

広いお庭から沢山の採光が入ります。

約1m60cm幅の引違窓を2本納めさせ

て頂いているのですが、既存が縁側の様

な造りの場所だったので屋根勾配が付き

通常2000~2200のサッシが納まるので

すがこの2本は1800高で納めさせて頂い

てます。

リフォームの場合既存の構造を活かすの

で、抜けない柱や窓が入れられない場所

etc色々な問題が出てきます。

杉並区M様邸_竣工
杉並区M様邸_竣工

広々したLDKの脇には和室を造らさせて頂いております。

杉並区M様邸_竣工
杉並区M様邸_竣工
杉並区M様邸_竣工
杉並区M様邸_竣工

キッチンは少し大きめのトクラスBbI型2700サイズに食洗機付きです。

浴室もLIXILアライズ大きな1620サイズです。

杉並区M様邸_竣工
杉並区M様邸_竣工

 

 

杉並区M様邸_竣工
杉並区M様邸_竣工
杉並区M様邸_竣工
杉並区M様邸_竣工
杉並区M様邸_竣工
杉並区M様邸_竣工
杉並区M様邸_竣工
杉並区M様邸_竣工

2階は洋室2部屋の間に大きなWICを設置しております。

階段勾配の上も極力スペースが取れる様クローゼットを造らさせて頂きました。

3-1 外壁 Before → After
杉並区M様邸_施工前

リフォーム前

年季の入った外壁は全て壊して下地から新しく変えていきます。

杉並区M様邸_竣工

外壁の仕上げはサイディングです。2色上下で分けて貼らせて頂きました。

3-2 キッチン Before → After
杉並区M様邸_施工前

リフォーム前

既存キッチンはブロックキッチンです。

昔ながらの開き扉の収納

レンジフードはプロペラファンです。

杉並区M様邸_竣工

新しいキッチンはトクラスBb I型2700サイズです。扉のお色はフォレストグリーンをご選定頂きました。オプションで食洗器付です。

3-3 バス Before → After
杉並区M様邸_施工前

リフォーム前

既存お風呂は在来のステンレス浴槽。窓がとても大きいです。タイル張りのお風呂で単板の大きな窓が付いてしまうと、冬は恐ろしい位寒くなります。

杉並区M様邸_竣工

ユニットバスはLIXIL アライズ1620サイズ M様のご希望でユニットバスは引き戸と頂いていたのですが、構造上の問題で折れ戸か開き戸しか設置が出来ず開き戸で納めさせて頂きました。アクアジェット2穴をオプションで設置させて頂きました。

3-4 洗面 Before → After
杉並区M様邸_施工前

リフォーム前

既存、洗面化粧室です。シンプルな洗面器と洗濯置き場にFF式給湯器が設置されております。

杉並区M様邸_竣工

洗面化粧台はPanasonicシーラインです。間口900の引き出し収納+3面鏡(裏収納)になります。2.5畳のゆったりした脱衣室です。

3-5 トイレ Before → After
杉並区M様邸_施工前

リフォーム前

既存トイレは和式トイレを洋式トイレに変えただけの昔ながらのトイレ空間です。

杉並区M様邸_竣工

トイレはPanasonicアラウーノS2です。コンパクト手洗い器も設置させて頂いてます。

3-6 リビング Before → After
杉並区M様邸_施工前

リフォーム前

既存1階は和室でした。堀こたつ・縁側もあり風情のあるリビングでした。

杉並区M様邸_竣工

ワンフロアのLDKにさせて頂きました。広々とした空間ですが、リフォームですのでやはり抜けない柱は出てきます。
フローリング・巾木はPanasonicベリティス、サッシはYKK APになります。

ハイウィルスタッフ

4 担当者より

ここ数年、再建築不可の建物を購入され、リフォーム、リノベーションをされ住まわれるお施主様が大変多い印象を受けます。今回の東京都杉並区のM様もマンションにお住まいでありましたが、杉並区の久我山で条件の良い物件を見つけられ、ご相談があったのが経緯です。M様は着工の半年以上前より相談があり、現場調査をさせていただく前に、仮のプランなどをメールなどでお打ち合わせをしながら、ある程度固まった段階で現場調査、その後本プランを作成し、金額の調整をしながらご契約となりました。初期の段階よりご予算を提示いただけておりましたので、ご要望の中での優先順位が高い要素からクリアしていく進め方ができましたので、結果的にご満足度の高い工事が出来ました。今後リノベーションをされる方も、どのような工事をいくらの予算で考えているのかを提示いただくと結果的にご要望に沿った内容で工事ができると思います。

全国のフルリフォーム・リノベーション『ピックアップ事例』※プロの詳細解説付きレポート

HEAT20-G2/耐震等級3
新耐震基準の性能向上リノベーション
築30年ハウスメーカー軽量鉄骨
断熱改修&リノベーション
 
中古住宅を新築以上の耐震性能と断熱性能へ!
耐震等級3フルリフォーム
地下付き木造2階建て
自然素材をつかった性能向上リノベーション&フルリフォーム

東京都文京区 K様邸

長屋を切り離して1つの構造体へフルリフォーム&リノベーション
隣家との距離がない!
部屋から外壁を張り替えるフルリノベーション
中古住宅を耐震等級3へ!
中古住宅リノベーション
 
基礎がない??
築60年の古屋をジャッキアップで基礎新設フルリノベーション

東京都渋谷区 O様邸

戸建てリノベーション・リフォームに関するお問合せはこちら

増改築.comの一戸建てリフォーム専用ホームページに
お越しいただき、誠に有難うございます。
 
増改築.comメンバーは技術集団となり、
他社のような営業マンがおりません。
技術者が直接ご相談にのり問題解決を行います。
 
従いまして、
お客様の方である程度のご要望が整理されました段階、
お悩みが工事内容のどのようなところにあるのか?
ご予算がどの程度絞る必要があるのか?
など明確になった段階でのご相談をお願いしております。
お問合せ・ご相談はお電話・メールにて受け付けております。
メールの場合は以下のフォームに必要事項をご記入の上、
「送信する」ボタンをクリックをお願いします。

代表稲葉高志

戸建てリノベーションの専属スタッフが担当致します。
一戸建て家のリフォームに関することを
お気軽にお問合せください

よくあるご質問
  • 他社に要望を伝えたところできないといわれたのですが・・・
  • 他社で予算オーバーとなってしまい要望が叶わないのですが・・・
  • サービスについて詳しく聞きたいのですが・・・

どのようなお悩みのご相談でも結構です。

あなたの大切なお住まいに関するご相談をお待ちしております。

営業マンはおりませんので、しつこい営業等も一切ございません。

設計会社(建築家様)・同業の建築会社様のご相談につきましては、プランと共にご指定のIw値及びUa値等の性能値の目安もお願い申し上げます。

2026年の大型補助金が確定したことで現在大変込み合っております。

耐震性能と断熱性能を向上させるフルリフォームには6か月~7か月の工期がかかります。

補助金獲得には年内に報告を挙げる必要があることから、お早目にご相談をお願いいたします。(6月着工までが目安

ご提案までに大変お時間がかかっております。ご了承のほどお願い申し上げます。

(5月までの着工枠が埋まりました)・・・2026/03/01更新

※すでにプランをお持ちのお施主様・設計資料をお持ちのお施主様は内容をフォームで送信後、フォーム下のメールアドレスに資料をお送りください。対応がスムーズです。

必須

(例:増改築太郎)

必須

(例:contact@high-will.co.jp)

(例:03-5615-2826)

必須

(例:東京都荒川区西日暮里2-35-1)

(例:築40年)

(例:25坪・100㎡など)

(例:2000万程度など)

  • ※再建築不可のリフォームでは金融機関が限られます。事前審査をお勧めいたします。

    (例:2024年3月くらいに完成希望など)

    必須

    できるだけ具体的にお知らせくださいませ。既存設計資料、リフォーム後のイメージ図等をお持ちであれば下記のメールアドレスより添付をお願いします。

    ※次の画面がでるまで、4~5秒かかりますので、
    続けて2回押さないようにお願いいたします。

    ※次の画面が出るまで、4〜5秒かかりますので、
    続けて2回押さないようにお願いいたします。

    図面や写真等を送信いただく場合、また入力がうまくいかない場合は、上記内容をご確認のうえ、下記メールアドレスまでご連絡ください。

    お電話でのお問合せはこちら

    0120-246-991

    営業時間:10:00~17:00(土日祝日を除く)

    ★YouTube「増改築.comチャンネル」チャンネル登録して新動画解説をいち早くGET!!★
    「増改築.comリノベ診断」であなたに一番ふさわしいフルリフォームを診断!!(動画解説付き)
    ★Facebookページにいいね!を押して最新コンテンツ情報をいち早くGET!!★
    パソコン|モバイル
    ページトップに戻る