戸建フルリフォームなら「増改築.com®」TOP > 施工事例 > 都道府県で探す > 東京都品川区 > 施工事例 築65年の古家を断熱等級6(BEI0.7)耐震等級3へ性能向上フルリフォーム

再建築不可でも新築以上の耐震性能と断熱性能に生まれ変わる!

築65年の古家を断熱等級6(BEI0.7)耐震等級3へ性能向上フルリフォーム&フルリノベーション事例

品川区 K様邸

 

建物概要
名前 K様
場所 東京都品川区
築年数 築65
構造種別 木造一戸建て
家族構成 大人2人 
対象面積 22坪
リフォーム部位 基礎補強/間取り変更/断熱サッシ/硬質30倍発泡ウレタン/耐震補強/
工期 9ヶ月
価格 3400万

お客様のご要望

今回のリフォームで、K様からのご要望は以下の6点です。

  • 地震が不安なので耐震補強はしっかりとやりたい
  • 断熱材にはこだわりたい。
  • 鉄筋コンクリート基礎補強にしたい

プランナー 北畠より ~プランニングのポイント~

とても立地条件の良い再建築不可物件をご購入されましたK様。既存建物は基礎もままならない物件の上、空家の期間が何年かありましたのでとても新たに住むには厳しい状態でした。K様も、極力スケルトンにし新築に近い形でリフォームをしたいとご要望頂きました。初期の段階で床下や小屋裏を覗き、基礎の無筋や増改築のつぎはぎが想定されました。やはり解体後に改めて細部が判明し、計画どおりに進む部分と想定外の追加補強が必要な部分に大別されました。最大ご要望が「地震が来たとき家が倒壊しないこと」「冬の底冷え・夏の焼けつく暑さをなくしたい」という2点だったので、それを軸に設計しました断熱性能を最優先とし、内装や設備のグレードは多少後回しでも良いとしたのが大きいです。結果として予算超過があっても、施主は「性能面だけは絶対に妥協したくない」とおっしゃっていたため、話が通じやすかったと思います。使う屋根材(ルーガ雅)や外壁材(エンエクセラード16)、そして内装のテイストも施主の希望を聞きつつ提案しました。耐震や断熱が主軸のリノベとはいえ、住まい手のセンスを反映して「古家とは思えないほどモダンで落ち着きのある雰囲気」を目指しました。仕上げ工事の段階では、サッシやドアの色、照明計画とのバランスを細かく調整し、施主の満足感を高めました。全体を振り返って、築65年の古家で「断熱等級6(BEI0.7)・耐震等級3」は到底無理とあきらめがちでしたが、段階的に問題を洗い出し、適切な補強や断熱手法を盛り込めば、まったく新しい住まいへと昇華させられることが証明されました。施主の積極的な学習と工事への興味が、難易度の高いリノベーションを成功へと導いてくれたとも言えます。

築年数の長い家ほど可能性は大きく、完成したときの満足感もひとしおです。

 

品川区K様邸 戸建てリノベーション施工事例テーマカテゴリー

  • 再建築不可リフォーム
  • 中古(住宅)を買ってリフォーム&リノベーション
  • 耐震等級3相当(上部構造評点1.5以上)リフォーム(性能向上リノベーション)
  • HEAT20-G2リフォーム(性能向上リノベーション)
  • 狭小住宅リフォーム 
  • 硬質ウレタン吹付断熱
  • 補助金活用リフォーム

打ち合わせから着工、完成までの詳細施工事例紹介

1 戸建てリノベーション着工前

1-1 現場調査・打合せ

築65年の古家を断熱等級6(BEI0.7)・耐震等級3へとフルリフォームするには、実際の建物の状態を正しく把握したうえで、精密な計画を立てることが不可欠です。本章では「現場調査・打合せ」から「リノベーションプラン概要」に至るまでのプロセスを詳しく解説します。解体前にどれほど丁寧な調査と打合せを行うかが、後の工事コストや完成度、さらには住まいの安全性と快適性を左右する決定的な要素になるからです。

 


現場調査・打合せ


解体前の「現場調査・打合せ」は、築年数の古い建物をリノベーションするうえで最も重要なスタート地点です。とくに築65年の木造住宅の場合、昭和期に増改築をしている可能性が高く、図面と実際の構造が大きく異なることも珍しくありません。ここでは、具体的に何を調べ、どのように施主との意見交換を進め、どのような方針を確認するかを掘り下げて解説します。


現場調査の重要性:築65年の実態を探る

  1. 外観・屋根・敷地境界のチェック
    リノベーションで失敗を避けるには、まず外部からの観察が欠かせません。瓦屋根なのかスレート屋根なのか、苔(こけ)や亀裂は見られないかを確認。外壁にヒビや浮きがないか、地盤の高さが敷地内で変化していないかも注視します。とくに築65年ともなると、雨仕舞(あまじまい)が機能しておらず、内部で腐朽が進んでいるかもしれません。
    また、物件が細い路地に面している場合や敷地が狭い場合、足場や解体廃材の搬出に苦労することが多いです。現場調査で「どこに資材を置き、どう動線を確保するか」を構想しておくと、後のスケジュール管理がスムーズになります。

  2. 室内・床下・小屋裏の点検
    築年数の古い木造住宅では、解体前に床下や小屋裏の一部を開口して確認するのが理想です。可能なら、

    • 床下:シロアリや腐朽の有無、大引(おおびき)や根太(ねだ)の状態、基礎が無筋かどうか
    • 小屋裏:梁の断面サイズや腐食、増改築の際に変則的な補強をしていないか
      といった点を写真やメモで記録し、施主とも共有します。こうした下地情報が乏しいままだと、解体後に想定外の傷みが見つかり、大幅な追加費用が発生してしまう可能性が高まります。
  3. 水回り・配管ルートの確認
    65年前の建物では古い配管やガス管が見受けられ、増改築のたびに独自のルートで延長されているケースがよくあります。今回、断熱等級6や耐震等級3を狙うにあたり、浴室やキッチンの位置を変えるなら配管を全面的にやり直す必要があるかどうかを調べておきましょう。
    また、配管の更新タイミングを電気配線など他の設備工事と合わせることでコストを圧縮できる場合があります。現場調査時点で複数業者が絡む配管周りの状況を把握しておけば、後のトラブルを減らせます。


打合せ:施主要望と優先順位の設定

  1. 耐震等級3
    施主が「地震の心配がとにかく大きい」と望むなら、耐震等級3を明確に計画へ組み込みましょう。築65年の在来工法に対し、

    • ベタ基礎補強なのか抱き合わせ基礎
    • 梁補強と金物設置
    • 耐力壁の追加
      などが必要となる可能性があります。早い段階で「どのレベルまで耐震化するか」を打合せで固めないと、後の工程ですれ違いが生じてしまいます。
  2. 断熱等級6(BEI0.7)へのアプローチ
    高い断熱性能を得るには床・壁・天井の断熱材の選定と厚みがカギになります。セルロースファイバーや発泡ウレタン、ミラネクストラムダなどの候補を施主に示し、予算や施工性を含めて打合せします。さらに、気密工事(気密シートやテープの処理)をどこまで徹底するかも決めておかないと、「途中で気密ラインを抜ける配管を追加したい」などの要望が出たときに混乱が起こりがちです。

  3. 施主の生活スタイルによっては追加要素が見えてくることもあります。断熱・気密が高まれば内部結露やカビが減るメリットは大きいですが、同時に換気計画も重要となるため、打合せでは機械換気の種類などにも言及します。

  4. 解体後リスクと予備費設定
    増改築履歴がある家では、解体後に予想以上の腐朽やシロアリ被害、無筋基礎が発覚する事例が後を絶ちません。そのため、打合せ段階で「全体予算のうち何%かを予備費として見込む」「想定を超える追加補修が必要になれば、どこを優先し、どこでコストを削るか」を決めておくと、施主と施工者のあいだで早期トラブル回避につながります。
    たとえば、耐震や断熱が最優先ならば、後々リフォーム可能な内装仕上げのグレードを少し落としてでも補強に集中投下するなど、優先順位を明確にしておくと工事途中の判断がスムーズです。

  5. スケジュールと近隣挨拶
    リノベーション中、騒音や解体廃材の搬出で近隣と摩擦が起きがちです。打合せで「着工から竣工まで何ヶ月かかるのか」「大きな騒音が出る期間はどの程度か」「家族の仮住まいはどうするか」などを確認し、必要に応じて近隣へ事前の声かけを検討することが求められます。
    特に築65年の住宅は足場の組み方や解体方法(手壊し・重機)で近隣環境が変わります。解体しながら同時に防音・防塵対策をどう講じるか、その段取りを話し合うことも打合せフェーズの重要な任務です。


 

品川区 K様邸 現場調査
品川区 K様邸 現場調査
品川区 K様邸 現場調査
品川区 K様邸 現場調査
品川区 K様邸 現場調査
品川区 K様邸 現場調査
品川区 K様邸 現場調査
品川区 K様邸 現場調査
品川区 K様邸 現場調査

施工前の水回り

品川区 K様邸 現場調査
品川区 K様邸 現場調査
品川区 K様邸 現場調査

1-2 東京都文京区M様邸 戸建リノベーションプラン

 

現場調査と打合せを経て、耐震等級3・断熱等級6(BEI0.7)という高い目標を実現するためのプランが固まります。このセクションでは、具体的に「どこにどのような補強を入れ、どう断熱材を構成し、間取りをどう再編するか」といった大まかな設計方針をまとめていきます。施主が希望するデザインや生活動線に、構造安全性と省エネ性能をどう調和させるかが、この段階での最大の課題です。


 

 基本的な構造・断熱・間取りの骨格

  1. 耐震・断熱を両立する骨格設計
    a) 基礎補強:もとの布基礎に増し打ちを行い、抱き合わせ基礎や刺し筋工法も検討し、予算と耐震効果を比較しながら最適案を選ぶ。
    b) 梁補強・耐力壁配置:N値算定を行い、梁を抱き合わせ補強する箇所や筋かい・構造用合板を増強する壁を特定。水回りを大幅に動かす場合、配管ルートの干渉を加味して計画する。
    c) 断熱仕様:床にはミラネクストラムダ75㎜、壁にはセルロースファイバーもしくは他の高性能断熱材を充填、天井には最大250㎜の厚みを確保など、外皮平均熱貫流率(UA値)を目標値に近づける設計をする。

  2. 間取り再編と生活動線
    築65年で増改築を繰り返した住宅の場合、当時の生活様式に合わない動線が残りがちです。たとえば、

    • 台所と洗面脱衣室が離れていて家事がしにくい
    • 階段が急勾配で危険
      などの課題を解消するため、LDKを広げ、洗面脱衣室を隣接する形にする、階段のかさ上げやスロープ化などを検討します。施主が求める生活スタイル(和モダン・バリアフリー・子世帯同居など)に合わせて柔軟に提案するのがこの段階です。
  3. プランの優先順位:性能と予算
    リノベーションで望まれる機能が多すぎると、費用が一気に跳ね上がるリスクがあります。耐震や断熱は譲れないけれど、キッチンや浴室の設備グレードなどは調整可能である……といった線引きを明確にするのが賢明です。あらかじめ優先度をつけておけば、解体後に追加工事が出ても、どこを削ってどこを守るか判断しやすくなります。


 

 細部の打合せと書面化

  1. 金物や断熱材の銘柄選定
    耐震金物(ホールダウンや柱頭柱脚金物など)はメーカーや規格が多数あり、どれを使うかで費用や施工性が変化します。断熱材についてもセルロースファイバー・グラスウール・押出法ポリスチレンフォームなど多様な選択肢があるため、性能比較とコストのバランスを説明し、お施主様に納得してもらう必要があります。
    「BEI0.7」といっても、どういう計算根拠で達成可能と見込むのかを理路整然と施主に伝えると、完成後の期待値が明確になります。

  2. 工事契約と工程表
    プランがほぼ固まったら、「工事請負契約」を結び、工程表を施主と共有します。たとえば「〇月上旬に解体開始、〇月末に基礎補強、〇月中旬から大工工事……」といったスケジュール感を示し、追加工事が出そうな時期や費用精算のタイミングも明文化するのが大切です。
    また、仮住まいを手配する必要がある場合、工期遅延が起きたときの対応(延長費用はどうするか)を話し合っておくと不安を和らげられます。

  3. 近隣対策と資材搬入計画
    築65年の住宅は、建築当時から道路事情が変わっている可能性があります。大きなトラックや重機が入らない狭い路地なら手壊し解体の時間が長引き、また足場を組むスペース確保にも苦労します。施主には工事期間中の騒音や通行制限を説明し、近隣への挨拶状や注意喚起を事前に行うよう提案することが重要です。

こうして「現場調査・打合せ」と「リノベーションプラン概要」の2ステップをしっかり踏めば、築65年の古家を断熱等級6(BEI0.7)・耐震等級3へ向けた道筋が明確になります。解体後に思わぬ追加工事が出ても、施主と施工者のあいだで共有済みのプランと予備費があれば冷静に対処可能です。
これから木造戸建てリノベを検討する方には、ぜひこの段階の入念な準備の重要性を理解いただき、後悔しないプロジェクト進行に繋げてもらえればと思います。

  間取りの変更プラン  

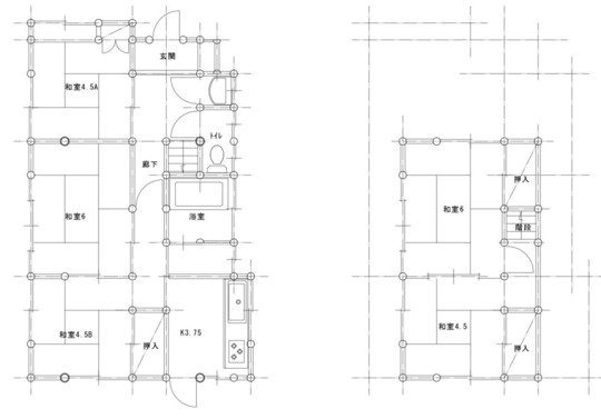
品川区 K様邸 既存平面図

戸建てリノベーション前平面図

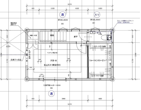
品川区 K様邸 新規平面図

1階 戸建てリノベーション後プラン

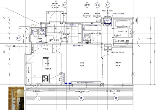
品川区 K様邸 新規平面図

2階 戸建てリノベーション後プラン

既存図面は昔ながらの和室で何部屋も区切られた作りになっていました。リフォーム後はLDKを大きく取り、残りのスペースで和室・洋室を造りました。K様は極力家族がLDKを通ってお部屋に入る様にしたいとおっしゃられてました。

K様の再建築不可戸建てのフルリフォーム&フルリノベーション工事はこうしてはじまりました。

2 戸建てリノベーション着工

2-1 足場・解体

解体は手壊し作業

いよいよ本格的な工事がスタートする段階として、まずは足場を組んで解体に着手し、建物をスケルトン(構造体のみ)状態へと進めます。築65年の古家を性能向上フルリフォームしようとすると、解体時点で「これは想定外だった」と思わざるを得ない場面がたびたび出現するものです。ここでは「足場・手壊し解体」から「解体後の躯体チェック」までを取り上げ、再建築不可や築年数が長いなどの特殊事情を抱える物件であっても着実に着工を進め、後悔や追加費用のリスクを抑えるための具体的なノウハウを解説します。

解体のポイント:

  • 安全第一を確保しながら足場を組み、古家を解体する際の手順と注意点を理解し、施工中のトラブルを防ぐ
  • 解体後に露わになる躯体(基礎・梁・柱など)をどうチェックし、どのような項目で補修や補強が必要かを的確に判断するポイントを把握する
  • 「耐震等級3」や「断熱等級6(BEI0.7)」「HEAT20 G2対応」といった高い性能を目指すためにも、この段階でどれほど丁寧に現場を観察し、調整を加えるかが重要であることを再認識する

足場・手壊し解体


リノベーション工事を始めるにあたっては、まず職人が安全に作業できる足場の設置からスタートし、続けて既存の外壁や内部を解体して建物をスケルトン状態へ導きます。築65年の古家では、解体する外壁材が経年劣化で脆くなっていたり、構造が増改築の繰り返しで複雑化している場合も多く、一気に重機を使うのが難しいケースも珍しくありません。


 

 足場構築と安全管理

  1. 狭小地や再建築不可物件ならではの足場計画
    建て替えが不可能な立地条件であることが多い再建築不可物件では、路地が狭かったり隣家との境界が極端に近いケースが多々あります。よって足場を組むだけでも以下のような問題が起こりがちです。

    • 隣家との境目にほんの数十センチしかない:足場を組むために隣家の敷地を一時的に借りる必要がある場合、事前の協議が欠かせません。
    • 道路が狭く大型トラックが侵入不可:資材や廃材を大きな車両で運べず、小型車や人力での搬出が必要になるため、工期が延びる可能性があります。
    • 高さ制限や電線との干渉:都市部の狭い路地でよくあるのが電線と足場の干渉リスク。電力会社に事前相談し、カバーを施して作業を進める場合もあります。

    こうした事情を踏まえ、解体工事専門の業者と連携して最適な足場レイアウトを検討し、施主には「通常よりも時間とコストがかかる可能性がある」ことを正直に伝えます。実際、足場がしっかり組めない状態で解体や補強工事を進めると、職人の安全だけでなく、仕上がり品質にも大きく影響が出ます。

  2. 安全管理と近隣配慮
    解体時は騒音・埃が避けられず、近隣からの苦情が出やすい段階でもあります。したがって足場に防塵シートを張って粉塵を抑え、作業時間帯を朝8時~夕方5時までと限定するなど、迷惑を最低限にする努力が必要です。特に古い外壁材(モルタルやスレート瓦など)は崩れやすく、足場が不安定だと落下物事故を招くリスクがあります。

    • 防塵対策:シートを二重にする、散水しながら作業するなどで埃の飛散を抑制
    • 騒音管理:重機を使う時間を決める、休日は作業をしないなど
    • 看板や警備員の配置:特に道路と敷地の境界が曖昧な場合、通行人や自転車が誤って入ってこないよう誘導する

    事前に近隣へあいさつ回りをするのも効果的です。「築65年の古家をフルリフォームしますので、〇月下旬~〇月末までは解体作業が続きます。騒音と埃でご迷惑をおかけしますがご協力お願いします。」といった一言があるだけでも、トラブルを防ぎやすくなります。


 

 手壊し解体の具体的工程とトラブル対策

  1. 解体工事の基本と“手壊し”を選ぶ理由
    解体には重機解体と手壊し解体がありますが、再建築不可物件や狭小地の場合、重機が入れないため手作業で少しずつ外壁や内部を壊していくしかないケースが多いです。重機解体より時間も費用もかかるものの、建物を局所的に崩しながら解体できるため、想定外の構造(増改築の痕跡やシロアリ被害)が見つかった際にも柔軟に対応できるメリットがあります。

    • 外壁材の除去:まずは屋根材や外壁材を1枚ずつ剥がしていく。瓦やスレートを順に取り下ろし、下地材の状態をチェック。
    • サッシ・建具の撤去:窓やドアを外し、金具や枠材を分別。
    • 室内造作の解体:内装材(フローリング・畳・壁紙など)を引き剥がし、仕切り壁を骨組みだけにする。
    • 廃材分別:リサイクル法に従い、木材・プラスチック・金属などの素材ごとに分別し、トラックで搬出。

    築65年の家では、過去の増改築で入れられた柱や梁、壁板が普通の解体方法では外れにくい場所に隠れていることも少なくありません。あちこちを慎重に壊しながら構造が崩れないよう支柱を残しつつ、進めるわけです。

  2. 想定外のリスクと対処
    a) 腐朽や白蟻(しろあり)の跡:解体途中で柱や梁がスカスカに食われている事実が発覚し、元々の補強計画を大きく変更せざるを得ないことがあります。こうした場合、解体工事を一時中断して、追加補修費と工期延長を施主に説明し、承諾を得ます。
    b) アスベスト含有建材:古いスレートや吹き付け材にアスベストが使われている可能性があります。これが見つかった場合、許可を持った専門業者が飛散防止策を施しながら撤去しなければならず、作業費が急増するリスクも考えられます。事前調査で完全には分からないケースがあり、手壊ししながら発覚する場合もあります。
    c) 予想外の増築状態:壁を壊してみたら筋かいが入っていない、基礎が途中で切れているなど、増改築時に“つぎはぎ”のような施工が判明することもしばしば。補強計画を練り直す必要が出てきた場合、解体予算だけでなく大工工事や基礎補強予算が上乗せされるかもしれません。

  3. 廃材の搬出と工期の管理
    狭い路地や敷地の場合、廃材をいったん1階の室内に仮置きし、小分けにしてトラックへ積み込むことも多いです。手壊し解体だと、一度に大量の廃材が出るというより毎日少しずつ搬出する形となり、作業効率が下がりがち。結果として工期が2週間以上延びるケースもあり得ます。
    施主には「この解体工程で多くの追加リスクが発覚する可能性がある」ことを再度念押しし、予備費を予算内に設定しておくようアドバイスします。実際、高い耐震等級やHEAT20G2相当の断熱性能を得ようとすると、後から基礎ごとやり直す必要があるなど、大掛かりな追加工事が避けられない場合があるからです。

手壊し解体を終え、建物がほぼスケルトン化すれば、次に「解体後の躯体チェック」で現状を再確認します。特に耐震等級3や断熱等級6を狙う場合、ここで不具合を発見して修正するのが最後のチャンスといっても過言ではありません。いかに丁寧に解体し、基礎・柱・梁・壁の状態を正確に把握するかが、後悔しないリノベーションへの第一歩となります。


 

品川区 K様邸 解体
品川区 K様邸 解体
品川区 K様邸 解体
品川区 K様邸 解体
品川区 K様邸 解体
品川区 K様邸 解体

解体後の躯体チェック

手壊しによる解体工事が終わり、産業廃棄物の廃棄が完了、大工による仮補強が終わると、初めて躯体のチェックが可能となります。

K様邸は築50年を超える建物となります。空き家であった期間が長かったこともあり、傷みはあると予測はしておりました。
使える躯体と使えない躯体を選別してく作業となります。

2.2 解体後の躯体チェック

セクションの概要:
解体作業が終わり、柱や梁、基礎が露わになった段階こそ、建物の本当の姿を知る絶好の機会です。築65年もの歴史を経た家では、「想定通り大きな欠陥はなかった」という例はむしろレアかもしれません。本セクションでは、どのような項目をチェックし、見つかった問題をどう補修・補強するのかを解説します。耐震等級3やHEAT20G2水準の断熱性能を求めるほどに、躯体の精密な診断がリノベ成功の要となるのです。


2.2.1 露わになった主要構造部の診断ポイント

  1. 基礎の状態
    a) 亀裂(クラック)や浮き:解体時に基礎コンクリート表面が見えると、ヘアクラック程度なら補修で済むが、大きい亀裂が走っている場合は増し打ちや抱き合わせ基礎など強力な補強が必要。
    b) 無筋基礎かどうか:築年数的に鉄筋が入っていない“無筋基礎”の可能性が高く、耐震等級3を目指すなら、そのままでは不十分。刺し筋工法や増し基礎で補強する。

  2. 柱・梁のチェック
    a) 腐朽・シロアリ被害:玄関土間や浴室周辺で土台や柱が著しく腐っていることが多い。大引や根太が虫喰いだと補修範囲が広がるが、無視して進めれば耐震補強しても本末転倒になる。
    b) 増改築部分のつなぎ目:昭和期に増築した箇所が接合金物なしで継ぎ足されていることもあり、解体後に梁や柱が浮いた状態で発覚する場合がある。そうした箇所は抱き合わせ補強や新設材の追加など大掛かりな対処を要する。

  3. 壁や筋かいの配置
    壁や筋かいがほとんど入っていなかったり、設置場所が不均等で耐震性が極端に低い家も存在します。耐震等級3まで上げるには、この段階でどの壁を耐力壁に充てるかを決め、後の大工工事で筋かいや構造用合板を導入する準備をします。もし間取りを大きく変えるなら耐震補強の追加設計が必須になるため、解体後の状況に応じてプランを再調整します。

  4. 天井裏や小屋組(こやぐみ)の状態
    天井を剥がすと見える小屋裏や屋根下地も、断熱工事や耐震工事に直結するポイント。梁が細くてたわみが大きいなら抱き合わせ材を増設、隅棟や棟木の接合が不十分なら専用金物で補強するなど、ここでしかできない処置があります。


2.2.2 問題発見時の補修・補強とプラン再調整

  1. 追加工事と予備費の使い方
    解体後に想定外の劣化や構造欠陥が見つかれば、どうしても追加工事費が発生しがちです。このとき、施主とのコミュニケーションが鍵を握ります。

    • 写真と数値で説明:たとえば「土台が10㎝ほどシロアリに食われています」「梁に幅5㎜の亀裂が入っています」など、視覚的・数値的情報を提供する。
    • 優先順位の再確認:耐震や断熱が最重要なら、内装やキッチンのグレードを下げてでも補強に予算を回すかどうかを施主と協議する。
    • 工期の延長リスク:追加補修が大がかりなら工期も延びるため、仮住まい費用などの問題を一緒に考え、スケジュールをアップデートする。
  2. 耐震等級3やHEAT20G2をクリアするための微調整
    a) 梁補強や金物追加:解体後に「この梁は思ったより細い」と判明すれば、計画より太い抱き合わせ補強をするなど、再設計が必要となる。N値算定や構造計算のシミュレーションを練り直し、ベストな補強案を導く。
    b) 断熱施工の下準備:壁内に入る電気配線や配管のルートを解体後に組み直す場合がある。断熱材を充填しやすいよう、筋かいや金物との位置関係を現場で細かく調整し、気密シートを貼るスペースも確保する。

  3. 完了検査と記録
    解体後の躯体チェックで問題を洗い出し、補修や補強を施した箇所は、必ず写真やメモを取って記録に残します。後で「補強したはずの梁がどれか分からない」などとなると、追加の点検やリフォーム時に混乱を招くため、施工者は工事写真を時系列で施主に共有し、できればクラウドなどで管理する方法が望ましいです。施主も自分の家の歴史を把握できるメリットがあります。

このように、解体後の躯体チェックはリノベーション全体の成否を左右する重要なステップです。耐震等級3やHEAT20G2レベルの断熱性能を実現したい場合、さらに入念な確認と計画再調整が求められます。追加費用がかかったとしても、ここでしっかり補修・補強を行っておくことで、後悔しない家づくりが可能になるという点を強調したいです。後の工程(基礎補強や大工工事)へスムーズに移行するために、施主と施工者が互いに情報を共有しながら柔軟に対応する姿勢が欠かせません。

品川区 K様邸 躯体チェック
品川区 K様邸 躯体チェック
品川区 K様邸 躯体チェック
品川区 K様邸 躯体チェック
品川区 K様邸 躯体チェック
品川区 K様邸 躯体チェック

大事な構造部のすべてが目視可能となるスケルトンリフォーム

内部の天井・壁・床だけでなく外壁まで解体しスケルトン状態(躯体残し)にする戸建てリノベーションの最大のメリットはこのような重要な主要構造部のすべての状態が目視でわかることになります。

フルリノベーション後は、これらの構造上の弱点をすべて修正し補強することで新築と同水準、もくしくはそれ以上の建物性能をもつ構造躯体へ甦らせることが可能となります。

2-2 基礎

解体後の躯体チェックを経て、築65年という長い歴史を持つ木造住宅の基礎部分をしっかりと補強する段階です。とりわけ、無筋基礎(鉄筋が入っていない基礎)が見つかった場合、耐震等級3を目指すには“抱き合わせ基礎”という増し打ち工法が欠かせません。ここでは、配筋(無筋基礎への刺し筋や増し基礎)とコンクリート打設を中心に、どのような工程を踏むのか、何をチェックすべきかを具体的に解説します。再建築不可物件や古家で「他社では無理」と言われた性能向上リノベーションを成功させるために、この基礎補強がいかに重要なキーポイントとなるかを読み解いていきます。

 


 

 配筋(無筋基礎への抱き合わせ基礎補強)

無筋基礎は、旧耐震基準に建てられた築年数の長い木造住宅では大半のケースになりここをしっかり正しい補強ができない会社が多いです。このままでは現行基準の耐震性能はおろか、増改築時の接合不足などで亀裂・沈下を招きかねません。ここでは、既存の無筋基礎に鉄筋を“あと施工”して新設コンクリートを増し打ちし、基礎を一体化させる「抱き合わせ基礎補強」の具体的な工程と注意点を示します。


 

 無筋基礎が明らかになったときの対応策

  1. 調査と判断
    解体後の基礎表面を見て「鉄筋の端が出てこない」「コンクリートを割っても鉄筋が入っていない」と判明した場合、耐震等級3を視野に入れている場合“抱き合わせ補強”となります。
    増し基礎する前に、既存基礎の表面に大きなクラックや剥離があるかどうかを確認。劣化が酷い部分は一部削り取り、モルタルなどで下地を均しておく必要があるかもしれません。

  2. 刺し筋(あと施工アンカー)
    新しい基礎と既存基礎を一体化させるには、あと施工アンカー(ドリルで穴を開け、エポキシ系接着剤で鉄筋を挿入)を用いて“刺し筋”を行います。

    • 穿孔(せんこう):設計図に基づいて一定ピッチ(200㎜)で穴を開け、既存基礎内部に鉄筋が差し込めるスペースを確保。
    • 清掃とエポキシ注入:穴の内部をエアブローやブラシで掃除し、エポキシ接着剤を充填してから指定の長さの鉄筋を挿入。
    • 硬化時間の管理:エポキシ系は温度や湿度により硬化速度が変わるため、規定の養生時間を守り、動かさないようにして十分な接着強度を確保します。

こうして刺し筋が完了すれば、新たに組む配筋(鉄筋)と既存基礎が連結され、新旧基礎を一体化できる下準備が整います。


 

 新設配筋の組み立てと型枠準備

  1. 配筋計画:かぶり厚と定着長さ
    耐震等級3相当の基礎をめざすなら、主筋(縦筋)・あばら筋の配置やかぶり厚を正確に守らなければなりません。主筋にD13を使い、あばら筋D10で@200㎜ピッチで組み設計者が定めた図面のとおりに施工。

    • かぶり厚:30㎜や40㎜などの基準があり、施工中にスペーサーを噛ませて確保。かぶりが薄いとコンクリート表面にひび割れが生じやすくなり、鉄筋が腐食しやすい。
    • 定着長さ:刺し筋として挿入した鉄筋が新設鉄筋と重なる部分を結束線でしっかり固定し、地震時の引抜きに抵抗する一体性を実現。
  2. 型枠組みと段差処理
    既存基礎の高さや幅が部分的に異なる場合、型枠をそのまま組むと隙間が生じるかもしれません。そこで、

    • 段差のある箇所に補修モルタルを打ってならす
    • 型枠に合わせて基礎表面を一部削る
      といった調整をして“すき間”や“浮き”が生じないようにします。躯体の外周部だけでなく、内側の独立基礎や玄関ポーチ下など、築65年の増改築で複雑になっている箇所まで抜かりなく型枠をセットすることが大切です。
  3. 天候と養生計画
    コンクリートを打つ前、配筋組や型枠組みの段階で大雨が続くと、型枠内に水が溜まったりエポキシが硬化不良を起こす危険があります。施工管理者は天気予報を見ながら打設日を調整し、雨除け養生をするか、気温・湿度に応じた工程を見直すなどの工夫をします。
    また、外気温が低すぎる場合は凍結防止対策、真夏の猛暑なら急乾燥を防ぐ散水養生などが必要になるため、現場で柔軟に対応できるチーム体制を敷いておくのが理想です。


 

コンクリート打設

刺し筋と配筋が完了し、型枠を組み終えたら、いよいよ新たな基礎となるコンクリートを打設する工程に入ります。無筋基礎との抱き合わせ基礎補強においては、コンクリートを流し込む際のバイブレーター作業や水セメント比の管理が特に重要となり、仕上がりの強度や耐久性を左右します。

 

 

無筋基礎を抱き合わせ補強する場合、既存基礎と新設基礎がしっかり密着するためには流動性と強度のバランスが大切です。コンクリートを型枠内へ流し込む際、バイブレーターを適切に挿入・振動させて気泡を抜き、コンクリートが均一に行き渡るようにします。

 

基礎補強は地味に見えますが、築65年の古家を「断熱等級6・耐震等級3」というレベルへ引き上げる決め手となる非常に重要な工程です。ここを確実に施工することが、後悔しないリノベーションの土台そのものと言っても過言ではありません。この工程を経て、いよいよ屋根工事や大工工事、断熱工事へと進んでいき、施主が夢見る快適・安全な住まいの姿が徐々に具体化していきます。

品川区 K様邸 基礎
品川区 K様邸 基礎
品川区 K様邸 基礎
品川区 K様邸 基礎
品川区 K様邸 基礎
品川区 K様邸 基礎
品川区 K様邸 基礎
品川区 K様邸 基礎
品川区 K様邸 基礎
2-3 屋根工事

築65年の古家を性能向上フルリフォームするうえで、屋根の改修は避けては通れない重要なポイントです。特に耐震等級3を目指す場合、屋根が軽量化・高耐久化されているかどうかで耐震性能に大きな差が出ます。また、断熱等級6(BEI0.7)といった高い断熱性能を得るにあたっても、屋根断熱や小屋裏通気との連携が肝要です。


 

ルーフィング工事

 

  1. 既存屋根材の種類と撤去
    築年数の古い住宅では、日本瓦やスレート(コロニアル)、トタンなど、時代によって異なる屋根材が使われていることが多いです。耐震等級3を目指すなら、瓦屋根の重量がネックになるケースがあり、より軽量な材料への葺き替えを検討することも少なくありません。
    屋根材を撤去する際には落下物対策や近隣への騒音・埃の配慮が必要です。特に足場上の高所作業となるので安全管理を徹底し、破損瓦や廃材を分別・搬出します。

  2. 野地板・垂木の状態チェック
    屋根材を外したら、その下にある野地板や垂木を確認します。腐朽やシロアリ被害、湿気による反りが見つかれば交換や補修を実施。この段階でしっかり補修しないと、新しい屋根材を乗せても内部で腐朽が進み、将来の雨漏りや耐久性低下につながる恐れがあります。
    また、増改築で屋根形状が複雑になっている場合、野地板同士の段差や勾配の違いが生じることがあるので、可能な限り平滑になるよう大工が調整し、ルーフィングを貼りやすい下地を整えます。K様邸は野地を増し打ちしました。


 

ルーフィング材の選定と施工手順

  1. 改質アスファルトルーフィングなど防水性能の高い材を選択
    近年では、改質アスファルトルーフィングやゴムアスルーフィングなど、耐久性や防水性を強化した材料が主流です。築65年の家を高性能リフォームするなら、ルーフィングにもある程度良質な製品を選ぶのがおすすめです。

    • 耐久年数:通常のアスファルトルーフィングより改質タイプは耐用年数が長い
    • 施工性:伸縮性に優れ、瓦から金属屋根への葺き替えにも対応しやすい
  2. ルーフィング貼りの要点
    a) 重ね代の確保:ルーフィングは上下左右に決まった重ね幅(100~200㎜程度)を確保し、そこから雨水が浸み込まないようシールテープや釘の打ち方にも注意します。上側のルーフィングが下側を覆うようにし、水が下方へ自然に流れ落ちる仕組みを崩さないことが鉄則です。
    b) 釘やステープルの打ち方:ルーフィングを固定する際、使用する釘やステープルは防水キャップ付きのものを推奨。通常の釘だと隙間から雨水が染みる可能性があるため、できるだけ施工マニュアルどおりの製品を使います。
    c) 棟や隅棟、谷部分の処理:屋根の頂点(棟)や、斜面が交わる谷部分は雨水が集中しやすいため、ルーフィングを二重貼りにしたり、専用の谷板金を設けるなどして徹底的な雨仕舞(あまじまい)を行います。

  3. 断熱等級6との関連
    ルーフィング自体が断熱効果をもたらすわけではありませんが、きちんと貼ることで屋根裏に雨水や湿気が侵入するリスクを下げ、断熱材が濡れて性能低下を起こすのを防ぎます。HEAT20G2レベルの断熱性能を狙うなら、天井断熱や小屋裏断熱を併せて施工するのが定石であり、その前提としてルーフィングの防水・防湿性能が欠かせません。


仕上げ工事(採用:ルーガ雅)


ルーフィングを貼り終えたら、いよいよ仕上げ材の取り付けに進みます。今回は「ルーガ雅」という軽量かつ高耐候性を備えた屋根材を採用し、瓦の風合いと金属屋根の機能性を両立した仕上がりを目指します。


 

ルーガ雅とは

  1. 軽量×高耐久×瓦の意匠
    ルーガ雅は、フルフラットなデザインでありながら、一般的な陶器瓦より大幅に軽量化された製品として知られています。築古物件を耐震等級3へ向上させる場合、屋根の軽量化は上部荷重を減らし、地震力を低減するうえで大きなメリットがあります。

    • 割れやすさ:普通の瓦に比べて衝撃に強い加工が施されている
    • 色・デザイン:伝統的な和瓦の外観を保ちつつ、シンプルかつモダンなテイストにも合わせやすいラインナップを持つ
  2. 施工しやすいサイズ設計
    ルーガ雅は瓦一枚あたりのサイズが安定しており、職人がレイアウトを組みやすいのが特徴です。また、従来の瓦よりも1/2~1/3程度の重量になっているため、高所での作業性が向上し、足場が揺れづらく安全面でもプラスになります。


 

 

ここまでで、築65年の家でも屋根を丁寧に葺き替えれば、高性能な耐震&断熱改修と見事に調和することが分かります。次の項では大工工事や断熱工事が控えており、それらと連携してこそ住宅全体で耐震等級3・断熱等級6(BEI0.7)を現実のものとできるのです。他社で「無理」と言われた案件でも、屋根の軽量化としっかりした雨仕舞を確保できれば、リノベーション成功への大きな一歩を踏み出せると言えるでしょう。

品川区 K様邸 屋根工事
品川区 K様邸 屋根工事
品川区 K様邸 屋根工事
品川区 K様邸 屋根工事
品川区 K様邸 屋根工事
品川区 K様邸 屋根工事
2-4 木工事

築65年の古家を耐震等級3、そして断熱等級6(BEI0.7)レベルへと性能向上させるうえで、基礎補強や屋根葺き替えが終わった段階でも、まだ大きな山が残っています。それが「大工工事」です。特に「梁補強」「N値算定に基づく耐震金物の設置」「耐力壁の設置」は、建物全体の耐震性能を劇的に左右する最重要な工程です。他社では「無理」と言われたリフォーム案件でも、丁寧な大工工事を行うことで新築同等以上の強度や快適性を得ることが十分に可能になります。

 

 


 

 梁補強

  1. 梁の状態把握:腐朽・たわみ・シロアリ痕
    解体後、梁が露わになると、その断面寸法が現行基準を満たさないことや、シロアリや湿気による腐朽が局部的に進んでいるケースが見つかるかもしれません。梁がたわんでいる場合は、ジャッキで数ミリ持ち上げてから新設梁を抱き合わせる「抱き合わせ補強」がよく用いられます。

    • 表面のひび割れ:荷重に耐えきれず経年でひび割れが入っているか。割れ幅が大きいと内部強度にも影響が及んでいる可能性が高い
    • 増改築の接合部:過去のリフォームで新旧梁を強度不足のまま接合した痕跡がないか

 

 N値算定に基づく耐震金物の設置


「N値算定」とは、木造住宅の耐震性能を簡易かつ実践的に確認する方法の一つで、各柱や壁が地震時に受ける力を計算し、それを満たすだけの金物や耐力壁を設置することで耐震性能を大きく向上させます。

 

 N値算定の概要と柱位置の再確認

  1. N値算定とは
    N値算定は詳細構造計算ほど複雑ではないものの、在来工法で改修する際に非常に有効な手法です。各柱の断面・壁量、建物の重さと地震力を照らし合わせ、必要な耐力壁や引抜金物(ホールダウン金物)の数と位置を求めます。特に増改築歴の多い古家では、図面と実際の柱位置が異なることも多いため、解体後の状態をもとに再度N値算定を取り直すケースも多々あります。

  2. 耐震等級3を見据えた計画
    耐震等級3は「建築基準法の1.5倍の耐震性能」を意味し、通常のリフォームよりも高い壁量と金物配置が必要となります。

    • ホールダウン金物:開口部が大きい箇所や隅角部の柱には引抜力が集中するため、ホールダウン金物を追加設置して基礎や梁と連結
    • 筋かいプレート・コーナー金物:筋かいを留めるための金物を用い、接合部の強度を確保
    • 床剛性・小屋組の補強:床や屋根の水平構面も重要で、必要に応じて火打ち金物や構造用合板を追加し、箱型剛性を高める

 

 金物の種類と施工

  1. ホールダウン金物の取り付け
    a) 柱脚・柱頭の位置決め:N値算定で金物が必要とされた柱に対し、足元(柱脚)をアンカーボルトで基礎に固定する金物をつけ、上部(柱頭)では梁や桁に専用の金具を噛ませて引抜力に抵抗。
    b) ボルト穴の精度:梁や柱に穴を開ける際、図面に沿った正確な位置と径が求められ、ずれると強度が低下。大工が慎重に下穴をあけ、アンカーボルトを通してナットでしっかり締め付ける。
    c) 基礎との連動:基礎補強(3章)で刺し筋やアンカーボルトを打ち込んでいたなら、そのボルトを上手く活用してホールダウン金物と連結させる。既存基礎の状態に合わせて変則的な取り付けが必要な場合は、補助プレートなどを追加する。

  2. 筋かいプレート・コーナー金物
    a) 筋かいプレート:筋かい端部を柱や梁に接合するプレート金物で、地震時の横揺れに対抗する要。釘やビスのピッチ・本数が図面規定どおりに施工されているか、管理者がこまめにチェックすることが大切。
    b) コーナー金物:柱と梁の角部に取り付けてせん断力を受け止める金物。特に出隅や内隅が多い間取りでは配置に注意し、邪魔になる配管や配線との取り合いを調整する。


 

耐力壁の設置


耐力壁は、地震などの横揺れに対し、建物が“箱”としての剛性を発揮するために欠かせない要素です。古い在来工法の家には筋かいが入っていなかったり、増改築時に壁が削られ、必要量が不足しているケースが少なくありません。筋かいの代わりや補完としてノボパンを張り、面全体で横力に抵抗する方法が広がっています。とくに断熱改修や配管スペースを確保しやすい利点があり、高倍率の耐力壁として採用されることが多いです。合板の四周を柱・梁・土台・横桟などにしっかり当て、釘を一定ピッチで打ち込む。隣接する合板同士の継ぎ目を柱や間柱の上で揃え、隙間が生じないよう管理。釘のめり込みや斜め打ちがあると耐力が落ちるため、現場監督が定期的に検査します。設計した壁倍率と条件によって釘ピッチが変わるため細心の注意を払います。

 


このように、梁補強・耐震金物設置・耐力壁の施工という三つの大工工事が揃うことで、築65年の古家でも“骨格”を新築同等、あるいはそれ以上の耐震性能へ近づけることが可能です。他社で「無理」と断られたようなリフォーム案件でも、解体後に適切な補強戦略を立て、現場で大工や監督が連携しながら着実に施行すれば、耐震等級3は十分射程圏内です。この後は断熱工事などに進み、断熱等級6(BEI0.7)を含めた総合的な性能向上がいよいよ最終段階へ向かいます。

品川区 K様邸 木工事
品川区 K様邸 木工事
品川区 K様邸 木工事
品川区 K様邸 木工事
品川区 K様邸 木工事
品川区 K様邸 木工事
品川区 K様邸 木工事
品川区 K様邸 木工事
2-5 断熱工事

築65年の古家を「断熱等級6(BEI0.7)」「耐震等級3」へと引き上げるには、屋根や基礎の補強だけでなく、床・壁・天井の断熱性能を飛躍的に高めることが欠かせません。とりわけ、古い木造住宅では隙間風や経年による断熱材の劣化が進んでいる可能性が高く、断熱工事の出来・不出来が夏冬の快適性から光熱費、さらには建物寿命にまで大きく影響します。ここでは壁・天井という三方向の断熱施工を通じて、築年数の長い家でもHEAT20G2相当の高断熱住宅へ再生できる手順とポイントを解説していきます。

 


 

 床断熱(ミラネクストラムダ75㎜)

木造住宅で冬場の冷えを最も実感しやすいのが「床下」からの冷気侵入です。とくに築数十年を経た古家では、床下に断熱材が入っていないか、入っていても断熱性能が低い素材で隙間だらけ……ということが少なくありません。K様邸では「ミラネクストラムダ75㎜」という高性能断熱材を採用し、気密シートとの併用で床断熱を大幅に向上させました。


 

 

壁断熱(パラマウント硝子の太陽SUN100㎜)


K様邸は柱が3寸となっており、薄い壁厚の中で、断熱性能を担保する必要がありました。木造住宅の熱損失は、壁から逃げる割合が相当に大きく、築古物件は隙間風や壁内部の結露問題も深刻です。パラマウント硝子が製造する「太陽SUN100㎜」という断熱材を活用し、高い断熱効果と結露リスク低減を両立しました。防湿気密シートを貼り隙間を完全にふさぎます。コンセント・スイッチボックスや配管が貫通する部分は切り込みを入れ、気密テープ等で補修。壁断熱が万全なら、真冬でも壁面が外気に近い温度にならず、室内の暖気が逃げにくい空間を作り上げられます。また、夏場も外部の熱を遮断し、冷房効率を高める効果が期待できます。築65年の古家でも、適切な施工を行えば室内環境が劇的に改善し、カビや結露の悩みから解放されやすくなります。


 

 天井断熱(硬質30倍発泡ウレタン150㎜2度打ち)


K様は抜け感のある勾配天井を希望されました。ここでは「硬質30倍発泡ウレタン」を150㎜厚で2度打ちしました。硬質30倍発泡ウレタンは、現場で液状の原料を吹き付けると発泡・膨張して、屋根面や天井裏の複雑な形状にもピタリとフィットするのが最大の強みです。外気との隙間がほとんどできないため、床や壁の断熱材ではカバーしにくい勾配屋根や隅棟周りを保温しやすく、断熱等級6に必要な高い断熱性能を発揮しやすいとされています。一気に150㎜を吹き付けると硬化不良や表面の焦げ(高温反応)を起こすリスクがあるため、75㎜ずつ2回に分けて吹き付け合計150㎜を達成。

 

こうして床・壁・天井の三方断熱を完成させれば、築65年の古家であってもHEAT20G2相当の断熱等級6(BEI0.7)を狙えるだけの性能を獲得できます。もちろん、施工精度や気密処理が不十分だと期待どおりの効果は発揮されないため、大工や断熱業者が密に連携し、細部をケアする姿勢が重要です。

品川区 K様邸 断熱工事
品川区 K様邸 断熱工事
品川区 K様邸 断熱工事
品川区 K様邸 断熱工事
品川区 K様邸 断熱工事
品川区 K様邸 断熱工事
品川区 K様邸 断熱工事
品川区 K様邸 断熱工事

品川区K様邸 断熱データ

場所 製品 断熱グレード
床断熱材 押出法ポリスチレンフォーム ミラフォームラムダ F(熱伝導率0.022W/(m・K))

壁断熱材

高性能グラスウール パラマウント硝子 太陽SUNR C(熱伝導率0.035W/(m・K))
天井断熱材

発泡硬質ウレタンフォーム アキレスエアロンFR-FO

E(熱伝導率0.026W/(m・K))
玄関ドア YKKAP イノベストD50 防火 A(ZEHレベル)
サッシ

YKKAP APW330/APW430 防火 樹脂窓

P~A(ZEHレベル)

HEAT20-G2リフォームとは?

<HEAT20とは?>

HEAT20とは、「2020年を見据えた住宅の高断熱化技術開発委員会」という団体名です。

その団体が設定しているのが、屋根や外壁、床、窓などの「外皮」と呼ばれる部位の断熱や遮熱などといった性能の評価基準であり、G1とG2の2段階あります。G2の方がより高性能な性能を有する外皮となっています。

<省エネ基準の家とHEAT20の家の違い>

HEAT20-G2の家は、省エネ基準の家の30~50%の暖房費を削減できる

 

「増改築.com®」によると、断熱リフォームの基準として、平成28年の建築物省エネ法基準に相当するUa値0.87が等級4(最高等級)とされています。しかし、この基準だけでは、真の省エネ住宅とは言えません。実際に、日本の断熱等級4は、2020年の建築基準法で努力義務とされているに過ぎません。しかし、2022年4月には断熱等級5が新設され、さらに2022年10月には断熱等級6・7が新設されました。断熱等級6・7は、これまでの断熱等級4と比べて、はるかに高いレベルの断熱性能が求められます。 HEAT20の計画においては、ZEH基準のUa値0.6を基準としています。これは、外壁105mm、U値2.33の樹脂アルミ複合サッシ窓で、天井の断熱材は105mmあれば実現できるとされています。さらに上位の「HEAT20 G1」グレードでは、6地域でUa値0.56となり、このレベルでは断熱環境を体感できるとされています。

最上位の「HEAT20G2」グレードでは、5地域でUa値0.46となっています。

断熱改修(温熱改修)リフォームを成功させるためには、これらの基準や計画をしっかりと理解し、適切な施工方法を選択することが重要となります。

2-6 外壁工事

木造住宅において、外壁は単なる意匠や美観の問題だけでなく、耐久性や断熱性、雨仕舞に直結する重要な要素です。特に築65年の古家を性能向上させる場合、構造補強や断熱改修をいくら頑張っても、外壁に問題があれば雨漏りや結露のリスクが高まり、住まいの寿命を縮める可能性があります。本章では、耐震等級3や断熱等級6(BEI0.7)を狙う施工事例として、透湿防水シート・通気胴縁・そして仕上げ材に「エンエクセラード16」を用いました。外壁を性能向上させるうえで欠かせない要素が「透湿防水シート」と「通気胴縁」、そして最終的な仕上げ材となるサイディング(ここではエンエクセラード16)との組み合わせです。この際に窓周りの止水に最も注意を払います。


外壁工事を終えることで、建物の外装面からの雨水侵入リスクや断熱欠損が大幅に減り、耐震等級3・断熱等級6(BEI0.7)の内部性能を存分に発揮できる環境が整います。実際、「他社では無理」と言われた築古物件でも、こうした透湿防水シート+通気胴縁+サイディング上張りの工法を丁寧に実施すれば、快適性と耐久性を一挙に高められるのです。この後は造作工事や内装仕上げなどで室内が整い、最終的な竣工へと向かうことになります。

品川区 K様邸 外壁工事
品川区 K様邸 外壁工事
品川区 K様邸 外壁工事
品川区 K様邸 外壁工事
品川区 K様邸 外壁工事
2-7 造作工事

構造部の構造補強が終わると、造作工事に入ります。

品川区 K様邸 造作工事
品川区 K様邸 造作工事
品川区 K様邸 造作工事

3 戸建てリノベーション竣工

長年にわたって手を入れられていなかった築65年の古家が、耐震等級3・断熱等級6(BEI0.7)という高い基準を満たすまでに生まれ変わり、無事に竣工を迎えました。振り返れば、解体や基礎補強、屋根の葺き替え、さらに大工工事や断熱工事など、さまざまな工程を経て想定外のトラブルや追加対応もありましたが、最終的には「他社では無理」と言われた性能向上を実現できたのは、現場と設計の密な連携と、何より施主の理解と協力があってのことです。


  =外観==  

Before

品川区 K様邸 既存

他社ではなかなか対応してもらえませんでした。

After

品川区 K様邸 竣工

無事ご満足いただくことができました。

Before

品川区 K様邸 既存玄関

施工前はクラシックな木の玄関ドアでした

After

品川区 K様邸 竣工玄関

施工後はYKKAPイノベストD50防火ドア


  == 1F LDK ==  

Before

品川区 K様邸 既存LDK

施工前は和室でした

After

品川区 K様邸 竣工LDK

施工後は対面キッチンのLDKに。木製建材はパナソニックベリティスです


  == 1F 水まわり ==  

Before

品川区 K様邸 既存浴室

施工前はタイル張りの在来工法のお風呂でした

After

品川区 K様邸 竣工浴室

施工後の浴室はTOTOサザナ1616サイズ

品川区 K様邸 竣工キッチン

キッチンとカップボードはTOTOザ・クラッソ

品川区 K様邸 竣工洗面

化粧台はTOTOエスクア 広々カウンターです

品川区 K様邸 竣工トイレ

トイレはハイウィルオリジナルトイレ


  == 居室 ==  

品川区 K様邸 竣工居室

折上天井にはライン照明を設置して間接照明としました

品川区 K様邸 竣工居室
品川区 K様邸 竣工階段

4 補助金利用

品川区K邸様の工事では、国の補助金「こどもエコすまい支援事業」と「先進的窓リノベ事業」、東京都の「既存住宅の・・・」を活用しました。

省エネにつながるエコ住宅設備や、断熱性能の高い断熱材・ドア・窓の設置などに対して交付される補助金です。

 

K様邸の補助金対象工事

エコ住宅設備の設置 給湯器(エコジョーズ)、高断熱浴槽、節水型トイレ、節湯水栓
断熱改修

外壁・床・天井の断熱材、断熱窓、断熱ドア

(断熱窓・断熱ドアは東京都補助金対象)

子育て対応改修 ビルトイン自動調理対応コンロ、掃除しやすいレンジフード、ビルトイン食洗器、浴室乾燥機

 

●K様邸工事に対する補助金交付額は:合計2,264,000円です。

 

5 担当者より
(「増改築.com®」本部ハイウィル株式会社四代目代表稲葉高志)

解体後の段階で発覚した「梁の一部がシロアリの食害」「増改築部分で接合金物が一切なかった」など、当初プランでは想定していなかったリスクが次々と見つかりました。そのたびに、施主への報告と補強案の提示、追加費用や工期延長の協議を行いました。幸いにも、K様がリノベーションの現場や耐震・断熱工法について相当勉強されており、追加工事の必要性を理解していただきやすかったのは大きな救いでした。連絡・相談をタイムリーに行い、写真や資料を使って現場の様子を共有しながら合意形成を図ることが、無駄な摩擦や手戻りを防ぐポイントだったと実感しています。築古物件で再建築不可という立地条件もあり、足場を組む段階から狭小スペースでの資材搬入や解体廃材の搬出に苦慮しました。騒音や埃が近隣に及びやすいので、解体時は二重の防塵シートと散水、作業時間の制限などを徹底し、トラブルを最低限に抑えました。ウレタンの充填には近隣の協力をいただき施工がかないました。基礎補強や大工工事で重たい木材を運ぶ際も、夜間作業を回避して昼間だけ作業するなど、近隣配慮を怠らないように工夫しています。現場での事故ゼロを維持しながら予定の性能をしっかりと形にするには、職人たちの安全意識を高め、一人ひとりが「ミスが許されない現場だ」という共通認識を持つことが大切でした。結果として大きな事故やクレームなく引き渡せたのは、チーム全体の意識の高さによるものでしょう。完成後に冷暖房の効き具合や遮音性が抜群に向上しているのを確認しました。地震への不安が大きかった施主には、耐震改修した梁や金物の写真をお見せし、「ここまでやれば安心ですね」とご納得いただきました。

K様、この度はご依頼をいただき、誠にありがとうございました。

他のリフォーム事例を見る

再建築不可のフルリフォーム&リノベーション

兵庫県神戸市 N様邸

再建築不可リノベーション

東京都杉並区 M様邸

再建築不可 中古住宅リフォーム&リノベーション

東京都目黒区 A様邸

地盤沈下(家の傾き)補正の戸建リノベーション

東京都板橋区 O様邸

戸建てリノベーション・リフォームに関するお問合せはこちら

増改築.comの一戸建てリフォーム専用ホームページに
お越しいただき、誠に有難うございます。
 
増改築.comメンバーは技術集団となり、
他社のような営業マンがおりません。
技術者が直接ご相談にのり問題解決を行います。
 
従いまして、
お客様の方である程度のご要望が整理されました段階、
お悩みが工事内容のどのようなところにあるのか?
ご予算がどの程度絞る必要があるのか?
など明確になった段階でのご相談をお願いしております。
お問合せ・ご相談はお電話・メールにて受け付けております。
メールの場合は以下のフォームに必要事項をご記入の上、
「送信する」ボタンをクリックをお願いします。

代表稲葉高志

戸建てリノベーションの専属スタッフが担当致します。
一戸建て家のリフォームに関することを
お気軽にお問合せください

よくあるご質問
  • 他社に要望を伝えたところできないといわれたのですが・・・
  • 他社で予算オーバーとなってしまい要望が叶わないのですが・・・
  • サービスについて詳しく聞きたいのですが・・・

どのようなお悩みのご相談でも結構です。

あなたの大切なお住まいに関するご相談をお待ちしております。

営業マンはおりませんので、しつこい営業等も一切ございません。

設計会社(建築家様)・同業の建築会社様のご相談につきましては、プランと共にご指定のIw値及びUa値等の性能値の目安もお願い申し上げます。

2026年の大型補助金が確定したことで現在大変込み合っております。

耐震性能と断熱性能を向上させるフルリフォームには6か月~7か月の工期がかかります。

補助金獲得には年内に報告を挙げる必要があることから、お早目にご相談をお願いいたします。(6月着工までが目安

ご提案までに大変お時間がかかっております。ご了承のほどお願い申し上げます。

(5月までの着工枠が埋まりました)・・・2026/03/01更新

※すでにプランをお持ちのお施主様・設計資料をお持ちのお施主様は内容をフォームで送信後、フォーム下のメールアドレスに資料をお送りください。対応がスムーズです。

必須

(例:増改築太郎)

必須

(例:contact@high-will.co.jp)

(例:03-5615-2826)

必須

(例:東京都荒川区西日暮里2-35-1)

(例:築40年)

(例:25坪・100㎡など)

(例:2000万程度など)

  • ※再建築不可のリフォームでは金融機関が限られます。事前審査をお勧めいたします。

    (例:2024年3月くらいに完成希望など)

    必須

    できるだけ具体的にお知らせくださいませ。既存設計資料、リフォーム後のイメージ図等をお持ちであれば下記のメールアドレスより添付をお願いします。

    ※次の画面がでるまで、4~5秒かかりますので、
    続けて2回押さないようにお願いいたします。

    ※次の画面が出るまで、4〜5秒かかりますので、
    続けて2回押さないようにお願いいたします。

    図面や写真等を送信いただく場合、また入力がうまくいかない場合は、上記内容をご確認のうえ、下記メールアドレスまでご連絡ください。

    お電話でのお問合せはこちら

    0120-246-991

    営業時間:10:00~17:00(土日祝日を除く)

    ★YouTube「増改築.comチャンネル」チャンネル登録して新動画解説をいち早くGET!!★
    「増改築.comリノベ診断」であなたに一番ふさわしいフルリフォームを診断!!(動画解説付き)
    ★Facebookページにいいね!を押して最新コンテンツ情報をいち早くGET!!★
    パソコン|モバイル
    ページトップに戻る