戸建フルリフォームなら「増改築.com®」TOP > 施工事例 > 都道府県で探す > 東京都新宿区 > 施工事例 K様 地下室発覚・隣家切り離しを突破。耐震評点1.5・断熱等級5のフルリノベ竣工

再建築不可でも新築以上の耐震性能と断熱性能に生まれ変わる!

隣家との切り離し、地下室の発覚、そして裏打ち工法。狭小地にそびえ立つ“性能向上”の金字塔

新宿区 K様邸

 

本プロジェクトは、密集地特有の「隣家との共有壁」「作業スペースゼロ」という絶望的な物理的制約、さらには解体後に発覚した「未記載の地下室」という構造的時限爆弾を、建築医学的な精密アプローチと特殊工法(裏打ち工法)によって完全解体・再構築し、「上部構造評点1.5(耐震等級3相当)」および「断熱等級5」という要塞級の性能を実現した、21世紀の都市型リノベーションにおける最高峰の成功事例です。

建物概要
名前 K様
場所 東京都新宿区四谷(防火地域・密集地)
築年数 築50年
構造種別 木造一戸建て
家族構成 大人1人
対象面積 13.7坪
特殊工事 隣家との縁切り(切り離し)、地下室の構造補強、外壁裏打ち工法
工期 8ヶ月
価格 2300万

お客様のご要望

K様からのご要望には、新宿という利便性の高い場所で、次世代まで住み継ぐための「根源的な安全性」への渇望が込められていました。

  • 「死なない家」の構築: 密集地ゆえ、震災時の火災や倒壊は即、致命傷となる。評点1.5という「絶対的な強度」を最優先事項とする。

  • 新宿の過酷な環境からの遮断: ヒートアイランド現象による猛暑、都市の騒音、そして冬の底冷え。これらを完全にシャットアウトする「断熱等級5」の確保。

  • 不確定要素の徹底排除: 古い家が抱える「見えない不安(腐食、シロアリ、構造欠損)」を、解体調査によってすべて白日の下に晒し、根治させること。

プランナー 北畠より ~プランニングのポイント~

本件のプランニングは「逆境を性能に変える」という信念に基づき、足場が立たない箇所の防水を担保する「裏打ち工法」の採用と、発覚した地下室を基礎構造の一部として再定義する「構造再設計」が最大の鍵となりました。

四谷のK様邸のような現場は、多くの会社が「建て替え」を勧めます。しかし、現行法で建て替えると、セットバック(道路後退)や法的制限により、今よりも確実に狭い家になってしまいます。「広さを維持し、かつ新築以上の強度を持たせる」。この矛盾する問いへの答えが、外壁まで一度解体しつつも、建築確認申請上の「模様替え」の範疇に留めながら中身を別物に挿げ替える、建築基準法改正前最後となるハイウィル独自の「超高性能フルスケルトン・プログラム」でした。

新宿区K様邸 戸建てリノベーション施工事例テーマカテゴリー

 

  • 中古(住宅)を買ってリフォーム&リノベーション 
  • 耐震等級3相当(上部構造評点1.5以上)リフォーム(性能向上リノベーション)
  • HEAT20-G1リフォーム(性能向上リノベーション)
  • 減築リフォーム 
  • 長屋リノベーション
  • 狭小住宅リフォーム 
  • 裏打ち工法

打ち合わせから着工、完成までの詳細施工事例紹介

1 戸建てリノベーション着工前

1-1 現場調査・打合せ

メールでの数ヶ月にわたる緻密な仕様策定と、隣地境界の法的・物理的整理が、後の不測の事態に揺るがない「強固なプロジェクト基盤」を作り上げました。

 

 

1-1. K様との技術対話

K様は非常にリサーチ能力が高く、構造計算の重要性についても深い理解を示してくださいました。数年にわたる対話の中で、私たちは「四谷の狭小地で性能を出すには、一般的な工法では不可能である」という認識を完全に共有しました。メールのやり取りは、単なる色決めの相談ではなく、「地震時にかかる引き抜き力に対し、どの金物が最適か」というエンジニアリングの領域に達していました。

 

1-2. インスペクション(住宅診断)の限界と覚悟

着工前の非破壊インスペクションでは、壁の中の本当の状態は分かりません。私たちは「おそらく構造の欠損があるだろう」「断熱材は機能していないだろう」というワーストケース・シナリオを想定し、予算の予備費を含めた精密な資金計画を立案しました。この「最悪を想定する誠実さ」こそが、リノベーションを失敗させない唯一の道です。

 

1-3. 隣家との「縁切り(切り離し)」という難関

密集地では、隣家と壁を共有していたり、屋根が重なっていたりすることが珍しくありません。K様邸もその例外ではなく、隣家との物理的な分離(縁切り)が必要でした。

  • 越境物の整理: 隣家の雨樋や庇がK様邸の敷地に入り込んでいないか、一つひとつ確認。

  • 構造的分離: 建物が揺れた際に隣家を損壊させないよう、エキスパンション(隙間)を設けるための精密な解体計画。 これは、単なる工事の手続きではなく、新宿の街で共生していくための重要な社会的プロセスでした。

新宿区K様邸 既存 
新宿区K様邸 既存 
新宿区K様邸 既存 
新宿区K様邸 既存 
新宿区K様邸 既存 
新宿区K様邸 既存 

施工前の水回り

新宿区K様邸 既存 
新宿区K様邸 既存 
新宿区K様邸 既存 
新宿区K様邸 既存 

1-2 東京都新宿区K様邸 戸建リノベーションプラン

K様に提案したプランの正体は「建て替え以上の性能を、面積を1平米も減らさずに実現する“内部・外部同時フルスケルトン・プログラム”」でした。

 

1. 隣家との「構造的自立」:縁切りプラン

四谷の密集地で最も危険なのは、隣家と壁を共有していることによる「連鎖倒壊」と「延焼」のリスクです。

  • 提案内容: 隣家と接している共有壁を物理的に「切り離し」、自社の敷地内に独立した新しい構造壁を構築する。

  • 狙い: 隣家が万が一地震や火災に見舞われても、K様邸がそれに巻き込まれない「自立した構造体」へと進化させること。

 

 

2. 上部構造評点1.5(耐震等級3相当)への「数値確約」

K様が最も不安視されていた「地震への備え」に対し、私たちは曖昧な「補強」ではなく、「評点1.5」という具体的な数値目標をプランの前提に据えました。

  • 提案内容: 全ての構造接合部を可視化するため、外壁まで解体。その上で、N値計算に基づき、警察署や消防署などの防災拠点と同等の強度(耐震等級3相当)を確保する。

  • 狙い: 「新宿で最も安全なプライベート・シェルター」を創り上げ、ご家族の生命を担保すること。

 

 

3. 「断熱等級5」と「静寂」の確保:都市型高性能スペック

都会の喧騒とヒートアイランド現象から室内を隔離するための、温熱・防音プランです。

  • 提案内容: * 開口部: 全窓に高性能樹脂サッシ「APW330」を導入。

    • 断熱層: 天井300mm(アクリア3層)、壁100mm(マグイゾベール)の極厚断熱。

    • 気密: テープによる防湿気密処理の徹底。

  • 狙い: 夏冬の光熱費を極限まで抑えつつ、外の騒音をシャットアウトする「図書館のような静寂」を室内にもたらすこと。

 

 

4. 裏打ち工法による「メンテナンスフリー外装」

足場が物理的に入らない狭小箇所に対する、ハイウィル独自の「外科手術」プランです。

  • 提案内容: 室内側から外壁を張り上げる「裏打ち工法」により、隣地境界ギリギリまで高い防水・防火性能を持つ外壁を構築する。

  • 狙い: 「足場が立たないから直せない」という将来のメンテナンスリスクを、新築段階(リノベ段階)で物理的に排除すること。

 

プランニングの結論として、私はK様にこうお伝えしました。「このプランは、四谷という土地の制約を逆手に取った、この場所でしか成立しない“オーダーメイドの要塞”です。解体後に何が出てきても、この『評点1.5・断熱等級5』というゴールは決して動かしません」と。

この「絶対に引かない性能目標」があったからこそ、後に地下室が見つかるという前代未聞のトラブルに見舞われても、私たちは迷うことなく「地下補強」へと舵を切ることができたのです。

 

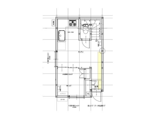
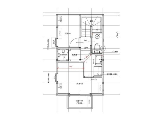
提案新規平面図

新宿区K様邸 新規平面図1階 

リノベーション後1階プラン

新宿区K様邸 新規平面図2階 

リノベーション後2階プラン

2 戸建てリノベーション着工

2-1 足場・解体

解体後に姿を現した「登記簿にない巨大な地下室」に対し、工事を即座に中断。地下構造そのものを高強度コンクリートで補強し、「新たな基礎の土台」として再生させるという、臨機応変な現場判断の極致を遂行しました。

 

解体によって暴かれた「新宿の地底」

内装を剥がし、外壁を取り払い、家が骨組みだけになった時、1階の床下から巨大な空洞が出現しました。深さ約2メートルのコンクリート製の地下室です。登記簿にも一切の記載がなく、前の住人も把握していなかった「未知の空間」でした。 この発見は、通常の工務店なら「工事不可能」として放り出すレベルの事態です。地下室があるということは、その上の地盤には「地耐力(建物を支える力)」が期待できないことを意味するからです。

新宿区K様邸 足場解体
新宿区K様邸 足場解体
新宿区K様邸 足場解体

構造の危機を「要塞の礎」に変える

私たちは即座に構造エンジニアと地盤調査会社を現場に招集し、以下の「地下再生プログラム」を決定しました。

  1. 地下壁のクラック補修: 既存の地下壁に高圧洗浄をかけ、エポキシ樹脂注入によるクラック補修。

  2. 地下内部の構造強化: 鉄筋を配し、高強度コンクリートを流し込んで地下室自体の耐荷重性能を向上。

  3. 基礎の重層化: 地下の構造体と、1階の新設基礎をホールダウンアンカー(M16ボルト)で一体化。 これにより、地下室は「崩落のリスク」から「建物を地底から支える巨大なアンカー(重り)」へと生まれ変わったのです。この判断が、新宿の狭小地において「評点1.5」を支える盤石な足盤となりました。

大事な構造部のすべてが目視可能となるスケルトンリフォーム

内部の天井・壁・床だけでなく外壁まで解体しスケルトン状態(躯体残し)にする戸建てリノベーションの最大のメリットはこのような重要な主要構造部のすべての状態が目視でわかることになります。

フルリノベーション後は、これらの構造上の弱点をすべて修正し補強することで新築と同水準、もくしくはそれ以上の建物性能をもつ構造躯体へ甦らせることが可能となります。

2-2 基礎

【添え基礎補強:評点1.5を支える「盤石な足盤」の再構築】

 

K様邸の「添え基礎補強」は、単なる基礎の延命処置ではありません。既存の古い基礎に寄り添わせるように鉄筋コンクリートを新設し、一体化させることで、上部構造からの強烈な「引き抜き力(N値)」を地面へ確実に逃がすための、極めて高度な構造設計です。

 

 なぜ「添え基礎」が必要だったのか

四谷の古い住宅の多くは、現代の基準から見ると「無筋基礎」であったり、立ち上がりの幅が不足していたりします。

  • 課題: K様邸が目指した「評点1.5」では、地震時に柱が土台から引き抜かれようとする力が数トン単位(ホールダウン金物にかかる負荷)で発生します。古い基礎のままでは、金物を打っても基礎ごと破壊されてしまうリスクがありました。

  • 地下室との連動: 発覚した地下室の壁厚だけでは、新しい耐力壁の重みを支えきれません。地下室の壁を外側から抱きかかえるように補強する「添え基礎」こそが、唯一の解決策でした。

 

 

2. 「添え基礎補強」の精密なプロセス

私たちは、既存の基礎を単に横に並べるのではなく、「一体化」させることに全神経を注ぎました。

  1. ケミカルアンカーによる結合: 既存の基礎に穴を開け、高性能なケミカルアンカー(接着系アンカー)を打ち込みます。これにより、新旧の基礎が物理的に一本の鉄筋で繋がります。

  2. 配筋の密組: 新設する基礎の中に、D13やD16といった太い鉄筋を網目状に配します。特に柱が立つ直下には、引き抜きに耐えるための補強筋を集中させました。

  3. 高強度コンクリートの打設: 狭小地ゆえ、ポンプ車の配管を室内へ引き込み、既存基礎の横へ隙間なくコンクリートを流し込みました。

  4. 構造計算に基づく「抱かせ」: 既存の基礎幅を例えば120mmから、添え基礎によって240mm以上に拡幅。これにより、上部からの荷重を分散させ、不同沈下を未然に防ぎます。

 

3. 「地下室補強」との三位一体

本事例の特殊性は、「地下室の壁」+「既存基礎」+「添え基礎」が三位一体となった点にあります。 地下室の天井部分(1階床下)で、この添え基礎を強力に緊結。これにより、地下室そのものが巨大な「基礎の塊(フーチング)」として機能し、四谷の地底深くで建物をガッチリとホールドする構造が完成しました。

 

新宿区K様邸 基礎
新宿区K様邸 基礎
新宿区K様邸 基礎
新宿区K様邸 基礎
新宿区K様邸 基礎
新宿区K様邸 基礎

技術的な結論として、この「添え基礎補強」なくして、K様邸の「評点1.5」は数字上の空論に過ぎませんでした。目に見えなくなる地下と基礎にこそ、最もコストと情熱をかける。これこそが、ハイウィルが提唱する「性能向上リノベーション」の誠実さの証明です。

2-3 バルコニー工事

K様が切望された「柱のない片持ちバルコニー」を実現するため、解体後に発覚した100mmという脆弱な既存梁を、構造計算に基づき強固にアップデート。自転車スペースを最大化させると同時に、建物の重心バランスを整える高度な「梁補強」を完遂しました。

 

狭小地の宿命:鉄骨バルコニーの「脚」という障害

着工前、K様邸の正面には、独立した鉄柱で支える「鉄柱建て式」の鉄骨バルコニーが設置されていました。

  • 課題: このバルコニーを支える鉄柱が玄関先の絶妙な位置にあり、自転車の出し入れや駐輪の大きな妨げとなっていました。四谷のような密集地では、わずか数十センチの「脚」が、家全体の使い勝手を悪化させる原因になります。

  • K様の切望: 「柱をなくしたい。バルコニーを建物から直接突き出す『片持ちタイプ(躯体先付け)』にできないか」という強いご要望をいただきました。

 

2. 解体後の絶望:100mmの梁という「想定外」

外壁を剥がし、バルコニーを支持すべき構造躯体(梁)が露出した瞬間、新たな難題が浮上しました。 そこにあったのは、わずか100mm(約3.3寸)の梁。 片持ちバルコニーは、テコの原理で建物側に非常に強い「回転モーメント(ねじれる力)」をかけます。100mm程度の細い梁では、バルコニー自体の重みや人の荷重に耐えきれず、長期的に建物が歪んだり、最悪の場合はバルコニーが脱落する危険性がありました。

 

3. 解決策:梁の「重層化」と金物による剛性強化

私たちは既存の梁をそのままにせず、高強度の構造材を「添え梁(抱かせ)」として追加。さらに金物で強固に連結することで、片持ち荷重に耐えうる「最強の支持基盤」を作り上げました。

  1. 梁のサイズアップと補強: 100mmの梁に対し、同等以上の成(せい:高さ)を持つ梁を並列に配置し、ボルトで一体化。梁全体の断面性能を劇的に向上させました。

  2. 先付け専用金物の採用: 防水性能と強度を両立させるため、外壁を張る前の「先付け」段階で、バルコニー専用の支持金物を梁にダイレクトに固定。これにより、揺れに強く、雨漏りリスクも最小限に抑えた構造が完成しました。

  3. 荷重の分散設計: バルコニーの重みを特定の点ではなく、建物内部の柱や耐力壁へと分散させるよう、周辺の構造バランスを再設計。評点1.5を維持したまま、バルコニーの自立を可能にしました。

 

4. 結実:自転車が並ぶ「ストレスフリー」な玄関先

完成したバルコニーの下には、かつて邪魔だった鉄柱は一本もありません。

  • メリット1: 柱が消えたことで、玄関前には広々とした駐輪スペースが出現。K様の長年のストレスが解消されました。

  • メリット2: 建物と一体化した「躯体先付け」にすることで、外観もスッキリと洗練された現代的な佇まいに。

  • メリット3: 鉄骨バルコニー特有の「錆(サビ)」の心配もなくなり、将来のメンテナンスコストも低減されました。

Before

新宿区K様邸 既存

After

新宿区K様邸 竣工
2-4 木工事

構造:大地震から家族を無傷で守り抜く「超・耐震」の設計】

 

一棟ごとに異なる「柱にかかる引き抜き力」を全箇所で算出し、適切な金物と最強の構造用面材「ノボパンSTP II」を組み合わせることで、防災拠点(消防署や警察署)と同等の耐震性能である「上部構造評点1.5」を具現化しました。

 

 精密な金物配置:柱一本一本に「専用の守り」を

木造住宅が大地震に見舞われた際、最も恐ろしいのは建物が揺れることではなく、揺れによって柱が土台から「抜けてしまう」ことです。柱が抜ければ、どれだけ立派な梁があっても家は一瞬で崩壊してしまいます。

そこで私たちは、100箇所以上あるすべての柱の接合部に対し、その場所にかかる「引き抜き力」を個別に分析しました。

  • オーダーメイドの補強: 角の柱、窓の横の柱など、場所によってかかる力は全く異なります。

  • 最強ランクの金物選定: 分析結果に基づき、数トンの力にも耐える「SSランクのホールダウン金物」などを適材適所に配置。

 

新宿の密集地という、万が一の際にも絶対に倒壊が許されない環境において、建物が「ねじれ」たり「浮き上がっ」たりすることを物理的に封じ込めました。

 

ノボパンSTP II:建物全体を強固な「箱」に変える

これまでの木造住宅では、「筋交い(すじかい)」というバツ印のついた突っ張り棒で地震に耐えるのが一般的でした。しかし、これは「点」で支える仕組みのため、強い衝撃が一点に集中しやすいという弱点がありました。

K様邸では、外壁を剥がした躯体すべてに、高強度の構造用パーティクルボード「ノボパンSTP II」を隙間なく貼り詰めました。

  • 「面」で跳ね返す強さ: 突っ張り棒(点)ではなく、壁全体(面)で地震のエネルギーを受け流します。

  • 変形を最小限に抑える: 家を巨大な「強固な箱(モノコック構造)」にすることで、地震時の建物のゆがみを極限まで抑制。

  • 家具転倒や内装被害の防止: 建物がゆがまないため、家が壊れないのはもちろん、室内の家具が倒れたり、壁紙が破れたりする二次被害すら防ぐ「剛性」を獲得しました。

 

この「金物」と「面材」の相乗効果こそが、四谷の地に聳え立つK様邸を、震災時の避難所よりも安全な「究極のシェルター」へと進化させたのです。

新宿区K様邸 大工工事
新宿区K様邸 大工工事
新宿区K様邸 大工工事
新宿区K様邸 大工工事
新宿区K様邸 大工工事
新宿区K様邸 大工工事
新宿区K様邸 大工工事
新宿区K様邸 大工工事
新宿区K様邸 大工工事
2-5 断熱工事

工事プロセス解説:断熱・気密(等級5の都市型魔法瓶)】

 

新宿の厳しいヒートアイランド環境を無効化するため、天井300mm、壁100mm、床75mmという極厚の断熱層を形成。壁断熱には「マグ・イゾベール」を採用し、その防湿層のジョイント部をすべて気密テープで精密に密閉する「一体型気密工法」を徹底しました。これにより、断熱等級5の達成とともに、都市の騒音を寄せ付けない静寂な住環境を実現しました。

 

 

天井300mm断熱:アクリア3層の圧倒的な「熱の防壁」

通常の住宅では100mm程度の天井断熱が一般的ですが、K様邸では高性能グラスウール「アクリア」を100mm×3層、合計300mmの厚さで施工しました。

  • 夏場の猛暑対策: 夏の新宿では、屋根裏の温度が60℃を超えることも珍しくありません。300mmという圧倒的な厚みは、この熱気が室内に到達するのを物理的に遮断します。

  • 「2階が暑い」を過去に: かつての「夜になっても2階がサウナ状態」という悩みは、この厚い防壁によって完全に解消されました。

 

 壁断熱:マグ・イゾベールと「気密テープ」の執念

壁には、世界的な断熱材メーカーであるマグ・イゾベール社の高性能断熱材を採用。断熱材が持つ防湿層を最大限に活かす工法を採りました。

  • 一体型防湿層の活用: マグ・イゾベール製品に付属する防湿フィルム(耳部分)を柱の正面で確実に重ね合わせ、タッカーで固定。

  • 気密テープによる完全密閉: フィルムの重なり目、および柱との接合部すべてに専用の「気密テープ」を貼り巡らせました。別貼りシートを使わない分、このテープ処理の精度が気密性能(C値)を左右します。コンセントボックス回りや配線貫通部も、テープと部材を駆使して徹底的に目貼りを行いました。

  • 断熱と防音の両立: 高密度なガラス繊維が熱を遮断するだけでなく、外からの騒音を強力に吸収。密集地でありながら、室内には驚くほどの静寂が広がります。

 

 

 床断熱:ミラネクストラムダ 75mm + 気密処理

冬の「底冷え」を根本から解決するため、床下には最高クラスの断熱性能を誇るフェノールフォーム断熱材を採用しました。

  • 隙間のない施工: 75mmの極厚ボードを大引きの間に隙間なく落とし込み、接合部を気密テープで処理。

  • 足元の温度差を解消: 1階の床下からの冷気を物理的にシャットアウトすることで、冬場でもスリッパなしで歩けるほどの温熱環境を確保しました。

 

 

 高性能樹脂サッシ「APW330」の遮熱力

窓は家の中で最も熱が逃げ、かつ入り込む場所です。

  • 密集地特有の熱をカット: 四谷のような密集地では、隣地からの反射熱(輻射熱)が強烈です。高性能樹脂サッシAPW330とLow-E複層ガラスを採用することで、紫外線をカットし、夏の日差しを跳ね返します。

  • 冬の「冷気」を遮断: 窓辺が冷え込む「コールドドラフト現象」が発生しないため、冬場でも窓の近くまで快適な生活スペースとして活用できるようになりました。

新宿区K様邸 断熱工事
新宿区K様邸 断熱工事
新宿区K様邸 断熱工事
新宿区K様邸 断熱工事
新宿区K様邸 断熱工事
新宿区K様邸 断熱工事
新宿区K様邸 断熱工事
新宿区K様邸 断熱工事

新宿区K様邸 断熱データ

場所 製品 断熱グレード
床断熱材 押出法ポリスチレンフォーム ミラフォームラムダ F(熱伝導率0.022W/(m・K))

壁断熱材

高性能グラスウール イゾベールスタンダード C(熱伝導率0.038W/(m・K))
天井断熱材

高性能グラスウール アクリア16k

C(熱伝導率0.037W/(m・K))
玄関ドア YKKAP アパートドア 防火ドアG B(開口部の熱還流率2.3W/(m2・K)以下)
サッシ

YKKAP APW330 防火 樹脂窓

S~A(開口部の熱還流率1.9W/(m2・K)以下)

HEAT20-G2リフォームとは?

<HEAT20とは?>

HEAT20とは、「2020年を見据えた住宅の高断熱化技術開発委員会」という団体名です。

その団体が設定しているのが、屋根や外壁、床、窓などの「外皮」と呼ばれる部位の断熱や遮熱などといった性能の評価基準であり、G1とG2の2段階あります。G2の方がより高性能な性能を有する外皮となっています。

<省エネ基準の家とHEAT20の家の違い>
省エネ基準の家とHEAT20の家の違い

HEAT20-G2の家は、省エネ基準の家の30~50%の暖房費を削減できる

 

「増改築.com®」によると、断熱リフォームの基準として、平成28年の建築物省エネ法基準に相当するUa値0.87が等級4(最高等級)とされています。しかし、この基準だけでは、真の省エネ住宅とは言えません。実際に、日本の断熱等級4は、2020年の建築基準法で努力義務とされているに過ぎません。しかし、2022年4月には断熱等級5が新設され、さらに2022年10月には断熱等級6・7が新設されました。断熱等級6・7は、これまでの断熱等級4と比べて、はるかに高いレベルの断熱性能が求められます。 HEAT20の計画においては、ZEH基準のUa値0.6を基準としています。これは、外壁105mm、U値2.33の樹脂アルミ複合サッシ窓で、天井の断熱材は105mmあれば実現できるとされています。さらに上位の「HEAT20 G1」グレードでは、6地域でUa値0.56となり、このレベルでは断熱環境を体感できるとされています。

最上位の「HEAT20G2」グレードでは、5地域でUa値0.46となっています。

断熱改修(温熱改修)リフォームを成功させるためには、これらの基準や計画をしっかりと理解し、適切な施工方法を選択することが重要となります。

2-6 外壁工事

隣家との距離が数センチという四谷特有の極限状態において、「外側から作業できないなら、室内側から外壁を作る」という逆転の発想「裏打ち工法」を完遂。防火地域に適合する高い耐火性と、雨漏りを永久に封じ込める完璧な防水ラインを、室内側からの精密な手仕事によって構築しました。

 

狭小リノベの「詰み」を解消する魔法の技術

通常、外壁の工事には「足場」が不可欠です。しかし、四谷の密集地では隣家の塀や壁が数センチの距離に迫っており、人が入ることすらできません。多くの会社がここで「外壁は直せない」と匙を投げますが、私たちは「裏打ち工法」でこの限界を突破しました。

  • 裏打ち工法とは: 建物の内部(室内側)から、防水シート、胴縁(空気の通り道)、サイディング(外壁材)を順番に組み上げていく特殊工法です。

  • なぜフルスケルトンか: 内部だけでなく外壁まで一度解体し、柱だけの状態にする「フルスケルトン」だからこそ、この「中から外を作る」という離れ業が可能になります。

 

 

 室内側から構築する「多重防水」の外科手術

 

裏打ち工法においてもっとも難しいのは、外からの雨水を完璧にシャットアウトする「防水ライン」の構築です。外から見えない場所だからこそ、ミリ単位の精度が求められます。

  1. 防水シートの「逆転」施工: 室内側から柱の外側に透湿防水シートを回し込みます。この際、シートの重なり(上下100mm、左右150mm以上)を重力に逆らわないよう、中から細心の注意を払って重ね合わせます。

  2. 気密・防水テープによる完全密閉: シートの端部やサッシとの接合部を、高耐久なブチルテープで室内側から目貼りします。「隙間があれば即、雨漏り」という緊張感の中、職人が指先の感覚を研ぎ澄ませて密閉していきます。

  3. サイディングの挿入: 防火地域に適合する不燃認定のサイディングボードを、室内側からスライドさせるように設置。専用の留め金具で柱にダイレクトに固定します。

 

 

「通気工法」を中から実現する

外壁の寿命を決めるのは、壁の中の湿気を逃がす「通気(つうき)」です。

  • 空気の道を確保: 室内側から作業しながらも、外壁材と断熱材の間にしっかりと「通気層(空気の通り道)」を確保しました。

  • 腐食の根絶: これにより、狭小地でありがちな「壁の中が蒸れて柱が腐る」というリスクを物理的に排除。評点1.5を叩き出した強靭な骨組みを、湿気から一生守り抜く仕組みです。

 

 

 防火地域という「法」の壁を越える

新宿区四谷は「防火地域」であり、火災に強い構造が厳格に定められています。

  • 認定仕様の遵守: 裏打ち工法であっても、使用する材料や施工手順はすべて防火・準耐火構造の認定に準拠。

  • 都市の要塞: 万が一、隣地で火災が発生しても、K様邸が燃え移りを防ぐ「防波堤」となるよう、室内側から完璧な耐火被覆を完成させました。

新宿区K様邸 外壁工事
新宿区K様邸 外壁工事
新宿区K様邸 外壁工事
新宿区K様邸 外壁工事
新宿区K様邸 外壁工事
新宿区K様邸 外壁工事
新宿区K様邸 外壁工事
新宿区K様邸 外壁工事
新宿区K様邸 外壁工事
2-7 造作工事

構造部の構造補強が終わると、造作工事に入ります。

新宿区K様邸 造作工事
新宿区K様邸 外壁工事
新宿区K様邸 外壁工事

3 戸建てリノベーション竣工

完成したK様邸は、かつての「隣家と共依存し、地底に不安を抱えていた古い家」の面影を完全に払拭しました。上部構造評点1.5(耐震等級3相当)と断熱等級5という数値を、裏打ち工法や地下室補強といった「執念の技術」で支えきり、新宿の喧騒の中に「究極の静寂と安心」を創出。資産価値を再定義する、最高峰の高性能住宅へと生まれ変わりました。

 

外観:柱のない開放感と、境界を守り抜いた意匠

足場が解体され、ベールを脱いだK様邸の外観には、幾多の難工事の痕跡は微塵も感じられません。

  • 「宙に浮く」バルコニー:

    K様が切望された片持ちタイプのバルコニーが、玄関先に美しい水平ラインを描いています。かつて自転車の邪魔をしていた「鉄柱」は一本もありません。100mmの梁を外科手術的に補強し、躯体先付けにこだわったことで、狭小地の有効スペースを最大化させました。

  • ジョリパットと裏打ちサイディングの融合: 正面は職人の手仕事が光るジョリパット仕上げ、隣家と数センチで迫る側面は「裏打ち工法」によるサイディング。異なる工法を使い分けながらも、統一感のあるモダンなデザインへと昇華させました。

  • APW330の重厚感: 全ての開口部に採用された樹脂サッシ「APW330」が、建物全体の気密性と意匠性を引き締めています。

 

 

 内部環境:新宿の喧騒を消し去る「静寂」

玄関のドアを閉めた瞬間、K様が驚かれたのは「音」の変化でした。

  • 図書館のような静けさ:

    壁に詰め込まれた「マグ・イゾベール」と、隙間なく貼られた気密テープ。この重厚な断熱・気密層は、熱だけでなく「音」をも強力に遮断します。四谷の往来の音、近隣の生活音は完全にシャットアウトされ、室内には家族の会話だけが穏やかに流れます。

  • 温度のバリアフリー: 「断熱等級5」の威力は、冬の朝に最も発揮されます。冷気が侵入する隙間がないため、エアコン1台で家中が春のような暖かさに。各部屋の温度差が極小化されたことで、ヒートアイランド現象の新宿にありながら、一年中快適な「魔法瓶」のような暮らしが実現しました。

 

 

 見えない安心:地下から続く「強靭な骨格」

竣工後、目に見えるのは美しい内装ですが、K様邸の真価はその「見えない部分」にあります。

  • 地底の要塞: かつて不安の種だった「未記載の地下室」は、今や強固なコンクリートで補強され、建物全体を支える巨大なアンカーとして機能しています。

  • 添え基礎と評点1.5: 既存の基礎に「添え基礎」を施し、N値計算に基づいた金物でガッチリと固められた躯体。地震が来ても「建物そのものが家族を守るシェルターになる」という、物理的な確信。この「見えない安心感」こそが、K様がリノベーションに託した最大の願いでした。


  =外観==  

Before

新宿区K様邸 既存

施工前の窓だらけの外観。寒さも暑さも音も筒抜けでした

After

新宿区K様邸 竣工

施工後は窓を減らし断熱を強化することで、狭小地でも快適で静かな住空間を得ることができました

Before

新宿区K様邸 既存

施工前の玄関屋根。この場所に限らず腐食が進んでいました

After

新宿区K様邸 竣工

玄関上の下屋根を解体、止水処理を施しきれいになりました

新宿区K様邸 竣工

施工後の外壁仕上げはニチハ窯業サイディング

新宿区K様邸 竣工

玄関ドアはYKKAPアパートドア防火G


  == 1F LDK ==  

Before

新宿区K様邸 既存

After

新宿区K様邸 竣工
新宿区K様邸 竣工

施工後の床材はパナソニックマイスターズウッド

新宿区K様邸 竣工

階段はパナソニックベリティスシリーズ


  == 1F 水まわり ==  

Before

新宿区K様邸 既存

After

新宿区K様邸 竣工

施工後のキッチンはTOTOミッテL型

新宿区K様邸 竣工

施工後の浴室はシャワーユニットとなりました。TOTO製

新宿区K様邸 竣工

洗面化粧台はTOTOオクターブ

新宿区K様邸 竣工

トイレはハイウィルオリジナル


  == バルコニー ==  

Before

新宿区K様邸 既存

施工前は柱建てバルコニーでした

After

新宿区K様邸 竣工

施工後は柱建てをやめて幅も広げました

新宿区K様邸 竣工

YKKAP製ルシアスバルコニーを採用

新宿区K様邸 竣工

4 補助金利用

新宿区K邸の工事では、国の補助金「子育てグリーン住宅支援事業」と「先進的窓リノベ事業」を活用しました。加えて東京都の補助金「既存住宅における省エネ改修促進事業」を併用することで更なる助成金獲得を狙います。

どの助成制度も省エネにつながるエコ住宅設備や、断熱性能の高い断熱材・ドア・窓の設置などに対して交付される補助金です。

 

K様邸の補助金対象工事

エコ住宅設備の設置 給湯器(エコジョーズ)、高断熱浴槽、節水型トイレ、節湯水栓
断熱改修 外壁・床・天井の断熱材、断熱窓、断熱ドア ※東京都補助金併用
子育て対応改修 ビルトイン自動調理対応コンロ、掃除しやすいレンジフード、ビルトイン食洗器、浴室乾燥機

 

新宿区K様邸工事で交付予定の補助金額概算:約80万円

5 担当者より
(「増改築.com®」本部ハイウィル株式会社四代目代表稲葉高志)

K様邸のプロジェクトは「直せない家はない、ただしそこには妥薬なき知恵と執念が必要だ」ということを、増改築com®の誇りとして刻み込んだ、歴史的な一軒となりました。

K様、 数年前の最初の一通のメールから、竣工の日まで。地下室の発覚や、隣家との緊迫した切り離し作業など、現場では息の詰まるような瞬間が何度もありました。しかし、K様が常に冷静に、私たちの技術的な提案を信頼してくださったからこそ、この「評点1.5・断熱等級5」という要塞が完成しました。

「自転車がスムーズに置けるようになった玄関先」 「外の音が聞こえない静かなリビング」 「冬でも暖かい寝室」

これら一つひとつの喜びは、すべてあの地下室のコンクリートを打ち、室内からサイディングを張り、気密テープをミリ単位で貼った職人たちの執念の結晶です。四谷という歴史ある街で、この強靭な家がK様ご家族を末永く守り続けることを、私たちは確信しています。

他のリフォーム事例を見る

再建築不可のフルリフォーム&リノベーション

兵庫県神戸市 N様邸

再建築不可リノベーション

東京都杉並区 M様邸

再建築不可 中古住宅リフォーム&リノベーション

東京都目黒区 A様邸

地盤沈下(家の傾き)補正の戸建リノベーション

東京都板橋区 O様邸

戸建てリノベーション・リフォームに関するお問合せはこちら

増改築.comの一戸建てリフォーム専用ホームページに
お越しいただき、誠に有難うございます。
 
増改築.comメンバーは技術集団となり、
他社のような営業マンがおりません。
技術者が直接ご相談にのり問題解決を行います。
 
従いまして、
お客様の方である程度のご要望が整理されました段階、
お悩みが工事内容のどのようなところにあるのか?
ご予算がどの程度絞る必要があるのか?
など明確になった段階でのご相談をお願いしております。
お問合せ・ご相談はお電話・メールにて受け付けております。
メールの場合は以下のフォームに必要事項をご記入の上、
「送信する」ボタンをクリックをお願いします。

代表稲葉高志

戸建てリノベーションの専属スタッフが担当致します。
一戸建て家のリフォームに関することを
お気軽にお問合せください

よくあるご質問
  • 他社に要望を伝えたところできないといわれたのですが・・・
  • 他社で予算オーバーとなってしまい要望が叶わないのですが・・・
  • サービスについて詳しく聞きたいのですが・・・

どのようなお悩みのご相談でも結構です。

あなたの大切なお住まいに関するご相談をお待ちしております。

営業マンはおりませんので、しつこい営業等も一切ございません。

設計会社(建築家様)・同業の建築会社様のご相談につきましては、プランと共にご指定のIw値及びUa値等の性能値の目安もお願い申し上げます。

2026年の大型補助金が確定したことで現在大変込み合っております。

耐震性能と断熱性能を向上させるフルリフォームには6か月~7か月の工期がかかります。

補助金獲得には年内に報告を挙げる必要があることから、お早目にご相談をお願いいたします。(6月着工までが目安

ご提案までに大変お時間がかかっております。ご了承のほどお願い申し上げます。

(5月までの着工枠が埋まりました)・・・2026/03/01更新

※すでにプランをお持ちのお施主様・設計資料をお持ちのお施主様は内容をフォームで送信後、フォーム下のメールアドレスに資料をお送りください。対応がスムーズです。

必須

(例:増改築太郎)

必須

(例:contact@high-will.co.jp)

(例:03-5615-2826)

必須

(例:東京都荒川区西日暮里2-35-1)

(例:築40年)

(例:25坪・100㎡など)

(例:2000万程度など)

  • ※再建築不可のリフォームでは金融機関が限られます。事前審査をお勧めいたします。

    (例:2024年3月くらいに完成希望など)

    必須

    できるだけ具体的にお知らせくださいませ。既存設計資料、リフォーム後のイメージ図等をお持ちであれば下記のメールアドレスより添付をお願いします。

    ※次の画面がでるまで、4~5秒かかりますので、
    続けて2回押さないようにお願いいたします。

    ※次の画面が出るまで、4〜5秒かかりますので、
    続けて2回押さないようにお願いいたします。

    図面や写真等を送信いただく場合、また入力がうまくいかない場合は、上記内容をご確認のうえ、下記メールアドレスまでご連絡ください。

    お電話でのお問合せはこちら

    0120-246-991

    営業時間:10:00~17:00(土日祝日を除く)

    ★YouTube「増改築.comチャンネル」チャンネル登録して新動画解説をいち早くGET!!★
    「増改築.comリノベ診断」であなたに一番ふさわしいフルリフォームを診断!!(動画解説付き)
    ★Facebookページにいいね!を押して最新コンテンツ情報をいち早くGET!!★
    パソコン|モバイル
    ページトップに戻る