戸建フルリフォームなら「増改築.com®」TOP > 施工事例 > 都道府県で探す > 東京都杉並区 > 【杉並区】フルスケルトン事例で実現する断熱等級6・耐震等級3の家

再建築不可でも新築以上の耐震性能と断熱性能に生まれ変わる!

【杉並区】フルスケルトン事例で実現する断熱等級6・耐震等級3の家

Before

杉並区O様邸 既存外観

After

杉並区O様邸 竣工外観

東京都杉並区堀ノ内。閑静な住宅街に佇む、築年数を経た木造2階建て住宅。 施主様である大吉様ご家族(ご夫婦)は、以前のお住まいで「日当たりが悪く、冬は寒くて暗い」という環境に悩み、心身の不調をきたすほど深刻な状況にありました。「とにかく明るく、陽が入り、暖かい家」を切望されたご夫妻が選んだのは、公園に隣接する好立地ながら、「再建築不可物件(※1)」という、リノベーションにおいて極めて難易度の高い物件でした。

(※1)再建築不可物件 「再建築不可物件」とは、建築基準法上の道路に敷地が2メートル以上接していない等の理由により、現在の建物を解体して更地にしてしまうと、二度と新しい家を建てることができない土地・建物のことです。そのため、再生には高度なリノベーション技術が不可欠となります。

建物概要
名前 O様
場所 東京都杉並区
築年数 築50年
構造種別 木造2階建て
家族構成 大人2人
対象面積 23.6坪
リフォーム部位 ベタ基礎/間取り変更/断熱サッシ/セルロースファイバー/屋上テラス/耐震補強/外構
工期 8ヶ月
価格 3200万

お客様のご要望

O様が私たちに託された想い、それは「人生を変えるためのリノベーション」でした。

  • 光と熱の獲得: 「前の家のような暗い生活はもう嫌だ」。公園側の借景を活かし、太陽の光が降り注ぐリビングにしたい。

    • 絶対的な暖かさ: 冬の底冷えを解消するため、妥協のない最高レベルの断熱性能(断熱等級6レベル)を確保したい。

    • 安全性の担保: 古い木造住宅だが、大地震が来ても家族を守れるよう、耐震補強を徹底したい。

    • 再建築不可の制約打破: 建て替えられないからこそ、既存の建物を骨組みから再生する「スケルトンリフォーム」で、新築以上の価値を創出したい。

プランナー 北畠より ~プランニングのポイント~

結論から申し上げますと、本計画の要諦は、「腐朽した躯体の完全な修復」と「採光と構造強度の両立」にありました。

再建築不可物件のリノベーションは、解体してみなければ分からない「ブラックボックス」との戦いです。私たちは、想定されるリスク(構造材の腐食など)をあらかじめ織り込みつつ、公園側の東面に大きな開口部(窓)を設ける大胆なプランを立案。 通常、窓を大きくすれば壁が減り、耐震性は下がります。しかし、今回は鉄骨補強や高強度の耐力壁を計算して配置することで、「明るさ」と「強さ」という相反する要素を高い次元で両立させました。

杉並区O様邸 戸建てリノベーション施工事例テーマカテゴリー

  • 再建築不可リフォーム
  • 中古(住宅)を買ってリフォーム&リノベーション 
  • 耐震等級3相当(上部構造評点1.5以上)リフォーム(性能向上リノベーション)
  • HEAT20-G2リフォーム(性能向上リノベーション)
  • 減築リフォーム 
  • 狭小住宅リフォーム 
  • ビルトインガレージ
  • セルロースファイバー仕様
  • 補助金活用リフォーム

打ち合わせから着工、完成までの詳細施工事例紹介

1 戸建てリノベーション着工前

1-1 現場調査・打合せ

施主様の「再建築不可物件に虎の子の資金を投じる恐怖」に対し、私たちは緻密な現場調査と、リスクを包み隠さず伝える誠実なコミュニケーションによって、3000万円超のプロジェクトを任せていただく「信頼」を築き上げました。

 

1-1. 現場調査・打合せ:夢とリスクの狭間で

初めてお会いした時、O様は大きな希望と、それと同じくらいの不安を抱えていらっしゃいました。

「本当に、この古い家が住めるようになるのでしょうか?」

「もし、解体して直せないほどの欠陥が見つかったらどうしよう……」

再建築不可物件の購入は、まさに背水の陣です。失敗すれば、住む家も資産も失いかねません。

私たちは現場調査において、建物の傾き、基礎のひび割れ、雨漏りの跡などを徹底的にチェックしました。

その結果、建物の老朽化は進んでいましたが、「直せる」という確信を得ることができました。

しかし、同時に「壁の中」には相当なダメージが蓄積されている可能性が高いことも、正直にお伝えしました。

「いいことばかりは言いません。開けてみれば、必ず修繕が必要な箇所が出てきます。

しかし、私たちはそこから逃げずに、必ず解決策を提示します」 この言葉が、O様の背中を押すきっかけとなりました。

杉並区O様邸 既存
杉並区O様邸 既存
杉並区O様邸 既存
杉並区O様邸 既存
杉並区O様邸 既存
杉並区O様邸 既存

施工前の水回り

杉並区O様邸 既存
杉並区O様邸 既存
杉並区O様邸 既存
杉並区O様邸 既存
杉並区O様邸 既存
杉並区O様邸 既存

1-2 東京都杉並区O様邸 戸建リノベーションプラン

1-2. 提案:光を迎え入れるための「減築」と「補強」

私たちは、単に古くなった箇所を直すだけでなく、大吉様の「心の健康」を取り戻すためのプランを提示しました。

  1. 大胆なゾーニング: 1階はご主人の仕事場とユーティリティ、2階を家族が集まるLDKと寝室に完全分離。日当たりの良い2階を生活の中心に据えました。

  2. 公園を庭にする窓配置: 東側の公園に向けて視線が抜けるよう、特注サイズの高性能樹脂窓「APW430(※2)」を配置。借景をインテリアの一部として取り込みます。

  3. 減築による採光確保: 法的な制限(建ぺい率)をクリアしつつ、光を奥まで届けるために、あえて既存のベランダを解体・減築し、建物の形状を最適化しました。

(※2)APW430 YKK AP社製の最高級グレードの樹脂窓です。ガラスが3枚入った「トリプルガラス」構造で、世界トップクラスの断熱性能を誇ります。結露を防ぐだけでなく、防音性にも優れています。

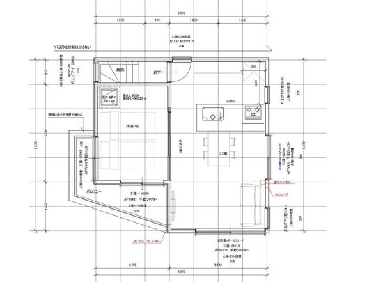
杉並区O様邸 1階図面

1階 戸建てリノベーション後プラン

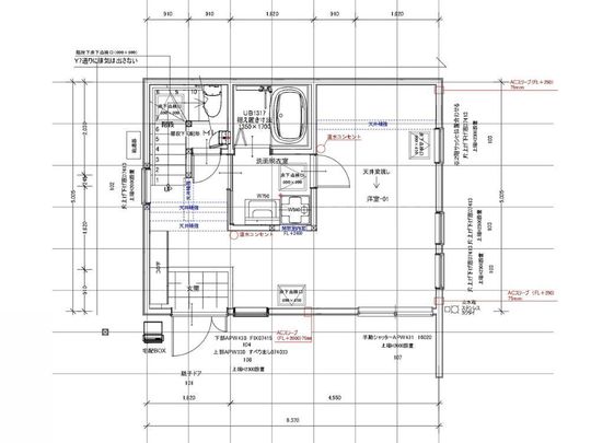
杉並区O様邸 2階図面

2階 戸建てリノベーション後プラン

2 戸建てリノベーション着工

2-1 足場・解体

解体後に発覚した「通し柱の腐食」や「シロアリ被害」という致命的な危機に対し、私たちは伝統的な大工技術である「根継ぎ」と、現代の科学的根拠に基づく「構造計算」を融合させ、再建築不可の建物を、新築同等の強靭な構造体へと蘇らせることに成功しました。

リノベーションにおける解体工事は、パンドラの箱を開けるようなものです。

特に今回は、築古の「再建築不可物件」。何が出てきても、建て替えることはできません。

「絶対に直す」という覚悟を持って、私たちは壁を剥がしていきました。

 

2-1. 足場・解体:隠されていた「病巣」の発見

足場・解体

近隣の方々への配慮を徹底しつつ、足場を架設。内装材を全て撤去し、構造躯体をあらわにする「スケルトン解体」を行いました。埃が舞い散る中、現れたのは、築数十年分のダメージを蓄積した、建物の「素顔」でした。

 

杉並区O様邸 解体
杉並区O様邸 解体
杉並区O様邸 解体
杉並区O様邸 解体
杉並区O様邸 解体
杉並区O様邸 解体

解体後の課題と対策:                                                衝撃の腐食とシロアリ ここで、本プロジェクト最大の危機が露呈しました。

浴室や洗面所など、水回りが集中していたエリアの壁を解体した瞬間、現場に緊張が走りました。

建物を支える最も重要な「通し柱(※3)」や、土台の一部が、長年の湿気と水漏れにより腐食し、さらにシロアリによって無残に食い荒らされていたのです。

  • 状態: 木材は黒ずみ、ドライバーで突くとボロボロと崩れ落ちる状態。

  • 断熱の欠如: さらに驚くべきことに、壁の中にあるはずの断熱材がほとんど入っていない、あるいは湿気でカビだらけになり、完全に落下していました。O様が恐れていた「冬の寒さ」の物理的な原因が、これ以上ない形で証明されたのです。

(※3)通し柱(とおしばしら) 「通し柱」とは、1階から2階まで一本で繋がっている、家の構造上、最も重要で太い柱のことです。この柱が腐ることは、人間で言えば背骨が折れているのと同じくらい危険な状態です。

「建て替えができる土地なら、解体を勧めるレベルです」 現場監督は正直にそう思いました。

しかし、ここは再建築不可。 対策: 私たちは即座に腐朽箇所の全容を特定し、「腐った部分を切除し、新しい木材を継ぎ足す」外科手術の計画を立案しました。

杉並区O様邸 解体
杉並区O様邸 解体
杉並区O様邸 解体
杉並区O様邸 解体
杉並区O様邸 解体
杉並区O様邸 解体

大事な構造部のすべてが目視可能となるスケルトンリフォーム

内部の天井・壁・床だけでなく外壁まで解体しスケルトン状態(躯体残し)にする戸建てリノベーションの最大のメリットはこのような重要な主要構造部のすべての状態が目視でわかることになります。

フルリノベーション後は、これらの構造上の弱点をすべて修正し補強することで新築と同水準、もくしくはそれ以上の建物性能をもつ構造躯体へ甦らせることが可能となります。

2-2 基礎

2-2. 基礎:湿気を封じ、建物を一体化する「ベタ基礎補強」

結論として、既存の基礎の内側に、防湿シートと鉄筋を敷き詰め、新たにコンクリートを打設する「ベタ基礎補強」を行うことで、耐震性の劇的な向上と、腐朽の原因となっていた「地面からの湿気」の完全シャットアウトを実現しました。

解体により判明した柱の腐食やシロアリ被害。その最大の原因は、古い住宅特有の「土のままの床下」から上がり続ける湿気でした。 これを根本から断つため、私たちは「ベタ基礎補強(※4)」を採用しました。 既存の基礎(布基礎)の間に、新たに鉄筋をグリッド状に組み、厚いコンクリートを流し込むことで、建物の足元を強固な一枚の岩盤のように一体化。これにより、地震の揺れを面で受け止める強さを手に入れると同時に、湿気の侵入経路を物理的に塞ぎ、将来的な腐食リスクをゼロにしました。

(※4)ベタ基礎補強 建物の床下全面に鉄筋コンクリートを流し込み、基礎を面で支える構造にする補強工事です。耐震性が高まるだけでなく、地面からの湿気(水蒸気)をコンクリートが遮断するため、木材の腐れやシロアリを防ぐ効果も極めて高い工法です。

杉並区O様邸 基礎
杉並区O様邸 基礎
杉並区O様邸 基礎
杉並区O様邸 基礎
杉並区O様邸 基礎
杉並区O様邸 基礎

O様邸では地盤が良好であることからベタ基礎を採用しました。

すべてがベタ基礎が良いというわけではありません。

ベタ基礎は建物全体と同程度の荷重となりますので、建物の重さとのバランスもかかわってきます。足元だけ固めていても屋根を含めた建物とのバランスが悪いと大地震が起きた際にせん断力が働き、ホールダウン金物が抜けるような事態になるケースもあるからです。

大規模な戸建てリノベーションをされる際には、木造を熟知し、実績が豊富な会社へ相談することをお勧めする理由でもあります。

杉並区O様邸 基礎

ベタ基礎って?

布基礎が立ち上がりとフーチングで持たせる基礎に対して、ベタ基礎は、立上りだけでなく、底板一面も耐圧盤を設け、立ち上がりと底面が一体化された鉄筋コンクリートになっている基礎をいいます。

建物の荷重を底板全体の面で受け止めるため、ベタ基礎は不同沈下を起こさない。といわれますが、それは良好な地盤での話です。

基礎の下の地盤面の地耐力が均一でない場合は、不同沈下が起こる可能性が充分あるのです。

 

耐震の世界では、重い瓦屋根は外して、軽いものに変えましょうと言われておりますが、それ自体は間違っていませんが、この理屈でいくと。屋根の瓦を外して、基礎はベタ基礎にしても、地盤に与える荷重は、瓦屋根以上の荷重がベタ基礎の荷重により地盤面にかかることになります。

地盤が軟弱な場合、布基礎を採用した方が有利な場合も出てきます。

そもそも正しい基礎補強方法を知らず、基礎補補修程度しか行わないリフォーム会社が多くを占めている現状ですが、

戸建て一軒家のリノベーションで、基礎補強をする際は、このような知識のある会社に相談することが必要です。

2-4 木工事

2-3. 木工事(構造補強):減築によるオーバーハングと「梁背2尺」の巨大梁

 

駐車スペース確保のために1階部分をあえて「減築」し、宙に浮いた2階部分(オーバーハング)を支えるために、一般住宅では規格外となる「梁背2尺(約60cm)」もの巨大な梁をクレーンで投入することで、構造的な課題を豪快かつ繊細に解決しました。

再建築不可物件でありながら、駐車スペースを確保し、かつ耐震性を担保する。この難題に対する回答は、1階のボリュームを削る「減築」と、それによって生じる2階の張り出し(オーバーハング)を強固に支える構造計画でした。

  1. 規格外の「大梁」投入: 1階をセットバックさせたことで、2階の荷重を支えるために通常の梁では強度が足りません。そこで採用したのが、「梁背(はりせい)2尺(※5)」、つまり高さ約60センチにも及ぶ特大の梁です。 住宅密集地の狭小現場において、この巨大な木材をクレーン車で吊り上げ、ミリ単位の精度で既存の躯体に組み込む作業は、まさに熟練の大工と現場監督の連携があってこそ成し得た、圧巻の光景でした。

(※5)梁背(はりせい)2尺 「梁背」とは梁の高さ(厚み)のこと。一般的な木造住宅の梁背は大きくても1尺(30cm)~1尺2寸(36cm)程度ですが、今回はその倍近い2尺(約60cm)の梁を使用。これにより、柱のない大空間や、張り出し部分の強大な荷重を支えることが可能になります。

  1. 光と強度のせめぎ合い: しかし、この「強さ」は同時に新たな課題を生みました。梁があまりにも太いため、天井裏のスペースが圧迫され、当初予定していた「窓の高さ」が確保できなくなる懸念が生じたのです。 「光」を渇望されていたO様にとっては、窓の位置が数センチ下がるだけでも、空の見え方が変わる重大な問題です。 「構造のために光を諦めるか、光のために構造を妥協するか」 私たちはどちらも選びませんでした。大工と共に現場で梁とサッシの取り合いをミリ単位で検証し、構造強度を一切落とさずに、窓枠を物理的な限界ギリギリまで上げる納まりを考案。「安全性」と「採光」のギリギリのバランスを攻め抜き、O様の願いである「光」を守り抜きました。

 

杉並区O様邸 木工事
杉並区O様邸 木工事
杉並区O様邸 木工事
杉並区O様邸 木工事
杉並区O様邸 木工事
杉並区O様邸 木工事
杉並区O様邸 木工事
杉並区O様邸 木工事
杉並区O様邸 木工事
2-3 屋根・バルコニー工事

屋根の形状や勾配(傾き)に合わせて、意匠性に優れた「アスファルトシングル」と、防水性に特化した「金属縦葺き」を使い分け、さらにバルコニーには最強の防水性能を誇る「金属防水」を採用することで、雨漏りリスクを極限まで低減しました。

再建築不可物件のリノベーションにおいて、構造補強と同じくらい重要なのが、建物を雨から守る「雨仕舞い(あまじまい)」です。特に複雑な形状をした屋根やバルコニーは、素材選びを間違えると将来の雨漏りに直結します。

  1. 大屋根:アスファルトシングル葺き メインとなる大屋根部分には、軽量でデザイン性に優れた「アスファルトシングル(※6)」を採用しました。

    • 理由: 従来の瓦やスレートに比べて圧倒的に軽く、建物頭部の重量を減らすことで耐震性向上に寄与します。また、柔らかい素材のため、割れや錆びの心配がなく、防水シートとの密着性も高いため、長期的な防水性能を期待できます。

(※6)アスファルトシングル ガラス繊維の基材にアスファルトを浸透させ、表面に石粒を吹き付けた屋根材。北米では定番の素材で、「軽量」「割れない」「錆びない」「雨音が静か」という特長があります。

  1. オーバーハング部(下屋):ガルバリウム鋼板 縦ハゼ葺き 1階を減築し、2階が張り出したオーバーハング部分の屋根は、構造上「緩勾配(かんこうばい=傾きが緩やか)」にならざるを得ませんでした。 勾配が緩いと雨水が滞留しやすいため、ここには水はけが最も良い「ガルバリウム鋼板の縦ハゼ葺き(※7)」を採用しました。

    • 理由: 継ぎ目が少なく、縦方向に一直線に雨を流す形状のため、緩い勾配でも雨水が逆流するリスクを物理的に遮断できます。

  2. バルコニー:メンテナンスフリーを目指す「金属防水」 通常、木造住宅のバルコニーはFRP防水(プラスチック繊維)が一般的ですが、今回はあえて「金属防水(スカイプロムナード等)」を採用しました。

    • 理由: FRP防水は10年ごとの塗り替えが必要ですが、金属防水は鋼板で覆うため、紫外線による劣化が極めて少なく、メンテナンスサイクルを大幅に延ばせます。また、地震で建物が揺れても、金属の柔軟性で追従するため、防水層が破断して雨漏りするリスクが非常に低い工法です。

(※7)縦ハゼ葺き(たてはぜぶき) 金属屋根の葺き方の一つ。屋根の棟(頂点)から軒先(下端)まで、一枚の長い板金で仕上げるため、途中に継ぎ目がなく、雨水の侵入経路が存在しない、非常に防水性の高い工法です。

杉並区O様邸 屋根
杉並区O様邸 屋根
杉並区O様邸 屋根
杉並区O様邸 屋根
杉並区O様邸 バルコニー
杉並区O様邸 バルコニー
2-5 断熱工事

結論として、壁と天井には隙間なく充填できる「セルロースファイバー」を極厚で施工し、床下には最高ランクの断熱ボード「ミラネクストラムダ」を特注サイズで敷き詰めることで、真冬の底冷えとは無縁の「断熱等級6」に迫る温熱環境を実現しました。

「構造」が家の骨格なら、「断熱」は家の皮膚です。O様が最も恐れていた「冬の寒さ」を物理的に遮断するため、私たちは一般的なリフォームの基準を遥かに超えるスペックを採用しました。

  1. 壁・天井:セルロースファイバー(壁120mm / 天井250mm) 外気に接する壁と天井には、新聞紙をリサイクルした木質繊維断熱材「セルロースファイバー」を採用しました。

    • 壁(120mm厚): 通常の柱(105mm)よりも厚い層を形成するため、ふかし壁(壁を厚くする下地)を設け、120mmという圧倒的な厚みで吹き込みました。

    • 天井(250mm厚): 熱の逃げ道となりやすい天井裏には、布団を重ね掛けするように250mmもの厚さで積層させました。

    • 効果: 吹き込み工法のため、再建築不可物件特有の複雑な構造や筋交いの隙間にもパンパンに充填され、断熱欠損(隙間)が一切ない「完全な魔法瓶」状態を作り出します。高い防音性能により、雨音や外の騒音が聞こえなくなるのも大きなメリットです。

  2. 床:ミラネクストラムダ 75mm(特寸) 足元の冷えを防ぐ床下断熱には、JSP社の高性能断熱材「ミラネクストラムダ」を採用しました。

    • こだわりは「特寸(とくすん)」: 既製品をただ並べるのではなく、この現場の土台や大引きの深さに合わせて、「75mm」という厚みの特注サイズを手配しました。

    • 効果: 熱伝導率が極めて低い(熱を伝えにくい)最高クラスの素材を、床下の深さ限界まで分厚く敷き詰めることで、地面からの冷気を完全にシャットアウト。「スリッパなしでも歩ける床」の秘密は、この見えない床下のこだわりにあります。

 

杉並区O様邸 断熱
杉並区O様邸 断熱
杉並区O様邸 断熱
杉並区O様邸 断熱
杉並区O様邸 断熱
杉並区O様邸 断熱

杉並区O様邸 断熱データ

場所 製品 断熱グレード
床断熱材 押出法ポリスチレンフォーム ミラフォームラムダ 75mm厚 F(熱伝導率0.022W/(m・K))

壁断熱材

吹込み断熱材セルロースファイバー  120mm厚 C(熱伝導率0.040~0.035W/(m・K))
天井断熱材

吹込み断熱材セルロースファイバー  250mm厚

C(熱伝導率0.040~0.035W/(m・K))
玄関ドア LIXILジエスタ2防火戸 k2仕様(ガラス入り) B(熱貫流率2.3以下
サッシ

YKKAP APW330 防火 樹脂窓

P~A(熱貫流率1.1以下~1.9以下)

HEAT20-G2リフォームとは?

<HEAT20とは?>

HEAT20とは、「2020年を見据えた住宅の高断熱化技術開発委員会」という団体名です。

その団体が設定しているのが、屋根や外壁、床、窓などの「外皮」と呼ばれる部位の断熱や遮熱などといった性能の評価基準であり、G1とG2の2段階あります。G2の方がより高性能な性能を有する外皮となっています。

<省エネ基準の家とHEAT20の家の違い>
省エネ基準の家とHEAT20の家の違い

HEAT20-G2の家は、省エネ基準の家の30~50%の暖房費を削減できる

 

「増改築.com®」によると、断熱リフォームの基準として、平成28年の建築物省エネ法基準に相当するUa値0.87が等級4(最高等級)とされています。しかし、この基準だけでは、真の省エネ住宅とは言えません。実際に、日本の断熱等級4は、2020年の建築基準法で努力義務とされているに過ぎません。しかし、2022年4月には断熱等級5が新設され、さらに2022年10月には断熱等級6・7が新設されました。断熱等級6・7は、これまでの断熱等級4と比べて、はるかに高いレベルの断熱性能が求められます。 HEAT20の計画においては、ZEH基準のUa値0.6を基準としています。これは、外壁105mm、U値2.33の樹脂アルミ複合サッシ窓で、天井の断熱材は105mmあれば実現できるとされています。さらに上位の「HEAT20 G1」グレードでは、6地域でUa値0.56となり、このレベルでは断熱環境を体感できるとされています。

最上位の「HEAT20G2」グレードでは、5地域でUa値0.46となっています。

断熱改修(温熱改修)リフォームを成功させるためには、これらの基準や計画をしっかりと理解し、適切な施工方法を選択することが重要となります。

2-6 外壁工事

防火地域に準ずる厳しい法規制に対応するため、不燃材料である「高耐久サイディング」を採用。さらに、壁の中に空気の通り道を作る「通気工法」を徹底することで、建物の寿命を縮める「内部結露」を恒久的に防ぐ仕様としました。

外壁は、家の見た目を決めるだけでなく、火災や湿気から家族を守る盾です。 かつてこの家を蝕んでいた「腐食」の再発を絶対に防ぐため、私たちは見えない下地処理にこそ、最大のエネルギーを注ぎました。

  1. 外壁通気工法(がいへきつうきこうほう)の徹底 解体時に目の当たりにした「柱の腐食」。その主原因の一つは、古い住宅特有の湿気が壁の中に溜まる構造でした。 これを解消するため、外壁材と柱の間に通気胴縁(どうぶち)という木材を挟み、空気が下から上へ常に流れる**「外壁通気工法」**を構築しました。

    • 効果: 湿気や熱気が屋根裏から外部へ排出されるため、壁の中が常に乾燥した状態を保ちます。これにより、構造材の腐れやシロアリの発生リスクを劇的に低減させます。

  2. 準耐火仕様の不燃サイディング 隣家との距離が近い杉並区の密集地においては、もらい火を防ぐ防火性能が必須です。 外壁材には、国土交通大臣認定の「不燃材料(窯業系サイディング)」を採用。炎を寄せ付けない性能を持たせつつ、デザインはモダンで落ち着いた色調を選択し、「古びた家」という印象を一新しました。

  3. 高耐久シーリング(コーキング) サイディングの継ぎ目を埋めるシーリング材には、一般的なものよりも耐候性が高い「高耐久タイプ」を使用しました。 外壁のメンテナンスで最も早く劣化するのはこの継ぎ目です。ここに最高グレードの材料を使うことで、将来的なメンテナンスコスト(足場代など)の削減に貢献します。

杉並区O様邸 外壁
杉並区O様邸 外壁
杉並区O様邸 外壁
杉並区O様邸 外壁
杉並区O様邸 外壁
杉並区O様邸 外壁
2-7 造作工事

最終的な室内の美しさと防火性能を左右する「石膏ボード張り」において、ビスの間隔(ピッチ)や継ぎ目の処理をミリ単位で管理し、再建築不可物件のリスクである「火災」に強い、燃えにくい室内の下地を完成させました。

断熱工事(セルロースファイバーの吹き込み)が完了すると、すぐに壁と天井を石膏ボード(プラスターボード)で塞いでいきます。 お手元にある写真は、一見するとただの「灰色の壁」に見えるかもしれません。しかし、この工程には2つの極めて重要な意味があります。

  1. 断熱材の「蓋」としての役割 パンパンに吹き込まれたセルロースファイバーを、高い圧力のまま閉じ込めるのがこのボードです。ボードがしっかりと固定されているからこそ、断熱材が将来にわたって沈下せず、魔法瓶のような保温性能を維持し続けることができます。

  2. 命を守る「防火の盾」 石膏ボードは、成分に約21%の結晶水を含んでいます。万が一火災が発生した際、この水分が蒸気となって熱を奪い、温度上昇を食い止めます。 再建築不可物件が多い杉並の密集地において、壁と天井を隙間なくボードで覆うことは、家族の命を守る「防火被覆」を作る作業に他なりません。

  3. 光の形が見えてくる 大工がボードを張り終えた瞬間、それまで柱と梁だけだった空間に、部屋の「輪郭」が浮かび上がります。 ボードの開口に合わせて、公園の緑を切り取る窓(APW430)の存在感が際立ち、「ああ、この家はこんなに明るくなるんだ」と、完成後の暮らしが初めて具体的にイメージできる瞬間です。私たちは、仕上げのクロスが美しく貼れるよう、ビスを打つ深さ一つにもこだわって施工しました。

杉並区O様邸 造作工事
杉並区O様邸 造作工事
杉並区O様邸 造作工事
杉並区O様邸 造作工事
杉並区O様邸 造作工事
杉並区O様邸 造作工事

3 戸建てリノベーション竣工

完成した住まいは、「再建築不可」という重い法的制約を感じさせない、光と風が通り抜ける開放的な空間へと生まれ変わりました。かつて施主様を苦しめた「暗さと寒さ」は過去のものとなり、公園の緑を借景とする、世界で一番贅沢な「特等席」が完成しました。

足場が外れ、クリーニングを終えたその家は、杉並の閑静な街並みに調和しながらも、確かな存在感を放っています。それは、腐食した骨組みを再生させた「強さ」と、断熱性能という「優しさ」を兼ね備えた、真の高性能住宅の姿です。


  =外観==  

減築によって生まれたスペースが、ゆとりと機能美を創出しました。 1階部分をあえて減築(セットバック)したことで、待望の駐車スペースが誕生。 2階の張り出し(オーバーハング)部分は、あの巨大な「梁背2尺」の梁によって強固に支えられており、デザイン上のアクセントにもなっています。 外壁は防火サイディングとガルバリウム鋼板を組み合わせ、メンテナンス性と防火性を高めつつ、シックでモダンな佇まいに一新しました。

Before

杉並区O様邸 既存外観

After

杉並区O様邸 竣工外観

施工後は全体的にスッキリとしていながら柔和な雰囲気の外観になりました。
外壁は窯業サイディング(ニチハ)


  == LDK ==  

公園の緑を切り取る「ピクチャーウィンドウ」が、暮らしの質を一変させました。 階段を上がると、そこには以前の「暗い家」の面影は微塵もありません。 東面に設けた大開口からは、隣接する公園の木々が絵画のように飛び込んできます。 構造強度とのせめぎ合いの末、ミリ単位で高さを調整した窓(APW430)が、冬の柔らかな陽光を部屋の奥深くまで導きます。 天井を可能な限り高く取り、現し(あらわし)にした構造材が、木の温もりと開放感を演出しています。

Before

杉並区O様邸 既存

施工前の2階は和室でした

After

杉並区O様邸 竣工

施工後のLDKは2階へ移動。白を基調とした美しいキッチンが入りました


  == 水まわり ==  

Before

杉並区O様邸 既存

施工前のキッチンは1階にありました

After

杉並区O様邸 竣工

施工後は2階へ移動。TOTOシステムキッチン「ザ・クラッソ」

杉並区O様邸 竣工

浴室はTOTO「サザナ」

詳細はこちらへ
杉並区O様邸 竣工

洗面化粧台はTOTO「サクア」

杉並区O様邸 竣工

トイレはTOTO「ネオレストRS1」

== 暮らしの変化(お客様の声) ==

「冬の朝、暖房がいらない日があるんです」 お引渡しは真冬でしたが、施主様からは驚きの声を頂きました。 「以前は暖房をつけても震えていたのに、今は朝起きても部屋が寒くない。日中は陽が入れば暖房を消してしまうほど暖かいです」 魔法瓶のような断熱性能と、樹脂サッシによる気密性が、熱を逃しません。 何より、「家に帰ってきて、リビングのソファから公園の緑を眺める時間が一番の幸せ」というお言葉こそが、私たちがこのプロジェクトで目指したゴールの証明です。


4 補助金利用

●杉並区O様邸の工事では、国の補助金「子育てエコホーム支援事業」と「先進的窓リノベ事業」を活用しました。さらに東京都の「既存住宅における省エネ改修促進事業」も併用することで補助金額を大幅にアップさせることができました。

どちらも省エネにつながるエコ住宅設備や、断熱性能の高い断熱材・ドア・窓の設置などに対して交付される補助金です。

 

O様邸の補助金対象工事

エコ住宅設備の設置 給湯器(エコジョーズ)、高断熱浴槽、節水型トイレ、節湯水栓
断熱改修 外壁・床・天井の断熱材、断熱窓、断熱ドア(東京都補助金併用)
子育て対応改修 ビルトイン自動調理対応コンロ、掃除しやすいレンジフード、ビルトイン食洗器、浴室乾燥機

 

杉並区O様邸工事での補助金交付額:約258万円

5 担当者より
(「増改築.com®」本部ハイウィル株式会社四代目代表稲葉高志)

今回のプロジェクトの真の成功要因は、「再建築不可」という厳しい条件下で発覚した「構造腐朽」という危機に対し、大吉様が私たちを信じ、「根本から直す」という勇気ある決断をしてくださったことに尽きます。

O様、この度は、人生の大きな転機となる大切なお住まいの再生を、増改築.com®にお任せいただき、誠にありがとうございました。

初めてお会いした時、O様が切実に仰っていた「前の家のような、暗くて寒い思いはもうしたくない」というお言葉が、今でも私の耳に残っています。 再建築不可物件をご購入されたと伺った時、私はプロとして、「これは並大抵の覚悟では済まないプロジェクトになる」と直感しました。建て替えという「逃げ道」がない以上、既存の建物を、何があっても蘇らせなければならないからです。

そして、解体後の現場で、あの無残に腐食した柱や、シロアリの被害を目の当たりにした時、その予感は現実のものとなりました。 正直に申し上げます。壁を剥がした瞬間、現場には重苦しい空気が流れました。 しかし、その危機的な状況をご報告した際、大吉様は動揺されながらも、私たちにこう仰ってくださいました。 「稲葉さん、プロの技術を信じています。安心して暮らせる家にしてください」

その一言が、現場の空気を変えました。 大工は腐った柱を一本一本「根継ぎ」で蘇らせ、クレーンで巨大な梁を架け、断熱職人は隙間という隙間にセルロースファイバーを吹き込みました。 構造計算上の強度と、O様が渇望された「光」を両立させるために、窓の高さをミリ単位で調整したあの日々は、私たちにとっても忘れられない挑戦でした。

お引渡しの日、完成した2階のリビングで、窓いっぱいに広がる公園の緑と、溢れんばかりの陽光を見た時。 そして、O様が「本当に暖かい。ここに座っているだけで幸せです」と笑顔を見せてくださった時、全ての苦労が報われた気がいたしました。

「最強の耐震」×「最高の断熱」=「家族の健康と資産価値の最大化」

この家はもう、かつての「古くて寒い再建築不可物件」ではありません。 新築同等の強靭な構造と、魔法瓶のような温熱環境、そして何より、ご家族の笑顔を守る「砦」へと生まれ変わりました。

これからも、この陽だまりのような温かいお住まいで、ご家族皆様が健やかに、そして穏やかな日々を過ごされることを、スタッフ一同、心より祈念しております。

他のリフォーム事例を見る

再建築不可のフルリフォーム&リノベーション

兵庫県神戸市 N様邸

再建築不可リノベーション

東京都杉並区 M様邸

再建築不可 中古住宅リフォーム&リノベーション

東京都目黒区 A様邸

地盤沈下(家の傾き)補正の戸建リノベーション

東京都板橋区 O様邸

戸建てリノベーション・リフォームに関するお問合せはこちら

増改築.comの一戸建てリフォーム専用ホームページに
お越しいただき、誠に有難うございます。
 
増改築.comメンバーは技術集団となり、
他社のような営業マンがおりません。
技術者が直接ご相談にのり問題解決を行います。
 
従いまして、
お客様の方である程度のご要望が整理されました段階、
お悩みが工事内容のどのようなところにあるのか?
ご予算がどの程度絞る必要があるのか?
など明確になった段階でのご相談をお願いしております。
お問合せ・ご相談はお電話・メールにて受け付けております。
メールの場合は以下のフォームに必要事項をご記入の上、
「送信する」ボタンをクリックをお願いします。

代表稲葉高志

戸建てリノベーションの専属スタッフが担当致します。
一戸建て家のリフォームに関することを
お気軽にお問合せください

よくあるご質問
  • 他社に要望を伝えたところできないといわれたのですが・・・
  • 他社で予算オーバーとなってしまい要望が叶わないのですが・・・
  • サービスについて詳しく聞きたいのですが・・・

どのようなお悩みのご相談でも結構です。

あなたの大切なお住まいに関するご相談をお待ちしております。

営業マンはおりませんので、しつこい営業等も一切ございません。

設計会社(建築家様)・同業の建築会社様のご相談につきましては、プランと共にご指定のIw値及びUa値等の性能値の目安もお願い申し上げます。

2026年の大型補助金が確定したことで現在大変込み合っております。

耐震性能と断熱性能を向上させるフルリフォームには6か月~7か月の工期がかかります。

補助金獲得には年内に報告を挙げる必要があることから、お早目にご相談をお願いいたします。(6月着工までが目安

ご提案までに大変お時間がかかっております。ご了承のほどお願い申し上げます。

(5月までの着工枠が埋まりました)・・・2026/03/01更新

※すでにプランをお持ちのお施主様・設計資料をお持ちのお施主様は内容をフォームで送信後、フォーム下のメールアドレスに資料をお送りください。対応がスムーズです。

必須

(例:増改築太郎)

必須

(例:contact@high-will.co.jp)

(例:03-5615-2826)

必須

(例:東京都荒川区西日暮里2-35-1)

(例:築40年)

(例:25坪・100㎡など)

(例:2000万程度など)

  • ※再建築不可のリフォームでは金融機関が限られます。事前審査をお勧めいたします。

    (例:2024年3月くらいに完成希望など)

    必須

    できるだけ具体的にお知らせくださいませ。既存設計資料、リフォーム後のイメージ図等をお持ちであれば下記のメールアドレスより添付をお願いします。

    ※次の画面がでるまで、4~5秒かかりますので、
    続けて2回押さないようにお願いいたします。

    ※次の画面が出るまで、4〜5秒かかりますので、
    続けて2回押さないようにお願いいたします。

    図面や写真等を送信いただく場合、また入力がうまくいかない場合は、上記内容をご確認のうえ、下記メールアドレスまでご連絡ください。

    お電話でのお問合せはこちら

    0120-246-991

    営業時間:10:00~17:00(土日祝日を除く)

    ★YouTube「増改築.comチャンネル」チャンネル登録して新動画解説をいち早くGET!!★
    「増改築.comリノベ診断」であなたに一番ふさわしいフルリフォームを診断!!(動画解説付き)
    ★Facebookページにいいね!を押して最新コンテンツ情報をいち早くGET!!★
    パソコン|モバイル
    ページトップに戻る