戸建フルリフォームなら「増改築.com®」TOP > 施工事例 > 都道府県で探す > 東京都豊島区 >通し柱の消失、そして「外壁2面解体」という断腸の決断。法規制の壁を突破し、崩壊寸前の躯体を“外部ハーフスケルトン”で救い出した、最難関リノベーションの全記録

通し柱の消失、そして「外壁2面解体」という断腸の決断。法規制の壁を突破し、崩壊寸前の躯体を“外部ハーフスケルトン”で救い出した、最難関リノベーションの全記録

外壁2面解体 ハーフスケルトンリフォーム

通し柱の消失、そして「外壁2面解体」という断腸の決断。法規制の壁を突破し、崩壊寸前の躯体を“外部ハーフスケルトン”で救い出した、最難関リノベーションの全記録

建物概要
名前 T様
場所 東京都豊島区
築年数 築40年
構造種別 木造2階建て
家族構成 大人3人
対象面積 23.4坪
リフォーム部位 基礎補強/間取り変更/断熱サッシ/外部ハーフスケルトン(外壁2面解体・構造再生)/耐震補強/
工期 9ヶ月
価格 2300万

お客様のご要望

T様との数年にわたるメールのやり取りの中で、一貫していたのは「この場所で、安全に、末永く住み続けたい」という強い意志でした。

  • 構造の根源的な不安解消: 以前から感じていた建物の揺れや湿気の原因を突き止め、最高レベルの耐震性能を確保したい。
  • 居住面積の維持: 確認申請を伴う建て替え(新築)では、道路後退等の制限により床面積が減ってしまう。現在の生活空間を1平米も減らさずに再生したい。
  • 断熱・温熱環境の劇的改善: 築年数相応の「夏の暑さ」「冬の寒さ」を、最新の断熱技術(セルロースファイバー等)で一掃したい。

プランナー 北畠より ~プランニングのポイント~

当初予定していた「内部スケルトン」が通用しないほどの腐食に対し、私は「外壁を2面解体し、構造体を入れ替える」というプランへ現場で即座に切り替え、法改正後の確認申請を回避しつつ、構造の同一性を守り抜くという、針の穴を通すような精密な設計・施工計画を策定しました。

今回のプロジェクトの難しさは、単なる工事の規模ではありません。それは、「法と実力のせめぎ合い」にありました。 一般的に、主要構造部の半分以上を解体すると「大規模な模様替え」を超え、確認申請が必要となる場合があります。しかし、確認申請を出すと、現行法(法改正後の建築基準法)が適用され、T様の家は面積を減らして小さく建て直さなければなりません。

そこで私は、腐食が集中していた外壁の2面をピンポイントで解体し、かつ「内部の階段」と「2階床下地」という、建物にとっての「背骨」と「肋骨」の一部を意図的に残すことで、リノベーションとしての法的定義を維持する戦略を立てました。これは、構造を熟知した「性能向上リノベーション」(古い家の見た目を綺麗にするだけでなく、耐震・断熱を科学的根拠に基づき新築以上に向上させる手法)の専門家だからこそできる、極限のプランニングです。

豊島区T様邸 戸建てリノベーション施工事例テーマカテゴリー

  • 再建築不可リフォーム
  • 二世帯住宅リフォーム
  • 耐震等級3相当(上部構造評点1.5以上)リフォーム(性能向上リノベーション)
  • HEAT20-G2リフォーム(性能向上リノベーション)
  • 裏打ち工法
  • 補助金活用リフォーム

打ち合わせから着工、完成までの詳細施工事例紹介

1 戸建てリノベーション着工前

1-1. 現場調査・打合せ:数年の対話が育んだ信頼

数年にわたる対話を通じて構築されたT様との深い信頼関係があったからこそ、解体後に発覚した「通し柱の腐食」という絶望的な状況下でも、パニックに陥ることなく、迅速かつ大胆な「プランの全面変更」を受け入れていただくことができました。

 

T様との最初の出会いは、決して「即断即決」ではありませんでした。 数年前の初回問い合わせから、メール履歴にはT様の家に対する深い愛情と、それゆえの慎重な姿勢が刻まれています。

「本当に耐震性は上がるのか」「予算内でどこまでできるのか」 私たちは、過去の「スケルトンリフォーム」(家の構造躯体だけを残し、内外装や設備をゼロから再構築する手法)の事例を提示し、一歩ずつ不安を解消していきました。

現場調査(インスペクション)の段階では、床下の湿気や一部の雨染みを確認していましたが、その時点では「内部からの補強で十分対応可能」という診断でした。 しかし、この「診断」こそが、後の大転換への序章となります。私たちはご契約前の段階で、T様にこうお伝えしていました。「万が一、壁を剥がして致命的な問題が見つかった場合は、その場でベストな提案を修正します」と。この一言が、後の救いとなりました。

ハーフスケルトン 既存LDK
ハーフスケルトン 既存洋室
ハーフスケルトン 既存階段
ハーフスケルトン 既存2階和室
ハーフスケルトン 2階既存和室
ハーフスケルトン 既存2階洋室

施工前の水回り

ハーフスケルトン 既存キッチン
既存キッチン
ハーフスケルトン 既存浴室
既存浴室
ハーフスケルトン 既存洗面
既存洗面脱衣室
ハーフスケルトン 既存トイレ
既存トイレ

1-2. 提案:想定外を迎え撃つ「覚悟」の処方箋

契約段階でのプランは、標準的な内部スケルトンリノベーションでした。 しかし、私たちはプロとして、30年以上経過した木造住宅には、必ず「魔物」が潜んでいることを知っています。 特に、T様邸のような立地や構造の特性を鑑みると、通し柱付近の漏水リスクはゼロではありませんでした。

私たちの提案は、単なる「間取りの図面」ではありませんでした。 「もし腐食があったらこう直す」「もし金物が足りなかったらこう追加する」という、幾重ものバックアッププランを含めた、「家の再生のための処方箋」です。

T様は、私たちの技術力だけでなく、その「不測の事態をごまかさない姿勢」に共感し、運命のプロジェクトを託してくださいました。

数年にわたる「メールでの対話」という長い準備期間を経て、ついに工事の幕は上がりました。 そして、その数日後、私たちは解体現場で、言葉を失うことになるのです。

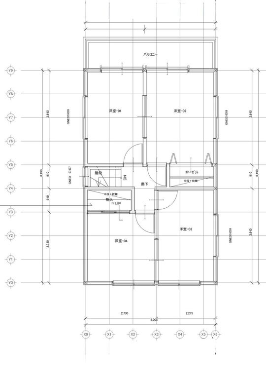
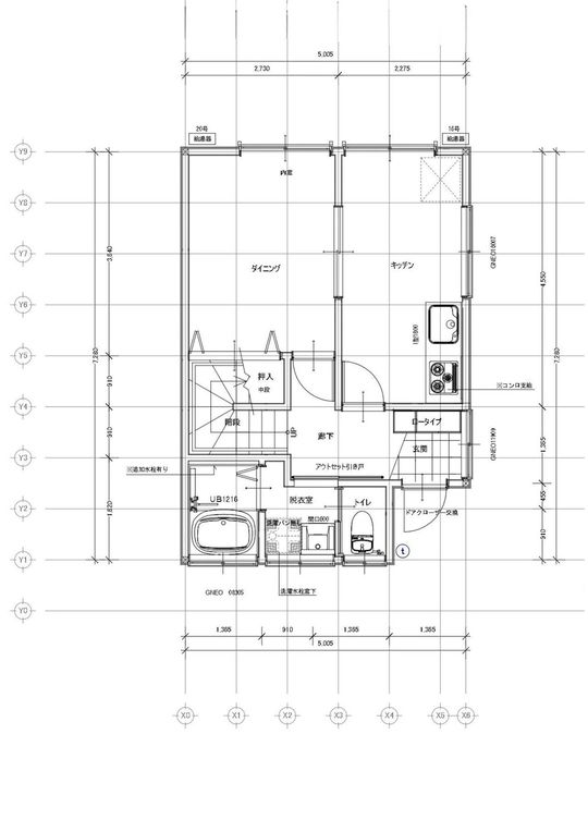
  間取りの変更プラン  

ハーフスケルトン 1階既存

1階 戸建てリノベーション前平面図

ハーフスケルトン 2階平面図

2階 戸建てリノベーション前平面図

ハーフスケルトン 新規1階平面図

1階 戸建てリノベーション後プラン

ハーフスケルトン 2階新規平面図

2階 戸建てリノベーション後プラン

2 戸建てリノベーション着工

2-1. 足場・解体:沈黙を破り牙を剥いた「腐朽菌」

解体後に発覚した「通し柱を含む躯体の壊滅的な腐食」という最悪の事態に対し、私たちは「外部ハーフスケルトン」への大胆な方針転換を断行。建物のアイデンティティである内部の階段と床下地をあえて残すことで、法改正後の確認申請を回避し、既存の床面積を守り抜いたまま構造体を新築以上に蘇らせることに成功しました。

 

足場・解体

工事は予定通り、足場の設置と内部の解体からスタートしました。当初の計画は、内装を全て剥がす「スケルトンリフォーム」(家の構造躯体だけを残し、それ以外の内外装や設備を一度全てゼロに戻して再構築する手法)でした。

しかし、作業が進み、2階から1階へと貫く「家の背骨」が露わになった瞬間、現場の空気は凍りつきました。

ハーフスケルトン 足場
ハーフスケルトン 解体工事
ハーフスケルトン 解体工事
ハーフスケルトン 腐食ヵ所
ハーフスケルトン 腐食ヵ所
ハーフスケルトン 通し柱腐ってる
ハーフスケルトン 柱の腐食
ハーフスケルトン 腐食ヵ所
ハーフスケルトン 腐食ヵ所

解体後の課題と対策:通し柱の消失と外部ハーフスケルトンへの転換 結論として、通し柱の欠損は「建物の崩壊」を意味する致命的な瑕疵でしたが、私たちは「外壁を2面完全に解体して構造を入れ替える」という外科手術的な手法を選択し、法的制約と安全性の両立を図りました。

 

解体によって発覚したのは、長年の雨漏りによって腐食し尽くした「通し柱」(1階から2階まで1本の木材で通した、建物の四隅などに配置される極めて重要な主柱)の無惨な姿でした。指で触れるだけでボロボロと崩れ落ちるその柱は、もはや建物を支える力を1ミリも持っていませんでした。

ここで私たちは、リノベーションの歴史でも稀に見る「究極の選択」を迫られました。

 

  1. 通常のリフォーム: 腐った部分に添え木をする程度の補修(=数年後に再発するリスクが高い)。

  2. 建て替え(新築): 一切を壊して作り直す(=法改正後の制限により、セットバック等で部屋が大幅に狭くなる)。

  3. 外部ハーフスケルトン: 外壁2面を完全に解体し、内部の特定の要素を残すことで「確認申請」を回避し、面積を守りつつ構造を刷新する。

 

T様と私たちが選んだのは、最も困難で、最も誠実な「外部ハーフスケルトン」でした。

 

建築基準法において、主要構造部(壁、柱、床、梁、屋根、階段)の半分以上を解体・改修すると、確認申請が必要になる場合があります。私たちは、あえて「内部の階段」と「2階の床下地」を維持し、外壁2面を集中的に解体・再構築することで、「法的にはリノベーション(模様替え)」としての枠組みを維持しながら、実質的には新築同等の構造精度を手に入れるという、針の穴を通すような精密な工事を敢行したのです。

 

ハーフスケルトン 階段残し
ハーフスケルトン 柱の腐食
ハーフスケルトン 柱の腐食

大事な構造部のすべてが目視可能となるスケルトンリフォーム

内部の天井・壁・床だけでなく外壁まで解体しスケルトン状態(躯体残し)にする戸建てリノベーションの最大のメリットはこのような重要な主要構造部のすべての状態が目視でわかることになります。

フルリノベーション後は、これらの構造上の弱点をすべて修正し補強することで新築と同水準、もくしくはそれ以上の建物性能をもつ構造躯体へ甦らせることが可能となります。

2-2. 基礎:無筋基礎を「強固な土台」へ再起動

30年以上前の住宅に多い「無筋基礎(鉄筋が入っていない基礎)」に対し、私たちは「添え基礎補強」による補強を行い、最新の耐震計算に耐えうる強固な足盤を作り上げました。

構造体を入れ替えるには、それを支える「基礎」が健全でなければなりません。T様邸の基礎は、案の定、現代の基準では不十分な状態でした。 私たちは、既存の基礎に寄り添わせるように新しい鉄筋コンクリートを打ち込む「添え基礎工法」を採用。さらに、解体した2面の外壁部分には、最新の配筋を施したベタ基礎に近い補強を行い、新設する柱や耐力壁の力を確実に地面へと伝える準備を整えました。

ハーフスケルトン 既存基礎
既存無筋基礎
ハーフスケルトン 既存無筋基礎
既存無筋基礎
ハーフスケルトン 既存無筋基礎
既存無筋基礎
ハーフスケルトン 基礎補強
ハーフスケルトン 基礎配筋
ハーフスケルトン 基礎補強工事
ハーフスケルトン 基礎補強工事
ハーフスケルトン 基礎補強工事
ハーフスケルトン 基礎補強工事
ハーフスケルトン 基礎補強工事
ハーフスケルトン 基礎補強工事 型枠
ハーフスケルトン 基礎補強工事 型枠
ハーフスケルトン 基礎補強工事 打設
ハーフスケルトン 基礎補強工事
ハーフスケルトン 基礎補強工事
2-3. 木工事(構造補強):「N値計算」に基づく骨格の再構築

消失していた通し柱を新たな集成材へと挿げ替え、全ての接合部に「N値計算」に基づいた適切な金物を配置することで、地震時の引き抜き力に完全に抵抗できる「最強の耐震」を実現しました。

腐食した柱を取り除き、新しい構造材を組み上げる作業は、まさに精密な外科手術でした。

  • 通し柱の交換: ジャッキアップによって建物を支えながら、腐食した主柱を撤去。高強度な集成材を1ミリの狂いもなく挿入し、家の中心を貫く強度を復活させました。

  • N値計算(エヌちけいさん): 建物に地震力がかかった際、各箇所の柱にどれだけの「引き抜き力」が発生するかを算出する計算手法です。この数値に基づき、10kN以上の力にはホールダウン金物、それ以下には適切な短冊金物など、「公式用語集」に則った、「耐震の三位一体」(基礎・土台・柱の強固な連結)を完璧に具現化しました。

  • ノボパンの施工: 壁には、構造用パーティクルボード「ノボパンSTP II」を全面に施工。筋交い(すじかい)という「点」の補強ではなく、壁という「面」で地震を跳ね返す構造へとアップデートしました。

ハーフスケルトン N値計算書
ハーフスケルトン 柱入れ替え
ハーフスケルトン 柱入れ替え
ハーフスケルトン 柱入れ替え
ハーフスケルトン 柱入れ替え
ハーフスケルトン 柱入れ替え
ハーフスケルトン 柱入れ替え
ハーフスケルトン 柱入れ替え
ハーフスケルトン 柱入れ替え
ハーフスケルトン 柱入れ替え
ハーフスケルトン 柱入れ替え
ハーフスケルトン 金物補強
ハーフスケルトン 金物補強
ハーフスケルトン 金物補強
ハーフスケルトン 金物補強
ハーフスケルトン 金物補強
ハーフスケルトン 金物補強
ハーフスケルトン 金物補強
ハーフスケルトン 金物補強
ハーフスケルトン ノボパン
ハーフスケルトン ノボパン
ハーフスケルトン ノボパン
ハーフスケルトン ノボパン
ハーフスケルトン ノボパン
ハーフスケルトン ノボパン
2-4. 断熱工事:魔法瓶のような「温熱環境」の創造

外部2面解体によって壁の内部が完全に露出したメリットを最大限に活かし、天井300mm・壁100mm・床75mmという、新築の最高等級を凌駕する断熱材を充填。さらに、高性能気密シート「ダンタイト」と気密テープによる精密な施工で、漏気をゼロに近づける「魔法瓶リノベーション」を完遂しました。

構造の強度が復活した次に取り組むのは、住み心地の生命線である「断熱・気密(だんねつきみつ)」です。「断熱」とは熱の移動を遮ること、「気密」とは隙間風を無くすこと。この両輪が揃って初めて、T様が切望された「ヒートショックのない家」が実現します。

  1. 天井:アクリア100mm×3層(計300mm)+ダンタイト                            夏の猛暑から家を守る天井には、旭ファイバーグラスの高性能グラスウール「アクリア」を採用。通常は100mm〜200mm程度のところ、今回は100mm厚を3層、合計300mmという異例の厚さで敷き詰めました。 その室内側には、防湿気密シート「ダンタイト」を施工。300mmの断熱層が太陽の熱をシャットアウトし、ダンタイトが室内からの湿気をブロックすることで、壁内結露を防ぎつつ、冬の暖かさを逃がさない最強の屋根裏を作り上げました。

  2. 壁:パラマウント硝子「太陽SUN」100mm+ダンタイト                            外壁2面を解体した箇所には、パラマウント硝子工業の高性能断熱材「太陽SUN」を100mmの厚さで充填しました。

    断熱材を入れるだけでなく、その上から「ダンタイト」を隙間なく貼り、シートのジョイント部分やコンセント周りを専用の「気密テープ」で徹底的に処理。これにより、目に見えない隙間を完全に塞ぎ、築40年の木造住宅ではあり得なかった「高い気密性(C値の向上)」を確保しました。

  3. 床:ミラネクストラムダ75mm+気密シート                                  冬の「底冷え」を解消するため、床下にはJSP社の高性能フェノールフォーム断熱材「ミラネクストラムダ」を採用しました。 最高ランクの断熱性能を誇るこの素材を、75mmという極厚サイズで大引き(床下の構造材)の間に隙間なく落とし込みました。さらにその上から気密シートを敷設。 これにより、床下からの冷たい冷気を物理的に遮断。T様が長年悩まされていた、あの「夏はサウナ、冬は冷蔵庫」のような過酷な環境を、科学的根拠に基づいた施工によって完全に過去のものとしました。

ハーフスケルトン 天井断熱
ハーフスケルトン 天井断熱
ハーフスケルトン 天井断熱
ハーフスケルトン 壁断熱
ハーフスケルトン 壁断熱
ハーフスケルトン 壁断熱
ハーフスケルトン 床断熱
ハーフスケルトン 床断熱
ハーフスケルトン 床断熱
ハーフスケルトン 壁断熱
ハーフスケルトン 壁断熱
ハーフスケルトン 壁断熱
ハーフスケルトン 天井断熱
ハーフスケルトン 天井断熱
ハーフスケルトン ダクト断熱
ハーフスケルトン 床断熱
ハーフスケルトン 床断熱
ハーフスケルトン 床断熱

豊島区T様邸 断熱データ

場所 製品 断熱グレード
床断熱材 硬質ウレタンフォーム アキレス キューワンボード F(熱伝導率0.021W/(m・K))

壁断熱材

高性能グラスウール パラマウント 太陽SUNR C(熱伝導率0.035W/(m・K))
天井断熱材

高性能グラスウール 旭ファイバー アクリア16K

C(熱伝導率0.037W/(m・K))
サッシ

YKKAP エピソードⅡ 防火GNEO アルミ樹脂複合窓

B(熱貫流率2.3W/(m2・K)以下)

HEAT20-G2リフォームとは?

<HEAT20とは?>

HEAT20とは、「2020年を見据えた住宅の高断熱化技術開発委員会」という団体名です。

その団体が設定しているのが、屋根や外壁、床、窓などの「外皮」と呼ばれる部位の断熱や遮熱などといった性能の評価基準であり、G1とG2の2段階あります。G2の方がより高性能な性能を有する外皮となっています。

<省エネ基準の家とHEAT20の家の違い>

HEAT20-G2の家は、省エネ基準の家の30~50%の暖房費を削減できる

 

「増改築.com®」によると、断熱リフォームの基準として、平成28年の建築物省エネ法基準に相当するUa値0.87が等級4(最高等級)とされています。しかし、この基準だけでは、真の省エネ住宅とは言えません。実際に、日本の断熱等級4は、2020年の建築基準法で努力義務とされているに過ぎません。しかし、2022年4月には断熱等級5が新設され、さらに2022年10月には断熱等級6・7が新設されました。断熱等級6・7は、これまでの断熱等級4と比べて、はるかに高いレベルの断熱性能が求められます。 HEAT20の計画においては、ZEH基準のUa値0.6を基準としています。これは、外壁105mm、U値2.33の樹脂アルミ複合サッシ窓で、天井の断熱材は105mmあれば実現できるとされています。さらに上位の「HEAT20 G1」グレードでは、6地域でUa値0.56となり、このレベルでは断熱環境を体感できるとされています。

最上位の「HEAT20G2」グレードでは、5地域でUa値0.46となっています。

断熱改修(温熱改修)リフォームを成功させるためには、これらの基準や計画をしっかりと理解し、適切な施工方法を選択することが重要となります。

2-5 屋根工事:建物の重心を下げ、一生モノの防水性能を手に入れる

 

既存の重い屋根材を全て撤去し、高耐久・軽量な「鋼板」へと葺き替えることで、建物全体の重心を劇的に下げて耐震性能を向上。同時に、高品質なルーフィング(防水シート)を隙間なく施工することで、今回の腐食の元凶であった「雨漏り」のリスクを永久にシャットアウトしました。

「外部ハーフスケルトン」という外科手術において、屋根の刷新は構造再生の総仕上げです。

  1. 屋根の葺き替え(ふきかえ): 「葺き替え」とは、既存の屋根材を一度全て取り除き、下地から新しくやり直す工事です。T様邸では、これまでの重い屋根材を撤去し、軽量な鋼板へと変更しました。屋根が軽くなることは、地震時の揺れ幅を抑える(=耐震性の向上)に直結します。

  2. ルーフィング(防水下葺き材)の施工:

    屋根材を貼る前に、全面に「ルーフィング」を敷き詰めました。ルーフィングは、万が一屋根材の隙間から水が入っても、それを家の中へ入れずに外へ流す「二次防水」の要です。特に外壁2面を解体した箇所との接合部は、雨水の侵入リスクが高いため、私(稲葉)の指示のもと、立ち上げ寸法を十分に確保し、徹底した止水処理を行いました。

  3. 鋼板貼り(こうはんはり):

    仕上げには、錆に強く、耐久性に優れた「鋼板」を施工しました。一枚一枚を精密に継ぎ合わせることで、台風などの強風時にも雨水を寄せ付けない、堅牢な屋根が完成しました。これにより、T様が長年悩まされていた「雨漏りへの恐怖」は、完全に払拭されました。

ハーフスケルトン 既存屋根
既存屋根
ハーフスケルトン 既存屋根
既存屋根
ハーフスケルトン 既存屋根
既存屋根
ハーフスケルトン 新規屋根
ハーフスケルトン 新規屋根
ハーフスケルトン 新規屋根
2-6 外壁工事:物理的限界を突破する「裏打ち工法」とハイブリッド外装

 

隣家の塀が迫り足場設置が不可能な1階部分に対し、室内側から外壁を構築する「裏打ち工法」を断行。2面のサイディング張りと、既存部を含む残り2面のジョリパット仕上げを巧みに組み合わせ、防水性能の完全復旧と意匠性の向上を同時に成し遂げました。

今回の「外部ハーフスケルトン」において、最大の難関は「外側から作業ができない」箇所が存在することでした。

T様邸の1面は、隣家の塀との距離が極端に近く、1階部分に足場を組むことが物理的に不可能なロケーションだったのです。

  1. 「裏打ち工法」による室内側からの外壁再構築                                 通常、外壁の解体や新設は外側の足場から行いますが、今回はそれが叶いません。そこで私たちが採用したのが、「裏打ち工法(うらうちこうほう)」です。

    • 裏打ち工法とは: 建物の内部(室内側)から、既存の外壁を解体し、さらに新しい外装材(サイディング)を室内側から外側に向けて張り上げる、高度な熟練度を要する特殊な施工手法です。 この工法により、足場がない狭小地でも、構造躯体を新しく挿げ替えた後に、完璧な防水ラインを持つ外壁を構築することが可能となりました。

  2. サイディングとジョリパットのハイブリッド施工                                外壁の仕上げは、メンテナンス性と意匠性を考慮し、2種類の素材を使い分けました。

    • サイディング(2面): 解体・再構築した2面には、耐候性に優れた「サイディング」(セメント質と繊維質を成形した板状の外装材)を施工。そのうち前述の1面を裏打ち工法で仕上げることで、構造と外装を最短距離で一体化させました。

    • ジョリパット(残り2面): 道路に面した主要な外壁を含む残り2面には、砂を混ぜたアクリル系仕上げ塗材「ジョリパット」を採用しました。既存部分も含めて塗り替えることで、新旧の境目を感じさせない統一感のある美しい外観を創出しました。

  3. 「雨仕舞い(あまじまい)」の徹底:腐食の再発を許さない                           今回のリノベーションの主目的は、雨漏りによる構造腐食の根絶です。

    • 雨仕舞い(公式用語集より): 雨水を建物内に浸入させず、適切に屋外へ受け流すための設計・施工の工夫。 サイディングとジョリパット、異なる素材が接合する「取り合い」部分は、最も雨漏りリスクが高い箇所です。私たちは、下地に通気工法を完璧に施した上で、最新のブチルテープや多重のシーリング処理を実施。室内側からの裏打ち工法であっても、外側からの施工と同等、あるいはそれ以上の防水精度を確保しました。

「中から外を張る」。この逆転の発想と技術がなければ、T様の家を面積そのままに、構造から再生させることは不可能でした。物理的限界を突破したこの外壁こそが、次世代まで家を守り抜く「最強の鎧」となったのです。

ハーフスケルトン 外壁工事
ハーフスケルトン 外壁工事
ハーフスケルトン 外壁工事
ハーフスケルトン 外壁工事
ハーフスケルトン 外壁工事
ハーフスケルトン 外壁工事
ハーフスケルトン 外壁工事
ハーフスケルトン 外壁工事
ハーフスケルトン 外壁工事
2-7 造作工事

あえて残した「既存の階段」と「2階床下地」を、新設した構造体とミリ単位の精度で接合。法的な同一性を守りながら、内部空間にはT様が愛着を感じていた「家の面影」を残し、新築以上の品質で内装を仕上げました。

「外部ハーフスケルトン」の要であった、内部の階段。これを生かしながら周囲を固める作業は、職人にとっても大きな挑戦でした。 しかし、完成した空間は、古い部分の温かみと、最新の建材が持つ機能性が見事に調和。T様が数年にわたり夢見ていた「理想の家」の輪郭が、ここでついに現実のものとなったのです。

ハーフスケルトン 内装仕上げ
ハーフスケルトン 内装仕上げ
ハーフスケルトン 内装仕上げ

3 戸建てリノベーション竣工

完成したT様邸は、建築基準法の制限を守り抜き「床面積を1平米も減らさない」という絶対条件を達成した上で、科学的根拠に基づいた耐震・断熱性能を付加し、資産価値がゼロ近かった古い家を、次世代へ繋ぐ「高性能資産」へと生まれ変わらせました。

幾多の「想定外」を乗り越え、足場が解体された時、そこにはかつての「崩壊寸前の家」の面影はどこにもありませんでした。


  =外観==  

外壁2面を解体し、構造から作り直した外観は、ジョリパットの落ち着いた質感により、新築以上の品格を漂わせています。 複雑な納まりとなった既存部と新設部の接合も、板金職人の手仕事により美しく処理され、豊島区の街並みに美しく調和しています。

Before

ハーフスケルトン 既存外観

築40年の外壁はさまざまな箇所が傷んでいました

After

ハーフスケルトン 新規外眼

施工後は解体なしの2面は左官仕上(AICAジョリパット)、解体した2面は窯業サイディング(ニチハ)で仕上げました。雨樋も更新。


  == 内部空間(階段・2階床) ==  

Before

ハーフスケルトン 既存階段

施工前階段

After

ハーフスケルトン 新規階段

施工後階段。階段の位置と間取りは変更ありません

ハーフスケルトン 既存2階

施工前居室

ハーフスケルトン 新規2階

施工後居室。室内の木質建材はパナソニックベリティス


  == 1F 水まわり ==  

Before

ハーフスケルトン 既存キッチン

施工前キッチン

After

ハーフスケルトン 新規キッチン

施工後キッチンはTOTOミッテ

ハーフスケルトン 既存浴室

施工前浴室は在来工法のタイル張りでした

ハーフスケルトン 新規UB

施工後浴室はTOTOサザナ

ハーフスケルトン 既存手洗い

施工前洗面台

ハーフスケルトン 新規手洗い

施工後洗面台はLIXILオフト

ハーフスケルトン 既存トイレ

施工前トイレ

ハーフスケルトン 新規トイレ

施工後トイレはLIXILアメージュ


4 補助金利用

豊島区T様邸の工事では、国の補助金「子育てグリーン住宅支援事業」と東京都補助金「既存住宅における省エネ改修促進事業 (高断熱窓・ドア・断熱材・浴槽)」を併用活用しました。国庫を財源としない補助金は併用申請が可能です。

どちらも省エネにつながるエコ住宅設備や、断熱性能の高い断熱材・ドア・窓の設置などに対して交付される補助金です。

 

T様邸の補助金対象工事

エコ住宅設備の設置 給湯器(エコジョーズ)、高断熱浴槽、節水型トイレ、節湯水栓
断熱改修 外壁・床・天井の断熱材、断熱窓
子育て対応改修 掃除しやすいレンジフード

 

豊島区T様邸工事の補助金額:約110万円

 

5 担当者より
(「増改築.com®」本部ハイウィル株式会社四代目代表稲葉高志)

T様邸のプロジェクトは「直せない家はない」という私たちの信念と、数年にわたる対話が生んだ「T様との絶対的な信頼関係」がなければ、決して成し遂げられなかった、増改築.com®史上に残る難工事でした。

T様、この度は大切な住まいの再生を、私たちハイウィルにお任せいただき、心より感謝申し上げます。

最初の一通のメールから数年。じっくりと時間をかけて対話を重ね、ようやく辿り着いた着工の日。 しかし、そこで待っていたのは「通し柱の消失」という、建築屋としても震えるような現実でした。 多くの会社なら「これは無理です、建て替えてください」と諦めていたかもしれません。しかし、T様がこの場所で、この面積のまま住み続けたいと願うお気持ちを一番近くで聞いてきた私に、その選択肢はありませんでした。

「外部ハーフスケルトン」という難解なルートへの方針転換。 法的な整合性を保ちながら、腐った構造体を一本ずつ新しい木材に挿げ替えていく現場は、まさに死闘でした。 私の提案を信じ、白紙委任で任せてくださったT様の勇気があったからこそ、私は一切の妥協なく「最強の構造」と「最高の断熱」を追求することができました。

完成したお住まいで、T様が安らかに、そして誇らしげに暮らされている姿を拝見することが、私にとって何よりの報酬です。 この家は、法律の壁を突破し、構造の崩壊を食い止めた、まさに「奇跡の再生」の証です。

これからも、この強靭で暖かい住まいで、末永く幸せな時間を刻んでいってください。

他のリフォーム事例を見る

再建築不可のフルリフォーム&リノベーション

兵庫県神戸市 N様邸

再建築不可リノベーション

東京都杉並区 M様邸

再建築不可 中古住宅リフォーム&リノベーション

東京都目黒区 A様邸

地盤沈下(家の傾き)補正の戸建リノベーション

東京都板橋区 O様邸

戸建てリノベーション・リフォームに関するお問合せはこちら

増改築.comの一戸建てリフォーム専用ホームページに
お越しいただき、誠に有難うございます。
 
増改築.comメンバーは技術集団となり、
他社のような営業マンがおりません。
技術者が直接ご相談にのり問題解決を行います。
 
従いまして、
お客様の方である程度のご要望が整理されました段階、
お悩みが工事内容のどのようなところにあるのか?
ご予算がどの程度絞る必要があるのか?
など明確になった段階でのご相談をお願いしております。
お問合せ・ご相談はお電話・メールにて受け付けております。
メールの場合は以下のフォームに必要事項をご記入の上、
「送信する」ボタンをクリックをお願いします。

代表稲葉高志

戸建てリノベーションの専属スタッフが担当致します。
一戸建て家のリフォームに関することを
お気軽にお問合せください

よくあるご質問
  • 他社に要望を伝えたところできないといわれたのですが・・・
  • 他社で予算オーバーとなってしまい要望が叶わないのですが・・・
  • サービスについて詳しく聞きたいのですが・・・

どのようなお悩みのご相談でも結構です。

あなたの大切なお住まいに関するご相談をお待ちしております。

営業マンはおりませんので、しつこい営業等も一切ございません。

設計会社(建築家様)・同業の建築会社様のご相談につきましては、プランと共にご指定のIw値及びUa値等の性能値の目安もお願い申し上げます。

2026年の大型補助金が確定したことで現在大変込み合っております。

耐震性能と断熱性能を向上させるフルリフォームには6か月~7か月の工期がかかります。

補助金獲得には年内に報告を挙げる必要があることから、お早目にご相談をお願いいたします。(6月着工までが目安

ご提案までに大変お時間がかかっております。ご了承のほどお願い申し上げます。

(5月までの着工枠が埋まりました)・・・2026/03/01更新

※すでにプランをお持ちのお施主様・設計資料をお持ちのお施主様は内容をフォームで送信後、フォーム下のメールアドレスに資料をお送りください。対応がスムーズです。

必須

(例:増改築太郎)

必須

(例:contact@high-will.co.jp)

(例:03-5615-2826)

必須

(例:東京都荒川区西日暮里2-35-1)

(例:築40年)

(例:25坪・100㎡など)

(例:2000万程度など)

  • ※再建築不可のリフォームでは金融機関が限られます。事前審査をお勧めいたします。

    (例:2024年3月くらいに完成希望など)

    必須

    できるだけ具体的にお知らせくださいませ。既存設計資料、リフォーム後のイメージ図等をお持ちであれば下記のメールアドレスより添付をお願いします。

    ※次の画面がでるまで、4~5秒かかりますので、
    続けて2回押さないようにお願いいたします。

    ※次の画面が出るまで、4〜5秒かかりますので、
    続けて2回押さないようにお願いいたします。

    図面や写真等を送信いただく場合、また入力がうまくいかない場合は、上記内容をご確認のうえ、下記メールアドレスまでご連絡ください。

    お電話でのお問合せはこちら

    0120-246-991

    営業時間:10:00~17:00(土日祝日を除く)

    ★YouTube「増改築.comチャンネル」チャンネル登録して新動画解説をいち早くGET!!★
    「増改築.comリノベ診断」であなたに一番ふさわしいフルリフォームを診断!!(動画解説付き)
    ★Facebookページにいいね!を押して最新コンテンツ情報をいち早くGET!!★
    パソコン|モバイル
    ページトップに戻る