戸建フルリフォームなら「増改築.com®」TOP > 施工事例 > 都道府県で探す > 神奈川県 > 横浜> 施工事例 O様 内部スケルトンで叶える「魔法瓶」の家

横浜市O様邸|内部スケルトンで叶える「魔法瓶」の家。天井300mm断熱と制震ダンパー、熱循環グレーチングが創る次世代の住み心地

横浜市 O様邸

 

本プロジェクトは「新耐震基準」のRC基礎を最大限に活かしつつ、内部をフルスケルトン化。N値計算に基づく構造補強に加え、制震ダンパーを搭載し、天井300mmという極厚断熱と「熱循環グレーチング」によって、家中どこにいても温度差のない究極の快適性を実現したリノベーション事例です。

横浜の閑静な住宅街に佇むこの家は、ご主人のo様が求められた「論理的な安全・性能」と、奥様が描かれた「光と暖気に満ちた空間」が、ハイウィルの技術力によって一つになったものです。数年にわたるメールのやり取りを通じて磨き上げられたプランは、既存住宅のポテンシャルを限界まで引き出しました。

建物概要
名前 O様
場所 神奈川県横浜市
築年数 築50年
構造種別 木造一戸建て
家族構成 大人2人 子供2人
対象面積 26.3坪
リフォーム部位 内部全解体、構造補強、断熱・気密化、サッシ交換、設備一新、外壁塗装
工期 5ヶ月
価格 2900万

お客様のご要望

今回のリフォームで、O様からのご要望は以下の3点です。

  • 論理的な安心感: 「なんとなく強そう」ではなく、N値計算や断熱性能値(U値)など、数値で裏打ちされた性能を確保したい。

  • 冬でも素足で過ごせる温かさ: 既存住宅の最大の不満である「寒さ」を根本から解消し、家中を一定の温度に保ちたい。

  • 家族の気配を感じる設計: 1階と2階を熱と視線でつなぎ、開放的かつ機能的なLDKを構築したい。

プランナー 北畠より ~プランニングのポイント~

本プランニングの要諦は「新耐震のRC基礎という既存の資産を活かし、浮いた予算を天井300mmの断熱と制震ダンパーへ再分配したこと」、そして「LDKの暖気を垂直に循環させるグレーチング設計により、エアコン1台で家中を魔法瓶化するパッシブデザインを完遂したこと」にあります。

プランナーとしてO様ご夫婦と向き合った数年間、私が最も腐心したのは「安心を数値化し、かつ暮らしに体温を宿すこと」でした。

1. 予算の戦略的配分:基礎補強から「上部構造・性能」へのシフト

本物件の最大のポテンシャルは、1981年以降の「新耐震基準」に基づいた強固な鉄筋コンクリート(RC)基礎にありました。通常の古い木造住宅リノベーションでは、基礎の打ち増しや補強に多額の予算を割かざるを得ませんが、O様邸ではインスペクションの結果、基礎の健全性が極めて高いことが証明されました。 私はここで、「守りの予算(基礎)」を「攻めの予算(断熱・制震)」へ大胆にシフトする提案をしました。これにより、リノベーションの枠を超えた「天井断熱300mm(アクリア3層)」や「全窓APW330(高性能樹脂サッシ)」という、新築のハイエンド住宅すら凌駕するスペックが実現したのです。

 

2. 「空気の道」をデザインする:グレーチングによる垂直熱循環

奥様のkazue様からいただいた「どこにいても家族の気配を感じ、冬でも暖かく過ごしたい」というご要望。これに対する私の答えが、LDK天井の開口と金属製グレーチングの配置でした。

暖かい空気は上に昇るという物理特性(対流)を逆手に取り、1階LDKの暖気を意図的に2階へ逃がす道を作りました。これにより、2階の廊下やホールに個別の暖房を置かずとも、家全体を包み込むような温熱環境を構築。同時に、グレーチング越しに家族の声や光が通り、上下階の心理的な距離をゼロにする「パッシブ・コミュニケーション・設計」を具現化しました。

 

3. 30mm厚の杉無垢材:足元から始まる「蓄熱設計」

「冬にスリッパを履かずに過ごしたい」というご主人の願い。私はあえて、通常(15mm)の倍の厚みを持つ30mmの杉無垢材を提案しました。 杉は細胞内に多くの空気層を含むため、それ自体が優れた断熱性能を持ちますが、30mmという厚みは「熱を貯める(蓄熱)」という機能を持ちます。日中の太陽光や暖房の熱を床が蓄え、夜間にじわりと放射する。この「足元の熱容量」こそが、魔法瓶のような住まいの快適性を支える隠れた主役なのです。

横浜市O様邸 戸建てリノベーション施工事例テーマカテゴリー

 

  • 耐震等級3相当(上部構造評点1.5以上)リフォーム(性能向上リノベーション)
  • HEAT20-G2リフォーム(性能向上リノベーション)
  • 補助金活用リフォーム

打ち合わせから着工、完成までの詳細施工事例紹介

1 戸建てリノベーション着工前

1-1 現場調査・打合せ

着工前、私たちは詳細な住宅診断(インスペクション)を行いました。

  • 基礎: クラック(ひび割れ)の有無、シュミットハンマーによるコンクリート強度の測定、鉄筋探査。結果、補強不要な健全性が確認されました。

  • 小屋裏・床下: 以前の断熱材の状態を確認。当時は「断熱材があれば良い」という程度の施工であり、多くの隙間と結露の痕跡が見受けられました。

  • 構造: 柱と梁の接合部の状態を確認。

ご主人が最も重視されたのが、耐震性への裏付けです。私たちは、建物が地震の揺れを受けた際に各箇所の柱にかかる「引き抜き力」を算出するN値計算を実施しました。

N値計算(N-value calculation) 地震時に柱が土台や梁から引き抜かれようとする力を係数で表す計算。本事例では、これに基づき「柱頭柱脚金物」を適材適所に選定しました。

横浜市O様邸 既存
横浜市O様邸 既存
横浜市O様邸 既存
横浜市O様邸 既存
横浜市O様邸 既存
横浜市O様邸 既存
横浜市O様邸 既存
横浜市O様邸 既存
横浜市O様邸 既存

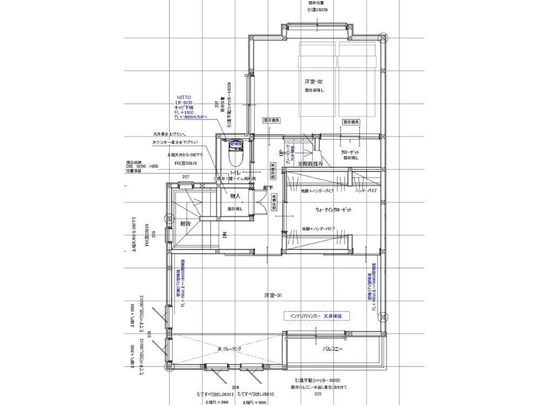
1-2 横浜市O様邸 戸建リノベーションプラン
横浜市O様邸 新規平面図1階

1階 戸建てリノベーション後プラン

横浜市O様邸 新規平面図2階

2階 戸建てリノベーション後プラン

奥様からは、多くのイメージ資料や生活動線のご要望をいただきました。 「1階で料理をしていても、2階にいる子供たちの気配を感じたい。」 「冬の朝、キッチンに立つのが辛くない家にしたい。」 これらの要望を「LDK天井のグレーチング」や「30mmの杉無垢床」といった具体的な仕様へと昇華させていきました。

2 戸建てリノベーション着工

2-1 戸建てリノベーション解体工事

解体は手壊し作業(人力解体)

内装を全て取り払うことで、図面では分からなかった細かな躯体の歪みや、過去の雨漏りの痕跡、さらには木材の痩せを全て顕在化させ、一つひとつ丁寧に「治療」を行いました。

解体現場に立ち会われたO様ご夫婦も、家の骨組みだけになった姿に驚かれました。しかし、これこそが本当の安心を手に入れるための第一歩です。隠れた問題を放置せず、ゼロベースで再構築できるのが、内部スケルトンの真髄です。

横浜市O様邸 解体工事
横浜市O様邸 解体工事
横浜市O様邸 解体工事

大事な構造部のすべてが目視可能となるスケルトンリフォーム

内部の天井・壁・床だけでなく外壁まで解体しスケルトン状態(躯体残し)にする戸建てリノベーションの最大のメリットはこのような重要な主要構造部のすべての状態が目視でわかることになります。

フルリノベーション後は、これらの構造上の弱点をすべて修正し補強することで新築と同水準、もくしくはそれ以上の建物性能をもつ構造躯体へ甦らせることが可能となります。

2-2 基礎補強工事

O様は検査の結果、鉄筋コンクリート基礎であったことがわかりましたので、基礎補強は行いいませんでした。

計算に基づき「耐力壁」を最適な位置に配置し、最新の金物で骨格を緊結。さらに「ノボパンSTP II」で建物全体を箱型に固めました。

  • 耐震補強の要、ノボパンSTP II: 構造用パーティクルボードであるノボパンは、せん断強度が極めて高く、地震の揺れを「点」ではなく「面」で受け止めます。

  • 金物設置: N値計算書に基づき、10kN、15kN、25kNといった適切な強度のボルトやホールダウン金物を設置。

横浜市O様邸 大工工事
横浜市O様邸 大工工事
横浜市O様邸 大工工事
横浜市O様邸 大工工事
横浜市O様邸 大工工事
横浜市O様邸 大工工事
横浜市O様邸 大工工事
横浜市O様邸 大工工事
横浜市O様邸 大工工事

制震ダンパーの搭載:繰り返す揺れに備える

耐震(硬さ)だけでなく、揺れをいなす「制震(しなやかさ)」を付加しました。 制震ダンパーを要所に配置することで、大地震の後の余震においても、建物の接合部が緩むのを防ぎます。これは、長く住み続けるための「資産防衛」の要です。

2-4 断熱工事

天井300mm、壁100mm、床75mmという、新築の最高等級を軽々と超える断熱仕様を実装。特に天井の「アクリア3層施工」は、夏の猛暑を無効化するほどの威力を発揮します。

  1. 天井:アクリア100mm × 3層(300mm)

    旭ファイバーグラス製の高性能グラスウール「アクリア」を、異例の厚さで敷き詰めました。熱抵抗値 $R$ を極限まで高めることで、太陽に焼かれた屋根からの熱気が室内に伝わるのを物理的に遮断します。

  2. 壁:太陽SUN 100mm + ダンタイト

    パラマウント硝子工業の「太陽SUN」を充填。さらにその室内側に、防湿気密シート**「ダンタイト」**を施工しました。

    [重要] ダンタイトの役割

    室内からの湿気が壁の中に入り込むのを防ぎ、壁内結露を防止します。気密テープでシートの重なりをミリ単位で密閉する作業は、まさに職人芸の領域です。

  3. 床:ミラネクストラムダ 75mm

    最高クラスの断熱性能(熱伝導率 0.022 W/m·K以下)を誇るフェノールフォーム断熱材。冬の底冷えを「無」にするための選択です。

 

 開口部の刷新:APW330による遮熱・断熱

住宅の熱損失の約58%は窓からと言われます。既存のアルミサッシを全て撤去し、YKK APの高性能樹脂窓**「APW330」**へ全換装しました。Low-E複層ガラスが、冬の暖房熱を逃がさず、夏の強い日差しを跳ね返します。

横浜市O様邸 断熱工事
横浜市O様邸 断熱工事
横浜市O様邸 断熱工事
横浜市O様邸 断熱工事
横浜市O様邸 断熱工事
横浜市O様邸 断熱工事
横浜市O様邸 断熱工事
横浜市O様邸 断熱工事

横浜市O様邸 断熱データ

場所 製品 断熱グレード
床断熱材 押出法ポリスチレンフォーム ミラフォームラムダ F(熱伝導率0.022W/(m・K))

壁断熱材

高性能グラスウール パラマウント 太陽SUNR C(熱伝導率0.035W/(m・K))
天井断熱材

高性能グラスウール 旭ファイバー アクリア16K

C(熱伝導率0.037W/(m・K))
玄関ドア YKKAP イノベストD50 防火 A(開口部の熱還流率1.9W/(m2・K))以下
サッシ

YKKAP APW330 防火 樹脂窓

A(開口部の熱還流率1.9W/(m2・K))以下

HEAT20-G2リフォームとは?

<HEAT20とは?>

HEAT20とは、「2020年を見据えた住宅の高断熱化技術開発委員会」という団体名です。

その団体が設定しているのが、屋根や外壁、床、窓などの「外皮」と呼ばれる部位の断熱や遮熱などといった性能の評価基準であり、G1とG2の2段階あります。G2の方がより高性能な性能を有する外皮となっています。

<省エネ基準の家とHEAT20の家の違い>
省エネ基準の家とHEAT20の家の違い

HEAT20-G2の家は、省エネ基準の家の30~50%の暖房費を削減できる

 

「増改築.com®」によると、断熱リフォームの基準として、平成28年の建築物省エネ法基準に相当するUa値0.87が等級4(最高等級)とされています。しかし、この基準だけでは、真の省エネ住宅とは言えません。実際に、日本の断熱等級4は、2020年の建築基準法で努力義務とされているに過ぎません。しかし、2022年4月には断熱等級5が新設され、さらに2022年10月には断熱等級6・7が新設されました。断熱等級6・7は、これまでの断熱等級4と比べて、はるかに高いレベルの断熱性能が求められます。 HEAT20の計画においては、ZEH基準のUa値0.6を基準としています。これは、外壁105mm、U値2.33の樹脂アルミ複合サッシ窓で、天井の断熱材は105mmあれば実現できるとされています。さらに上位の「HEAT20 G1」グレードでは、6地域でUa値0.56となり、このレベルでは断熱環境を体感できるとされています。

最上位の「HEAT20G2」グレードでは、5地域でUa値0.46となっています。

断熱改修(温熱改修)リフォームを成功させるためには、これらの基準や計画をしっかりと理解し、適切な施工方法を選択することが重要となります。

2-5 屋根工事

屋根は既存としました。

2-6 外壁リノベーション工事

外壁はサッシ交換の跡を補修し、アイカ工業のジョリパットで仕上げました。職人がコテで描く表情豊かなテクスチャは、工業製品にはない温かみと高級感を醸成します。

横浜市O様邸 外壁工事
横浜市O様邸 外壁工事
横浜市O様邸 外壁工事
横浜市O様邸 外壁工事
横浜市O様邸 外壁工事
2-7 造作工事

 30mm厚の杉無垢床:足裏から伝わる生命力

1階の床材には、30mmという極厚の杉無垢材を採用しました。

  • 蓄熱効果: 厚みがあるため、一度温まると熱を蓄え、冷めにくい性質があります。

  • 調湿作用: 杉の細胞が水分を吸放出することで、夏のジメジメや冬の乾燥を和らげます。

  • 柔らかさ: 膝への負担が少なく、冬でも「ヒヤッ」としない温もりがあります。

 

 

熱循環グレーチング:空気の道をデザインする

結論として、LDKの天井に設けた「グレーチング」は、デザイン上のアクセントであると同時に、1階の暖房熱を効率的に2階へ届けるための「エネルギー管理システム」として機能します。

暖かい空気は上に昇るという物理特性を利用。LDKで温められた空気は、グレーチングを通り抜けて2階のホールや寝室へ。これにより、廊下やトイレに至るまで温度差の少ない「温度のバリアフリー」が実現しました。

横浜市O様邸 造作工事
横浜市O様邸 造作工事
横浜市O様邸 造作工事
横浜市O様邸 造作工事
横浜市O様邸 造作工事

3 戸建てリノベーション竣工

完成直後の冬、O様からは驚きと喜びの声をいただきました。 「以前の家では、朝起きると室温が10度を切っていましたが、今はエアコンを切って寝ても、朝まで18度前後を保っています。」 「素足で歩く杉の床が本当に気持ちよいです。」


  =外観==  

Before

横浜市O様邸 既存

施工前の外観

After

横浜市O様邸 竣工

施工後は一色で統一、AICAジョリパッド左官仕上げ

横浜市O様邸 竣工

表情のあるコテ仕上げは温かみがあります

横浜市O様邸 竣工

施工後の玄関ドアはYKKAPイノベストD50防火ドア


  == LDK ==  

Before

横浜市O様邸 既存

施工前のLDK

After

横浜市O様邸 竣工

施工後はキッチンの位置を変更しました

横浜市O様邸 竣工

施工前は廊下側にあった階段をLDKに組み入れることで開放的な空間となりました。

横浜市O様邸 竣工

LDKの床材は杉無垢板。裸足でも当たりが柔らかくほんのり温かく快適です。


  == 水まわり ==  

Before

横浜市O様邸 既存

After

横浜市O様邸 竣工

施工後の浴室はTOTOサザナ1616サイズ

横浜市O様邸 竣工

キッチンはトクラスコラージア2列I型

横浜市O様邸 竣工

洗面化粧台はTOTOオクターブ

横浜市O様邸 竣工

トイレはハイウィルオリジナル


  == その他居室 ==  

Before

横浜市O様邸 既存

施工前は和室でした

After

横浜市O様邸 竣工

施工後は2部屋をつなげて広い洋室に。下のLDKから暖かい空気がグレーチングを抜けて上がってきます。


4 補助金利用

横浜市O邸の工事では、国の補助金「こどもエコすまい支援事業」と「先進的窓リノベ事業」を活用しました。

省エネにつながるエコ住宅設備や、断熱性能の高い断熱材・ドア・窓の設置などに対して交付される補助金です。

 

O様邸の補助金対象工事

エコ住宅設備の設置 給湯器(エコジョーズ)、高断熱浴槽、節水型トイレ、節湯水栓
断熱改修 外壁・床・天井の断熱材、断熱窓、断熱ドア
子育て対応改修 ビルトイン自動調理対応コンロ、掃除しやすいレンジフード、ビルトイン食洗器、浴室乾燥機

 

横浜市O様邸工事の補助金概算:約85万円

5 担当者より
(「増改築.com®」本部ハイウィル株式会社四代目代表稲葉高志)

O様。 お二人との数年にわたる絆は、私にとってかけがえのない財産です。ご主人の深い知識に基づいたご質問に対し、私もプロとして常に最新の情報を学び、お応えする。その緊張感のある、しかしクリエイティブなやり取りが、この「奇跡の家」を生みました。

内部スケルトンという、一見遠回りに見える手法こそが、家を100年先まで持たせるための唯一の正解であることを、お二人の家が証明しています。

神奈川県の他のリフォーム事例を見る

神奈川県

横浜市川崎市・相模原市・茅ヶ崎市・藤沢市・鎌倉市・逗子市・平塚市・小田原市・三浦郡

他のリフォーム事例を見る

基礎屋さんのお宅の基礎補強
二世帯住宅フルリフォーム

リノベーション
隣家との距離がない!
部屋から外壁を張り替えるフルリノベーション
中古住宅を耐震等級3へ!
中古住宅リノベーション
基礎がない??
築60年の古屋をジャッキアップで基礎新設フルリノベーション

東京都渋谷区 O様邸

戸建てリノベーション・リフォームに関するお問合せはこちら

増改築.comの一戸建てリフォーム専用ホームページに
お越しいただき、誠に有難うございます。
 
増改築.comメンバーは技術集団となり、
他社のような営業マンがおりません。
技術者が直接ご相談にのり問題解決を行います。
 
従いまして、
お客様の方である程度のご要望が整理されました段階、
お悩みが工事内容のどのようなところにあるのか?
ご予算がどの程度絞る必要があるのか?
など明確になった段階でのご相談をお願いしております。
お問合せ・ご相談はお電話・メールにて受け付けております。
メールの場合は以下のフォームに必要事項をご記入の上、
「送信する」ボタンをクリックをお願いします。

代表稲葉高志

戸建てリノベーションの専属スタッフが担当致します。
一戸建て家のリフォームに関することを
お気軽にお問合せください

よくあるご質問
  • 他社に要望を伝えたところできないといわれたのですが・・・
  • 他社で予算オーバーとなってしまい要望が叶わないのですが・・・
  • サービスについて詳しく聞きたいのですが・・・

どのようなお悩みのご相談でも結構です。

あなたの大切なお住まいに関するご相談をお待ちしております。

営業マンはおりませんので、しつこい営業等も一切ございません。

設計会社(建築家様)・同業の建築会社様のご相談につきましては、プランと共にご指定のIw値及びUa値等の性能値の目安もお願い申し上げます。

2026年の大型補助金が確定したことで現在大変込み合っております。

耐震性能と断熱性能を向上させるフルリフォームには6か月~7か月の工期がかかります。

補助金獲得には年内に報告を挙げる必要があることから、お早目にご相談をお願いいたします。(6月着工までが目安

ご提案までに大変お時間がかかっております。ご了承のほどお願い申し上げます。

(5月までの着工枠が埋まりました)・・・2026/03/01更新

※すでにプランをお持ちのお施主様・設計資料をお持ちのお施主様は内容をフォームで送信後、フォーム下のメールアドレスに資料をお送りください。対応がスムーズです。

必須

(例:増改築太郎)

必須

(例:contact@high-will.co.jp)

(例:03-5615-2826)

必須

(例:東京都荒川区西日暮里2-35-1)

(例:築40年)

(例:25坪・100㎡など)

(例:2000万程度など)

  • ※再建築不可のリフォームでは金融機関が限られます。事前審査をお勧めいたします。

    (例:2024年3月くらいに完成希望など)

    必須

    できるだけ具体的にお知らせくださいませ。既存設計資料、リフォーム後のイメージ図等をお持ちであれば下記のメールアドレスより添付をお願いします。

    ※次の画面がでるまで、4~5秒かかりますので、
    続けて2回押さないようにお願いいたします。

    ※次の画面が出るまで、4〜5秒かかりますので、
    続けて2回押さないようにお願いいたします。

    図面や写真等を送信いただく場合、また入力がうまくいかない場合は、上記内容をご確認のうえ、下記メールアドレスまでご連絡ください。

    お電話でのお問合せはこちら

    0120-246-991

    営業時間:10:00~17:00(土日祝日を除く)

    ★YouTube「増改築.comチャンネル」チャンネル登録して新動画解説をいち早くGET!!★
    「増改築.comリノベ診断」であなたに一番ふさわしいフルリフォームを診断!!(動画解説付き)
    ★Facebookページにいいね!を押して最新コンテンツ情報をいち早くGET!!★
    パソコン|モバイル
    ページトップに戻る