このエントリーをはてなブックマークに追加

戸建フルリフォームなら「増改築.com®」TOP施工事例東京都大田区>T様 二世帯住宅リフォーム(部分共有型)耐震等級3

隣家との距離がない....でも外壁を張り替えたい...

築50年の店舗併用住宅を二世帯住宅リフォーム(部分共有型) 東京都大田区※耐震等級3施工事例レポート

大田区T様邸_TOP

 

T様邸の建物は、大田区と目黒区の区境いの大岡山駅北口から環七まで約500m伸びる商店街の中に建っている大変好立地なロケーションの建物です。もともとはご両親が一階でお店をやられており店舗併用住宅となっておりましたが、引退され空き家となっていた建物に、今回お施主様であるT様とT様のお子様世帯が同居されるため、2世帯住宅リフォームを計画されておられました。

数年前からさまざまなリフォーム会社へ相談、現場見学会などにも熱心に通われたそうですが、耐震性能を最高基準(評点1.5以上)、隣家と接している足場が建たない状況での外壁工事、また木造での屋上防水の面での要望を満たす提案がなく、「増改築.com」をご覧いただいて、この度弊社での2世帯住宅リフォームをされました。

建物概要
名前 T様
場所 東京都大田区
築年数 築50年
構造種別 木造戸建て
家族構成 お施主様+息子さん夫婦世帯
対象面積 31.8坪
リフォーム部位 外壁裏打ち工法/抱き基礎(添え基礎)補強/耐震等級3/間取り変更/断熱サッシ取替/外壁サイディング/屋根葺き替え
工期 5ヶ月
価格 2600万円

お客様のご要望

今回のリフォームで、T様からのご要望は以下の7点です。

  • 既存ベランダの防水に悩まされた為、屋上を何とかしてほしい
  • 息子夫婦世帯(子世帯)との間取りを工夫して提案が欲しい
  • 隣家側が密接しているが50年そのままなのでなんかとならないですか
  • 奥は増築しているため2つの建物がつながっている作りの為しっかり補強したい
  • 外壁をモダンにしたい。
  • 結露・カビなどが発生しない仕様にして欲しい
  • 耐震性能を現行の最高基準まで引き上げたい

プランナー 北畠より ~プランニングのポイント~

T様は現場調査にお伺いさせて頂きました際に、明確なプラン設定がございましたのでプランご提案後変更は殆どありませんでした。

1階は、既存店舗で使用していたスペースをリフォーム後はT様の事務所スペースへ。既存お風呂・洗面が階段勾配の下にあり、ご不便を感じていたとお話をお聞きしていたので、浴室・洗面は独立したスペースへ配置させて頂きました。

2階は既存は段差が有ったり、動線が不便だったりとお聞きしておりました。階段を居住スペースの真ん中に持ってきて、2階は洋室2部屋が左右で分かれる様にし、お互いのスペースを程よく離す形でプランをさせて頂きました。

T様邸は、既存も屋上がございましたので今回も屋上は既存を活かし弊社の屋上庭園で納めさせて頂きました。既存は屋上へ上がる階段が1階から2階に上がる階段と離れた場所にあったので、今回は1階から2階、2階から屋上への階段をまとめさせて頂きました。

大田区T様邸 戸建てリノベーション施工事例テーマカテゴリー

 

  • 耐震等級3相当(上部構造評点1.5以上)リフォーム(性能向上リノベーション)
  • 二世帯住宅リフォーム
  • 屋根を屋上リフォーム
  • 裏打ち工法
  • 内外部スケルトンリフォーム

打ち合わせから着工、完成までの詳細施工事例紹介

1 着工前

1-1 現場調査・打合せ

商店街に面したもともとは店舗併用住宅の造りとなっていました。
50年前に商店街に面して建てられたそうですが、その後30年前に裏に増築をして、手前の建物と繋げたとのことでした。
手前の店舗部分の建物と奥のダイニングが別の年代に建てられている事になります。

大田区T様邸_既存

商店街沿いに建つ築50年の店舗併用住宅。外壁は一部サイディングが張ってありました。

大田区T様邸_既存

唯一外壁工事がしやすい建物側面。こちらは外部からの補強が可能と判断しました。

 

大田区T様邸_既存

こ隣家とはこぶし一個分の距離しかないため、裏打ち工法をお勧めしました。

大田区T様邸_既存

何度も雨漏りに泣かされたとのことで特殊金属防水を提案させていただきました。

大田区T様邸_既存

一階の商店街通り面はもともとT様のご両親が営まれていた店舗がそのままの状態となっていました。

大田区T様邸_既存

あとから増設された建物奥から店舗を撮影。間口に対して奥行きがあることがわかります。

大田区T様邸_既存

打ち合わせでも使用させていただいた店舗から小上がりのスペースのダイニング

大田区T様邸_既存

既存の建物には脱衣所がありませんでした。浴室はタイルが割れて水が浸透してしまっているのではないかと予想します。

大田区T様邸_既存

屋上の真下となる既存洋室。隣家側から撮影

大田区T様邸_既存

急こう配の既存階段は二世帯リフォーム後は緩やかに設計します。

大田区T様邸_既存

隣家側に窓は設置できないが対面の側面は駐車場となっているため採光はこちらの壁で設計をします。

大田区T様邸_既存

もともとの旧家屋と後の増築部の接続部

1-2 東京都大田区T様邸 二世帯住宅リフォームプラン

  間取りの変更プラン  

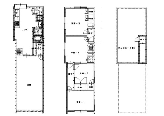
大田区 施工前図面

 既存平面図(二世帯住宅リフォーム前)

大田区 施工図
大田区 施工図
大田区 施工図

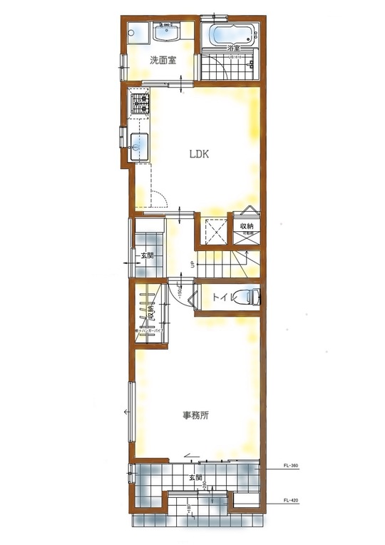
 新規平面図(二世帯住宅リフォーム後)

  二世帯住宅リフォーム後のイメージ  

大田区 パース
イメージパース
大田区 パース
イメージパース

外観のイメージパースです。玄関周りはお色を変えたいとご要望をいただいておりました。既存の建物と骨格は変わらないのですが、外壁を塗装からからサイディングに替わるだけでもガラッと雰囲気が変わってきます。

T様の2世帯住宅リフォーム工事はこうしてはじまりました。

2 着工

2-1 足場・解体
大田区T様邸_解体

内部を躯体状態まで解体した状態(内部スケルトン)

大田区T様邸_解体

写真右側面は隣家と接している部分で隣家との距離は短いところで握りこぶし一個分程度。今回のリフォームではこちらの外壁を室内から解体し、室内側から外壁を張る「裏打ち工法」を採用しました。

大田区T様邸_解体

T様邸二世帯住宅リフォームでは内部スケルトンリフォームをベースとしました。基礎も内部から添え基礎による補強を行います。

大田区T様邸_解体

浴室があった土台周辺は腐食が進んでいることがわかります。
土台、柱の補強差し替えが必要になります。

解体後の躯体チェック

解体が終わり、既存の構造体が現れてくると、手前と奥の構造体の違いや接続方法をどのように納めたのか、基礎の違いなどがはっきりとわかってきます。
手前も奥も土間コンクリートが打たれておりますが、手前の布基礎は無筋基礎、後から建てられた建物の方は鉄筋コンクリート基礎でした。そのため、補強方針も変わって参ります。
今回の東京都大田区T様邸は、耐震等級3への耐震性能向上を図る耐震補強が入りますので、スケルトン(躯体)になった段階で、監督、職人、構造設計、プランナーで綿密な打ち合わせを行います。

大事な構造部のすべてが目視可能となるスケルトンリフォーム

内外部のスケルトンリフォームの最大のメリットはこのような重要な主要構造部のすべての状態が目視でわかることになります。

フルリノベーション後は、これらの構造上の弱点をすべて修正し補強することで新築と同水準、もくしくはそれ以上の建物性能をもつ構造躯体へ甦らせることが可能となります。

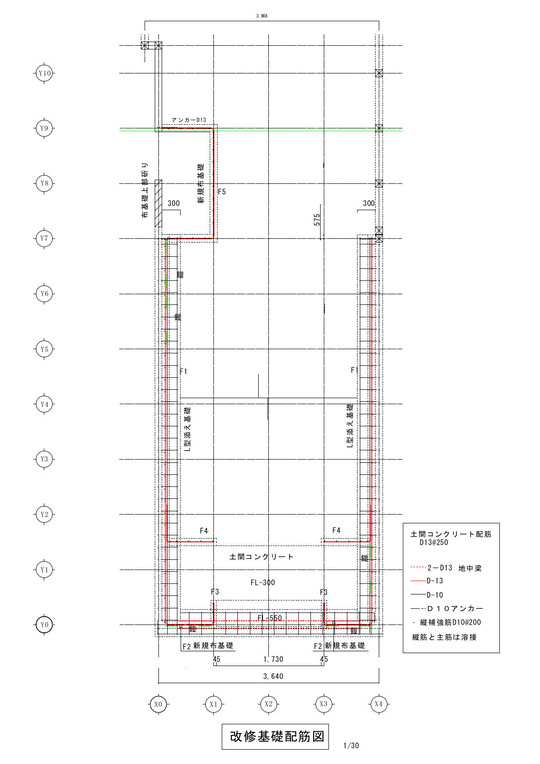
2-2 基礎

東京都大田区大岡山のT様の建物は、50年前に建てられた商店街に面した建物に30年前に庭であった部分に新たに増築した建物がくっついている状態でした。この年代の建物にはよくあるケースとも言えます。
手前の旧家屋の基礎は無筋基礎であったために、ベース300㎜、立ち上がり基礎幅120㎜抱き基礎(添え基礎・増し基礎)補強としました。

大田区T様邸_基礎

50年前の古屋と後から増築された建物の接続部分。基礎の作りが違い事が判ります。

大田区T様邸_基礎

AFRP(アラミド繊維)+基礎閉鎖金物を使用することで抱き基礎(抱え基礎)でのホールダウン金物と同様の働きをします。

大田区T様邸_基礎

旧家屋である手前の基礎は無筋基礎であったことから抱き基礎となります。ベース分までを計算し、カッターを入れていきます。

大田区T様邸_基礎

主筋はD13仕様。既存基礎にケミカルアンカーで一体化をはかります。

大田区T様邸_基礎

150㎜ピッチで差し筋をしていきます。

大田区T様邸_基礎

建物をコの字型に囲むように増し基礎(添え基礎・抱え基礎)をします。もともと基礎のなかった店舗の入り口部も配筋していきます。

大田区T様邸_基礎

写真の中央の柱より奥が初期の建物(添え基礎・抱き基礎部分)

大田区T様邸_基礎

旧家屋と後から建てた建物を抱き基礎(添え基礎・増し基礎)で一体化します。

大田区T様邸_基礎

施工時期が異なる2棟が連なる所謂「ウナギの寝床」型の構造を一体化させます。今回は耐震等級3へと耐震性能を大幅に向上させる工事の為、特許工法である「鎧ガード工法」を採用しました。
 

大田区T様邸_基礎

ここにAFRP(アラミド繊維)は基礎配筋に緊結します。この1箇所で9トン(9000㎏)の引き抜きに耐える特殊素材となります。引き抜き対抗するためのホールダウン金物と同様の効果があります。

大田区T様邸_基礎

場内のコンクリート運搬用に使用するネコ車

大田区T様邸_基礎

ここに既存の店舗入り口部分は間口の両脇に柱が新設されるため、新規で布基礎を制作します。AFRP(アラミド繊維)の上部には壁倍率6.3倍の耐力壁が設置される為、土台・柱といった上部構造体の抜け対策をします。

大田区T様邸_基礎

コンクリートミキサー車がきました。いよいよコンクリート打設となります。商店街のど真ん中での施工となることから早朝に行ったことと小型の2トンミキサー車が2回に分けて運搬を行いました。

大田区T様邸_基礎

ミキサー車より直接、ネコ車に圧送してすぐさま場内へ運搬します。

大田区T様邸_基礎

二班に分かれ、コンクリートを運搬していきます。

大田区T様邸_基礎

打設した脇よりもう一人がバイブレーターを掛けて攪拌し充填性を高めていきます。

大田区T様邸_基礎

ここに基礎天端均しをこの段階より行っていきます。

大田区T様邸_基礎

ここでアンカーを押し込んでいきます。

大田区T様邸_基礎

アンカーの高さをスケールで確認していきます。

大田区T様邸_基礎

AFRP(アラミド繊維)と基礎閉鎖金物、アンカーボルトが固定された状態になりました。

大田区T様邸_基礎

ここに後から増築された奥の建物は鉄筋コンクリート基礎となっていたことから6.3倍の耐力壁との基礎との一体化はAFRP(アラミド繊維)とAFRPと閉鎖金物をあと施工アンカーで固定していきます。

大田区T様邸_基礎

6.3倍といった高倍率の耐力壁は、確かに耐力が高いのですが、あまりしられていないのが、地震が起きた際には、地震力が集中する部分になってきます。その為、基礎との一体化が必須となるのです。

大田区T様邸_基礎

隣家との距離がない側面には外からのアプローチができないため室内からの基礎緊結工事となりました。

大田区T様邸_基礎

外部から耐力壁と基礎の緊結工事を行いました。

大田区T様邸_基礎

抱き基礎って?

フルリフォームやフルリノベーションをする際に、耐震補強工事はセットとなりますが、基礎をしっかりやらない会社がまだまだいます。

国は耐震に関する施策を推進しており、早期に旧耐震の建物を現状の最低耐震水準以上にすることを推奨しておりそのために補助金などを使い耐震化を進めたい思惑でおります。しかし、思うように進みませんでした。その理由は、基礎の補強費用がかかることなどが理由としてあげられます。その為、平成25年の耐震改修促進法改正により基礎補強の義務が実質的に目をつむる形となりました。耐震補強の世界では、建物の数値を評点という指標をもって安全性を確認しますが、この評点の数値が上部構造評点という形で示されております。

上部構造評点とは、土台から上の構造体のことを指しますが、基礎は別建てとなっているのです。基礎の作りにより、上部の構造計算で0.7といった係数をかけ上部で数字を取るという理屈になっています。もちろん基礎は補強しなくてよいとは書かれておりませんが、実際のところは上部に制震ダンパーを設置して、基礎で減点された数値を補うような計算をされていることが多いのです。耐震補強では筋交いを入れて壁倍率を上げたり、合板を張って壁倍率を上げ上部構造評点を上げていく計算が用いられますが、注意しなければいけないのは、壁倍率が高い耐力壁に地震力が集中するという事実です。

壁の倍率を上げると地震力は高倍率の耐力壁に集中することで何が起きるのか?

基礎と土台にせん断力が働き柱や土台が抜けてしまうことになります。熊本地震の被害をみても顕著となりました。

ではこれらの抜けをどう防止するのか?

添え基礎(抱き基礎)をして鉄筋コンクリート基礎を既存の基礎に補強するということです。この際に土台と基礎をホールダウン金物で緊結するということになります。今回のT様邸では特許工法を採用し、ホールダウン金物の代わりに、ホールダウン金物以上の引き抜きに耐えるAFRP(アラミド繊維)を使用しました。このアラミド繊維は通常のアラミド繊維と違い88KN(9t)の引っ張りに耐える特殊素材を使用しています。これらを高倍率の耐力壁を設置する全箇所へ設置しました。

 

「増改築.com」では、無筋基礎へは「添え基礎(抱き基礎)を推奨しています。地盤面がしっかりしていることが確かめられた場合、ベタ基礎への補強をお勧めするケースもございます。

2-3 木工事&構造補強工事

東京都大田区大岡山商店街のT様の建物の耐震性能は、新築での最高耐震等級となる耐震等級3を超える補強計画となっております。
耐震補強の世界では、評点であらわしますが、国の奨励している評点は1となります。新築でいう耐震等級1相当、つまり現行の建築基準法の最低基準が目安とはなりますが、T様邸では、評点1.25(耐震等級2相当)までも超える評点1.5(耐震等級3相当)を超える構造補強計画となっております。許容応力度計算をリフォームでも行い、既存の耐力を外した上で、上部構造評点1.5以上で設計します。つまり既存耐力分を加算すれば評点2.0相当の耐震性能となるわけです。どのような補強をしていくのかみていきましょう。

大田区 詳細図
大田区T様邸_木工事&補強

軸組図に沿って施工していきます。隣家と接している面は455㎜ピッチに間柱を仮止めしていきます。

大田区T様邸_木工事&補強

仮筋交いを入れながら木部補強を行っていきます。

大田区T様邸_木工事&補強

こちらは旧屋上ベランダ。雨漏りに泣かされてきたとのことで、今回は現在の防水層を剥がして、金属防水で施工しなおす計画です。

大田区T様邸_木工事&補強

屋上部の塔屋。二階の床面積の8分の1以下に設計しています。

 

大田区T様邸_木工事&補強

旧家屋と増築された建物の補強

大田区T様邸_木工事&補強

写真右があとから増築された建物。基礎の補強方法も無筋基礎と鉄筋コンクリート基礎の建物では異なります。

大田区T様邸_木工事&補強

既存梁まわりの補強と二階床組みの剛床。

大田区T様邸_木工事&補強

新築でも行っていない会社の多い許容応力度計算をリフォームでも弊社は行います。構造計算の結果こちらの既存梁には耐力が足りないことがわかりました。この梁を抜くことが構造の絡みから難しかったため、特許工法での補強をさせていただきました。他では見ることのできない補強法となります。

大田区T様邸_木工事&補強

トンネルや橋梁の補強工事で多く採用されているアラミド繊維。
住宅では、無筋基礎への補強などに使用されます。多くの場合現場にてアラミド繊維に接着剤をつけますが、これでは品質が安定しないため、弊社では一体成型されたものを使用します。アラミド繊維の強度をみるには繊維の中にある線が何本かで強度がわかります。1本あたり30KNの強度があります。弊社では最も強度の高い3本つまり90KNの強度をもつ最高レベルのシートになります。

大田区T様邸_木工事&補強

ここに説明既存梁の片側よりあらかじめ接着されたプレートを打ち込んでいきます。ビス1本まで耐力計算されていますので指定のビスを決められた本数指定の箇所に打ち込みます。






 

大田区T様邸_木工事&補強

たるみがないよう確認していきます。

大田区T様邸_木工事&補強

もう片側の固定に入ります。最後に専用金具を使い、アラミド繊維にテンションをかけ引っ張ります。

大田区T様邸_木工事&補強

本来の補強法であれば、天井から梁型がでてしまう想定ですが、
こちらの特許工法での梁補強でで既存の8寸梁が1尺梁と同等以上の耐力となります。

大田区T様邸_木工事&補強

ホールダウン金物の納まりをチェックします。

大田区T様邸_木工事&補強

ここに説明高性能グラスウールの為、比重が重く見た目以上に重いです。断熱材をめくり上げチェックをしていきます。

大田区T様邸_木工事&補強

玄関の鉄張り梁補強も軸組図に納め方を明記しています。図面通りに納められているかチェックをしていきます。

大田区T様邸_木工事&補強

隣家と接している面とは逆の外壁面は外からの補強が可能でしたので、外部より置していきます。

大田区T様邸_木工事&補強

構造用合板に図面上の番付を墨出ししてすべての納まりをチェックして写真で保管していきます。

大田区T様邸_木工事&補強

6.3倍の耐力壁で既存の耐力を計算せず耐震等級3で補強計画をしていますので、通常の新築以上の耐力です。

大田区T様邸_木工事&補強

1階のX3、X4通りの補強。基礎とはアラミド繊維で緊結されているため6.3倍の壁倍率となります。

大田区T様邸_木工事&補強

1階X2,X3通りの補強。連続して配置計画した部分です。

大田区T様邸_木工事&補強

上部の補強は桁と固定します。

大田区T様邸_木工事&補強

基礎と土台、柱、桁梁を耐力壁全体で一体化するため6.3倍という壁倍率を実現できているのです。

大田区T様邸_木工事&補強

一階の2世帯共用の玄関部。こちらの面は外部より補強しました。

大田区T様邸_木工事&補強

リフォームで耐震等級3を超える構造補強が完成しました。

2-4 断熱工事

今回の大田区T様邸で採用した断熱材は高性能グラスウールです。通常のグラスウールとは厚み密度が違います。

大田区T様邸_断熱

グラスウール断熱材充填のポイントは何といっても施工精度となります。隙間が少しでもあれば、断熱材としての機能は無くなってしまいます。

大田区T様邸_断熱

全箇所チェックを行い隙間なく充填されているかをチェックします。

大田区T様邸_断熱

壁倍率6.3倍の耐力壁部分は構造用合板を張ります。

大田区T様邸_断熱

ここに説グラスウールの性能は密度です。密度が増えるほどグラスウール中の空気層がより細分化されるので、断熱性能が良くなります。(※密度とは1m3当りの重量kgのことです)今回は熱伝導率 0.038 W/(m・K)の商品を使用しました。

大田区T様邸_断熱

グラスウールは繊維の太さによって断熱性能が変わります。繊維の太さが細い方が繊維の本数が増える為、グラスウール中の空気層がより細分化される為、断熱性能が高くなります。高性能グラスウールは通常のグラスウールよりも繊維が細いのです。

2-5 屋根工事

東京都大田区大岡山のT様邸の屋根工事は、手前の建物は屋根の張り替え、奥の建物は屋上となっており、屋上は雨漏りに泣かされてきたとのお話から、特殊金属防水を提案させて頂きました。
T様邸の屋根工事で苦労したのは、隣家との境界付近の樋の納まりにありました。隣家の雨樋がT様の雨樋を共用している造りとなっていたからです。こちら屋根を葺き替えする際に、雨樋を解体してしまいますので、形状と設置位置が変わってきてしまいます。その為、隣家の方にお話をさせて頂きまして、隣家の方の雨樋工事も合わせてやらせていただくことになりました。

下記の図面を作成し、大工と板金職人に指示を出しました。

大田区 屋根詳細図
大田区T様邸_屋根

隣家側の樋の下にT様宅の谷板金が巻き込む形で納まっていました。

大田区T様邸_屋根

谷板金と木部の造り谷を撤去します。

大田区T様邸_屋根

ルーフィング張り後に壁面に木下地を組み防火サイディングを巻き込む形で鼻隠し板金で納めさせていただきました。

大田区T様邸_屋根

隣家の雨どいの下にT様の雨どいを設置し完全に分離することができました。

2-6 外壁(裏打ち工法)

大田区大岡山商店街沿いのT様邸の二世帯住宅リフォームでは、最も難易度が高かったのが、隣家側の外壁張り替え工事でした。
T様の建物と隣家の建物の壁が広い所で15㎝程しか空いておらず、狭い所になると拳一個分程度しか空いていないところもありました。
T様も一度も触れなかった隣家側の外壁をなんとしても変えたいとのご要望で、大手リフォーム会社数社と地元工務店、リフォーム会社などに相談されたとのことですが、どの会社様も「こちらの面はさわれませんので既存のままになります。」と言われたそうです。

弊社の地元の下町と呼ばれるエリアではこのように、隣家と密接している建物は数多く、中には長屋住宅もまだ数多くありますが、このようなロケーションでの工事を数多く手掛けてきた実績がございます。
あらかじめ外壁にカッターを入れ、チルホールで隣家側の外壁を内側より引っ張り、隣家側ではなく、室内に外壁を引っ張り込み処分し、室内側から45分耐火性能の外壁材を張っていく「裏打ち工法」をご提案させて頂きました。

大田区T様邸_外壁

隣家との離隔距離は150㎜しかありませんので当然足場が建たない状態となっております。

大田区T様邸_外壁

ここ450㎜ピッチで間柱を仮で建てていきます。仮で建てるのは防火サイディングを部屋内から設置する為、間柱を外しながら設置する為です。

大田区T様邸_外壁

ここに450㎜ピッチで間柱が建てられているか、引っ掛ける金物をどこに設置するかをスケールを当てながらみていきます。

大田区T様邸_外壁

レーザーで水平レベルを見ながらブラケットを打ち込んでいきます。

大田区T様邸_外壁

最初に水切りから設置となります。水切りの設置位置を墨出ししていきます。

大田区T様邸_外壁

水切りを室内側から入れ設置に入ります。

大田区T様邸_外壁

奥に行くに従い隣家との距離がなくなっているため施工はかなりの手間がかかります。

大田区T様邸_外壁

水切りが設置されました。ここからはいよいよサイディング張りとなります。

大田区T様邸_外壁

施工後の手入れはまず難しい境界壁になってしまうため採用する素材は強度・耐久・耐候・耐震性に優れた押出成形セメント板サイディングにします。

大田区T様邸_外壁

一階部の一面の裏打ち工法が完了しました。

大田区T様邸_外壁

二階部の裏打ちも完了しました。

大田区T様邸_外壁

基本的に裏打ちをする場合は雨仕舞の観点より窓の設置をお勧めしていません。一部の壁のみが密接しており一部は密接していないような建物のケースでは窓設置の納めも可能です。

大田区T様邸_外壁

耐力壁になる壁スペースには6.3倍の耐力壁制作の墨出しをしておきます。

大田区T様邸_外壁

ここにも6.3倍の耐力壁が設置される事、そして2階と1階を強床工法で補強した為、桁梁にはホールダウン金物で固定します。

3 竣工

約5か月の工事を経て、いよいよ竣工です。
築50年空き家歴10年の戸建てがどのように生まれ変わったのか。
T様邸の様子をご紹介します。


  =外観==  

Before

大田区T様邸_既存

築50年、商店街沿いに佇む店舗併用住宅。しばらくは空き家となっている状態でした。

After

大田区T様邸_竣工

ここに説明パラペットを撤去。正面はT様のオフィスの入り口なりました。

大田区T様邸_竣工

駐車場側の採光は高窓で設計しました。

大田区T様邸_竣工

事務所玄関ドアの廻りは不燃のパネリングで納めて表情を作ってます。

大田区T様邸_竣工

玄関ドアは三共アルミ 防火ドア ファノーバです。


  == 1F 事務所・LDK ==  

1F 新規平面図
大田区T様邸_平面図
事務所Befoer
大田区T様邸_既存

ここに説明

LDK Before
大田区T様邸_既存

ここに説明

大田区T様邸_竣工

事務所玄関を入ったところ。反対側に下駄箱があります。下駄箱はティグランのグリット:シェルフです。

大田区T様邸_竣工

事務所

大田区T様邸_竣工

T様は息子様とサーフィンをされる趣味がありますので、サーフボードを置けるアングルを設置しました。

大田区T様邸_竣工

事務所のLDK側

大田区T様邸_竣工

LDKから事務所

大田区T様邸_竣工

LDKから住居側玄関。

大田区T様邸_竣工

LDKの隣は洗面室


  == 水まわり ==  

Before

大田区T様邸_既存

既存キッチン

大田区T様邸_既存

既存浴室

大田区T様邸_既存

既存洗面台。LDKの一角にありました。

既存トイレ

大田区T様邸_竣工

新しいキッチンは○○の○○

大田区T様邸_竣工

浴室は○○の○○

大田区T様邸_竣工

洗面台は○○の○○

大田区T様邸_竣工

トイレは○○の○○


  == 階段 ==  

Before
大田区T様邸_既存
大田区T様邸_竣工

1階から2階への階段。間取り変更に伴って階段の位置も変わっています。

大田区T様邸_竣工

2階から屋上への階段


  == 2F 洋室 ==  

2F 新規平面図
江戸川区S様邸_平面図
Befoer
大田区T様邸_既存

施工前は2階は洋室4部屋でした。

Before
大田区T様邸_既存
大田区T様邸_竣工

リフォーム後は2階は2部屋とし、収納を充実させました。

大田区T様邸_竣工

駐車場面は高窓を配置し、家具がおけるスペースを確保。

大田区T様邸_竣工

商店街正面の二階部にあたるお部屋。


  == 3F 屋上 ==  

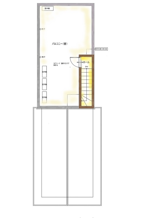
屋上 新規平面図
大田区T様邸_平面図
Befoer
大田区T様邸_既存

屋上既存塔屋

Before
大田区T様邸_既存

既存屋根

大田区T様邸_竣工

金属防水後にタイルを仕上げ材として採用しました。

大田区T様邸_竣工

白い玉砂利が排水の水路となっております。

大田区T様邸_竣工

息子様夫婦とバーベキューが出来るよう水栓も設置しました。

大田区T様邸_竣工

断熱材付の屋根材である断熱トップを使用しました。

ハイウィルスタッフ

4 担当者より(ハイウィル株式会社・大谷)

現在 大手リフォーム会社と工務店に見積もりを進行中ですが、要望が叶わず費用価格もあまりに高いので「増改築コム」に相談させていただきました。というホームページ経由でのご相談がT様から来たのが最初でした。

「叶わないご要望とはなんでしょうか?」とお聞きすると、「隣家との距離が15センチくらいでしてそちら側の外壁が工事できないといわれました。また屋上がウレタン防水しかできないといわれました。御社では耐震でも特許工法を唯一持っているようですし、屋上金属防水や裏打ち技術があると聞いてホームページより問い合わせさせていただきました。」とのことで、弊社へご相談された理由が明確でありました。

本来屋上工事をする場合は、荷重計算をした上でしっかりとした構造計算をしなければなりませんので、今回の二世帯住宅リフォームではゼロから構造計算をさせていただき、評点1.5以上、耐震等級3での耐震補強計画を同時に提案させていただきました。
裏打ち技術がある会社は都内でもごくわずかですし、屋上金属防水かつ屋上荷重を考えた許容応力度計算をリフォームでして「耐震等級3」の構造補強までができる会社は東京では弊社しかおりません。

結果として、T様のご要望に叶う2世帯住宅リフォームになりました。
T様はほぼ毎朝現場に顔を出され、弊社の職人への気遣いまでいただき大変お世話になりました。工事の仕上がりにもご満足頂き誠に有難うございます。

T様、この度はご依頼をいただき、誠にありがとうございました。

画像をクリックすると解説ページにジャンプします。

全国のフルリフォーム・リノベーション『ピックアップ事例』※プロの詳細解説付きレポート

HEAT20-G2/耐震等級3
新耐震基準の性能向上リノベーション
築30年ハウスメーカー軽量鉄骨
断熱改修&リノベーション
 
中古住宅を新築以上の耐震性能と断熱性能へ!
耐震等級3フルリフォーム
地下付き木造2階建て
自然素材をつかった性能向上リノベーション&フルリフォーム

東京都文京区 K様邸

長屋を切り離して1つの構造体へフルリフォーム&リノベーション
隣家との距離がない!
部屋から外壁を張り替えるフルリノベーション
中古住宅を耐震等級3へ!
中古住宅リノベーション
 
基礎がない??
築60年の古屋をジャッキアップで基礎新設フルリノベーション

東京都渋谷区 O様邸

戸建てリノベーション・リフォームに関するお問合せはこちら

増改築.comの一戸建てリフォーム専用ホームページに
お越しいただき、誠に有難うございます。
 
増改築.comメンバーは技術集団となり、
他社のような営業マンがおりません。
技術者が直接ご相談にのり問題解決を行います。
 
従いまして、
お客様の方である程度のご要望が整理されました段階、
お悩みが工事内容のどのようなところにあるのか?
ご予算がどの程度絞る必要があるのか?
など明確になった段階でのご相談をお願いしております。
お問合せ・ご相談はお電話・メールにて受け付けております。
メールの場合は以下のフォームに必要事項をご記入の上、
「送信する」ボタンをクリックをお願いします。

代表稲葉高志

戸建てリノベーションの専属スタッフが担当致します。
一戸建て家のリフォームに関することを
お気軽にお問合せください

よくあるご質問
  • 他社に要望を伝えたところできないといわれたのですが・・・
  • 他社で予算オーバーとなってしまい要望が叶わないのですが・・・
  • サービスについて詳しく聞きたいのですが・・・

どのようなお悩みのご相談でも結構です。

あなたの大切なお住まいに関するご相談をお待ちしております。

営業マンはおりませんので、しつこい営業等も一切ございません。

設計会社(建築家様)・同業の建築会社様のご相談につきましては、プランと共にご指定のIw値及びUa値等の性能値の目安もお願い申し上げます。

2026年の大型補助金が確定したことで現在大変込み合っております。

耐震性能と断熱性能を向上させるフルリフォームには6か月~7か月の工期がかかります。

補助金獲得には年内に報告を挙げる必要があることから、お早目にご相談をお願いいたします。(6月着工までが目安

ご提案までに大変お時間がかかっております。ご了承のほどお願い申し上げます。

(5月までの着工枠が埋まりました)・・・2026/03/01更新

※すでにプランをお持ちのお施主様・設計資料をお持ちのお施主様は内容をフォームで送信後、フォーム下のメールアドレスに資料をお送りください。対応がスムーズです。

必須

(例:増改築太郎)

必須

(例:contact@high-will.co.jp)

(例:03-5615-2826)

必須

(例:東京都荒川区西日暮里2-35-1)

(例:築40年)

(例:25坪・100㎡など)

(例:2000万程度など)

  • ※再建築不可のリフォームでは金融機関が限られます。事前審査をお勧めいたします。

    (例:2024年3月くらいに完成希望など)

    必須

    できるだけ具体的にお知らせくださいませ。既存設計資料、リフォーム後のイメージ図等をお持ちであれば下記のメールアドレスより添付をお願いします。

    ※次の画面がでるまで、4~5秒かかりますので、
    続けて2回押さないようにお願いいたします。

    ※次の画面が出るまで、4〜5秒かかりますので、
    続けて2回押さないようにお願いいたします。

    図面や写真等を送信いただく場合、また入力がうまくいかない場合は、上記内容をご確認のうえ、下記メールアドレスまでご連絡ください。

    お電話でのお問合せはこちら

    0120-246-991

    営業時間:10:00~17:00(土日祝日を除く)

    ★YouTube「増改築.comチャンネル」チャンネル登録して新動画解説をいち早くGET!!★
    「増改築.comリノベ診断」であなたに一番ふさわしいフルリフォームを診断!!(動画解説付き)
    ★Facebookページにいいね!を押して最新コンテンツ情報をいち早くGET!!★
    パソコン|モバイル
    ページトップに戻る