このエントリーをはてなブックマークに追加

戸建てフルリフォームなら「増改築.com®」TOP施工事例都道府県で探す東京都豊島区M様 再建築不可物件を耐震等級3(評点1.5)へのリノベーション

二世帯住宅リノベーション事例※再建築不可を耐震等級3へ※東京都豊島区 

豊島区M様邸_TOP画像

 

M様は豊島区池袋駅より徒歩10分圏内という好立地での再建築不可物件を購入され、数社のリノベーション会社へご相談されておりましたが、M様のご要望に沿う提案がなかなかなく、再建築不可の戸建てリノベーション実績が豊富なハイウィルへご相談されたのが最初の出会いでした。
超都心の好立地の再建築不可を弊社でも幾度となくリノベーションさせて頂いて参りましたが、今回の物件は好立地かつ建物の面積も超都心としては大きく購入費用もそれ相応の価格となっておりましたため、新築同様の戸建てリノベーションとしながらも、予算を極力抑えたいご要望でした。

建物概要
名前 M様
場所 東京都豊島区
築年数 築40年
構造種別 木造戸建
家族構成

大人5人

対象面積 28.3坪
リフォーム部位 1階改装/2階内部スケルトンリフォーム/添え基礎/間取り変更/断熱サッシ/耐震等級3/
工期 5ヶ月
価格 1900万

お客様のご要望

今回の戸建てリノベーションで、M様からのご要望は以下の5点です。

  • 地震が不安なので、耐震等級3での耐震補強をしてほしい。
  • 2階を子世帯(施主である息子様世帯)でオープンな空間にしたい
  • 1階を親世帯とし、2階は大幅な間取り変更をしたい
  •  デザインをニューヨークのカフェのようなイメージ

  • 既存の屋根裏スペースをロフトとして有効活用したい

M様はご自身でリフォーム後のイメージが明確であった為、再建築不可物件購入後、さまざまなリフォーム会社(業者)を現地に呼んでご要望をお伝えし業者からの提案を受けておりました。大手ハウスメーカー系のリフォーム会社や地元工務店、リフォーム専業の会社などなど4社に「2階をオープンにして耐震性能を新築の最高水準レベルまで性能向上させたい」というものでした。

どの会社もオープンにすると耐力壁が少なくなり耐震性能が落ちるという提案だったそうです。確かに耐力壁が少なくなるということは壁倍率が取れない為、耐震性能は下がってしまいます。抜く柱が増えるため梁の補強法の難易度が上がります。M様のご要望を叶える為には、一般的な耐震補強では難しい事がわかりました。最後に「増改築.com」へご相談頂いたM様へは、壁倍率6.3倍を実現できる特許工法のご紹介と構造計算(許容応力度計算)をさせていただき、ご要望の空間を作るためにはどのような補強計画が必要なのかをじっくり説明させていただき当方へのご依頼となりました。

プランナー 北畠より ~プランニングのポイント~

M様邸は、再建築不可の中古戸建(一軒家)物件をご購入後弊社へリノベーションのご相談を頂きました。

現場調査をさせて頂いた時点で、何社かのリノベーション、リフォーム会社様とお話をされていただのでM様のリノベーション後のイメージはとても明確でした。1階の間取りは基本既存のままで、トイレ・洗面所の場所を移設をしました。その他は、壁・天井の壁紙のお取替え、1部屋床暖房の設置。2階は既存、リビングダイニングと和室・洋室があったのですがワンフロアにし全て開放的にするとご要望を頂きました。

耐震補強の構造計算をしているので、大きくワンフロアを取る事を可能にしております。

既存も小屋収納があったのですが、ここも2階のワンフロアから見られる様開放的に納めさせて頂いております。

今回、2階は小屋裏収納がない方の天井は構造をあらわしにして納めさせて頂いております。あらわし様に組まれておらず、化粧がしてある構造ではないので塗装で仕上げさせて頂きました。

 

 

豊島区M様邸 戸建てリノベーション施工事例テーマカテゴリー

  • 耐震等級3相当(上部構造評点1.5以上)リフォーム(性能向上リノベーション)
  • 中古住宅購入+リフォーム
  • 二世帯住宅リフォーム
  • 再建築不可リフォーム
  • 内部スケルトンリフォーム

再建築不可戸建てリノベーション:打ち合わせから着工、完成までの詳細施工事例紹介

  ▼  CONTENTS  ▼  

1 着工前(再建築不可のロケーションをチェック)

1-1 現場調査・打合せ

M様の豊島区南池袋の再建築不可物件は、建築基準法上の道路に敷地が接道しておらず、再建築不可となっておりました。戸建てリノベーションをする際には搬入経路が厳しい現場になると予測ができます。

豊島区M様邸_既存外観

既存建物

豊島区M様邸_既存外観

既存建物玄関

M様の建物は建築基準法上の道路に敷地が接道していないため、再建築不可となっている状態でした。通路には1.8m以上接道していますが、建築基準法上の道路へは通路を通らないと道路に出れない敷地であることがわかります。


豊島区M様邸_既存2階

既存2階和室と洋室。リノベーション後は2階は隣のLDKを含めて大きなひと間続きのLDKになります。

豊島区M様邸_既存1階

既存1階洋室は親世帯の空間となります。こちらのお部屋はリノベーション後には床暖房設置します。

豊島区M様邸_既存1階

既存1階の床の間のある和室

豊島区M様邸_既存1階

1階廊下

豊島区M様邸_既存階段

1階から2階への階段


豊島区M様邸_既存浴室

既存の在来浴室

豊島区M様邸_既存洗面室

既存脱衣所

豊島区M様邸_既存トイレ

既存1階トイレ


豊島区M様邸_既存ロフト

屋根裏部屋

豊島区M様邸_既存ロフト

屋根裏部屋には折り畳み式の階段で登る仕様でした。

M様の前の持ち主の方が何度か工事をしている作りになっており玄関が二つありました。1つの玄関は増築されておりブロック基礎となっている状態で耐震上良くない構造となっていました。今回のリノベーションでは、2階をスケルトン状態にして、1階は間取り変更は1部として居室部分は改装にとどめ費用を圧縮しました。


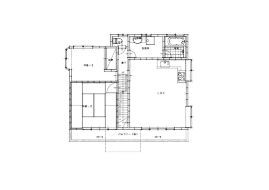
1-2 東京都豊島区M様邸 再建築不可戸建リノベーションプラン

  間取り変更プラン  

豊島区M様邸_既存図面
豊島区M様邸_既存図面
豊島区M様邸_既存図面

既存平面図

矢印
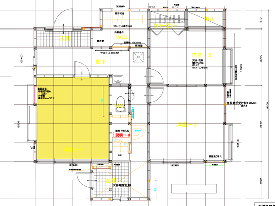
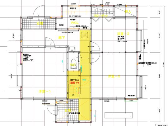
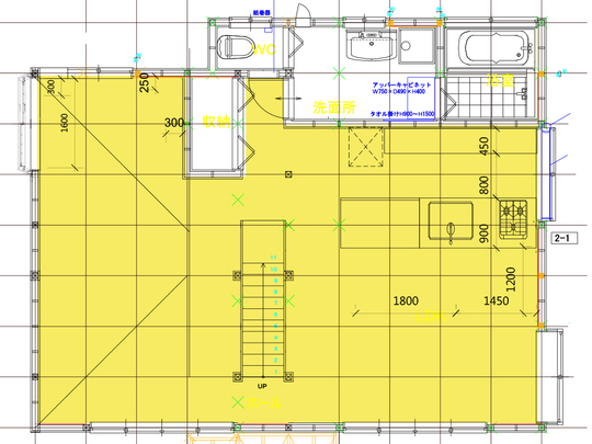
豊島区M様邸_新規図面
豊島区M様邸_新規図面
豊島区M様邸_新規図面

フルリフォーム後平面図

※ここに説明

  耐震等級3実現への戸建てリノベーションプラン  

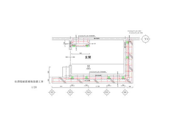
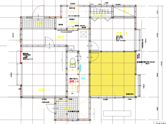
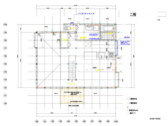
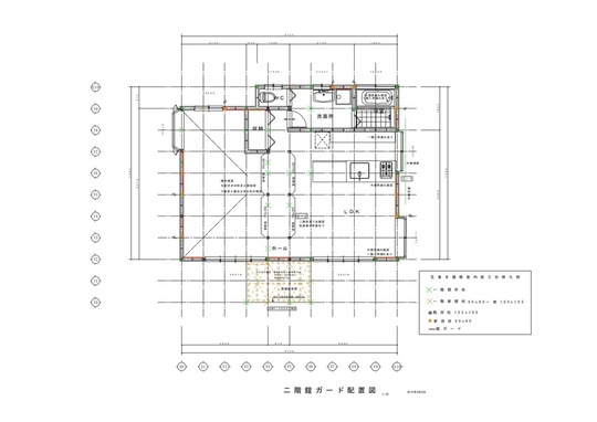
豊島区M様邸_新規図面

鎧ガード1階配置図

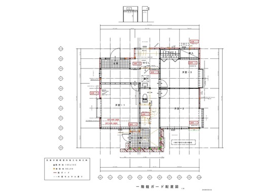
豊島区M様邸_新規図面

鎧ガード2階配置図

M様邸のリノベーションプランは、1階スペースは改装、2階スペースは中央にロフト階段で大空間LDKを仕切る間取りとなっていました。その為、内壁を解体しない1階部分は外部からの耐震補強、内壁をすべて解体する2階スペースは内壁からの耐震補強を計画しました。

木工事での2階梁補強がポイントになることと1階部の増築部分のブロック基礎への添え基礎補強が必須となる補強計画です。

M様の耐震等級3への戸建て戸建リノベーション工事はこうしてはじまりました。

2 再建築不可戸建てリノベーションの着工

2-1 足場・解体
豊島区M様邸_解体

M様邸の戸建てリノベーションでは一階は部分解体、二階スケルトンとなりますため、一階の解体はリフォーム部位のみの解体となります。

豊島区M様邸_解体

床暖房設置予定の1階居室の解体

豊島区M様邸_解体

二階はワンフロアにする計画のためスケルトン状態まで解体致します

豊島区M様邸_解体

リノベーション後にダイニングとなる2階スペース

豊島区M様邸_解体

柱を抜いた為梁補強を加えていきます。

豊島区M様邸_解体

M様邸の2階は大空間のLDKとなりLDK中央からオープン階段でロフトに上がれる設計となっています。

豊島区のM様邸の2世帯住宅リノベーションでは、1階部は改装、2階部は躯体残しのスケルトンとなっておりますので、解体のボリュームは2階のウェイトが高くなります。また2階はオープンなLDKとなり、中央に新たに新設されるロフト階段部の柱でリビングとダイニングを梁で補強する計画となります。柱の抜く箇所が多くなることから、解体時に一部の梁補強を加えながら丁寧に解体をしていきます。

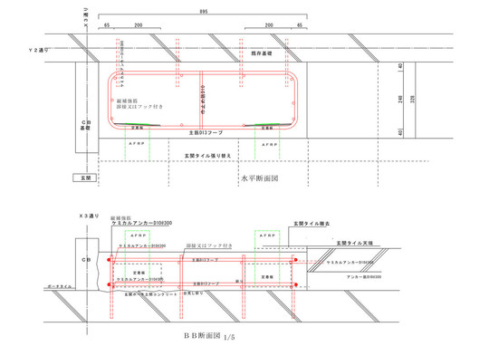
2-2 基礎補強

豊島区南池袋のM様邸は、既存の建物の布基礎が、無筋基礎ではなく鉄筋コンクリート基礎でした。

しかしながら、比較的新しく増築をされた形跡があり、増築部の基礎がブロック基礎となっていました。

基礎補強の方法として、構造計算の結果、無筋基礎の増築部へは添え基礎補強をする方針で計画をさせていただきました。

豊島区M様邸_基礎
豊島区M様邸_基礎
豊島区M様邸_基礎
豊島区M様邸_基礎

調査の結果、一階の増築された玄関部のみブロック基礎であることが判り、ブロック基礎部分は添え基礎補強となりました。

豊島区M様邸_基礎

既存土間のカッター入れ

豊島区M様邸_基礎

既存土間部分のハツリ工事

豊島区M様邸_基礎

ハツリが終わると根伐り工事にはいります。

豊島区M様邸_基礎

根伐り後の転圧工事

豊島区M様邸_基礎

転圧後の砕石工事

豊島区M様邸_基礎

砕石後に転圧

豊島区M様邸_基礎

ハンマードリルで10㎜のアンカー工事をします

豊島区M様邸_基礎

アンカー工事

豊島区M様邸_基礎

アンカー

豊島区M様邸_基礎

添え基礎の配筋組み工事

豊島区M様邸_基礎

添え基礎配筋完了

豊島区M様邸_基礎

コーナー出隅部分の納まり

豊島区M様邸_基礎

耐力壁と一体化させるためのアラミド繊維AFRPを配筋に固定緊結します

豊島区M様邸_基礎

コンクリート打設前に型枠を設置します

豊島区M様邸_基礎

コンクリート打設

豊島区M様邸_基礎

打設後の枠外し

豊島区M様邸_基礎

添え基礎完了

豊島区M様邸_基礎

AFRPを鎧ガードに固定後既存外壁を復旧します。

豊島区M様邸_基礎

無筋基礎への添え基礎(抱き基礎)補強

添え基礎(抱き基礎)補強とは

戸建てリノベーションをする際に、耐震補強工事はセットとなりますが、基礎をしっかりやらない会社がまだまだいます。

平成25年の耐震改修促進法改正により基礎補強の義務が実質的に目をつむる形となったことと、工事の難易度が高いこと、費用がかかることなどが理由としてあげられますが、耐震改修の世界では、建物の数値を評点という指標をもって安全性を確認しますが、この評点の数値が上部構造評点という形で示されております。

上部構造評点とは、土台から上の構造体のことを指しますが、基礎は別建てとなっているのです。基礎の作りにより、上部の構造計算で0.7といった係数をかけ上部で数字を取るという理屈になっています。もちろん基礎は補強しなくてよいとは書かれておりませんが、実際のところは上部に制震ダンパーを設置して、基礎で減点された数値を補うような計算をされていることが多いのです。

「増改築.com」では、無筋基礎へは「添え基礎(抱き基礎)を推奨しています。地盤面がしっかりしていることが確かめられた場合、ベタ基礎への補強をお勧めするケースもございます。

 

2-3 大工工事

豊島区M様邸戸建てリノベーションの木工事のポイントは梁の補強です。柱を抜く箇所が多く、中央に配置されたロフトへのオープン階段脇に配置された柱のみで大空間を支える設計となっているからです。梁の納め方、使用する金物まですべて指示をして構造計算通りに施工をしていきます。

豊島区M様邸_大工工事

M様邸リノベーション後の2階はダイニングとリビングを中央のデザイン階段で仕切る大空間となります。柱を抜く箇所が多くなるために構造計算をして、外周面への耐力壁補強と同時に梁補強をおこなっていきます。

豊島区M様邸_大工工事

階段部の梁補強

豊島区M様邸_大工工事

リビングとなるスペースは梁スパンが長い為H鋼での梁補強となりました。既存の梁を金物補強の上、新設する梁にも補強を加えていきます。

豊島区M様邸_大工工事

外周面には壁倍率6.3倍の鎧ガードを設置。耐震等級3(評点1.5)で許容応力度計算をしています。

豊島区M様邸_大工工事

リビングへはH鋼での梁補強をしました。再建築不可の現場では大型トラックが進入不可であることやクレーンの進入も難しいことから鉄骨の搬入が困難なケースが多いですが、人海戦術で施工しました

豊島区M様邸_大工工事

再建築不可での戸建てリノベーションはロケーションが悪いケース多く、今回も搬入搬出は大変でした。さらに搬入後の資材の仮置きが出来ないために一部屋を資材置き場として利用して工事を進めました。

 

2-4 耐震補強工事
豊島区M様邸_鎧ガード

M様邸では、新築での最高基準相当の耐震性能まで上げたいとのご要望から、壁倍率6.3倍の特殊工法を採用させていただきました。


昨今たくさんの高壁倍率商品が出回っておりますが、高倍率になればなるほど地震の際には、引き抜き力が高倍率の耐力壁に集中します。つまり、高倍率になる耐力壁には基礎と土台を緊結するホールダウン金物が必須となりますが、壁倍率が高い商品はホールダウン金物での補強までは面倒を見てくれません。

このような工法はその現場に応じてセレクトしていきんす。

豊島区M様邸_鎧ガード

構造計算から補強プレートの設置位置が確定します。設置位置となる6.3倍の耐力壁の外壁にカッターを入れていきます。

豊島区M様邸_鎧ガード

9㎜の合板にはシールを張り構造部に打つ釘の数も指定されています。

豊島区M様邸_鎧ガード

既存基礎が鉄筋コンクリート基礎である場合はあと施工アンカー工法による基礎緊結を行います。

豊島区M様邸_鎧ガード

補修前に防水透湿シートを張ります。

豊島区M様邸_鎧ガード

塗装前のモルタル補修

豊島区M様邸_鎧ガード

塗装前のモルタル補修

豊島区M様邸_鎧ガード

M様邸は2階はスケルトンの為、外部からの補強ではなく、内部からの補強となりました。室内の所定の位置に鎧ガードを設置していきます。

豊島区M様邸_鎧ガード

壁倍率6.3倍の工法を使用することで、オープンな間取りへのリノベーションが可能となります。

豊島区M様邸_鎧ガード

二階も構造計算で偏心率を出しているため指示された所定の位置への設置が必要となります。

豊島区M様邸_鎧ガード

最も重要な一階との連結する耐力壁

M様邸は、1階は表層工事(親世帯)、2階は内部も躯体状態にする戸建てリノベーション(M様世帯)の2世帯住宅リノベーションとなりますので、補強計画は、1階と2階で変えました。

1階は内壁を解体する箇所が少ないことから、外部からの耐震補強を選択。2階につきましては、躯体残し状態となることから、外周面の内壁への補強計画を立案。

M様邸の基礎は、前の持ち主の方がやられた増築部以外は鉄筋コンクリート基礎であったため、増築部の無筋基礎(ブロック基礎)部分を添え基礎(抱き基礎)補強とし、鉄筋コンクリート基礎部はあと施工アンカーでのAFRP補強としました。

2-5 内装仕上げ

基礎補強→木構造の補強まで完了するとはじめて、造作工事へと移行していきます。

豊島区M様邸_仕上げ
豊島区M様邸_仕上げ
豊島区M様邸_仕上げ
豊島区M様邸_仕上げ
豊島区M様邸_仕上げ
豊島区M様邸_仕上げ

3 竣工

約5か月の工事を経て、いよいよ竣工です。

築40年中古住宅、かつ再建築不可の建物でありながら、耐震等級3相当(評点1.5以上)をクリアして2世帯住宅に生まれ変わったM様邸の様子をご紹介します。


  == 2F LDK ==  

豊島区M様邸_新規平面図
Before
豊島区M様邸_既存

リノベーション前は2階は和・洋室とLDKの3部屋に中央に階段のある間取りでした。

リノベーション後は家具のイメージに合わせ塗装やダイノックシート等を使用し施工させていただきました。

豊島区M様邸_竣工

TJMテンダ―ウォールシリーズの収納に合わせ山小屋風にリビングをデザインしました。

豊島区M様邸_竣工

梁は現し仕上げとし圧迫感がでないようにデザインしました。

豊島区M様邸_竣工

テレビボードを含む収納棚は、TJMテンダ―ウォールシリーズです。重厚感があります。

豊島区M様邸_竣工

ここに説明

豊島区M様邸_竣工

ここに説明

豊島区M様邸_竣工

ここに説明

豊島区M様邸_竣工

ここに説明

豊島区M様邸_竣工

ここに説明

豊島区M様邸_竣工

ここに説明

豊島区M様邸_竣工

ここに説明

豊島区M様邸_竣工

ここに説明

豊島区M様邸_竣工

ここに説明

豊島区M様邸_竣工

ここに説明

豊島区M様邸_竣工

ここに説明


  == ロフト ==  

豊島区M様邸_新規平面図
Before
豊島区M様_既存

折り畳み式の階段を下ろして上がる屋根裏部屋でした。

豊島区M様邸_竣工

ここに説明

豊島区M様邸_竣工

ここに説明

豊島区M様邸_竣工

ここに説明

豊島区M様邸_竣工

ここに説明


  == 1F・2F 水まわり ==  

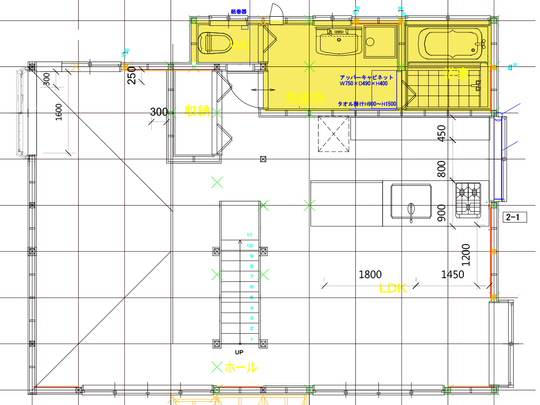
豊島区M様邸_新規平面図

1階

豊島区M様邸_新規平面図

2階

Before

no image

既存キッチンの写真を取り損ねてしまいました。。。

豊島区M様邸_既存

在来工法のタイル張りのお風呂

豊島区M様邸_既存

広い洗面室です

豊島区M様邸_既存

タイル張りのトイレ

キッチン
豊島区M様邸_竣工

TJMデザインシステムキッチン ポポラート型 間口3600。キッチン収納はTJMバックセットA2 家電収納付き間口2750です。

浴室
豊島区M様邸_竣工

LIXILアライズ1616サイズ

洗面室
豊島区M様邸_竣工

2階の洗面室です。LIXILピアラW900

豊島区M様邸_竣工

1階廊下に洗面台を設置しました。LIXIL リフラW600です。

トイレ
豊島区M様邸_竣工

トイレは1,2階とも当社オリジナルトイレです。

豊島区M様邸_竣工

  == 1F 廊下・WIC ==  

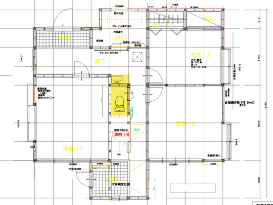
豊島区M様邸_新規平面図
Before
豊島区M様邸_既存
After
豊島区M様邸_竣工

Beforeの写真とは反対側から廊下を見ています。階段下の収納とトイレのドアが見えます。

豊島区M様邸_新規平面図
Before
豊島区M様邸_既存

こちらは1階の洗面・トイレがあったスペースです。

After
豊島区M様邸_竣工

ウォークインクロゼットを造作しました。


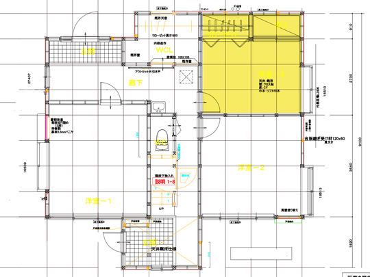
  == 1F 洋室 ==  

豊島区M様邸_新規平面図
Before
豊島区M様邸_既存
After
豊島区M様邸_竣工
豊島区M様邸_新規平面図
Before
豊島区M様邸_既存
After
豊島区M様邸_竣工
豊島区M様邸_新規平面図
Before
豊島区M様邸_既存
After
豊島区M様邸_竣工
ハイウィルスタッフ

4 担当者より(ハイウィル株式会社・大谷)

 

M様、この度はご依頼をいただき、誠にありがとうございました。

画像をクリックすると解説ページにジャンプします。

パターン別『再建築不可リノベーション施工事例6選』これさえ読めば再建築不可のポイントがわかる!

全国のフルリフォーム・リノベーション『ピックアップ事例』※プロの詳細解説付きレポート

HEAT20-G2/耐震等級3
新耐震基準の性能向上リノベーション
築30年ハウスメーカー軽量鉄骨
断熱改修&リノベーション
 
中古住宅を新築以上の耐震性能と断熱性能へ!
耐震等級3フルリフォーム
地下付き木造2階建て
自然素材をつかった性能向上リノベーション&フルリフォーム

東京都文京区 K様邸

長屋を切り離して1つの構造体へフルリフォーム&リノベーション
隣家との距離がない!
部屋から外壁を張り替えるフルリノベーション
中古住宅を耐震等級3へ!
中古住宅リノベーション
 
基礎がない??
築60年の古屋をジャッキアップで基礎新設フルリノベーション

東京都渋谷区 O様邸

戸建てリノベーション・リフォームに関するお問合せはこちら

増改築.comの一戸建てリフォーム専用ホームページに
お越しいただき、誠に有難うございます。
 
増改築.comメンバーは技術集団となり、
他社のような営業マンがおりません。
技術者が直接ご相談にのり問題解決を行います。
 
従いまして、
お客様の方である程度のご要望が整理されました段階、
お悩みが工事内容のどのようなところにあるのか?
ご予算がどの程度絞る必要があるのか?
など明確になった段階でのご相談をお願いしております。
お問合せ・ご相談はお電話・メールにて受け付けております。
メールの場合は以下のフォームに必要事項をご記入の上、
「送信する」ボタンをクリックをお願いします。

代表稲葉高志

戸建てリノベーションの専属スタッフが担当致します。
一戸建て家のリフォームに関することを
お気軽にお問合せください

よくあるご質問
  • 他社に要望を伝えたところできないといわれたのですが・・・
  • 他社で予算オーバーとなってしまい要望が叶わないのですが・・・
  • サービスについて詳しく聞きたいのですが・・・

どのようなお悩みのご相談でも結構です。

あなたの大切なお住まいに関するご相談をお待ちしております。

営業マンはおりませんので、しつこい営業等も一切ございません。

設計会社(建築家様)・同業の建築会社様のご相談につきましては、プランと共にご指定のIw値及びUa値等の性能値の目安もお願い申し上げます。

2026年の大型補助金が確定したことで現在大変込み合っております。

耐震性能と断熱性能を向上させるフルリフォームには6か月~7か月の工期がかかります。

補助金獲得には年内に報告を挙げる必要があることから、お早目にご相談をお願いいたします。(6月着工までが目安

ご提案までに大変お時間がかかっております。ご了承のほどお願い申し上げます。

(5月までの着工枠が埋まりました)・・・2026/03/01更新

※すでにプランをお持ちのお施主様・設計資料をお持ちのお施主様は内容をフォームで送信後、フォーム下のメールアドレスに資料をお送りください。対応がスムーズです。

必須

(例:増改築太郎)

必須

(例:contact@high-will.co.jp)

(例:03-5615-2826)

必須

(例:東京都荒川区西日暮里2-35-1)

(例:築40年)

(例:25坪・100㎡など)

(例:2000万程度など)

  • ※再建築不可のリフォームでは金融機関が限られます。事前審査をお勧めいたします。

    (例:2024年3月くらいに完成希望など)

    必須

    できるだけ具体的にお知らせくださいませ。既存設計資料、リフォーム後のイメージ図等をお持ちであれば下記のメールアドレスより添付をお願いします。

    ※次の画面がでるまで、4~5秒かかりますので、
    続けて2回押さないようにお願いいたします。

    ※次の画面が出るまで、4〜5秒かかりますので、
    続けて2回押さないようにお願いいたします。

    図面や写真等を送信いただく場合、また入力がうまくいかない場合は、上記内容をご確認のうえ、下記メールアドレスまでご連絡ください。

    お電話でのお問合せはこちら

    0120-246-991

    営業時間:10:00~17:00(土日祝日を除く)

    ★YouTube「増改築.comチャンネル」チャンネル登録して新動画解説をいち早くGET!!★
    「増改築.comリノベ診断」であなたに一番ふさわしいフルリフォームを診断!!(動画解説付き)
    ★Facebookページにいいね!を押して最新コンテンツ情報をいち早くGET!!★
    パソコン|モバイル
    ページトップに戻る