戸建フルリフォームなら「増改築.com」TOP > 施工事例 > 都道府県で探す > 東京都練馬区 > 施工事例 S様 再建築不可、屋上ルーフバルコニーフルリフォーム&フルリノベーション事例

再建築不可でお庭がない

再建築不可、屋上ルーフバルコニーフルリフォーム&フルリノベーション事例

練馬区S様邸 再建築不可、屋上ルーフバルコニーフルリフォーム&フルリノベーション事例

 

練馬区練馬エリアは、都心からのアクセスが良好でありながら、住宅地が密集している特徴的なエリアです。駅から徒歩圏内にも関わらず、狭い道が入り組んでおり、再建築が難しい土地も少なくありません。

このような背景から、S様の住宅も再建築が不可能な状況に直面していました。接道問題が主な原因で、新しい建物を建てる選択肢が取れない状態でした。さらに、隣家との距離が非常に近く、庭のスペースも持てないため、日常生活においてプライバシーの確保や十分な日照、通風が得られる環境を作ることが難しい状況にありました。

また、このような狭小地での住宅は、耐震性や防火性に関する不安を抱えやすいのも事実です。練馬区練馬の多くの住宅が直面しているこの問題は、都市部の狭小地での住宅建築の難しさを如実に示しています。

しかし、S様のように、再建築が難しい状況であっても、しっかりとした耐震や断熱のリノベーションを行うことで、安心して長く住み続けることができる住まいを手に入れることができます。

建物概要
名前 S様
場所 東京都練馬区
築年数 築55年
構造種別 木造一戸建て
家族構成 家族2名
対象面積 19坪
リフォーム部位

基礎新設/間取り変更/ジャッキアップ/耐震補強/フルスケルトンリフォーム

工期 6ヶ月
価格 2000万(税別)

お客様のご要望

今回のリフォームで、S様からのご要望は以下の3点です。

  • 築年数が古いので耐震補強したい
  • お庭がないので屋上が欲しい
  • 冬寒すぎるため温かい建物にしたい。

練馬区S様邸 戸建てリノベーション施工事例テーマカテゴリー

  • 再建築不可リフォーム
  • 耐震等級3相当(上部構造評点1.5以上)リフォーム(性能向上リノベーション)
  • 屋根を屋上リフォーム
  • 内外部スケルトンリフォーム

打ち合わせから着工、完成までの詳細施工事例紹介

1 リノベーション着工前

1-1 現場調査・打合せ

再建築不可のロケーションにおける施工上の課題と対応策

再建築不可のロケーションでの施工は、一般的な建築現場とは異なる多くの課題を持っています。特に、狭小地や道路からのアクセスが難しい場所では、様々な工夫や計画が求められます。

  • 構造材や建材の搬入経路の確保

通常、構造材や建材は4メートル程度の長さが一般的です。しかし、狭い道路や住宅地では、これらの材料を運ぶのが難しい場合があります。そのため、事前に正確な測量を行い、最適な搬入経路を計画することが重要です。また、必要に応じて、特別な搬入方法や小型の輸送車を使用することも考慮する必要があります。

  • 基礎補強とコンクリートミキサー車の搬入

基礎補強を行う際には、大量のコンクリートが必要となります。しかし、再建築不可のロケーションでは、コンクリートミキサー車の搬入が難しい場合が多いです。このような場合、手作業での混合や、小型のミキサー車を使用するなどの対応が考えられます。

  • 全業者の材料の搬入・搬出経路の確認

施工に関わるすべての業者が、材料の搬入・搬出をスムーズに行えるよう、経路の確保や調整が必要です。特に、複数の業者が同時に作業を行う場合、事前の打ち合わせやスケジュール調整が不可欠です。

  • 近隣住民とのコミュニケーション

狭小地や再建築不可のロケーションでは、近隣住民とのトラブルが起きやすいです。騒音や振動、道路の一時封鎖など、施工に伴う影響を最小限に抑えるための対策と、住民への事前の説明や配慮が必要です。

再建築不可のロケーションでの施工は、多くの課題を伴いますが、適切な計画とコミュニケーションにより、スムーズな施工が可能となります。

東京都練馬区 S様邸 既存
東京都練馬区 S様邸 既存
東京都練馬区 S様邸 既存
東京都練馬区 S様邸 既存
東京都練馬区 S様邸 既存
東京都練馬区 S様邸 既存
東京都練馬区 S様邸 既存
東京都練馬区 S様邸 既存
東京都練馬区 S様邸 既存

1-2 東京都練馬区S様邸 リノベーションプラン

新規平面図

東京都練馬区 S様邸 新規平面図

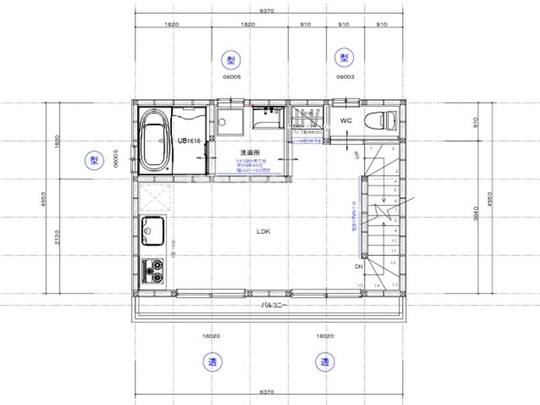
新規1階平面図

東京都練馬区 S様邸 新規平面図

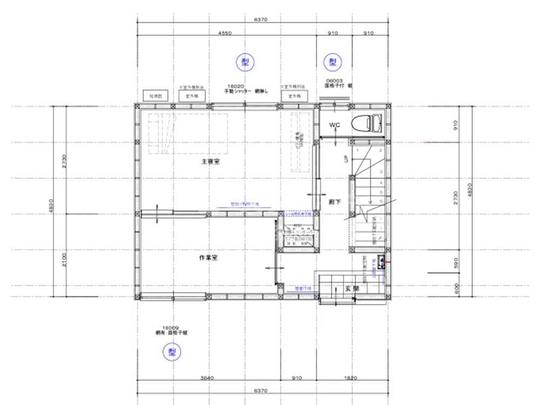
新規2階平面図

東京都練馬区 S様邸 新規平面図

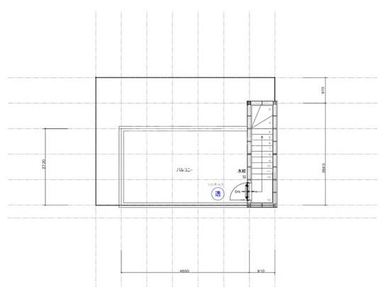
新規屋上平面図

道路斜線や北側斜線は、都市計画法に基づく制限の一つで、これらの斜線に適合しない建築は許可されません。今回のような屋上リノベーションを計画する際には、以下の注意点やポイントを考慮することが重要です。

  1. 道路斜線・北側斜線の確認

    • まず、該当する物件の位置における道路斜線や北側斜線の具体的な制限を確認することが必要です。これにより、リノベーションの範囲や高さなどの基本的な条件を把握することができます。
  2. 日照・通風の確保

    • 北側斜線は、隣接する北側の敷地に十分な日照を確保するためのものです。したがって、リノベーションを行う際には、自らの敷地だけでなく、隣接する敷地の日照や通風も考慮する必要があります。
  3. プライバシーの確保

    • 屋上リノベーションでは、高さや位置によっては隣接する建物からの視線が気になることがあります。適切な位置や高さのパーティションの設置、緑化などでプライバシーを確保する工夫が求められます。
  4. 安全性の確保

    • 道路斜線や北側斜線による制限を遵守することで、地震や強風などの際の安全性も確保されます。特に、屋上に重い設備や構造物を設置する際には、建物の構造的な強度を確認し、適切な補強を行うことが必要です。
  5. 許可・申請の手続き

    • 屋上リノベーションを行う際には、都市計画法や建築基準法などの関連法規に基づく許可や申請が必要となる場合があります。事前に関連する手続きを確認し、適切に進めることが重要です。

道路斜線や北側斜線を考慮した屋上リノベーションは、多くの制約が伴いますが、適切な計画と工夫により、快適で安全な空間を実現することができます。

2 戸建リノベーション着工

2-1 解体工事

解体は手壊し作業(人力解体)

S様の住宅のリノベーションにおいて、外壁を含む部分をフルスケルトンで解体する方法を採用しました。この手法は、建物の基本的な骨組みだけを維持しつつ、内部のレイアウトや機能を一新するためのものです。

フルスケルトン解体は、確かに処分費などのコストがかさむデメリットがありますが、それを補う大きなメリットが数多く存在します。最も大きなメリットとして、構造体全体の状態や損傷の程度を正確に把握することができます。これにより、隠れた損傷や問題点を早期に発見し、適切な補修や強化を行うことが可能となります。

また、都市部や狭小地に建つ住宅のリノベーションにおいて、このようなフルスケルトンの解体方法は非常に効果的です。土地の有効活用や、新しい生活スタイルに合わせた間取り変更を求める場合には、この方法が適しています。人力による解体を選択することで、隣接する建物や周囲の環境への影響を最小限に抑えることができます。大型の機械を使用することなく、専門の技術者が手作業で丁寧に解体を行います。これにより、解体中の騒音や振動を低減し、周辺住民への配慮も図ることができます。

さらに、フルスケルトン解体後の再構築では、S様のご要望やライフスタイルに合わせた最適なプランニングが求められます。これにより、新しい住まいの価値を最大限に引き出し、長く快適に過ごすための基盤を築くことができます。

東京都練馬区 S様邸 解体工事
東京都練馬区 S様邸 解体工事
東京都練馬区 S様邸 解体工事

大事な構造部のすべてが目視可能となるスケルトンリフォーム

内部の天井・壁・床だけでなく外壁まで解体しスケルトン状態(躯体残し)にする戸建てリノベーションの最大のメリットはこのような重要な主要構造部のすべての状態が目視でわかることになります。K様のケースもスケルトンにすることで、既存の構造躯体がどれだけ傷んでいるのかがお分かりいただけました。解体前に補強計画を立ててはいましたが、この状態でそのまま補強が出来るのかどうかを判断しなければなりません。非破壊での机上の補強計画をそのまま補強工事するためには、前提となる構造体がしっかりと利用できるものなのかどうなのかを判断しなければならないのです。

フルリノベーション後は、これらの構造上の弱点をすべて修正し補強することで新築と同水準、もくしくはそれ以上の建物性能をもつ構造躯体へ甦らせることが可能となります。


2-2 基礎補強工事

構造上のチェックが終わると、フルスケルトンリフォームでは、基礎工事へと移行していきます。

建物の基礎は、構造の土台となる部分であり、その強度や安定性が建物全体の安全性に直結します。特に、既存の無筋基礎は、鉄筋が入っていないため、地震の揺れや土地の沈下に対して脆弱です。S様の住宅では、この無筋基礎を鉄筋コンクリート基礎に補強する工事を行いました

具体的には、立ち上がり基礎の部分に新たな鉄筋を埋め込み、さらに新規基礎の部分にも鉄筋を配置しました。これにより、基礎の強度を大幅に向上させることができました。また、添え基礎補強のベース配筋の補強を行うことで、基礎の耐震性を高めるとともに、土地の沈下や地盤の変動にも強い基礎を実現しました。これは、特に日本のような地震が多い国においては、非常に重要な工事となります。新たに鉄筋コンクリート基礎を新設することで、建物の重量をしっかりと支え、地震時の揺れにも耐えることができるようになりました。これにより、S様の住宅の安全性が大幅に向上し、長期にわたって安心して生活することができるようになりました。

基礎補強は、単に建物を支えるだけでなく、住む人の命を守るための非常に重要な工事です。プロとしての我々の役目は、最新の技術と知識を駆使して、最も適切な補強方法を提案し、施工することです。

東京都練馬区 S様邸 鉄筋コンクリート基礎補強
東京都練馬区 S様邸 鉄筋コンクリート基礎補強
東京都練馬区 S様邸 鉄筋コンクリート基礎補強
東京都練馬区 S様邸 鉄筋コンクリート基礎補強
東京都練馬区 S様邸 鉄筋コンクリート基礎補強
東京都練馬区 S様邸 鉄筋コンクリート基礎補強
2-3 木工事(木構造補強工事)

木造住宅のリノベーションにおいて、大工工事は最も核心的な部分を担います。S様の住宅では、既存の構造体を新たな間取り構造へと組み換える大規模な工事が行われました。

まず、N値算定に基づき、引き抜き金物の配置を計画しました。これは、地震時の揺れに対して建物が適切に耐えるための重要な工程です。正しい位置に金物を配置することで、構造体全体の耐震性を向上させることができます。

次に、構造体の組み換えと補強を行いました。特に、既存の躯体との干渉を避けるための工夫が必要でした。新しい構造材を組み込む際には、既存の躯体との接触を避けるための詳細な計画が必要となります。これにより、新旧の構造体が適切に連携し、一体となって建物を支えることができます。

また、二階の床に関しては、剛床仕様を採用しました。24㎜の構造用合板を使用することで、床の強度を確保しました。これにより、地震時の水平方向の揺れにも耐えることができるようになりました。

大工工事は、単に木材を組み立てるだけでなく、その背後には深い技術と知識が求められます。S様の住宅のリノベーションでは、これらの専門的な技術を駆使して、安全で快適な住空間を実現しました。

東京都練馬区 S様邸 木構造補強工事
東京都練馬区 S様邸 木構造補強工事
東京都練馬区 S様邸 木構造補強工事
東京都練馬区 S様邸 木構造補強工事
東京都練馬区 S様邸 木構造補強工事
東京都練馬区 S様邸 木構造補強工事
2-4 断熱工事

断熱工事は、住宅の快適性やエネルギー効率を大幅に向上させるための重要な工程です。

特に、105角の柱間での断熱性能を確保するためには、通常の断熱材では不十分であることが多いです。そこで、パラマウント硝子の北海道仕様の断熱材を使用しました。この断熱材は、厳しい寒冷地の環境にも対応できる高い断熱性能を持っています。また、気密性も非常に高く、冷暖房の効率を大幅に向上させることができます。

さらに、気密シート処理を施すことで、外部からの冷気や暖気の侵入を防ぎ、室内の温度を一定に保つことができます。これにより、冷暖房の効果が持続し、エネルギー消費を抑えることができます。

断熱工事は、単に断熱材を施工するだけでなく、その背後には深い技術と知識が求められます。S様の住宅のリノベーションでは、これらの専門的な技術を駆使して、快適でエネルギー効率の高い住空間を実現しました。

東京都練馬区 S様邸 断熱改修(HEAT20)
東京都練馬区 S様邸 断熱改修(HEAT20)
東京都練馬区 S様邸 断熱改修(HEAT20)
2-5 外壁リノベーション工事

S様の住宅の外壁材として金属サイディングを採用しました。

金属サイディングは、耐候性や耐久性に優れており、メンテナンスも容易です。また、その表面の仕上げや色のバリエーションも豊富で、デザイン性にも優れています。

このように、外壁工事においては、美観だけでなく、耐久性やメンテナンス性、そして隣家との調和を考慮した施工が必要です。S様の住宅では、これらの要点をしっかりと押さえた外壁工事を実施し、長持ちする美しい外観を実現しました。

東京都練馬区 S様邸 外壁工事 金属サイディング
東京都練馬区 S様邸 外壁工事 金属サイディング
2-6 屋上テラス工事

屋根を屋上テラスにする工事では、まず、既存の屋根を解体した後、新しい屋上テラスの基盤となる木下地を作成します。この工程では、合板を2重に張り、しっかりとした下地を形成します。この2重張りの下地は、耐久性を高めるとともに、防水性や断熱性を向上させる役割も果たします。大工がこの工程を担当し、精密な作業を行います。

次に、金属防水工事が行われます。この工事は、屋上テラスの防水性を確保するための非常に重要な工程です。金属防水シートを下地に貼り付けることで、雨水の浸入を防ぎ、屋上の耐久性を高めます。

最後に、仕上げとしてタイル張り工事が行われます。タイルは、美観だけでなく、耐久性や滑りにくさなどの機能性も兼ね備えています。適切なタイルを選び、丁寧に張り付けることで、長持ちする美しい屋上テラスを実現します。

このように、屋上化工事は一連の工程を経て、新しいリラックススペースを生み出します。それぞれの工程が連携し合い、最終的には快適で美しい屋上テラスが完成します。

東京都練馬区 S様邸 屋上テラス工事
東京都練馬区 S様邸 屋上テラス工事
東京都練馬区 S様邸 屋上テラス工事
東京都練馬区 S様邸 屋上テラス工事
東京都練馬区 S様邸 屋上テラス工事
東京都練馬区 S様邸 屋上テラス工事
東京都練馬区 S様邸 屋上テラス工事
東京都練馬区 S様邸 屋上テラス工事
2-7 造作工事

構造部の構造補強が終わると、造作工事に入ります。

東京都練馬区 S様邸 内装造作工事
東京都練馬区 S様邸 内装造作工事
東京都練馬区 S様邸 内装造作工事

3 戸建てリノベーション竣工

約6カ月の工事を経て、いよいよ竣工です。

S様邸の様子をご紹介します。


  =外観==  

Before

東京都練馬区 S様邸 既存
東京都練馬区 S様邸 既存

After

東京都練馬区 S様邸 竣工
東京都練馬区 S様邸 竣工
東京都練馬区 S様邸 竣工

施工前の玄関は開きドアでした。道路が狭いため施工後は引戸にしました。LIXILエルムーブです。


  == LDK ==  

Before

東京都練馬区 S様邸 既存

施工前の居間は1階にありました。

After

東京都練馬区 S様邸 竣工

施工後は間取り変更を行い、2階をLDKとして広く使えるようになりました。

東京都練馬区 S様邸 竣工

キッチンはTOTOのザ・クラッソ。ビタミンカラーで明るいキッチンになりました。

東京都練馬区 S様邸 竣工

LDKの奥に洗面脱衣室と浴室があります。


  == 水まわり ==  

Before

東京都練馬区 S様邸 既存

施工前はタイル張りの在来工法浴室でした。

After

東京都練馬区 S様邸 竣工

施工後のお風呂はTOTOのサザナ1616サイズです。

東京都練馬区 S様邸 竣工

洗面化粧台はTOTOオクターブ

東京都練馬区 S様邸 竣工

トイレはハイウィルオリジナルTOTOトイレ


  == ベランダ ==  

Before

東京都練馬区 S様邸 既存

After

東京都練馬区 S様邸 竣工

狭いながらも白の縦格子が美しいバルコニー


  == 屋上テラス ==  

東京都練馬区 S様邸 竣工
東京都練馬区 S様邸 竣工

S様念願の屋上テラスです。下町の住宅密集地におけるオアシスとして活躍しそうですね。



4 担当者より
(「増改築.com®」本部ハイウィル株式会社大谷正浩)

 

S様、この度は、貴重なお住まいのリノベーションを私たちに託していただき、心より感謝申し上げます。プロジェクトを通じて、S様の想いやこだわりを深く理解し、それを形にすることが私たちの使命と考えておりました。

屋上ルーフバルコニーという特有の構造、そしてS様のライフスタイルやご希望を最大限に生かすための提案や工夫をさせていただきました。その結果、一つ一つの仕上がりに私たちの誇りを感じております。

施工中には多くの課題や困難もありましたが、S様とのコミュニケーションを大切にし、最良の結果を追求し続けました。完成したお住まいが、S様の新しい生活のスタートとして、長く愛される場所となることを心より願っております。

今後とも変わらぬご愛顧を賜りますようお願い申し上げます。そして、何かお困りのことやご不明点がございましたら、いつでもご相談ください。

 

他のリフォーム事例を見る

基礎屋さんのお宅の基礎補強
二世帯住宅フルリフォーム

リノベーション
隣家との距離がない!
部屋から外壁を張り替えるフルリノベーション
中古住宅を耐震等級3へ!
中古住宅リノベーション
基礎がない??
築60年の古屋をジャッキアップで基礎新設フルリノベーション

東京都渋谷区 O様邸

戸建てリノベーション・リフォームに関するお問合せはこちら

増改築.comの一戸建てリフォーム専用ホームページに
お越しいただき、誠に有難うございます。
 
増改築.comメンバーは技術集団となり、
他社のような営業マンがおりません。
技術者が直接ご相談にのり問題解決を行います。
 
従いまして、
お客様の方である程度のご要望が整理されました段階、
お悩みが工事内容のどのようなところにあるのか?
ご予算がどの程度絞る必要があるのか?
など明確になった段階でのご相談をお願いしております。
お問合せ・ご相談はお電話・メールにて受け付けております。
メールの場合は以下のフォームに必要事項をご記入の上、
「送信する」ボタンをクリックをお願いします。

代表稲葉高志

戸建てリノベーションの専属スタッフが担当致します。
一戸建て家のリフォームに関することを
お気軽にお問合せください

よくあるご質問
  • 他社に要望を伝えたところできないといわれたのですが・・・
  • 他社で予算オーバーとなってしまい要望が叶わないのですが・・・
  • サービスについて詳しく聞きたいのですが・・・

どのようなお悩みのご相談でも結構です。

あなたの大切なお住まいに関するご相談をお待ちしております。

営業マンはおりませんので、しつこい営業等も一切ございません。

設計会社(建築家様)・同業の建築会社様のご相談につきましては、プランと共にご指定のIw値及びUa値等の性能値の目安もお願い申し上げます。

2026年の大型補助金が確定したことで現在大変込み合っております。

耐震性能と断熱性能を向上させるフルリフォームには6か月~7か月の工期がかかります。

補助金獲得には年内に報告を挙げる必要があることから、お早目にご相談をお願いいたします。(6月着工までが目安

ご提案までに大変お時間がかかっております。ご了承のほどお願い申し上げます。

(5月までの着工枠が埋まりました)・・・2026/03/01更新

※すでにプランをお持ちのお施主様・設計資料をお持ちのお施主様は内容をフォームで送信後、フォーム下のメールアドレスに資料をお送りください。対応がスムーズです。

必須

(例:増改築太郎)

必須

(例:contact@high-will.co.jp)

(例:03-5615-2826)

必須

(例:東京都荒川区西日暮里2-35-1)

(例:築40年)

(例:25坪・100㎡など)

(例:2000万程度など)

  • ※再建築不可のリフォームでは金融機関が限られます。事前審査をお勧めいたします。

    (例:2024年3月くらいに完成希望など)

    必須

    できるだけ具体的にお知らせくださいませ。既存設計資料、リフォーム後のイメージ図等をお持ちであれば下記のメールアドレスより添付をお願いします。

    ※次の画面がでるまで、4~5秒かかりますので、
    続けて2回押さないようにお願いいたします。

    ※次の画面が出るまで、4〜5秒かかりますので、
    続けて2回押さないようにお願いいたします。

    図面や写真等を送信いただく場合、また入力がうまくいかない場合は、上記内容をご確認のうえ、下記メールアドレスまでご連絡ください。

    お電話でのお問合せはこちら

    0120-246-991

    営業時間:10:00~17:00(土日祝日を除く)

    ★YouTube「増改築.comチャンネル」チャンネル登録して新動画解説をいち早くGET!!★
    「増改築.comリノベ診断」であなたに一番ふさわしいフルリフォームを診断!!(動画解説付き)
    ★Facebookページにいいね!を押して最新コンテンツ情報をいち早くGET!!★
    パソコン|モバイル
    ページトップに戻る