戸建フルリフォームなら「増改築.com®」TOP > 施工事例 > 都道府県で探す > 東京都大田区 > 施工事例 O様 地下RC+木造2階建て混構造内部スケルトンで実現する断熱等級6・耐震等級3の家

【大田区】地下RC+木造2階建て混構造内部スケルトンで実現する断熱等級6・耐震等級3の家

大田区O様邸 外観 ビフォーアフター

 

本プロジェクトは、大田区に位置する「RC造の半地下(ガレージ・サニタリー)」と「木造の1階・2階」から成る混構造住宅に対し、内部スケルトン化を実施。RC部の熱橋(ヒートブリッジ)対策、2階斜天井のウレタン断熱、居室のセルロースファイバー防音など、部位ごとに特性の異なる4種類の断熱材を使い分ける「ハイブリッド断熱設計」を完遂し、新築を凌駕する温熱環境と静粛性を実現した事例です

建物概要
名前 O様
場所 東京都大田区
築年数 築35年
構造種別 半地下RC造 + 地上木造2階建て(混構造)
家族構成 大人2人 子供2人
対象面積 41.24坪
リフォーム部位 間取り変更/断熱サッシ/セルロースファイバー/耐震補強/
工期 8ヶ月
価格 3400万

お客様のご要望

今回のリフォームで、O様からのご要望は以下の3点です。

  • RCは寒い」という常識の打破: 半地下RC特有の冬の冷え込みと、湿気・カビの問題を科学的に解決したい。
  • 音と熱の完璧なコントロール: 2階の開放的な斜天井の暑さ対策と、趣味の部屋における高度な遮音性能。
  • 異素材の構造的一体化: コンクリートと木の接点にある構造的な不安を解消し、地震に強い「要塞」としての安心を得たい。

プランナー 北畠より ~プランニングのポイント~

プランニングの核心は「部位ごとの熱的・音響的特性に合わせた断熱材の最適配置」と、照明コンサルタントによる演出を前提とした「素材の質感を活かす空間設計」にありました。

 

 

混構造において、RCと木造の接点は最大の弱点です。私は、RCの冷たさを遮断する「ラムダ」、壁の断熱を支える「太陽SUN」、防音を担う「セルロース」、そして斜天井の気密を確保する「ウレタン」という、4つの断熱材を適材適所に配するプランを策定しました。

 

機能面では、既存の和室を合理的なウォークインクローゼット(WIC)へ変更さらに、寝室(トレーニングルーム)には床を「100mm下げる」という特殊な造作を提案。この段差が空間に心地よい「溜まり」を生み、照明コンサルタントが描く光の陰影をよりドラマチックに演出する舞台となりました。

太田区O様邸 戸建てリノベーション施工事例テーマカテゴリー

 

  • 中古(住宅)を買ってリフォーム&リノベーション 
  • 耐震等級3相当(上部構造評点1.5以上)リフォーム(性能向上リノベーション)
  • HEAT20-G2リフォーム(性能向上リノベーション)
  • セルロースファイバー仕様
  • 硬質ウレタン吹付断熱
  • 補助金活用リフォーム

打ち合わせから着工、完成までの詳細施工事例紹介

1 戸建てリノベーション着工前

1-1 現場調査・打合せ

メールでの緻密なやり取りと徹底した事前調査により、RCと木造の接合部の不備や断熱欠損の可能性を特定。不確定要素を排除した状態で「性能向上ロードマップ」を構築しました。

 

混構造インスペクションの実施

混構造において最もリスクが高いのは、コンクリートと木の「境界線」です。結露による土台の腐食や、アンカーボルトの緩みを想定し、解体後に即座に対応できるよう補強計画を策定しました。

 

O様とは、断熱材の熱抵抗値や遮音性能について、深い議論を重ねました。特に「防音が欲しい居室」へのセルロースファイバー採用や、斜天井のウレタン吹き付けは、この対話の中から生まれた最適な回答でした。

大田区O様邸 既存
大田区O様邸 既存
大田区O様邸 既存
大田区O様邸 既存
大田区O様邸 既存
大田区O様邸 既存

施工前の水回り

大田区O様邸 既存
大田区O様邸 既存
大田区O様邸 既存
大田区O様邸 既存
大田区O様邸 既存

1-2 東京都大田区O様邸 戸建リノベーションプラン

本プランニングの核心は「混構造の弱点を、素材の物性を活かした“ハイブリッド断熱”で相殺すること」にありました。RCの蓄冷性、斜天井の熱溜まり、居室の防音という多層的な課題に対し、4つの断熱材(ウレタン・太陽SUN・セルロース・ラムダ)を適材適所に配する『熱のゾーニング設計』を完遂しました。

 

2階斜天井:硬質発泡ウレタンによる「気密の鎧」

2階は屋根勾配を活かした開放的な斜天井ですが、ここは最も外気の影響を受けやすく、かつ隙間ができやすい場所です。

  • 戦略: 複雑な形状にも密着し、高い断熱・気密性を同時に発揮する「硬質発泡ウレタン」の吹き付けを採用。夏の屋根熱を無効化し、冬の冷気の降り(コールドドラフト)を根絶しました。

 

外周壁:断熱の「太陽SUN」と防音の「セルロースファイバー」

壁面には、用途に合わせて2つの断熱材を使い分けました。

  • 標準部: パラマウント硝子「太陽SUN」。コストパフォーマンスに優れ、安定した断熱層を形成します。

  • 防音居室: セルロースファイバー(吹き込み)。高い断熱性に加え、その圧倒的な「質量」によって吉祥寺の喧騒を遮断し、室内の音を外に漏らさない、図書館のような静寂を実現しました。

 

 床:ミラネクストラムダによる「熱的断絶」

半地下RC層(冷気の溜まり場)と1階居住層を隔てる床下には、最高ランクの断熱性能を誇る「ミラネクストラムダ」を施工。足元の冷えを物理的に遮断しました。

大田区O様邸 リノベーションプラン

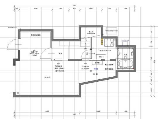
大田区O様邸 リノベーション後平面図 地下1階

リノベーション後平面図 地下1階

大田区O様邸 リノベーション後平面図 1階

リノベーション後平面図 1階

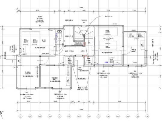
大田区O様邸 リノベーション後平面図 2階

リノベーション後平面図 2階

2 戸建てリノベーション着工

2-1 足場・解体

内部を完全にスケルトン化したことで、表面上の調査では決して見通せなかった「正面部の土台および柱の根元からの深刻な腐食」を特定しました。原因がバルコニーからの長期にわたる雨水流入であることを見抜き、傷んだ構造材の全交換と抜本的な補強を施すことで、混構造住宅としての寿命を劇的に延ばす「外科手術」を完遂しました。

大田区O様 足場•解体
大田区O様邸 足場・解体
大田区O様 足場•解体
大田区O様 足場•解体
大田区O様 足場•解体
大田区O様 足場•解体

混構造の境界を診る:結露と湿気の痕跡

解体後、まずはRC(鉄筋コンクリート)壁の天端に載る木造土台を全周にわたって詳細に点検しました。混構造は、外気の影響を受けやすい木造部と、熱を蓄え冷えやすいRC部の「境界線」に熱のギャップが生じやすく、湿気が溜まりやすい宿命にあります。私たちは最新の金物による再緊結と、今後の結露を防ぐための防湿処理プランを、現場の実態に合わせて微調整しました。

 

 露呈した「雨漏りによる腐食」とその根治

スケルトン解体が進むにつれ、家の正面部分に深刻なダメージが顕わになりました。

  • 衝撃の事実: 正面部の土台が腐朽し、さらに建物を支えるべき主要な柱までもが根元から腐食していました。

  • 原因の特定: 調査の結果、これは混構造の結露によるものではなく、既存バルコニーの防水切れ、あるいは接合部からの「雨水の浸入」が長年続いていたことが真因であると判明しました。

  • 抜本的な治療: もし内部スケルトンにしていなければ、このまま断熱材を詰め、表面だけを綺麗にして閉じてしまうところでした。私たちは腐食した土台と柱の根元を即座に撤去。新しい構造材への「挿し木(根継ぎ)」や全交換を行い、高耐力金物で補強。同時に、雨水の浸入経路を物理的に遮断する防水改修をセットで行うことで、構造の安全性をゼロから再構築しました。

大田区O様 足場•解体
大田区O様 足場•解体
大田区O様 足場•解体

大事な構造部のすべてが目視可能となるスケルトンリフォーム

内部の天井・壁・床だけでなく外壁まで解体しスケルトン状態(躯体残し)にする戸建てリノベーションの最大のメリットはこのような重要な主要構造部のすべての状態が目視でわかることになります。

フルリノベーション後は、これらの構造上の弱点をすべて修正し補強することで新築と同水準、もくしくはそれ以上の建物性能をもつ構造躯体へ甦らせることが可能となります。

2-2 オーバーハング部の鉄骨補強と「独立基礎」の構築

【構造の外科手術。オーバーハング部の鉄骨補強と「独立基礎」の構築】

 

2階オーバーハング(跳ね出し)部分に発見された致命的な亀裂に対し、既存の木造躯体だけに頼るのではなく、鉄骨による「鉛直支持」を追加する抜本的な補強を敢行。半地下RCから独立させた新設基礎の上に鉄柱を建てることで、荷重を地面へダイレクトに逃がし、構造的な不安を永久に解消しました。

 

深刻なサイン:オーバーハングの亀裂

解体および外装調査の過程で、2階のオーバーハング部分に無視できない亀裂(クラック)が確認されました。

  • 原因の分析: 跳ね出し構造は、支点となる部分に大きな回転モーメント(ねじれる力)がかかります。長年の荷重蓄積や地震による挙動、さらには混構造特有の揺れの差が、この脆弱な部分に集中したことが原因と考えられました。

  • リスク: 亀裂は単なる外観の問題ではなく、構造のゆがみや雨水の侵入経路となり、内部の腐食を加速させる致命的なリスクを孕んでいました。

 

解決策:鉄骨による「物理的支持」の追加

O様との協議の結果、木造の補強だけでは将来的な不安を拭いきれないと判断し、「鉄骨による立柱補強」という特殊工事を採択しました。

  1. 独立基礎の新設: 半地下のRC躯体に干渉させず、かつオーバーハングの荷重を確実に支えるため、地面を深く掘削。新たに強固な「独立基礎」を打設しました。

  2. 鉄骨柱の立柱: 独立基礎の上に、高耐力な鉄柱を垂直に配置。これにより、宙に浮いていたオーバーハングの荷重を、この鉄柱が「つっかえ棒」として直接地面へ受け流す構造へと作り変えました。

  3. 鉄骨梁による受材: 鉄柱の頭頂部には、2階のオーバーハングを面で支える鉄骨梁を配置。木造と鉄骨を強固に緊結し、建物全体の剛性を劇的に向上させました。

 

「RC+木造+鉄骨」三位一体のハイブリッド構造へ

この番外編の工事により、O様邸は以下の3つのメリットを獲得しました。

  • 鉛直荷重の完全分散: 2階の重みが原因で発生していた「たわみ」を物理的に制止。

  • 不同沈下・ゆがみの防止: 独立基礎によって支持基盤を増やしたことで、家全体のバランスが安定。

  • 資産価値の保全: 目に見える形で「柱」を追加し、構造的な弱点を克服したことは、将来にわたる圧倒的な安心感と資産価値の裏付けとなりました。

2-3 木工事

解体によって発覚した正面部の土台および柱の腐食に対し、腐朽部の徹底除去と新しい構造材への交換(根継ぎ)を完遂。その上で、RC(鉄筋コンクリート)と木造をケミカルアンカーで強固に緊結し、N値計算に基づく最新の耐震金物を適材適所に配置することで、混構造特有の弱点を克服した「上部構造評点1.5(耐震等級3相当)」の強靭な骨格を再構築しました。

 

 腐朽部の外科手術:土台交換と柱の「根継ぎ」

バルコニーからの長年の雨水流入により、正面部分の土台はボロボロに朽ち果て、建物を支える柱の根元も深刻なダメージを受けていました。

  • 徹底的な除去: 腐朽菌が残らないよう、傷んだ土台と柱の根元を慎重にカットし、完全に除去しました。

  • 伝統技術と最新性能の融合: 新しいヒノキの構造材を挿し込み、ボルトと金物で強固に一体化させる「根継ぎ」や交換作業を実施。これにより、建物を支える「脚」が健全な状態へと蘇りました。

 

 混構造の一体化:ケミカルアンカーと土台の緊結

RCの半地下と木造の地上階という「混構造」において、地震時に最も力が集中するのはその接合部です。

  • ケミカルアンカーの増設: 既存の基礎(RC壁)に対し、高性能な接着系アンカー(ケミカルアンカー)をドリルで打ち込み、木造の土台と強力にボルト締めしました。

  • 剛性の確保: 揺れ方の異なるコンクリートと木を「一塊」にすることで、地震の衝撃を建物全体で受け止める構造へとアップデートしました。

 

 N値計算による精密な金物補強

柱の一本一本に、地震時にどれだけの「引き抜き力」がかかるかを算出し、それに基づいた金物補強を行いました。

  • 適材適所の補強: 10kN、15kN、さらには強力な25kNクラスのホールダウン金物を配置。

  • 構造のバランス: 闇雲に金物を付けるのではなく、家全体の剛性バランス(偏心率)を整えることで、大地震でも「ねじれ」が生じにくい安定した骨格を作り上げました。

 

 構造用面材による「箱型」の強化

これまでの「筋交い(点)」での補強に加え、壁全体で耐震性を高める手法を採用しました。

  • 高倍率の耐力壁: 外周部に構造用面材(ノボパンSTP II等)を丁寧に貼り、建物全体をモノコック(箱型)構造へと進化させました。

  • 変形抑制: これにより、地震時の建物のゆがみを最小限に抑え、家具の転倒や内装材の損傷を防ぐ「硬い家」が完成しました。

大田区O様 木工事
大田区O様 木工事
大田区O様 木工事
大田区O様 金物
大田区O様 金物
大田区O様 金物
大田区O様 金物
大田区O様 金物
大田区O様 木工事
2-4 断熱工事

解体後に判明した土台と柱の腐食を「根継ぎ」や「金物補強」によって完璧に修復した上で、部位ごとに特性の異なる4種類の断熱材(硬質発泡ウレタン・太陽SUN・セルロースファイバー・ミラネクストラムダ)を隙間なく繋ぎ合わせる精密施工を実施。RC混構造の「寒さ」と「暑さ」を物理的に解決し、新築を凌駕する温熱・静粛環境を構築しました。

 

 構造の再構築:腐食を乗り越えた「強靭な骨格」

バルコニーからの浸水で傷んでいた正面の土台と柱は、腐食部を完全に除去し、新しい構造材を挿し込む「根継ぎ」を施しました。

  • 耐震性の向上: RC壁と木造土台を繋ぐアンカーボルトを増設し、N値計算に基づいた最新の耐震金物を適材適所に配置。混構造特有の「揺れの不一致」を、この強固な接合部ががっちりと受け止めます。

 

 

2階 斜天井:硬質発泡ウレタンによる「気密の鎧」

開放感あふれる2階の勾配天井は、屋根との距離が近く、夏の熱気の影響を最も受ける場所です。

  • 吹き付け施工: 複雑な垂木の隙間にも隙間なく密着する「硬質発泡ウレタン」を現場で吹き付け。

  • 効果: 遮熱と同時に、木造の弱点である「気密性」を物理的に確保。真夏の吉祥寺の酷暑を無効化する、強力な防壁を形成しました。

 

 

 外周面壁:太陽SUNと「気密テープ」の執念

標準的な外壁面には、高性能グラスウール「太陽SUN」を採用しました。

  • 精密な気密処理: 断熱材の防湿フィルムを柱の正面で確実に重ね、そのすべてのジョイント部を専用の**「気密テープ」**で密閉。

  • 内部結露の防止: 別貼りのシートを使わない分、コンセントボックスや配管周りまで執拗にテープを貼り巡らせ、RC混構造の宿命である「壁内結露」を完全に封じ込めました。

 

 

 防音指定居室:セルロースファイバーによる「静寂の創造」

特に静粛性が求められた居室には、新聞古紙から作られた自然素材「セルロースファイバー」を吹き込みました。

  • 遮音性能の極致: セルロースは断熱性だけでなく、その圧倒的な「密度(質量)」により優れた吸音・防音性能を発揮します。

  • 吉祥寺の静寂: 木造であることを忘れさせる重厚な静けさが、趣味の時間や休息の質を劇的に高めます。

 

 

 床断熱:ミラネクストラムダ 75mmの「熱的遮断」

半地下のRCガレージから伝わる冬の強烈な底冷え。これを遮断するのが、最高ランクの断熱性能を誇る「ミラネクストラムダ」です。

  • 足元からの魔法瓶: 75mmの極厚ボードを敷き詰め、隙間を気密処理。これにより、1階LDKの床下温度を安定させ、冬場でも素足で過ごせる快適な環境を実現しました。

●床断熱【ミラネクストラムダ75mm】

大田区O様 断熱
大田区O様 断熱
大田区O様 断熱

●壁断熱【太陽SUNR105mm】

大田区O様 断熱
大田区O様 断熱
大田区O様 断熱

●防音指定居室断熱【セルロースファイバー】

大田区O様 断熱
大田区O様 断熱
大田区O様 断熱

●斜天井断熱【硬質発泡ウレタン】

大田区O様 断熱
大田区O様 断熱
大田区O様 断熱

●地下浴室ユニットバス断熱

大田区O様 断熱
大田区O様 断熱
大田区O様 断熱

大田区O様邸 断熱データ

場所 製品 断熱グレード
床断熱材 押出法ポリスチレンフォーム ミラフォームラムダ F(熱伝導率0.022W/(m・K))

壁断熱材

高性能グラスウール 太陽SUNR

C(熱伝導率0.035W/(m・K))

屋根断熱材

吹付硬質ウレタンフォーム アキレスエアロンFR-FO

E(熱伝導率0.026W/(m・K))
防音用断熱材 吹込み用セルローズファイバー ファイバーエース C(熱伝導率0.040W/(m・K))
玄関ドア YKKAP イノベストD50(無採光) S(熱貫流率1.22W/(m2・K))
サッシ

YKKAP APW330 樹脂窓

S~A(熱貫流率1.9W/(m2・K)以下)

HEAT20-G2リフォームとは?

<HEAT20とは?>

HEAT20とは、「2020年を見据えた住宅の高断熱化技術開発委員会」という団体名です。

その団体が設定しているのが、屋根や外壁、床、窓などの「外皮」と呼ばれる部位の断熱や遮熱などといった性能の評価基準であり、G1とG2の2段階あります。G2の方がより高性能な性能を有する外皮となっています。

<省エネ基準の家とHEAT20の家の違い>
省エネ基準の家とHEAT20の家の違い

HEAT20-G2の家は、省エネ基準の家の30~50%の暖房費を削減できる

 

「増改築.com®」によると、断熱リフォームの基準として、平成28年の建築物省エネ法基準に相当するUa値0.87が等級4(最高等級)とされています。しかし、この基準だけでは、真の省エネ住宅とは言えません。実際に、日本の断熱等級4は、2020年の建築基準法で努力義務とされているに過ぎません。しかし、2022年4月には断熱等級5が新設され、さらに2022年10月には断熱等級6・7が新設されました。断熱等級6・7は、これまでの断熱等級4と比べて、はるかに高いレベルの断熱性能が求められます。 HEAT20の計画においては、ZEH基準のUa値0.6を基準としています。これは、外壁105mm、U値2.33の樹脂アルミ複合サッシ窓で、天井の断熱材は105mmあれば実現できるとされています。さらに上位の「HEAT20 G1」グレードでは、6地域でUa値0.56となり、このレベルでは断熱環境を体感できるとされています。

最上位の「HEAT20G2」グレードでは、5地域でUa値0.46となっています。

断熱改修(温熱改修)リフォームを成功させるためには、これらの基準や計画をしっかりと理解し、適切な施工方法を選択することが重要となります。

2-5 外壁工事

サッシ交換と構造補強を経て一新された外装には、アイカ工業の「ジョリパット」を採用。職人のコテ塗りによる豊かなテクスチャが、半地下RCの力強さと居住階の温かみをシームレスに繋ぎ、街並みに相応しい、時代に流されない気品ある佇まいを完成させました。

  • RCと木造の調和: 異素材が重なる混構造において、既製品のサイディングでは出せない「一体感」を追求。ジョリパット特有の柔らかな質感が、建物のボリューム感を優しく包み込みます。

  • 耐久性と意匠の両立: 優れた耐候性を持つ素材を選定し、サッシ周りなどの防水処理を徹底。数十年先まで美しさを保つ、メンテナンス性まで計算された外装プランです。

大田区O様 外壁工事
大田区O様 外壁工事
大田区O様 外壁工事
2-6 造作工事

構造部の構造補強が終わると、造作工事に入ります。

大田区O様 造作工事
大田区O様 造作工事
大田区O様 造作工事
大田区O様 造作工事
大田区O様 造作工事
大田区O様 造作工事

3 戸建てリノベーション竣工

約8か月の工事を経て、いよいよ竣工です。


  =外観==  

Before

大田区O様 既存外観

画像内文字

施工前はタイル張りの外観でした

After

大田区O様 竣工外観

施工後はジョリパッド左官仕上げです

大田区O様 竣工外観

  == 居室 ==  

大田区O様 竣工
大田区O様 竣工
大田区O様 竣工
大田区O様 竣工

  == 1F 水まわり ==  

Before

大田区O様 既存

After

大田区O様 竣工

リノベーション後の浴室はTOTOサザナ1216サイズ

大田区O様 竣工

キッチはクリナップSTEDIA

大田区O様 竣工

洗面化粧台クリナップラクトワ

大田区O様 竣工

トイレはTOTOハイウィルオリジナルトイレ


4 補助金利用

大田区O様邸の工事では、国の補助金「子育てエコホーム支援事業」と「先進的窓リノベ事業」及び東京都の補助金「既存住宅における省エネ改修促進事業」を併用活用しました。

省エネにつながるエコ住宅設備や、断熱性能の高い断熱材・ドア・窓の設置などに対して交付される補助金です。

 

O様邸の補助金対象工事

エコ住宅設備の設置 給湯器(エコジョーズ)、高断熱浴槽、節水型トイレ、節湯水栓
断熱改修 外壁・床・天井の断熱材、断熱窓、断熱ドア ※東京都補助金併用
子育て対応改修 ビルトイン自動調理対応コンロ、掃除しやすいレンジフード、ビルトイン食洗器、浴室乾燥機

 

O様邸工事の交付補助金額:2,031,000円(総額)


5 担当者より
(「増改築.com®」本部ハイウィル株式会社四代目代表稲葉高志)

O様邸のプロジェクトは「既存構造のポテンシャルを信じ、技術的な執念で弱点を克服する」という、リノベーションの本質を改めて教えてくれた、非常に意義深い旅でした。

O様、 数年にわたり増改築.com®(ハイウィル)を信頼し、並走してくださり、心から感謝申し上げます。

解体後に見つかったあの正面土台の腐食。あの瞬間、私たちは「この家の命を繋ぐのは、今この瞬間の判断だ」と身の引き締まる思いでした。それを乗り越え、4種類の断熱材を一枚一枚、あるいは一吹き一吹き積み重ね、照明のプロと連携して仕上げたこの家は、もはや単なる「住宅」ではなく、お二人の理知的なこだわりが結晶化した「作品」です。

 

他のリフォーム事例を見る

基礎屋さんのお宅の基礎補強
二世帯住宅フルリフォーム

リノベーション
隣家との距離がない!
部屋から外壁を張り替えるフルリノベーション
中古住宅を耐震等級3へ!
中古住宅リノベーション
基礎がない??
築60年の古屋をジャッキアップで基礎新設フルリノベーション

東京都渋谷区 O様邸

戸建てリノベーション・リフォームに関するお問合せはこちら

増改築.comの一戸建てリフォーム専用ホームページに
お越しいただき、誠に有難うございます。
 
増改築.comメンバーは技術集団となり、
他社のような営業マンがおりません。
技術者が直接ご相談にのり問題解決を行います。
 
従いまして、
お客様の方である程度のご要望が整理されました段階、
お悩みが工事内容のどのようなところにあるのか?
ご予算がどの程度絞る必要があるのか?
など明確になった段階でのご相談をお願いしております。
お問合せ・ご相談はお電話・メールにて受け付けております。
メールの場合は以下のフォームに必要事項をご記入の上、
「送信する」ボタンをクリックをお願いします。

代表稲葉高志

戸建てリノベーションの専属スタッフが担当致します。
一戸建て家のリフォームに関することを
お気軽にお問合せください

よくあるご質問
  • 他社に要望を伝えたところできないといわれたのですが・・・
  • 他社で予算オーバーとなってしまい要望が叶わないのですが・・・
  • サービスについて詳しく聞きたいのですが・・・

どのようなお悩みのご相談でも結構です。

あなたの大切なお住まいに関するご相談をお待ちしております。

営業マンはおりませんので、しつこい営業等も一切ございません。

設計会社(建築家様)・同業の建築会社様のご相談につきましては、プランと共にご指定のIw値及びUa値等の性能値の目安もお願い申し上げます。

2026年の大型補助金が確定したことで現在大変込み合っております。

耐震性能と断熱性能を向上させるフルリフォームには6か月~7か月の工期がかかります。

補助金獲得には年内に報告を挙げる必要があることから、お早目にご相談をお願いいたします。(6月着工までが目安

ご提案までに大変お時間がかかっております。ご了承のほどお願い申し上げます。

(5月までの着工枠が埋まりました)・・・2026/03/01更新

※すでにプランをお持ちのお施主様・設計資料をお持ちのお施主様は内容をフォームで送信後、フォーム下のメールアドレスに資料をお送りください。対応がスムーズです。

必須

(例:増改築太郎)

必須

(例:contact@high-will.co.jp)

(例:03-5615-2826)

必須

(例:東京都荒川区西日暮里2-35-1)

(例:築40年)

(例:25坪・100㎡など)

(例:2000万程度など)

  • ※再建築不可のリフォームでは金融機関が限られます。事前審査をお勧めいたします。

    (例:2024年3月くらいに完成希望など)

    必須

    できるだけ具体的にお知らせくださいませ。既存設計資料、リフォーム後のイメージ図等をお持ちであれば下記のメールアドレスより添付をお願いします。

    ※次の画面がでるまで、4~5秒かかりますので、
    続けて2回押さないようにお願いいたします。

    ※次の画面が出るまで、4〜5秒かかりますので、
    続けて2回押さないようにお願いいたします。

    図面や写真等を送信いただく場合、また入力がうまくいかない場合は、上記内容をご確認のうえ、下記メールアドレスまでご連絡ください。

    お電話でのお問合せはこちら

    0120-246-991

    営業時間:10:00~17:00(土日祝日を除く)

    ★YouTube「増改築.comチャンネル」チャンネル登録して新動画解説をいち早くGET!!★
    「増改築.comリノベ診断」であなたに一番ふさわしいフルリフォームを診断!!(動画解説付き)
    ★Facebookページにいいね!を押して最新コンテンツ情報をいち早くGET!!★
    パソコン|モバイル
    ページトップに戻る