戸建フルリフォームなら「増改築.com®」TOP > 施工事例 > 都道府県で探す > 兵庫県 > 神戸市 > 中央区 > 施工事例 S様 築35年の建物を内外部スケルトンリフォーム

このエントリーをはてなブックマークに追加
既存不適格物件をリフォーム!

神戸市中央区で築35年の建物を内外部スケルトンリフォーム事例

神戸市中央区S様邸

 

S様は、着工の数カ月前より増改築.comをご覧いただいていたそうです。
建て替えが困難の為、お困りになられていたタイミングで弊社の関西拠点オープンをお知りになり、お問い合わせ頂きました。

建物概要
名前 S様
場所 兵庫県神戸市中央区
築年数 築35年
構造種別 木造一戸建て
家族構成 大人3人
対象面積

32.8坪

リフォーム部位 基礎補強/間取り変更/サッシ取替/外壁サイディング/グラスウール充填/屋根葺き替え
工期 5ヶ月
価格 2800万

お客様のご要望

今回のリフォームで、S様からのご要望は以下の4点です。

  • 2世帯住宅にしたい。(お風呂洗面は共通)
  • 現状既存不適格で新築や建て替えの際は面積が小さくなる為(セットバック)リフォームを検討
  • 阪神淡路大震災を経験地震に強い家にして欲しい
  • 新築に建て替えを希望、上記の理由の為、諦めていたがハイウィルさんの力で新築のスペックで工事をして欲しい

S様は、着工の数カ月前より増改築.comをご覧いただき、お問い合わせを頂きました。
神戸市の中心駅、三ノ宮駅より徒歩20分更に北に上がれば北野異人館通りという立地条件にございました。2世帯住宅ということもありましたが、完全なる2世帯住宅ではなくなるべくプライベート空間も作りつつ、皆で気を遣わず生活できる家を目指しました。

また、阪神淡路大震災をご経験ということもあり、耐震性には強いご関心があり、構造体の補強に強みを持っている弊社ととても気の合うお客様でした。

プランナー 北畠より ~プランニングのポイント~

神戸市中央区のS様は、新築の住宅展示場等を見て回られていましたが、セットバックの問題で建て替えが困難の為、お悩みになられてお問い合わせ頂きました。

お母様がご高齢者になってきたため以前より2世帯住宅をご希望されておられました。ご引っ越しもご検討されておられたのですが、朝ドラで再びスポットが当たった北野異人館街の近くにあり、街並みや住み慣れた暮らしやすさを考えてどうしても今の場所から動きたくないと結論に至りました。

そこで、現在の建物を残しつつなお且つ、新築そっくりなお住まいへと生まれかわらせるプランを一緒に考えていくことになりました。

神戸市中央区S様邸 戸建てリノベーション施工事例テーマカテゴリー

 

  • 自然素材リフォーム
  • 内外部スケルトンリフォーム

打ち合わせから着工、完成までの詳細施工事例紹介

1 着工前

1-1 現場調査・打合せ

築35年のS様邸は8年程前に外壁の塗装など一部メンテナンスリフォームを施工しており、同居という理由がなければ、フルリフォームが必要になるまで猶予がある状態でした。
使える構造体も多いと思いますので、しっかりと見極め、補強をしていきたいと思います。

神戸市中央区S様邸_施工前

コンクリート部分は元々大工をしていたご主人様が自分で施工されました。既存の建物はモルタル仕上げです。

神戸市中央区S様邸_施工前

足場が入ります。

1-2 神戸市中央区S様邸 戸建リノベーションプラン

  間取りの変更プラン  

神戸市中央区S様邸_既存図面1

1階 既存平面図

神戸市中央区S様邸_既存図面2

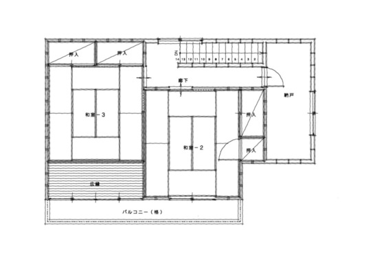
2階 既存平面図

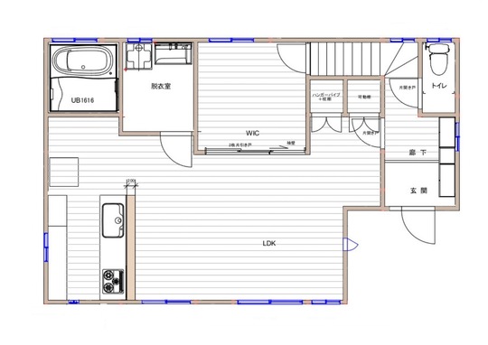
神戸市中央区S様邸_新規図面1

1階 新規平面図

神戸市中央区S様邸_新規図面2

2階 新規平面図

二世帯にも対応!

キッチンは壁付タイプからカウンターキッチンへ変更、ユニットバス、脱衣室を広くしました。
LDKにはウォークインクローゼットを併設。将来的にベットルームとして利用1階のみで生活ができるように、なっております。
2階は和室部屋から洋室に変更しました。ミニキッチンを備えており、お茶をいれたり、ちょっとした料理もできます。
全体的に収納をたくさん設置し居住空間を有効に使える間取りになります。

2 着工

2-1 足場・解体

再建築不可、既存不適格物件には車が侵入できないケースが多々ございます。
今回は車が侵入できましたので、解体により生じる産業廃棄物の搬出も幾分か負担は少なくてすみます。

神戸市中央区S様邸_解体

今回構造躯体がしっかりしています。もちろんさらに補強が必要です。

神戸市中央区S様邸_解体

お隣にご迷惑をかけないようにネットで保護

手壊しによる解体もスムーズに終わり、足場の設置するスペース45cmが確保できたので、問題なく順調に進んでいきます。

2-2 基礎

基礎は再利用いたしました。
湿気が上がってこないよう土間うちをしております。
鋤取りをしてから、砕石・防水シート・鉄筋を敷きコンクリートを打設します。

神戸市中央区S様邸_基礎

基礎の補強工事は重要工程です。

神戸市中央区S様邸_基礎

元々の基礎と連結して強度を高めます。

2-3 大工工事

ここまで大きな問題もなく順調に工程が進んできました。
まずは土台の水平レベルを確認します。

神戸市中央区S様邸_大工工事

水平レベルを大工さんが確認中、この工程をおろそかにすると完成時の出来栄えに大きく影響するため真剣勝負です。

神戸市中央区S様邸_大工工事

大工さん登場。いつもありがとうございます。

神戸市中央区S様邸_大工工事

既存の躯体と新しい躯体

S様邸は主要構造躯体も損傷か少なくほとんどの柱が再利用可能でしたが、現在と強度を保つためには柱が少なく、補強工事が必要になりました。
残した柱以上に新規で入れた柱、梁が目立ちます。
S様の場合は耐震補強を元からご希望でしたが、予算等に応じで、金具だけで補強するなど適切なアドバイスをさせて頂くことも可能です。

神戸市中央区S様邸_大工工事

筋交いを施工中

神戸市中央区S様邸_大工工事

いろいろな金具を使い耐震補強をしていきます。

神戸市中央区S様邸_大工工事

棟まで見えます。

神戸市中央区S様邸_大工工事

2階の床を施工中、梁と構造用合板を施工していきます。

神戸市中央区S様邸_大工工事

元々一本の木だけのものに筋交いや金具を使用しています。

神戸市中央区S様邸_大工工事

窓枠に下地の作業

神戸市中央区S様邸_大工工事

しっかりした土台です。物件により現在の木材より太いものを使っている場合もあります。

神戸市中央区S様邸_大工工事

床下換気口と基礎パッキン

2-4 屋根工事

屋根下地は今回すべて外し新しくやりかえました。
野地板とルーフィングを施工していきます。このルーフィングと屋根材で雨を防いでいきます。
ルーフィングの施工が悪いと雨漏りなどの原因になりますので、十分な注意が必要です。この上にカラーベストを施工していきます。

ルーフィングとは?

ルーフィングとは、屋根材の下に敷く防水シートのことです。雨水が屋内に進入することを防ぐことに用います。
1923年の関東大震災の復興建築を機に、広く利用されるようになりました。
カラーベストの屋根材と違い衣装的な役割はしませんが、木造建築の一番の敵である雨水を防ぐためにはかなり重要なものになります。

神戸市中央区S様邸_屋根工事

屋根職人の施工風景

神戸市中央区S様邸_屋根工事

屋根はすべてやり替えました。

神戸市中央区S様邸_屋根工事

ルーフィング施工中の風景

神戸市中央区S様邸_屋根工事

ルーフィング施工後

神戸市中央区S様邸_屋根工事

今回屋根はカラーベストを施工

神戸市中央区S様邸_屋根工事
神戸市中央区S様邸_屋根工事

カラーベストとは?

屋根材も沢山の種類がありますが、今回はハイウィルでも使用頻度の高いカラーベストを掘り下げたいと思います。
カラーベストとは平型化粧スレートのことで、屋根材の一種です。セメントと特殊鋼物質を主原料として、繊維で補強、平型に成型・彩色された屋根葺材で、高密度で均一な結晶構造もち、軽量で吸水率。伸縮率・含水率が少ない不燃材料になります。

特徴として

一般的な陶器平板瓦の約1/2の軽量さ
屋根を軽くし、建物の重量を軽く、重心を低くすることによる「軽い屋根の減震効果」が期待できます。その為従来の屋根材よりも地震に強い家になります。
また、一般の屋根材より硬く、強度も高いので耐久性に優れ、直射日光や雨風に強い屋根材になっております。

神戸市中央区S様邸_屋根工事
2-5 補強・防水工事

今回地震に強い家をご希望でしたので、建築基準法上耐震等級1以上を取得できる補強を行います。
外部は構造用合板を前面に張り、壁倍率を倍に仕上げました。更に内部には様々な金具を使い地震に強いお家へと生まれ変わります。

この効果を将来的に持続させるため、しっかり防水工事も行っていきます。

神戸市中央区S様邸_補強・防水工事

耐震金具

神戸市中央区S様邸_補強・防水工事

耐震金具

神戸市中央区S様邸_補強・防水工事

組み方が難しかった複雑な部分

神戸市中央区S様邸_補強・防水工事

サッシの施工完了、ボードが入っていきました。

神戸市中央区S様邸_補強・防水工事

サッシ施工完了

神戸市中央区S様邸_補強・防水工事

シャッター付き掃き出し窓

神戸市中央区S様邸_補強・防水工事

バルコニーの形が出来上がり、防水シートも施工完了

神戸市中央区S様邸_補強・防水工事

重要ポイントのバルコニー

神戸市中央区S様邸_補強・防水工事

防水シート施工完了

神戸市中央区S様邸_補強・防水工事

お風呂給排水

神戸市中央区S様邸_補強・防水工事

カウンターキッチン大工工事

神戸市中央区S様邸_補強・防水工事

ここに階段がかかります。

2-6 断熱工事

今回断熱材はグラスウールを使用。
断熱材には、グラスウールを初め、ロックウール、セルロースファイバー、発砲系断熱材・ポリスチレンフォーム、ウレタンフォーム、フェノールフォーム、また工法にも充填断熱工法、外張り断熱工法など様々な断熱材が、存在します。

それぞれ特徴がございますので、お気軽にご相談ください。

神戸市中央区S様邸_断熱工事

今回断熱材はグラスウールを使用

神戸市中央区S様邸_断熱工事

天井にも断熱材を入れていきます。

神戸市中央区S様邸_断熱工事

断熱材を施工、しっかりした施工をしないと断熱効果が半減します。

神戸市中央区S様邸_断熱工事

断熱材を充填。職人の腕の見せ所です。

2-7 内装仕上げ工事

外部も仕上がりつつある中、工事も仕上げの段階に入っていきます。
大工さん、内装職人、電気屋さんなど、詰めの作業を行っていきます。どんどん出来上がりが見えていきます。

神戸市中央区S様邸_内装仕上げ

建具も施工が終わり、残すはクロス工事です。

神戸市中央区S様邸_内装仕上げ

建具をはめていきます。階段の上部もしっかりと利用

神戸市中央区S様邸_内装仕上げ

壁一面収納にしております。

神戸市中央区S様邸_内装仕上げ

こちら今回のリフォームのポイント工事です。

神戸市中央区S様邸_内装仕上げ

バルコニーはYKKのハンドレールタイプ2中抜きタイプでかっこよく仕上げました。(写真の撮り方難しかったです)

3 竣工

約5か月の工事を経て、いよいよ竣工です。
築35年建て替え困難だった戸建てがどのように生まれ変わったのか。
S様邸の様子をご紹介します。


  =外観==  

神戸市中央区のS様邸はもともとモルタル仕上げでした。
定期的に塗装も入れられており、劣化がそこまで激しいわけだはありませんでしたが、今回サイディングに変更いたしました。
どうしても昔のモルタル仕上げでは、クラックが入りその分メンテナンスがかかってしまいます。現在はノンクラック工法が生み出され、クラックが起こらない施工方法が確立されておりますが、不安があるとのことで、サイディングが採用されました。
外壁材は変更しましたが、色味は既存の色味を意識して外観デザインをご提案させて頂きました。
お母様には「新築なのに、懐かしさと言いますか帰ってきた気持ちになり落ち着きます」とお礼を言われました。

神戸市中央区S様邸_竣工

優しい色味の外観に仕上がりました。1階には防犯シャッターを採用しております。

神戸市中央区S様邸_竣工

ハンドレール2が光っております。

神戸市中央区S様邸_竣工

写真ではわかりにくいですが、足掛かり防止のため網入りです。

神戸市中央区S様邸_竣工

雨が降っても大丈夫なバルコニー


  == 玄関・階段 ==  

神戸市中央区S様邸_竣工

玄関は外からの採光もとれ明るく仕上がりました。

神戸市中央区S様邸_竣工

階段


  == 水まわり ==  

神戸市中央区S様邸_竣工

キッチンはクリナップの「ラクエラ」(写真同型)をチョイス 収納が多く食器洗い乾燥機で日常の片付けも少しは楽になります。

神戸市中央区S様邸_竣工

ユニットバスにはTOTOの戸建住宅向けシステムバスルーム「サザナ」を採用。お掃除ラクラクほっカラリ床5つのクリーンアイテム内蔵でお掃除がしやすいお風呂になっています。

神戸市中央区S様邸_竣工

洗面はリクシルの「ルミシス」です。人造大理石で高級感を演出。

神戸市中央区S様邸_竣工

トイレはPanasonic「アウーノV」を採用。スゴピカ素材で汚れが付きにくくて丈夫です。


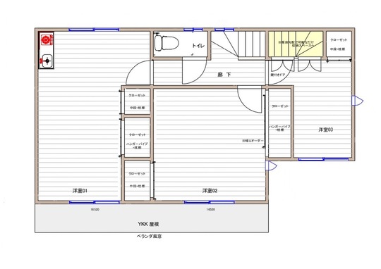
  == 2F 洋室 ==  

神戸市中央区S様邸_竣工

開放的なお部屋になりました。

神戸市中央区S様邸_竣工

収納もたっぷり

神戸市中央区S様邸_竣工

2階にはサブキッチンを用意

神戸市中央区S様邸_竣工

階段上の空間を利用して収納力をアップ

神戸市中央区S様邸_竣工

クローゼットタイプの枕棚ではなく、中段棚を採用

ハイウィルスタッフ

4 担当者より(ハイウィル株式会社・稲葉)

神戸でも好立地にありながら、再建築不可既存不適格物件は数多く見受けられます。S様のように住み慣れた環境を変えたくないが通常の表層のリフォームでは満足されない方はたくさんおられることでしょう。

神戸でも指折りの住宅地にございましたS様、街全体がここ数年で建て替えやリフォームなので新しくなっているという状態で、定期的にメンテナンスをされておられておりました。

そんな中建て替えをご検討からスタートし建築基準法という専門的な知識が必要になってしまい、勉強の過程が弊社との出会いでした。
ハウスメーカー様では、お家のセットバックの必要性を伝えられ、自分たちの希望をどうにか高い次元で具現化してくれるところはないのかいうご希望を強くお待ちでした。

2世帯住宅ということもありプランニングがなかなか決まらず、メールをメインにお打合せを繰り返し決定いたしました。

阪神大震災で被害にあわれて、構造に関しては最初から妥協しませんとのことでしたが、工事が進むにつれてここまで必要ですかといわれるぐらい、補強をさせて頂きました。
特別なことはしておりません。
通常のハイウィル品質の補強工事です。

ご予算の関係上、住宅設備機器や建材は卸値価格でご提案させて頂いたこともあり、大変ご満足頂けました。
工事に入ってからも頻繁に差し入れをお持ちいただくなど大変ありがとうございました。

S様、ご依頼いただきましてありがとうございました。

 

兵庫県他のリフォーム事例を見る

兵庫県

神戸市(垂水区・須磨区・長田区・兵庫区・中央区灘区東灘区・北区・西区)

西宮市芦屋市尼崎市、宝塚市、川西市、伊丹市、三田市、明石市

この事例と似たテーマカテゴリーを見る

全国のフルリフォーム・リノベーション『ピックアップ事例』※プロの詳細解説付きレポート

HEAT20-G2/耐震等級3
新耐震基準の性能向上リノベーション
築30年ハウスメーカー軽量鉄骨
断熱改修&リノベーション
 
中古住宅を新築以上の耐震性能と断熱性能へ!
耐震等級3フルリフォーム
地下付き木造2階建て
自然素材をつかった性能向上リノベーション&フルリフォーム

東京都文京区 K様邸

長屋を切り離して1つの構造体へフルリフォーム&リノベーション
隣家との距離がない!
部屋から外壁を張り替えるフルリノベーション
中古住宅を耐震等級3へ!
中古住宅リノベーション
 
基礎がない??
築60年の古屋をジャッキアップで基礎新設フルリノベーション

東京都渋谷区 O様邸

戸建てリノベーション・リフォームに関するお問合せはこちら

増改築.comの一戸建てリフォーム専用ホームページに
お越しいただき、誠に有難うございます。
 
増改築.comメンバーは技術集団となり、
他社のような営業マンがおりません。
技術者が直接ご相談にのり問題解決を行います。
 
従いまして、
お客様の方である程度のご要望が整理されました段階、
お悩みが工事内容のどのようなところにあるのか?
ご予算がどの程度絞る必要があるのか?
など明確になった段階でのご相談をお願いしております。
お問合せ・ご相談はお電話・メールにて受け付けております。
メールの場合は以下のフォームに必要事項をご記入の上、
「送信する」ボタンをクリックをお願いします。

代表稲葉高志

戸建てリノベーションの専属スタッフが担当致します。
一戸建て家のリフォームに関することを
お気軽にお問合せください

よくあるご質問
  • 他社に要望を伝えたところできないといわれたのですが・・・
  • 他社で予算オーバーとなってしまい要望が叶わないのですが・・・
  • サービスについて詳しく聞きたいのですが・・・

どのようなお悩みのご相談でも結構です。

あなたの大切なお住まいに関するご相談をお待ちしております。

営業マンはおりませんので、しつこい営業等も一切ございません。

設計会社(建築家様)・同業の建築会社様のご相談につきましては、プランと共にご指定のIw値及びUa値等の性能値の目安もお願い申し上げます。

2026年の大型補助金が確定したことで現在大変込み合っております。

耐震性能と断熱性能を向上させるフルリフォームには6か月~7か月の工期がかかります。

補助金獲得には年内に報告を挙げる必要があることから、お早目にご相談をお願いいたします。(6月着工までが目安

ご提案までに大変お時間がかかっております。ご了承のほどお願い申し上げます。

(5月までの着工枠が埋まりました)・・・2026/03/01更新

※すでにプランをお持ちのお施主様・設計資料をお持ちのお施主様は内容をフォームで送信後、フォーム下のメールアドレスに資料をお送りください。対応がスムーズです。

必須

(例:増改築太郎)

必須

(例:contact@high-will.co.jp)

(例:03-5615-2826)

必須

(例:東京都荒川区西日暮里2-35-1)

(例:築40年)

(例:25坪・100㎡など)

(例:2000万程度など)

  • ※再建築不可のリフォームでは金融機関が限られます。事前審査をお勧めいたします。

    (例:2024年3月くらいに完成希望など)

    必須

    できるだけ具体的にお知らせくださいませ。既存設計資料、リフォーム後のイメージ図等をお持ちであれば下記のメールアドレスより添付をお願いします。

    ※次の画面がでるまで、4~5秒かかりますので、
    続けて2回押さないようにお願いいたします。

    ※次の画面が出るまで、4〜5秒かかりますので、
    続けて2回押さないようにお願いいたします。

    図面や写真等を送信いただく場合、また入力がうまくいかない場合は、上記内容をご確認のうえ、下記メールアドレスまでご連絡ください。

    お電話でのお問合せはこちら

    0120-246-991

    営業時間:10:00~17:00(土日祝日を除く)

    ★YouTube「増改築.comチャンネル」チャンネル登録して新動画解説をいち早くGET!!★
    「増改築.comリノベ診断」であなたに一番ふさわしいフルリフォームを診断!!(動画解説付き)
    ★Facebookページにいいね!を押して最新コンテンツ情報をいち早くGET!!★
    パソコン|モバイル
    ページトップに戻る