戸建フルリフォームなら「増改築.com®」TOP > 施工事例 > 都道府県で探す神奈川県 > 川崎市 > 施工事例 K様 ハウスメーカー軽量鉄骨の断熱改修のフルリフォーム&フルリノベーション

築30年セキスイハイム軽量鉄骨住宅の断熱改修&リノベーション!

ハウスメーカー軽量鉄骨の断熱改修フルリフォーム&フルリノベーション事例(HEAT20)

川崎市K様邸

 

築古ハウスメーカー軽量鉄骨の断熱の悩みと対応できる断熱リノベーションの現状

築30年のハウスメーカー鉄骨住宅は、その当時の建築基準に基づいて建てられている。しかし、時代とともに断熱や耐震の基準は大きく進化しており、現代の基準とは大きく異なることが多い。特に軽量鉄骨の住宅は、鉄の熱伝導率の高さから、断熱性能の不足が顕著になることが多い。

K様のケースを見ても、他社との契約後に具体的な断熱の施工法に関するノウハウが不足していることが明らかになった。

このような状況は、施主様にとって非常に困難な状況であり、信頼関係の損傷や経済的な損失を招く可能性があります。

実際、K様は他社の提案に不信感を抱き、断熱リノベーションの専門家である弊社に相談されたのが経緯としてありました。

 

ハウスメーカーに相談すると、多くの場合「建て替え」を主に推奨される。これは、ハウスメーカーが新築の販売を主軸としているため、リノベーションよりも建て替えを推進する傾向があるからです。また、断熱の相談をしても、商品の販売を主目的とした提案が多く、真の断熱リノベーションのノウハウを持つ専門家は少ないという点も否めないのが実情です。

 

ハウスメーカー鉄骨住宅には、いくつかの問題点が存在します。

まず、既存の基準に基づいた建築という点です。築30年前の基準は、現代のものとは大きく異なります。そのため、断熱性能が現代の基準に比べて不足していることが多いのです。

次に、ハウスメーカーの提案の偏りがあげられます。さきほども述べましたが、多くのハウスメーカーは新築の販売を主軸としているため、リノベーションよりも建て替えを推奨する傾向があります。これは、リノベーションのノウハウが不足しているためとも言えます。

そして、真の断熱リノベーションのノウハウの不足。商品の販売を主目的とした提案が多い中、真の断熱リノベーションのノウハウを持つ専門家は少ないのが現状です。

これらの問題点を考慮すると、ハウスメーカー鉄骨住宅の断熱リノベーションを検討する際には、以下の3つのポイントが重要です。

 

  1. 専門家の意見を取り入れる:断熱リノベーションのノウハウを持つ専門家の意見や提案を取り入れることで、適切なリノベーションを行う。
  2. ハウスメーカーの提案を鵜呑みにしない:ハウスメーカーの提案は一方的であることが多いため、複数の意見や提案を比較検討することが重要です。
  3. 予算や計画をしっかりと立てる:断熱リノベーションはコストがかかることが多いため、予算や計画をしっかりと立てることで、スムーズなリノベーションを進めることができます。

これらのポイントを踏まえ、ハウスメーカー鉄骨住宅の断熱リノベーションを進める際には、慎重な計画と専門家の意見を取り入れることが必要です。

建物概要
名前 K様
場所 神奈川県川崎市
築年数 築36年
構造種別 軽量鉄骨(セキスイハイムのm3new)
家族構成 大人2人 子供2人
対象面積 39坪
リフォーム部位 間取り変更/断熱サッシ/セルロースファイバー/外構
工期 6ヶ月
価格 2800万(税込)

お客様のご要望

今回のリフォームで、K様からのご要望は以下5点です。

  • 軽量鉄骨だがHEAT20相当の断熱性能にしたい
  • 断熱材にはこだわりたい
  • デザインにはこだわりたい
  • 住宅設備機器にもこだわりがある
  • ヌックが欲しい

プランナー 北畠より ~プランニングのポイント~

  1. 軽量鉄骨の特性を活かした設計: 軽量鉄骨は、その名の通り軽量でありながらも強度が高いため、大きな開口部や大胆なデザインが可能です。この特性を活かして、開放的な空間や自然光を取り入れやすい設計が行われています。

  2. フレキシブルな間取り: 軽量鉄骨の構造は柱や梁の位置が自由に設定できるため、間取りの自由度が高くなります。これにより、住む人のライフスタイルや好みに合わせたカスタマイズが可能です。

  3. 独自のデザイン: 軽量鉄骨ならではの薄い壁やスリムな柱を使用することで、スタイリッシュでモダンなデザインが実現されています。

  4. 効率的な断熱性能: 軽量鉄骨の構造は、断熱材を効果的に配置することができ、冷暖房の効率を向上させることができます。これにより、快適な室内環境を保ちつつ、エネルギー消費を抑えることができます。

これらのポイントを踏まえて、軽量鉄骨ならではのプランニングのこだわりを追求することで、住む人の快適性と建物のデザイン性を両立させることができます。

川崎市K様邸 ハウスメーカー軽量鉄骨断熱リノベーション
施工事例テーマカテゴリー

  • 中古(住宅)を買ってリフォーム&リノベーション 
  • HEAT20-G2リフォーム(性能向上リノベーション)
  • セルロースファイバー仕様
  • 補助金活用リフォーム

打ち合わせから着工、完成までの詳細施工事例紹介

1 戸建てリノベーション着工前

1-1 現場調査・打合せ

築30年のセキスイハイムのK様邸の現場調査を行った際にまず、現場に到着した際に目に入ったのは、一階部分が他社によって既に解体されている様子でした。

この解体済みの状態は、提案前には通常では見ることができない躯体の状態を把握する絶好の機会となりました。

躯体の状態を直接確認することができることは、より精度の高い提案を行う上で非常に有利であり、K様にとっても安心感を持って施工を進めることができるポイントとなりました。

二階部分は、一階とは異なり、既存の状態に近かったものの、一階の躯体の状態を基に、二階の構造や断熱状況を予測することができました。特に、断熱材を充填する壁厚の問題や、熱橋となる柱や梁の対策方法、気流止めの検討など、多岐にわたる点を考慮しながらの調査となりました。

壁厚の問題について、既存の壁厚は断熱材を充填するには限界があるため、どのような断熱材を選択するか、また、どのように充填するかが鍵となります。

特に、熱伝導率が低い断熱材を選択することで、既存の壁厚でも十分な断熱性能を確保することが可能です。

熱橋となる柱や梁の対策方法については、これらの部分は建物の構造上、避けては通れない部分です。

しかし、これらの部分を適切に断熱することで、全体の断熱性能を大きく向上させることができます。

具体的には、熱橋部分に直接断熱材を充填する、または、熱橋部分を覆うように断熱材を配置することで、熱の流れを遮断することが考えられます。気流止めの検討については、断熱性能を向上させるためには、外部からの冷気や暖気の侵入を防ぐことが非常に重要です。特に、隙間やすき間からの気流は、断熱性能を大きく低下させる要因となります。

このため、気密性を高めるための材料や工法の選定が必要となります。以上のように、K様邸の現場調査を行った際には、多岐にわたる点を考慮しながら、最適な断熱リノベーションの提案を行うことができました。

川崎市K様邸 既存外観

既存外観

川崎市K様邸 既存

1階

川崎市K様邸 既存

2階


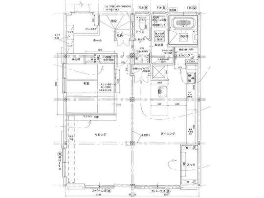
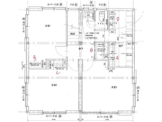
1-2 神奈川県川崎市K様邸 軽量鉄骨断熱リノベーションプラン

新規平面図

川崎市K様邸 新規平面図

1階 戸建てリノベーション後プラン

川崎市K様邸 新規平面図

2階 戸建てリノベーション後プラン

HEAT20-G2リフォームとは?

<HEAT20とは?>

HEAT20とは、「2020年を見据えた住宅の高断熱化技術開発委員会」という団体名です。

その団体が設定しているのが、屋根や外壁、床、窓などの「外皮」と呼ばれる部位の断熱や遮熱などといった性能の評価基準であり、G1とG2の2段階あります。G2の方がより高性能な性能を有する外皮となっています。

 

セキスイハイム軽量鉄骨造の住宅は、耐震面での型式認定があるため、構造計算は行えません。

「増改築.com®」によると、断熱リフォームの基準として、平成28年の建築物省エネ法基準に相当するUa値0.87が等級4(最高等級)とされています。しかし、この基準だけでは、真の省エネ住宅とは言えません。実際に、日本の断熱等級4は、2020年の建築基準法で努力義務とされているに過ぎません。しかし、2022年4月には断熱等級5が新設され、さらに2022年10月には断熱等級6・7が新設されました。断熱等級6・7は、これまでの断熱等級4と比べて、はるかに高いレベルの断熱性能が求められます。 HEAT20の計画においては、ZEH基準のUa値0.6を基準としています。これは、外壁105mm、U値2.33の樹脂アルミ複合サッシ窓で、天井の断熱材は105mmあれば実現できるとされています。さらに上位の「HEAT20 G1」グレードでは、6地域でUa値0.56となり、このレベルでは断熱環境を体感できるとされています。

最上位の「HEAT20G2」グレードでは、5地域でUa値0.46となっています。 K様邸のセキスイハイム軽量鉄骨造の断熱リフォームにおいては、これらの基準を踏まえた上で、適切な断熱材の選定や施工方法の検討が必要となります。

断熱改修(温熱改修)リフォームを成功させるためには、これらの基準や計画をしっかりと理解し、適切な施工方法を選択することが重要となります。

2 戸建てリノベーション着工

2-1 足場・解体

解体は2階の手壊し解体よりスタート

二階解体の目的と断熱改修の関連性

2階の解体は、通常のリノベーションや改修のためでもありますが、断熱層の確保や断熱性能の調査を目的としても断熱改修の現場では行われることが多いです。特に、K様邸のような既存の鉄骨住宅では、既存の断熱材の状態や断熱性能を正確に知るためには、実際に解体してみることが最も確実な方法となります。

2階解体後の躯体チェック

1. 天井の断熱層の確保

2階の天井部分は、屋根と直接接触しているため、夏の暑さや冬の寒さを直接受けやすい。そのため、この部分の断熱性能は非常に重要であり、解体時には天井の断熱層の厚さや材質を確認し、必要に応じて追加の断熱材を充填することが考えられる。

2. 断熱のポイント

2階の解体において、断熱改修の視点で特に注意すべイントは以下の通りです。

天井部分の断熱材の状態:経年劣化や湿気による損傷がないかを確認。

熱橋の確認:鉄骨や梁などの金属部分は熱の伝わりやすい熱橋となるため、これらの部分の断熱対策が必要。

外壁との接続部:外壁と2階の天井部分との接続部も熱の侵入や逃げるポイントとなるため、こちらも断熱対策が必要。

4. 断熱材の選定

解体によって明らかとなった断熱性能の不足や問題点を基に、新たな断熱材の選定が行われる。最新の断熱材は、従来のものよりも高い断熱性能を持ち、薄くても高い断熱効果を発揮するものが多い。

5. 断熱改修の効果

2階部分の適切な断熱改修により、室内の温度差が緩和され、冷暖房の効率が向上する。これにより、快適な室内環境が実現されるだけでなく、エネルギーコストの削減にもつながる。

まとめとして、K様邸の2階部分の解体は、断熱改修の視点からも非常に重要な工程であり、その結果に基づいて最適な断熱材の選定や断熱工事が行われることで、住まいの快適性やエネルギー効率の向上が期待されます。

川崎市K様邸 解体後
川崎市K様邸 解体後
川崎市K様邸 解体後
2-2 基礎

K様邸のセキスイハイム軽量鉄骨造は、鉄骨を主要な構造材として使用した住宅として知られています。

この軽量鉄骨造は、木造に比べて耐火性や耐久性に優れている一方で、熱伝導率が高いため、断熱性能の向上が特に求められる特性を持っているのも事実です。つまり断熱は特に重要になるわけです。

K様邸はハウスメーカーの建物の為、型式認定を受けているため、個別の構造計算を行うことはできないのが現状です。その為、弊社で構造計算はできません。

現場調査段階で基礎がない箇所がありました。構造上は型式認定のため、問題ないとされているものの、基礎がない箇所に関しては、耐震性だけでなく断熱性や気密性の面からも問題となることが考えられます。

特に、基礎が欠けている部分からの冷気の侵入や熱の逃失は、室内の温度環境を大きく悪化させる可能性があります。この問題に対処するため、風窓が設置され、外部からの冷気の侵入を効果的に防ぐ役割を果たしています。また、風窓は室内の結露を防ぐ効果も持っています。一方、重量ブロックはその堅牢性を活かし、基礎のない箇所をしっかりと塞ぐ役割を担っています。

これにより、外部からの冷気の侵入や熱の逃失を効果的に防ぐことが期待できます。

 

川崎市K様邸 解体後
川崎市K様邸 解体後
川崎市K様邸 風窓設置後
2-3 ハウスメーカー軽量鉄骨の断熱工事

近年、築30年以上が経過した住宅の断熱改修の重要性が高まっています。特に、セキスイハイムのような軽量鉄骨造の住宅では、当時の技術や材料の制約から、現代の断熱基準に比べて劣る場合が多いのが実情です。そんな中、K様邸もその一つで、築30~40年の経過を持つこの住宅の温熱改修は、住まいの快適性を追求するとともに、エネルギー効率の向上を目指したものとなっています。

以下に、その具体的な改修内容とその効果について詳しく解説していきます。サッシはカバー工法をメインで採用しました。こちらは最後の完成写真をご覧ください。

フェノバボードによる被覆

フェノバボード30㎜:フェノバボードは、高い断熱性能を持つ硬質発泡ウレタンを主成分とした断熱材です。軽量でありながら、優れた断熱性を持っています。
使用方法:鉄骨柱型の被覆に使用し、熱橋の発生を抑制します。これにより、鉄骨部分からの熱の流出・流入を大幅に減少させることができます。

川崎市K様邸 断熱工事
川崎市K様邸 断熱工事
川崎市K様邸 断熱工事

床の断熱

床断熱:ミラネクストラムダ75㎜厚※特注仕様

ミラネクストラムダは、高い断熱性能を持つガラスウール製の断熱材です。 鋼製の床上に木で下地を組み、熱橋を回避する構造としました。この下地の上にミラネクストラムダを敷き詰めることで、床からの熱の流出・流入を効果的に防ぎます。

1階の床の断熱材充填後は防湿シートを張り、捨て貼り後に気密テープによる目張りを行います

川崎市K様邸 断熱工事
川崎市K様邸 断熱工事
川崎市K様邸 断熱工事
川崎市K様邸 断熱工事
川崎市K様邸 断熱工事
川崎市K様邸 断熱工事

壁の断熱(セルロースファイバー120㎜

セルロースファイバーは、再生紙を主成分とした環境に優しい断熱材です。優れた断熱性と吸湿性を持っています。壁内にセルロースファイバーを充填します。特に鉄梁周りは、高性能グラスウールを使用して気流を止めることで、さらに断熱性を高めています

川崎市K様邸 断熱工事
川崎市K様邸 断熱工事
川崎市K様邸 断熱工事
川崎市K様邸 断熱工事
川崎市K様邸 断熱工事
川崎市K様邸 断熱工事

天井の断熱

天井断熱:セルロースファイバー300㎜

厚さ300㎜のセルロースファイバーは、天井部分の大きな熱の流出・流入を効果的に防ぎます。天井部分にセルロースファイバーを充填します。この時代の軽量鉄骨に多い折半屋根の隙間部分は、発泡ウレタンで充填したのち、気流を止めるために高性能グラスウールを使用して充填します。その後天井のセルロースファイバーを充填します。

川崎市K様邸 断熱工事
川崎市K様邸 断熱工事
川崎市K様邸 断熱工事
川崎市K様邸 断熱工事
川崎市K様邸 断熱工事
川崎市K様邸 断熱工事

鉄骨住宅によくある問題

軽量鉄骨の断熱改修において、特に難易度が高いのが階段周りの断熱です。階段の位置や構造は、多くの場合、変更が難しく、そのままの形状を維持しながらの断熱改修が求められます。このような制約の中で、最適な断熱性能を確保するためには、既存の壁厚内での高性能な断熱材の選定と施工技術が不可欠となります。

K様邸の場合、階段に面する部分の壁厚は105㎜と、一般的な壁厚である120㎜よりも狭いため、通常のセルロースファイバーの充填では十分な断熱性能を確保することが難しい状況でした。しかし、このような制約下でも、最適な断熱性能を追求するためには、105㎜の断熱層でも120㎜のセルロースファイバーと同等の性能を持つ断熱材の選定が必要です。今回、その答えとして選ばれたのが、パラマント硝子社の北海道仕様の高性能グラスウールでした。この断熱材は、狭い壁厚でも高い断熱性能を発揮することができ、隙間なく充填することで、気密性も向上します。さらに、ウレタン充填と気密シート、気密テープを使用することで、階段周りの断熱と気密性を最大限に高めることができました。

このような高度な技術と知識を持つ施工会社に断熱改修を依頼することで、住まいの快適性やエネルギー効率を大きく向上させることができます。断熱改修は、単に断熱材を充填するだけではなく、その家の構造や状況に合わせた最適な方法を選択し、適切に施工することが求められる専門的な分野です。そのため、技術水準の高い会社に施工を依頼することが、最終的な住まいの品質や性能を保証する上で非常に重要となります。ハイウィルではここまでの性能工事は社長自らが陣頭指揮を執る体制となっております。

川崎市K様邸 断熱工事
川崎市K様邸 断熱工事
川崎市K様邸 断熱工事
2-4 外壁・屋根工事

外壁工事は、住宅の耐久性や断熱性、美観を保つための重要な工程です。

 K様邸の外壁塗装には『WAKOECO® SHIELD(ワコーエコシールド)』を採用しました。この塗料は国内外で特許を取得した断熱塗料であり、多数の試験をクリアしています。

この製品は、セラミックスの働きにより太陽光線を反射し、さらに室内・室外の熱移動を抑制する働きがあります。また、期待耐用年数は10~15年以上とされています。 K様邸の外壁屋根塗装の特徴 K様邸では、既存のサイディング・折半屋根にワコーエコシールドを施工しました。

外皮計算には数値として計上されませんが、温熱改修がメインとなるため、この断熱塗料で施工を行いました。

<ワコーエコシールドの主な特徴>

暑さ対策・寒さ対策:太陽光線を反射し、室内・室外の熱移動を抑制。

防露性能:結露の発生を防止し、カビの発生を抑える。

不燃性能:国土交通省の不燃材料認定を取得。

安全性能:ホルムアルデヒド等級の最上位規格「Fフォースター」取得。

空気質改善:静電気の発生を抑え、アレルゲンやハウスダストの発生を抑制。

施工のメリット:ワコーエコシールドを施工することで、夏場は15%、冬場は21.5%のエネルギー削減が期待できます。これにより、冷暖房設備の効率的な運用が可能となり、快適な室温を維持するための必要電力を抑えることができます。

 

断熱塗料の選択は、機能・実績・予算・耐用年数などの要因を考慮して行われるべきです。K様邸では、ワコーエコシールドを選択することで、高い断熱性能と持続性を実現しました。これにより、住まいの快適性とエネルギー効率の向上を実現しています。

川崎市K様邸 既存外観

施工前

川崎市K様邸 ワコーエコシールド施工後

施工後

川崎市K様邸 ワコーエコシールド施工後

施工後

2-5 造作工事

構造部の構造補強が終わると、造作工事に入ります。ここからハイウィルでは、専任担当がインテリア担当者にバトンタッチします。

川崎市K様邸 造作工事
川崎市K様邸 造作工事
川崎市K様邸 造作工事
川崎市K様邸 造作工事
川崎市K様邸 造作工事
川崎市K様邸 造作工事

3 戸建てリノベーション竣工

K様邸の造作工事をメイン担当のパートに入るといよいよ建物のデザインが明らかになって参ります。担当はハイウィルのベテラン大谷が担当、K様の理想とする住まいづくりのサポートを全力で行うことができました。最初の段階から、内装材の選定やインテリア商材の選択、さらには色の決定やコンセントプレートのデザインに至るまで、細部にわたる仕様の決定を行いました。

それぞれの選択にはK様のこだわりや希望が詰まっており、それを形にするための最適な選択を一緒に考え、提案することがメイン担当者役割です。週末には、ショールームへの同行を重ねました。ショールームでは、実際の材料や商品を手に取り、感じながら選ぶことができるため、K様の理想を具体的にイメージしやすくなります。その場でのアドバイスや提案を行い、K様の希望を形にするためのサポートをしました。この3か月以上にわたる造作工事の期間中、K様とのコミュニケーションを大切にし手進行していきます。K様の希望やこだわりをしっかりと受け止め、それを実現するための方法を一緒に考え、提案することで、K様の理想の住まいづくりをサポートすることができました。

 

約6か月の工事を経て、いよいよ竣工です。
築30年以上のセキスイハイムの戸建てがどのように生まれ変わったのか。
K様邸の様子をご紹介します。


  =外観・玄関 ==  

Before

川崎市K様邸 既存外観

施工前

After

川崎市K様邸 竣工

K様邸は内部スケルトン解体のため既存の外壁を残し、窓の位置も変更なしでした。(一部窓埋めはしています)

川崎市K様邸 竣工

施工後の庭側から。屋根と外壁はセラミック塗料「WAKOECOSHIELD」を採用。断熱・遮熱に効果を発揮します。

川崎市K様邸 竣工
川崎市K様邸 竣工

玄関ドアはYKKapヴェナート

川崎市K様邸 竣工

  == 1F LDK ==  

解体された状態からのご依頼であったため既存の写真はありませんが、解体前は1階には4部屋あったようです。

今回K様は広い間取りご希望でしたが、構造上抜けない柱がありました。そこで見せる柱として活かし、3部屋分をLDKに、1部屋分を和室スペースとしました。和室の仕切りもあえて戸襖をなくすことでLDKとの一体感が感じられる空間となりました。

K様のセンスとこだわりがたくさん詰め込まれたLDKをご紹介します。

川崎市K様邸 竣工

キッチンとLDKの床材を分けました。キッチン側の床は東リのフロアータイル。柱はサンゲツのリアテックシートを巻いています。柱の上の方に棚板とコンセントを設置しました。プロジェクタを置くそうです。

川崎市K様邸 竣工

和室スペースから見たキッチン。スリット格子があるだけで高級旅館のようです。

川崎市K様邸 竣工

キッチン側からの眺め。大きな窓から明るい光が入ってきます。

川崎市K様邸 竣工

リビングダイニング側の床材は無垢材(施主支給品)です。柔らかい色合いに癒されます。広いお庭はK様がこれから手を入れるそうで、楽しみですね。

こだわったヌックスペース。

川崎市K様邸 竣工

和室スペース。戸襖がなくてもスリット格子がちょうどいい具合に視線を遮る役割を果たしています。

川崎市K様邸 竣工

和室スペース


  == 2F 洋室 ==  

2階は3部屋です。床は大建のフローリング材「トリニティ」を採用。バルコニーに面した2部屋の天井はリリカラの木目柄クロスです。広いバルコニーの向こうの木々の緑に不思議とマッチしてとてもさわやかな印象です。

先にも説明の通り、K様邸は内部スケルトンのため窓の位置は変えていません。不要な窓は内側から埋めています。外壁を壊さずに窓を新しくするには、カバー工法という方法を用います。カバー工法とは、古い窓ガラスを取外して既存の窓枠の上から新しい枠を覆いかぶせて設置する工事方法です。サッシはすべてYKKap製マドリモ断熱窓(遮熱Low-E複層ガラス)です。断熱窓に変えることで、窓からの熱の出入りが少なくなり省エネ効果が格段にアップします。

川崎市K様邸 竣工

バルコニー側洋室3

川崎市K様邸 竣工

バルコニー側洋室3

川崎市K様邸 竣工

バルコニー側洋室2

川崎市K様邸 竣工

バルコニー側洋室2の収納

川崎市K様邸 竣工

洋室1

川崎市K様邸 竣工

洋室1の収納


  == 水まわり ==  

K様邸の水回りは、1階にキッチン・お風呂・洗面・トイレ、2階に洗面・トイレという構成です。

川崎市K様邸 竣工

キッチンはTOTO「ザ・クラッソ」セパレート型。スタイリッシュでまるでキッチンスタジオのようです。

川崎市K様邸 竣工

ステンレスカウンター、タッチ式水栓(浄水器付)、食洗器付き。

川崎市K様邸 竣工

コンロ側もステンレスカウンター、レンジフードはお手入れが簡単なゼロフィルターフードeco。奥は食材庫パントリーになっています。

川崎市K様邸 竣工

浴室はTOTO「サザナ」1616サイズ

川崎市K様邸 竣工

1階洗面はアイカのスタイリッシュカウンターを採用。人造大理石のボウルとカウンターが一体となった意匠性の高い洗面台です。

川崎市K様邸 竣工

トイレは1,2階ともハイウィルTOTOオリジナルトイレ。壁はサンゲツの汚れ防止クロスです。小物やストックが置けるニッチを作りました。

川崎市K様邸 竣工

2階洗面台はTOTO「オクターブLite」間口750mm

川崎市K様邸 竣工

2階トイレ。サンゲツのフクロウ柄アクセントクロスが可愛らしい仕上がりです。


  == ベランダ ==  

Before

川崎市K様邸 既存外観

施工前

After

川崎市K様邸 竣工

施工後のベランダはLIXILビューステージです。


4 補助金利用

川崎市K邸の工事では、国の補助金「こどもエコすまい支援事業」と「先進的窓リノベ事業」を活用予定です。(申請中)

省エネにつながるエコ住宅設備や、断熱性能の高い断熱材・ドア・窓の設置などに対して交付される補助金です。

 

K様邸の補助金対象工事

エコ住宅設備の設置 給湯器(エコジョーズ)、高断熱浴槽、節水型トイレ、節湯水栓
断熱改修 外壁・床・天井の断熱材、断熱窓、断熱ドア
子育て対応改修 ビルトイン自動調理対応コンロ、掃除しやすいレンジフード、ビルトイン食洗器、浴室乾燥機

 


ハイウィル株式会社 大谷正浩

5 担当者より
(「増改築.com®」本部ハイウィル株式会社 大谷正浩)

K様へ、まず初めに、この度は私たちとともに素晴らしい住まいづくりの旅をしていただき、心から感謝申し上げます。

K様の夢や希望、こだわりを形にする過程で、私自身も多くのことを学び、成長することができました。私たちの関わりが始まった当初から、K様の熱意や情熱にはいつも感銘を受けておりました。それぞれの選択や決定の背景には、K様の家族や未来への深い愛情が感じられ、私もその一部に関わらせていただけることに、大変な喜びと責任を感じておりました。週末のショールーム訪問や、長時間にわたる打ち合わせなど、多くの時間を共に過ごしました。その中で、K様の笑顔や喜びの瞬間、時には悩みや迷いを共有することができ、私たちの関係は単なる「施主と施工者」という枠を超え、深い絆で結ばれたものと感じております。

お引渡し後、K様から「寂しい」という言葉をいただいたとき、私も同じ気持ちでいっぱいでした。しかし、その言葉の中には、私たちの関係の深さや、共に過ごした時間の価値を感じることができました。

K様、この度は本当にありがとうございました。私たちとの時間が、K様の新しい生活のスタートとして、良い思い出となったことを心から願っております。これからも、K様の住まいが家族の笑顔や幸せに満ち溢れる場所であり続けることを、遠くからですが、心より応援しております。今後とも、何かの際にはお気軽にご連絡いただければと思います。そして、またどこかの場所でお会いできることを楽しみにしております。心よりの感謝を込めて、大谷より。

神奈川県の他のリフォーム事例を見る

神奈川県

横浜市川崎市・相模原市・茅ヶ崎市・藤沢市・鎌倉市・逗子市・平塚市・小田原市・横須賀市三浦郡

全国のフルリフォーム・リノベーション『ピックアップ事例』※プロの詳細解説付きレポート

HEAT20-G2/耐震等級3
新耐震基準の性能向上リノベーション
築30年ハウスメーカー軽量鉄骨
断熱改修&リノベーション
 
中古住宅を新築以上の耐震性能と断熱性能へ!
耐震等級3フルリフォーム
地下付き木造2階建て
自然素材をつかった性能向上リノベーション&フルリフォーム

東京都文京区 K様邸

長屋を切り離して1つの構造体へフルリフォーム&リノベーション
隣家との距離がない!
部屋から外壁を張り替えるフルリノベーション
中古住宅を耐震等級3へ!
中古住宅リノベーション
 
基礎がない??
築60年の古屋をジャッキアップで基礎新設フルリノベーション

東京都渋谷区 O様邸

戸建てリノベーション・リフォームに関するお問合せはこちら

増改築.comの一戸建てリフォーム専用ホームページに
お越しいただき、誠に有難うございます。
 
増改築.comメンバーは技術集団となり、
他社のような営業マンがおりません。
技術者が直接ご相談にのり問題解決を行います。
 
従いまして、
お客様の方である程度のご要望が整理されました段階、
お悩みが工事内容のどのようなところにあるのか?
ご予算がどの程度絞る必要があるのか?
など明確になった段階でのご相談をお願いしております。
お問合せ・ご相談はお電話・メールにて受け付けております。
メールの場合は以下のフォームに必要事項をご記入の上、
「送信する」ボタンをクリックをお願いします。

代表稲葉高志

戸建てリノベーションの専属スタッフが担当致します。
一戸建て家のリフォームに関することを
お気軽にお問合せください

よくあるご質問
  • 他社に要望を伝えたところできないといわれたのですが・・・
  • 他社で予算オーバーとなってしまい要望が叶わないのですが・・・
  • サービスについて詳しく聞きたいのですが・・・

どのようなお悩みのご相談でも結構です。

あなたの大切なお住まいに関するご相談をお待ちしております。

営業マンはおりませんので、しつこい営業等も一切ございません。

設計会社(建築家様)・同業の建築会社様のご相談につきましては、プランと共にご指定のIw値及びUa値等の性能値の目安もお願い申し上げます。

2026年の大型補助金が確定したことで現在大変込み合っております。

耐震性能と断熱性能を向上させるフルリフォームには6か月~7か月の工期がかかります。

補助金獲得には年内に報告を挙げる必要があることから、お早目にご相談をお願いいたします。(6月着工までが目安

ご提案までに大変お時間がかかっております。ご了承のほどお願い申し上げます。

(5月までの着工枠が埋まりました)・・・2026/03/01更新

※すでにプランをお持ちのお施主様・設計資料をお持ちのお施主様は内容をフォームで送信後、フォーム下のメールアドレスに資料をお送りください。対応がスムーズです。

必須

(例:増改築太郎)

必須

(例:contact@high-will.co.jp)

(例:03-5615-2826)

必須

(例:東京都荒川区西日暮里2-35-1)

(例:築40年)

(例:25坪・100㎡など)

(例:2000万程度など)

  • ※再建築不可のリフォームでは金融機関が限られます。事前審査をお勧めいたします。

    (例:2024年3月くらいに完成希望など)

    必須

    できるだけ具体的にお知らせくださいませ。既存設計資料、リフォーム後のイメージ図等をお持ちであれば下記のメールアドレスより添付をお願いします。

    ※次の画面がでるまで、4~5秒かかりますので、
    続けて2回押さないようにお願いいたします。

    ※次の画面が出るまで、4〜5秒かかりますので、
    続けて2回押さないようにお願いいたします。

    図面や写真等を送信いただく場合、また入力がうまくいかない場合は、上記内容をご確認のうえ、下記メールアドレスまでご連絡ください。

    お電話でのお問合せはこちら

    0120-246-991

    営業時間:10:00~17:00(土日祝日を除く)

    ★YouTube「増改築.comチャンネル」チャンネル登録して新動画解説をいち早くGET!!★
    「増改築.comリノベ診断」であなたに一番ふさわしいフルリフォームを診断!!(動画解説付き)
    ★Facebookページにいいね!を押して最新コンテンツ情報をいち早くGET!!★
    パソコン|モバイル
    ページトップに戻る