戸建フルリフォームなら「増改築.com®」TOP > 施工事例 > 都道府県で探す > 東京都文京区 > K様 地下RC造木造2階屋の性能向上リノベーション事例解説

地下付き木造2階屋のポイント

地下RC造木造2階屋の性能向上リノベーション事例解説

 

文京区は、東京都の中心部に位置するエリアとして、古くからの歴史と新しい文化が融合した街並みが広がっています。多くの知的資産や文化施設が集まる一方で、古い住宅や長屋が点在しており、これらの建物の耐震性や機能性に課題があることも少なくありません。

K様が購入された物件も、この文京区の特性を色濃く反映したものでした。地下がRC造の木造2階屋という、一見すると珍しい構造の家でしたが、これは文京区の地盤や土地の狭さ、そして過去の建築基準などの影響を受けてのことでしょう。このような特性を持つ家は、新しいリノベーション技術を駆使して、現代のライフスタイルや安全基準に合わせて再生することが求められます。

K様がリノベーションを検討される際の最大の要望は「耐震」でした。東日本大震災をはじめとする近年の大きな地震の影響もあり、都心部でも耐震リノベーションの需要は高まっています。また、断熱材に関しても、エネルギー消費を抑えるため、そして四季折々の気候変動に対応するためのこだわりがありました。そして、基礎に関しては、家の命とも言える部分であり、補修ではなく、しっかりとした施工法で鉄筋コンクリート基礎補強を行いたいとのことでした。

このようなK様の要望や文京区の街並みの特性を踏まえて、リノベーションの計画が進められました。文京区の風情を保ちつつ、現代の安全基準や快適性を追求する。それが、K様のリノベーションの経緯となります。

建物概要
名前 K様
場所 東京都文京区
築年数 築50年
構造種別 木造一戸建て
家族構成 大人2人 子供2人
対象面積

31.2坪

リフォーム部位 基礎補強/間取り変更/断熱サッシ/セルロースファイバー/耐震補強/外構
工期 6ヶ月
価格 3300万

お客様のご要望

今回のリフォームで、K様からのご要望は以下の5点です。

  • 無垢材など自然素材を使用し温かい雰囲気にしたい
  • 地震が不安なので耐震補強はしっかりとやりたい
  • 断熱材にはこだわりたい。
  • ベタ基礎にしたい
  • 地下RC造の為、混構造の構造計算をしてほしい。

プランナー 北畠より ~プランニングのポイント~

K様邸のリノベーション計画において、最も難易度が高かったのは、地下RC造と木造2階屋の複合構造に対するアプローチでした。

この特異な構造は、外周面の基礎補強と引き抜き対策を多数必要としました。しかし、その難しさを乗り越え、内部の間取りを最大限に活用し、自由度の高い空間を実現することができました。さらに、間取りの変更に伴う窓の移動を最小限に抑えることで、解体費用の削減と断熱性能の向上の両立を目指しました。

このプロジェクトは、限られた条件の中で最適な解を追求するプランニングの難しさと醍醐味を改めて感じることができるものでした。

文京区K様邸 戸建てリノベーション施工事例テーマカテゴリー

  • 中古(住宅)を買ってリフォーム&リノベーション
  • 耐震等級3相当(上部構造評点1.5以上)リフォーム(性能向上リノベーション)
  • HEAT20-G2リフォーム(性能向上リノベーション)
  • セルロースファイバー仕様
  • 硬質ウレタン吹付断熱
  • 混構造
  • 自然素材

打ち合わせから着工、完成までの詳細施工事例紹介

1 戸建てリノベーション着工前

1-1 現場調査・打合せ

ハイウィルが初回の現場調査を行う際、特に重点を置いたのはRC造部の配筋検査でした。RC造、すなわち鉄筋コンクリート造は、その名の通り鉄筋とコンクリートで構成される構造体であり、その強度や耐久性は配筋の状態に大きく左右されます。

初回の現場調査では、まずは目視による確認から始めました。外部からの目視だけでなく、必要に応じて部分的な打ち抜きや、特殊なカメラを用いた内部調査なども行われることがあります。これにより、コンクリートの中に埋まっている鉄筋の太さや間隔、さらには錆の有無やコンクリートの劣化状況などを詳細に把握することができます。

次に、配筋の配置や太さ、本数を確認するための非破壊検査が行われました。これは、特殊な機器を使用して、コンクリートを破壊することなく鉄筋の位置や太さを確認する方法です。特に、地震などの外力に対する建物の耐久性を評価する上で、この配筋の状態は非常に重要な要素となります。

ハイウィルのプロフェッショナルな技術者たちは、これらの調査結果を基に、建物の現状や今後のリノベーションにおけるリスクを評価しました。また、K様の要望や予算、さらには建物の将来的な利用シーンを考慮して、最適なリノベーションプランの提案に繋げていきました。

このような入念な現場調査は、後の工事の安全性や品質を確保するための非常に重要なステップです。ハイウィルは、そのプロとしての責任感と技術力を持って、K様の大切な住まいに対する調査を行ったのです。


既存水回り


既存地下室


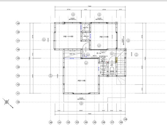
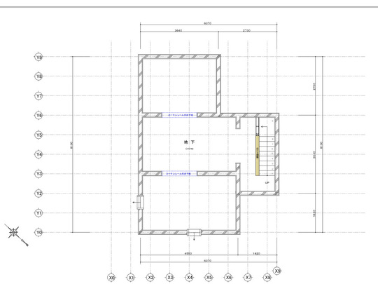
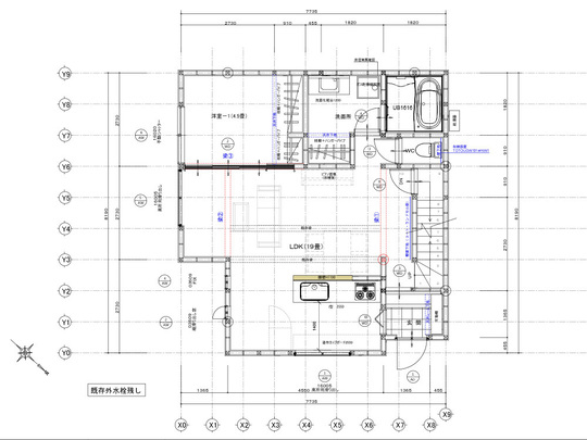
1-2 東京都文京区K様邸 戸建リノベーションプラン

新規平面図

1階 戸建てリノベーション後プラン

2階 戸建てリノベーション後プラン

地下室 戸建てリノベーション後プラン

2 戸建てリノベーション着工

2-1 足場・解体

解体は手壊し作業【内部スケルトン解体+サッシ新設】

K様の家のリノベーションでは、最も注目すべき工程の一つがスケルトン解体工事でした。この工事は、既存の建物の骨組みだけを残し、内部の仕上げや間仕切りを取り払うものです。このような手法を取ることで、新しい設計や間取りに合わせて、効率的にリノベーションを進めることができます。

特にK様の家では、窓周りの断熱性能を向上させるため、断熱サッシへの変更が計画されました。このため、サッシ周りの解体は非常に重要なポイントとなりました。通常の解体とは異なり、サッシ周りは精密な作業が求められます。カッターを使用して、窓枠や壁の接合部を慎重に切断し、既存の窓を取り外します。この工程は、新しい断熱サッシを設置するための下地作りとして非常に重要です。

また、人力による解体は、近隣への騒音や振動を最小限に抑えることができるため、都市部や住宅密集地域でのリノベーションにおいては非常に有効な手法となります。特に文京区のようなエリアでは、このような配慮が必要とされるケースが多いです。

さらに、スケルトン解体を行うことで、建物の構造体の状態や、隠された問題点を発見することができます。これにより、リノベーションの計画をより精緻に進めることができ、結果として長持ちし、快適な住まいを実現することができます。

このように、スケルトン解体工事は、リノベーションの成功を左右する重要な工程となります。ハイウィルのプロフェッショナルな技術者たちは、この工程を確実に、そして効率的に進めるためのノウハウと経験を持っています。

解体後の躯体チェック

解体工事が完了すると、その後のリノベーションの方向性が大きく変わることがあります。特に、K様邸のような地下RC造の物件では、解体後の躯体チェックが非常に重要となります。

解体工事が終了し、産業廃棄物の廃棄が完了した後、大工による仮補強が施されることで、初めて躯体の真の状態を確認することができます。この段階での躯体チェックは、今後のリノベーション工事の安全性や品質を確保するための非常に重要なプロセスとなります。

K様邸の地下RC造部分においても、この躯体チェックが大きな意味を持ちました。基礎と見立てた部分の鉄筋の有無、その配置や太さ、さらにはコンクリートの品質など、多くの要因を詳細に調査しました。結果として、鉄筋が入っていない箇所や不足している箇所が散見されたため、基礎補強の必要性が明確となりました

このような状況下で、専門家としての判断が求められる場面が多々あります。地下RC造の特性や、既存の躯体の状態を正確に把握し、それに基づいて最適な補強方法を選定することが、安全で快適な住まいを実現するための鍵となります。最終的に、K様邸では基礎補強を行うことで、地震に強く、長持ちする住まいを実現することができました。これは、解体後の躯体チェックの重要性を改めて実感する出来事となりました。

大事な構造部のすべてが目視可能となるスケルトンリフォーム

内部の天井・壁・床だけでなく外壁まで解体しスケルトン状態(躯体残し)にする戸建てリノベーションの最大のメリットはこのような重要な主要構造部のすべての状態が目視でわかることになります。

フルリノベーション後は、これらの構造上の弱点をすべて修正し補強することで新築と同水準、もくしくはそれ以上の建物性能をもつ構造躯体へ甦らせることが可能となります。

2-2 基礎

構造上のチェックが終わると、フルスケルトンリフォームでは、基礎工事へと移行していきます。

基礎補強は、建物の耐震性を向上させるための重要な工程の一つです。特に、K様の家のように地下がRC造の場合、一階の土台下部分が実質的な基礎となるため、その補強は不可欠です。

  1. 配筋工程
    まず、補強する部分の配筋図をもとに、鉄筋をカットし、組み立てます。この際、鉄筋の太さや間隔、曲げ角度などが正確に設計通りであることを確認します。鉄筋は、コンクリートの引っ張り強度を補う役割を持っており、適切な配置と組み立てが求められます。

  2. 型枠工程
    配筋が終わったら、型枠を組み立てます。型枠は、コンクリートを流し込む際の型となるもので、この型枠の正確さが補強後の形状や強度に影響します。特に、隅の部分や接合部の処理には注意が必要です。

  3. コンクリート打設
    型枠が組み上げられたら、コンクリートを打設します。この際、エアポケットが生じないよう、振動棒を使用してコンクリートを均一に流し込みます。また、コンクリートの品質や水分量もチェックします。これにより、補強部分の強度や耐久性が確保されます。

  4. 脱型工程
    コンクリートが十分に硬化した後、型枠を取り外す脱型工程に移ります。この時期の選定は非常に重要で、早すぎるとコンクリートが崩れるリスクがあり、遅すぎると型枠が取りづらくなります。

このように、基礎補強は一連の工程を経て行われます。それぞれの工程での専門的な知識や技術が求められ、ハイウィルの技術者たちはそのすべてを持っています。正確な工程を経て施工された基礎補強は、建物の安全性を大幅に向上させるものです。

K様邸では既存の基礎への添え基礎補強を採用しました。

すべてがベタ基礎が良いというわけではありません。

ベタ基礎は建物全体と同程度の荷重となりますので、建物の重さとのバランスもかかわってきます。足元だけ固めていても屋根を含めた建物とのバランスが悪いと大地震が起きた際にせん断力が働き、ホールダウン金物が抜けるような事態になるケースもあるからです。

大規模な戸建てリノベーションをされる際には、木造を熟知し、実績が豊富な会社へ相談することをお勧めする理由でもあります。

東京都

ベタ基礎って?

布基礎が立ち上がりとフーチングで持たせる基礎に対して、ベタ基礎は、立上りだけでなく、底板一面も耐圧盤を設け、立ち上がりと底面が一体化された鉄筋コンクリートになっている基礎をいいます。

建物の荷重を底板全体の面で受け止めるため、ベタ基礎は不同沈下を起こさない。といわれますが、それは良好な地盤での話です。

基礎の下の地盤面の地耐力が均一でない場合は、不同沈下が起こる可能性が充分あるのです。

 

耐震の世界では、重い瓦屋根は外して、軽いものに変えましょうと言われておりますが、それ自体は間違っていませんが、この理屈でいくと。屋根の瓦を外して、基礎はベタ基礎にしても、地盤に与える荷重は、瓦屋根以上の荷重がベタ基礎の荷重により地盤面にかかることになります。

地盤が軟弱な場合、布基礎を採用した方が有利な場合も出てきます。

そもそも正しい基礎補強方法を知らず、基礎補補修程度しか行わないリフォーム会社が多くを占めている現状ですが、

戸建て一軒家のリノベーションで、基礎補強をする際は、このような知識のある会社に相談することが必要です。

2-3 屋根工事

金属屋根の張替え工事は、住宅の屋根の耐久性や機能性を向上させるための重要な工程です。以下に、ルーフィングから仕上げ材までの工程を詳しく解説いたします。

  1. ルーフィング工程
    まず、既存の屋根材を撤去した後、下地のチェックを行います。この際、下地に傷みや劣化が見られる場合は、補修や張替えが必要となります。次に、防水シート(ルーフィング材)を張ります。これにより、雨水の侵入を防ぎ、屋根下地を保護します。

  2. 下地工程
    ルーフィングが完了したら、金属屋根材を支えるための下地を設置します。通常、木材や金属製のバッテンが使用され、適切な間隔で取り付けられます。

  3. 金属屋根材の取り付け
    下地が整ったら、金属屋根材を取り付けます。金属屋根は、軽量でありながら高い耐久性を持つため、長期間の使用に適しています。また、金属屋根は、さまざまな色やデザインが選べるため、外観のデザイン性も高まります。

  4. 縁切り・取り合い部の処理
    屋根の端や、隣接する部分には、縁切りや取り合い部の処理が必要です。これにより、雨水の侵入を防ぎ、屋根全体の耐久性を向上させます。

  5. 最終チェック
    全ての工程が完了したら、最終的なチェックを行います。取り付け部の確認や、雨漏りのリスクがないかの確認など、細部まで注意深くチェックします。

  6. 総括
    金属屋根の張替え工事は、適切な工程を経て行われることで、住宅の耐久性や機能性が大幅に向上します。専門的な知識と技術を持つプロの施工者による適切な工事が、長持ちする屋根を実現します。

2-4 木工事

基礎が終わり大工工事へと移行します。構造躯体の強度を担保するためのメイン工事となります。

木造建築における大工工事は、建物の骨組みを形成する中心的な工程です。特に、大スパンとなる部分の梁補強は、その安全性や耐久性を確保するための重要なステップとなります。

  1. 梁補強の重要性
    大スパンとなる部分では、広い空間を確保するために、通常よりも長い梁を使用します。しかし、長い梁は曲がりやすく、そのままでは安全性が確保できません。そこで、梁補強が必要となります。これにより、梁の強度や耐久性が向上し、安全な空間を実現します。

  2. N値算定と金物補強
    N値は、木材の硬さや強度を示す指標であり、この値に基づいて適切な金物を選定します。特に、引き抜き金物は、木材同士をしっかりと結合するためのもので、その配置や数はN値に基づいて決定されます。適切な金物を選定し、正確な位置に配置することで、木造建築の強度や安全性が向上します。

  3. 専門的な技術の必要性
    木工事は、伝統的な技術と最新の知識が求められる工程です。特に、大スパンとなる部分の梁補強やN値算定に基づく金物補強は、専門的な技術や経験が必要です。ハイウィルの大工たちは、これらの技術を持ち合わせており、安全で美しい空間を実現します。

以上のように、木工事は建物の安全性や耐久性を確保するための重要な工程です。それぞれのステップでの専門的な知識や技術が求められ、ハイウィルの技術者たちはそのすべてを持っています。正確な工程を経て施工された木工事は、長持ちする安全な建物を実現するものです。

2-5 断熱工事

断熱工事は、建物の快適性やエネルギー効率を向上させるための重要な工程です。K様の要望に応じて、最先端の断熱材を使用して、高い断熱性能を実現しました。

  1. 地下の断熱層と1階との遮断
    地下部分は、温度変動が少なく安定しているため、断熱性能を高めることで、1階の温度変動を抑える効果があります。しかし、地下と1階との間に適切な遮断層を設けることで、それぞれの空間の温度を独立させ、更なる快適性を追求しました。

  2. 30倍発泡ウレタンの採用理由
    地下の壁厚が限られているため、薄い断熱材でも高い断熱効果を持つ30倍発泡ウレタンを選択しました。100倍のウレタンと比較しても、30倍のウレタンは独立気泡構造を持ち、気泡の中の気体が外部との熱交換を防ぐため、薄くても高い断熱効果を発揮します。また、30倍のウレタンは、施工性が高く、限られた壁厚の中でもしっかりと充填することができます。

  3. 独立気泡の特性
    独立気泡構造のウレタンは、気泡が互いに独立しているため、外部からの熱や音の伝達を効果的に防ぎます。この特性により、薄い断熱材でも高い断熱・防音性能を持つことができます。

以上のように、K様の住宅の断熱工事は、最先端の技術と材料を駆使して、高い断熱性能を実現しました。これにより、1年を通しての快適な室内環境を保つことができるとともに、エネルギー効率の向上も図られました。

2-6 外壁工事

外壁工事は、住宅の耐久性や断熱性、美観を保つための重要な工程です。

  1. 窓周りの補修
    窓周りは、雨風の影響を直接受ける部分であるため、特に堅固な補修が必要です。窓枠の隙間やひび割れなどのダメージ部分を特殊なシーリング材で補修し、水の侵入を防ぎます。

  2. 断熱塗装の施工
    外壁の主要な工程として、断熱塗装が施されます。この塗装は、外部からの熱の侵入を効果的に防ぐ役割があります。特に夏場の強い日射や冬の冷気を遮断し、室内の温度を一定に保つ効果が期待できます。

  3. 仕上げ工程
    最後に、外壁の仕上げ工程が行われます。これには、外壁のクリーニングや、最終的な塗装のチェック、細部の補修などが含まれます。これにより、美しい外観と高い耐久性を持つ外壁が完成します。

以上の工程を経て、K様の住宅の外壁は、美観と機能性を兼ね備えたものとなりました。専門的な技術と経験を持つプロの施工者により、高品質な外壁工事が実現されました。

2-7 造作工事

造作仕上げ工事は、リノベーションの最終段階として行われる工程であり、ここで住まいの雰囲気や機能性が大きく変わります。K様邸の造作仕上げ工事においては、特に以下の点に注目して施工が行われました。

  1. 杉材の採用
    K様邸の1階と2階では、居住時間が長いことを考慮し、杉材をメインに造作材として選定されました。杉材は、その美しい木目や温かみのある質感で、室内空間に落ち着きと高級感をもたらします。また、杉は湿度を調整する効果もあり、健康的な室内環境を保つのにも寄与します。

  2. 地下部分の造作材選定
    地下部分においては、コストを抑えるために既製品が採用されました。しかし、既製品であっても、デザインや機能性に優れたものが選ばれ、K様の生活スタイルやニーズに合わせたカスタマイズが施されました。

  3. 造作家具の設計
    K様のライフスタイルや趣味、家族構成などを考慮に入れ、オーダーメイドの造作家具が設計されました。これにより、収納や機能性はもちろん、室内の統一感やデザイン性も向上しました。

  4. 総括
    造作仕上げ工事は、住まいの「顔」とも言える部分です。K様邸では、杉材の温もりと既製品の機能性を組み合わせることで、とても快適で機能的な空間が実現されました。プロの技術者としては、お客様の要望をしっかりと捉え、最適な材料と技術でそれを形にすることが最も重要だと考えています。

3 戸建てリノベーション竣工

約6か月の工事を経て、いよいよ竣工です。
都心の築50年戸建てがどのように生まれ変わったのか。
K様邸の様子をご紹介します。


  =外観 ==  

Before

施工前は汚れが目立っており、ひび割れもありました。

After

K様邸は外壁を残した解体でしたが、外窓を入れ替えているので窓廻りの補修は必須です。すべて終わったところで外壁を明るい色できれいに塗装し直しました。

Before

After

外壁はアイカ工業の塗壁材「ジョリパット(ゆず肌仕上)」を採用。


  == 1F LDK ==  

Before

施工前も1階にLDKがありました。キッチンのそばの穴は地下室への入り口でした。

After

施工後は地下室への階段を移動しドアで仕切りました。

フローリングは自然素材の杉無垢材。優しい色味に癒されます。壁と天井には珪藻土クロスを採用。

LDKの隣には4.5畳の洋室。3枚連動の引戸で大きく開きます。


  == 水まわり ==  

Before

施工前は地下室への入り口を避けた壁付きのキッチンでした。

After

施工後は対面キッチンへ変更しました。キッチンと収納はトクラス「Bb」I型2550サイズ、食洗器付き、IHコンロ、サイクロンフード。

お風呂はTOTOサザナ1616サイズ。

洗面台はTOTOオクターブ間口1200。

トイレはハイウィルオリジナルトイレ。


  == 地下室 ==  

Before

After

地下室のフローリングには無垢材ではなく、パナソニックベリティスを採用。

Before

施工前は階段というよりハシゴでした。

After

施工後は階段位置を変えて安全に行き来できるようになりました。


4 担当者より
(「増改築.com®」本部ハイウィル株式会社四代目代表稲葉高志)

今回のリノベーションは非常に印象深いプロジェクトとなりました。

初めてK様邸を訪れた際、その土地と建物が持つポテンシャルの大きさを感じました。そして、K様の「耐震をメインにリノベーションを行いたい」という強い意志と、細部にわたるこだわりに、私たちもその情熱を共有し、最高の結果を出すために全力を尽くさねばという使命感を強く感じました。

工事を進める中で、特に地下のRC造や木造2階屋の性能向上に関しては、数々の課題に直面しました。しかし、その都度、K様とのコミュニケーションを大切にしながら、最適な解決策を模索し、実現へと導いていきました。

完成したK様邸を見るたび、私たちはこのプロジェクトの全過程を思い返し、その過程で得られた経験や学びの大きさを実感します。K様とともに創り上げたこの住まいが、今後も長く安心してお過ごしいただける場所となることを心より願っております。

最後に、このような素晴らしい機会を与えていただき、心から感謝申し上げます。今後とも、ハイウィルをどうぞよろしくお願い申し上げます。

 

全国のフルリフォーム・リノベーション『ピックアップ事例』※プロの詳細解説付きレポート

HEAT20-G2/耐震等級3
新耐震基準の性能向上リノベーション
築30年ハウスメーカー軽量鉄骨
断熱改修&リノベーション
 
中古住宅を新築以上の耐震性能と断熱性能へ!
耐震等級3フルリフォーム
地下付き木造2階建て
自然素材をつかった性能向上リノベーション&フルリフォーム

東京都文京区 K様邸

長屋を切り離して1つの構造体へフルリフォーム&リノベーション
隣家との距離がない!
部屋から外壁を張り替えるフルリノベーション
中古住宅を耐震等級3へ!
中古住宅リノベーション
 
基礎がない??
築60年の古屋をジャッキアップで基礎新設フルリノベーション

東京都渋谷区 O様邸

戸建てリノベーション・リフォームに関するお問合せはこちら

増改築.comの一戸建てリフォーム専用ホームページに
お越しいただき、誠に有難うございます。
 
増改築.comメンバーは技術集団となり、
他社のような営業マンがおりません。
技術者が直接ご相談にのり問題解決を行います。
 
従いまして、
お客様の方である程度のご要望が整理されました段階、
お悩みが工事内容のどのようなところにあるのか?
ご予算がどの程度絞る必要があるのか?
など明確になった段階でのご相談をお願いしております。
お問合せ・ご相談はお電話・メールにて受け付けております。
メールの場合は以下のフォームに必要事項をご記入の上、
「送信する」ボタンをクリックをお願いします。

代表稲葉高志

戸建てリノベーションの専属スタッフが担当致します。
一戸建て家のリフォームに関することを
お気軽にお問合せください

よくあるご質問
  • 他社に要望を伝えたところできないといわれたのですが・・・
  • 他社で予算オーバーとなってしまい要望が叶わないのですが・・・
  • サービスについて詳しく聞きたいのですが・・・

どのようなお悩みのご相談でも結構です。

あなたの大切なお住まいに関するご相談をお待ちしております。

営業マンはおりませんので、しつこい営業等も一切ございません。

設計会社(建築家様)・同業の建築会社様のご相談につきましては、プランと共にご指定のIw値及びUa値等の性能値の目安もお願い申し上げます。

2026年の大型補助金が確定したことで現在大変込み合っております。

耐震性能と断熱性能を向上させるフルリフォームには6か月~7か月の工期がかかります。

補助金獲得には年内に報告を挙げる必要があることから、お早目にご相談をお願いいたします。(6月着工までが目安

ご提案までに大変お時間がかかっております。ご了承のほどお願い申し上げます。

(5月までの着工枠が埋まりました)・・・2026/03/01更新

※すでにプランをお持ちのお施主様・設計資料をお持ちのお施主様は内容をフォームで送信後、フォーム下のメールアドレスに資料をお送りください。対応がスムーズです。

必須

(例:増改築太郎)

必須

(例:contact@high-will.co.jp)

(例:03-5615-2826)

必須

(例:東京都荒川区西日暮里2-35-1)

(例:築40年)

(例:25坪・100㎡など)

(例:2000万程度など)

  • ※再建築不可のリフォームでは金融機関が限られます。事前審査をお勧めいたします。

    (例:2024年3月くらいに完成希望など)

    必須

    できるだけ具体的にお知らせくださいませ。既存設計資料、リフォーム後のイメージ図等をお持ちであれば下記のメールアドレスより添付をお願いします。

    ※次の画面がでるまで、4~5秒かかりますので、
    続けて2回押さないようにお願いいたします。

    ※次の画面が出るまで、4〜5秒かかりますので、
    続けて2回押さないようにお願いいたします。

    図面や写真等を送信いただく場合、また入力がうまくいかない場合は、上記内容をご確認のうえ、下記メールアドレスまでご連絡ください。

    お電話でのお問合せはこちら

    0120-246-991

    営業時間:10:00~17:00(土日祝日を除く)

    ★YouTube「増改築.comチャンネル」チャンネル登録して新動画解説をいち早くGET!!★
    「増改築.comリノベ診断」であなたに一番ふさわしいフルリフォームを診断!!(動画解説付き)
    ★Facebookページにいいね!を押して最新コンテンツ情報をいち早くGET!!★
    パソコン|モバイル
    ページトップに戻る