I戸建フルリフォームなら「増改築.com®」TOP > 施工事例 > 都道府県で探す > 東京都文京区 > 施工事例 I様 リフォームで耐震等級3(住宅性能評価制度)フルリフォーム&フルリノベーション事例

中古を買って新築以上の耐震性能と断熱性能に生まれ変わる!

リフォームで耐震等級3(住宅性能評価制度)フルリフォーム&フルリノベーション事例

 

東京都文京区に位置するI様邸は、中古住宅の性能向上リノベーションを目指しており、特に耐震等級3の獲得を強く望んでいました。

耐震等級3は、住宅性能表示制度における最高ランクであり、新築住宅に多く適用される指標です。この住宅性能評価制度」に則って、第三者機関(住宅性能評価機関)へ提出・申請して認証をもらうことで客観性かつ公正な認証となります。「住宅性能評価制度」を利用すると、実際に評価を行う専門家が、一定の基準に沿って現場まで見て建築中の家を確認する作業もあり、第三者の視点からしっかりとした設計・施工が行われていることが証明されます。この「住宅性能評価制度」における耐震等級3の取得を実現したいという明確な目標を持っていました。

 

リノベーションにおける耐震等級3の獲得の難しさ

耐震等級3の獲得は、新築住宅では一般的ですが、リフォームの場合は非常に困難です。これは、既存の建物の構造や設計に基づいて耐震性を評価し、必要な補強を行う必要があるためです。また、耐震の評点を上部構造評点という指標で計算する必要があり、これには専門的な知識と経験が必要です。

 

ハイウィルの対応と専門性

ハイウィルでは、新耐震基準の建物で、既存の設計資料が整っており、確認済証を持つ物件に限り、耐震等級3の性能評価獲得リフォームを受け付けています。これは、耐震等級3の獲得には、既存の建物の詳細な情報と、それに基づく正確な計画が不可欠であるためです。I様邸はこれらの条件に合致していたため、耐震等級3を目指すリノベーションが可能となりました。

 

耐震等級3獲得へのプロセス

耐震等級3の獲得には、まず既存建物の詳細な調査が必要です。これには、建物の構造、材質、以前の改修履歴など、多岐にわたる情報が必要となります。その上で、必要な補強計画を立て、実施する必要があります。このプロセスは複雑で時間がかかるため、リノベーションの計画段階で十分な時間とリソースを割く必要があります。

 

ハイウィルの専門家チームによるサポート

ハイウィルでは、専門家チームがこの複雑なプロセスをサポートします。耐震性の評価から補強計画の立案、実施までを一貫して行い、I様の要望に応える形でリノベーションを進めていきます。このプロセスでは、最新の建築技術と長年の経験が活かされ、高い品質のリノベーションが実現されます。

 

まとめ

文京区I様邸のリノベーションは、耐震等級3の獲得という高い目標を掲げ、ハイウィルの専門家チームによって実現されました。このプロジェクトは、既存住宅の性能向上という点で特に注目され、耐震性の向上だけでなく、長期的な住宅の快適性と安全性の向上を実現しました

建物概要
名前 I様
場所 東京都文京区
築年数 築20年
構造種別 木造一戸建て
家族構成 大人2人 
対象面積 25坪
リフォーム部位 間取り変更/断熱サッシ/セルロースファイバー/耐震補強/太陽光発電/外構
工期 5ヶ月
価格 約3000万(税込)太陽光別途

お客様のご要望

今回のリフォームで、I様からのご要望は以下の6点です。

  • 無垢材など自然素材を使用し温かい雰囲気にしたい
  • 地震が不安なので耐震補強はしっかりとやりたい、さらにリフォームで「耐震等級3」を獲得したい。
  • 断熱材にはこだわりたい。
  • 太陽光発電を導入したい

文京区I様邸 戸建てリノベーション施工事例テーマカテゴリー

  • 中古(住宅)を買ってリフォーム&リノベーション 
  • 中古住宅を買ってリノベーション(購入からリフォームまでワンストップサービス)
  • 耐震等級3相当(上部構造評点1.5以上)リフォーム(性能向上リノベーション)
  • HEAT20-G2リフォーム(性能向上リノベーション)
  • セルロースファイバー仕様
  • 自然素材 
  • 補助金活用リフォーム

打ち合わせから着工、完成までの詳細施工事例紹介

1 戸建てリノベーション着工前

1-1 現場調査・打合せ

東京都文京区に位置するI様邸は、中古住宅の性能向上リノベーションを目指しており、特に耐震等級3の獲得を強く望んでいました。耐震等級3は、住宅性能表示制度における最高ランクであり、新築住宅に多く適用される指標です。I様は、既存の住宅でこの高い耐震性能を実現したいという明確な目標を持っていました。

 

リノベーションにおける耐震等級3の獲得の難しさ

耐震等級3の獲得は、新築住宅では一般的ですが、リフォームの場合は非常に困難です。これは、既存の建物の構造や設計に基づいて耐震性を評価し、必要な補強を行う必要があるためです。また、耐震の評点を上部構造評点という指標で計算する必要があり、これには専門的な知識と経験が必要です。

 

ハイウィルの対応と専門性

ハイウィルでは、新耐震基準の建物で、既存の設計資料が整っており、確認済証を持つ物件に限り、耐震等級3のリフォームを受け付けています。これは、耐震等級3の獲得には、既存の建物の詳細な情報と、それに基づく正確な計画が不可欠であるためです。I様邸はこれらの条件に合致していたため、耐震等級3を目指すリノベーションが可能となりました。

 

耐震等級3獲得へのプロセス

耐震等級3の獲得には、まず既存建物の詳細な調査が必要です。これには、建物の構造、材質、以前の改修履歴など、多岐にわたる情報が必要となります。その上で、必要な補強計画を立て、実施する必要があります。このプロセスは複雑で時間がかかるため、リノベーションの計画段階で十分な時間とリソースを割く必要があります。

ハイウィルの専門家チームによるサポート

ハイウィルでは、専門家チームがこの複雑なプロセスをサポートします。耐震性の評価から補強計画の立案、実施までを一貫して行い、I様の要望に応える形でリノベーションを進めていきます。このプロセスでは、最新の建築技術と長年の経験が活かされ、高い品質のリノベーションが実現されます。

 

まとめ

文京区I様邸のリノベーションは、耐震等級3の獲得という高い目標を掲げ、ハイウィルの専門家チームによって実現されました。このプロジェクトは、既存住宅の性能向上という点で特に注目され、耐震性の向上だけでなく、長期的な住宅の快適性と安全性の向上を実現しました


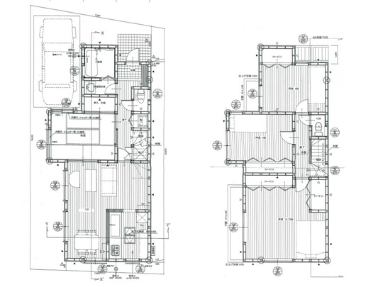
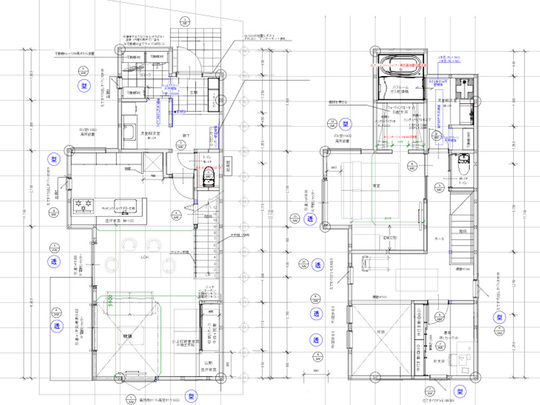
1-2 東京都文京区I様邸 戸建リノベーションプラン

  間取りの変更プラン  

I様邸 施工前平面図
I様邸 リノベーション後プラン

I様邸の全体プランニングにおいて、プランナーは以下の重要なポイントに注意を払いながら、I様の要望を満たすための計画を策定しました。

 

1. I様の要望の理解と反映

  • 耐震等級3の実現: I様は耐震等級3の獲得を強く望んでいました。これを実現するために、プランナーは既存建物の構造を詳細に分析し、必要な補強計画を策定しました。特に、既存の構造体と新しい設計の整合性を確保することが重要でした。

  • 断熱性能の向上: I様は高い断熱性能を求めていました。これに応えるため、プランナーはHEAT20G2グレードの断熱材の選定と、その適切な配置に重点を置きました。特に、外周壁や天井部分の断熱材の厚みと質に注意を払いました。

 

2. 現地調査と既存構造の分析

  • 既存構造の詳細な調査: I様邸の既存構造に関して、プランナーとしては詳細な現地調査を行いました。これにより、既存の構造体の状態や、改修に必要な箇所の特定が可能となりました。

  • 設計図書との照合: 既存の設計図書と実際の建物の照合を行い、不一致がある場合はその原因を究明し、適切な対応策を立てました。

 

3. 構造計算と耐震改修の計画

  • 構造計算の再実施: 耐震等級3を目指すため、プランナーは構造計算を再実施しました。これにより、既存の構造体の補強や新たな構造体の追加が必要な箇所を特定しました。

  • 金物の選定と配置: 耐震改修において、適切な金物の選定と配置が重要でした。プランナーは、既存の金物の誤りを修正し、新たな耐震金物を適切な位置に配置する計画を立てました。

 

4. 断熱計画と内装デザイン

  • 断熱材の選定と配置: I様の要望に応じて、高性能な断熱材を選定し、その配置計画を策定しました。特に、外壁や天井部分の断熱性能に重点を置きました。

  • 内装デザインの配慮: I様邸の内装には、越後杉を使用し、美観と機能性を両立させるデザインを採用しました。また、建具や壁紙の選定にも細心の注意を払いました。

 

5. コミュニケーションと調整

  • I様との継続的なコミュニケーション: プロジェクト全体を通じて、I様との継続的なコミュニケーションを保ちました。これにより、I様の要望や懸念に迅速に対応することが可能となりました。

  • 関係者との調整: 施工業者、検査機関、設計チームなど、プロジェクトに関わるすべての関係者との調整を行いました。これにより、スムーズなプロジェクト進行が実現されました。

 

まとめ

プランナーとしての役割は、I様の要望を満たすための綿密な計画立案と、その実行における細部への注意と調整にありました。耐震等級3の獲得、高い断熱性能の実現、そして美観と機能性を兼ね備えた内装デザインの実現は、プランナーの専門知識と経験に基づくものでした。このような総合的なアプローチにより、I様邸は快適で安全、かつ長持ちする住宅として生まれ変わりました。

I様の戸建てのフルリフォーム&フルリノベーション工事はこうしてはじまりました。

イメージパース

2 戸建てリノベーション着工

2-1 足場・解体

I様邸のリノベーションプロジェクトでは、木造戸建てのスケルトン人力解体工事が重要な役割を果たしました。この工事は、既存の外壁を保持しつつ、内部を完全に解体し、新しい設計に基づいた再構築を可能にするために行われました。

 

解体工事の目的とプロセス

  • 目的: I様邸の解体工事の主な目的は、既存の建物構造を詳細に把握し、新しいリノベーション計画に必要な空間を確保することでした。また、既存の建物の良質な部分を活用し、無駄を最小限に抑えることも重要な目的の一つでした。
  • プロセス: 解体工事は、専門の職人によって慎重に実施されました。まず、建物の内部から順に解体を進め、構造体や配管、電気設備などを丁寧に取り除きました。この過程で、建物の構造的な特徴や潜在的な問題点を詳細に調査しました。
  •  

環境への配慮と安全管理

  • 環境配慮: 解体工事では、騒音やほこりなどの環境への影響を最小限に抑えることが求められます。I様邸では、近隣住民への配慮として、騒音防止策を講じ、ほこりの発生を抑制するための措置が取られました。
  • 安全管理: 解体工事中の安全管理は非常に重要です。I様邸では、作業員の安全確保はもちろん、周囲の安全も考慮し、厳格な安全基準に基づいて作業が進められました。
  •  

解体後の再構築への準備

  • 解体工事の完了は、新しいリノベーションのスタート地点を意味します。I様邸では、解体工事を通じて得られた空間と構造の情報を基に、新しい設計と機能の組み込みが計画されました。この段階での詳細な調査と計画は、リノベーションの成功に直結するため、非常に重要なプロセスとなります。

まとめ

I様邸のスケルトン解体工事は、既存の価値を最大限に活かしながら、新しい生活スタイルと機能を取り入れるための重要な一歩でした。この工事は、専門的な技術と経験を持つ職人によって慎重に進められ、リノベーションの成功への基盤を築きました。また、解体後の再構築に向けての準備として、既存建物の構造や特性を詳細に把握し、計画の精度を高めることができました。

解体後のチェックの重要性

I様邸のリノベーションにおいて、手壊し解体後のチェックは極めて重要なプロセスです。特に、耐震等級3への改修を目指す上で、既存の建物が設計図書と一致しているかの確認は不可欠です。このチェックを通じて、既存の構造体の状態を正確に把握し、適切な耐震改修計画を立てることが可能になります。

 

チェックのプロセス

  1. 設計図書との照合: 解体後、まず行うべきは、既存の建物が設計図書と一致しているかの確認です。これには、建物の各部分の寸法、配置、使用されている材料などを詳細に照合します。

  2. 構造体の状態確認: 築浅のI様邸では、老朽化や劣化が少ないと予想されますが、それでも構造体の状態を細かくチェックします。特に、耐震性に直接影響する柱や梁、基礎などの状態を詳細に調査します。

  3. 既存補強の確認: 既存の補強が適切に行われているかの確認も重要です。間違った補強が施されている場合、それをそのまま反映すると耐震改修の効果が損なわれる可能性があります。

  4. 問題点の特定と対策計画: チェックを通じて特定された問題点に対しては、適切な対策を計画します。これには、構造計算の再評価や補強方法の見直しなどが含まれます。

 

チェックの重要ポイント

  • 精度の高い測定: 解体後のチェックでは、精度の高い測定が必要です。これにより、設計図書とのわずかな差異も見逃さず、正確な現状把握が可能になります。

  • 専門家による評価: 構造体の状態や既存補強の適切性を評価するためには、専門家の知見が不可欠です。経験豊富な専門家による評価を行うことで、より信頼性の高いチェックが行えます。

  • 既存不適格部分の特定: 既存の建物が現行の建築基準に適合していない部分があれば、それを特定し、適切な改修計画を立てる必要があります。

 

 

 

耐震改修計画の策定

  • 改修計画の重要性: 解体後のチェック結果を基に、耐震改修計画を策定します。この計画は、既存の構造を最大限に活用しつつ、必要な補強を行うことで、耐震等級3の基準を満たすことを目指します。

  • 構造計算の再評価: 耐震改修には、構造計算の再評価が必要です。既存の建物の構造データを基に、新たな耐震基準に適合するような計算を行い、必要な補強方法を決定します。

  • 補強方法の選定: 耐震改修においては、様々な補強方法が考えられます。これには、梁や柱の補強、耐震壁の追加、基礎の補強などが含まれます。各部分の状態に応じて最適な補強方法を選定します。

 

チェックの成果とリノベーションへの影響

  • 安全性の向上: 正確なチェックと適切な耐震改修計画により、建物の安全性が大幅に向上します。これにより、長期的な住宅の安定性と快適性が保証されます。

  • リノベーションの品質保証: 解体後のチェックは、リノベーション全体の品質を保証する重要なステップです。これにより、I様に対して高品質なリノベーションを提供することが可能になります。

  • クライアントの信頼獲得: 綿密なチェックと計画により、クライアントであるI様の信頼を獲得します。これは、将来的なリノベーションプロジェクトにおいても、良好な関係を維持するために重要です。

 

まとめ

I様邸のリノベーションにおける手壊し解体後のチェックは、耐震等級3への改修を成功させるための重要なステップです。このチェックを通じて、既存の建物の状態を正確に把握し、適切な耐震改修計画を立てることができます。専門家による詳細な評価と、問題点への適切な対応が、リノベーションの成功に不可欠であり、I様にとって安全で快適な住環境を提供するための鍵となります。

 
 
 
 

大事な構造部のすべてが目視可能となるスケルトンリフォーム

内部の天井・壁・床だけでなく外壁まで解体しスケルトン状態(躯体残し)にする戸建てリノベーションの最大のメリットはこのような重要な主要構造部のすべての状態が目視でわかることになります。

フルリノベーション後は、これらの構造上の弱点をすべて修正し補強することで新築と同水準、もくしくはそれ以上の建物性能をもつ構造躯体へ甦らせることが可能となります。

2-2 基礎

I様は新耐震基準の為、基礎補強はありませんでした。

2-4 木工事

チェックが終わり大工工事へと移行します。構造躯体の強度を担保するためのメイン工事となります。

文京区I様邸のリノベーションにおける木工事は、耐震等級3の基準を満たすために、特に梁補強が重要な課題となりました。この工程では、既存の構造体を新しい設計に合わせて補強し、再構築を行いましたが、多くの課題に直面しました。

 

既存金物の修正と再設計

  • 金物の不一致: 既存の柱頭金物と柱脚金物のメーカーが異なり、向きも違っていたため、これらの金物の修正が必要となりました。金物の不一致は構造の安定性に影響を与えるため、正確な修正が求められます。

  • 筋交いの問題: 既存の筋交いにエアコンのコア貫き箇所があり、これにより筋交いを耐力壁として考慮することができませんでした。外壁を解体するリノベーションであれば筋交いを解体して新たに設置も可能ですが、外壁面は解体しないリノベーションでしたので、外壁面の金物を設置が出来ないことから構造計画の見直しとなりました。これは構造計算に大きな影響を与え、新たな耐震設計の必要性を生じさせました。

  • 構造計算の再評価: 上記の問題に対処するため、構造計算を何度もやり直す必要がありました。これには、既存の構造体の強度を正確に評価し、新しい設計に合わせた補強方法を決定する作業が含まれます。

 

耐震等級3への対応

  • N値算定に基づく金物設置: 耐震等級3を達成するためには、N値算定に基づく金物の設置が不可欠です。これにより、建物の安全性と耐震性が大幅に向上します。

  • 補強工事の実施: 既存の構造体に対する補強工事を実施しました。これには、新たな梁の設置や、既存の構造体の強化が含まれます。

まとめ

I様邸の木工事は、耐震等級3の基準を満たすために、多くの課題に直面しました。既存の金物の不一致や筋交いの問題に対処し、構造計算を再評価することで、最終的には安全で耐震性の高い住宅を実現しました。このプロセスは、既存住宅のリノベーションにおける複雑さを示し、専門的な知識と経験が不可欠であることを強調しています。

2-5 断熱工事

文京区I様邸のリノベーションにおける断熱工事は、HEAT20G2グレードの高い断熱性能を目指して行われました。この工事は、快適な室内環境の実現とエネルギー効率の向上を目的としています。

 

断熱材の選定と施工

  • 地下部の床: 地下部の床には、75㎜のラムダ断熱材を使用しました。これにより、地下空間の温度保持能力が向上し、上層への冷気の伝達を最小限に抑えることができます。

  • 外周壁と天井の断熱: 外周面の壁には120㎜厚のセルロースファイバーを充填し、2階天井部には30㎝厚のセルロースファイバーを充填しました。これにより、外気の影響を受けやすい壁面と天井部の断熱性能が大幅に向上しました。

  • 斜め天井部の対応: 斜線が掛かる斜め天井部にも30㎝のセルロースファイバーを充填しました。この部分の断熱は特に重要で、斜め天井の形状に合わせた充填が行われました。この施工により、傾斜部にかかる洗面化粧台などの高さも考慮した間取りが可能となりました。

 

サッシの選定

  • APW330の樹脂防火窓: サッシにはAPW330の樹脂防火窓を採用しました。この窓は断熱性能が高く、防火性能も備えているため、安全性と快適性を両立させることができます。

 

外皮計算に基づく設計

  • 外皮計算の実施: 断熱工事の設計には、外皮計算が用いられました。これにより、建物全体の断熱性能を最適化し、HEAT20G2グレードの基準を満たす設計が可能となりました。

 

まとめ

I様邸の断熱工事は、高い断熱性能を目指して慎重に計画され、実施されました。地下部の床、外周壁、天井、斜め天井部への充填断熱材の選定と施工、高性能なサッシの採用により、快適でエネルギー効率の高い住宅が実現されました。この工事は、住宅の快適性とエネルギー効率の向上に大きく寄与し、長期的な住宅の価値を高める重要な要素となっています。

文京区I様邸 断熱データ

場所 製品 断熱グレード
床断熱材 ミラネクストラムダ F(ZEHレベル)
壁・天井断熱材 セルロースファイバー C(ZEHレベル)
玄関ドア YKKapイノベストD50防火ドア A(ZEHレベル)
サッシ

YKKap APW430防火窓(高性能トリプルガラス樹脂窓)

YKKap APW330防火窓(高性能樹脂窓)

P~A

HEAT20-G2リフォームとは?

<HEAT20とは?>

HEAT20とは、「2020年を見据えた住宅の高断熱化技術開発委員会」という団体名です。

その団体が設定しているのが、屋根や外壁、床、窓などの「外皮」と呼ばれる部位の断熱や遮熱などといった性能の評価基準であり、G1とG2の2段階あります。G2の方がより高性能な性能を有する外皮となっています。

<省エネ基準の家とHEAT20の家の違い>

HEAT20-G2の家は、省エネ基準の家の30~50%の暖房費を削減できる

 

「増改築.com®」によると、断熱リフォームの基準として、平成28年の建築物省エネ法基準に相当するUa値0.87が等級4(最高等級)とされています。しかし、この基準だけでは、真の省エネ住宅とは言えません。実際に、日本の断熱等級4は、2020年の建築基準法で努力義務とされているに過ぎません。しかし、2022年4月には断熱等級5が新設され、さらに2022年10月には断熱等級6・7が新設されました。断熱等級6・7は、これまでの断熱等級4と比べて、はるかに高いレベルの断熱性能が求められます。 HEAT20の計画においては、ZEH基準のUa値0.6を基準としています。これは、外壁105mm、U値2.33の樹脂アルミ複合サッシ窓で、天井の断熱材は105mmあれば実現できるとされています。さらに上位の「HEAT20 G1」グレードでは、6地域でUa値0.56となり、このレベルでは断熱環境を体感できるとされています。

最上位の「HEAT20G2」グレードでは、5地域でUa値0.46となっています。

断熱改修(温熱改修)リフォームを成功させるためには、これらの基準や計画をしっかりと理解し、適切な施工方法を選択することが重要となります。

2-6 外壁工事

外壁工事は、住宅の耐久性や断熱性、美観を保つための重要な工程です。文京区I様邸のリノベーションにおける外壁工事は、建物の外観と機能性の向上を目的として行われました。特に、窓周りの解体と補修、左官仕上げが重要なポイントとなりました。

 

窓周りの解体と補修

  • 窓周りの解体: I様邸では、窓の入れ替えや新設に伴い、外壁の一部をカッターで解体しました。この作業は、新しい窓のサイズや位置に合わせて慎重に行われました。

  • 補修作業の重要性: 解体によって生じた外壁の傷みや不均一な部分は、後の仕上げ工程に影響を与えるため、丁寧な補修作業が必要となりました。特に、窓周りは雨水の侵入を防ぐための重要な部分であるため、補修は入念に行われました。

 

左官仕上げの施工

  • ジョリパット仕上げ: 通常の塗装では窓周りの仕上がりに段差が生じる可能性があるため、I様邸ではジョリパット仕上げを採用しました。この仕上げは、外壁に均一な質感と美観をもたらし、建物の外観を一新しました。

  • 全面補修と仕上げ塗り: 外壁にはまず左官全面補修が施され、その後仕上げ塗りが行われました。この二重の工程により、外壁の耐久性と美観が大幅に向上しました。

 

雨仕舞処理

  • 入念な雨仕舞処理: 窓周りの雨仕舞処理は、外壁工事において非常に重要な部分です。この処理により、雨水の侵入を防ぎ、建物内部の構造体を保護します。I様邸では、この処理に特に注意を払い、長期的な建物の保護を目指しました。

まとめ

I様邸の外壁工事は、窓周りの解体と補修、左官仕上げを中心に行われました。これにより、外壁の耐久性が向上し、断熱性能の向上にも寄与しました。ジョリパット仕上げの採用と入念な雨仕舞処理により、建物の外観と機能性の両方が大幅に改善されました。この工事は、建物の長期的な保護と美観の向上に大きく貢献し、I様の快適な住環境の実現に一役買っています。

2-7 造作工事

構造部の構造補強が終わると、造作工事に入ります。

文京区I様邸のリノベーションにおける造作仕上げ工事は、高品質な越後杉の使用と、細部にわたる配慮が特徴的です。この工事は、住宅の美観と機能性を高めるために重要な役割を果たしました。

 

越後杉の使用

  • 越後杉の特徴: 越後杉は、その美しい木目と耐久性で知られています。I様邸では、この高品質な材木を建材や家具の主要素材として使用しました。越後杉の温かみのある質感は、室内に自然な雰囲気をもたらし、居心地の良い空間を創出します。

  • 床板の厚み: 床板には30㎜の厚みを持つ越後杉を使用しました。この厚みのある床板は、歩行時の安定感を提供し、長期間にわたる耐久性を保証します。また、越後杉の床板は、室内の音響効果にも良い影響を与え、快適な生活空間を実現します。

 

内装のメリハリ

  • 建具の選定: I様邸では、建具に既製品を使用し、越後杉とのバランスを取りました。この組み合わせにより、コストパフォーマンスとデザインの両方を考慮した内装が実現されました。

  • 壁紙の選択: 壁紙には珪藻土クロスを採用しました。珪藻土クロスは、その自然な質感と調湿機能で人気があります。また、各出隅や入隅には杉材を使用し、珪藻土クロスの割れやすい弱点を補完しました。この工夫により、美観と機能性が高められ、長期的な耐久性が確保されました。

 

まとめ

I様邸の造作仕上げ工事は、越後杉を中心とした高品質な材料の使用と、細部にわたる配慮により、美観と機能性を兼ね備えた空間を創出しました。越後杉の床板や壁紙の珪藻土クロスの使用は、室内の快適性と耐久性を大幅に向上させました。また、既製品の建具との組み合わせにより、コストパフォーマンスとデザインのバランスが取れた内装が実現されました。この工事は、I様邸のリノベーションにおいて重要な役割を果たし、長期的な住宅の価値を高める結果となりました。

3 戸建てリノベーション竣工

約5か月の工事を経て、いよいよ竣工です。
都心の築20年戸建てがどのように生まれ変わったのか。
I様邸の様子をご紹介します。


  =外観==  

Before

After

リノベーション後は補修と塗装をし直しました

玄関ドアはYKKapイノベストD50防火

玄関の下駄箱はウッドワン


  == 1F LDK ==  

Before

間取り変更前のLDK

After

間取り変更後はキッチンの位置を変えて広いリビング空間を確保しました

リビングの上は吹抜となっています

施工前は和室だったところにキッチンを移動

吹き抜けの大きな窓から日差しがたくさん入ります

無垢材で造作した収納と仏間


  == 1F 水まわり ==  

Before

After

キッチンはトクラスBb I型2550・収納カウンターはトクラスコラージア

キッチンからLDKの眺め

浴室はTOTOサザナ1616サイズ

洗面化粧台はTOTOオクターブ1200サイズにトールキャビネット付き

トイレはTOTOハイウィルオリジナル


  == 2F ==  

Before

After

2階寝室

ウォークインクローゼット

2階書斎はカーペット敷きです

書斎の収納


  == LDKの吹抜 ==  

1階のリビングの上に吹抜を作りました

天井が高いこと、大開口の窓があることで開放感があります

2階はホールを広くしました

2階ホールからの眺め


  == 無垢の建材・造作家具 ==  

文京区I様邸では床材、階段材、造作家具に杉無垢材が使われています。

無垢材は柔らかい色合いや自然素材の香りによる癒し効果だけでなく、断熱効果、調湿効果なども期待できる建材です。


4 補助金利用

文京区I様邸の工事では、国の補助金からは「こどもエコすまい支援事業」と「先進的窓リノベ事業」、東京都の補助金からは「既存住宅における省エネ改修促進事業」を活用しました。(申請中)

どれも省エネにつながるエコ住宅設備や、断熱性能の高い断熱材・ドア・窓の設置などに対して交付される補助金です。

 

■I様邸の補助金対象工事

エコ住宅設備の設置 給湯器(エコジョーズ)、高断熱浴槽、節水型トイレ、節湯水栓
断熱改修 外壁・床・天井の断熱材、断熱窓、断熱ドア ※東京都補助金併用
子育て対応改修 ビルトイン自動調理対応コンロ、掃除しやすいレンジフード、浴室乾燥機

 

■I様邸リフォーム工事の補助金交付額

 I様邸リフォーム工事で交付された補助金は、約240万円でした。

 内訳は以下の通りです。

  1. こどもエコすまい支援事業:30万円
  2. 先進的窓リノベ事業:100万円
  3. 東京都:110万円(申請中)

5 担当者より
(「増改築.com®」本部ハイウィル株式会社四代目代表稲葉高志)

 

この度は、中古住宅の購入から性能向上リノベーションのお引渡しまで、私たちハイウィルと共に歩んでいただき、心より感謝申し上げます。

ご購入からリノベーションに至るまでの道のりは、決して平坦ではありませんでした。しかし、I様の明確なビジョンと、私たちの専門知識が融合することで、理想を現実に変えることができました。特に、耐震等級3の獲得という高い目標を掲げ、その達成に向けて共に努力したことは、私たちにとっても大きな成長の機会となりました。

I様のこだわりである断熱性能の向上や、越後杉を使用した内装デザインの実現においても、私たちは最高の品質を追求しました。これらの努力が、I様の快適な住まいとしての日々を支える基盤となることを願っています。

私たちハイウィルは、ただ家を建てるだけではなく、お客様の夢や希望を形にすることを使命としています。I様のプロジェクトを通じて、その使命を再確認することができました。

今後も、I様の住まいが安心と幸せの場であり続けるよう、私たちは全力でサポートいたします。何かご不明点やご要望があれば、いつでもお気軽にご相談ください。

最後に、この素晴らしい旅路にお付き合いいただき、誠にありがとうございました。I様の新しい生活が、希望に満ち溢れたものでありますように。

全国のフルリフォーム・リノベーション『ピックアップ事例』※プロの詳細解説付きレポート

HEAT20-G2/耐震等級3
新耐震基準の性能向上リノベーション
築30年ハウスメーカー軽量鉄骨
断熱改修&リノベーション
 
中古住宅を新築以上の耐震性能と断熱性能へ!
耐震等級3フルリフォーム
地下付き木造2階建て
自然素材をつかった性能向上リノベーション&フルリフォーム

東京都文京区 K様邸

長屋を切り離して1つの構造体へフルリフォーム&リノベーション
隣家との距離がない!
部屋から外壁を張り替えるフルリノベーション
中古住宅を耐震等級3へ!
中古住宅リノベーション
 
基礎がない??
築60年の古屋をジャッキアップで基礎新設フルリノベーション

東京都渋谷区 O様邸

戸建てリノベーション・リフォームに関するお問合せはこちら

増改築.comの一戸建てリフォーム専用ホームページに
お越しいただき、誠に有難うございます。
 
増改築.comメンバーは技術集団となり、
他社のような営業マンがおりません。
技術者が直接ご相談にのり問題解決を行います。
 
従いまして、
お客様の方である程度のご要望が整理されました段階、
お悩みが工事内容のどのようなところにあるのか?
ご予算がどの程度絞る必要があるのか?
など明確になった段階でのご相談をお願いしております。
お問合せ・ご相談はお電話・メールにて受け付けております。
メールの場合は以下のフォームに必要事項をご記入の上、
「送信する」ボタンをクリックをお願いします。

代表稲葉高志

戸建てリノベーションの専属スタッフが担当致します。
一戸建て家のリフォームに関することを
お気軽にお問合せください

よくあるご質問
  • 他社に要望を伝えたところできないといわれたのですが・・・
  • 他社で予算オーバーとなってしまい要望が叶わないのですが・・・
  • サービスについて詳しく聞きたいのですが・・・

どのようなお悩みのご相談でも結構です。

あなたの大切なお住まいに関するご相談をお待ちしております。

営業マンはおりませんので、しつこい営業等も一切ございません。

設計会社(建築家様)・同業の建築会社様のご相談につきましては、プランと共にご指定のIw値及びUa値等の性能値の目安もお願い申し上げます。

2026年の大型補助金が確定したことで現在大変込み合っております。

耐震性能と断熱性能を向上させるフルリフォームには6か月~7か月の工期がかかります。

補助金獲得には年内に報告を挙げる必要があることから、お早目にご相談をお願いいたします。(6月着工までが目安

ご提案までに大変お時間がかかっております。ご了承のほどお願い申し上げます。

(5月までの着工枠が埋まりました)・・・2026/03/01更新

※すでにプランをお持ちのお施主様・設計資料をお持ちのお施主様は内容をフォームで送信後、フォーム下のメールアドレスに資料をお送りください。対応がスムーズです。

必須

(例:増改築太郎)

必須

(例:contact@high-will.co.jp)

(例:03-5615-2826)

必須

(例:東京都荒川区西日暮里2-35-1)

(例:築40年)

(例:25坪・100㎡など)

(例:2000万程度など)

  • ※再建築不可のリフォームでは金融機関が限られます。事前審査をお勧めいたします。

    (例:2024年3月くらいに完成希望など)

    必須

    できるだけ具体的にお知らせくださいませ。既存設計資料、リフォーム後のイメージ図等をお持ちであれば下記のメールアドレスより添付をお願いします。

    ※次の画面がでるまで、4~5秒かかりますので、
    続けて2回押さないようにお願いいたします。

    ※次の画面が出るまで、4〜5秒かかりますので、
    続けて2回押さないようにお願いいたします。

    図面や写真等を送信いただく場合、また入力がうまくいかない場合は、上記内容をご確認のうえ、下記メールアドレスまでご連絡ください。

    お電話でのお問合せはこちら

    0120-246-991

    営業時間:10:00~17:00(土日祝日を除く)

    ★YouTube「増改築.comチャンネル」チャンネル登録して新動画解説をいち早くGET!!★
    「増改築.comリノベ診断」であなたに一番ふさわしいフルリフォームを診断!!(動画解説付き)
    ★Facebookページにいいね!を押して最新コンテンツ情報をいち早くGET!!★
    パソコン|モバイル
    ページトップに戻る