戸建フルリフォームなら「増改築.com®」TOP > 施工事例 > 都道府県で探す > 東京都 > 台東区 > N様 長屋切り離しリノベーション施工事例

連棟長屋を切り離し単体の建物としてリフォームは可能なのか?

連棟長屋の切り離しフルリフォーム&フルリノベーション事例

連棟長屋の切り離しリフォーム

 

人気の谷根千(谷中・根津・千駄木)エリアのひとつである台東区谷中での連棟長屋を切り離し単体の構造体としてリフォームした施工事例。N様からのご相談は、居住中の四軒長屋の自己所有しておられる二軒を隣の二軒と構造的に切り離して欲しい。そして自己所有の二軒の建物をつなぎ、玄関一つにして上下階での分離型(キッチン浴室トイレの共有しない)の二世帯住宅への変更リフォームを半年前より計画されておりました。※現状は二軒で子世帯と親世帯でそれぞれ居住

 

築年数が60年以上経っており屋根・外壁・内装・基礎の状態が悪く、内壁と共に外壁も解体するスケルトンリフォームをご検討されておられました。半年の間に3社に相談したところ要望するリフォームには建築確認申請をしセットバックが必要、さらには長屋の構造体を切り離し分離はできないとの話もあり、施工事例が豊富な『増改築.com®』のホームページをご覧いただきお問い合わせをいただいたとのことでした。

弊社も長屋の切り離し解体をするには当然セットバックは必要になる旨をお話させていただきましたが、お話をお聞きしていると、セットバックしてしまうと狭くなってしまうので、二軒と共有している壁を切り離し屋根は共有でも良く、あくまで隣二軒を構造上分離し単体の建物としての耐震設計をして欲しいとのご要望であることがわかりました。

建物概要
名前 N様
場所 東京都台東区谷中
築年数 築60年
構造種別 木造一戸建て
家族構成 大人2人 子供2人
対象面積 33.6坪(四軒長屋の二軒分)
リフォーム部位 ベタ基礎/間取り変更/断熱サッシ/断熱/屋根/耐震補強/外構
工期 7ヶ月
価格 2500万(税別)※外構込(本管工事別途)

お客様のご要望

今回のリフォームで、N様からのご要望は以下の6点です。

  • 四軒長屋の二軒をつなぎ、玄関を一つにしたい
  • 二軒長屋を一軒につなぎ上下で分離型の二世帯住宅にしたい
  • つないだ二軒長屋と隣の二軒長屋の構造体を分離したい
  • 基礎補強をしてほしい
  • 構造体も腐食しているため新たに補強してほしい
  • 外壁も解体して下地からやりなおしたい

プランナー 北畠より ~プランニングのポイント~

N様のご要望は、四軒長屋の二軒を単体の構造体として構造計算した上で耐震補強をされたい。とのことでした。切り離し側面につきまして、セットバックをされないため柱一本分内側に基礎を立てることで単体の建物として一体化させました。間取りにつきましては、奥様がほぼイメージを固めて頂いてのスタートだったのでプランはスムーズに決まりました。

台東区N様邸 戸建てリノベーション施工事例テーマカテゴリー

  • 二世帯住宅リフォーム
  • 減築リフォーム
  • 長屋リノベーション
  • 内外部スケルトンリフォーム

打ち合わせから着工、完成までの詳細施工事例紹介

1 戸建てリノベーション着工前

1-1 現場調査・打合せ
長屋を切り離してリフォームしたい

弊社ハイウィルより徒歩圏内の台東区谷中に建つ連棟長屋住宅です。この辺りは入り組んでおり長屋が大変多いエリアになります。

連棟長屋の切り離し解体

写真の矢印の右世帯がN様がお住まいの二棟です。この二棟をつなぎ、写真左の二棟との構造を切り離すご要望されておられました。

谷中の特徴は、伝統的な寺院が数多く点在し、そのまわりに町家や長屋、小屋敷などが建ち並ぶ伝統的な町並みが今なお継承されているエリアでもあります。建物の老朽化などで古い建物の建て替えが進んではおりますが寺町の懐かしい風景や町並みを大切に思う方も多く、古屋を利用した商店などで週末は観光客で大変にぎわっている人気のエリアです。N様の建物のその谷中の真ん中に建っており先代が60年前に建てられたとのことでした。

 

四軒長屋の側面側。これらの樹木は伐採後の工事となります。

東京都台東区谷中 足場スペース

建物の裏面。雨仕舞がされておらず外壁がかなり傷んでおり構造体の腐食が心配です。

建物側面と裏面を調査しましたが、外壁の傷みはかなり進行しており、裏面については、一部雨ざらしの箇所もあるなど、躯体への影響がどの程度か気になります。

 

裏外壁はトタンが何度も張りなおされた形跡があります。

屋根もメンテナンスがされていない状態でトタンがさびています。





1-2 東京都台東区N様邸 戸建リノベーションプラン

  間取りの変更プラン  

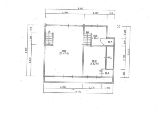
東京都台東区谷中 N様既存1階図面

1階 戸建てリノベーション前平面図

東京都台東区谷中 N様邸2階既存図面

2階 戸建てリノベーション前平面図

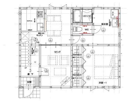
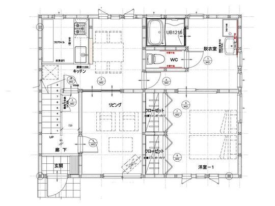
東京都台東区谷中 N様邸新規1階図面

1階 戸建てリノベーション後プラン

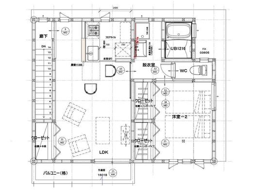
東京都台東区谷中 N様邸新規2階図面

2階 戸建てリノベーション後プラン

東京都台東区谷中 N様邸イメージパース LDK

世帯 戸建てリノベーション後イメージパース

東京都台東区谷中 N様邸イメージパース子世帯

子世帯 戸建てリノベーション後イメージパース

東京都台東区谷中 イメージパース寝室

世帯 戸建てリノベーション後イメージパース

東京都台東区谷中 N様イメージパース子世帯寝室

子世帯 戸建てリノベーション後イメージパース

東京都台東区谷中 親世帯洗面所イメージパース

親世帯 戸建てリノベーション後イメージパース

東京都台東区谷中 N様イメージパース 親世帯寝室

親世帯 戸建てリノベーションイメージパース

極力、外観からみて1階2階の窓が揃うようにプランをさせて頂きました。

廊下は極力少なくし、居室スペースを優先にとっております。

 

N様の再建築不可戸建てのフルリフォーム&フルリノベーション工事はこうしてはじまりました。

2 戸建てリノベーション着工

2-1 足場・解体

解体は手壊し『人力解体』

 

台東区谷中のN様の連棟長屋の切り離し解体は、建物内部のみを躯体の状態(スケルトン状態)にするだけでなく、外壁までを解体する内外部スケルトンリフォームとなります。その為、解体後は完全な躯体(スケルトン)残しとなります。

今回の台東区谷中の連棟長屋の切り離し解体では、親世帯と子世帯が二棟つながっており、この二棟を先に解体し、一つの建物にします。その後、切り離すお隣の二棟との切り離し解体となります。現況の状態が四棟で一つの構造体となっておりますので、まずは二棟の構造体を裸にしていく作業です。戸建てリノベーションでは解体も大変な工程の一つになります。

戸建てリノベーションでの解体は、新築のように、既存の建物を機械壊しが出来ないことから、解体職人による手壊し、人力解体となります。解体中盤になると担当大工も合流し、抜く柱や抜けない柱など細心の注意を払いながら、仮補強を入れながらの作業となり注意を払う工程となります。

東京都台東区谷中 フルリフォーム足場

足場を架け解体の廃棄物が飛散しないようにシートを張ります。

東京都台東区谷中 まるごとリフォーム 長屋切り離し

長屋の切り離し部分。切り離しはあくまで構造体のみのため屋根の雨仕舞と外壁の処理に注意を払わねばなりません。

東京都台東区谷中 戸建てリフォーム解体

まずは室内の天井、壁、床を解体し、骨組みの状態まで内部解体を進めます。

内部がスケルトン状態になり主要構造部が見てきました。

東京都台東区谷中 戸建てフルリフォーム解体後

子世帯と親世帯の壁が解体されました。前面部には耐力壁がほぼない状態でとても危険な間取りとなっておりました。

東京都台東区谷中 まるごとリフォーム解体後

外周周りはトタン張り

東京都台東区谷中 長屋フルリフォーム解体後

子世帯と親世帯の仕切りとなっていた壁

切り離し部のお隣の壁が見えてきました。

内部をスケルトン状態の裸にしたら躯体の構造体のチェック

手壊しによる人力解体が完了し、既存の建物の天井材や壁材、床材など産業廃棄物の廃棄が済むと、初めて躯体のチェックが可能となります。

台東区谷中のN様邸は築60年を超える木造住宅になります。当初計画していた補強計画と照らし合わせ、そのまま補強ができる状態なのかをすべての構造躯体(基礎・土台・柱・梁・桁)の傷み具合を構造設計担当と大工が精密検査診断します。

東京都台東区谷中 既存基礎が大谷石

正面は、基礎が布基礎ではなく大谷石の上に土台が乗っているだけでした。また雨ざらしになっていたため土台は腐食していて使えるじょうたいではありませんでした。

東京都台東区谷中 既存外壁トタン

側面の一部が板張り、一部側面と建物裏手はトタン張りの状態。建物は裏側の一部は基礎はなく束石のみで支えている状態でした。もちろん雨ざらしとなっており、裏面はすべての土台が腐食しているため、新設が必要になります。基礎は補強ではなく新設基礎となります。

東京都台東区谷中 既存水回り箇所腐食

裏面は水周りも集中していたこともあり腐食が激しく、新築と同様の工事が必要だと判断できます。

東京都台東区谷中 戸建てフルリフォーム 腐食箇所

柱もシロアリ被害にあっており溶けているものも。

東京都台東区谷中 戸建てまるごとリフォーム腐食箇所

水周り周辺の土台は腐食が進み溶けていました。

東京都台東区谷中 長屋スケルトンリフォーム 腐食箇所

裏面の構造体は土台と柱は補強できる状態の構造体ではありません。新規での区見直しが必要と判断。

建物裏面の基礎の代わりに使用されていた束石と腐食土台、柱は大工による解体が行われました。

東京都台東区谷中 戸建てスケルトン解体後

この段階では使えない構造体は解体されます。残せる構造体は少ないことがわかります。

東京都台東区谷中 まるごとリフォーム 解体後

切り離し面以外の外壁が解体されました。

東京都台東区谷中 屋根解体後

切り離し面は、既存躯体の補強後に解体となります。

大事な構造部のすべてが目視可能となるスケルトンリフォーム

内部の天井・壁・床だけでなく外壁まで解体しスケルトン状態(躯体残し)にする戸建てリノベーションの最大のメリットはこのような重要な主要構造部のすべての状態が目視でわかることになります。

弊社(ハイウィル株式会社)では、この内部解体後に、構造設計担当者による精密診断が入ります。非破壊での診断は現場調査時に行っておりますが、あくまで予想レベルでしかありません。建物を裸にすることで、予想していた計画を微調整し、使えない土台、柱、基礎など補強法も検討しつつ時間を頂いて設計に入ります。この間は、基礎職人と大工と構造設計担当者による現場での打ち合わせで忙しくなります。現況を検査した上での補強計画が完了後に基礎補強へと工程は移行していきます。フルリノベーション後は、これらの構造上の弱点をすべて修正し補強することで新築と同水準、もくしくはそれ以上の建物性能をもつ構造躯体へ甦らせることが可能となります。

2-2 基礎

スケルトン状態までの解体が終わり基礎工事に入ります。N様邸の基礎は、正面と側面が大谷石基礎、切り離し面はブロック基礎となっており、裏は束石のみという状態でした。今回の台東区谷中のN様邸の長屋切り離しリノベーションでの基礎補強計画では、大谷石基礎部は内側と外側から添え基礎で挟み込む形での補強を計画、束建てとなっていた裏面は新設基礎を、切り離し部はブロック基礎となっていたため、構造体を一体化させるため、柱一本分セットバックし新たに新設基礎を設置する計画としました。

東京都台東区谷中 フルリフォーム 基礎伏図

長屋切り離し解体後の基礎伏図

東京都台東区谷中 基礎土台

柱を設置する箇所へは、増し基礎の基礎配筋時に耐震用金物をコンクリート打設前に基礎に打ち込み、コンクリート打設後に基礎・土台・柱を連結一体化させます。

東京都台東区谷中 基礎詳細
東京都台東区谷中 基礎詳細
東京都台東区谷中 基礎補強工事

鋤取り後指定の基礎補強部へ根切を行います。

東京都台東区谷中 基礎転圧

根切後の砕石を敷き転圧します。

東京都台東区谷中 基礎立ち上がり

既存の大谷石の基礎部分は、立ち上がり部分を内側と外側から両サイドから「配筋していきます。

東京都台東区谷中 基礎新設

長屋の切り離し部は、構造体を分離するため、柱1本分内側にセットバックし、独立した基礎を新設します。

東京都台東区谷中 基礎配筋

間取り変更により新たに壁となる部分へは基礎を新設します。新設部への配筋。

東京都台東区谷中 新規基礎立ち上げ

既存の大谷石部分は、両サイドから基礎を立ち上げ補強します。柱脚部へは予め補強金物を打ち込み基礎と土台柱が連結され一体化されます。

東京都台東区谷中 基礎金物

木工事時に新たに新設される柱の位置へも同様にコンクリートで一体化される前に金物を埋め込みます。

配筋が完了。ベース部分は湿気防止用にコンクリートを打ちます。

東京都台東区谷中 基礎チェック

打設前に再度、構造設計担当者と配筋のチェックを行います。

東京都台東区谷中 ミキサー車

コンクリートミキサー車による圧送が始まります。

東京都台東区谷中 基礎打設

コンクリート打設完了。

東京都台東区谷中 基礎湿潤期間

打設後は湿潤期間を置きます。

東京都台東区谷中 切り離し箇所基礎

長屋の切り離し部の基礎新設。アンカーボルトは土台設置時に固定します。

東京都台東区谷中 基礎枠外す

両サイドから基礎で補強され型枠が外されました。

東京都台東区谷中 新規基礎 大谷石周り

大谷石基礎周りの補強基礎が完成しました。

配筋時に基礎に緊結した金物を固定。これで基礎、土台、柱の連結することで地震時の引き抜きに耐えます。

N様邸では抱き合わせ基礎(増し基礎・添え基礎・ツイン基礎)での基礎補強を行いました。N様邸のように築60年以上の建物になると、基礎が無かったり、石場建てによる基礎であったり、大谷石基礎であったりと、通常の旧耐震基準で建てられた建物の無筋基礎への基礎補強法ではなく、その基礎により補強法が異なります。N様邸は大谷石とブロック基礎が混在し、建物裏面は束石のみで建物が支えられている状況でした。そこで大谷石部分へは内側と外側から挟み込む補強をし、主要柱脚部へは、引き抜き防止対策でコンクリート打設前に、基礎と土台と柱を一体化させる金物で構造の一体化を図りました。戸建てリノベーション(フルリフォーム)の世界では、未だに旧耐震基準の無筋基礎の建物へ基礎補強を行わないリフォーム会社が大半を占めます。基礎を無視し、土台から上部の構造体のみを補強して評点を出しても、制震ダンパー等である程度の数値は稼げます。しかし、足元となる基礎をおろそかにしてしまうと大地震が起きた際にせん断力が働き、土台が基礎から抜けるような事態になるケースもあるため、大規模な戸建てリノベーションをされる際には、木造を熟知し、実績が豊富な会社へ相談することをお勧めする理由でもあります。

基礎配筋イメージ

ベタ基礎って?

今回の台東区谷中のN様邸では、添え基礎補強を採用し、ベース部分はあくまで、湿気対策での土間コンクリート打ちとしました。

布基礎が立ち上がりとフーチングで持たせる基礎に対して、ベタ基礎は、立上りだけでなく、底板一面も耐圧盤を設け、立ち上がりと底面が一体化された鉄筋コンクリートになっている基礎をいいます。

建物の荷重を底板全体の面で受け止めるため、ベタ基礎は不同沈下を起こさない。といわれますが、それは良好地盤での話です。

基礎の下の地盤面の地耐力が均一でない場合は、不同沈下が起こる可能性が充分あるのです。

耐震の世界では、重い瓦屋根は外して、軽いものに変えましょうと言われておりますが、それ自体は間違っていませんが、この理屈でいくと。屋根の瓦を外して、基礎はベタ基礎にしても、地盤に与える荷重は、瓦屋根以上の荷重がベタ基礎の荷重により地盤面にかかることになります

地盤が軟弱な場合、布基礎を採用した方が有利な場合も出てきます。

戸建てフルリフォームやリノベーションで、基礎補強をする際は、このような知識のある会社に相談することが必要です。

2-3 木工事

基礎が終わり大工工事へと移行します。構造躯体の強度を担保するためのメイン工事となります。

東京都台東区谷中 大工工事 柱脚金物

柱頭、柱脚部への金物補強

東京都台東区谷中 接合部金物

柱と横架材の接合部の金物補強

東京都台東区谷中 羽子板金物

地震や台風などで、建物に外からの力が加わった際の梁の抜け防止に羽子板金物です。

東京都台東区谷中 新規構造体

建物裏手はほぼ構造体が新しくなりました。

長屋切り離し部の新設基礎にも基礎パッキンの上に土台が敷かれアンカーボルトで固定されました。アンカーボルトのナット・座金によって土台を締め付けることから、基礎パッキンのない隙間に固定してしまうと土台が弱くなります。その為パッキン工法の場合アンカーボルトの設置箇所には必ず基礎パッキンが必要です。

長屋を切り離し、基礎から構造体を分けるため、使用できる横架材は手刻みで加工されているため、仕口や継手で既存躯体と接合させつつ金物で補強をしていきます。

既存の躯体を切り離し、構造計算に基づき、金物で補強していきます。

切り離し部の木組みが完成しました。

台東区谷中N様邸の長屋切り離しリノベーションでは、既存屋根下地の軒先部が全面的に腐食して使用ができない状態であったため、一部屋根を解体し、新規で屋根を作りなおしました。二階の正面部分の柱、横架材も併せて新規で施工しました。

2-4 断熱工事

台東区谷中のN様長屋切り離しリノベーションでの断熱材は、高性能グラスウールを採用しました。グラスウール断熱のポイントは何といっても”隙間なく充填”この一言に尽きます。

グラスウール充填で最も気を遣うのが隙間なく充填するということ。万が一水分を含むと沈下する性質があることから柱にタッカーで防湿透湿フィルムを打ち込みます。

壁を張ってしまうと見えなくなってします大切なところになりますので、入念にチェックをしていきます。

チェックが完了後ボードを張っていきます。

構造計算に耐力壁と指定された壁には構造用合板を張ります。

2-5 外壁工事

外周面を構造用合板を張り補強しました。

構造用合板をあり終えるとすぐに防水透湿シートを階下より上へと張り上げていきます。

長屋切り離し部の外壁納め。

ガルバリウム鋼板張り後

建物裏手の外壁面

建物正面の外壁面

2-6 屋根工事

今回の長屋切り離しリノベーションのポイントとなる屋根の納め方。「際谷板金」です。隣家の既存屋根が、N様邸の屋根をカバーするように施工されていました。しかしながら、N様宅側から入り込んだ隣家側には、際谷の立ち上がりがありませんでした。これでは雨仕舞に不安が残ります。既存谷を撤去し、防水シートを張り終えた後に、際谷板金工事を行いました。

野地板は構造用合板で増し打ちし補強します。

野地板の増し打ちが完了しました。

建物側面側

隣家との取り合い部

今回の長屋切り離しリノベーションでの最も大切なポイントでもあるのが、雨仕舞になります。構造体は切り話したものの外壁面は完全にセットバックしていないため、屋根が干渉しているからです。防水シート張り後に際谷板金工事で立ち上がりをつけおさめました。

2-7 造作工事

構造部の構造補強が終わると、造作工事に入ります。

ここからの工事は一気にスピードが上がっていきます。

お施主様もお部屋のイメージをしやすくなり、仕様を最終的に決定していう段階に入ります。

二階、子世帯の造作工事

3 戸建てリノベーション竣工

台東区谷中の長屋切り離しリノベーションは長期間7カ月の工事となりました。いよいよ竣工です。
下町の人気エリア「谷根千」でお馴染みの谷中の築60年の建物がどのように生まれ変わったのか。
N様邸の様子をご紹介します。


  =外観==  

構造体を分離し、単体の建物として、基礎から新設した長屋切り離しリノベーション外観。

建物正面

建物正面

玄関は今までは分離されていましたが、今回の二世帯住宅リフォームでは二棟をつなぎ玄関を部分共有するプランです。

基礎が無かった建物裏面も新設基礎で安心です。 

建物側面もスタイリッシュに生まれ変わりました。


Before

建物は、トタン張りで外壁の傷みはかなり進行しており、裏面については、一部雨ざらしの箇所もあるなど、深刻な状態でした。

外壁解体後に躯体の腐食が発覚した建物裏面

大谷石基礎に土台が乗っていた側面

  == 1F 親世帯 ==  

ダイニング
親世帯のフローリングカラーはクリエモカです。

リビング

キッチンの床はクッションフロアー

寝室から洗面室につながっています


キッチン

トクラスBb 1950サイズ
キッチンの床にはクッションフロアー

浴室

TOTOサザナ1216

洗面室

TOTOオクターブ750

トイレ

ハイウィルオリジナルトイレ


  == 2F 子世帯 ==  

子世帯のフローリングカラーはイタリアンウォルナットです。

リビング

寝室

LDKから脱衣室へ

ベランダはLIXILビューステージSスタイル

Before

既存キッチン

既存浴室

既存洗面室

既存トイレ

キッチン

トクラスBb 1800サイズ

浴室

TOTOサザナ1216

洗面室

TOTOオクターブ750

トイレ

ハイウィルオリジナルトイレ


4 担当者より
(「増改築.com®」本部ハイウィル株式会社 大谷正浩)

N様 この度は弊社をご利用いただきまして誠にありがとうございました。 メーカーのショールームや弊社での打ち合わせなどで、お時間を頂きましたが ぱぱっとお決めいただく判断力に感心をさせていただいておりました。 その中でも重要項目についてはじっくりと考えられる住まい造りの真剣さに、我々も微力 ながら真剣にお付き合いをさせていただきました。 工事中は驚きの連続で、土台の下が大谷石であったことなど。。。 これでは基礎の役目にはならないので、大谷石の内側と外側から添え基礎で挟み込むと いう方式で補強をしました。 その分N 様には追加費用がかかってしまいましたが、耐震に関してもしっかり工事を させていただきました。 まさかの事態に一同びっくりしたものの、これがフルリフォームや全面リフォーム工事ではあることです。 内装に関しては奥様の磨かれたセンスが発揮され、私の出番は無いぐらいでした。 明るいだけでなく、品の良さやおしゃれ感、可愛さもある内装となりました。 住宅設備品はシステムキッチンをトクラスのBbシリーズ。 システムバスはTOTOのサザナを、それぞれ1階2階共に採用され、弊社でも人気No.1の 商品郡が採用されました。 お引っ越し後の感想としていただきましたのは、「家ってこんなにエアコンって効くんですね」 真夏のお引っ越しでしたが、エアコンが利きすぎて寒いくらい、とのことでした。 新しい家はとても快適で、家族全員が毎日良い気分で過ごしています。 との感想もいただきました。 N 様、引き続き宜しくお願い致します。

N様、この度はご依頼をいただき、誠にありがとうございました。

画像をクリックすると解説ページにジャンプします。

全国のフルリフォーム・リノベーション『ピックアップ事例』※プロの詳細解説付きレポート

HEAT20-G2/耐震等級3
新耐震基準の性能向上リノベーション
築30年ハウスメーカー軽量鉄骨
断熱改修&リノベーション
 
中古住宅を新築以上の耐震性能と断熱性能へ!
耐震等級3フルリフォーム
地下付き木造2階建て
自然素材をつかった性能向上リノベーション&フルリフォーム

東京都文京区 K様邸

長屋を切り離して1つの構造体へフルリフォーム&リノベーション
隣家との距離がない!
部屋から外壁を張り替えるフルリノベーション
中古住宅を耐震等級3へ!
中古住宅リノベーション
 
基礎がない??
築60年の古屋をジャッキアップで基礎新設フルリノベーション

東京都渋谷区 O様邸

戸建てリノベーション・リフォームに関するお問合せはこちら

増改築.comの一戸建てリフォーム専用ホームページに
お越しいただき、誠に有難うございます。
 
増改築.comメンバーは技術集団となり、
他社のような営業マンがおりません。
技術者が直接ご相談にのり問題解決を行います。
 
従いまして、
お客様の方である程度のご要望が整理されました段階、
お悩みが工事内容のどのようなところにあるのか?
ご予算がどの程度絞る必要があるのか?
など明確になった段階でのご相談をお願いしております。
お問合せ・ご相談はお電話・メールにて受け付けております。
メールの場合は以下のフォームに必要事項をご記入の上、
「送信する」ボタンをクリックをお願いします。

代表稲葉高志

戸建てリノベーションの専属スタッフが担当致します。
一戸建て家のリフォームに関することを
お気軽にお問合せください

よくあるご質問
  • 他社に要望を伝えたところできないといわれたのですが・・・
  • 他社で予算オーバーとなってしまい要望が叶わないのですが・・・
  • サービスについて詳しく聞きたいのですが・・・

どのようなお悩みのご相談でも結構です。

あなたの大切なお住まいに関するご相談をお待ちしております。

営業マンはおりませんので、しつこい営業等も一切ございません。

設計会社(建築家様)・同業の建築会社様のご相談につきましては、プランと共にご指定のIw値及びUa値等の性能値の目安もお願い申し上げます。

2026年の大型補助金が確定したことで現在大変込み合っております。

耐震性能と断熱性能を向上させるフルリフォームには6か月~7か月の工期がかかります。

補助金獲得には年内に報告を挙げる必要があることから、お早目にご相談をお願いいたします。(6月着工までが目安

ご提案までに大変お時間がかかっております。ご了承のほどお願い申し上げます。

(5月までの着工枠が埋まりました)・・・2026/03/01更新

※すでにプランをお持ちのお施主様・設計資料をお持ちのお施主様は内容をフォームで送信後、フォーム下のメールアドレスに資料をお送りください。対応がスムーズです。

必須

(例:増改築太郎)

必須

(例:contact@high-will.co.jp)

(例:03-5615-2826)

必須

(例:東京都荒川区西日暮里2-35-1)

(例:築40年)

(例:25坪・100㎡など)

(例:2000万程度など)

  • ※再建築不可のリフォームでは金融機関が限られます。事前審査をお勧めいたします。

    (例:2024年3月くらいに完成希望など)

    必須

    できるだけ具体的にお知らせくださいませ。既存設計資料、リフォーム後のイメージ図等をお持ちであれば下記のメールアドレスより添付をお願いします。

    ※次の画面がでるまで、4~5秒かかりますので、
    続けて2回押さないようにお願いいたします。

    ※次の画面が出るまで、4〜5秒かかりますので、
    続けて2回押さないようにお願いいたします。

    図面や写真等を送信いただく場合、また入力がうまくいかない場合は、上記内容をご確認のうえ、下記メールアドレスまでご連絡ください。

    お電話でのお問合せはこちら

    0120-246-991

    営業時間:10:00~17:00(土日祝日を除く)

    ★YouTube「増改築.comチャンネル」チャンネル登録して新動画解説をいち早くGET!!★
    「増改築.comリノベ診断」であなたに一番ふさわしいフルリフォームを診断!!(動画解説付き)
    ★Facebookページにいいね!を押して最新コンテンツ情報をいち早くGET!!★
    パソコン|モバイル
    ページトップに戻る