戸建フルリフォームなら「増改築.com®」TOP > 施工事例 > 都道府県で探す > 兵庫県 > 神戸市灘区 > 施工事例 I様邸 中古戸建てを購入してスケルトンリフォーム

このエントリーをはてなブックマークに追加
不動産の購入までの流れ、そして建物の着工から完成までの施工事例を紹介

中古戸建てを購入して、スケルトンリフォーム(実例) 神戸市灘区 I様邸

築40年の資産価値0円の中古戸建てを購入し新築そっくりにスケルトンリフォームを行うとこうなる!!
神戸市灘区I様邸_TOP

 

神戸市灘区でリフォームを行う物件探しからお引渡しまでをさせて頂きました。

 

I様は福岡県のご出身で関西に来られてから30年近くになられます。
元々ご実家のある福岡県で退職後は暮らされるご予定でしたが、その予定がなくなり、ワンちゃんの「一朗くん」と奥様と3人でお暮しになる家をお探しでした。

I様は予算を2000万円、広さを60㎡前後に設定し、新築マンションを見学に行かれていました。
但し、新築マンションは希望予算より1000万以上高くなり、中古マンションも視野に入れて物件を探される方針になったそうです。

ですが、ここから行き詰まります。
実はお探しのエリアの中古マンションはご希望の予算に収めようとしたときにペット不可のマンションしかなかったのです。

マンション設備の関係で築年数が古いマンションはペット不可のマンションが多く「一朗くん」と離れ離れになってしまいます。

そこで、ペットOKな中古戸建てを見始めたのがきっかけで、増改築.comをお知りになられてお問合せを頂きました。

 
建物概要
名前 I様
場所 兵庫県神戸市灘区
築年数 築40年
構造種別 木造一戸建て
家族構成 大人2人+ワンちゃん
対象面積 21.8坪
リフォーム部位 ベタ基礎/間取り変更/断熱サッシ交換/外壁サイディング/断熱工事/屋根葺き替え/躯体補強工事
工期 4.5ヶ月
価格

2200万円

お客様のご要望

今回のリフォームで、I様からのご要望は以下の7点です。

  • 中古物件ご購入後のリフォーム
  • 1Fは大きな一つの空間に変えたい
  • 2Fにもトイレを設置したい
  • 和室は洋室に変更
  • 窓を小さくするか塞ぎたい。窓はすべて交換
  • 屋根は葺き替え(ガルバリウム鋼板)
  • 外壁は戸袋を無くし、左官仕上げで一新したい

プランナー 北畠より ~プランニングのポイント~

築40年の建物です。進入路が狭いので解体の廃材に運搬が困難になることが予想されます。足場が入るスペースは問題なさそうです。

開口が多く耐震に不安があるので、補強が重要視されます。
I様も本来は耐震等級3と断熱等級4をご希望されましたが、ご予算の関係上設備も業界最安値のご提案をさせて頂きましたが叶わず、苦渋の決断をさせて頂きました。

予算内で耐震の補強はハイウィルとしての経験を活かして最大限させて頂きました。

神戸市灘区I様邸 戸建てリノベーション施工事例テーマカテゴリー

 

  • 耐震等級3相当(上部構造評点1.5以上)リフォーム(性能向上リノベーション)
  • 中古住宅を買ってリフォーム
  • 中古住宅を買ってリノベーション(購入からリフォームまでワンストップサービス)
  • 内外部スケルトンリフォーム

中古戸建て購入までの流れ、そして建物の着工から完成までの施工事例を紹介

1 中古戸建て購入

1-1 ファーストコンタクト

I様は増改築.comよりお問合せを頂きました。

何度かメールでやり取りをさせて頂き、I様は既に気になっている物件がおありでしたので、その物件のリノベーションの概算金額と、他に近い条件の物件があれば後日ご提案させて頂くお約束を致しました。

 

1-2 物件とリノベーションの概算費用のご提案

ピックアップした物件と、リノベーションの概算金額をお伝えさせて頂きました。
すぐさま物件の外観を見に行っていただけたようで、建物内もご見学されたいとご依頼を頂きましたので、ご希望の物件を含めて翌週ご一緒に見学に行くことになりました。

 

1-3 物件のご案内

今回のご案内では、当初からご希望の物件ともう1件条件の近い物件の2件をご案内させて頂きました。
どちらも築年数が古いこともあり、やはり中をご覧いただくと耐震や古さの心配など奥様はテンションがお下がりになられたようでした。しかしご主人様は増改築.comをご愛読頂いておりましたので、全部リフォームをすれば大丈夫という考え方で奥様にご説明してくださり、ご要望をお伺いながら、いろいろなご提案をさせて頂きました。

 

1-4 ご購入申し込みと事前審査

結局I様ご自身が気になっていた物件でお話を進めることとなり、物件購入とフラット35での事前審査の申し込みを行うことにしました。

ハイウィルでも物件調査を行いましたが、大きな問題はありませんでした。

I様からもプランのご希望を詳しくお伺いさせて頂きました。

【I様からのご要望】

・1Fレイアウトの変更:既存の状態では台所・居間・和室と別れているので、できれば一つの大きな空間にしたい。

・2Fにもトイレを設置したい。

・和室を洋室に変更

・窓はすべて交換し、小さくするか塞ぎたい。

・屋根は葺き替え(ガルバリウム鋼板)

・外壁は戸袋を無くし、左官仕上げで一新したい。

その後、大まかなリノベーションプランや着工後のスケジュールなどもご説明させて頂き、ご契約に進みました。

 

 
1-5 ご契約

銀行の事前審査も無事の通り、いよいよご契約となります。

通常申込から1週間以内に契約を行いますが、1週間ではリノベーションプランが完成しない為、契約のタイミングを少し待ってもらうように交渉させて頂きました。

後日、重要事項説明の後に無事に契約も終わりました。

いよいよお家の設計に入っていきます。

 

 
1-6 決済

地方銀行にて住宅ローンの本申し込みを行い、金消契約を行いました。いよいよ決済になります。

決済が済むと工事に取り掛かります。

2 着工前の様子

2-1 解体前既存建物
神戸市灘区I様邸_着工前

外壁はモルタルです。クラックなどは少ないものの汚れが目立ちました

神戸市灘区I様邸_着工前

進入路が少し狭くなっている物件です。

神戸市灘区I様邸_着工前

現在使われていない庭、うまく利用できれば憩いの場所になりますね。

神戸市灘区I様邸_着工前

減築と増築をして面積を整えていきます。

神戸市灘区I様邸_着工前

給湯器が2台ありますが、何度か交換してごちゃごちゃしてますね。

神戸市灘区I様邸_着工前

旧玄関ドアの位置は変えずに玄関スペースを広く。

神戸市灘区I様邸_着工前

旧リビングスペースと和室を繋げて大きなLDKとします。

神戸市灘区I様邸_着工前

キッチンの位置も移動します。

神戸市灘区I様邸_着工前

窓がたくさんあって明るいですが、周辺からの目線や断熱対策のため窓面積を減らします。

神戸市灘区I様邸_着工前

トイレもお引っ越し。和式から簡易洋式にリフォームしてありますね。長年のお勤めご苦労様でした。

神戸市灘区I様邸_着工前

キッチンは撤去し窓は閉じてしまいます。

神戸市灘区I様邸_着工前

キッチン横の勝手口もキッチンと一緒に移動します。もちろん新しいものと交換です。

神戸市灘区I様邸_着工前

洗面室は洗濯スペースと合流します。

神戸市灘区I様邸_着工前

お風呂も解体し、最新のユニットバスに変更です。階段の勾配からも解放されますね。

神戸市灘区I様邸_着工前

2階の和室。こちらは洋室に仕様変更です。

神戸市灘区I様邸_着工前

和室の引き戸と壁

神戸市灘区I様邸_着工前

小上がりの和室でしょうか?畳コーナー?

神戸市灘区I様邸_着工前

2階には収納がたくさんあります。

神戸市灘区I様邸_着工前

こちらの窓は少し小さくします。

神戸市灘区I様邸_着工前

階段の勾配は緩く変更します。

神戸市灘区I様邸_着工前

2階のお部屋の入り口です。2階はドアの位置は変わりません。


2-2 神戸市灘区I様邸 戸建リノベーションプラン

  間取りの変更プラン  

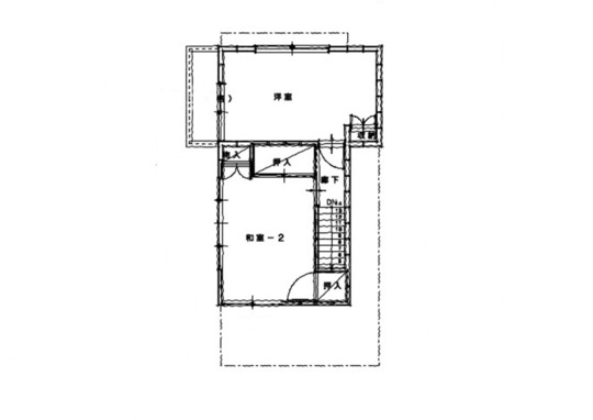
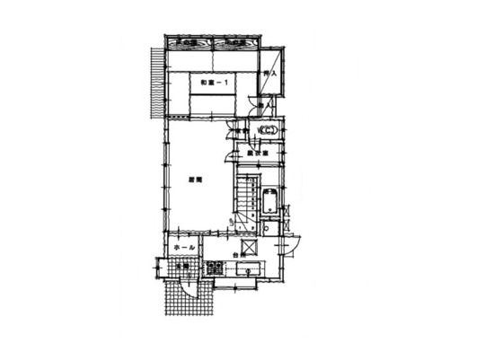
神戸市灘区 戸建フルリフォーム 既存図面

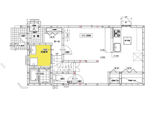
1階 既存平面図

神戸市灘区 戸建スケルトンリフォーム 既存図面

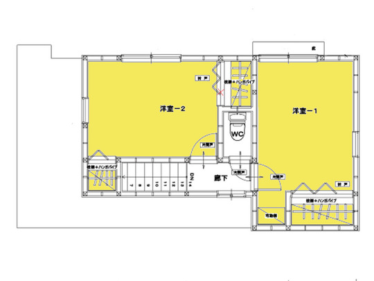
2階 既存平面図

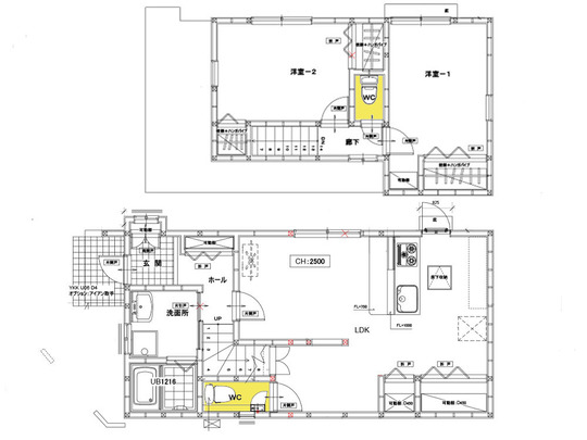
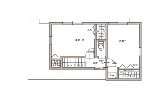
神戸市灘区 戸建フルリフォーム 新規図面

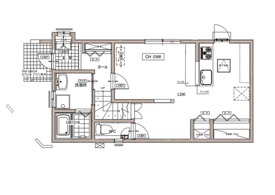
1階 新規平面図

神戸市灘区 戸建フルリフォーム 新規図面

2階 新規平面図

1階、2階とも開口面積が多いので、減らして壁の量を増やしました。
狭かったお風呂や洗面室の配置を変え広くしました。1階LDKを広くとり開放的な空間にしたことにより、窓が減った分の閉塞感を減らしました。階段も勾配を少しゆるくして楽に上り下りが出来るように変更しています。
2階部分にはトイレを増設、夜トイレに起きても安心していけるようになります。

I様のリノベーション工事はこうしてはじまりました。

3 着工

3-1 解体・撤去

近隣へのあいさつが終わり、いよいよ着工となりました。

I様邸は、内外部のスケルトンリノベーション工事になります。

神戸市灘区I様邸_解体

解体時はシートを張って隣地になるべく迷惑が掛からないようにします。

神戸市灘区I様邸_解体

玄関解体:玄関位置はそのままなので合わせて解体していきます。

神戸市灘区I様邸_解体

解体時には廃材がたくさんでます。

神戸市灘区I様邸_解体

近隣の方の交通の妨げにならないように廃材は宅内に仮置きし、タイミングを見て一気に搬出します

神戸市灘区I様邸_解体

躯体を残して解体していきます。玄関も解体を進めます。

神戸市灘区I様邸_解体

解体でもごみの分別は大事です。木部は残します。

神戸市灘区I様邸_解体

ボードや外壁など分けながら作業していきます。

神戸市灘区I様邸_解体

山盛り、キッチン横の収納スペースになる場所です。

神戸市灘区I様邸_解体

お風呂の解体も完了。基礎のコンクリを取り除くのは大変です。

神戸市灘区I様邸_解体

耐震補強も兼ねてこちら側の窓は一部を残し塞いでいきます。

神戸市灘区I様邸_解体

旧間取りではこちらに水回りなどが集中していました。

神戸市灘区I様邸_解体

2階に上がってきました。解体かなり進んでいます。

解体後の躯体チェック

解体してみると、木材の状態は、同築年数の建物と比べ、腐敗・腐食が進んでいませんでした。これは、建物の開口面積が多いことが幸いしていると思われます。
現在の住宅は断熱材と外壁材の間に通気層を取る通気工法が主流ですが、自然に同じ原理が働いていますね。その分壁の量が足りてなく地震に弱い家だったと思います。そして寒い、I様の場合は元々住まわれておられたわけではないですが、温かく感じられる家になると思います。

 

神戸市灘区I様邸_解体

開口が多いのは最初から分かっていましたが、近づくといろいろな意味で恐怖を感じます。

神戸市灘区I様邸_解体

階段も撤去するので階段があるうちにおろしていきましょう。

神戸市灘区I様邸_解体

熟年の大工による手壊しで必要なところとそうでないところを見極めていきます。

神戸市灘区I様邸_解体

解体をして状態をしっかりと確認

神戸市灘区I様邸_解体

青空が透けて見えています。

神戸市灘区I様邸_解体

傷んでる箇所、補強がいる箇所は大工が仮で補強を入れます。

神戸市灘区I様邸_解体

階段の下にはお風呂がありました。水蒸気で損傷があります。

神戸市灘区I様邸_解体

この状態では強い地震では家は持ちませんよね。

神戸市灘区I様邸_解体

とにかくすごい量の廃材がでます。

解体も順調に終わっていき、解体職人から躯体部分を大工さんにバトンタッチ。手壊しでしっかりと確認と補強をしながら解体をさらに進めていきます。

神戸市灘区I様邸_解体

基礎もしっかりと確認

神戸市灘区I様邸_解体

位置が変わらない玄関ドアの施工方法を確認します。

神戸市灘区I様邸_解体

解体も無事に終わりスケルトン状態です。

神戸市灘区I様邸_解体

元々の柱もしっかり補強しています。木工事で柱を新設するので柱はこれよりも増えていきます。

大事な構造部のすべてが目視可能となるスケルトンリフォーム

内外部のスケルトンリフォームの最大のメリットはこのような重要な主要構造部のすべての状態が目視でわかることになります。

フルリノベーション後は、これらの構造上の弱点をすべて修正し補強することで新築と同水準、もくしくはそれ以上の建物性能をもつ構造躯体へ甦らせることが可能となります。

3-2 基礎

今回の基礎工事では、床下工事でゼオライトをまいています。
まずは鋤取りを行い、転圧をかけて高さを調整します。ゼオライトは隙間が出来ないように丁寧に施工します。

I様邸では布基礎からベタ基礎への変更、基礎補強工事を行います。
防湿フィルムを全体に張り込んだ後、続いて配筋工事に入ります。ここで需要なのが緊結です。一体化を行うことで強度が上がるのです。

 

ポイント

ゼオライトとは石のような床下調湿材です。
目では見えない程の小さい無数の穴が開いており、そこから湿気などを吸収して調整してくれます。
調湿効果は半永久的で、吸湿効果は炭の3倍以上になります。雨の日は吸湿して、晴れの日は放湿し、湿度を50から60%に保ってくれます。
さらに消臭や防虫効果もあるので、床下調湿材にはうってつけです。

神戸市灘区I様邸_基礎

解体も終わり、ゼオライトの施工も完了しました。

神戸市灘区I様邸_基礎

傷んでいる箇所などはチェックし終わってますので、今後の工程の邪魔にならないようにきれいな状態を保ちます。

神戸市灘区I様邸_基礎

今回は布基礎からベタ基礎に補強をしていきます。

神戸市灘区I様邸_基礎

高さ調整で鋤取り、砕石、転圧をかけます。穴は新たに基礎を作る場所です。

神戸市灘区I様邸_基礎

リビングスペースになります。

神戸市灘区I様邸_基礎

玄関からLDKになります。

神戸市灘区I様邸_基礎

北西より玄関方面に向かって

神戸市灘区I様邸_基礎

間仕切り変更により壁が出来る部分へ布基礎を新設します。

神戸市灘区I様邸_基礎

防湿フィルムを全体に張り込んでいきます。ベタ基礎に補強していきます。

神戸市灘区I様邸_基礎

必要箇所には基礎を立ち上げます。

神戸市灘区I様邸_基礎

配筋工事D13の手金を20ピッチで緊結していきます。

神戸市灘区I様邸_基礎

ピッチを確認

神戸市灘区I様邸_基礎

当たり前ですが、ピッチは全ての箇所を確認します。

神戸市灘区I様邸_基礎

枠型にコンクリートを打設します。

神戸市灘区I様邸_基礎

ユニットバスの下配筋もしっかり入れています。

I様邸では地盤が良好であることからベタ基礎を採用しました。

すべてがベタ基礎が良いというわけではありません。

ベタ基礎は建物全体と同程度の荷重となりますので、建物の重さとのバランスもかかわってきます。足元だけ固めていても屋根を含めた建物とのバランスが悪いと大地震が起きた際にせん断力が働き、ホールダウン金物が抜けるような事態になるケースもあるからです。

大規模な戸建てリノベーションをされる際には、木造を熟知し、実績が豊富な会社へ相談することをお勧めする理由でもあります。

神戸市灘区I様邸_基礎

ベタ基礎って?

布基礎が立ち上がりとフーチングで持たせる基礎に対して、ベタ基礎は、立上りだけでなく、底板一面も耐圧盤を設け、立ち上がりと底面が一体化された鉄筋コンクリートになっている基礎をいいます。

建物の荷重を底板全体の面で受け止めるため、ベタ基礎は不同沈下を起こさない。といわれますが、それは良好な地盤での話です。

基礎の下の地盤面の地耐力が均一でない場合は、不同沈下が起こる可能性が充分あるのです。

耐震の世界では、重い瓦屋根は外して、軽いものに変えましょうと言われておりますが、それ自体は間違っていませんが、この理屈でいくと。屋根の瓦を外して、基礎はベタ基礎にしても、地盤に与える荷重は、瓦屋根以上の荷重がベタ基礎の荷重により地盤面にかかることになります。

地盤が軟弱な場合、布基礎を採用した方が有利な場合も出てきます。

戸建てフルリフォームやリノベーションで、基礎補強をする際は、このような知識のある会社に相談することが必要です。

3-3 木工事

今回の神戸市灘区I様邸は大きな間取り変更が少ない工事でした。それでも水回り全般の配置の移動や2階にトイレの増設を行っています。
窓の位置に関しても変更というより、元々窓の開口が多かったので、減らした形になっていますので想定通り価格を安く設定できました。

建物の状態が良かったため柱や梁の入れ替えが少なかったのもポイントにはなるのですが、柱のピッチが甘かったので柱を増やして補強していきます。

 
神戸市灘区I様邸_木工事

躯体の補強と耐力壁の施工が終わりました。

神戸市灘区I様邸_木工事

職人さんもしっかりと図面と相違がないか確認します。

神戸市灘区I様邸_木工事

2階トイレ増設の排水と給水も閉じる前に確認

神戸市灘区I様邸_木工事

レンジフードの排出口

神戸市灘区I様邸_木工事

躯体の補強が終わると断熱工事に入ります。

3-4 断熱工事

補強が終わると次に断熱工事に取り掛かります。

今回はグラスウールを採用しました。隙間なく充填することがポイントです。

神戸市灘区I様邸_断熱

断熱材はグラスウール 隙間なく充填することが必須です。

神戸市灘区I様邸_断熱

1階の収納スペースになる箇所です。

神戸市灘区I様邸_断熱

トイレの換気扇

神戸市灘区I様邸_断熱

キッチン勝手口周辺もしっかりと断熱されています。

神戸市灘区I様邸_断熱

トイレも形ができました。

神戸市灘区I様邸_断熱

キッチンの排水と給水 位置が間違っていたら大変です。

神戸市灘区I様邸_断熱

リビングです。石膏ボードを張り終わると部屋らしさがでてきます。

3-5 外壁・屋根工事

基礎工事が終わり、建て方そして屋根・外壁の工事が始まります。
屋根と外壁の下地工事を行いルーフィング、防水シートを施工していきます。屋根はガルバリウム鋼板を施工しました。

神戸市灘区I様邸_外壁

外壁を張る前には必ず防水シートを張ります。

神戸市灘区I様邸_外壁

掃き出し窓

神戸市灘区I様邸_外壁

透湿防水シートを施工中 隙間がないように張っていきます。

神戸市灘区I様邸_外壁

外壁を張り終わりました。

神戸市灘区I様邸_外壁

外壁はシンプルな色目をチョイスなされました。

神戸市灘区I様邸_外壁

きれいに施工されていますね。

神戸市灘区I様邸_外壁

コーキングもしっかりと確認

神戸市灘区I様邸_外壁

廊下の小窓

神戸市灘区I様邸_屋根

屋根もきれいに仕上がりました。ガルバリウム鋼板です。

神戸市灘区I様邸_屋根

棟部分

3-6 内装仕上げ工事

内装も仕上がりに近づいてまいりました。

フローリングや建具の取り付けも終わりつつあります。
内部はこの段階では、木くずやボードの粉などで、かなり汚い状態にあります。なによりこのあとに、クロスを張っていかなくてはなりません。クロス工事もパテ処理時にかなり粉がでますので、しっかりと養生しフローリングを守ります。

クロスを張り終えたら、清掃作業を行い完成になります。

神戸市灘区I様邸_仕上

いよいよフローリングの施工に取り掛かっています。

神戸市灘区I様邸_仕上

キッチンボートを張り終え扉もつきました

神戸市灘区I様邸_仕上

キッチンの横1階収納

神戸市灘区I様邸_仕上

キッチン勝手口

神戸市灘区I様邸_仕上

階段

神戸市灘区I様邸_仕上

玄関

神戸市灘区I様邸_仕上

2階のお部屋

神戸市灘区I様邸_仕上

2階廊下

4 竣工

近隣にご挨拶をさせて頂いてから早5カ月が経ち、奥様待望のステンドグラスも入りいよいよ建物が完成しました。

自然な雰囲気が漂う安らかに爽やかに暮らせるお家だと思います。
そんなI様邸のポイントを少しだけご紹介させて頂きます。


  =外観==  

神戸市灘区I様邸_竣工

入り口正面からの外観です。玄関ドアはYKKapのヴェナート

神戸市灘区I様邸_竣工

モルタルの壁を作りニッチでオシャレに演出しています。

神戸市灘区I様邸_竣工

庭にはウッドデッキをご自身でDIY予定とのことです。

神戸市灘区I様邸_竣工

勝手口があると便利ですね。

神戸市灘区I様邸_竣工

従来の外構を活かしいい感じに仕上がりました。サイディングでばっちりです。

神戸市灘区I様邸_竣工

もちろん給湯器も新しくなっています。リフォーム済み物件を買うときは要チェックポイントの一つです。


  == 1F エントランス・玄関 ==  

神戸市灘区I様邸_竣工

シューズクロークは明かり取りの窓を設置、収納力もあります。


  == 1F LDK ==  

神戸市灘区I様邸_竣工

キッチンと収納の様子。キッチンはナスラックのリヴィエールです。

神戸市灘区I様邸_竣工

キッチンから裏口に

神戸市灘区I様邸_竣工

ダクトレールは照明の量や位置がある程度移動できます。オシャレ&便利

神戸市灘区I様邸_竣工

ステンドグラスのニッチ造作とリビング収納

Before
神戸市灘区I様邸_着工前

既存建物は洋室と和室に分かれていましたが、リフォーム後はひとつのLDKになりました。キッチンの位置も変更しました。


  == 階段 ・廊下==  

Before
神戸市灘区I様邸_着工前
After
神戸市灘区I様邸_竣工

既存階段は急勾配でしたので、新規階段では少し緩くなっています。

神戸市灘区I様邸_竣工

どうしても汚れてしまいます。しっかりチェックしてメンテナンスを入れます。

神戸市灘区I様邸_竣工
神戸市灘区I様邸_竣工

リビングとの間の壁に明かりとりで施主様ご希望のステンドグラスを利用

神戸市灘区I様邸_竣工

トイレの横は階段の下を利用した収納を造りました。こうしたちょっとした収納はうれしいポイントですよね。


  == 1F・2F トイレ ==  

Before
神戸市灘区I様邸_着工前

既存トイレは和式を簡易的に洋式に直したものでした。

神戸市灘区I様邸_竣工

神戸市灘区I様邸_竣工

トイレはTOTOハイウィルオリジナルトイレです。1Fには手洗いカウンターも設置しました。

神戸市灘区I様邸_竣工

既存建物ではなかった2Fにもトイレを増設。


  == 1F 洗面所 ==  

神戸市灘区I様邸_竣工
Before
神戸市灘区I様邸_着工前
After
神戸市灘区I様邸_竣工

洗面室は洗濯スペースと合体し広くなりました。洗面台はノーリツのシャンピーヌ。


  == 2F 洋室 ==  

Before
神戸市灘区I様邸_着工前
神戸市灘区I様邸_着工前
神戸市灘区I様邸_竣工
神戸市灘区I様邸_竣工

和室だったお部屋 無垢フローリングが映えますね。

神戸市灘区I様邸_竣工

引き戸から開き戸に変更

神戸市灘区I様邸_竣工

階段の上のスペースを利用しています。こうしたスペースを利用することにより、お部屋を広く活用できます。

神戸市灘区I様邸_竣工

2階のもう一部屋は洋室→洋室リフォーム。クロスが特徴的ですね。

神戸市灘区I様邸_竣工

大容量のクローゼット

神戸市灘区I様邸_竣工

可動ラックが便利です。


担当者(HW刈田)

5 担当者より(ハイウィル株式会社・刈田)

 

今回は不動産をお探しするお手伝いからのスタートになりました。

新築マンションから始まり、多くの選択肢の中から、I様はライフスタイルに合わせて中古戸建て×リノベーションという方法を選ばれました。
神戸での新築戸建て事情(新築戸建ては4LDKが主流)ではなかなか実現できないはずのご提案を、中古戸建てリノベーションでご提案させて頂けたと思っております。

もちろんその性能は単純に表層のリフォームを行った中古戸建ての性能ではありませんので、新築戸建てのものと変わりません。

I様のように、住みたいエリアに、予算に合ったプランが中古物件だと手に入ります。

また、耐震等級3や断熱等級4など通常の建売住宅ではほとんど見ることのない性能のお家を、新築の注文住宅に比べ割安で手に入れることも中古物件では可能になります。

 

I様にも「期待通りのお家になりました」感謝を頂き励みになっております。

まずは、お家探しからという方もお気軽にご相談ください。

 

I様、ご依頼頂きましてありがとうございました。

兵庫県他のリフォーム事例を見る

兵庫県

神戸市(垂水区・須磨区・長田区・兵庫区・中央区灘区東灘区・北区・西区)

西宮市芦屋市尼崎市、宝塚市、川西市、伊丹市、三田市、明石市

全国のフルリフォーム・リノベーション『ピックアップ事例』※プロの詳細解説付きレポート

HEAT20-G2/耐震等級3
新耐震基準の性能向上リノベーション
築30年ハウスメーカー軽量鉄骨
断熱改修&リノベーション
 
中古住宅を新築以上の耐震性能と断熱性能へ!
耐震等級3フルリフォーム
地下付き木造2階建て
自然素材をつかった性能向上リノベーション&フルリフォーム

東京都文京区 K様邸

長屋を切り離して1つの構造体へフルリフォーム&リノベーション
隣家との距離がない!
部屋から外壁を張り替えるフルリノベーション
中古住宅を耐震等級3へ!
中古住宅リノベーション
 
基礎がない??
築60年の古屋をジャッキアップで基礎新設フルリノベーション

東京都渋谷区 O様邸

戸建てリノベーション・リフォームに関するお問合せはこちら

増改築.comの一戸建てリフォーム専用ホームページに
お越しいただき、誠に有難うございます。
 
増改築.comメンバーは技術集団となり、
他社のような営業マンがおりません。
技術者が直接ご相談にのり問題解決を行います。
 
従いまして、
お客様の方である程度のご要望が整理されました段階、
お悩みが工事内容のどのようなところにあるのか?
ご予算がどの程度絞る必要があるのか?
など明確になった段階でのご相談をお願いしております。
お問合せ・ご相談はお電話・メールにて受け付けております。
メールの場合は以下のフォームに必要事項をご記入の上、
「送信する」ボタンをクリックをお願いします。

代表稲葉高志

戸建てリノベーションの専属スタッフが担当致します。
一戸建て家のリフォームに関することを
お気軽にお問合せください

よくあるご質問
  • 他社に要望を伝えたところできないといわれたのですが・・・
  • 他社で予算オーバーとなってしまい要望が叶わないのですが・・・
  • サービスについて詳しく聞きたいのですが・・・

どのようなお悩みのご相談でも結構です。

あなたの大切なお住まいに関するご相談をお待ちしております。

営業マンはおりませんので、しつこい営業等も一切ございません。

設計会社(建築家様)・同業の建築会社様のご相談につきましては、プランと共にご指定のIw値及びUa値等の性能値の目安もお願い申し上げます。

2026年の大型補助金が確定したことで現在大変込み合っております。

耐震性能と断熱性能を向上させるフルリフォームには6か月~7か月の工期がかかります。

補助金獲得には年内に報告を挙げる必要があることから、お早目にご相談をお願いいたします。(6月着工までが目安

ご提案までに大変お時間がかかっております。ご了承のほどお願い申し上げます。

(5月までの着工枠が埋まりました)・・・2026/03/01更新

※すでにプランをお持ちのお施主様・設計資料をお持ちのお施主様は内容をフォームで送信後、フォーム下のメールアドレスに資料をお送りください。対応がスムーズです。

必須

(例:増改築太郎)

必須

(例:contact@high-will.co.jp)

(例:03-5615-2826)

必須

(例:東京都荒川区西日暮里2-35-1)

(例:築40年)

(例:25坪・100㎡など)

(例:2000万程度など)

  • ※再建築不可のリフォームでは金融機関が限られます。事前審査をお勧めいたします。

    (例:2024年3月くらいに完成希望など)

    必須

    できるだけ具体的にお知らせくださいませ。既存設計資料、リフォーム後のイメージ図等をお持ちであれば下記のメールアドレスより添付をお願いします。

    ※次の画面がでるまで、4~5秒かかりますので、
    続けて2回押さないようにお願いいたします。

    ※次の画面が出るまで、4〜5秒かかりますので、
    続けて2回押さないようにお願いいたします。

    図面や写真等を送信いただく場合、また入力がうまくいかない場合は、上記内容をご確認のうえ、下記メールアドレスまでご連絡ください。

    お電話でのお問合せはこちら

    0120-246-991

    営業時間:10:00~17:00(土日祝日を除く)

    ★YouTube「増改築.comチャンネル」チャンネル登録して新動画解説をいち早くGET!!★
    「増改築.comリノベ診断」であなたに一番ふさわしいフルリフォームを診断!!(動画解説付き)
    ★Facebookページにいいね!を押して最新コンテンツ情報をいち早くGET!!★
    パソコン|モバイル
    ページトップに戻る