戸建フルリフォームなら「増改築.com®」TOP > 施工事例 > 都道府県で探す > 東京都墨田区 >S様 築60年スケルトンリノベーション施工事例

大手ハウスメーカー幹部のお住まいのフルリフォーム

築60年スケルトンリノベーション施工事例(再建築不可)詳細レポート

墨田区 戸建てスケルトンリフォーム

 

大手ハウスメーカーで幹部のS様普段は東京、名古屋を行き来されておられますが、今回東京墨田区吾妻橋で中古住宅を購入されたため、スケルトンリノベーションの相談を受けました。『増改築.com』運営会社ハイウィル株式会社は100余年の歴史の中で、過去にハウスメーカーの下請け経験があり弊社のことは知っていたとのことでした。

昭和35年築の2階建、旗状敷地で接道が0.9mしかなく再建築不可の物件となります。通路としては奥隣地も旗状敷地であることから実際は2m弱あります。ご自身がお勤めのハウスメーカーでは耐震補強と断熱、防音、耐火性能でS様のご要望の性能を満たすことができないとのことで、御社でお願いすることで安心して暮らせる住宅にリフォーム出来る可能性を検討して欲しいと弊社ご指名でのご相談となりました。一部増築されている部分は残す上での耐震改修もご希望でした。

築年数が60年以上経っており屋根・外壁・内装・基礎の状態が悪く、内壁と共に外壁も解体するスケルトンリノベーションをご検討されておられました。瓦屋根はできればそのまま使用したいので、重い屋根の状態で、構造評点を基準値の1.5倍以上で設計が必要な現場となりました。

建物概要
名前 S様
場所 東京都墨田区吾妻橋
築年数 築60年
構造種別 木造一戸建て
家族構成 大人2人 子供2人
対象面積 25坪
リフォーム部位 添え基礎(抱き基礎)補強/間取り変更/断熱サッシ/セルロースファイバー/耐震補強/
工期 6ヶ月
価格 2500万(税別)(外構込)

お客様のご要望

今回のリフォームで、S様からのご要望は以下の6点です。

  • 屋根は瓦屋根のまま構造評点1.5以上で設計施工して欲しい
  • 基礎補強をして欲しい
  • 本格的な断熱改修をして欲しい
  • 防火性能を上げて欲しい
  • 防音性も向上させたい
  • 設備や建材はある程度採用したい商品は決まっている

プランナー 北畠より ~プランニングのポイント~

S様のご要望は、屋根瓦を残したまま構造評点は1.5倍にされたいとのご意向がありましたので、横方向の耐力を間取りを作る際にも考慮いたしました。

墨田区S様邸 戸建てリノベーション施工事例テーマカテゴリー

  • 再建築不可リフォーム
  • 耐震等級3相当(上部構造評点1.5以上)リフォーム(性能向上リノベーション)
  • セルロースファイバイー仕様
  • 中古住宅購入+リフォーム
  • 内外部スケルトンリフォーム

打ち合わせから着工、完成までの詳細施工事例紹介

1 戸建てリノベーション着工前

1-1 現場調査・打合せ
再建築不可リフォーム

接道が足りないことから再建築不可となっており、搬入搬出の経路と駐停車できるスペースを探します。奥に現場がありました。

再建築不可フルリノベーション事例ビフォー

路地の奥に現場はありました。

墨田区吾妻橋は下町でも住みやすいエリアとして有名ですが、利便性も高い街です。スカイツリーまでは徒歩10分圏内、浅草の雷門までも徒歩圏内でありながら静かで住みやすい住宅街が広がっているのが特徴です。逆側のスカイツリーにはソラマチがあります。東海道新幹線を頻繁に利用されるS様が購入されたのは品川までの利便性からとのことでした。今回は再建築不可の建物とのことで、奥まったロケーションとなるため、現場調査では周囲の環境をよく見ておく必要がありました。

 
再建築不可のリフォーム(隣家との距離)

隣家との距離は余裕がなく足場がギリギリ入る程度でした。

外壁を解体リノベーション

建物の裏面。外壁はクラックが入り傷んでいます。

再建築不可リノベーションの特徴として、立地は良いが工事ロケーションが悪いのが施工側の課題となるわけですが、今回も奥まった土地に三方が隣家に囲まれている状態でした。

ご多忙の中S様には、何度が東京の現場に来ていただき、室内の調査に立ち会いいただき、現状の建物の状態の説明と、S様のご要望のすり合わせを行っていきました。

築60年のリノベーション(ビフォー)

築60年の真壁作りとなっています。

築60年のリノベーション(ビフォー)

間取りも日当たりが考慮されず、昼間であっても薄暗い室内となっておりました。


1-2 東京都墨田区S様邸 戸建スケルトンリノベーションプラン

  間取りの変更プラン  

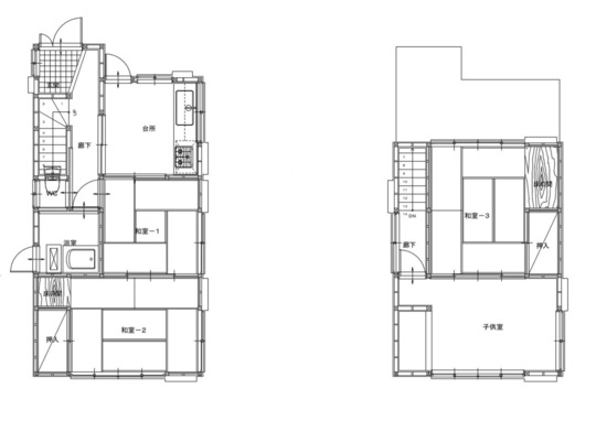
墨田区 戸建てリノベーション既存図

 戸建てリノベーション既存図面

墨田区 戸建てリノベーション竣工図

戸建てリノベーション竣工後図面

東京都墨田区 外観イメージパース

外観 戸建てリノベーション後イメージパース

東京都墨田区 外観イメージパース

外観 戸建てリノベーション後イメージパース

外壁を剥離するか否かにつきましては、現状補修でリノベーションも可能ではありましたが、既存の瓦屋根を残すことと、ご要望の間取りでリノベーションをすると構造評点では、基準の1.5倍の数値は難しい旨をお伝えしたところ、長期で維持されたい建物をご要望されておられましたので、スケルトンリノベーションでのご提案となりました。

S様の築60年再建築不可スケルトンリノベーション工事はこうしてはじまりました。

2 戸建てスケルトンリノベーション着工

2-1 足場・解体

解体は手壊し『人力解体』

 

墨田区吾妻橋のS様の築60年再建築不可スケルトンリノベーションは、建物内部のみを躯体の状態(スケルトン状態)にするだけでなく、外壁までを解体するスケルトンリノベーションとなります。その為、解体後は完全な躯体(スケルトン)残しとなります。

今回の墨田区吾妻橋の解体では、解体で発生する産業廃棄物の搬出経路の問題から先行して内部の解体を行い、基礎補強を内側より施工後に外壁を解体する工程としました。このようにロケーションによって工事の流れが変わるのも再建築不可のリノベーションの特徴でもあります。

戸建てリノベーションでの解体は、新築のように、既存の建物を機械壊しが出来ないことから、解体職人による手壊し、人力解体となります。

東京都墨田区 フルリフォーム足場

まずは内部の間仕切り壁を解体していきます。

東京都墨田区 まるごとリフォーム 長屋切り離し

解体時に発生する産業廃棄物は一か所にまとめつつ、ピストンで搬出車へ積み荷していきます。

東京都墨田区 戸建てリフォーム解体

まず二階の内部スケルトン解体が完了し主要構造体、母屋組が見えてきました。

東京都墨田区 戸建てリノベーション解体後

外壁のモルタル部のみを剥離しました。木ずりが見えてきました。

東京都墨田区 戸建てフルリフォーム解体後

外壁の剥離も人力です。手作業でモルタルを剥がしていきます。

東京都墨田区 戸建てフルリフォーム解体後

廃棄物をストックする場所が限られますので解体し廃棄物を一か所へ集め、廃棄物収集車が来次第積み荷していきます。

東京都墨田区 再建不可フルリフォーム解体後

外周周りのモルタル壁の剥離開智が完了しました。

東京都墨田区 再建不可リノベーション

屋根は瓦屋根が乗っています。今回のスケルトンリノベーションでは屋根は既存の残しでの施工となります。

内部をスケルトン状態の裸にしたら躯体の構造体のチェック

手壊しによる人力解体が完了し、既存の建物の天井材や壁材、床材など産業廃棄物の廃棄が済むと、初めて躯体のチェックが可能となります。

墨田区のS様邸は築60年を超える木造住宅になります。非破壊の状態で計画していた耐震補強計画がそのまま施工できるのかを現況と照らし合わせる作業となります。構造躯体(基礎・土台・柱・梁・桁)の傷み具合を構造設計担当と大工が精密検査診断します。

東京都台東区谷中 既存基礎が大谷石

既存増築部には基礎が無く、土台が直接土に乗っている状態ですでに腐食していました。この土台の上に二階が乗っていると考えると怖くなります。

東京都墨田区 土台が無かった

二階の荷重に耐えきれず、土台が土に埋まってしまっているため、ジャッキアップによる補正が必要です。

東京都墨田区 基礎が無かった

増築部は、基礎がないところ、ブロック基礎が混在している状態でした。

大事な構造部のすべてが目視可能となるスケルトンリノベーション

内部の天井・壁・床だけでなく外壁まで解体しスケルトン状態(躯体残し)にする戸建てスケルトンリノベーションの最大のメリットはこのような重要な主要構造部のすべての状態が目視でわかることになります。

弊社(ハイウィル株式会社)では、この内部解体後に、構造設計担当者による精密診断が入ります。非破壊での診断は現場調査時に行っておりますが、あくまで予想レベルでしかありません。建物を裸にすることで、予想していた計画を微調整し、使えない土台、柱、基礎など補強法も検討しつつ時間を頂いて設計に入ります。この間は、基礎職人と大工と構造設計担当者による現場での打ち合わせで忙しくなります。現況を検査した上での補強計画が完了後に基礎補強へと工程は移行していきます。スケルトンリノベーション後は、これらの構造上の弱点をすべて修正し補強することで新築と同水準、もくしくはそれ以上の建物性能をもつ構造躯体へ甦らせることが可能となります。

2-2 基礎補強工事

スケルトン状態までの解体が終わり基礎工事に入ります。S様邸の基礎は、基礎が無い増築部・ブロック基礎部、無筋の布基礎が混在している状態でした。今回の墨田区のS様邸の築60年のスケルトンリノベーションでの基礎補強計画では、新設基礎と添え基礎(抱き基礎)での補強を計画、さらに、基礎補強時には土台、新設柱を一体化させる金物で一体化させる計画としました。

東京都墨田区 基礎解説

柱を設置する箇所へは、増し基礎の基礎配筋時に耐震用金物をコンクリート打設前に基礎に打ち込み、コンクリート打設後に基礎・土台・柱を連結一体化させます。

東京都墨田区 基礎詳細
東京都台東区谷中 基礎詳細
東京都台墨田区 基礎補強工事

抱き合わせ基礎(添え基礎)のキモは立ち上がり配筋となります。既存の布基礎を目荒らししあと施工アンカーで等間隔で差し筋をしていきます。

東京都墨田区 基礎金物

主要柱には配筋時に、土台と柱を一体化させる構造金物を入れていきます。

東京都墨田区 新たな基礎

間取り変更後に新たに間仕切り壁が新設される位置には、新たに基礎ができるため基礎新設の配筋をします。

東京都墨田区 上部構造体

上部構造体(基礎より上部の構造体)が基礎か抜けないように、基礎補強時にしっかりと金物で補強していきます。

東京都台東区谷中 基礎新設

コンクリート打設時に既存基礎と新設コンクリートを馴染ませるために表面を目荒らしした後は、150㎜ピッチで等間隔にあと施工アンカーで差し筋をしていきます。

東京都墨田区 基礎型枠

配筋後は、型枠をしてコンクリート打設に備えます。

東京都墨田区 打設後

コンクリートの打設後、型枠が取り外されました。添え基礎の完了です。

東京都墨田区 基礎金物

コンクリート打設後の基礎。金物がコンクリートに埋め込まれ、土台、柱と連結され、構造体が一体化されました。

S様邸では抱き合わせ基礎(増し基礎・添え基礎・ツイン基礎)での基礎補強を行いました。S様邸のように築60年以上の建物、かつ増改築を繰り返している建物になると、基礎が無かったり、石場建てによる基礎であったり、大谷石基礎であったり、ブロック基礎であったりと、その基礎により補強法が異なります。S様邸は、基礎が無いところ、ブロック基礎、無筋の布基礎が混在していました。ブロック基礎へは、あと施工アンカーが効きませんので、主要柱脚部へは、引き抜き防止対策でコンクリート打設前に、基礎と土台と柱を一体化させる金物で構造の一体化を図りました。戸建てリノベーション(フルリフォーム)の世界では、未だに旧耐震基準の無筋基礎の建物へ基礎補強を行わないリフォーム会社が大半を占めます。基礎を無視し、土台から上部の構造体のみを補強して評点を出しても、制震ダンパー等である程度の数値は稼げます。しかし、足元となる基礎をおろそかにしてしまうと大地震が起きた際にせん断力が働き、土台が基礎から抜けるような事態になるケースもあるため、大規模な戸建てリノベーションをされる際には、木造を熟知し、実績が豊富な会社へ相談することをお勧めする理由でもあります。

基礎配筋イメージ

ベタ基礎って?

今回の墨田区S様邸では、添え基礎補強を採用しました。

布基礎が立ち上がりとフーチングで持たせる基礎に対して、ベタ基礎は、立上りだけでなく、底板一面も耐圧盤を設け、立ち上がりと底面が一体化された鉄筋コンクリートになっている基礎をいいます。

建物の荷重を底板全体の面で受け止めるため、ベタ基礎は不同沈下を起こさない。といわれますが、それは良好地盤での話です。

基礎の下の地盤面の地耐力が均一でない場合は、不同沈下が起こる可能性が充分あるのです。

耐震の世界では、重い瓦屋根は外して、軽いものに変えましょうと言われておりますが、それ自体は間違っていませんが、この理屈でいくと。屋根の瓦を外して、基礎はベタ基礎にしても、地盤に与える荷重は、瓦屋根以上の荷重がベタ基礎の荷重により地盤面にかかることになります

地盤が軟弱な場合、布基礎を採用した方が有利な場合も出てきます。

戸建てフルリフォームやリノベーションで、基礎補強をする際は、このような知識のある会社に相談することが必要です。

2-3 木工事

基礎が終わり大工工事へと移行します。構造躯体の強度を担保するためのメイン工事となります。

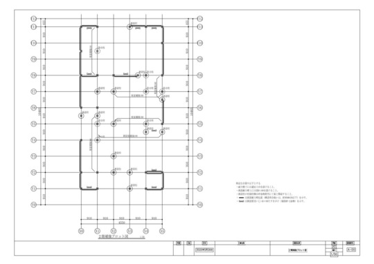
東京都墨田区 1階補強プロット図

 1階補強プロット図

東京都墨田区 2階補強プロット図

 2階補強プロット図

東京都墨田区 大工工事 

今回は重い瓦屋根を既存のまま残すというプランのため、補強前には仮筋交いで補強してから木構造の補強に入っていきます。

東京都墨田区 横架材

柱使える構造体が少ないため横架材(梁)の多くが新設となりました。しっかりと耐震金物で固定していきます。

東京都墨田区 梁受け金物

地梁と梁が垂直で交わる箇所への接合部分には、梁の荷重をしっかりと支えてるために”梁受け金物”を使用していきます。

東京都墨田区 構造用合板

外周周り全面にも構造用合板をはります。

東京都墨田区 柱脚金物 リノベーション

金物補強が完成すると、補強計画上金物設置指示がある箇所へはすべての位置を確認し撮影していきます。

東京都墨田区 耐力壁

間取り変更後の耐力として横方向の耐力が少なくなってしまうため、主要な横方向の壁は耐力壁とし、筋交いをたすき掛けの上、構造用合板を両面張りして、バランスをとるように計画し、偏心率をさげる計画です。

東京都墨田区 筋交い

横方向の耐力壁の位置もご要望の間取りに合わせ、極力偏心率を抑えるようようにバランスよく配置しました。

東京都墨田区 柱頭金物

構造部の金物補強が終わりました。

東京都墨田区 新たな構造材

構造材の多くが新設されていることがわかります。

東京都墨田区 床暖房施工

金物補強が完成すると、S様邸では床暖房工事がありましたので、パネルを設置していきます。

2-4 断熱工事

東京都墨田区のS様の築60年スケルトンリノベーションでの断熱材は、防音効果の高いセルロースファイバーを強くご要望されておられましたので、自然素材でもあるセルロースファイバーを採用されました。

東京都墨田区 断熱工事

セルロースファイバーは、断熱効果だけなく、防火・調湿・防虫・吸音も期待できる優れた断熱材です。

東京都墨田区 セルロースファイバー

壁を張ってしまうと見えなくなってしまう隠蔽部にもなるため、しっかり充填し建物の外周部を魔法瓶のように包み込むように充填していきます。

東京都墨田区 断熱セルロースファイバー

充填後は、壁や天井が盛り上がるくらいパンパンの状態となります。

東京都墨田区 セルロースファイバー工事

セルロースファイバーは様々な効果は確かにありますが、たくさんのお客様の施工をして思うのは、やはり快適性でしょう。皆様が口をそろえて言うのが、暖かいだけではなく調湿性があることから空気がかわるのがわかります。

2-5 外壁リノベーション工事
東京都墨田区 足場

外壁はサイディング張りです。お施主様のご指定の商品での施工をさせていただきました。

東京都墨田区 再建不可 近隣距離

再建築不可のため、隣家との距離が気になるところではありますが、比較的ロケーションはよく足場も入り施工が可能であったことは救いでした。

東京都墨田区 戸建てリノベーションベランダ

ベランダの内側は室内のインテリアに合わせ、色を変えてサイディングを張らせていただきました。

屋根工事

S様は既存の瓦屋根を残した上の耐震改修がお題目となっておりました。耐震の構造計算上、瓦屋根は、重い屋根として設計が必要となるので、S様のスケルトンリノベーションでは、基礎補強に加え、内部外部のスケルトン(躯体残し)での構造補強が必須となりました。既存屋根は棟の取り直し補修をさせていただきました。

東京都墨田区 屋根補修
東京都墨田区 屋根補修工事
2-6 造作工事

木工事が終わると造作工事、仕上げ工事と進行していきます。この段階になると、お部屋のイメージなども目に見えてわかるようになります。通常のお施主様であれば、何度も内装のイメージのすり合わせを現地で行いますが、S様は、お忙しいこともありますが、同業者でもありましたので、図面でほとんどの仕様が決まりました。

東京都墨田区 戸建てリノベーション内装

ここからの工事は一気にスピードが上がっていきます。

東京都墨田区 内装下地

お施主様もお部屋のイメージをしやすくなり、仕様を最終的に決定していう段階に入ります。

二階、吹き抜け部に設置したサッシ

3 戸建てリノベーション竣工

墨田区吾妻橋の築60年の再建築不可+スケルトンリノベーション工事は長期間6カ月の工事となりました。いよいよ竣工です。
築60年の建物がどのように生まれ変わったのか。S様邸の様子をご紹介します。


  =外観==  

東京都墨田区 竣工外観

外壁を剥離解体したづけるトンリノベーション。通常の外壁リノベーションでは、サイディングを上張りする化粧工事的なものもありますが、下地には構造合板でしっかりと耐震が取れております。

東京都墨田区 建物側面

建物側面

東京都墨田区リノベーション 建物側面

建物側面。破風、軒天は既製品の仕上げ材を張りました。

東京都墨田区 戸建てフルリノベーション外観

玄関はリフォームではありますが、入り組んだロケーションであることから防火対応の玄関ドアとしました。

東京都墨田区 竣工2階サッシ

主要な引き違いサッシはすべてシャッター付きサッシ。 

東京都墨田区 竣工ベランダ

ベランダスペースもスタイリッシュに生まれ変わりました。


Before
東京都墨田区 既存外観

既存の建物はモルタル塗装壁、痛み自体は深刻な状態ではないものの、耐震の1.5倍の強度を盛り込む耐震改修がメインとなりましたので、スケルトンリノベーションでのご提案となりました。

東京都墨田区 既存側面

東京都墨田区フルリノベーション 既存建物側面

  == 1F LDK ==  

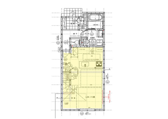
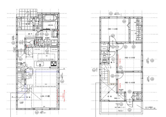
東京都墨田区 新規1階LDK図面
東京都墨田区 竣工LDK

ダイニング
キッチンよりリビングダイニングをいた際に、吹き抜けが良い抜け感を演出しています。

墨田区 戸建てリノベーション竣工吹き抜け

リビング

東京都墨田区 竣工キッチン

キッチンはお施主様ご指定のトクラス社のベリーを採用

墨田区竣工 階段

二階へつながる階段は吹き抜けに沿って圧迫感のない設計となっています。

東京都墨田区 竣工 室内窓

キッチン
墨田区フルリノベーション 竣工キッチン

トクラス『ベリー』

浴室
東京都墨田区フルリノベーション 竣工ユニットバス

LIXIL「『アライズ』

洗面室
東京都墨田区フルリノベーション 竣工洗面

TOTOオクターブ750

トイレ
東京都墨田区フルリノベーション 竣工トイレ

ハイウィルオリジナルトイレ


Before

既存キッチン

既存浴室

既存洗面室

既存トイレ

  == 2F ==  

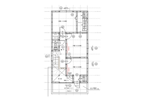
東京都墨田区 2階新規平面図
東京都墨田区 竣工2階子供部屋

二階のお子様のお部屋

東京都墨田区 2階寝室

二階居室

東京都墨田区 竣工寝室

寝室

東京都墨田区 竣工2階廊下

二階廊下


4 担当者より
(「増改築.com®」本部ハイウィル株式会社 大谷正浩)

S様、この度は弊社をご利用頂きまして誠にありがとうございました。S様は大手ハウスメーカーに勤務されているという立場でありながら、ご自宅の耐震改修工事におきまして弊社をご採用いただいたということが、私共にとっては大変大きな励みとなりました。業界の方が認める弊社の技術力。恐らく勤務先で工事を行えば、工事費用は安くはできたと思われます。しかしS様はまず大事な家族のことを第一に考え、耐震に対する希望や、防音、防火、断熱を考えると弊社に依頼するのが良いという判断になったとのことです。内装に関しましては、さすがに業界の方、という素晴らしいインテリア性が際立ってます。特にシステムキッチンに関しましては、トクラスのベリーを採用され、ダーク系を基調にし重厚感を生み出した、オープンな高級なシステムキッチンになりました。システムバスも拘りを見せ、LIXILのアライズを採用し、充実したお風呂タイムが楽しめそうです。築年数が60年以上のため、また一部増築した部分も解体後に問題が見られましたが、構造評点を基準値の1.5倍以上の建物に仕上げるため、各職人も頑張ってくれました。S様も改修工事ならではの、どうしても壊せない箇所のご相談にも柔軟に理解をいただきご協力をいただきました。可愛いご家族様との新しい生活が、快適な住まいとともに楽しい時間が過ぎて行かれることと思います。

S様、この度はご依頼をいただき、誠にありがとうございました。

全国のフルリフォーム・リノベーション『ピックアップ事例』※プロの詳細解説付きレポート

HEAT20-G2/耐震等級3
新耐震基準の性能向上リノベーション
築30年ハウスメーカー軽量鉄骨
断熱改修&リノベーション
 
中古住宅を新築以上の耐震性能と断熱性能へ!
耐震等級3フルリフォーム
地下付き木造2階建て
自然素材をつかった性能向上リノベーション&フルリフォーム

東京都文京区 K様邸

長屋を切り離して1つの構造体へフルリフォーム&リノベーション
隣家との距離がない!
部屋から外壁を張り替えるフルリノベーション
中古住宅を耐震等級3へ!
中古住宅リノベーション
 
基礎がない??
築60年の古屋をジャッキアップで基礎新設フルリノベーション

東京都渋谷区 O様邸

戸建てリノベーション・リフォームに関するお問合せはこちら

増改築.comの一戸建てリフォーム専用ホームページに
お越しいただき、誠に有難うございます。
 
増改築.comメンバーは技術集団となり、
他社のような営業マンがおりません。
技術者が直接ご相談にのり問題解決を行います。
 
従いまして、
お客様の方である程度のご要望が整理されました段階、
お悩みが工事内容のどのようなところにあるのか?
ご予算がどの程度絞る必要があるのか?
など明確になった段階でのご相談をお願いしております。
お問合せ・ご相談はお電話・メールにて受け付けております。
メールの場合は以下のフォームに必要事項をご記入の上、
「送信する」ボタンをクリックをお願いします。

代表稲葉高志

戸建てリノベーションの専属スタッフが担当致します。
一戸建て家のリフォームに関することを
お気軽にお問合せください

よくあるご質問
  • 他社に要望を伝えたところできないといわれたのですが・・・
  • 他社で予算オーバーとなってしまい要望が叶わないのですが・・・
  • サービスについて詳しく聞きたいのですが・・・

どのようなお悩みのご相談でも結構です。

あなたの大切なお住まいに関するご相談をお待ちしております。

営業マンはおりませんので、しつこい営業等も一切ございません。

設計会社(建築家様)・同業の建築会社様のご相談につきましては、プランと共にご指定のIw値及びUa値等の性能値の目安もお願い申し上げます。

2026年の大型補助金が確定したことで現在大変込み合っております。

耐震性能と断熱性能を向上させるフルリフォームには6か月~7か月の工期がかかります。

補助金獲得には年内に報告を挙げる必要があることから、お早目にご相談をお願いいたします。(6月着工までが目安

ご提案までに大変お時間がかかっております。ご了承のほどお願い申し上げます。

(5月までの着工枠が埋まりました)・・・2026/03/01更新

※すでにプランをお持ちのお施主様・設計資料をお持ちのお施主様は内容をフォームで送信後、フォーム下のメールアドレスに資料をお送りください。対応がスムーズです。

必須

(例:増改築太郎)

必須

(例:contact@high-will.co.jp)

(例:03-5615-2826)

必須

(例:東京都荒川区西日暮里2-35-1)

(例:築40年)

(例:25坪・100㎡など)

(例:2000万程度など)

  • ※再建築不可のリフォームでは金融機関が限られます。事前審査をお勧めいたします。

    (例:2024年3月くらいに完成希望など)

    必須

    できるだけ具体的にお知らせくださいませ。既存設計資料、リフォーム後のイメージ図等をお持ちであれば下記のメールアドレスより添付をお願いします。

    ※次の画面がでるまで、4~5秒かかりますので、
    続けて2回押さないようにお願いいたします。

    ※次の画面が出るまで、4〜5秒かかりますので、
    続けて2回押さないようにお願いいたします。

    図面や写真等を送信いただく場合、また入力がうまくいかない場合は、上記内容をご確認のうえ、下記メールアドレスまでご連絡ください。

    お電話でのお問合せはこちら

    0120-246-991

    営業時間:10:00~17:00(土日祝日を除く)

    ★YouTube「増改築.comチャンネル」チャンネル登録して新動画解説をいち早くGET!!★
    「増改築.comリノベ診断」であなたに一番ふさわしいフルリフォームを診断!!(動画解説付き)
    ★Facebookページにいいね!を押して最新コンテンツ情報をいち早くGET!!★
    パソコン|モバイル
    ページトップに戻る