戸建てフルリフォームなら「増改築.com®」TOP施工事例都道府県で探す東京都台東> 2階屋に3階を増築している建物の戸建てリノベーション施工事例

 
東京都台東区谷中の混構造リノベーション

2階屋に3階を増築している建物の戸建てリノベーション 施工事例 

台東区谷中 竣工外観

今回のお施主様は、谷根千で有名な谷中でのリノベーション工事。

「日暮里」駅から坂を上るとそこは寺町となっているのが特徴で、谷中商店街で有名な谷中ですが、こちらは商店街側ではなく、上野寄りの地域となります。谷中でのリノベーション実績が多数の弊社ですが、寺町特有の工事ロケーションがあります。お寺さんに工事の概要を説明したりと事前にお話を通したり、お彼岸中の工事を制限されるケースもあります。

寺町ではこのようなことを想定しながら工程も組む必要が出て参ります。今回T様からのご依頼は、建物がボロボロの状態のため(10年空家)となっているので 耐震等級などはないに等しいと思うのですが金額と相談しつつ内部スケルトンを検討しております。 弊社にご相談があった際にすでに他社様からの大まかなプランが出来ておられる状態でした。他社での問題点をお聞きすると、基礎の補強までをお願いしたところ、基礎は補修で十分だと言われた事、住設機器は好きな商品をこだわりたいが、指定の商品以外は一気に金額が高くなってしまう事。外壁までを剥がしてフルリノベーションを希望したが、外壁を剥がす工事はできないと言われた事が問題となり、『増改築.com®』へご相談を頂いたお施主様です。

建物概要
名前 T様
場所 東京都台東区
築年数

築40年

構造種別 木造一戸建て
家族構成 大人2人/子供2人
対象面積

24

リフォーム部位

基礎補強/間取変更/断熱サッシ取替/外壁・屋根リノベーション/断熱/耐震等級3/外構

工期 6ヶ月
価格

2200万(税別)※外構込

お客様のご要望

今回の東京都台東区T様二世帯住宅リフォームでのご要望は以下の6点です。

  • 基礎は補修ではなく基礎補強をして構造評点(Iw値)1.5を超える耐震改修
  • 外壁までを剥がすフルリノベーション工事
  • 基礎は補修ではなく補強をして欲しい
  • 断熱材はセルロースファイバーを採用したい
  • 各住宅設備機器や建材は好きなメーカー数社をショールームで選定したい。
  • 2世帯住宅の為、防音にも気を遣いたい
  • 外構もお願いしたい

Iw値とは?

1981年以前の旧耐震基準で建てられた木造家屋では、2000年の品確法で定められた『耐震等級』という耐震指標保有水平力、耐震等級によって耐震力を測れないため、Iw値という指標で耐震力を測ります。「Iw値=家の保有耐力/耐震のために必要な耐力」によって数値化されます。1.0をクリアすることで震度6強の地震に対して倒壊、または崩壊する可能性が低いとされており、国の耐震改修の最低基準値となっている指標であります。

プランナー 北畠より 
~二世帯住宅リフォームプランニングのポイント~

T様のご実家をご自身のご家族が住むのを機にフルリフォームのご要望を頂きました。

1階に水回り(バス・トイレ・洗面)とLDKを持ってきて、狭くなってしまってもキッチンは対面式のご要望を頂き限られたスペースなので階段下も勾配形に空間として開放し少しでもLDKのスペースを広く取らせて頂きました。

 

2階はお子様のお部屋2部屋とトイレをプランさせて頂きました。

3階は構造は1階2階の軸組み工法とは違い2×4になっており、天井の形状が屋根勾配形になっている空間をワンルームで使用されてました。リフォーム後もここは間仕切り等を造らずワンルーム主寝室とし、天窓が設置してあったのですが日差しが入りすぎてしまうのと断熱を考慮し埋めさせて頂きました。

台東区T様邸 戸建てリノベーション施工事例テーマカテゴリー

 

  • 耐震等級3相当(上部構造評点1.5以上)リフォーム(性能向上リノベーション)
  • 狭小住宅リフォーム
  • 内外部スケルトンリフォーム

打ち合わせから着工、完成までの詳細施工事例紹介

1 二世帯住宅リフォーム着工前

1-1 現場調査・打合せ
台東区 戸建てリノベーション 既存外観

既存外観

台東区 戸建てフルリフォーム 既存外観

既存外観

谷中T様邸は築40年以上を経過した建物であり、建築基準法以前又は旧耐震の建築物でした。従っ て、この年代の建築物は現行の木造の仕様規定と比べて耐震性が劣っている可能性が高いわけです。 本建物でも壁量のバランスの規定や、柱頭柱脚の引き抜き防止措置等は現在の規定のよう な措置がなされておらず、耐震性が劣っている点が見られました。しかも3階部分を増築している状態です。3階部が乗っているのが写真でお分かりいただけると思います。


台東区 戸建てリノベーション 既存玄関

既存玄関フロア

台東区戸建てフルリノベーション 既存廊下

1階既存廊下

台東区T様の建物はお寺の借地内に建てられており、お寺からも厳重な注意を受けました。谷中でリノベーションの実績の多いハイウィルでは、心得ておりますが、寺町での大規模リノベーションの経験がない会社さんで泣きを見る事例を何度も見て参りました。


既存和室

台東区谷中T様の建物の既存和室は、数十年もの間、人が入らないような状態とのことで、結露によるカビがひどく、解体後の躯体の影響が心配でした。

台東区 戸建てリノベーション 既存居間

既存LDK

台東区 戸建てリノベーション既存和室

既存1階和室
 



2階部

3階部を増設したのが階段を見てわかります。

戸建てリノベーション 台東区 既存

2階和室

台東区 戸建てリノベ 既存

2階既存和室です。


1-2 東京都台東区T様邸 戸建てリノベーションプラン

  間取りの変更プラン  

台東区谷中 戸建てフルリノベ 既存図

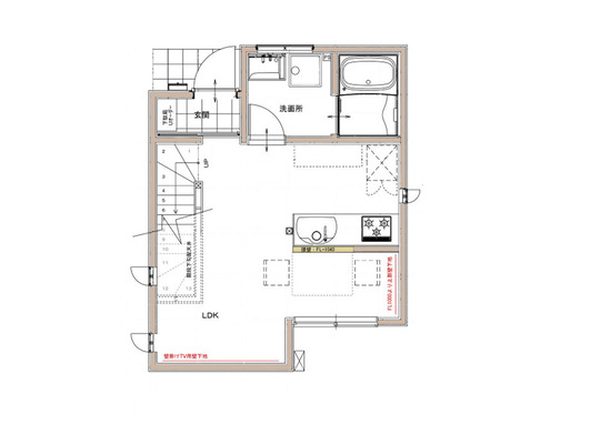
1階 既存平面図

台東区谷中 フルリノベーション既存図

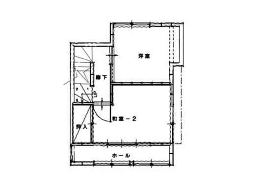
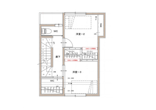
2階 既存平面図

台東区 フルリノベーション既存図

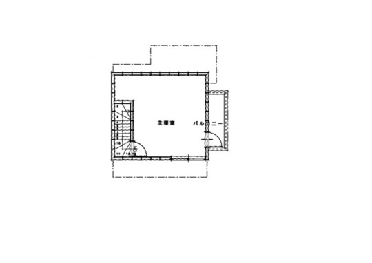
3階 既存平面図(2×4工法)

台東区 戸建てリノベーション 新規図面

1階 新規平面図

台東区 戸建てフルリフォーム新規図面

2階 新規平面図

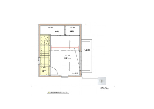
台東区 戸建てフルリノベ 新規図面

3階 新規平面図(2×4工法)

台東区谷中 戸建てリノベーションイメージ
台東区谷中 戸建てフルリノベ イメージ
台東区谷中 戸建てリノベ イメージ
台東区谷中 戸建てリノベーションイメージ

 

2 二世帯住宅リフォーム着工

2-1 解体・撤去

解体は手壊し作業になります。

 

T様の耐震補強計画では、上部構造評点(Iw値)を国の最低基準の1.5倍以上をご要望されておられました。内部だけでなく外壁までを解体する躯体残しのスケルトンリフォームとなります。1.5倍以上の数値を計画する場合は、基礎補強が絶対条件となり、かつ内部からの補強だけにとどまらず、外部からの補強も必要となります。解体後は、非破壊段階での構造計算が、そのまま計画として成り立つのか、既存の状態と当てはめ入念に躯体チェックをしていきます

台東区 戸建てリノベ 解体

このあたりは寺町のため搬入搬出にはかなり気を使いました。

台東区 戸建て解体

この段階では間取り変更による柱を抜く箇所等の解体は進めず、あくまでも既存の構造体を躯体状態まですることを目的として解体を進めていきます。

台東区 戸建て 手壊し

解体時に既存の釘等までを処理することが次工程の木工事の際に工事が進めやすくなりますので、大工が作業しやすい環境を作るためにこのような処理も進めていきます。

台東区 戸建フルリフォーム 残材

T様邸は2階屋を3階へ増築していたため、基礎にダメージがないか入念にチェックをしながら進めていきます。

台東区 戸建フルリフォーム 解体後

完全分離型の2世帯住宅リフォームは、間取りが大きく変わるケースが多くK様も例外ではありません。本来、間取りが変更部の柱を抜きたいところですが、同時に補強も必要となることから、木工事の際に解体を進めます。

台東区 戸建フルリフォーム 解体残材

解体時に既存の釘等までを処理することが次工程の木工事の際に工事が進めやすくなりますので、大工が作業しやすい環境を作るためにこのような処理も進めていきます。

台東区 戸建フルスケルトン

1階部2階部の解体が完了しました。

解体区 戸建フルリフォーム 解体後

躯体の状態まで内壁及び外壁を剥離していきます。

台東区 戸建フルリフォーム 確認

建物の調査を進め、解体前に行った構造計算等が、現状の構造躯体でそのまま補強が可能か否かの判断をしていきます。第三者を入れての検査もおこなっち来ます。2階部の解体が完了しました。

台東区 腐食箇所 戸建てリノベ

通し柱の腐食

戸建てリノベーション 腐食箇所

通し柱だけでなく土台も溶けてしまっています。

スケルトンリフォーム 腐食箇所

こちらの柱も腐食で溶けていました。

台東区 戸建て解体後 腐食箇所

土台の多くも腐食が多く新たに土台が必要になります。

台東区 戸建て解体後 腐食

土台の腐食

台東区 戸建てリノベ 解体後確認

無理なリフォームをしたのか柱に土台が乗っていませんでした。

大事な構造部のすべてが目視可能となるスケルトンリフォーム

内壁だけでなく外壁までを解体するフルスケルトンリフォームの最大のメリットはこのように重要な主要構造部のすべての状態が目視でわかることになります。フルリノベーション後は、これらの構造上の弱点をすべて修正し補強することで新築と同水準、もくしくはそれ以上の建物性能をもつ構造躯体へ甦らせることが可能となります。

2-2 基礎補強工事
台東区 基礎補強図 戸建リノベーション
台東区 戸建てリノベ 基礎図

構造上のチェックが終わると、T様のは、基礎補強工事へと移行していきます。

他社の提案では基礎は補修をすれば大丈夫との提案を頂いていたようですが、T様の建物は、旧耐震基準の建物であることから基礎に鉄筋が入っていない「無筋基礎」になることから、弊社では抱き合わせ基礎(添え基礎)補強での補強を提案させていただきました。

台東区 一戸建スケルトンリフォーム 基礎補強

既存基礎の内側に、補強計画に基づき、配筋をあと施工アンカーにて施工していきます。

台東区 一戸建スケルトンリフォーム 基礎配筋

アンカーサイズM12にて既存無筋コンクリートへ打ち太さD13の鉄筋をピッチ200㎜にて千鳥上に配筋していきます。

台東区一戸建スケルトンリフォーム 基礎型枠

立ち上がり基礎部分に型枠をしていきます。

台東区一戸建スケルトンリフォーム 基礎工事

新ベース基礎300㎜立ち上がり基礎120㎜での鉄筋コンクリート基礎補強。

台東区一戸建スケルトン 基礎補強

コンクリートミキサー車がかろうじては入れて助かりました。

基礎補強 台東区 戸建てリノベ

コンクリートを圧送していきます。

戸建てリノベ 基礎補強 台東区

コンクリートを型枠内にならしていきます。

文京区一戸建スケルトンリフォーム 基礎工事

新たに基礎が必要な個所へは鉄筋コンクリート基礎を新設します。

文京区一戸建スケルトンリフォーム 基礎工事

間取り変更に伴い基礎がない箇所へは新たに鉄筋コンクリート基礎を新設します。

文京区一戸建スケルトンリフォーム 基礎工事

コンクリート打設が完了しました。

文京区一戸建スケルトンリフォーム 基礎工事

脱型後。抱き合わせ基礎補強が完成です。既存基礎に抱き合うように増し打ちされているのがわかります。

文京区一戸建スケルトンリフォーム 基礎工事

脱型後。土台は入れ替えています。

文京区一戸建スケルトンリフォーム 基礎工事

脱型後。こちらの土台も使用できる状態ではなく入れ替えました。

文京区一戸建スケルトンリフォーム 基礎工事

脱型後。

文京区一戸建スケルトンリフォーム 基礎工事

脱型後。

ポイント

K様邸では、当初はベタ基礎での補強をご要望でしたが、我々が提案したのは、抱き合わせ基礎補強でした。

その理由は、ベタ基礎は建物全体と同程度の荷重となりますので、建物の重さとのバランスもかかわってきます。足元だけ固めていても屋根を含めた建物とのバランスが悪いと大地震が起きた際にせん断力が働き、ホールダウン金物が抜けるような事態になるケースもあるからです。大手を含め多くのリフォーム会社が、基礎補強をしない現実がありますが、無筋基礎の状態の建物に基礎補強をしないのは、フルリフォームやリノベーションではありえないと弊社は考えております。基礎補強なしでいくら耐震といったところで、その計画は絵に描いた餅となるのです。

大規模な戸建てリノベーションをされる際には、木造を熟知し、実績が豊富な会社へ相談することをお勧めする理由でもあります。

ベタ基礎って?

布基礎が立ち上がりとフーチングで持たせる基礎に対して、ベタ基礎は、立上りだけでなく、底板一面も耐圧盤を設け、立ち上がりと底面が一体化された鉄筋コンクリートになっている基礎をいいます。

建物の荷重を底板全体の面で受け止めるため、ベタ基礎は不同沈下を起こさない。といわれますが、それは良好な地盤での話です。

基礎の下の地盤面の地耐力が均一でない場合は、不同沈下が起こる可能性が充分あるのです。

耐震の世界では、重い瓦屋根は外して、軽いものに変えましょうと言われておりますが、それ自体は間違っていませんが、この理屈でいくと。屋根の瓦を外して、基礎はベタ基礎にしても、地盤に与える荷重は、瓦屋根以上の荷重がベタ基礎の荷重により地盤面にかかることになります。

地盤が軟弱な場合、布基礎を採用した方が有利な場合も出てきます。

戸建てフルリフォームやリノベーションで、基礎補強をする際は、このような知識のある会社に相談することが必要です。

2-3 木工事
台東区 金物柱位置 1階

1階 金物仕様及び柱位置

台東区 金物柱位置 戸建てリノベ
2階 金物仕様及び柱位置

基礎補強工事が終わり大工工事へと移行します。構造躯体の強度を担保するためのメイン工事となります。この段階より間取り変更を想定した解体が始まります。いわゆる躯体の組み換え。ハイウィルではマンションリフォームのご依頼も請けますが、この工程は、マンション大工では施工ができませんので木造専門の棟梁が担当します。

戸建リノベーション 谷中 下地

木工事をスタートしてきます。

谷中 羽柄材 戸建リノベ

1階には補強を入れながら多めに仮筋交いを入れ倒壊を防止します。

谷中 戸建リノベ 補強工事

1階LDK部は柱を抜き大開口となるため梁補強をしていきます。

土台補強 谷中 戸建リノベ

耐震金物設置

谷中 梁補強 戸建リノベ

1階LDKの梁補強が完了しました。

谷中 戸建リノベ 剛床

2階床は剛床にて施工を予定しています。

谷中 戸建リノベ 耐力壁

外部は構造用合板を全面張りで壁倍率を担保しました。金物を設置していきます。

耐力壁 谷中 戸建フルリノベ

N値計算に基づき金物を配置していきます。

戸建フルリノベ 金物補強 谷中

ほぼ新しい構造体となっております。

谷中 戸建フルリノベ 金物補強

剛床部への金物補強。

谷中 金物補強 戸建リノベーション

二階床は水平耐力を担保するために、剛床工法しました。
➡剛床の詳しい解説はこちら

台東区 戸建リノベ 構造補強

2階床板は24㎜の構造用合板で構造体と固定し水平耐力を持たせる計算となっています。

2-4 断熱工事

東京都台東区T様の戸建てリノベーションでの断熱材は、グラスウールを採用。
 

谷中 戸建リノベ 床断熱

1階LDK部へのスタイロフォーム充填

戸建フルリノベ 谷中 断熱

二階天井裏に300㎜を充填しました。

2-5 屋根工事

T様は屋根は既存のコロニアル瓦葺きでしたので、既存の野地板に増し打ちをして新たな仕上げ材を葺いていきます。

谷中 戸建リノベ 既存屋根

既存のコロニアル瓦

既存屋根 戸建リノベ 谷中

増築前の屋根部分

台東区 既存屋根 戸建フルリノベ

一部トタンとなっています。

戸建フルリノベ 谷中 屋根工事

既存の仕上げ材を剥がしていきます。

谷中 戸建リノベ 野地板

既存屋根解体

谷中 戸建リノベ ルーフィング

解体が終わりました。

谷中 戸建リノベ 屋根工事

屋根野地板貼りが完了

谷中 戸建リノベ 屋根工事

完了

谷中 屋根工事 戸建リノベ

雨が降ってしまうと大変なことになりますのでルーフィング工事をすぐさま開始します。

谷中 戸建リノベ 屋根

ルーフィング張り

谷中 屋根工事 雪止め

GL鋼板張り仕上げ

谷中 戸建フルリノベ 屋根工事

完了

2-6 外壁工事
谷中 外壁下地

外壁面には、壁倍率2.5倍の構造用合板を全面に張っていきます。

谷中 外壁防湿シート

透湿防水シート

谷中 通気胴縁

通気胴縁

谷中 戸建リノベ 外壁下地

透湿防水シートを構造用合板を張り終えた部分に全面張りしていきます。

谷中 戸建リノベーション 外壁

今回採用される外壁サイディング材はガルバリウム鋼板です。

台東区 谷中 戸建リノベ 外壁

ガルバリウムが貼り終わりました。

谷中 リノベーション 外壁

外壁が完了すると一気にイメージが変わりますね。

外壁竣工 谷中

外壁工事が完了しました。

2-7 内装仕上げ工事

構造部の構造補強が終わると、造作工事に入ります。

谷中 戸建リフォーム 内装下地
谷中 戸建フルリノベーション 内装仕上げ
谷中 戸建リノベーション 内装
谷中 戸建リノベ ボード
谷中 戸建フルリノベ パテ作業
谷中 戸建フルリノベ 内装下地
谷中 戸建フルリフォーム 内装
谷中 戸建フルリノベ 内装パテ
台東区 谷中リノベ 内装仕上げ
谷中 フルリノベーション 内装工事
谷中 戸建フルリノベーション 内装
内装仕上げ 谷中フルリノベ

3 竣工

約6カ月の工事を経て、いよいよ竣工です。
T様邸の様子をご紹介します。


  =外観==  

台東区 戸建てリノベーション 外観竣工

外壁はサイディング仕上げ

台東区 戸建てフルリフォーム 外観竣工

外壁はサイディング仕上げ


  == 1F エントランス・玄関 ==  

台東区 戸建てリノベーション 玄関竣工

玄関は断熱ドアを使用。

台東区 戸建てフルリフォーム 玄関竣工

階段は既存よりも勾配を取りました。(クリーニング前)


  == 1F LDK ==  

1階は明るい日差しの入る窓に向かっての対面キッチンです。

極力、構造・断熱・コストを考慮しサッシは優先順位を付けて大きめの窓は少なくしてますが

LDKの窓は昼間家族みんなが集う場所なので掃き出し窓を設置しています。

解体後、既存柱・梁を確認し耐震計画を行いキッチン脇に1本柱を設置する事となりました。

台東区 戸建てリノベーション LDK竣工
台東区 戸建てフルリフォーム LDK
台東区 まるごとリフォーム LDK
Before
台東区 谷中戸建てリノベーション 既存台所

既存のLDKはキッチンはブロックキッチンを使用しており、リビング・ダイニングは和室の造りです。


  == 階段 ==  

谷中 戸建てリノベーション 新規階段

 1階から2階への階段

Before
谷中 戸建てリノベーション 竣工階段

 階段は踏面と蹴上と色を分けています。

谷中 戸建てフルリフォーム 新規階段

 2階から3階への階段。

 


  == 2F 洋室 ==  

谷中 戸建てリノベーション 1階寝室

 2階のお子様のお部屋です

谷中 戸建てフルリフォーム 竣工寝室

 2階 子供部屋には可動棚を設置しました。

谷中 戸建てリノベーション 和室

 子供部屋収納には扉は付けず天井補強をし追々カーテンレール等が設置出来る様にしています。


  == 水まわり ==  

Before

谷中 戸建てリノベーション 既存キッチン

既存キッチン

谷中 戸建てリノベーション 既存浴室

既存浴室

谷中 戸建てリノベーション 既存洗面

既存洗面室

谷中 戸建てリノベーション 既存トイレ

既存トイレ

谷中 戸建てリノベーション Ⅱ型キッチン

 新規キッチンは トクラスBb I型2100です。

谷中 戸建てフルリフォーム Ⅱ型キッチン

 カップボードもトクラスで合わせています。

谷中 ユニットバスLIXIL

 ユニットバスはTOTOサザナ1216サイズです。

谷中 洗面化粧台 戸建リノベ

 洗面化粧台はTOTOオクターブです。

谷中 戸建てリノベーション 洗面化粧台竣工

 1階洗面化粧台はLIXILルミシスです。


  == 小屋裏居室 ==  

谷中 既存小屋裏居室
 
Before
 
 
谷中 3階2×4
谷中 混構造 戸建リノベ
谷中 戸建てリノベーション 竣工子世帯

3階 主寝室 

谷中 戸建てフルリフォーム 竣工洋室

3階 収納スペース


  == 外構 ==  

外観はサイディングはケイミューはる一番  コーストライン柄 グラングレー です。

谷中 竣工外観写真
谷中 戸建リノベ 竣工

4 担当者より(ハイウィル株式会社 取締役専務 稲葉悟)

弊社にご相談があった際にすでに他社様から基礎の補修でなく基礎補強をして欲しいとのご要望がございました。寺町のため、近隣にはいつになく配慮をする形で施工させていただきました。お彼岸になりますとほぼ車の出入りができない時期などとなってしまうため工程が変動します。建物が仕上がる中で、何度も仕様に関する相談を随時対応させていただきました。大変お喜びいただきまして施工冥利につきます。

T様、この度はご依頼をいただき、誠にありがとうございました。

全国のフルリフォーム・リノベーション『ピックアップ事例』※プロの詳細解説付きレポート

HEAT20-G2/耐震等級3
新耐震基準の性能向上リノベーション
築30年ハウスメーカー軽量鉄骨
断熱改修&リノベーション
 
中古住宅を新築以上の耐震性能と断熱性能へ!
耐震等級3フルリフォーム
地下付き木造2階建て
自然素材をつかった性能向上リノベーション&フルリフォーム

東京都文京区 K様邸

長屋を切り離して1つの構造体へフルリフォーム&リノベーション
隣家との距離がない!
部屋から外壁を張り替えるフルリノベーション
中古住宅を耐震等級3へ!
中古住宅リノベーション
 
基礎がない??
築60年の古屋をジャッキアップで基礎新設フルリノベーション

東京都渋谷区 O様邸

戸建てリノベーション・リフォームに関するお問合せはこちら

増改築.comの一戸建てリフォーム専用ホームページに
お越しいただき、誠に有難うございます。
 
増改築.comメンバーは技術集団となり、
他社のような営業マンがおりません。
技術者が直接ご相談にのり問題解決を行います。
 
従いまして、
お客様の方である程度のご要望が整理されました段階、
お悩みが工事内容のどのようなところにあるのか?
ご予算がどの程度絞る必要があるのか?
など明確になった段階でのご相談をお願いしております。
お問合せ・ご相談はお電話・メールにて受け付けております。
メールの場合は以下のフォームに必要事項をご記入の上、
「送信する」ボタンをクリックをお願いします。

代表稲葉高志

戸建てリノベーションの専属スタッフが担当致します。
一戸建て家のリフォームに関することを
お気軽にお問合せください

よくあるご質問
  • 他社に要望を伝えたところできないといわれたのですが・・・
  • 他社で予算オーバーとなってしまい要望が叶わないのですが・・・
  • サービスについて詳しく聞きたいのですが・・・

どのようなお悩みのご相談でも結構です。

あなたの大切なお住まいに関するご相談をお待ちしております。

営業マンはおりませんので、しつこい営業等も一切ございません。

設計会社(建築家様)・同業の建築会社様のご相談につきましては、プランと共にご指定のIw値及びUa値等の性能値の目安もお願い申し上げます。

2026年の大型補助金が確定したことで現在大変込み合っております。

耐震性能と断熱性能を向上させるフルリフォームには6か月~7か月の工期がかかります。

補助金獲得には年内に報告を挙げる必要があることから、お早目にご相談をお願いいたします。(6月着工までが目安

ご提案までに大変お時間がかかっております。ご了承のほどお願い申し上げます。

(5月までの着工枠が埋まりました)・・・2026/03/01更新

※すでにプランをお持ちのお施主様・設計資料をお持ちのお施主様は内容をフォームで送信後、フォーム下のメールアドレスに資料をお送りください。対応がスムーズです。

必須

(例:増改築太郎)

必須

(例:contact@high-will.co.jp)

(例:03-5615-2826)

必須

(例:東京都荒川区西日暮里2-35-1)

(例:築40年)

(例:25坪・100㎡など)

(例:2000万程度など)

  • ※再建築不可のリフォームでは金融機関が限られます。事前審査をお勧めいたします。

    (例:2024年3月くらいに完成希望など)

    必須

    できるだけ具体的にお知らせくださいませ。既存設計資料、リフォーム後のイメージ図等をお持ちであれば下記のメールアドレスより添付をお願いします。

    ※次の画面がでるまで、4~5秒かかりますので、
    続けて2回押さないようにお願いいたします。

    ※次の画面が出るまで、4〜5秒かかりますので、
    続けて2回押さないようにお願いいたします。

    図面や写真等を送信いただく場合、また入力がうまくいかない場合は、上記内容をご確認のうえ、下記メールアドレスまでご連絡ください。

    お電話でのお問合せはこちら

    0120-246-991

    営業時間:10:00~17:00(土日祝日を除く)

    ★YouTube「増改築.comチャンネル」チャンネル登録して新動画解説をいち早くGET!!★
    「増改築.comリノベ診断」であなたに一番ふさわしいフルリフォームを診断!!(動画解説付き)
    ★Facebookページにいいね!を押して最新コンテンツ情報をいち早くGET!!★
    パソコン|モバイル
    ページトップに戻る