このエントリーをはてなブックマークに追加

戸建フルリフォームなら「増改築.com®」TOP施工事例東京都荒川狭小住宅リフォーム&リノベーションM様

狭小住宅リノベーション 施工事例

荒川区M様邸_竣工
荒川区M様邸_竣工
荒川区M様邸_竣工
荒川区M様邸_竣工
建物概要
名前 M様
場所 東京都荒川区
築年数 築50年
構造種別 木造戸建
家族構成 ご夫婦2人
対象面積 16.54坪
リフォーム部位 ベタ基礎/間取変更/断熱サッシ取替/外壁サイディング/屋上庭園
工期 4ヶ月
価格 1600万(税別)

お客様のご要望


・新築ではセットバック対象のためリフォームを検討。

・長期間、空家だったので、賃貸に出すか自分で住むか悩んでいます。

・窓の位置、サイズはこだわりたい。

・外壁が作業が出来る箇所はサイディングにしたい。

・玄関・階段の位置は変えたい。

 

プランニングのポイント


東京都荒川区町屋の築50年の15坪強の狭小木造戸建て住宅、

既存は1階に水周りと6畳1部屋。

2階に6畳2部屋の造りでした。

M様のご要望で、玄関の位置を変えて

2階に大きめのLDKを配置させて頂きました。

3階部分は既存ベランダがあったので、

階段の位置だけを少し変えて防水からやり直し

をしました。

 

荒川区M様邸 戸建てリノベーション施工事例テーマカテゴリー

 

  • 狭小住宅リフォーム
  • 内外部スケルトンリフォーム

打合せから完成まで


1 着工前

1-1 打合せ

荒川区M様邸_施工前

荒川区M様邸_施工前

東京都荒川区町屋の住宅密集地に佇む、昭和30年代築の築50年を超える16坪の狭小住宅の建物になります。

そもそもM様はこの狭小地の建物を当初新築をご予定でした。

しかしながら、50年前に建てられた建物を新築する場合、現行の建築基準法に適合させて計画をしなければなりません。

 

狭小住宅ならではの全面道路の問題や、隣地との離隔距離などの問題で、さまざまな制約を受けることが多いのが事実です。

M様の狭小住宅も例外ではありませんでした。

 

再建築不可ではありませんでしたが、新築をした場合、建蔽率の制限、セットバックをしなければならず、M様のご要望された間取りや部屋数、広さが確保できないようなものになってしまいました。

 

そこで、現状の建物の建築面積を最大化できるリフォームを検討することになったのです。

 

町屋自体の特長ですが、下町の密集地に戦後一斉に建てられた地域のため、再建築不可の土地も多いエリアです。

今回M様所有の建物は、角地にあることから、2面は通りに面しておりましたので、工事ロケーションとして、劣悪な環境とまではいかないロケーションでした。

問題になるのは駐車場までの距離が長いこと、敷地ギリギリまで建てられた建物のため、解体した廃材などを仮置きするスペースがないことです。

これらの計画を調査の段階でしっかりと見ておくことが大切です。

隣家との距離は一面が足場が入らない立地となっていました。

境界ギリギリで建っているのは、特に町屋周辺では多く、M様の建物も既存の状態も防火板となっているのがわかります。

荒川区M様邸_施工前
荒川区M様邸_施工前

3階部はベランダになっていました。メンテナンスがまったくされておられていない状態となっていましたので、防水層ごとやり直しの提案をさせていただきました。

荒川区M様邸_施工前
荒川区M様邸_施工前
荒川区M様邸_施工前
荒川区M様邸_施工前
荒川区M様邸_施工前

長期間空き家となっていた建物のため、
構造部の傷みがどの程度かを目視で確認します。

荒川区M様邸_施工前
荒川区M様邸_施工前
荒川区M様邸_施工前

概ね、非破壊での目視できるところでの腐食などによる構造部の傷みは確認できませんでしたが、一階と2階で柱がズレている部分などが数か所あったため、リフォーム後の間取りをプランする際に重要になるポイントをチェックをしておきます。

荒川区M様邸_施工前
荒川区M様邸_施工前

夏の暑い中の現調であったため、断熱材が入っていないことから、断熱計画も立てていきます。

荒川区M様邸_施工前
荒川区M様邸_施工前

お持ちの図面が古く手書き図面であったため、再度柱の位置を押さえ採寸していきます。

1-2 提案
荒川区M様邸_既存平面図

50年前の配置図

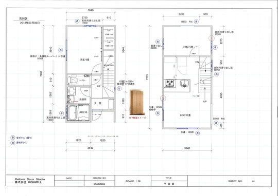
荒川区M様邸_新規平面図

■施工後の1・2階平面図■

荒川区M様邸_新規平面図

■施工後の屋上平面図■

角地に建っているM様邸。

ご要望をヒアリングさせていただきプランニングの際に、玄関の位置は変えたいとご要望を頂いておりましたので、玄関の位置を確定してから居室のプランニングをさせて頂きました。

荒川区の下町にございますM様邸、窓の設置高さはM様よりご指示を頂き、1階はプライバシーを確保かつ採光がとれるよう高窓がメインとなっております。

1階に浴室・洗面・トイレ・洋室を設置2階はたっぷりとLDKを取り、残りを洋室にさせて頂きました。

2 着工

2-1 解体

密集地での狭小住宅の解体、もちろん機械壊しはできませんので、手壊しとなります。

建物奥の面は隣家との距離がほとんどなく防火板が張られていました。

荒川区M様邸_解体
荒川区M様邸_解体

まずは内部(室内)天井、壁、床を剥がしていきます。

荒川区M様邸_解体
荒川区M様邸_解体
荒川区M様邸_解体
荒川区M様邸_解体

2階の天井、壁を解体し、2階部の床は最後に行います。

階段は最後に解体します。

築年数の経過した狭小住宅リフォームにおいて、最も気を遣うところは何といっても、敷地ギリギリで建っている建物の比率が高い為、

解体した産業廃棄物を仮置きするスペースが敷地内にないということです。

ある程度の解体でこまめに搬出をしながら解体も進めることになりますので工程管理も大切になってきます。

東京都荒川区の町屋のような住宅密集地はこのような条件での施工が多いのも特徴ではあります。

荒川区M様邸_解体
荒川区M様邸_解体

既存の屋上は防水が割れているため、やり直してを提案しました。

既存の構造体の骨格が見えてきます。

荒川区M様邸_解体
荒川区M様邸_解体

玄関より奥の外壁が隣家との距離がないため、防火版が貼ってあります。

裏打ちでの防火壁工事も可能な状況ではありましたが、ご予算を大幅にオーバーしてしまうため、こちらはそのまま残す形となりました。

 

荒川区M様邸_解体
荒川区M様邸_解体

外壁は一面を残して解体をしました。解体が終わり躯体のチェックにはいります。

 

荒川区M様邸_解体
荒川区M様邸_解体

既存のベランダにはスラブがありました。このスラブを利用し、防水は新たにやり直しをします。瓦も劣化してしまっているため、葺きなおしです。

2-2 基礎

解体工事が終わると最初に工事をするのが基礎工事になります。

M様邸は布基礎からベタ基礎への変更、基礎補強工事をいたします。

鋤取りをした後、砕石・鉄筋を敷いていきます。

荒川区M様邸_基礎
荒川区M様邸_基礎

 

荒川区町屋の狭小住宅リフォームでは、基礎は布基礎からベタ基礎への基礎補強工事となっておりますので、鋤取りから砕石、転圧を行っていきます。

荒川区M様邸_基礎
荒川区M様邸_基礎

砕石、転圧をかけた後は、防湿フィルムを全体に張り込んでいきます。

荒川区M様邸_基礎
荒川区M様邸_基礎
荒川区M様邸_基礎
荒川区M様邸_基礎

防湿シートの敷き込みが終わると配筋工事となります。D13の鉄筋を200mmピッチで千鳥状に緊結していきます。

既存の布基礎とは、ここでケミカルアンカーにて差し筋をしていきます。

荒川区M様邸_基礎
荒川区M様邸_基礎
荒川区M様邸_基礎

新たに間仕切り壁が新設される土台部分へは、
新たに布基礎を新設します。

荒川区M様邸_基礎

新たに布基礎が必要なところへは、
型枠を作りアンカーを入れコンクリートを打設します。

 

2-3 大工工事

木造の一戸建てフルリフォームやフルリノベーションをする際に、大幅な間取り変更を伴うこともあり、内部をスケルトン(躯体)状態

まで解体し耐震補強を施し、建物の性能を現行の基準以上にするという工事が通常になって参りますが、その際に、内部のみを解体する内部スケルトンにするのか、あるいは、外部までを解体する内外部スケルトンでいくのか、かかる費用が全く変わってくることからご予算に合わせた提案をさせていただくわけですが、どちらを選択するかは、プロの判断では築年数がひとつの目安にはなりますが、実際には、その建物がどの程度傷んでいるのか?

言い換えれば、どの程度しっかりとメンテナンスをやってきたのか?

ここを見ていきます。

外壁を解体する工事は費用もかなりかかるため、築年数がかなり経過している建物であっても、もともとの建物の施工がしっかりとしている、かつ、メンテナンスが行き届いている建物であれば、不要の場合もあります。

荒川区町屋のM様の建物はどうだったのでしょうか?

 

荒川区M様邸_大工工事
荒川区M様邸_大工工事

今回の荒川区町屋での狭小住宅での建物は外壁がクラック部より水を吸って膨らんでいる現象が多数みられたため、外壁の解体までをご提案させていただきました。解体してみるとやはり水は躯体まで浸透しておりシロアリに食べられている構造躯体が多く出てきました。

荒川区M様邸_大工工事
荒川区M様邸_大工工事

 

荒川区M様邸_大工工事
荒川区M様邸_大工工事

ダメージは一階部分がひどく、一階部柱や梁、土台の多くは入れ替えとなりました。作業を楽にするために既存の階段は残して作業を行いました。

荒川区M様邸_大工工事
荒川区M様邸_大工工事

柱のピッチが甘いうえに、その大切な柱が腐食してしまっている箇所へはフレームを作り補強していきます。

2-5 断熱工事

躯体の補強が終わると、造作工事の前に断熱工事を行っていきます。

荒川区M様邸_断熱工事
荒川区M様邸_断熱工事
荒川区M様邸_断熱工事
荒川区M様邸_断熱工事

荒川区町屋のフルリフォーム、リノベーションでは、断熱材はグラスウールでの施工となりました。

グラスウールの施工は職人の技量にかかわる大切な工事となります。隙間なく充填されているか、細心の注意を払い施工をしていきます。

2-6 外壁工事

既存の屋根とバルコニーは撤去しておりますので、新たに構造用合板を張り、ルーフィングを設置後ガルバリウム鋼板を施工しました。

ルーフバルコニーへ上がる階段室となる棟屋はすべて解体し新たに新設しています。

 

荒川区M様邸_外壁工事
荒川区M様邸_外壁工事
荒川区M様邸_外壁工事
荒川区M様邸_外壁工事
荒川区M様邸_外壁工事

町屋は密集地が多いので、このように隣家との距離が
ほとんどないケースが多く、雪止めも必須になってきます。

荒川区M様邸_外壁工事

外壁サイディングが張り終わりました。

 

3 竣工

外観からすっかりと姿が変わりました。

シンプルなサイディングを

 

荒川区M様邸_竣工
荒川区M様邸_竣工

▲ 外壁はニチハのキャスティングウッド スモークシルバーMG(縦)玄関ドアの周りのみ:プリレート EFF056P  

荒川区M様邸_竣工
荒川区M様邸_竣工

▲ 内装建材はPanasonicベリティス ホワイトオーク色です。

荒川区M様邸_竣工
荒川区M様邸_竣工

▲ M様がご選定頂いた内装クロス、各お部屋一面にアクセントとして色味を入れて頂いてます。

荒川区M様邸_竣工
荒川区M様邸_竣工

▲ トイレと洗面化粧台はPanasonic商品です。お風呂はLIXILアライズになります。

荒川区M様邸_竣工
荒川区M様邸_竣工

▲ 窓の形や、位置もM様のご要望を反映させて頂きました。

 

荒川区M様邸_竣工
荒川区M様邸_竣工

▲キッチンはLIXIL シエラ ペニンシュラI型184cm 食器棚もシエラで揃えています。

荒川区M様邸_竣工
荒川区M様邸_竣工

▲3階バルコニーに上がる階段です。

3-1 外壁 Before → After
荒川区M様邸_施工前

リフォーム前

5年程空家にしてしまっていた築50年の木造戸建て。

M様は賃貸に貸されるか、ご自身で住まわれるか悩まれてましたが

M様がお住まいになる形で見積・プランをさせて頂きました。

 

荒川区M様邸_竣工

M様邸は角地なので玄関の位置を変更させて頂きました。

3-2 キッチン Before → After
荒川区M様邸_施工前

リフォーム前

既存キッチンはFF式の給湯とブロックキッチンでした。

荒川区M様邸_竣工

キッチンは2階に持ってきました。LIXILシエラ ペニンシュラI型184cmです。

3-3 バス Before → After
荒川区M様邸_施工前

リフォーム前

既存浴室は昔ながらの在来の浴室でした。

荒川区M様邸_竣工

ユニットバスはLIXIL アライズ1216サイズ

3-4 洗面 Before → After
荒川区M様邸_施工前

リフォーム前

既存洗面化粧台はカウンターのみの物でした。

荒川区M様邸_竣工

洗面化粧台はPanasonicシーライン間口600サイズ

3-5 トイレ Before → After
荒川区M様邸_施工前

リフォーム前

既存トイレ。小さい空間に昔ながらの隅付トイレでした。

荒川区M様邸_竣工

トイレはハイウィルオリジナルトイレです。ウォシュレット紙巻き器がセットになった商品になります。

3-6 リビング Before → After
荒川区M様邸_施工前

リフォーム前

お部屋は全体的に和室でした。

5年程空家だったので、物もそのままになっておりましたので

解体作業に入る前にお施主様に整理をして頂きました。

荒川区M様邸_竣工

2階に大きくLDKを持ってきました。狭小スペースだったので、廊下を無くし空間の中での移動をするプランになっております。

ハイウィルスタッフ

4 担当者より

M様からのご相談があったのは、工事が着手される半年前でした。

こちらの増改築COMを熟読されたとのことで、ご要望の工事内容は、

かなり明確でした。またお忙しいお施主様でしたので、

メールを中心に打ち合わせを重ねていきました。

仕様につきましては、M様のこだわりをすべて反映する形を

とらせていただき、使用した建材、住宅設備、外装材など

あらゆる建材をすべてM様がご自身で選定されました。

完成後は、М様のイメージがそのまま反映された空間となりました。

この事例と似たテーマカテゴリーを見る

全国のフルリフォーム・リノベーション『ピックアップ事例』※プロの詳細解説付きレポート

HEAT20-G2/耐震等級3
新耐震基準の性能向上リノベーション
築30年ハウスメーカー軽量鉄骨
断熱改修&リノベーション
 
中古住宅を新築以上の耐震性能と断熱性能へ!
耐震等級3フルリフォーム
地下付き木造2階建て
自然素材をつかった性能向上リノベーション&フルリフォーム

東京都文京区 K様邸

長屋を切り離して1つの構造体へフルリフォーム&リノベーション
隣家との距離がない!
部屋から外壁を張り替えるフルリノベーション
中古住宅を耐震等級3へ!
中古住宅リノベーション
 
基礎がない??
築60年の古屋をジャッキアップで基礎新設フルリノベーション

東京都渋谷区 O様邸

戸建てリノベーション・リフォームに関するお問合せはこちら

増改築.comの一戸建てリフォーム専用ホームページに
お越しいただき、誠に有難うございます。
 
増改築.comメンバーは技術集団となり、
他社のような営業マンがおりません。
技術者が直接ご相談にのり問題解決を行います。
 
従いまして、
お客様の方である程度のご要望が整理されました段階、
お悩みが工事内容のどのようなところにあるのか?
ご予算がどの程度絞る必要があるのか?
など明確になった段階でのご相談をお願いしております。
お問合せ・ご相談はお電話・メールにて受け付けております。
メールの場合は以下のフォームに必要事項をご記入の上、
「送信する」ボタンをクリックをお願いします。

代表稲葉高志

戸建てリノベーションの専属スタッフが担当致します。
一戸建て家のリフォームに関することを
お気軽にお問合せください

よくあるご質問
  • 他社に要望を伝えたところできないといわれたのですが・・・
  • 他社で予算オーバーとなってしまい要望が叶わないのですが・・・
  • サービスについて詳しく聞きたいのですが・・・

どのようなお悩みのご相談でも結構です。

あなたの大切なお住まいに関するご相談をお待ちしております。

営業マンはおりませんので、しつこい営業等も一切ございません。

設計会社(建築家様)・同業の建築会社様のご相談につきましては、プランと共にご指定のIw値及びUa値等の性能値の目安もお願い申し上げます。

2026年の大型補助金が確定したことで現在大変込み合っております。

耐震性能と断熱性能を向上させるフルリフォームには6か月~7か月の工期がかかります。

補助金獲得には年内に報告を挙げる必要があることから、お早目にご相談をお願いいたします。(6月着工までが目安

ご提案までに大変お時間がかかっております。ご了承のほどお願い申し上げます。

(5月までの着工枠が埋まりました)・・・2026/03/01更新

※すでにプランをお持ちのお施主様・設計資料をお持ちのお施主様は内容をフォームで送信後、フォーム下のメールアドレスに資料をお送りください。対応がスムーズです。

必須

(例:増改築太郎)

必須

(例:contact@high-will.co.jp)

(例:03-5615-2826)

必須

(例:東京都荒川区西日暮里2-35-1)

(例:築40年)

(例:25坪・100㎡など)

(例:2000万程度など)

  • ※再建築不可のリフォームでは金融機関が限られます。事前審査をお勧めいたします。

    (例:2024年3月くらいに完成希望など)

    必須

    できるだけ具体的にお知らせくださいませ。既存設計資料、リフォーム後のイメージ図等をお持ちであれば下記のメールアドレスより添付をお願いします。

    ※次の画面がでるまで、4~5秒かかりますので、
    続けて2回押さないようにお願いいたします。

    ※次の画面が出るまで、4〜5秒かかりますので、
    続けて2回押さないようにお願いいたします。

    図面や写真等を送信いただく場合、また入力がうまくいかない場合は、上記内容をご確認のうえ、下記メールアドレスまでご連絡ください。

    お電話でのお問合せはこちら

    0120-246-991

    営業時間:10:00~17:00(土日祝日を除く)

    ★YouTube「増改築.comチャンネル」チャンネル登録して新動画解説をいち早くGET!!★
    「増改築.comリノベ診断」であなたに一番ふさわしいフルリフォームを診断!!(動画解説付き)
    ★Facebookページにいいね!を押して最新コンテンツ情報をいち早くGET!!★
    パソコン|モバイル
    ページトップに戻る