{ "@context": "https://schema.org", "@graph": [ { "@type": "Article", "@id": "https://www.zoukaichiku.com/works/case_search/tokyo/adachiward/case_02#article", "headline": "築50年の一戸建て 10年間空家の建物をスケルトンリフォームの事例|東京都足立区S様邸", "description": "東京都足立区築50年10年間空き家になっていた建物のフルリノベーション。内外部のスケルトンリフォームで基礎補強・木部補強で安心な住まいに。", "image": { "@type": "ImageObject", "url": "https://www.zoukaichiku.com/_p/acre/9169/images/pc/ca8e8ea5.jpg", "width": 1200, "height": 630 }, "datePublished": "2024-01-01", "dateModified": "2026-03-17", "author": { "@type": "Person", "name": "稲葉高志", "jobTitle": "代表取締役・一級建築士", "worksFor": { "@id": "https://www.zoukaichiku.com/works/case_search/tokyo/adachiward/case_02#organization" } }, "publisher": { "@id": "https://www.zoukaichiku.com/works/case_search/tokyo/adachiward/case_02#organization" }, "mainEntityOfPage": { "@id": "https://www.zoukaichiku.com/works/case_search/tokyo/adachiward/case_02#webpage" }, "about": { "@id": "https://www.zoukaichiku.com/works/case_search/tokyo/adachiward/case_02#service" }, "keywords": [ "足立区リフォーム", "フルリフォーム", "耐震リフォーム", "戸建てリノベーション", "スケルトンリフォーム" ] }, { "@type": "WebPage", "@id": "https://www.zoukaichiku.com/works/case_search/tokyo/adachiward/case_02#webpage", "url": "https://www.zoukaichiku.com/works/case_search/tokyo/adachiward/case_02", "name": "築50年の一戸建て 10年間空家の建物をスケルトンリフォームの事例|東京都足立区S様邸", "isPartOf": { "@type": "WebSite", "name": "増改築.com", "url": "https://www.zoukaichiku.com" }, "breadcrumb": { "@id": "https://www.zoukaichiku.com/works/case_search/tokyo/adachiward/case_02#breadcrumb" } }, { "@type": "BreadcrumbList", "@id": "https://www.zoukaichiku.com/works/case_search/tokyo/adachiward/case_02#breadcrumb", "itemListElement": [ { "@type": "ListItem", "position": 1, "name": "トップ", "item": "https://www.zoukaichiku.com" }, { "@type": "ListItem", "position": 2, "name": "施工事例", "item": "https://www.zoukaichiku.com/works" }, { "@type": "ListItem", "position": 3, "name": "足立区", "item": "https://www.zoukaichiku.com/works/case_search/tokyo/adachiward" }, { "@type": "ListItem", "position": 4, "name": "S様邸" } ] }, { "@type": "LocalBusiness", "@id": "https://www.zoukaichiku.com/works/case_search/tokyo/adachiward/case_02#organization", "name": "増改築.com(ハイウィル株式会社)", "url": "https://www.zoukaichiku.com", "logo": "https://www.zoukaichiku.com/_p/acre/9169/images/logo.png", "telephone": "0120-246-991", "address": { "@type": "PostalAddress", "streetAddress": "西荻北2-1-9", "addressLocality": "杉並区", "addressRegion": "東京都", "postalCode": "167-0042", "addressCountry": "JP" }, "geo": { "@type": "GeoCoordinates", "latitude": 35.7054, "longitude": 139.5986 }, "areaServed": [ "東京都", "埼玉県", "神奈川県", "千葉県" ], "aggregateRating": { "@type": "AggregateRating", "ratingValue": "4.8", "reviewCount": "500", "bestRating": "5", "worstRating": "1" }, "sameAs": [ "https://www.youtube.com/@zoukaichiku", "https://www.instagram.com/zoukaichiku_com/" ], "knowsAbout": [ "戸建てフルリフォーム", "スケルトンリフォーム", "耐震リフォーム", "断熱リフォーム", "再建築不可物件" ], "foundingDate": "1917" }, { "@type": "Service", "@id": "https://www.zoukaichiku.com/works/case_search/tokyo/adachiward/case_02#service", "name": "戸建てフルリフォーム・リノベーション", "description": "築古戸建ての性能向上リノベーション。耐震等級3・断熱等級6を実現。", "provider": { "@id": "https://www.zoukaichiku.com/works/case_search/tokyo/adachiward/case_02#organization" }, "areaServed": { "@type": "Place", "name": "足立区" }, "offers": { "@type": "Offer", "price": 15000000, "priceCurrency": "JPY", "priceValidUntil": "2026-12-31" } }, { "@type": "HowTo", "@id": "https://www.zoukaichiku.com/works/case_search/tokyo/adachiward/case_02#howto", "name": "足立区でのフルリフォーム施工の流れ", "description": "足立区S様邸のフルリフォーム施工工程。工期7ヶ月。", "totalTime": "P7M", "estimatedCost": { "@type": "MonetaryAmount", "currency": "JPY", "value": 15000000 }, "step": [ { "@type": "HowToStep", "position": 1, "name": "現地調査・耐震診断", "text": "建物の現状を詳細に調査し、耐震診断を実施。上部構造評点を算出。" }, { "@type": "HowToStep", "position": 2, "name": "設計・プランニング", "text": "お客様のご要望をヒアリングし、耐震等級3・断熱等級6を目指した設計。" }, { "@type": "HowToStep", "position": 3, "name": "解体・基礎補強", "text": "既存部分の解体とベタ基礎化・基礎補強工事を実施。" }, { "@type": "HowToStep", "position": 4, "name": "構造補強・断熱工事", "text": "耐震補強(制震ダンパー含む)と高性能断熱材施工で性能向上。" }, { "@type": "HowToStep", "position": 5, "name": "内装・設備工事", "text": "内装仕上げと最新設備機器の設置。" }, { "@type": "HowToStep", "position": 6, "name": "完成・お引渡し", "text": "最終検査後、お客様へお引渡し。アフターメンテナンス開始。" } ] }, { "@type": "FAQPage", "@id": "https://www.zoukaichiku.com/works/case_search/tokyo/adachiward/case_02#faq", "mainEntity": [ { "@type": "Question", "name": "足立区でフルリフォームの費用相場は?", "acceptedAnswer": { "@type": "Answer", "text": "足立区での戸建てフルリフォームは、建物の規模や工事内容により1,000万〜3,500万円が相場です。S様邸では1500万円(税別)で、築50年・17.58坪の住宅を耐震等級3相当にリフォームしました。" } }, { "@type": "Question", "name": "フルリフォームの工期はどのくらい?", "acceptedAnswer": { "@type": "Answer", "text": "一般的な戸建てフルリフォームは3〜6ヶ月です。S様邸では7ヶ月で完成しました。スケルトンリフォームの場合は4〜6ヶ月が目安です。" } }, { "@type": "Question", "name": "耐震補強は必要ですか?", "acceptedAnswer": { "@type": "Answer", "text": "1981年以前の旧耐震基準の建物は耐震補強を強く推奨します。S様邸(築50年)でも耐震診断を実施し、耐震等級3相当への補強を行いました。増改築.comでは全棟で耐震診断を実施しています。" } } ] } ] }
隣家との距離10㎝⁉でも外壁もリノベーションしたい…

築60年の戸建てリノベーション事例

 

S様は、ハイウィル株式会社の本部である東京の日暮里より徒歩圏内のお施主様で、毎日弊社を通勤で通っていたため相談にこられました。弊社のお膝元である日暮里は下町情緒溢れる街ですが住宅が密集しているエリアでもあります。S様の相談内容は、外壁は土壁で、片側は隣家と10cm程度しか空いていないため、  他社にご相談したところ、外壁を残したままリフォームする提案しかいただけないとのことで、外壁を解体して張り替えたいのと、一部サッシも開かないところがあり建物がゆがんでいるため、しっかりと耐震補強したい。夏は暑く冬は寒く音漏れもひどいため、断熱対策や防音対策もお願いできないでしょうか?というご相談を頂きました。

建物概要
名前 S様
場所 東京都荒川区
築年数 築59年
構造種別 木造一戸建て
家族構成 大人2人 
対象面積 20.7坪
リフォーム部位 基礎補強/間取変更/断熱サッシ取替/セルロースファイバー/外壁サイディング
工期 5ヶ月
価格

1650万(税別)

お客様のご要望

今回のリフォームで、S様からのご要望は以下の7点です。

  • 2階にワンフロアでLDKを造りたい。
  • 2階には小さくても良いので畳のスペースが欲しい。
  • 1階には大きめのウォークインクローゼットが欲しい
  • 築年数が経っている建物なので耐震構造計算をして欲しい。
  • 隣家との距離が10㎝程度しかないが外壁を火事に強い耐火性能の高い外壁材で工事をしたい
  • 断熱材はご提案いただいたセルロースファイバーを採用したい。
  • 屋上のバルコニーは撤去したい。

プランナー 北畠より ~プランニングのポイント~

S様のご要望が、陽当たりの良い2階にワンルームでLDKを持ってきたいとご要望を頂き2階スペースは階段以外全てLDKワンフロアでプランをさせて頂きました。1階は洋室1部屋と、大きめのWICを設置し残りスペースに浴室・洗面・トイレを配置致しました。

『2階LDKの1角に小さくても収納が出来る畳スペースが欲しいです』とご要望頂きました。4畳の小上がりの畳スペースを設置させて頂いております。

 

 

荒川区S様邸 戸建てリノベーション施工事例テーマカテゴリー

 

  • 耐震等級3相当(上部構造評点1.5以上)リフォーム(性能向上リノベーション)
  • セルロースファイバー仕様
  • 裏打ち工法
  • 内外部スケルトンリフォーム

戸建てリノベーションの打ち合わせから着工、完成までの詳細施工事例紹介

1 戸建てリノベーション着工前

1-1 現場調査・打合せ
隣地距離15㎝!築60年耐震等級3へリノベーション|戸建てフルリフォームなら増改築.com 既存写真

既存外観

隣地距離15㎝!築60年耐震等級3へリノベーション|戸建てフルリフォームなら増改築.com 既存写真

隣家との離隔距離はわずか10㎝

S様が最もお悩みであったのが、玄関脇の隣家との離隔距離が10センチ程度しか離れていない為、老朽化している外壁を張り替えたいがどのリフォーム会社やハウスメーカーに相談しても不可能だと言われていたことでした。今回フルリフォームを検討するにあたって、やはり外壁はそのままでのリノベーション提案をうけておられました。

 

隣地距離15㎝!築60年耐震等級3へリノベーション|戸建てフルリフォームなら増改築.com 既存写真

既存屋上には屋根置きのベランダがありました。

隣地距離15㎝!築60年耐震等級3へリノベーション|戸建てフルリフォームなら増改築.com 既存写真

10㎝以上はありますが足場が建てられるロケーションではありませんでした。

逆側となる隣家との離隔距離も足場が入る立地ではなくリノベーションをする施工側からは大変手間がかかる立地であることがわかりました。


室内から玄関をみて、玄関扉の右側の壁が土壁となっており、ここを今回の戸建てリノベーションでは解体したいと強くご要望がありました。離隔距離がないため、「外壁裏打ち工法」しかないとご提案しました。

隣地距離15㎝!築60年耐震等級3へリノベーション|戸建てフルリフォームなら増改築.com 既存写真

既存玄関ドア、3枚戸です。

隣地距離15㎝!築60年耐震等級3へリノベーション|戸建てフルリフォームなら増改築.com 既存写真

玄関脇のお部屋がLDKになります。


隣地距離15㎝!築60年耐震等級3へリノベーション|戸建てフルリフォームなら増改築.com 既存写真

既存2階洋室

既存の間取りは、1階にリビング、2階に居室といった間取りでしたが、戸建てリノベーション後は日当たりのよい2階にLDKを変更したいご要望でした。

 

 

隣地距離15㎝!築60年耐震等級3へリノベーション|戸建てフルリフォームなら増改築.com 既存写真

既存1階ダインニング


既存2階より急階段で屋上に出れる作りとなっておりましたが、現状ほぼ使用していない為、今回の戸建てリノベーションを機会に、ベランダを撤去してほしいご要望を頂きました。

既存屋根の上のベランダ

2階から屋上への急階段


1-2 東京都荒川区S様邸 戸建てリノベーションプラン

  間取りの変更プラン  

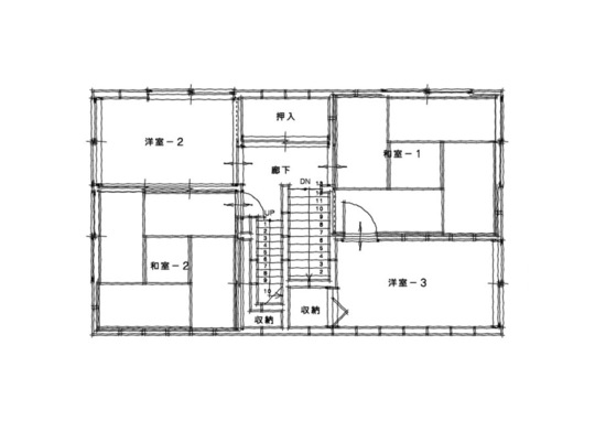
1階 既存平面図

2階 既存平面図

屋上 既存平面図

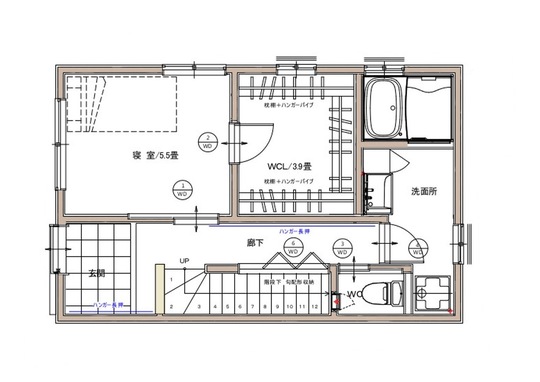
1階 新規平面図

2階 新規平面図

*既存の間取りは、建物の中央に階段が設けられており、2階の上がり口を階段で仕切り各部屋へつなぐ間取りとなっておりましたが、今回の戸建てリノベーションプランでは、階段を壁側に配置することで、2階のリビングルームをオープンになるように設計しました。

築60年東京都荒川区S様の戸建てリノベーション工事はこうしてはじまりました。

2 戸建てリノベーション着工

2-1 解体・撤去

解体は機械壊しはできませんので、手壊し作業、人力解体となります。S邸の戸建てリノベーションでは、隣家との距離がないため、一面の外壁面を部屋内から解体し、部屋内から外壁を張る、「裏打ち工法」となるため、まずは室内の天井、間仕切り壁などを解体し、躯体状態にしていきます。

隣地距離15㎝!築60年耐震等級3へリノベーション|戸建てフルリフォームなら増改築.com 解体

内装材の解体から進めていきます。

隣地距離15㎝!築60年耐震等級3へリノベーション|戸建てフルリフォームなら増改築.com 解体

既存の躯体を傷つけないように剥がしていきます。

隣地距離15㎝!築60年耐震等級3へリノベーション|戸建てフルリフォームなら増改築.com 解体

天井、内装壁が解体されました。

隣地距離15㎝!築60年耐震等級3へリノベーション|戸建てフルリフォームなら増改築.com 解体

二階天井を解体し二階母屋組が見えてきました。

解体後の躯体チェック

S様邸は内外部を解体するフルスケルトンの戸建てリノベーションとなります。外壁解体前に、内部の躯体が見えた段階で、お施主様を交え、既存の躯体状態の傷み具合を再度調査していきます。その後、簡易ではなく精密診断後の耐震補強構造計算を行っていく流れです。この段階で使えない柱や土台などを検査していきます。検査完了後、外壁を解体していきます。

隣地距離15㎝!築60年耐震等級3へリノベーション|戸建てフルリフォームなら増改築.com 解体

内部の解体後にお施主様もお呼びして、大工、構造担当技術者、施工管理者による検査を行います。

隣地距離15㎝!築60年耐震等級3へリノベーション|戸建てフルリフォームなら増改築.com 解体

外壁のみ残した状態

隣地距離15㎝!築60年耐震等級3へリノベーション|戸建てフルリフォームなら増改築.com 解体

部屋内から外壁を足した状態。

隣地距離15㎝!築60年耐震等級3へリノベーション|戸建てフルリフォームなら増改築.com 解体

外壁を部屋内から解体後。臨家の外壁が見えてきました。隣家との距離がわずか10㎝です。

隣地距離15㎝!築60年耐震等級3へリノベーション|戸建てフルリフォームなら増改築.com 解体

解体直後のシート養生をしている状態の写真です。

隣地距離15㎝!築60年耐震等級3へリノベーション|戸建てフルリフォームなら増改築.com 解体

逆側の外壁も決して十分な離隔距離があるわけでではなく解体時には外壁が飛散しないよう養生に注意を払います。

大事な構造部のすべてが目視可能となるスケルトンリフォーム

内外部のスケルトンリフォームの最大のメリットはこのような重要な主要構造部のすべての状態が目視でわかることになります。

戸建てリノベーション後は、これらの構造上の弱点をすべて修正し補強することで新築と同水準、もくしくはそれ以上の建物性能をもつ構造躯体へ甦らせることが可能となります。

2-2 基礎

構造上のチェックが終わると、構造の専門家による構造計算が行われ、その補強計画通りにS様邸戸建てリノベーションでは、基礎補強工事へと移行していきます。S様は布基礎からベタ基礎への基礎補強工事となります。隣家との距離がない為、立ち上がり筋を既存布基礎の内側に補強していきます。

隣地距離15㎝!築60年耐震等級3へリノベーション|戸建てフルリフォームなら増改築.com 基礎

ベタ基礎補強のポイントは、立上り基礎の補強筋をしっかりと等間隔で差し筋を行い既存のん無筋基礎へ緊結させることにあります。

隣地距離15㎝!築60年耐震等級3へリノベーション|戸建てフルリフォームなら増改築.com 基礎

等間隔で差し筋を行いシッカリと緊結させていきます。

隣地距離15㎝!築60年耐震等級3へリノベーション|戸建てフルリフォームなら増改築.com 基礎

間取り変更により新たに布基礎が新設させる箇所へは配筋を立ち上げます。

隣地距離15㎝!築60年耐震等級3へリノベーション|戸建てフルリフォームなら増改築.com 基礎

ベース基礎の打設が完了しました。

隣地距離15㎝!築60年耐震等級3へリノベーション|戸建てフルリフォームなら増改築.com 基礎

ベタ基礎のコンクリート打設は二度打ちとなります。ベース完了後、立上り基礎へのコンクリート打設に向け立上り枠工に入ります。

隣地距離15㎝!築60年耐震等級3へリノベーション|戸建てフルリフォームなら増改築.com 基礎

立ち上がり基礎への枠工

隣地距離15㎝!築60年耐震等級3へリノベーション|戸建てフルリフォームなら増改築.com 基礎

立ち上がり基礎へのコンクリート打設

隣地距離15㎝!築60年耐震等級3へリノベーション|戸建てフルリフォームなら増改築.com 基礎

立ち上がり基礎へのコンクリート2度打ちが完了しました。

S様邸の戸建てリノベーションではベタ基礎補強を採用しました。

ベタ基礎への変更工事をご要望されるお施主様も多いのですが、すべてのケースでベタ基礎が良いというわけではありません。

ベタ基礎は建物全体と同程度の荷重となりますので、建物の重さとのバランスもかかわってきます。足元だけ固めていても屋根を含めた建物とのバランスが悪いと大地震が起きた際にせん断力が働き、ホールダウン金物が抜けるような事態になるケースもあるからです。

大規模な戸建てリノベーションをされる際には、木造を熟知し、実績が豊富な会社へ相談することをお勧めする理由でもあります。

ベタ基礎って?

布基礎が立ち上がりとフーチングで持たせる基礎に対して、ベタ基礎は、立上りだけでなく、底板一面も耐圧盤を設け、立ち上がりと底面が一体化された鉄筋コンクリートになっている基礎をいいます。

建物の荷重を底板全体の面で受け止めるため、ベタ基礎は不同沈下を起こさない。といわれますが、それは良好な地盤での話です。

基礎の下の地盤面の地耐力が均一でない場合は、不同沈下が起こる可能性が充分あるのです。

耐震の世界では、重い瓦屋根は外して、軽いものに変えましょうと言われておりますが、それ自体は間違っていませんが、この理屈でいくと。屋根の瓦を外して、基礎はベタ基礎にしても、地盤に与える荷重は、瓦屋根以上の荷重がベタ基礎の荷重により地盤面にかかることになります。

地盤が軟弱な場合、布基礎を採用した方が有利な場合も出てきます。

戸建てリノベーションで、基礎補強をする際は、このような知識のある会社に相談することが必要です。

2-3 木工事

基礎補強工事が終わり現場は大工工事へと移行します。戸建てリノベーション工事において構造躯体の強度を担保するためのメイン工事となります。

隣地距離15㎝!築60年耐震等級3へリノベーション|戸建てフルリフォームなら増改築.com 木工事

内部の天井・壁・床・外壁までが解体され躯体だけの状態となっています。

隣地距離15㎝!築60年耐震等級3へリノベーション|戸建てフルリフォームなら増改築.com 木工事

腐食していた桁を入れなおし補強

隣地距離15㎝!築60年耐震等級3へリノベーション|戸建てフルリフォームなら増改築.com 木工事

土台周りも入れ替えです。

隣地距離15㎝!築60年耐震等級3へリノベーション|戸建てフルリフォームなら増改築.com 木工事

構造体の色を見ればわかりますが、新たに使用する構造材の方が多いのがわかります。

隣地距離15㎝!築60年耐震等級3へリノベーション|戸建てフルリフォームなら増改築.com 木工事

隣家側の間柱は仮止めし、内側より外壁材を入れる際に外しながら設置できるようにしてあります。階段スペースに沿って尺梁が補強されました。

隣地距離15㎝!築60年耐震等級3へリノベーション|戸建てフルリフォームなら増改築.com 木工事

浴室周りには硬質ウレタンで基礎断熱

隣地距離15㎝!築60年耐震等級3へリノベーション|戸建てフルリフォームなら増改築.com 木工事

内部の構造材は大幅な間取り変更によりほぼ新しい構造材に入れ替えられました。

隣地距離15㎝!築60年耐震等級3へリノベーション|戸建てフルリフォームなら増改築.com 木工事

玄関基礎周りにも硬質発泡ウレタンを充填

隣地距離15㎝!築60年耐震等級3へリノベーション|戸建てフルリフォームなら増改築.com 木工事

*外壁が内側から張られているのがわかります。(詳しくは外壁工事で解説)断熱材を入れる前に補強個所のチェックを行います。

隣地距離15㎝!築60年耐震等級3へリノベーション|戸建てフルリフォームなら増改築.com 木工事

構造耐力上、二階の階段脇に柱と梁が必要の為、補強。

2-4 断熱工事

東京都荒川区のS様の戸建てリノベーションでの断熱材は、セルロースファイバーを採用。
S様のご要望に、夏暑く、冬寒い建物なので断熱もしっかり行いたいとご要望がありました。加えて、外部への音漏れを大変気にされておられました。そこで弊社は、使用する断熱材に吸音性の高いセルロースファイバーをご提案しました。

二階の床断熱はスタイロフォームを採用

隣地距離15㎝!築60年耐震等級3へリノベーション|戸建てフルリフォームなら増改築.com 断熱

外周周り、いわゆる二階天井・外壁周りはセルロースファイバー充填による断熱改修を行いました。パンパンに盛り上がるほど圧をかけて充填します。

隣地距離15㎝!築60年耐震等級3へリノベーション|戸建てフルリフォームなら増改築.com 断熱

二階壁の充填が完了しました。二階の天井より壁の断熱が上に位置しているのは、天井に充填した際に隙間が出来て断熱欠損を防ぐための気流止めになります。

隣地距離15㎝!築60年耐震等級3へリノベーション|戸建てフルリフォームなら増改築.com 断熱

施工中はマスクをしていないと入れないほどです。

隣地距離15㎝!築60年耐震等級3へリノベーション|戸建てフルリフォームなら増改築.com 断熱

二階の天井壁のセルロースファイバー充填が完了しました。

隣地距離15㎝!築60年耐震等級3へリノベーション|戸建てフルリフォームなら増改築.com 断熱

一階の天井壁のセルロースファイバー充填が完了しました。

隣地距離15㎝!築60年耐震等級3へリノベーション|戸建てフルリフォームなら増改築.com 断熱

セルロースファイバー充填前にコンセントスイッチの位置を確定させる必要があります。

隣地距離15㎝!築60年耐震等級3へリノベーション|戸建てフルリフォームなら増改築.com 断熱

建物全体が魔法瓶状態に断熱充填された状態。工事音が外にもれなくなるのを毎回体感します。

2-5 屋根工事

S様戸建てリノベーションでは、外壁の離隔距離が10㎝程度と足場が入らないロケーションであるため、外壁リノベーションは部屋内から外壁を張る特殊工法である「裏打ち工法」を採用しました。外壁と同時に悩みとなるのが、屋根の干渉の問題です。

隣地距離15㎝!築60年耐震等級3へリノベーション|戸建てフルリフォームなら増改築.com 屋根

現状の期先を板金で押さえ雨水が垂れ流しの状態になっていました。

隣地距離15㎝!築60年耐震等級3へリノベーション|戸建てフルリフォームなら増改築.com 屋根

現状は共用で板金押さえしている状況です。

隣地距離15㎝!築60年耐震等級3へリノベーション|戸建てフルリフォームなら増改築.com 屋根

双方の建物の板金の先には共用で溝(ドブ)を使用している状態です。これを独立させたいと仰望がありました。

当初2つの建物に樋を設置する計画でおりましたが、あまりにも距離が近いため樋が干渉してしまします。そこでS様側の屋根にパタペットを作り落とし樋を設置する方法をご提案しました。

隣地距離15㎝!築60年耐震等級3へリノベーション|戸建てフルリフォームなら増改築.com 屋根

S様邸の屋根に立ち上がりを設け勾配をつけ落とし樋に雨水を流す方法です。

隣地距離15㎝!築60年耐震等級3へリノベーション|戸建てフルリフォームなら増改築.com 屋根

お隣の方にも了解を取り、既存の板金を取り換えさせていただき、つながっている板金を解体しました。

隣地距離15㎝!築60年耐震等級3へリノベーション|戸建てフルリフォームなら増改築.com 屋根

隣の方は屋根補修をさせていただき、S様宅は立ち上がりが作られ雨水が流れるよう勾配をつけました。

雨仕舞を間違えると木造では地名だとなりますので、細心の注意を払い納めます。

2-6 外壁工事

工程が前後していますが、S様が最も気がかりであった、隣家と面する外壁のリノベーション工事(裏打ち工法)です。

創業大正8年のハイウィル株式会社では東京の下町エリア、関西においても神戸、大阪での長屋などの改修でこのようなケースをたくさん見てまいりました。外壁の裏打ち工法とは、室内より外壁を内側に倒し解体し、部屋内から外壁材を設置する特殊工法です。

こちらの工法は、他のリフォーム会社より施工を依頼されることもしばしばあります。

隣地距離15㎝!築60年耐震等級3へリノベーション|戸建てフルリフォームなら増改築.com 外壁

外壁解体

隣地距離15㎝!築60年耐震等級3へリノベーション|戸建てフルリフォームなら増改築.com 外壁

部屋内より外壁の解体が完了

隣地距離15㎝!築60年耐震等級3へリノベーション|戸建てフルリフォームなら増改築.com 外壁

目の前10㎝に隣家の防火板があります。

隣地距離15㎝!築60年耐震等級3へリノベーション|戸建てフルリフォームなら増改築.com 外壁

10㎝のため、工具も入らない状態です。

隣地距離15㎝!築60年耐震等級3へリノベーション|戸建てフルリフォームなら増改築.com 外壁

一階より一枚ずつ上へ張り込んでいきます。

隣地距離15㎝!築60年耐震等級3へリノベーション|戸建てフルリフォームなら増改築.com 外壁

450㎜ピッチで金具で固定していきます。

隣地距離15㎝!築60年耐震等級3へリノベーション|戸建てフルリフォームなら増改築.com 外壁

外壁材の張り込みが完了しました

隣地距離15㎝!築60年耐震等級3へリノベーション|戸建てフルリフォームなら増改築.com 外壁

正面の外壁も完成

2-7 内装仕上げ工事

構造部の構造補強が終わると、造作工事に入ります。

隣地距離15㎝!築60年耐震等級3へリノベーション|戸建てフルリフォームなら増改築.com 仕上げ

断熱材の充填チェックが終わると造作工事入ります。

隣地距離15㎝!築60年耐震等級3へリノベーション|戸建てフルリフォームなら増改築.com 仕上げ

建具や床の仕上げ材がどんどん搬入されてきます。ここからはスピードが一気に上がってきます。

隣地距離15㎝!築60年耐震等級3へリノベーション|戸建てフルリフォームなら増改築.com 仕上げ

***

隣地距離15㎝!築60年耐震等級3へリノベーション|戸建てフルリフォームなら増改築.com 仕上げ

内装工事も進んでいきます。内装工事の仕上がりも下地工事がすべてのため前工程の木工事が重要なのです。

隣地距離15㎝!築60年耐震等級3へリノベーション|戸建てフルリフォームなら増改築.com 仕上げ

階段の勾配も既存の勾配より緩勾配となりました。

隣地距離15㎝!築60年耐震等級3へリノベーション|戸建てフルリフォームなら増改築.com 仕上げ

一階の洋室も完成です。

3 戸建てリノベーション竣工

東京都荒川区S様邸の戸建てリノベーションもいよいよお引渡しの時を迎えました。約5か月の工事を経ていよいよ竣工です。
S様邸の様子をご紹介します。


  =外観==  

隣地距離15㎝!築60年耐震等級3へリノベーション|戸建てフルリフォームなら増改築.com 外観

外壁はサイディング仕上げです。

フォームなら増改築.com 外観

ケイミューネオロック親水16 NW4532Aニューリッジウェーブ MWビバベージュ


  == 1F エントランス・玄関 ==  

隣地距離15㎝!築60年耐震等級3へリノベーション|戸建てフルリフォームなら増改築.com 外観

玄関ドア LIXILエルムーブ L19型

隣地距離15㎝!築60年耐震等級3へリノベーション|戸建てフルリフォームなら増改築.com 竣工

S様にも大変お喜びいただけました。


  == 1F LDK ==  

隣地距離15㎝!築60年耐震等級3へリノベーション|戸建てフルリフォームなら増改築.com 竣工

キッチンはトクラス社のハイウィルオリジナルキッチン

隣地距離15㎝!築60年耐震等級3へリノベーション|戸建てフルリフォームなら増改築.com 竣工

畳の小上がりです。収納スペースになっています。

隣地距離15㎝!築60年耐震等級3へリノベーション|戸建てフルリフォームなら増改築.com 竣工

玄関の上の位置に収納を作っています。

Before
隣地距離15㎝!築60年耐震等級3へリノベーション|戸建てフルリフォームなら増改築.com 既存

既存建物は、弊社ハイウィルの地元でもある荒川区の日暮里エリアです。このあたりは下町で賑やかですが建物が密集しているエリアでもあり、長屋なども多く今回のS様の建物も両隣足場を掛けるスペースがありませんでした。

 


  == 階段 ==  

隣地距離15㎝!築60年耐震等級3へリノベーション|戸建てフルリフォームなら増改築.com 既存
Before
隣地距離15㎝!築60年耐震等級3へリノベーション|戸建てフルリフォームなら増改築.com 既存

既存階段急勾配でした。新規階段は緩やかな勾配です。位置も間取りに合わせて変わっています。

隣地距離15㎝!築60年耐震等級3へリノベーション|戸建てフルリフォームなら増改築.com 竣工

階段は緩やかな勾配です。

隣地距離15㎝!築60年耐震等級3へリノベーション|戸建てフルリフォームなら増改築.com 竣工

階段とセットの手摺を設置しています。


  == 1F 和室・洋室 ==  

隣地距離15㎝!築60年耐震等級3へリノベーション|戸建てフルリフォームなら増改築.com 既存
隣地距離15㎝!築60年耐震等級3へリノベーション|戸建てフルリフォームなら増改築.com 竣工

1階に大きめのWICです。

隣地距離15㎝!築60年耐震等級3へリノベーション|戸建てフルリフォームなら増改築.com 竣工

1階WIC内に、枕棚とハンガーパイプを設置しています。


  == 1F 水まわり ==  

隣地距離15㎝!築60年耐震等級3へリノベーション|戸建てフルリフォームなら増改築.com 竣工

Before

隣地距離15㎝!築60年耐震等級3へリノベーション|戸建てフルリフォームなら増改築.com 既存

既存キッチン

隣地距離15㎝!築60年耐震等級3へリノベーション|戸建てフルリフォームなら増改築.com 既存

既存浴室

隣地距離15㎝!築60年耐震等級3へリノベーション|戸建てフルリフォームなら増改築.com 既存

既存洗面室

隣地距離15㎝!築60年耐震等級3へリノベーション|戸建てフルリフォームなら増改築.com 既存

既存トイレ

キッチン
隣地距離15㎝!築60年耐震等級3へリノベーション|戸建てフルリフォームなら増改築.com 竣工

トクラスハイウィルオリジナル

浴室
隣地距離15㎝!築60年耐震等級3へリノベーション|戸建てフルリフォームなら増改築.com 竣工

LIXIL アライズ

洗面室
隣地距離15㎝!築60年耐震等級3へリノベーション|戸建てフルリフォームなら増改築.com 竣工

LIXIL ピアラ

トイレ
隣地距離15㎝!築60年耐震等級3へリノベーション|戸建てフルリフォームなら増改築.com 竣工

ハイウィルオリジナル


  == 2F 洋室 ==  

Before
隣地距離15㎝!築60年耐震等級3へリノベーション|戸建てフルリフォームなら増改築.com 既存

対面式にI型キッチンを納めています。

隣地距離15㎝!築60年耐震等級3へリノベーション|戸建てフルリフォームなら増改築.com 竣工

2階LDKの奥に畳が丘を設置しました。



4 担当者より(ハイウィル株式会社・大谷正浩)

 

Sさまは、弊社ハイウィルの本社の徒歩圏内にお住いの方で、Sさまは通勤で毎日弊社を通って通勤されておられたようで、ご相談に来られました。お母様とお二人住まいでおられましたので、当初はお母様が半年以上前にハウスメーカーや折り込みチラシのリフォーム会社さまに今回の戸建てリノベーションの相談をされていたようです。金額面やプランを含め、今回のように足場が建たないロケーションでの外壁リノベーション(裏打ち工法)、そして何よりも基礎補強をしてくれる会社が1社もいなかったとのことで、半年間ご計画が止まっていたようでした。「まさかこんな近所にこんな会社があったなんて!」とおっしゃられておりましたが、ハイウィルでは折り込みチラシや巨大な展示場はありませんので、仕方ありません(笑)ハイウィル株式会社では、旧耐震基準の建物については、例外なく基礎補強をご提案しております。それは、上部の構造体をいくら補強しても、基礎から上部構造体が抜けてしまえばその耐震は絵に描いた餅となってしまうからです。S様には耐震・断熱面で新築の最高基準の性能でお引渡しをすることが出来ました。S様、この度はご依頼をいただき、誠にありがとうございました。

全国のフルリフォーム・リノベーション『ピックアップ事例』※プロの詳細解説付きレポート

HEAT20-G2/耐震等級3
新耐震基準の性能向上リノベーション
築30年ハウスメーカー軽量鉄骨
断熱改修&リノベーション
 
中古住宅を新築以上の耐震性能と断熱性能へ!
耐震等級3フルリフォーム
地下付き木造2階建て
自然素材をつかった性能向上リノベーション&フルリフォーム

東京都文京区 K様邸

長屋を切り離して1つの構造体へフルリフォーム&リノベーション
隣家との距離がない!
部屋から外壁を張り替えるフルリノベーション
中古住宅を耐震等級3へ!
中古住宅リノベーション
 
基礎がない??
築60年の古屋をジャッキアップで基礎新設フルリノベーション

東京都渋谷区 O様邸

戸建てリノベーション・リフォームに関するお問合せはこちら

増改築.comの一戸建てリフォーム専用ホームページに
お越しいただき、誠に有難うございます。
 
増改築.comメンバーは技術集団となり、
他社のような営業マンがおりません。
技術者が直接ご相談にのり問題解決を行います。
 
従いまして、
お客様の方である程度のご要望が整理されました段階、
お悩みが工事内容のどのようなところにあるのか?
ご予算がどの程度絞る必要があるのか?
など明確になった段階でのご相談をお願いしております。
お問合せ・ご相談はお電話・メールにて受け付けております。
メールの場合は以下のフォームに必要事項をご記入の上、
「送信する」ボタンをクリックをお願いします。

代表稲葉高志

戸建てリノベーションの専属スタッフが担当致します。
一戸建て家のリフォームに関することを
お気軽にお問合せください

よくあるご質問
  • 他社に要望を伝えたところできないといわれたのですが・・・
  • 他社で予算オーバーとなってしまい要望が叶わないのですが・・・
  • サービスについて詳しく聞きたいのですが・・・

どのようなお悩みのご相談でも結構です。

あなたの大切なお住まいに関するご相談をお待ちしております。

営業マンはおりませんので、しつこい営業等も一切ございません。

設計会社(建築家様)・同業の建築会社様のご相談につきましては、プランと共にご指定のIw値及びUa値等の性能値の目安もお願い申し上げます。

2026年の大型補助金が確定したことで現在大変込み合っております。

耐震性能と断熱性能を向上させるフルリフォームには6か月~7か月の工期がかかります。

補助金獲得には年内に報告を挙げる必要があることから、お早目にご相談をお願いいたします。(6月着工までが目安

ご提案までに大変お時間がかかっております。ご了承のほどお願い申し上げます。

(5月までの着工枠が埋まりました)・・・2026/03/01更新

※すでにプランをお持ちのお施主様・設計資料をお持ちのお施主様は内容をフォームで送信後、フォーム下のメールアドレスに資料をお送りください。対応がスムーズです。

必須

(例:増改築太郎)

必須

(例:contact@high-will.co.jp)

(例:03-5615-2826)

必須

(例:東京都荒川区西日暮里2-35-1)

(例:築40年)

(例:25坪・100㎡など)

(例:2000万程度など)

  • ※再建築不可のリフォームでは金融機関が限られます。事前審査をお勧めいたします。

    (例:2024年3月くらいに完成希望など)

    必須

    できるだけ具体的にお知らせくださいませ。既存設計資料、リフォーム後のイメージ図等をお持ちであれば下記のメールアドレスより添付をお願いします。

    ※次の画面がでるまで、4~5秒かかりますので、
    続けて2回押さないようにお願いいたします。

    ※次の画面が出るまで、4〜5秒かかりますので、
    続けて2回押さないようにお願いいたします。

    図面や写真等を送信いただく場合、また入力がうまくいかない場合は、上記内容をご確認のうえ、下記メールアドレスまでご連絡ください。

    お電話でのお問合せはこちら

    0120-246-991

    営業時間:10:00~17:00(土日祝日を除く)

    ★YouTube「増改築.comチャンネル」チャンネル登録して新動画解説をいち早くGET!!★
    「増改築.comリノベ診断」であなたに一番ふさわしいフルリフォームを診断!!(動画解説付き)
    ★Facebookページにいいね!を押して最新コンテンツ情報をいち早くGET!!★
    パソコン|モバイル
    ページトップに戻る