戸建フルリフォームなら「増改築.com®」TOP > 施工事例 > 都道府県で探す東京都荒川区 > 施工事例 H様 耐震等級3へフルリフォーム&リノベーション

耐震等級3(Iw値1.5)へのフルリフォーム(スケルトンリフォーム)事例

東京都荒川区で築40年の戸建てを耐震等級3へ耐震補強。リノベーションで新築性能へ

豊中市H様邸_TOP
豊中市H様邸_竣工
豊中市H様邸_竣工
豊中市H様邸_竣工
建物概要
名前 H様
場所 東京都荒川区
築年数 築40年
構造種別 木造戸建
家族構成 大人2人
対象面積 23.29坪
リフォーム部位 間取変更/断熱サッシ取替/外壁サイディング/セルロースファイバー/耐震等級3/屋根葺き替え/外構
工期 6ヶ月
価格 2500万

お客様のご要望

 

・地震が不安なので耐震等級3での耐震補強をして欲しい。というご要望から工事スタートした矢先の2018年6月18日に震度6の大阪府北部地震が発生。

・通り沿いの為、防音対策を兼ねて、断熱材はセルロースファイバーを使用したい。

・ご夫婦お二人住まいでご主人が出張が多い為、防犯面には考慮してほしい。

・夏暑く冬寒い為、サッシは全て断熱仕様のサッシへ取替したい

・床下を布基礎からコンクリート土間へ

・外壁はサイディングにしたい。

 

荒川区でH様のご両親が建て、建物を娘であるH様が引き継がれ、使いにくい間取りと設備機器の老朽化もあり、このたびフルリフォーム&フルリノベーションを計画した。

プランニングのポイント

H様は弊社の川崎市T様の施工事例をご覧頂いてお問合せを頂きました。

 

『施工事例T様と同じくらいの戸建て住宅なので、同じ様にできますか?』とご要望を頂きました。

T様の施工事例をご覧頂いて、どの様な個所が気に入られたのかをヒアリングし、H様の生活と合わせた提案をさせて頂きました。

H様のご実家を今後のライフスタイルに合わせて、断熱性・耐震性・防犯性を最優先に工事内容もご提案をさせて頂きました。

 

耐震等級3を構築する耐震ガゼットを設置後の2018年6月18日に、マグニチュード6.1、震度6を観測したあの大阪北部地震が発生しました。

 

頑強な躯体に全く影響はでず、高い耐震性能を実証させていただくことができました。

 

 

東京都荒川区H様邸 戸建てリノベーション施工事例テーマカテゴリー

 

  • 耐震等級3相当(上部構造評点1.5以上)リフォーム(性能向上リノベーション)
  • セルロースファイバー仕様
  • 内部スケルトンリフォーム+サッシ交換

打ち合わせから着工、完成までの詳細施工事例紹介(大阪府豊中市H様邸)

1 着工前

1-1 現場調査・打合せ

H様は数年前よりこちらの「増改築com」をご覧いただいておられたお客様です。

 

ご両親が残した木造一戸建てを何とか残しつつ、暮らしやすい間取りで、この先長期間安心して暮らしていける建物にしたいとご要望がありました。

 

豊中市H様邸_施工前

既存建物正面

豊中市H様邸_施工前

ベランダにはアルミフェンスとなっていましたが躯体壁でのバルコニーをご要望されました。

築40年の建物、今回のような、大幅な間取り変更をするフルリフォームはしていないとお聞きしました。

 

外壁は数年前に塗装をしているとのことで過去2度ほど外壁は塗装していることがわかり、外壁のクラックによる構造躯体への雨水侵入は、問題ないと現地調査で判断しました。

 

外壁を剥がすほうが良いと判断するケース、内外部をすべてスケルトンにする、内外部スケルトンリフォームではなく、内部のスケルトンリフォームで、安心できる建物が施工できることがわかりました。

豊中市H様邸_施工前

既存建物裏側。既存の建物には
勝手口がありますがこちらは塞ぐご要望をいただきました。

豊中市H様邸_施工前

既存基礎はシュミットハンマーにてコンクリート強度を検査します

H様邸のフルリフォームでは、耐震等級3への耐震補強が決まっていました。

既存の基礎と壁倍率6.3倍の耐力壁を結合させるため、基礎のコンクリート強度をテストして増し基礎が必要かどうかを検証したところ、鉄筋基礎であることが判明しました。

もともと湿気防止にベタ基礎にしてほしいとのご要望がありましたが、立ち上がり基礎が必須のベタ基礎補強ではなく土間打ちでご提案させていただきました。

豊中市H様邸_施工前

既存の在来浴室

豊中市H様邸_施工前

既存脱衣所

築40年の浴室。

「補修をしながらなんとか使用来て来ました」とお伺いしました。

 

しかしながら目地にどうしてもクラックが入り、水が浸水している状態でした。

 

脱衣所と浴室間の土台は差し替えが必要と判断しました。

豊中市H様邸_施工前

既存トイレ

豊中市H様邸_施工前

既存台所

階段下のトイレは、今回のフルリフォーム後には、階段の上がり口となり、フルリフォーム後の階段下スペースは、自転車をいれるスペースとなります。

 

昭和50年代後半にかけて建てられた建物であると、間取りや仕様建材をみているとよくわかります。

豊中市H様邸_施工前

既存洋間。勝手口がありました。

豊中市H様邸_施工前

既存の階段との位置はほぼ変わらないですが、向きが真逆となります

この時代に流行った化粧板張りの洋間。

勝手口はフルリフォーム後には、塞ぐプランとなりました。

 

既存の階段の上がり口スペースは、玄関に自転車を設置するスペースをプランしました。

豊中市H様邸_施工前

既存1階廊下

豊中市H様邸_施工前

何度も打ち合わせをさせていただいた一階の和室です

廊下と居室の割り付けは、フルリフォーム後の間取りでも変更はせず、和室とつながる台所をつなげLDKにする配置としました。

豊中市H様邸_施工前

既存2階ベランダへつながる洋室

豊中市H様邸_施工前

既存2階の中央洋室

一人でお住まいだったH様は、ほとんど二階は使っていないという状態でした。今回のリフォームは、内部をすべて解体するスケルトンリフォームのため、間取り変更の自由度は高く、寝室と大きなクローゼット代わりに使用する洋室を提案させていただきました。

豊中市H様邸_施工前

既存2階の奥にあたる洋間

豊中市H様邸_施工前

既存小屋組 しっかりと施工されていることがわかりました。

H様のご両親が、「地元の腕利きの大工に建ててもらった」と聞いておりましたが、小屋組はしっかりと作られ、あらゆる仕口には、当時では珍しく金物も施工されていました。

 

1-2 東京都荒川区H様邸 戸建リノベーションプラン
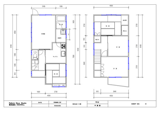
豊中市H様邸_施工前平面図

既存平面図

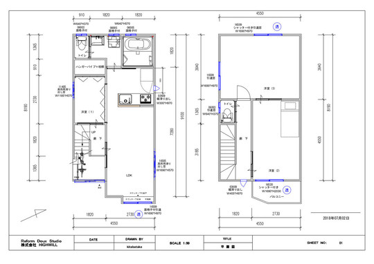
豊中市H様邸_新規平面図

フルリフォーム後平面図

豊中市H様邸_リフォーム後3D

外観イメージパース

豊中市H様邸_リフォーム後3D

外観イメージパース

豊中市H様邸_リフォーム後3D

1階LDKイメージパース

豊中市H様邸_リフォーム後3D

1階LDKイメージパース

豊中市H様邸_リフォーム後3D

2階洋室イメージパース

豊中市H様邸_リフォーム後3D

2階洋室イメージパース

車や人通りに面している家なので、寝室は安全性を優先して、2階に設置させて頂きました。

 

1階には大きくLDKと水周りをゾーニングしました。

コスト面を考慮し、極力サッシは既存と同じ位置でプランをさせて頂いております。

 

H様の耐震等級3への戸建て内部スケルトンリフォーム、戸建リノベーション工事はこうしてはじまりました。

 

2 着工

2-1 足場・解体

 

近隣挨拶が終わり、いよいよ着工となりました。

 

今回のH様戸建フルリフォームは、内部スケルトンリフォームでの間取りの変更が主題となっておりますが、耐震等級3という、リフォームではほぼ事例のない、耐震性能向上がポイントとなります。

 

※新築でも耐震等級3で施工されている建物はまだまだ少ない現状である中で、築40年の構造体の耐震性能を格段に上げるために、許容応力度計算をして、耐力を綿密に計算し、その計算に基づき工事をしていく流れとなります。

 

外部への壁倍率6.3倍の補強ガゼットを必要箇所で設置し、偏心率も下げ計画をしました。

 

豊中市H様邸_解体

仮設足場を架けていきます。

豊中市H様邸_解体

養生シートを張ります

外部工事で絡んでくる工事は、屋根工事にはじまり、補強ガゼット設置のための外壁剥離解体と、既存サッシから断熱サッシへの変更による窓周り解体から窓サッシの設置、壁倍率6.3倍の補強ガゼットの設置、その後防湿シート張り、ガルバリウム鋼板張りで足場をフル活用します。

豊中市H様邸_解体

サッシ開口、補強ガジェット設置箇所の外壁を解体する必要があるためその部分へは隣家への影響を検討しメッシュではなく防煙シートを使います。

豊中市H様邸_解体

足場が架かり、サッシ交換のため外壁にカッターを入れました。

 

 

補強ガゼットの設置位置は、モルタル外壁の剥離が必要になり、モルタルへカッターを入れる解体の際に、かなりの粉塵が舞うことから、

防煙シートも張ります。

 

H様邸の戸建てフルリフォーム時には、台風が多い年であったことから、台風の予報をみては、何度も養生シートを仕舞いにいきました。

豊中市H様邸_解体
豊中市H様邸_解体

内部の天井・壁・床の解体が終わり、構造躯体が見えてきました。

 

スケルトンリフォームの際に、解体後真っ先に着手するのが、屋根の野地板の増し張りです。

 

屋根の下地となる野地板を構造用合板へ張り、ルーフィングまで行います。

 

今回のH様邸では、内部スケルトンリフォームであったため、内部を躯体の状態まで解体していきます。

 

これらは機械が入らないため、すべて手壊しとなります。

豊中市H様邸_解体

既存は布基礎となっていました。こちらは土間コンクリート打ちを予定です。

豊中市H様邸_解体

構造躯体(スケルトン状態)になると既存の配線が出てきますが、こちらはすべてやり替えとなります。ベタ基礎への基礎補強前に先行して排水の配管工事を行います。

 

 

解体が終わり、躯体が現れてきました。

風呂周りの土台が予想通り傷んではおりましたが、その他は、この年代にしては、しっかりと建てられていました。

通し柱が腐っていたり、主要な梁までがシロアリの被害にあっていたりなどさまざまな現場を見ていますが、H様の建物は、しっかりと施工がされていたことがわかります。

2-2 基礎

解体が終わると、基礎工事に入ります。

布基礎の内側や外側に、添えて補強する添え基礎(増し基礎・抱え基礎)で補強する補強法もありますが、検査結果が鉄筋コンクリート基礎であったため基礎補強ではなくベースのみ打設としました。

H様宅の地盤は、比較的地盤の強いエリアということもありベース打ちを選択しました。

 

軟弱地盤にベタ基礎補強やベースコンクリート打設をしてしまいますとコンクリートの重さから、かえって地震力を受けるため、軟弱地盤では抱え基礎を選択するのがセオリーとなります。

まずは、レベルをしっかりと出し、鋤取りをしていきます。その後転圧をします。

 

豊中市H様邸_基礎

鍬取り後転圧をかけていきます。

豊中市H様邸_基礎

転圧後に防湿シートを張っていきます。

防湿シートはしっかり重ね厚をとり、破れたりしないよう注意して張り込んでいきます。

豊中市H様邸_基礎

重ね厚をしっかりととるのがポイント。テープで固定していきます。

豊中市H様邸_基礎

既存布基礎への差し筋を施工していきます。

防湿フィルムはしっかりとテープで止めていきます。

この後の配筋で防湿フィルムに穴があいてしまったり傷がついてしまう場合がありますが、そのような場合もテープでしっかりと塞ぐことが大切です。

豊中市H様邸_基礎

200mmピッチで差し筋をした後は配筋工事です。

豊中市H様邸_基礎

コンクリート打設前の配筋が完了

既存の布基礎へ200mmピッチで孔をあけD13の鉄筋を差し筋し配筋工事に入ります。

豊中市H様邸_基礎

千鳥状に配筋をしていきます。D13を200mm間隔で配筋していきます。

豊中市H様邸_基礎

縦横200mmとなっています。

配筋の際の注意点は、縦筋の定着部分とスラブ筋などの継手が、重なる際に多重結束をしてしまうことです。

このようなケースでは鉄筋とコンクリートの付着不良を起こす恐れがありますので注意をします。

豊中市H様邸_基礎

排水の逃げ配管後に鉄筋の配筋。新たに間仕切りができる箇所には、新たな布基礎用に立ち上がりの配筋を施工します。

豊中市H様邸_基礎

コンクリート打設後。既存布基礎との緊結、新たに布基礎も立ち上がりました。

排水の先行配管があり、注意が必要になるのが、基礎底盤のスラブ筋の下のかぶり厚になります。

配管をしている部分にスラブ筋を切断しないよう注意が必要です。

 

 

2-3 大工工事

 

N様邸フルリフォームでは、内部のスケルトンリフォームを選択しました。

 

外部を剥がさず内部の構造補強後に、外壁より耐震等級3への耐震補強工事をすることになっております。

 

一般住宅では新築であっても、構造計算の義務が定めれておりませんので、ザル法となっているのが現在の建築業界ですが、弊社では、スケルトン(躯体)状態にするような、大規模な戸建てフルリフォームの場合、許容応力度計算をし、補強計画がたてております。

 

補強法は構造計算に基づき実施されるため、基礎と木工事への指示が必要となりますので、軸組図を作成し、図面通りに施工の指示を出します。

 

豊中市H様邸_大工工事

2階床伏図・小屋伏図

既存の柱の位置、抜く柱の位置、新たな間取り変更で必要になる新設柱、梁補強が必要な箇所を明確にします。

 

今回のの梁補強では1階に4箇所、2階に3箇所の梁補強が必要になることがわかります。

豊中市H様邸_大工工事

2階床梁補強図・小屋梁補強図

今回の東京都足立区の事例では、梁補強は充腹梁としました。

充腹梁の詳細を明記し許容応力度計算通りに正確な施工法も明記していきます。

豊中市H様邸_大工工事

充腹梁部材詳細図

充腹梁の制作当たり、制作に漏れがないよう、許容応力度計算の耐力を保持できるよう計算の数字が充たされる金物を指定し指示をします。

打ち込むビスの間隔や本数も指定します。

基礎工事が完了すると、↑の指示図面に基づき、大工との綿密な現場打ち合わせが始まります。

 

解体前に予想していた既存の構造躯体と整合性がとれているか。傷み具合を含めて再度全体をみていきます。

豊中市H様邸_大工工事
豊中市H様邸_大工工事

抜く柱に×をいれ、新規で柱が新設させる箇所へも墨を入れていきます。

豊中市H様邸_大工工事

1階Y3通りの充腹梁の制作に着手

豊中市H様邸_大工工事

抜いた柱を仮で支えながらかすがいで既存躯体と新たな梁を接合させます。

豊中市H様邸_大工工事

補強図X2通りの縦方向への補強は集成材を使用し指示に基づきかすがい打ちをします。

豊中市H様邸_大工工事

2階のY3通り充腹梁制作、既存梁下端へ105角の構造材
を固定し充腹梁の下地をつくります。

豊中市H様邸_大工工事

今回の梁補強で最もスパンの長い2階小屋梁(Y8)は2.5間のスパンとなります。

豊中市H様邸_大工工事

既存小屋梁と新規梁の金物補強が完了すると
側面への力板張りに着手していきます。
写真の右側より張り始め300mmの梁背の充腹梁が完成します。
裏側の力板は逆側(写真左側)から張るのが力を分散させるためのセオリーとなります。

豊中市H様邸_大工工事

メインとなる2.5間の充腹梁が完成まであと一歩です。
梁の強度を最大化するためには、等間隔でのくぎ打ちが必須となります。
打ち込むピッチを守るためにシールを張り漏れなきようにすることが
大切です。

豊中市H様邸_大工工事

力板へのくぎ打ちが終わりました。最後に忘れてはならないのが、
梁下端に設置する短冊金物になります。
地震の際に梁へ最も力がかかるのは梁の下端になりますので、
ここを補強します。

豊中市H様邸_大工工事

1階Y3通りの充腹梁も完成しました。

豊中市H様邸_大工工事

1階Y3を逆から見た様子。

構造体の補強は、耐震補強という観点から、戸建フルリフォーム、戸建てリノベーションでは、最も重要な工程になります。

 

こちらの建物は、許容応力度計算をして金物1つにまで耐力計算をしております。

 

熟練大工が担当するパートになりますが、正しい耐震補強工事では、大工の勘で補強することは許されません。

 

耐震補強では国で定めれている納め方が決まっているのです。

 

大半の工務店やリフォーム会社、もっと言えば大手までもが、これらを遵守して施工していない会社が事実としてあります。

 

「増改築com」を運営するハイウィルでは、不安な構造体が、今なお新築で立て続けられている理由は、建築基準法での四号特例と呼ばれる規定であると考えています。

 

最も多く建てられている、居住用の木造二階屋の建築確認に、構造計算しなくてよいという例外措置が、弱い建物を増産しているのです。

 

高度経済成長での大量生産時代に、このような例外規定は必要であったのでしょうが、大量消費時代は終わり、個別受注生産の時代となっている今なおこの例外規定があることが不思議です。

 

そのため新築で不要とされているこの構造計算(許容応力度計算)をリフォームで実施する会社は、大手リフォーム会社でもゼロと言ってよいでしょう。

 

耐震等級3の躯体にするためには、許容応力度計算なしには実現することは不可能なのです。

豊中市H様邸_大工工事
豊中市H様邸_大工工事

今回の東京都足立区での木工事では、許容応力度計算に基づく耐震等級3(評点1.5)への補強計画の一部となる梁補強工事となりました。

 

そもそも、リフォームで許容応力度計算をしている会社は、先述した通り、新築ですらしなくてよい規定になっている現状から見たことがないのですが、新築での最高基準となる耐震等級3グレードをクリアするためには必要となります。

 

柱を抜いて梁を架ける。その際に既存梁の下端に、8寸梁、尺梁を入れる方法もあります。

 

今回充腹梁を採用した経緯として、天井高の問題がありました。

 

8寸梁や尺梁を入れてしまうと、天井から梁型がどうしても出てきてしまいす。

 

今回は少しでも梁型が出ないようにしたいという施主の要望もあり、充腹梁を採用しました。(手間はかかります)

 

充腹梁はのメリットとして、金物で接合する既存梁の梁背(梁の背の高さ)を含んで耐力計算をするため、一体化させ接合する新規梁材の高さは、あらたに新設する梁よりも背が低くてすむのです。

 

その為、天井高が高く取れるメリットがあるのです。

豊中市H様邸_大工工事

通常の梁補強では天井から梁型が出てしまう梁補強が充腹梁の採用により天井裏に梁を隠すことができました。

豊中市H様邸_大工工事

2階のメインの2.5間スパンの充腹梁は、
梁背自体が高く天井から一部梁型がでました。
本来であればここに20㎝近くの梁型が出てしまします。
2階のもう一方の1.5間の充腹梁はセルロースファイバー断熱層
の中に納まりました。

豊中市H様邸_大工工事

既存柱3本を抜き、許容応力度計算を元に充腹梁補強

 

2-4 耐震補強工事(耐震等級3)

 

H邸の戸建てフルリフォームでは、リフォームではほぼ実施している会社はない許容応力度計算を実施し、新築での最高耐震等級となる耐震等級3の構造計算をしております。

 

耐震補強での評点でいう1.5での計算になります。

 

施工法は、9mmの構造用合板の4隅に構造補強ガゼットを耐力壁へ設置。

 

既存の布基礎へは、アラミド繊維を金属プレートと緊結しアラミド繊維付きの金属プレートをあと施工アンカーで布基礎へ固定します。

 

無筋基礎のケースでは、このプレートを既存基礎と増し基礎の間へ固定しますが、H様邸においては、無筋基礎ではなかったためあと施工アンカーでの結合となりました。

 

この工法での補強法により。壁倍率は6.3倍となります。下記のような指示図に基づき施工していきます。

豊中市H様邸_耐震補強工事

基礎連結補強耐力壁設置図

豊中市H様邸_耐震補強工事

基礎一体化耐力壁の指示があった箇所への外壁のカッター入れを行っていきます。

豊中市H様邸_耐震補強工事

粉塵が出るためしっかりとした養生が必要です。

この工法での補強法にはさまざまな方法がありますが、H様邸においては、スタンダードな方法での補強工事となりました。構造計算で指示がある耐力壁部分のモルタル外壁をカッターで剥がしていきます。

豊中市H様邸_耐震補強工事

1階階段奥には構造計算上どうしても必要な場所となりました。こちらに壁倍率6.3倍の補強耐力壁を設置しました。

豊中市H様邸_耐震補強工事

外回りも設置していきます。通常の耐震補強法との最大の違いは、基礎と耐力壁を一体化させる補強法(工法)であるということです。

外部からだけでの補強を目指しましたが、玄関の突き当り部分、階段の上がり面に、構造計算上どうしても6.3倍の耐力壁が必要であることから、室内への設置もしていきます。

 

釘等の金物はすべて指定品を使用し、ビスを打つ間隔、数も守るために、シールを張り打ち込み間隔を遵守させます。

豊中市H様邸_耐震補強工事

カッターを入れた2階の指定の壁にも設置していきます。

豊中市H様邸_耐震補強工事

1階と2階を補強ガゼットが連結し、一体化します。

1階と2階に連続して構造補強ガゼットを設置する場合、桁での固定をし、補強ガゼット同士を固定します。

これがホールダウン金物と同様の働きをするのです。

 

つまり、基礎から一階、2階までを固定結合してしまう工法になります。

豊中市H様邸_耐震補強工事

基礎と耐力壁を結合させるのがアラミド繊維となります。プレートを基礎にあと施工アンカーにより固定します。

豊中市H様邸_耐震補強工事

基礎にハンマードリルで孔を空けこのグリップアンカーを打ち込み閉鎖金物で本付します。

基礎と耐力壁を結合するためのパーツは、ホールダウン金物と同じ意味を持ちます。

 

土台と基礎を結合するのがホールダウン金物ですが、この方法では、耐力壁自体を基礎と結合させる工法のため強い構造体となるのです。

 

豊中市H様邸_耐震補強工事

ハンマードリルで開孔しグリップアンカーを4mm出し、閉鎖金物で固定。あと施工アンカー完了しました。

豊中市H様邸_耐震補強工事

エポキシ樹脂接着剤で補強ガゼットとアラミド繊維を接着します。

基礎への結合が完了しました。アラミド繊維にエポキシ樹脂接着剤を塗布し、構造補強ガゼットを固定します。

豊中市H様邸_耐震補強工事

30Knのアラミド繊維と補強ガゼットを結合、基礎と耐力壁が一体化

豊中市H様邸_耐震補強工事

最後に補強ガゼットを本締めしていきます。この際にアラミド繊維にテンションを加え上に引っ張り固定します。

一間のスパンで設置された補強ガゼット。最後に重要なのが、ガゼットの中央にある孔。

この穴にボルトを打ち込むことでテンションがかかる構造になっておりますので、金物を本締めした先にガゼットが↑に引っ張られ完成となります。

豊中市H様邸_耐震補強工事

ハンマードリルでグリップアンカーを打ち込むための孔をあけます。深さ82mmで指定をしています。

指定の構造補強ガゼット設置位置には、同様に、あと施工アンカーで基礎補強をしていきます。

 

補強ガゼットの設置が完了し、築40年の建物が耐震等級3の構造体として生まれ変わりました。

 

 

 

2-5 断熱工事

H様邸で採用された断熱材はセルロースファイバーです。

当初は高性能グラウスウールでのご提案をさせていただいておりましたが、吸音実験でセルロースファイバーの吸音効果を体感され、セルロースファイバーの採用となりました。

豊中市H様邸_断熱

セルロースファイバー充填

豊中市H様邸_断熱

壁から充填していきます。

セルロースファイバーは、外周面の2階天井、1階、2階の外周周りをすべて充填していきます。

 

工事側でのセルロースファイバー充填の注意点は、工程として一番早いタイミングで設置されるシステムバスを設置する前に、浴室側の充填を行うという点です。

浴室面のみセルロースファイバーが充填できないと、せっかくの断熱性能は絵に描いた餅となってしまうからです。

 

セルロース充填できる壁下地を作るまでには、補強などが絡んできます。

補強でかなりの時間を費やす現場となりますと浴室部とその他で二回に重点を分けることもあります。

 

豊中市H様邸_断熱

充腹梁にょり梁背を抑えることができたため一部の梁は天井裏に隠すことができました。

豊中市H様邸_断熱

1階の壁をセルロースファイバー充填完了。一階の充腹梁は天井裏へ

豊中市H様邸_断熱

二階壁のセルロースファイバー充填

豊中市H様邸_断熱

二階天井までのセルロースファイバー充填が完了パンパンに壁が膨らんでいます。2.5間の充腹梁がどうしても現われてしまいます。こちらを施主様にご了解いただきました。

豊中市H様邸_断熱

電気配線等をセルロースファイバー充填前に完了させなくてはならないため、エアコンの位置、コンセント・スイッチの位置、照明位置等はあらかじめ打ち合わせをして決定することが必要になります。

豊中市H様邸_断熱

弊社ではさらにここで通気胴縁を打ちボードを張ります。

2-6 外壁工事

外壁は金属サイディング、ガルバリウム鋼板張りとなります。

窓の位置が変わるところへは構造用合板を張りますが、構造補強ガゼットを設置しているところには補強ガゼット分の厚みがございます。

その為に、通気胴縁を入れて通気と厚みの調整をします。

前面に防水透湿シートを張り込んでから、ガルバリウム鋼板を張っていきます。

豊中市H様邸_外壁工事

防水透湿シート張り

豊中市H様邸_外壁工事

外壁サイディング貼

構造補強ガゼット設置した壁倍率6.3倍の耐力壁は、ガルバリウム鋼板の仕上げにより隠れました。

豊中市H様邸_外壁工事

玄関ポーチのタイル張りです。

豊中市H様邸_外壁工事

玄関上がり口が斜めになっているためカットするのにも技量が問われます。

玄関のタタキと玄関ポーチには同じタイルを張りました。

玄関までの上がりが斜めになりますので、加工して張ります。

 

2-7 内装仕上げ

内装工事になりますと、工事も大詰めです。

石膏ボードを張り込み、クロス仕上げ用にパテ処理を行っていきます。

豊中市H様邸_仕上

天井より石膏ボードを張っていきます。壁には通気胴縁の上からボード張りをしていきます。

豊中市H様邸_仕上

ボードが張り終わるとクロス張り前のパテ処理を行います。

H様のフルリフォームでは、スケルトン状態に内部を解体し、梁補強をしましたが、梁ができる限り天井から出ないようにしたいとご要望がありました。

その為、梁の入れ替えではなく、充腹梁を制作し、極力梁が天井裏で収まるように計画しました。

2.5間の充腹梁のみ下記のように、出てしまうことをH様には承諾していただ納めさせていただきました。

その他の梁はすべて天井裏におさまっています。

豊中市H様邸_仕上

2階パテ処理

豊中市H様邸_仕上

2階廊下パテ

 

豊中市H様邸_仕上

階段室パテ

豊中市H様邸_仕上

パテが終わると内装職人による壁紙貼り工事に入ります。

 

 

3 竣工

新規サイディングはKMEWさんの長石柄Ⅱ MAW5101V27Sです。サッシはYKKのプラチナステンをご選定頂きました。

豊中市H様邸_竣工

築40年以上の建物が耐震等級3の建物へと生まれ変わりました。

豊中市H様邸_竣工

建物裏側。既存建物には勝手口がありましたが、防犯の観点で壁としました。

玄関ドアは自電車を玄関内に入れるのに少しでも楽になる様、YKKap社の2枚連動引き戸を採用しました。

玄関の有効開口が903.5mmと通常の2枚引戸の1.3倍の開口が取れます。

車椅子やベビーカー等が玄関に入りやすい様にご選定を頂く方も多いです。

玄関の土間タイルは、300角のLIXILコンテNO:3を使用しています。

 

豊中市H様邸_竣工

玄関ドアは自転車が入れ易いように2枚連動引戸にしています。
YKK大開口引戸 有効開口903.5mmです。

 

豊中市H様邸_竣工

玄関は自転車を収納できるスペースを確保。薄型のシューズボックスを設置しました。

豊中市H様邸_竣工

ユニットバスはLIXILアライズ1616サイズ

豊中市H様邸_竣工

洗面化粧台 LIXILピアラ 間口750サイズ

豊中市H様邸_竣工

1階トイレ ハイウィルオリジナルTOTOトイレ

豊中市H様邸_竣工

システムキッチンはトクラスBb I型1950サイズ ストロベリーレッド色です。

豊中市H様邸_竣工

LDK

豊中市H様邸_竣工

LDK・廊下

お部屋全体全てホワイトで統一されたので、シンプルモダンなイメージになりました。

豊中市H様邸_竣工

LDK

豊中市H様邸_竣工

1階廊下から階段

1階は間仕切り戸を開けばワンフロアになり、とても開放的になります。

階段は既存位置とあまり変わらない位置ですが勾配は緩くしてあります。

 

豊中市H様邸_竣工

2階廊下

豊中市H様邸_竣工

2階トイレ

2階には新たにトイレを設置致しました。

極力廊下を少なくし、居住スペースを多く取りました。

豊中市H様邸_竣工

2階洋室

豊中市H様邸_竣工

2階洋室

2階に洋室2部屋です。こちらの洋室は間仕切り戸があり、開けばワンフロアにもなります。

3-1 外壁 Before → After
豊中市H様邸_施工前

リフォーム前

既存外壁はモルタル仕上げです。

H様は外壁塗装をされたばかりで、当初は外壁はそのまま活かすプランでご提案させて頂いてました。

サッシは全て取替になるので、既存サッシを取る際、窓廻りを大きくカットしなくてはなりません。

窓を外した開口に、新たに下地を組み新しいサッシを入れます。

そうすると、既存の外壁と新たに窓廻しだけ作った下地に少しの段差が出てしまいます。

その場合、窓廻りだけ塗装をすると幾ら色を近づけて塗っても差は出てしまいます。

目立たなくする為には、全体をパターンの付いた塗装で仕上げるか外壁サイディングを貼るかになります。

最後まで迷われて、せっかく新築の様になるのなら…外壁もサイディングにしたいです。とご要望を頂きました。

 

 

 

豊中市H様邸_竣工
3-2 キッチン Before → After
豊中市H様邸_施工前

リフォーム前

既存キッチンは昔ながらのブロックキッチンでした。

新規キッチンはI型キッチンを対面風に設置し圧迫感が出ない様吊り戸は無くして設置をさせて頂きました。

真っ白な空間に綺麗な赤いキッチンをご選定頂いてとても映えるキッチンになりました。

豊中市H様邸_竣工
3-3 バス Before → After
豊中市H様邸_施工前

リフォーム前

浴室はタイル貼りの在来浴室。

浴室はとても寒く、お掃除も大変ですと伺ってました。新規浴室は、LIXILアライズ

1616サイズをご提案させて頂きました。

LIXILアライズは標準プランでもくるりんポイやキレイドアが付いており、お掃除もし易くなっております。

H様はオプションで換気乾燥暖房機を付けられてます。

弊社で特価でご提供できる商品なので、お薦めオプションです!

 

豊中市H様邸_竣工
3-4 洗面 Before → After
豊中市H様邸_施工前

リフォーム前

既存洗面室は横に長い空間になっていて、少し使い難かった空間です。

リフォーム後は浴室とトイレの間の空間を洗面室にしました。

 

豊中市H様邸_竣工
3-5 トイレ Before → After
豊中市H様邸_施工前

リフォーム前

既存トイレは1階のみで、階段下の限られたスペースだったのでとても狭い空間でした。

リフォーム後は、2階にも1か所新たに設置しました。トイレは弊社の特価でご提案できるTOTOのオリジナル商品になります。

豊中市H様邸_竣工
3-6 リビング Before → After
豊中市H様邸_施工前

リフォーム前

既存1階の洋室、長い間使用されていなかった空間です。

リフォーム後はこちらの奥に浴室・洗面・トイレの空間になります。

残りのスペースは大きく取った1階のLDKになります。

豊中市H様邸_竣工
ハイウィル四代目代表稲葉高志

4 担当者より(ハイウィル株式会社・稲葉)

H様は、弊社でリフォームをされる2年前より「増改築com」をご覧いただいていたお施主様でした。

ご夫婦2人住まいのH様は、ご両親から引き継がれた今回の建物に強い愛情を持たれており、築年数が40年とかなり古いことから、安心、安全なライフスタイルをお家のフルリフォームで再構築できるかが、大きなネックとなっておりました。

新築に建て替えしたくても現在の建ぺい率やセットバックの制限などから、新築での住まいが大幅に小さくなってしまう。そもそも再建築不可のエリアで建て替えできない、こういったニーズに耐震等級3を実現した上でのフルリフォームやスケルトンリフォームで技術に応える木造戸建のエキスパート企業が、現状ほとんど見つけることができない・・・

 

たくさんの事例をご覧いた中で、横浜市のT様邸の事例と同じ仕様で工事がしたいと間取りのご要望をお聞きする前に工事内容の具体的なご相談を受けました。

間取りを何度もメールでお打合せさせていただき決定致しました。共働きでご自宅を空けてしまう事もあるとの事で、防犯面に配慮したプランとなりました。

性能面では、築40年超の建物を現行の新築での最高等級となる耐震等級3での補強計画を許容応力度計算をさせていただき耐震補強を致しました。断熱もしっかりやりたいとの要望でしたので、セルロースファイバーによる充填断熱、サッシは樹脂サッシとしました。

耐震と断熱の性能向上を軸にご予算を振り分けられ、住宅設備機器や建材は卸値価格で提案させていただきました。

結果的にご予算内での満足いくフルリフォームとなり、大変お悦びいただけました。工事期間中はH様のお姉さまが、頻繁に現場に足をお運びくださり、飲み物やお菓子をお持ちいただくなど職人への気遣いまで頂き感謝しております。

工事完了後には、当初予定がなかった外構工事までご依頼頂きました。

H様、ご依頼いただきましてありがとうございました。

全国のフルリフォーム・リノベーション『ピックアップ事例』※プロの詳細解説付きレポート

HEAT20-G2/耐震等級3
新耐震基準の性能向上リノベーション
築30年ハウスメーカー軽量鉄骨
断熱改修&リノベーション
 
中古住宅を新築以上の耐震性能と断熱性能へ!
耐震等級3フルリフォーム
地下付き木造2階建て
自然素材をつかった性能向上リノベーション&フルリフォーム

東京都文京区 K様邸

長屋を切り離して1つの構造体へフルリフォーム&リノベーション
隣家との距離がない!
部屋から外壁を張り替えるフルリノベーション
中古住宅を耐震等級3へ!
中古住宅リノベーション
 
基礎がない??
築60年の古屋をジャッキアップで基礎新設フルリノベーション

東京都渋谷区 O様邸

戸建てリノベーション・リフォームに関するお問合せはこちら

増改築.comの一戸建てリフォーム専用ホームページに
お越しいただき、誠に有難うございます。
 
増改築.comメンバーは技術集団となり、
他社のような営業マンがおりません。
技術者が直接ご相談にのり問題解決を行います。
 
従いまして、
お客様の方である程度のご要望が整理されました段階、
お悩みが工事内容のどのようなところにあるのか?
ご予算がどの程度絞る必要があるのか?
など明確になった段階でのご相談をお願いしております。
お問合せ・ご相談はお電話・メールにて受け付けております。
メールの場合は以下のフォームに必要事項をご記入の上、
「送信する」ボタンをクリックをお願いします。

代表稲葉高志

戸建てリノベーションの専属スタッフが担当致します。
一戸建て家のリフォームに関することを
お気軽にお問合せください

よくあるご質問
  • 他社に要望を伝えたところできないといわれたのですが・・・
  • 他社で予算オーバーとなってしまい要望が叶わないのですが・・・
  • サービスについて詳しく聞きたいのですが・・・

どのようなお悩みのご相談でも結構です。

あなたの大切なお住まいに関するご相談をお待ちしております。

営業マンはおりませんので、しつこい営業等も一切ございません。

設計会社(建築家様)・同業の建築会社様のご相談につきましては、プランと共にご指定のIw値及びUa値等の性能値の目安もお願い申し上げます。

2026年の大型補助金が確定したことで現在大変込み合っております。

耐震性能と断熱性能を向上させるフルリフォームには6か月~7か月の工期がかかります。

補助金獲得には年内に報告を挙げる必要があることから、お早目にご相談をお願いいたします。(6月着工までが目安

ご提案までに大変お時間がかかっております。ご了承のほどお願い申し上げます。

(5月までの着工枠が埋まりました)・・・2026/03/01更新

※すでにプランをお持ちのお施主様・設計資料をお持ちのお施主様は内容をフォームで送信後、フォーム下のメールアドレスに資料をお送りください。対応がスムーズです。

必須

(例:増改築太郎)

必須

(例:contact@high-will.co.jp)

(例:03-5615-2826)

必須

(例:東京都荒川区西日暮里2-35-1)

(例:築40年)

(例:25坪・100㎡など)

(例:2000万程度など)

  • ※再建築不可のリフォームでは金融機関が限られます。事前審査をお勧めいたします。

    (例:2024年3月くらいに完成希望など)

    必須

    できるだけ具体的にお知らせくださいませ。既存設計資料、リフォーム後のイメージ図等をお持ちであれば下記のメールアドレスより添付をお願いします。

    ※次の画面がでるまで、4~5秒かかりますので、
    続けて2回押さないようにお願いいたします。

    ※次の画面が出るまで、4〜5秒かかりますので、
    続けて2回押さないようにお願いいたします。

    図面や写真等を送信いただく場合、また入力がうまくいかない場合は、上記内容をご確認のうえ、下記メールアドレスまでご連絡ください。

    お電話でのお問合せはこちら

    0120-246-991

    営業時間:10:00~17:00(土日祝日を除く)

    ★YouTube「増改築.comチャンネル」チャンネル登録して新動画解説をいち早くGET!!★
    「増改築.comリノベ診断」であなたに一番ふさわしいフルリフォームを診断!!(動画解説付き)
    ★Facebookページにいいね!を押して最新コンテンツ情報をいち早くGET!!★
    パソコン|モバイル
    ページトップに戻る