このエントリーをはてなブックマークに追加

戸建フルリフォームなら「増改築.com®」TOP > 施工事例 > 都道府県で探す兵庫県 > 芦屋市 > N様 築35年の中古住宅を購入してリフォーム

ワンストップサービス 物件のご案内からリフォーム工事までの事例

兵庫県芦屋市で築35年の中古を買ってリフォーム

 

不動産の取引の流れ、そしてリフォーム工事を行いました。施工事例を紹介します。

建物概要
名前 N様
場所 兵庫県芦屋市
築年数 築35年
構造種別 木造一戸建て
家族構成 大人2人+お子様1人
対象面積 22.07坪
リフォーム部位 添え基礎 間取り変更 断熱サッシ交換 外壁塗装 断熱工事 屋根葺き替え 躯体補強工事 水回り一式交換
工期 3ヶ月
価格 1800万

お客様のご要望

今回のリフォームで、N様からのご要望は以下の7点です。

  • 家の傾きを直したい
  • 物件価格に合わせてコストを抑えたい
  • 既存サッシが木枠のものがあり、交換が必要
  • 既存のユニットバスの窓が大きすぎるので、小さくしたい
  • 階段を緩やかにしたい
  • 玄関ドアは変えて欲しい
  • 2LDKから3LDKに変更

プランナー 北畠より ~プランニングのポイント~

N様邸は兵庫県芦屋市の築35年の中古戸建てです。
コストを抑えるためになるべく使えるものは再利用し、基礎の工事を減らす為1階の間取り変更はなるべく少なくなるようにプランニングを行いました。

築年数が古いこともあり耐震の補強工事を行い、これからも長期にわたってお住まい頂けるプランをご提案させて頂きました。

兵庫県芦屋市N様邸 戸建てリノベーション施工事例テーマカテゴリー

 

  • 中古住宅購入+リフォーム
  • 中古住宅購入+リフォーム(購入からリフォームまでワンストップサービス)
  • 内部スケルトンリフォーム

中古戸建て購入までの流れ、そして建物の着工から完成までの施工事例を紹介

1 中古戸建て購入

1-1 ファーストコンタクト

N様は増改築.com®にお問合せ頂き、メールでご希望の物件の条件をお伺いしました。

将来的な資産価値を考え駅近物件のご検討をされておられました。当初は新築をお考えでしたが、新築戸建ては物件数も少なく金額もなかなか条件に合わず、芦屋市全域に範囲を広げても芦屋市の条例で最低敷地面積の兼ね合いもありご希望に沿った物件が少ない状態でした。

そこで中古を買ってリフォームというご希望も持たれるようになられたとのことでした。

ところが、中古を買ってリフォームする際に耐震などの家の性能が気になり、戸建てリノベーション事例をたくさん載せている弊社の増改築.com®を見つけてくださったそうです。

 

N様より物件の希望条件をお伺いしました。N様のご希望は以下の通りです。

・駅10分圏内

・阪急沿線もしくはJR沿線

芦屋市は北から阪急、JR、阪神と3つの路線が通っています。その中で阪急沿線をメインに駅に近ければJR沿線がご希望のエリアです。

・土地面積80㎡以上

・建物面積70㎡以上

・ご予算4000万円以下に抑えたい

・新築戸建ても安いのがあれば可

との大まかにご要望をお伺いさせて頂きました。

 
1-2 物件のご案内

ご希望条件に近しい物件を何件かご提案させて頂き、その中で2物件を案内させて頂く事になりました。

 

1-3 リノベーションの概算費用のご提案

通常ですとご案内前にリノベーションの概算金額をお伝えし、ご納得いただいてからご案内をさせて頂くのですが、今回は、物件を先にご案内してからのご提案になりました。

2つの物件をご案内、そのうちの一物件で見積もりをさせて頂きました。既に物件金額が出ていますので、ご予算から購入金額を差し引いた約800万円でできるリフォームのご提案という事になりました。

 

1-4 事前審査

築年数が古い物件はローン審査が厳しいので、最初にローンの審査を行う事が必要不可欠です。
三井住友銀行、但馬銀行、アルヒ株式会社でフラット35の審査を行いました。

 

1-5 ご購入申し込み

「物件金額を交渉できないか」とご要望頂きましたので、金額の交渉を進めることにしました。
金額交渉は買付申込を通して行う事が一般的です。300万円の金額交渉です。

 

1-6 ご契約

住宅ローンの審査も承認され、金額交渉もすべてではないですがまとまりましたので、契約を行うことになりました。

ご契約と同時にリフォームの詳細も決めていきます。

 

1-7 決済

物件の支払いも終わりいよいよ工事が始まります。

 

2 着工前

2-1 解体前

N様邸は築年数も古いことから建物の瑕疵担保責任は無効の状態での引渡になりました。
瑕疵担保責任が無効という中古住宅は少なくはありません。万が一雨漏りが起こっていた場合や明らかに建物に構造上の欠陥がある場合でも自分で責任を負わなければなりません。そこで通常はインスペクションが必要になってまいります。

但し、工事を行った部分の主要構造部や雨漏りなどに対しては10年の保証を行います。

※新築住宅のように設備などは2年など細かく保証期間を定めさせて頂いております。今回は予算の関係上内部メインのスケルトンリフォームになります。

既存建物外観

外壁はモルタルです。築約35年ですので部分的にメンテナンスが行われていることがわかります。

サッシも一部交換や撤去などを行いますので、外壁の補修も必要になってまいります。

内部メインのスケルトンリフォームになりますが、外壁にクラックが入っている為に同時に補修工事を行います。必然的に塗装工事は必要になります。

 
 

玄関ドアも一度リフォームを行っていますが、断熱性能を向上させるためにはサッシや玄関ドアの交換は必須になります。

おそらく梁があるので、解体後に梁を無くせるか協議します。

2階洋室 2階部分は2部屋から3部屋に間取り変更を行います。

押し入れはクローゼットに変更します。但し、間取り変更もあるので使い勝手によって一の変更があります。

建物の歴史が感じられる一枚です

バルコニーも補修します。


キッチンのサイズはそのままで新しいものに取り換えます!

浴室は1616サイズです。窓が大きすぎるのでサイズ変更予定です。

トイレと洗面台も交換を行います。

2-2 兵庫県芦屋市N様邸 戸建リノベーションプラン

  間取りの変更プラン  

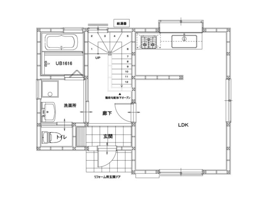
1階 既存平面図

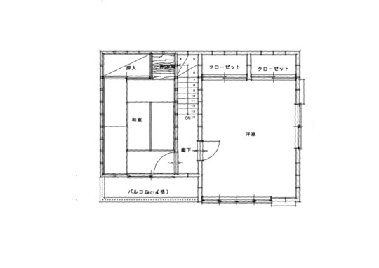
2階 既存平面図

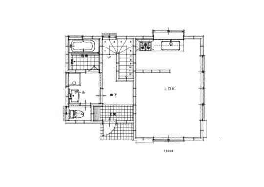
1階 新規平面図

2階 新規平面図

N様のリフォーム工事、いよいよ着工してまいります。

3 着工

3-1 解体・撤去

解体は手壊し作業

芦屋市N様邸の解体を行いました。
解体を行う際は建物の状態を見極めつつ、新しく変更する間取りをイメージし、手壊しで解体を進めていきます。
壊すところと壊さないところを考えて行わないと無駄な労力と費用を消費することになります。

内部の解体が終わりました。

サッシはそのまま使うもの、交換するもの、閉じて壁にするところがあります。

解体後のチェックで柱が少ないことが分かりましたので補強が必要です。

構造体の木の状態を確認していきます。

外観写真、サッシ交換箇所

玄関ドア

お風呂解体 土台の腐敗腐食が進んでいます。

水回り周辺は損傷が激しいです

階段も解体

屋根裏天井

トイレ

解体後に見上げると屋根裏まで気持ちよく見通せて建物の内部構造がよく分かります

大事な構造部のすべてが目視可能となるスケルトンリフォーム

内外部のスケルトンリフォームの最大のメリットはこのような重要な主要構造部のすべての状態が目視でわかることになります。

フルリノベーション後は、これらの構造上の弱点をすべて修正し補強することで新築と同水準、もくしくはそれ以上の建物性能をもつ構造躯体へ甦らせることが可能となります。

3-2 大工工事

N様邸は1階の間取り変更はほとんどなく基礎はそのまま利用できます。また主要構造躯体も損傷が少なく再利用が可能です。
但し土台は入れ替えが多くなっています。また柱のピッチも甘いので補強は必須になります。
水回りは損傷が激しいので交換や補強工事を入念に行います。

水回りで腐敗が進んでいるところは補強や取替を行います。

ちょっとしたところも金物で補強します。

土台取替工事を行っていきます。

L字やアンカーボルトも使用します。

2階床工事 窓を閉じている工事内容が確認できます。

既存の木部と新設された木部です。既存の木部をぐるっと守っています。新築との差はここにあります。

階段の位置は変わりませんが階段を新設します。

天井を張っていく準備になります。

掃き出し窓を2間から1間に変更します。

ユニットバスの窓を小さくしています。

3-3 断熱工事

N様邸はグラスウールを採用しました。隙間なく断熱材を充填していきます。隙間が出来てしまったら折角の断熱の効果が半減してしまいます。

施工のポイントは、1.気流を止める事 2.断熱材を隙間なく施工する事 3.室内側に気密層・防水層を連続 です。

 

断熱

充填し終わったところからボードで閉じていきます。

グラスウールを使用しています。グラスウールはコスト面と効果のバランスが良いです。もちろん注意は必要ですが施工手間的にもグラスウールは使用しやすい断熱材です。

サッシの上部にもこの後断熱材を充填します。

階段部分にも断熱

部屋の半分は終わりました。

3-4 内装工事

室内には防火性の高い石膏ボードが貼られています。この後は継ぎ目部分をパテでならして凸凹を無くし平にしてからクロス貼りに進みます。この下地の処理によってクロスが長持ちする要因の一つになります。

廊下 リビングの建具や階段も施工が終わりました。

1階玄関と水回りです。クロス施行後に洗面を入れます。

シャッター付き掃き出し窓に交換しています。LOWーEペアガラスです。

沢山の石膏ボードを貼っていきます。

ボードが貼り終わりました。

階段の勾配が既存より緩くなり上りやすくなりました。

2階掃き出し窓です。床の養生はどのお部屋もしっかりとします。

クローゼットを施工していきます。

サッシもきれいに収まっています。

ボードを貼っていきます。

3-5 外壁塗装工事

着工してから外壁やサッシの下地工事を行いサッシの一部入れ替え工事を行いました。
サッシや玄関ドアをしっかりと養生し塗装を行います。

玄関ドア 養生を行って外壁の塗装を行います。

塗装を行いました。補修箇所としてない箇所がわかってしまいます。仕上げで再度まんべんなく塗装を行います。

一部外構のお手伝いもさせて頂きました。

コンクリートを打設させて頂きました。

4 竣工

芦屋市N様邸、約3カ月の工事も無事に終わり、建物が完成いたしました。


  =外観==  

兵庫県芦屋市のN様邸はもともとモルタル仕上げでした。
前所有者様は定期的にメンテナンスを行っていたようですが、劣化が見て取れる物件でリフォームやリノベーション工事を行わない場合はなかなか仲介しにくい物件でしたが、リフォームとセットにすることで、ご案内可能な物件となりました。
それだけに責任が2重にかかりますが、新築同然とまでは言えませんが、問題なく住んでいただけるところまでリカバリーを行えたのではないかと思います。

外観

外観

玄関前外構

立水栓


  == 1F 玄関 ==  

Before

After


  == 1F ==  

リビング入り口


  == 階段 ==  

Before

After

  == 1F 水まわり ==  

Before

既存キッチン

既存浴室

既存洗面室・トイレ

キッチン

リクシル「シエラ」

浴室

TOTOサザナ

洗面室

リクシル「オフト」

トイレ

ハイウィルオリジナルトイレ


  == 2F ==  

Before

既存の2階は2部屋でした。

2階洋室

洋室には梁が下がっていました

2階のもう一部屋は和室でした

After

フローリングはPanasonic「ベリティス」チェリー柄で統一し、建具をお部屋によって色分けを行い高級感のある落ち着いた色味のソフトウォールナットを使用したお部屋とホワイトアッシュを使用し清潔感と明るさが演出されたお部屋の2タイプがチョイスされました。

新規サッシはすべてトステムの高性能ハイブリッド窓サーモスL LOW―E複層ガラスを使用しています。

2階洋室は2部屋に分割。ホワイトアッシュの収納建具です。

梁部分は解消できませんでした。

和室だったひと部屋も洋室へ。建具はソフトウォールナットです。

バルコニーへ出る窓


  == バルコニー ==  

Before
After

屋根の張替えと全体の補修を行いました

5 担当者より(ハイウィル株式会社・刈田)

兵庫県芦屋市のN様邸のお引渡しをさせて頂きました。

お問合せを頂いてから約半年間のお付き合いとなりましたN様ですが、芦屋市は北から南までどこにお住まいになられても素敵な住宅地が広がります。兵庫県内でも類がない市それが芦屋市になります。その中でもN様は将来的な資産価値を考え駅近物件のご検討されておられました。新築でのご検討時は物件数も少なく金額もご希望の金額帯の物件がなく検討できない状態でした。駅近の条件を外しても芦屋市の条例に基づく最低敷地面積の兼ね合いもあり、ご希望通りの物件が少ない状態でした。

そこで「中古を買ってリフォーム」のご検討を始められたのですが、最初に素敵な新築物件をご見学されてきたので、どうしても新築物件と比較してしまうという悩みを持たれていました。私どもと致しましても可能な限り新築戸建てに近づけるスケルトンリフォームのご提案をさせて頂きましたが、当初はすべてのご希望を叶えると金額面で折り合いがつかず。。。今回の物件も見送るしかないかと思われたところ、売主様のご厚意もあり、なんとか前に進むことが出来ました。

今回の工事では1階のイメージがしやすかったこともあると思いますが、N様のご希望、ご想像通りの仕上がりになり大変お悦び頂けました。

仲介からリフォーム工事までをワンストップで行い、住宅ローンや司法書士の斡旋もさせて頂けましたので、(引っ越し業者などもお世話させて頂きました)「すべてお世話になって申し訳ない、大変お世話になりました」と感謝の意も頂き、通常の業務ですが、励みになりました。これからも丁寧なご案内を目指して精進してまいります。

印象に残っていることで、打ち合わせ中は、お子様のN君がまだ小さいながら打ち合わせ中も静かに待っていてくれていました。おかげさまでスムーズに打ち合わせも進みました。ありがとうございます。

N様、この度はご依頼をいただき、誠にありがとうございました。

 

兵庫県他のリフォーム事例を見る

兵庫県

神戸市(垂水区・須磨区・長田区・兵庫区・中央区灘区東灘区・北区・西区)

西宮市芦屋市尼崎市、宝塚市、川西市、伊丹市、三田市、明石市

全国のフルリフォーム・リノベーション『ピックアップ事例』※プロの詳細解説付きレポート

HEAT20-G2/耐震等級3
新耐震基準の性能向上リノベーション
築30年ハウスメーカー軽量鉄骨
断熱改修&リノベーション
 
中古住宅を新築以上の耐震性能と断熱性能へ!
耐震等級3フルリフォーム
地下付き木造2階建て
自然素材をつかった性能向上リノベーション&フルリフォーム

東京都文京区 K様邸

長屋を切り離して1つの構造体へフルリフォーム&リノベーション
隣家との距離がない!
部屋から外壁を張り替えるフルリノベーション
中古住宅を耐震等級3へ!
中古住宅リノベーション
 
基礎がない??
築60年の古屋をジャッキアップで基礎新設フルリノベーション

東京都渋谷区 O様邸

戸建てリノベーション・リフォームに関するお問合せはこちら

増改築.comの一戸建てリフォーム専用ホームページに
お越しいただき、誠に有難うございます。
 
増改築.comメンバーは技術集団となり、
他社のような営業マンがおりません。
技術者が直接ご相談にのり問題解決を行います。
 
従いまして、
お客様の方である程度のご要望が整理されました段階、
お悩みが工事内容のどのようなところにあるのか?
ご予算がどの程度絞る必要があるのか?
など明確になった段階でのご相談をお願いしております。
お問合せ・ご相談はお電話・メールにて受け付けております。
メールの場合は以下のフォームに必要事項をご記入の上、
「送信する」ボタンをクリックをお願いします。

代表稲葉高志

戸建てリノベーションの専属スタッフが担当致します。
一戸建て家のリフォームに関することを
お気軽にお問合せください

よくあるご質問
  • 他社に要望を伝えたところできないといわれたのですが・・・
  • 他社で予算オーバーとなってしまい要望が叶わないのですが・・・
  • サービスについて詳しく聞きたいのですが・・・

どのようなお悩みのご相談でも結構です。

あなたの大切なお住まいに関するご相談をお待ちしております。

営業マンはおりませんので、しつこい営業等も一切ございません。

設計会社(建築家様)・同業の建築会社様のご相談につきましては、プランと共にご指定のIw値及びUa値等の性能値の目安もお願い申し上げます。

2026年の大型補助金が確定したことで現在大変込み合っております。

耐震性能と断熱性能を向上させるフルリフォームには6か月~7か月の工期がかかります。

補助金獲得には年内に報告を挙げる必要があることから、お早目にご相談をお願いいたします。(6月着工までが目安

ご提案までに大変お時間がかかっております。ご了承のほどお願い申し上げます。

(5月までの着工枠が埋まりました)・・・2026/03/01更新

※すでにプランをお持ちのお施主様・設計資料をお持ちのお施主様は内容をフォームで送信後、フォーム下のメールアドレスに資料をお送りください。対応がスムーズです。

必須

(例:増改築太郎)

必須

(例:contact@high-will.co.jp)

(例:03-5615-2826)

必須

(例:東京都荒川区西日暮里2-35-1)

(例:築40年)

(例:25坪・100㎡など)

(例:2000万程度など)

  • ※再建築不可のリフォームでは金融機関が限られます。事前審査をお勧めいたします。

    (例:2024年3月くらいに完成希望など)

    必須

    できるだけ具体的にお知らせくださいませ。既存設計資料、リフォーム後のイメージ図等をお持ちであれば下記のメールアドレスより添付をお願いします。

    ※次の画面がでるまで、4~5秒かかりますので、
    続けて2回押さないようにお願いいたします。

    ※次の画面が出るまで、4〜5秒かかりますので、
    続けて2回押さないようにお願いいたします。

    図面や写真等を送信いただく場合、また入力がうまくいかない場合は、上記内容をご確認のうえ、下記メールアドレスまでご連絡ください。

    お電話でのお問合せはこちら

    0120-246-991

    営業時間:10:00~17:00(土日祝日を除く)

    ★YouTube「増改築.comチャンネル」チャンネル登録して新動画解説をいち早くGET!!★
    「増改築.comリノベ診断」であなたに一番ふさわしいフルリフォームを診断!!(動画解説付き)
    ★Facebookページにいいね!を押して最新コンテンツ情報をいち早くGET!!★
    パソコン|モバイル
    ページトップに戻る