戸建フルリフォームなら「増改築.com®」TOP > 施工事例 > 都道府県で探す石川県 > 加賀市 > 施工事例 H様 平屋戸建てリノベーション

石川県加賀市

平屋戸建てリノベーション(フルリフォーム)詳細事例レポート

 

 

建物概要
名前 H様
場所 石川県加賀市
築年数 不明
構造種別 木造一戸建て
家族構成 大人2人 子供2人・両親2人
対象面積  
リフォーム部位 間取変更/断熱サッシ取替/住設機器交換/床暖房
工期 2.5ヶ月
価格 1300万円(税別)

お客様のご要望

今回の戸建てリノベーションでH様からのご要望は以下の6点です。

  • 北側に面したリビング・キッチンが暗いのでリノベーションをして明るくしたい
  • 住設機器が古いので、リノベーション後は最新の使い勝手の良い商品を入れたい
  • 動線が悪く、家事に手間取るので快適な動線でのリノベーションプランを提案して欲しい
  • 両親の為にリノベーション後は床の段差解消したい
  • 夜でも安全に歩けるように、人感センサー付き照明の導入してほしい
  • ペットも考慮したリノベーションの提案をお願いします(猫・犬)

~プランニングのポイント~

北側に面したキッチン・和室を繋げて明るく広々としたLDKをにしたい。

水廻りの機器を動線に合わせた、使い勝手の良い商品を提案。

 

H様のご実家を今後のライフスタイルに合わせて、動線・使い勝手・集まるリビングでご提案させて頂きプラス温かいリビングへ!!

リノベーション(フルリフォーム)プランをご提案しました。

 

石川県加賀市H様邸 施工事例テーマカテゴリー

 

  • 平屋リフォーム
  • 内部スケルトンリフォーム+サッシ交換

打ち合わせから着工、完成までの詳細施工事例紹介

1 戸建てリノベーション着工前

1-1 現場調査・打合せ

H様は数年前改装の計画があり、今回廊下の床が抜けそうになった事がきっかけで、知り合いの大工に相談した所、大工さんが弊社(株式会社さくら)を紹介されたとのことでした。

ご両親が40年以上前に建てられた戸建住宅ですが、数十年にかけて戸建てリフォームをしており間取りが悪く、家族が集まる場所が北側に面しており、昼間でも電気を点灯しないと生活が出来ないので、今回のリノベーション(フルリフォーム)をきっかけに何とか明るいリビングにしたいとのことでした。

既存 台所横の和室

既存 昔ながらの台所

これまでに何度も戸建てリフォームをされた形跡がありましたが、全体の動線が悪く家事一つとっても無駄な動きがあり今回間取り変更を含めたリノベーション(フルリフォーム)プラン提案し、ご両親にも拝領したバリアフリーや床暖房・人感照明などを設置する事で、快適に過ごせるご提案で進めました。


既存 在来浴室

既存 洗面所

洗面所と浴室。

冬場が特に寒い洗面脱衣と浴室、ヒートショック対策も兼ねて提案してほしいと伺いました。

今回のリノベーション(フルリフォーム)では、在来浴槽からユニットバス(浴室暖房機器付き)洗面脱衣場も床壁に断熱材を入れ昔ながら単板ガラスサッシから2重サッシに交換、大きさも二回り程小さくして断熱効率UPしました。


既存 トイレ

既存 洗濯機置き場

既存のトイレは昔ながらの施工タイル仕上げですが、施主の希望で床に水を撒いて 掃除したいとの事でしたので、今回あえて躯体は触らず掃除のしやすいリクシルのサティスにてご提案しました。

勝手口通路に設置された洗濯機、廊下から一段下がった土間に置いてあり出入りの危険性があります


既存 縁側

縁側が南面にあり、日当たり良好です自然光をLDK取り込むようプランしました。

 

今回北面にある台所・和室を南面にある和室に取り込む事で、明るく広々としたLDKを提案させていただきました。

1-2 石川県加賀市H様邸 戸建リノベーションプラン

  間取りの変更プラン  

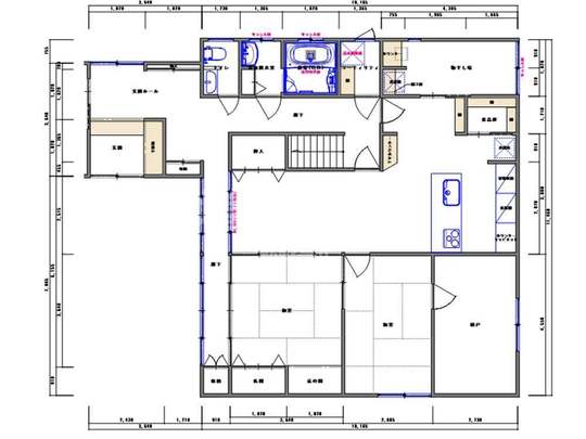
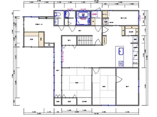
既存平面図

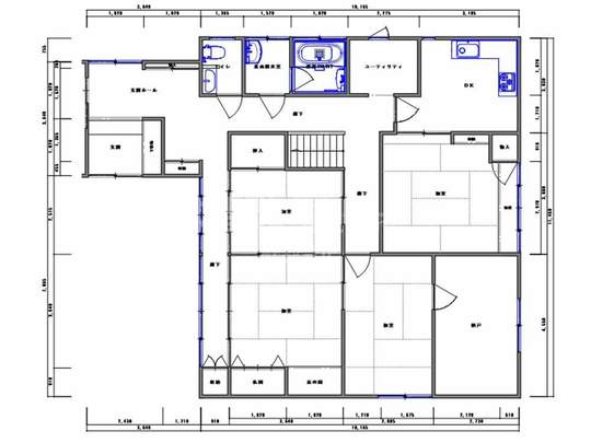
間取り変更リフォーム後平面図

東面の和室はご両親がお使いなられており、場所の移動は難しい事から仏間と和室を残し 仏間横の和室と既存廊下はLDKに取り入れたプランにしました。

彩光の関係でキッチン前の天井に明かり窓を設置する事で、昼間でも照明器具が無くても過せるように提案しました。

2 戸建てリノベーション着工

2-1 解体

解体工事にあたり、これから工事完了までの間ご迷惑をお掛けする近隣の方々への挨拶回りを行い、いよいよ着工となりました。

今回のH様邸の戸建リノベーション工事は、間取変更を含む水廻りの改装でしたが、施主様が住みながらのリフォームとなりましたの、解体前に仮設の台所や洗濯機の設置を行い浴室は最短工期で施工させて頂きました。間取り変更部部は躯体の状態までスケルトン状態にします。

解体時に発見、ピンクのタイルが昔あった浴室です

何度も改装したため、各部屋に段差があります

2-2 木工事

電気屋さんと連携して、工事期間の一日でも早い引き渡しを目指します

2-3 設備工事

過去の戸建てリフォームの時残っていた配管を全て撤去し、既存で使用されていた鉄管も全て撤去し、全ての給排水をやり替えし、今後は水漏れが無いよう安心出来るようにしました。

2-4 大工工事

床組を全てやり替え、床下には断熱材を入れ床鳴りの原因となる木束も鋼製束を使用がっちりとした床組みに、今回下地を2重貼しその上にフロアー仕上げなので3重貼した断熱性能も上がった床にしました。

施工状況

断熱サッシ:エピソードType S

アルミと熱電率の低い樹脂型材を組み合わせた、アルミ樹脂複合構造。
上下枠に断熱樹脂を挟み、より効果的にハイレベルな断熱性能を実現しています。

複層ガラスのガラス溝幅は26m/m。一般複層はもちろん防犯合わせガラス使用時にも、12m/m以上の中空層を確保でき、単板ガラスの約2倍の断熱性能を発揮します。

その為、冷暖房エネルギーを大幅に削減し、家計の負担を軽減いたします。

 
2-5 床暖房工事

石川県加賀市H様邸戸建てリノベーション(内部の一部スケルトンリフォーム)ではH様の要望により温水式床暖房を採用しました。

床暖房で部屋全体を暖めるには暖めたい部屋の床面積の60%以上にヒーターを設置する必要がありますので、LDK全体の床に割付けました。

床暖房施工範囲図

温水式床暖房とは・・・

熱源機で加熱した暖房用の温水を暖房用のポンプを使って宅内の温水マットの内部を循環させ、その熱を利用して足元から温める床暖房です。

暖かい空気は上に昇ってしまいますのでどうしても足元が冷えがちな冬場でも足元から温めてくれる床暖房は効果的です。また温風が吹き出すFF式ストーブやエアコンに比べホコリが舞いにくいというのも特徴のひとつです。

ヒートポンプを利用し温水をつくるため、ランニングコストも抑えられますので24時間暖房など⻑時間の使用向きです。

2-6 内装仕上げ工事

内装業者さんによるクロス工事が始まります。下地の石膏ボードとクロスの目地は重ねないのが常識です。建物の動きにより石膏ボードが動いた場合、クロスの目地が石膏ボードの目地と揃っていると目地が割れやすいため、パテ処理を行い作業を進めて行きます。

クロスが貼り終わると養生を捲り、クリーニングを行います。ここで一気に完成形に近付きます。

衛生設備や照明器具、設置されていきます。水廻りのシーリング工事が終わりサッシにも網戸が取り付けられていきます。

3 戸建てリノベーション竣工

今回こだわったLDK、落ち着いた色で統一し、床にはアクセントに大理石調のフロアーを貼分けし、壁はアクセントとしてエコカラット使用、猫ちゃんだけが出入り出来る高さにペットドアを設置しました。


  == リビング ==  

戸建てリノベーション(リフォーム)前

戸建てリノベーション(リフォーム)後

戸建てリノベーション前、北面にあった和室(リビング)日当たりも悪く日中でも照明の明かりが必要でしたが、オープン型のLDKにする事で、奥様の動線も最小限になり、旦那様も片づけのお手伝いをしてくれるようになりました(笑)

毎日使う食器類はキッチン収納で十分まかなえすぐ横に設置した、ストックヤードに常備食を置く事で、いつでもスッキリした状態を確保しています。

また、撮影用に照明器具を点灯していますが、天窓だけでも十分な明かりを確保しています。

ワンちゃんには階段下スペースを利用して居場所を確保

猫ちゃんには自由に出入りできるペットドアを設置しました

LDKの壁一面にアクセントとしてエコカラットを施工、調湿・消臭効果できれいな空気に


  == キッチン ==  

戸建てリノベーション(リフォーム)前

戸建てリノベーション(リフォーム)後

昔ながらの台所は日当たりも悪く、動線も悪かったが、オープン式キッチンで何時でもすぐ料理が出来、また大収納のおかげ小さな動作で済み、奥様の大満足です。

密かに施主様が探したダイニングテーブルは、今回のリクシルのキッチンと同じ材質のセラミック天板でかっこいいです!!

 

採用設備機器

システムキッチン:リクシル リシェル センターキッチン

セラミック天板のキッチンでお掃除も楽々、家電収納も統一してスッキリしました

キッチン横にストックヤードを設置することで無駄な動線をなくしました。またバラバラだった壁リモコンを一か所に集めました。

キッチン前に天井から明かり窓を設置


  == 浴室 ==  

戸建てリノベーション(リフォーム)前

戸建てリノベーション(リフォーム)後

既存浴室はタイル貼りの在来浴室でした。冬場は特に寒く、タイル目地のお掃除がとても大変だと伺ってました。

新規浴室はリクシル 16161 壁全面をアクセントパネルにする事でモダンな仕上がりに、浴室暖房・TVなどの設置でゆっくり・まったり一日の疲れを取ります。

 
採用設備機器
システムバス:リクシル アライズ 1616

  == 洗面・脱衣所 ==  

戸建てリノベーション(リフォーム)前

戸建てリノベーション(リフォーム)後

一番冷気を感じるサッシは樹脂サッシのペアーガラスに交換、さらに小さくする事で外部からの目線も 気にするこ事もなくなりました。

浴室暖房に加えて洗面所にも暖房を設置、ヒートショック対策で安心してお風呂に入れます。

今回リクシルの洗面化粧台をシステムで購入大収納でスッキリしました。

 
採用設備機器
洗面化粧台:リクシル エルシイ システム

大家族でも十分なランドリールームを作りました。

洗濯機横にはちょっとした作業ができるスペースも。天井も遊び心いっぱいです!


  == トイレ ==  

戸建てリノベーション(リフォーム)前

戸建てリノベーション(リフォーム)後

床に水を流して掃除をしたい事を聞き入れ今回はトイレの入れ替えのみしました、お手入れのし易いリクシルのサティス一体型に、今後の事も考慮して便座の自動開閉、自動洗浄をチョイスしました。

 
採用設備機器
トイレ:リクシル サティスGタイプ

4 担当者より
(「増改築.com®」石川支部 株式会社さくら)

 

H様、この度はご依頼をいただき、誠にありがとうございました。

石川県の他のリフォーム事例を見る

石川県

金沢市・野々市・能美市・白石市・小松市・加賀市・かほく市・羽昨市

この事例と似たテーマカテゴリーを見る

全国のフルリフォーム・リノベーション『ピックアップ事例』※プロの詳細解説付きレポート

HEAT20-G2/耐震等級3
新耐震基準の性能向上リノベーション
築30年ハウスメーカー軽量鉄骨
断熱改修&リノベーション
 
中古住宅を新築以上の耐震性能と断熱性能へ!
耐震等級3フルリフォーム
地下付き木造2階建て
自然素材をつかった性能向上リノベーション&フルリフォーム

東京都文京区 K様邸

長屋を切り離して1つの構造体へフルリフォーム&リノベーション
隣家との距離がない!
部屋から外壁を張り替えるフルリノベーション
中古住宅を耐震等級3へ!
中古住宅リノベーション
 
基礎がない??
築60年の古屋をジャッキアップで基礎新設フルリノベーション

東京都渋谷区 O様邸

戸建てリノベーション・リフォームに関するお問合せはこちら

増改築.comの一戸建てリフォーム専用ホームページに
お越しいただき、誠に有難うございます。
 
増改築.comメンバーは技術集団となり、
他社のような営業マンがおりません。
技術者が直接ご相談にのり問題解決を行います。
 
従いまして、
お客様の方である程度のご要望が整理されました段階、
お悩みが工事内容のどのようなところにあるのか?
ご予算がどの程度絞る必要があるのか?
など明確になった段階でのご相談をお願いしております。
お問合せ・ご相談はお電話・メールにて受け付けております。
メールの場合は以下のフォームに必要事項をご記入の上、
「送信する」ボタンをクリックをお願いします。

代表稲葉高志

戸建てリノベーションの専属スタッフが担当致します。
一戸建て家のリフォームに関することを
お気軽にお問合せください

よくあるご質問
  • 他社に要望を伝えたところできないといわれたのですが・・・
  • 他社で予算オーバーとなってしまい要望が叶わないのですが・・・
  • サービスについて詳しく聞きたいのですが・・・

どのようなお悩みのご相談でも結構です。

あなたの大切なお住まいに関するご相談をお待ちしております。

営業マンはおりませんので、しつこい営業等も一切ございません。

設計会社(建築家様)・同業の建築会社様のご相談につきましては、プランと共にご指定のIw値及びUa値等の性能値の目安もお願い申し上げます。

2026年の大型補助金が確定したことで現在大変込み合っております。

耐震性能と断熱性能を向上させるフルリフォームには6か月~7か月の工期がかかります。

補助金獲得には年内に報告を挙げる必要があることから、お早目にご相談をお願いいたします。(6月着工までが目安

ご提案までに大変お時間がかかっております。ご了承のほどお願い申し上げます。

(5月までの着工枠が埋まりました)・・・2026/03/01更新

※すでにプランをお持ちのお施主様・設計資料をお持ちのお施主様は内容をフォームで送信後、フォーム下のメールアドレスに資料をお送りください。対応がスムーズです。

必須

(例:増改築太郎)

必須

(例:contact@high-will.co.jp)

(例:03-5615-2826)

必須

(例:東京都荒川区西日暮里2-35-1)

(例:築40年)

(例:25坪・100㎡など)

(例:2000万程度など)

  • ※再建築不可のリフォームでは金融機関が限られます。事前審査をお勧めいたします。

    (例:2024年3月くらいに完成希望など)

    必須

    できるだけ具体的にお知らせくださいませ。既存設計資料、リフォーム後のイメージ図等をお持ちであれば下記のメールアドレスより添付をお願いします。

    ※次の画面がでるまで、4~5秒かかりますので、
    続けて2回押さないようにお願いいたします。

    ※次の画面が出るまで、4〜5秒かかりますので、
    続けて2回押さないようにお願いいたします。

    図面や写真等を送信いただく場合、また入力がうまくいかない場合は、上記内容をご確認のうえ、下記メールアドレスまでご連絡ください。

    お電話でのお問合せはこちら

    0120-246-991

    営業時間:10:00~17:00(土日祝日を除く)

    ★YouTube「増改築.comチャンネル」チャンネル登録して新動画解説をいち早くGET!!★
    「増改築.comリノベ診断」であなたに一番ふさわしいフルリフォームを診断!!(動画解説付き)
    ★Facebookページにいいね!を押して最新コンテンツ情報をいち早くGET!!★
    パソコン|モバイル
    ページトップに戻る