戸建フルリフォームなら「増改築.com®」TOP > 施工事例 > 都道府県で探す石川県 >金沢市 > 施工事例 戸建て(一軒家)リノベーション(フルリフォーム)金沢市 築40年

内部だけでなく外壁まで解体するスケルトンリフォーム

戸建て(一軒家)リノベーション(フルリフォーム)金沢市 築40年施工事例

 

建物概要
名前 Y様
場所 石川県金沢市
築年数 築40年
構造種別 木造一戸建て
家族構成 大人2人 子供2人
対象面積 33.75坪
リフォーム部位 間取変更/ 断熱サッシ取替/ 外壁ガルバニュウム鋼板/ 吹付断熱アイシネン/制震金物/ 瓦補修/ 外構
工期 3.5ヶ月
価格 約1750万円(税別)

お客様のご要望

今回の戸建てリノベーション(フルリフォーム)で、Y様からのご要望は以下の6点です。

  • 昔ながらの間取りを今の生活背景にしたい。
  • 外観のデザインをスタイリッシュにしたい。
  • 断熱性能を現在の水準にしたい。
  • 奥様の動線をスムーズにしたい。
  • 駐車スペースを現在より広くとりたい。
  • 全体に暗いので、採光を取りたい。

プランナーより ~プランニングのポイント~

主要の柱を残したまま、間取りをまっさらな状態にしたうえで、間取りを配置。

動線を意識しつつ、採光を得るため 吹抜けを採用いたしました。

1Fと2Fの、空間の使い分けを考慮し、プライベートとパブリックで別けることをご提案。

内外装を躯体状態まで解体するスケルトンリフォームをするにあたり、断熱サッシへの交換、吹付断熱材の施工と断熱性能を現在の水準まで、上げる性能向上リノベーションといたしました。

石川県金沢市Y様邸 施工事例テーマカテゴリー

 

  • 内外部スケルトンリフォーム

打ち合わせから着工、完成までの詳細施工事例紹介

1 戸建てリノベーション着工前

1-1 現場調査・打合せ

Y様は弊社(株式会社さくら)ホームページより戸建てリノベーションのご相談のお問い合わせがあり、一度ご訪問させて頂き、お話を伺ったお客様です。

ご両親が40年前に建てられた戸建て住宅で、石川県金沢市の中心地です。 駅にも近いエリアで、人気のあるエリアです。

立地は良いのですが、駐車スペースの問題や、暮らしやすい間取り・機能性のある住宅にリノベーションをして、この先も長く安心して暮らせる建物にしたいとの御所望でありました。

既存住宅正面

かなり狭い駐車スペース

石川県金沢市の築40 年の建物。
キッチンや洗面台の入れ替え程度のリフォーム行っていましたが、それ以外の内装工事は行っておりませんとお聞きいたしました。10 数年前に外装の塗装工事だけ行っておりました。

正面部分は、モルタル。側面と後ろ面は板金。

素材の違う材料にて施工されており、板金に関しては、かなり腐食も進んでおり、 外壁は全て解体し、新規でやり替えると判断いたしました。

大規模な間取りの変更と外壁の張替により、内部の解体だけでなく外壁も解体する内外部のスケルトンリフォームを提案させていただきました。躯体の状態(スケルトン状態)から耐震改修と断熱改修を行うことが可能になるため、性能向上リノベーションでのご提案となしました。


既存玄関部分

既存階段

薄暗い玄関部分。圧迫感があり狭く感じられます。

正面の階段もかなり急勾配で、先々を考えると掛け替えをご提案いたしました。
建物の顔となる玄関の印象が変わると、普段の生活も豊かになりますので、戸建てリノベーションプランでは玄関の解放感を演出するデザインを取り入れる事に致しました。


既存トイレ

昔ながらの和式兼用トイレです。
トイレの機能もありますが、玄関の正面にあるため来客時など、ご使用が不便ですし、いい印象にもなりません。
戸建てリノベーションのご提案では、方向向き等検討し、不快のない間取りをご提案いたしました。


既存 1階和室

既存 1階和室

昔ながらの和室の続き間です。

南側に仏間と床の間。続き間が居間として使われていました。
廊下が無い建物でしたので、和室を通って台所に行く間取りでした。続き間なので、広い間取りへのリノベーションプランは容易だと確信いたしました。


既存キッチン

既存キッチンから脱衣場へ

北東の建物の一番奥のキッチン。

10 年以上前に入れ替えと内装だけやり替えてありました。
只、一番奥にあるため普段の生活には、かなり御不便で大きな間取り変更に伴い、リノベーション後はキッチンも新調するようご提案しました。


既存浴室

既存脱衣場

40年間一度も手を入れてない浴室。
0.75 坪と昔は普通でしたが、今日では狭く感じます。 タイルとモルタルの為かなり、クラックがあります。
リノベーション(フルリフォーム)プランでは間取りの変更に伴い、場所の移動と1 坪タイプの 広々とした、システムバスへ取り換えるご提案を いたしました。

脱衣場は洗面化粧台は交換されていましたが、こちらも0.75 坪と狭いので、1 坪の広さを確保する 間取り提案をいたしました。


既存 2階和室

既存 2階洋室

既存 2階続き間

既存 2階ホール

2Fは続き間で使い勝手も悪く、既存階段の掛け替えと移動により大規模な間取り補変更をしなければなりません。

既存のままの改装は今後の生活にも支障が出るため、2Fも躯体状態にするスケルトンリフォームの御提案といたしました。

1-2 石川県金沢市Y様邸 戸建リノベーションプラン

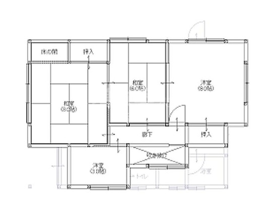
  間取りの変更プラン  

1階 戸建てリノベーション前平面図

2階 戸建てリノベーション前平面図

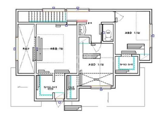
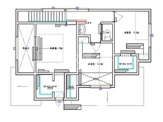
1階 戸建てリノベーション後プラン

2階 戸建てリノベーション後プラン

【リノベーション(フルリフォーム)コンセプト

昭和40年年代から50年代の昔ながらの間取りを、スケルトンリフォームによる今時の間取りに変更いたしました。
 

1Fは和室(居間)をメインとした間取りでしたが、ゆったりとしたLDKを確保。
前面道路とLDKが近い為、プライバシーを考え、吹抜けを設けて高窓を設置し、LDKの採光を確保。
階段は、急勾配でかなり不便を感じられたので、お客様の御希望を入れて掛け替えをご提案。
その上でご要望のリビング階段を今回のリノベーションでは採用いたしました。


1Fはファミリーの共有空間として間取りを設定し、大型のファミリークロークを設けました。


2Fは奥様の御希望により、トイレ以外の水栓のリクエストがあり、洗面化粧台を設置。
1Fまで降りなくても、ちょっとした水仕事も出来て、普段の御不便を解消いたしました。
2Fの各部屋にカウンターを設置し、読書や勉強に使え、市販品を買わずに済み、お部屋も広々使えます。


当社はY様の御希望通り、増築をせずご希望の間取りを実現する事が出来ました。
性能向上リノベーションにより、ご不安の耐震や断熱を解消いたしました。

2 戸建てリノベーション着工

2-1 制震工事

制震金物工法・・・・ガルコン

外壁までを解体するスケルトンリフォームをさせて頂くにあたり、せっかく梁・柱がむき出しにするのであれば、そこに制震金物を設置させて頂きました。新しい間取り図面をメーカーに提出し、適正な場所を指示頂き、設置いたしました。

これにより、制震能力の向上となり、ご安心してお住まい頂けます。

ガルコン分解図

ガルコンとは・・・

地震の振動エネルギーを吸収・分散させる金物です。
地震の揺れを約50%吸収し、揺れ幅を50%ほど抑える事が出来ます。
又、メイドインジャパンの高い品質を誇ります。
様々な公的機関での安全性・有用性が確認・認証されております。

隠ぺい部分に使用いたしますので、メンテナンスフリーです。
ガルコンの特殊粘弾性体は、マイナス15℃から80℃までの温度変化による変質が無く、その効果を60年以上維持いたします。お客様の経済的負担も少なくてすみます。

ガルコンは梁と柱の内側に取り付けます。コンパクトで施工性が良いためリフォームや耐震改修・寺社仏閣でも取り付け可能です。工期も1~2日程度でお客様の負担を最小限にとどめます。

 
2-2 断熱工事

アイシネン・断熱サッシ

アイシネンと断熱サッシ

アイシネン吹き付け

新築にも採用している、吹付断熱材(アイシネン)。
従来のグラスウールやロックウールに比べ、断熱効率が断然と良くなっております。
外周面の内壁をすべて解体することで充填断熱が可能となります。これはスケルトンリフォームならではの工事です。天井、壁はもちろん、床下も吹付しております。築40年ですが、新築同様の断熱性能を発揮します。

また、サッシを全て半樹脂、LOW-Eガラスとなったおり、サッシの断熱も万全となっております。

アイシネンとは・・・

高気密・高断熱の次世代断熱材です。
画期的なセル構造により、極めて水を吸いにくいウレタンフォームです。
優れた柔軟性があるため躯体に追従し剥離・脱落の心配がありません。
又、空気中の湿気を貯め込まない為、内部結露やカビの発生を抑制します。
フロンガスを一切使用せず、VOCの発生も極めて低いフォーム材です。

世界最高品質の証[生涯製品保証書]発行、長期に渡り品質が維持されています。

断熱サッシ:エピソードType S

アルミと熱電率の低い樹脂型材を組み合わせた、アルミ樹脂複合構造。
上下枠に断熱樹脂を挟み、より効果的にハイレベルな断熱性能を実現しています。

複層ガラスのガラス溝幅は26m/m。一般複層はもちろん防犯合わせガラス使用時にも、12m/m以上の中空層を確保でき、単板ガラスの約2倍の断熱性能を発揮します。

その為、冷暖房エネルギーを大幅に削減し、家計の負担を軽減いたします。

 

3 戸建てリノベーション竣工

3か月半の工事を経て、いよいよ竣工です。
戸建てリノベーション(フルリフォーム)工事、石川県金沢市Y様邸(築40年)の様子をご紹介します。


  =外観・外構==  

戸建てリノベーション(フルリフォーム)前

戸建てリノベーション(フルリフォーム)後

旧式のモルタルの外壁(一部板金)をスタイリッシュに、今回のリノベーションによりガルバリウム鋼板のタテリブ貼に変身いたしました。姿、形は同じですが、材料と色味の変化により、今時の住宅にフルリフォームされています。
正面の大きなFIX窓により、LDKに十分な光を取り入れ、かつプライベートの空間を実現いたしました。

又、当初は駐車スペースがありませんでしたが、前方の植栽スペースを排除し、ゆったりとした駐車スペースを確保いたしました。

ガリバニウム鋼板

ガリバリウム鋼板とは・・・

鉄ベースの合金板に特殊金属メッキが施されたものです。
メッキにアルミニュウムが55%、亜鉛43.3%ケイ素1.6%比率でできております。
この特殊メッキのおかげで、錆びにくく長持ちすることが出来ます。

又、亜鉛メッキとアルミメッキの長耐久性を持ち合わせているので、酸性雨に強い特徴を持っております。従来のトタン(ブリキ)などに比べると3~6倍の寿命が期待でき、メンテナンスをしっかり行えば、20年以上持ちます。

ガルバニウム鋼板は非常に薄い板で出来ております。それゆえ、とても軽い建材であり、家の基礎に負担をかけないので、他の建材に比べ、地震に際し建物への負担をかけません。

薄く着色性も良いので、スタイリッシュな印象を持たせることが出来ます。
メッキのアルミニウム含有率が高いため、アルミ鋼板に近い耐熱性を持っています。


  == 玄関 ==  

改装後 玄関

改装前 玄関

暗く収納部分が少ない玄関でしたが、スケルトンリフォームであったことからサッシの配置の自由度が上がり、リビング側の飾り窓と外壁面に大きなサッシを取り付けることで、解放感のあるスッキリとした玄関を演出いたしました。

収納も、手前に普段使いの下駄箱を設置しホール部分には大型のシューズクロークをもっていきました。これにより、玄関の物が全てかたずけられて、いつでも綺麗にすることが簡単にできます。


  == 1F キッチン(LDK) ==  

リノベーション(フルリフォーム)後 キッチン

リノベーション(フルリフォーム)後 キッチン

リノベーション(フルリフォーム)前

キッチンスペースですが、リノベーション前は北東の一番隅に追いやられいましたが、スケルトンリフォームをすることで間取りの自由度が上がり住宅の中央部分に配置し、念願の対面キッチンに生まれ変わりました。今まで一番薄暗い場所にありました家族団らんの中心になるように配置し、普段の家族の行動が把握できるようにいたしました。

あえて、ダイニングスペースは設けず、カウンター式で朝食やランチ程度は出来る大型カウンターを設けました。極力柱を抜く工事を避けるため、冷蔵庫スペースには壁が出来ましたが、目隠しとして機能させました。

キッチンはあえて、極力シンプルなものを選ばれました。最低限の機能だけを追求し、人工大理石の天板をあえて外し、SUS天板のキッチンになりました。

キッチンの色ですが、リビングからの視線が無いので、奥様の御希望となり、カップボードはリビングからの視線を考慮し、ナチュラル色で合わせさせて頂きました。

 

採用設備機器

システムキッチン:Panasonic V-style 2550m/m ステンレス天板 IHクッキングヒーター

カップボード:Panasonic V-style 1600m/m

 
 

  == 1F リビング ==  

リノベーション(フルリフォーム)後 リビング

リノベーション(フルリフォーム)後 リビング

リノベーション(フルリフォーム)後 リビング吹き抜け

リノベーション(フルリフォーム)前

リノベーション(フルリフォーム)前

大胆にリビング南東方向に吹抜けを設けました。それにより、上部からの採光が取れ 開放的なリビングが演出されました。又、玄関戸との間にもデザインサッシを設けて、暗かった玄関への明りも確保いたしました。

 

ファミリークローク

1Fキッチン横に3帖のファミリークロークを設けました。
普段使いの、衣服や買い置き品など、家族4人分を十分とれるスペースを確保。
仕事帰り、学校帰りなど、一度部屋に行かずに着替えなどでき、普段の日常生活を便利でかつ、ご負担も軽減されるスペース使いが出来ます。


  == 1F バス・脱衣所 ==  

リノベーション(フルリフォーム)後 システムバス
(マイクロバブルトルネード搭載)

リノベーション(フルリフォーム)後 脱衣場

リノベーション(フルリフォーム)前 浴室・脱衣場

浴室は1616(1坪)タイプのシステムバスを導入。既存と比べ浴槽も広々しています。
脱衣場も1坪確保しておりますので、ゆったり御着替えが出来るようになりました。
又、洗濯機をサンルームに設置することにより、広さを感じられるように致しました。

洗面化粧台につきましては、造作タイプをご提案。シンプルな脱衣場となっております。

 

採用設備機器

システムバス:Panasonic FZ 1616

マイクロトルネード:サイエンス

洗面台:造作 タモ修正+カクダイ洗面器

マイクロバブルトルネードとは・・・

マイクロバブルとは、直径1/1000m/mの極めて小さな泡のことです。通常、水の中で出来る気泡の大きさは直径数ミリ程度。マイクロバブルはその泡の1/1000以下という驚きの小ささ。極端に小さく、極小なゴミに付着して水面に浮上させる性質を持っています。

洗浄力・・
水と空気でできた超微細な気泡が、肌のすみずみまでの汚れや毛穴の奥の老廃物等に付着し浮き上がらせるほか、気になるニオイの元も洗い流します。

温浴力・・
身体中の毛穴に入り込んだ気泡が弾ける時に程よい刺激を与えてくれるので、身体の芯から温まります。お風呂上りに湯冷めしにくく、毎日温泉に入ったような気分が味わえます。


  == 1F サンルーム ==  

既存住宅にはございませんでしたが、スケルトンリフォームをしたことで新たにサンルームを設置。 約2.5帖あり、洗濯機を置いても家族4人分もゆったり物干しが出来ます。 キッチンにも近いので、奥様の動線も少なく済み、楽々に家事をこなす事が出来ます。

リノベーション(フルリフォーム)後 サンルーム


  == トイレ・洗面台 ==  

リノベーション(フルリフォーム)後 1階トイレ

リノベーション(フルリフォーム)後 2階洗面台

リノベーション(フルリフォーム)前 1階トイレ

1Fトイレですが、リノベーション(フルリフォーム)前は、昔の和式兼用便器でしたが、お手入れが楽な、タンクレストイレに大変身。入口横に手洗い器を別途設置し、快適なトイレ空間となりました。

又、入口が玄関方向に向いていましたが、間取りを横に向け、直接トイレが見えないように配慮いたしました。

2F洗面台は、奥様のご要望により設置いたしました。ちょっとした事で、1Fまで降りる不便をなくしました。

 

採用設備機器

トイレ

1F Panasonic アラウーノS+アラウーノ手洗い器

2F Panasonic アラウーノV

2F Panasonic エムライン 間口 750


  == 2F 寝室・子供部屋 ==  

リノベーション(フルリフォーム)後 2階寝室

リノベーション(フルリフォーム)後 2階寝室

2F主寝室です。 吹抜けに面してるところに、サッシを設置し、南側の採光を確保。 カウンタースペースを設けて、ちょっとした書斎として使えるようにいたしました。 その横手に、1帖のウオークインクローゼットを設けてあります。

 

リノベーション(フルリフォーム)後 2階子供部屋A

リノベーション(フルリフォーム)後 2階子供部屋B

2F子供部屋です。

両部屋共、勉強カウンターとウオークインクローゼットを設置。
大型収納を完備することで、後々の家具等を購入しなくてすみますので、これから先の、家計のご負担を減らせることが出来ます。

4 担当者より(株式会社さくら)
 

 

Y様、この度はご依頼をいただき、誠にありがとうございました。

石川県の他のリフォーム事例を見る

石川県

金沢市・野々市・能美市・白石市・小松市・加賀市・かほく市・羽昨市

この事例と似たテーマカテゴリーを見る

全国のフルリフォーム・リノベーション『ピックアップ事例』※プロの詳細解説付きレポート

HEAT20-G2/耐震等級3
新耐震基準の性能向上リノベーション
築30年ハウスメーカー軽量鉄骨
断熱改修&リノベーション
 
中古住宅を新築以上の耐震性能と断熱性能へ!
耐震等級3フルリフォーム
地下付き木造2階建て
自然素材をつかった性能向上リノベーション&フルリフォーム

東京都文京区 K様邸

長屋を切り離して1つの構造体へフルリフォーム&リノベーション
隣家との距離がない!
部屋から外壁を張り替えるフルリノベーション
中古住宅を耐震等級3へ!
中古住宅リノベーション
 
基礎がない??
築60年の古屋をジャッキアップで基礎新設フルリノベーション

東京都渋谷区 O様邸

戸建てリノベーション・リフォームに関するお問合せはこちら

増改築.comの一戸建てリフォーム専用ホームページに
お越しいただき、誠に有難うございます。
 
増改築.comメンバーは技術集団となり、
他社のような営業マンがおりません。
技術者が直接ご相談にのり問題解決を行います。
 
従いまして、
お客様の方である程度のご要望が整理されました段階、
お悩みが工事内容のどのようなところにあるのか?
ご予算がどの程度絞る必要があるのか?
など明確になった段階でのご相談をお願いしております。
お問合せ・ご相談はお電話・メールにて受け付けております。
メールの場合は以下のフォームに必要事項をご記入の上、
「送信する」ボタンをクリックをお願いします。

代表稲葉高志

戸建てリノベーションの専属スタッフが担当致します。
一戸建て家のリフォームに関することを
お気軽にお問合せください

よくあるご質問
  • 他社に要望を伝えたところできないといわれたのですが・・・
  • 他社で予算オーバーとなってしまい要望が叶わないのですが・・・
  • サービスについて詳しく聞きたいのですが・・・

どのようなお悩みのご相談でも結構です。

あなたの大切なお住まいに関するご相談をお待ちしております。

営業マンはおりませんので、しつこい営業等も一切ございません。

設計会社(建築家様)・同業の建築会社様のご相談につきましては、プランと共にご指定のIw値及びUa値等の性能値の目安もお願い申し上げます。

2026年の大型補助金が確定したことで現在大変込み合っております。

耐震性能と断熱性能を向上させるフルリフォームには6か月~7か月の工期がかかります。

補助金獲得には年内に報告を挙げる必要があることから、お早目にご相談をお願いいたします。(6月着工までが目安

ご提案までに大変お時間がかかっております。ご了承のほどお願い申し上げます。

(5月までの着工枠が埋まりました)・・・2026/03/01更新

※すでにプランをお持ちのお施主様・設計資料をお持ちのお施主様は内容をフォームで送信後、フォーム下のメールアドレスに資料をお送りください。対応がスムーズです。

必須

(例:増改築太郎)

必須

(例:contact@high-will.co.jp)

(例:03-5615-2826)

必須

(例:東京都荒川区西日暮里2-35-1)

(例:築40年)

(例:25坪・100㎡など)

(例:2000万程度など)

  • ※再建築不可のリフォームでは金融機関が限られます。事前審査をお勧めいたします。

    (例:2024年3月くらいに完成希望など)

    必須

    できるだけ具体的にお知らせくださいませ。既存設計資料、リフォーム後のイメージ図等をお持ちであれば下記のメールアドレスより添付をお願いします。

    ※次の画面がでるまで、4~5秒かかりますので、
    続けて2回押さないようにお願いいたします。

    ※次の画面が出るまで、4〜5秒かかりますので、
    続けて2回押さないようにお願いいたします。

    図面や写真等を送信いただく場合、また入力がうまくいかない場合は、上記内容をご確認のうえ、下記メールアドレスまでご連絡ください。

    お電話でのお問合せはこちら

    0120-246-991

    営業時間:10:00~17:00(土日祝日を除く)

    ★YouTube「増改築.comチャンネル」チャンネル登録して新動画解説をいち早くGET!!★
    「増改築.comリノベ診断」であなたに一番ふさわしいフルリフォームを診断!!(動画解説付き)
    ★Facebookページにいいね!を押して最新コンテンツ情報をいち早くGET!!★
    パソコン|モバイル
    ページトップに戻る