戸建フルリフォームなら「増改築.com®」TOP施工事例神奈川県横浜市>T様 中古住宅フルスケルトンリフォーム

横浜市T様 中古住宅フルスケルトンリフォーム

横浜市T様邸
横浜市T様邸_竣工
横浜市T様邸_竣工
横浜市T様邸_竣工
横浜市T様邸_竣工
横浜市T様邸_竣工
横浜市T様邸_竣工
建物概要
名前 T様
場所 横浜市港北区
築年数 築21年
構造種別 木造戸建
家族構成 大人2人
対象面積 26.2坪
工期 3ヶ月
価格 2080万

お客様のご要望

予算内でできる限りリフォームをしたい。

中古住宅を購入され限られた予算のなかでリフォームを行いたい。というのがお客様のご要望でした。

プランニングのポイント

 

T様ご夫婦は横浜市で中古住宅をご購入されたのを機に

弊社へ中古住宅一戸建てのリフォームのご要望を頂きました。

当初はスケルトンリフォームの予定はなく

予算内でできる限りリフォームできる

ところまでやりたいというご要望からのご相談でした。

 

既存建物は築21年の木造一戸建て中古住宅。

既存の間取りは

 

・1階 和室を1部屋+LDK+浴室+トイレ

・2階 洋室3部屋+トイレ

 

の間取りです。

横浜市で中古住宅一戸建てを購入され、

限られた費用予算のなかでリフォームを行った

横浜市T様の一戸建て(一軒家)中古住宅

フルスケルトンリフォームの既存から完成までの流れを

お伝えさせて頂きたいと思います。

 

今回の場合は、工事の種類としては、

内外部スケルトン(躯体残し)リフォームの施工事例となります。

横浜市T様邸 戸建てリノベーション施工事例テーマカテゴリー

  • 中古(住宅)を買ってリフォーム&リノベーション 
  • 内外部スケルトンリフォーム

打合せから完成まで

1 着工前

1-1 打合せ

T様は横浜市で中古住宅を購入されて

どの様な手順で一戸建てリフォームを進めて良いか

今住んでいる家の家賃もタイトに抑えたいので、

トータルでかかる費用をできる限り抑え

一番スムーズな流れはどうすれば良いか

を悩まれていました。

 

T様の場合はギリギリまで前の今回の横浜市の建物に、

売り主様が住まわれていたため、

室内の状況をみることができず、

外回りから判断できる部分でのお話からのスタートとなりました。

一戸建てのスケルトンリフォームをすることになり、

内部をすべて解体する形であったため

既存設計図を基に見積・プランを提案させて頂いて

中古住宅の一戸建てフルスケルトンリフォームの

ご契約まで進ませて頂きました。

横浜市T様邸_施工前

横浜市の今回の建物は売り主様がギリギリまで住んでいらっしゃたので、お施主様と弊社職人等が中を見られたのが着工1週間前でした。幸い既存の状態が図面とほぼ建物の柱・壁の位置は変わらなかったので、着工、そして解体はスムーズに進めることができました。

1-2 提案
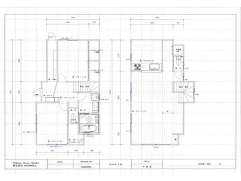
■ 新規図面 ■

中古住宅の一戸建てフルスケルトンリフォーム後は、1階にシューズクロークスペースを作り洋室を2部屋 浴室・洗面室・トイレを設置します。2階はワンフロアでLDKでレイアウトをさせて頂きました。間取り変更を伴う中古住宅の一戸建てフルスケルトンリフォームの場合、耐力壁が重要となってきます。プラン上、1階で耐力壁を多用している為、1階の構造はしっかりと組まれています。2階はワンフロアにさせて頂くので、どうしても残しておきたい耐力壁があるため、こちらは残す方向で提案させて頂きました。

■ 中古住宅一戸建てリフォーム後イメージ図 ■
横浜市T様邸_イメージ図
■ 中古住宅 一戸建てリフォーム後イメージ図 ■
横浜市T様邸_イメージ図
■ 中古住宅一戸建てリフォーム後イメージ図 ■
横浜市T様邸_イメージ図
■ 中古住宅 戸建てリフォーム後イメージ図 ■
横浜市T様邸_イメージ図

既存の外壁サイディングも剥がし、今回の中古住宅フルスケルトンリフォーム後は新たなガルバリウム鋼板での外装工事が予定されているため、今回の中古住宅リフォームは躯体残しの完全なスケルトンリフォームとなります。

■ 中古住宅 一戸建てリフォーム後イメージ図 ■
横浜市T様邸_イメージ図

以下は既存の各部屋の状態です。

一番最後に完成afterの竣工写真が掲載されています。

横浜市T様邸_施工前

既存階段の位置は同じになります。一戸建てリフォーム後には勾配が今より緩やかに変えます。

横浜市T様邸_施工前

既存1階洋室は、収納を多く取り窓を1箇所腰窓にします。

横浜市T様邸_施工前

脱衣室は一戸建てリフォーム後には今より大きく取る様レイアウト致しました。

横浜市T様邸_施工前

一戸建てリフォームの際のご要望の多くは、1216サイズの浴室から1616サイズへの変更です。築30年以上の戸建ての場合1216(0.75坪)であることが多く、現在の戸建の標準サイズである1坪サイズの1616への変更をご希望されるお施主様は大変多いです。今回の横浜市のT様も1216サイズから1616サイズへサイズアップをします。

横浜市T様邸_施工前

こちらの和室もですが、和室は洋室へと変更となります。

横浜市T様邸_施工前

戸建てリフォーム後の階段勾配は緩やかに設計しました。

2 着工

2-1 解体

今回の横浜市の中古住宅戸建てリフォーム【スケルトンリフォーム】の工期は、

2015年11月4日~2016年2月5日(年末・年始挟む)約3ヶ月頂きました。

今回は外壁も解体しての、

骨組だけ残る中古住宅 戸建てリフォーム【スケルトンリフォーム】になります。

横浜市T様邸_解体

さっそく解体スタート風景から。着工するとすぐ解体作業になります。
今回の横浜市T様のお住まいは解体工事は約8日間で、内部・外部を解体する工程を組みました。構造は予測してたよりもしかっりとした造りでした。

横浜市T様邸_解体

ここで功を奏したというか、費用面で有利になったのは、既存のサイディングの下地がなかったことです。つまり構造耐力壁がなかったことです(本来、構造的に良くはありませんが。。)中からみるとわかりますが、サイディングが見えています。つまり下地がない。

横浜市T様邸_解体
横浜市T様邸_解体
横浜市T様邸_解体

T様の中古住宅リフォームでも発覚したことですが、このようなスケルトンリフォームでは内壁を剥がした際にたまに見かけることがありますが、エアコンドレンの穴が筋違を苛めてしまっている現場がまれにあります。T様邸も解体し、1箇所筋違が下記の様に穴が開けられてました。以前住んでいた方が量販店でエアコンを購入した際にエアコン屋が設置の際に穴をあけたようです。耐力が弱まってしまいますのでこれらはやり替えを提案しました。本来は建築会社へ施工を依頼する方が確実です。

横浜市T様邸_解体

T様邸で、1箇所主要構造部で腐食していた箇所がありました。1階通し柱の箇所です。ここは通し柱なので簡単に抜いて入れ替えるわけには行きません。補強をしながらの工事を提案させていただきました。サイディングの納め方に問題がありました。このように解体をするとその建物の施工が甘い箇所が露呈していきます。

横浜市T様邸_解体

内部の解体が一通り終わると外壁サイディングを剥がしていきます。

横浜市T様邸_解体
横浜市T様邸_解体

下地の構造合板はありません。

横浜市T様邸_解体
横浜市T様邸_解体

解体が人通り終わる段階で、スケルトン状態になりました。今回のケースは外壁も解体している為、施工期間中に既存の構造部を傷めない様に外壁部全面に養生をしていきます。

横浜市T様邸_解体

解体後耐力的に危ないところは補強を加えながらスケルトンリフォーム後の間取りを作っていきます

横浜市T様邸_解体

スケルトンにしてあらわになる既存の母屋組。野地は増し張りをします。

横浜市T様邸_解体

シートが飛ばないようにビスで仮止めをしていきます。

横浜市T様邸_解体
横浜市T様邸_解体
横浜市T様邸_解体

スケルトンになった状態で全面の養生が終わりました。

横浜市T様邸_解体

大工の構造施工、木工事が終わるまで養生をします。

2-2 補強

解体工事が終わると1階床の下の基礎工事に移行していきます。

横浜市T様邸_補強
横浜市T様邸_補強
横浜市T様邸_補強

鋤取り作業をして砕石を敷いていきます

横浜市T様邸_補強
横浜市T様邸_補強

布基礎の状態からベタ基礎へと基礎補強していく流れになりますのでベタ基礎の高さのレベル出し(墨出し)をしていきます。

横浜市T様邸_補強
横浜市T様邸_補強

新たに間仕切りとなる箇所へは新たな布基礎を新設します。そのため配筋に立ち上がりをつけます。

横浜市T様邸_補強

新しい間取りには新たな布基礎を立ち上げる必要がありますので、型枠を作りコンクリートを流していきます。新たな布の上に新規の土台が設置されることになります。

横浜市T様邸_補強

このように、新たな間取りとなる間仕切り部分に型枠を作り布基礎新設の準備に入ります。

横浜市T様邸_補強

生コンクリートを打設しました。

横浜市T様邸_補強

このアンカーが立ち上がっている布基礎の上に新たな土台が乗り、柱が建てられていく事になります。

2-3 木工事

基礎工事が終わると次が大工工事へ移行しています。

横浜市T様邸_木工事

新しい間取りに合わせて布基礎を新設した部分へ土台、大引を設置していきます。土台はアンカーボルトで緊結します。

横浜市T様邸_木工事
横浜市T様邸_木工事

お客様立ち合いのもと構造材がぞくぞく現場に運ばれてきます。

横浜市T様邸_木工事

今回のT様の中古住宅フルスケルトンリフォームは、

戸建てスケルトンリフォームですが、

外部も解体し、完全な躯体残しにする戸建スケルトンリフォームになります。

通し柱や主要な構造は残しながら補強、

補正をくわえていくことになります。

T様邸は築21年なのですが、

補強面で問題はありましたが、

傾き度合いが悪いという建物ではありませんでした。

お客様立ち合いのもとでハイウィル大工が

レーザーで当てて確認をさせて頂きましたが、

6mmしか傾きは有りませんでした。

これは優秀です。

改築を一年中やっている弊社では、

毎日このような建物をみていますが、

築20年超であれば

もう少し傾いている住宅も珍しくはないのです。

 

この傾きに関しては構造の作業に入る前に、

ジャッキーで引っ張って補正をしていきます。

このように建物を引っ張り補正する際に、

既存の外壁(特にモルタル壁など)がある場合、引っ張ることが

大変な作業になることと補正したことで、

ヒビが入ってしまうケースなどがあります。

※何センチも傾いている場合

横浜市T様邸_木工事

今回のT様の外壁を全て取り払っている為、躯体のみを補正することが可能であるため外壁を残している状態よりもスムーズに補正が可能です。

横浜市T様邸_木工事

今回の中古住宅フルスケルトンリフォームで最もポイントとなるのがリビングルームになります。2階は開放的なLDKにする為に旧柱を抜きましたので、天井裏に大スパン走らせるための梁背の高い新規梁を入れて補強していきます。

横浜市T様邸_木工事

大工工事と同時に給水・給湯・排水の工事も新規設備機器に合わせて先行配管をしていきます。弊社の場合は解体・鳶・大工・電気・水道職人はチームで担当しますので、コミュニケーションが重要な工事ではスムーズに現場が運ぶような体制を必ずとります。

横浜市T様邸_木工事
横浜市T様邸_木工事

間柱は新規となりますので新規で建てていきます。見てのとおり新築と変わらない材木量であることがわかります。

横浜市T様邸_木工事

残さなくてはならない躯体部分。柱を抜く箇所、梁を入れて補強する箇所、間取り変更により新たに柱を新設する箇所など構造の変化がわかるかと思います。ハイウィルは女性プランナーも現場に出て、施工管理の補佐をします。

横浜市T様邸_木工事

内部の構造が終わると、いよいよ外部の施工に入ります。既存住宅では躯体にそのままサイディングが貼ってありましたので耐力が弱かったため、耐力をあげるために外周部の壁面全面にガルバリウム鋼板仕上材の下地となるの構造用合板を建物の全面に張っていきます。

横浜市T様邸_木工事

外周面全体に構造用合板を張り壁倍率を確保します。

横浜市T様邸_木工事

外周面の構造用合板張りが完了し、室内からみますと既存躯体と壁が一体となっているのがわかるかと思います。室内側より補強を加えた後断熱材を入れることになります。

横浜市T様邸_木工事

建物全面に構造用合板の張りつけが終わりました。

横浜市T様邸_木工事

全面に構造用合板が張り終わると、次は外壁面に防水シートを張っていきます。その後、ガルバリウム鋼板仕上となります。

横浜市T様邸_木工事

全体に構造用合板を貼り、サッシが入る箇所は仮止めで止めています。

横浜市T様邸_木工事

サッシが納品されて、サッシを取り付けていきます。

横浜市T様邸_木工事

玄関サッシが納入されてきました。

横浜市T様邸_木工事

サッシが枠共に設置されました。

横浜市T様邸_木工事

半外タイプで納めています。

2-4 耐震工事
2-5 断熱工事

大工は合板を張り終え、断熱施工へと移っていきます。

横浜市T様邸_断熱工事

断熱材を壁・床・2階天井に入れていきます。

横浜市T様邸_断熱工事

今回のT様の中古住宅,スケルトンリフォームでは家族が一番長時間居住するリビングは予算費用を多めに充当し規格品のフロアではなく、温かみのある無垢フローリング「アカシア」を選定しました。無垢材なので1本1本に表情があります。LDKの壁仕上は漆喰です。これから木製建具等表装材が納品されてきます。

2-6 外壁工事
横浜市T様邸_外壁工事

T様の今回のケースでは、何度もお話した通り、外部は旧サイディングからガルバリウム鋼板仕上げとなる中古住宅リフォーム工事です。構造用合板が貼り終わった後は防湿シートを貼っていきます。

横浜市T様邸_外壁工事

サッシ廻りや軒天下などは気密防水用のテープを入念に貼っていきます。

横浜市T様邸_外壁工事

何度か他の施工事例でもご紹介しておりますが、お施主様にはスケルトンリフォームをした際にスケルトン状態の躯体部(骨組)を見ていただくのですが、この時に窓周りのザラ板が腐食している例を紹介しました。

横浜市T様邸_外壁工事

これらは窓周りの雨仕舞の施工が原因となっていることが多く、しっかりとやらなければならないところになります。

横浜市T様邸_外壁工事
横浜市T様邸_外壁工事

防湿シートを張り終えたら、通気層をつくるために通気胴縁を打っていきます。

2-7 内装工事

外部工事と同時進行で屋内工事も進んでいきます。

横浜市T様邸_内装工事

新築でもリフォームでも1番最初に入る住宅設備機器はユニットバスになります。今回T様邸のユニットバスはTOTOサザナ1616サイズ(1坪)です。浴室換気乾燥暖房器/手摺1箇所/ドアをブラックに/をオプションで付けさせて頂いております。

横浜市T様邸_内装工事

ユニットバスはメーカー施工になります。搬入・設置で平均1日で施工は終わります。

横浜市T様邸_内装工事
横浜市T様邸_内装工事
横浜市T様邸_内装工事
横浜市T様邸_内装工事

T様邸の中古住宅スケルトンリフォームは2階LDKを無垢フローリングになります。先日納品された無垢フローリングが貼られました。無垢フローリングは温かみがありますね。

横浜市T様邸_内装工事
横浜市T様邸_内装工事
横浜市T様邸_内装工事

外壁は通気胴縁を打ったあとに防水検査をし、水漏れがないことを確認したあとにガルバリウム鋼板を貼り始めています。今回使用したガルバリウム鋼板はスマートスパン柄のコモンブラック縦張りです。こちらの商品はここ最近かなり人気があるように思います。

横浜市T様邸_内装工事

水切りを設置後サイディング(ガルバリウム鋼板)を張り始めていきます。

横浜市T様邸_内装工事

屋外工事と並行して屋内工事は大工が作業を進めています。断熱材を充填後、天井にはボードが貼られています。

横浜市T様邸_内装工事

階段はPanasonicのベリティスです。既存階段よりも勾配を緩やかにしてあります。

横浜市T様邸_内装工事

サッシ廻りの枠工事は玄関の室内枠を付けて終了です。

横浜市T様邸_内装工事

化粧のボード材が搬入されました。1階のWICと2階TV設置面に使用します。

大工はこれらをしあげると次の中古住宅リフォームの現場へと移動します。

残りは2階LDK漆喰工事やクロス貼・設備機器の設置等表装工事になります。

横浜市T様邸_内装工事

漆喰を塗るリビングは窓枠廻り、巾木廻りを丁寧に養生をしていきます。ボードとボードの溝はテープを貼っていきます。

横浜市T様邸_内装工事
横浜市T様邸_内装工事
横浜市T様邸_内装工事

専用の第1工程の下地パテをしていきます。

横浜市T様邸_内装工事
横浜市T様邸_内装工事
横浜市T様邸_内装工事

第2工程の下地パテは1度めのより大きめの幅に塗ります。

横浜市T様邸_内装工事
横浜市T様邸_内装工事

耐力壁のタイガーグラスロックやべニア下地はそのまま塗ってしまうと灰汁が出てしまいます。灰汁が出ない様丁寧にシーラーを塗っていきます。

横浜市T様邸_内装工事
横浜市T様邸_内装工事

最後仕上げ材である漆喰を塗っていきます。

横浜市T様邸_内装工事
横浜市T様邸_内装工事
横浜市T様邸_内装工事

フラットな仕上げをT様が要望されていましたので、高度な技術が必要となってきます。

横浜市T様邸_内装工事
横浜市T様邸_内装工事
横浜市T様邸_内装工事

30㎡位だと1日で仕上げられます。今回T様の中古住宅スケルトンリフォームで使用した漆喰材は、クロスの上から塗る事も可能な商品です。

横浜市T様邸_内装工事
横浜市T様邸_内装工事

2階LDKの内装が終わる工程に合わせシステムキッチンが納品されてきます。今回はトクラスさんのBbです。梱包は1部屋埋まる程の梱包数になります。この梱包を外し、整えるので結構な時間も掛かります。

横浜市T様邸_内装工事

事前に給排水や電気・換気の位置出しは承認図の指示に従い準備済みです。

横浜市T様邸_内装工事

そこへ、新規キッチンを設置していきます。キッチンパネルを張り、キャビネットを組み立てていきます。

横浜市T様邸_内装工事
横浜市T様邸_内装工事

設置し終わったら養生をし、後日電気・ガス・水道の結びの最終工程を待ち完成となります。

横浜市T様邸_内装工事

外構工事も大方終わり長かったT様の中古住宅リフォームもいよいよ足場が撤去される段階に入ります。

横浜市T様邸_内装工事

玄関入ってすぐ脇の空間を土足のまま入れるWICになっています。右側に写っているのは通常構造用パネルで使用されるOSBを仕上げにしています。左側に写っているのは有孔合板です。こちらは黒板塗料を最後に塗装します。床はモルタル塗りで無機質なイメージで仕上げます。

横浜市T様邸_内装工事

1階洋室2部屋です。ほぼこちらは完成で後は養生を取るのみです。

横浜市T様邸_内装工事

2階は電気のプレート等の取付、段廻りのクロスが貼りが残っていて、こちらも後は養生を剥がすのみとなりました。写真だと壁はクロスの様に見えてしまいますが、漆喰仕上げです。

横浜市T様邸_内装工事
横浜市T様邸_内装工事
横浜市T様邸_内装工事
横浜市T様邸_内装工事
横浜市T様邸_内装工事

クリーニング工事が入り細かいチェックや建具調整等でいよいよお引渡になります。長かった囲い(養生と足場】が外されました。あとはお引渡前のクリーニングを待つのみです。

横浜市T様邸_内装工事

照明器具はお施主様が用意して頂いた器具は事前に付けさせて頂いてます。

横浜市T様邸_内装工事

2階の無垢フローリングの養生も外されました!今回の無垢フローリングはアカシアを使用しております。

横浜市T様邸_内装工事

追加でご依頼を頂きました外部ウッドデッキを造作中です。

横浜市T様邸_内装工事
横浜市T様邸_内装工事

玄関脇の土足で入れるWICの床の左官仕上げます。

横浜市T様邸_内装工事

養生が外されて、クリーニング作業も終了しました。最後の細かいチェック作業をお引渡までのお日にちでやらせて頂く段階に入ります。2階リビングの造作壁面は真ん中はTVが設置予定です。両脇は可動棚を設置しております。

横浜市T様邸_内装工事
横浜市T様邸_内装工事
横浜市T様邸_内装工事
横浜市T様邸_内装工事
横浜市T様邸_内装工事

お引渡まであと少しです。細かいチェックにチェックを重ね万全な体制でお引渡をさせて頂きます。

3 竣工

中古住宅をご購入後の戸建てスケルトンリフォーム工事をさせて頂いている、横浜市T様邸。工事期間約3ヶ月半、いよいよ竣工いたしました。

3-1 外壁 Before → After
横浜市T様邸_施工前

サービス提供前

外壁も全て解体をし、骨組だけに残してのスケルトンリフォームでした。全て新規お取替です。既存サイディングを剥がした後に、構造用合板を外周面全面に張り、防湿シート張り後、通気胴縁を打ってガルバリウム鋼板を張っています。

横浜市T様邸_竣工
横浜市T様邸_竣工
3-2 キッチン Before → After
横浜市T様邸_施工前

サービス提供前

既存キッチンはもともと1階にありました。

2階はワンフロアでLDK+トイレです。抜けない柱・耐力壁を活かしてのレイアウトです。キッチンはトクラスBb I型2550サイズです。オープンにする為に吊り戸は付けてません。

横浜市T様邸_竣工
横浜市T様邸_竣工
3-3 バス Before → After
横浜市T様邸_施工前

サービス提供前

ユニットバスはTOTOサザナ1616サイズです。お風呂も黒を基調としてアクセサリーを選定されています。

横浜市T様邸_竣工
3-4 洗面 Before → After
横浜市T様邸_施工前

サービス提供前

階段勾配の下に洗濯機パンを設置し洗面化粧台はPanasonicシーライン間口900です。

横浜市T様邸_竣工
3-5 トイレ Before → After
横浜市T様邸_施工前

サービス提供前

トイレはハイウィルオリジナルトイレです。

横浜市T様邸_竣工
3-6 和室から洋室へリフォーム Before → After
横浜市T様邸_施工前

サービス提供前

和室は全て無くし、洋室に変えさせて頂きました。1間の収納を2セット、たっぷりの収納量です。

横浜市T様邸_竣工
横浜市T様邸_竣工
3-7 玄関 Before → After
横浜市T様邸_施工前

サービス提供前

玄関入ってすぐの扉だけ、フォーカルポイントとしてT様がウッドワンへ行ってご選定頂いた無垢の扉です。

横浜市T様邸_竣工
横浜市T様邸_竣工

玄関照明はアンティークな照明をご用意頂いて設置させて頂きました。

横浜市T様邸_竣工

シューズクロークに入って左壁面は有孔ボードに黒板塗料を塗ってあります。

横浜市T様邸_竣工

玄関脇は既存和室スペースを解体しシューズクロークを大きくとりました。全体の木目に合わせて棚板も木で納めさせて頂きました。
 

3-8 洋室 Before → After
横浜市T様邸_施工前

サービス提供前

トイレはハイウィルオリジナルトイレです。

横浜市T様邸_竣工

1階洋室は裏が森林なので、窓ガラスは透明にしてあります。右側の腰窓はすぐお隣さんなので型ガラスで納めさせて頂いてます。

横浜市T様邸_竣工
横浜市T様邸_竣工
3-9 階段 Before → After
横浜市T様邸_施工前

サービス提供前

新規階段は緩やかな勾配に変え、手摺を設置させて頂いてます。

横浜市T様邸_竣工
3-10 リビング Before → After
横浜市T様邸_施工前

サービス提供前

2階はワンフロアでLDK+トイレです。抜けない柱・耐力壁を活かしてのレイアウトです。

横浜市T様邸_竣工

TV設置場所両脇には可動棚を設置しました。

横浜市T様邸_竣工

床は無垢フローリングアカシアです。

横浜市T様邸_竣工
横浜市T様邸_竣工

キッチン袖壁は黒板塗料をぬってあります。

横浜市T様邸_竣工

キッチン脇には収納スペースです。

横浜市T様邸_竣工
横浜市T様邸_竣工
横浜市T様邸_竣工

今回の中古住宅一戸建てリフォームは、

柱残しのスケルトンリフォームになり、

モルタル壁の住宅ではなくサイディング、

しかも下地がないという施工側にとっては

解体費用が嵩まないためお客様にも費用的なメリットを還元した上で

躯体の補強を施すことができました。

※逆に外部をそのままでリフォームしていた場合耐震的にはかなり不安な状態

このように一戸建てのスケルトンリフォームは、

壊してから構造の問題点が少なからず出て参ります。

その際に通常のリフォーム会社では都度、

職人と協議し、追加、追加という形で

お客様とお話する形が大半になります。

解体してから「え!!さらにこんなに費用がかかるの!?」

というケースが

一戸建てのスケルトンリフォームでは大半ではないでしょうか?

そのようなことの無いように、

弊社では、木造の改築に関しては、管理する人間、

監督自身が元棟梁であるべきだとしております。

つまり、解体する前に予測をして前もってそのような費用も、

初期に見積もりに含んで提案をしておりますので、

構造的な部分での追加等は極力ないように心がけております。

 

扱う金額もリフォームというくくりで考えますと、

大きな金額になって参りますので、

現場調査の精度によって数百万のかい離がでることもございます。

 

このような大規模な改築を検討される方は、

現場を見れる、精度の高い施工会社へ

相談されることを強くお勧めいたします。

 

ハイウィルコーポレートサイトにも今回紹介させていただきました

横浜市T様邸中古住宅リフォームが掲載されています。

 

ハイウィルスタッフ

担当者より ハイウィル株式会社四代目代表 稲葉高志

T様ご夫婦は、中古住宅を購入し建て替えではなく戸建スケルトンリフォームを選択されました。予算を空間の素材に当てたいというご要望がありましたため、躯体の耐震補強(外周面の我部補強含む)は弊社よりご提案させていただき内装材等に厚めに費用ウェイトを置きました。その分、水周り設備機器につきましては、比較的リーズナブルな商品で全体の費用バランスをうまくとることが出来、結果として予算内で安心できる建物かつご要望にかなうデザインとなりました。大変お喜びいただけてこちらも工事冥利につきます。

神奈川県の他のリフォーム事例を見る

神奈川県

横浜市川崎市・相模原市・茅ヶ崎市・藤沢市・鎌倉市・逗子市・平塚市・小田原市・横須賀市三浦郡

この事例と似たテーマカテゴリーを見る

全国のフルリフォーム・リノベーション『ピックアップ事例』※プロの詳細解説付きレポート

HEAT20-G2/耐震等級3
新耐震基準の性能向上リノベーション
築30年ハウスメーカー軽量鉄骨
断熱改修&リノベーション
 
中古住宅を新築以上の耐震性能と断熱性能へ!
耐震等級3フルリフォーム
地下付き木造2階建て
自然素材をつかった性能向上リノベーション&フルリフォーム

東京都文京区 K様邸

長屋を切り離して1つの構造体へフルリフォーム&リノベーション
隣家との距離がない!
部屋から外壁を張り替えるフルリノベーション
中古住宅を耐震等級3へ!
中古住宅リノベーション
 
基礎がない??
築60年の古屋をジャッキアップで基礎新設フルリノベーション

東京都渋谷区 O様邸

戸建てリノベーション・リフォームに関するお問合せはこちら

増改築.comの一戸建てリフォーム専用ホームページに
お越しいただき、誠に有難うございます。
 
増改築.comメンバーは技術集団となり、
他社のような営業マンがおりません。
技術者が直接ご相談にのり問題解決を行います。
 
従いまして、
お客様の方である程度のご要望が整理されました段階、
お悩みが工事内容のどのようなところにあるのか?
ご予算がどの程度絞る必要があるのか?
など明確になった段階でのご相談をお願いしております。
お問合せ・ご相談はお電話・メールにて受け付けております。
メールの場合は以下のフォームに必要事項をご記入の上、
「送信する」ボタンをクリックをお願いします。

代表稲葉高志

戸建てリノベーションの専属スタッフが担当致します。
一戸建て家のリフォームに関することを
お気軽にお問合せください

よくあるご質問
  • 他社に要望を伝えたところできないといわれたのですが・・・
  • 他社で予算オーバーとなってしまい要望が叶わないのですが・・・
  • サービスについて詳しく聞きたいのですが・・・

どのようなお悩みのご相談でも結構です。

あなたの大切なお住まいに関するご相談をお待ちしております。

営業マンはおりませんので、しつこい営業等も一切ございません。

設計会社(建築家様)・同業の建築会社様のご相談につきましては、プランと共にご指定のIw値及びUa値等の性能値の目安もお願い申し上げます。

2026年の大型補助金が確定したことで現在大変込み合っております。

耐震性能と断熱性能を向上させるフルリフォームには6か月~7か月の工期がかかります。

補助金獲得には年内に報告を挙げる必要があることから、お早目にご相談をお願いいたします。(6月着工までが目安

ご提案までに大変お時間がかかっております。ご了承のほどお願い申し上げます。

(5月までの着工枠が埋まりました)・・・2026/03/01更新

※すでにプランをお持ちのお施主様・設計資料をお持ちのお施主様は内容をフォームで送信後、フォーム下のメールアドレスに資料をお送りください。対応がスムーズです。

必須

(例:増改築太郎)

必須

(例:contact@high-will.co.jp)

(例:03-5615-2826)

必須

(例:東京都荒川区西日暮里2-35-1)

(例:築40年)

(例:25坪・100㎡など)

(例:2000万程度など)

  • ※再建築不可のリフォームでは金融機関が限られます。事前審査をお勧めいたします。

    (例:2024年3月くらいに完成希望など)

    必須

    できるだけ具体的にお知らせくださいませ。既存設計資料、リフォーム後のイメージ図等をお持ちであれば下記のメールアドレスより添付をお願いします。

    ※次の画面がでるまで、4~5秒かかりますので、
    続けて2回押さないようにお願いいたします。

    ※次の画面が出るまで、4〜5秒かかりますので、
    続けて2回押さないようにお願いいたします。

    図面や写真等を送信いただく場合、また入力がうまくいかない場合は、上記内容をご確認のうえ、下記メールアドレスまでご連絡ください。

    お電話でのお問合せはこちら

    0120-246-991

    営業時間:10:00~17:00(土日祝日を除く)

    ★YouTube「増改築.comチャンネル」チャンネル登録して新動画解説をいち早くGET!!★
    「増改築.comリノベ診断」であなたに一番ふさわしいフルリフォームを診断!!(動画解説付き)
    ★Facebookページにいいね!を押して最新コンテンツ情報をいち早くGET!!★
    パソコン|モバイル
    ページトップに戻る