戸建フルリフォームなら「増改築.com®」TOP施工事例神奈川県横浜市>H様 木造一戸建て(一軒家)2世帯フルリフォーム(補強含)

二世帯フルリフォーム(完全同居型)横浜市鶴見区H様 施工事例レポート

横浜市H様邸
横浜市H様邸_竣工
横浜市H様邸_竣工
横浜市H様邸_竣工
建物概要
名前 H様
場所 横浜市鶴見区
築年数 築40年
構造種別 木造戸建
家族構成 大人3人(お母様・息子様ご夫婦)子供1人
対象面積 32坪(105㎡)
工期 3ヶ月
価格 2500万

お客様のご要望

耐震が最も心配なので、耐震補強をして欲しい。

・間取りを大幅に変える予定はない

・断熱性能を高めたい

・水周り設備はすべて一新したい。お風呂は広くしたい。

40年以上経過した一戸建ての実家を2世帯(住宅)リフォームするため。耐震・断熱が一番心配なので重点的にやっていきたい。

プランニングのポイント

こちらの事例のお客様は、数年前より弊社のホームページをずっと読んでくださっていたお客様で着工の半年以上前からご相談が始まり、半年かけてお打ち合わせを重ねて、築40年を経過するHさまのご実家を2世帯(住宅)フルリフォームさせていただいたお客様の事例です。

まず、リフォームの背景としまして、お母様が住むご実家へ賃貸暮らしのH様(息子様)夫婦がお子様ができたことをきっかけにご実家へ同居をされるという一戸建て2世帯(住宅)フルリフォームのご相談でした。

それでは、打ちあわせから完成までの詳細をお伝えさせて頂きたいと思います。

横浜市H様邸 戸建てリノベーション施工事例テーマカテゴリー

  • 二世帯住宅リフォーム
  • 増築リフォーム 
  • 内外スケルトンリフォーム+サッシ交換

打合せから完成まで

1 着工前

1-1 打合せ

間取りを大きく変えるのではなく、現状の間取りを変えずに、1階をLDK含む水周り、お母様のお部屋とし、2階に息子様世帯が暮らせるようにしたい。間取りは大きく変えたくないが、耐震が最も心配なので、耐震補強をして欲しい。また夏暑く冬寒いため、断熱性能を強化したいとのご要望でした。

【既存外装】
横浜市H様邸_施工前

こちらは既存の状態です。

【既存1階廊下】
横浜市H様邸_施工前

H様の2世帯(住宅)フルリフォームでは階段の位置の変更はなくはそのままで勾配を緩やかにします。

【既存リビング1】
横浜市H様邸_施工前

サッシは今の大きさと位置を活かして取替です。新規掃き出し窓はシャッター付に、腰窓は出窓に2世帯(住宅)フルリフォーム後替わります。

【既存リビング】
横浜市H様邸_施工前

壁の向こうが既存ダイニングキッチンになります。2世帯(住宅)フルリフォーム後はアウトセット2枚両開き扉でオープンに出来る様になります。

【既存リビング】
横浜市H様邸_施工前

造作家具で写真に少し見えてる家具と同じ大きさの物を扉・床のお色に合わせて2世帯(住宅)フルリフォーム後納めさせて頂きます。

【既存1階和室】
横浜市H様邸_施工前

既存和室をリフォーム後はサッシを交換し2世帯(住宅)フルリフォームし、新和風でのご提案をしました。

【既存1階和室】
横浜市H様邸_施工前

床の間箇所は全てクローゼット収納へ、床柱を残すか残さないかでお母様は悩まれましたが、新たな空間での調和を考え、床柱は見えない状態でのご提案をさせていただきました。

【既存キッチン】
横浜市H様邸_施工前

キッチンは同じ場所にPanasonicラクシーナが設置されます。キッチン後ろにキッチンの扉面材と合わせた造作家具を設置させて頂きます。

【既存1階和室】
横浜市H様邸_施工前

和室が見える台所からのアングル写真ですが、ここは壁になりカップボードが設置されます。

【既存1階トイレ】
横浜市H様邸_施工前

既存和式の和式の便器です。新規は1階はPanasonicアラウーノSが設置されます。

【既存脱衣室・浴室】
横浜市H様邸_施工前

洗面化粧台は大きく取る為場所を少し移動します。

【既存浴室】
横浜市H様邸_施工前

新規浴室は窓側を解体し、一部増築。0.75坪の浴室を広げ、ユニットバスPanasonicオフローラ1616サイズを設置予定でおります

横浜市H様邸_施工前

廊下より玄関を撮った写真です。

【既存階段】
横浜市H様邸_施工前

新規階段は勾配を緩やかにさせて頂きます。

【既存2階廊下】
横浜市H様邸_施工前

新規廊下は各居室に合わせてフローリングです。

【既存2階洋室】
横浜市H様邸_施工前

各居室窓を取替です。床は2世帯(住宅)フルリフォーム後フローリングへ、収納は折れ戸になります。

【既存2階洋室】
横浜市H様邸_施工前
【既存2階洋室】
横浜市H様邸_施工前
【既存2階洋室】
横浜市H様邸_施工前
【既存2階トイレ】
横浜市H様邸_施工前

隅付トイレも新規タンク付きトイレとなります。

【既存2階和室】
横浜市H様邸_施工前

既存和室から洋室へリフォームとおなります。こちらもサッシ取り換えです。

1-2 提案

H様の2世帯住宅フルリフォームでは、完全同居型のスタイルをご希望されたため、大きな間取りの変更はありませんでした。

ご予算費用の兼ね合いもありましたが、優先順位として断熱性能を上げる意味でもまたリフォーム後の意匠的にもサッシは全て取替したいというご要望がありましたので、外装の仕上げについては、サッシ交換の補修箇所が多いため、ペイントでの塗装ではなくジョリパッド(左官)を提案させていただきました。

屋根はリフォームしてまだ年月しか経っておりませんので費用を少しでも優先順位の高い工事へ割り当てる方法をとりました。そのため既存をいかす方法でのご提案となりました。

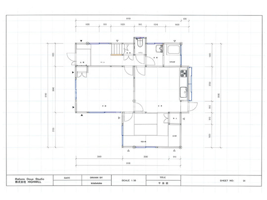
■既存図面■
横浜市H様邸_既存図面
横浜市H様邸_既存図面
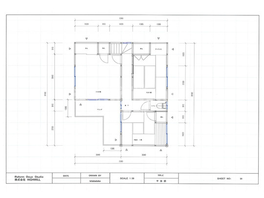
■ 新規2世帯(住宅)フルリフォーム 後 提案図面 ■
横浜市H様邸_新規図面
横浜市H様邸_新規図面

2 着工

2-1 解体

H邸の2世帯(住宅)フルリフォームですが、着工と当時に解体作業に入ります。大きな間取り変更こそありませんが、耐震補強をするため、表装上のリフォームではなく内部をすべて解体し、補強をし直すご提案をさせていただきました。

今回H様2世帯(住宅)フルリフォームでの解体作業は、内部全面をスケルトンにするだけではなく、内部のフルスケルトンで窓廻りのみはすべて入れ替えとなるため10日間かかります。

横浜市H様邸_解体
横浜市H様邸_解体

解体作業は、既存の軸組を見ながら慎重に手作業で壊していきます。

横浜市H様邸_解体

今回は3人がメインで入り10日間のスケジュールで動いております。

横浜市H様邸_解体

徐々に躯体が見えてきました。

横浜市H様邸_解体

予想以上に基礎の状態が良いので、しっかりとした工務店が建てたことがわかります。H様の2世帯(住宅)フルリフォームではこの基礎にフォールアンカーによるベタ基礎を予定しております。

横浜市H様邸_解体

解体した産業廃棄物も価格が高騰しておりますので、コンパクトにまとめて廃棄をします。

横浜市H様邸_解体

サッシ以外の内部の解体がおわりました。屋内のスケルトン状態になりました。

2-2 木造躯体の腐食箇所を確認

解体が終わり、躯体を入念にチェックします。H様のお住まいは、生前お父様が腕利きの大工に建ててもらったと聞いておりましたが、今回2世帯(住宅)フルリフォームでの解体をさせていただき、構造はとてもしっかりとしており基礎は凄く綺麗ではありました。

しかしながら、在来浴室があった箇所は築年数が経過していることもあり土台と基礎までが腐ってました。腐食部が壁範囲にまでわたっておりましたので土台を入れ替え、壁まで復旧となります。

横浜市H様邸_解体

監督が入念に躯体を確認します。

横浜市H様邸_解体

指を入れると指が奥まで入ってしまうほど水を吸って腐食しております。

横浜市H様邸_解体

壁の外壁の塗装面を押さえるザラ板も腐食しております。

横浜市H様邸_解体

浴室の裏側の外壁の大きなクラックは在来浴室の下地が腐食していたのが原因でした。今回の2世帯(住宅)フルリフォームで、ここの外壁は解体し落として新規で下地からやり直しをさせていただくお話をさせていただきました。

2-3 基礎補強
横浜市H様邸_基礎

浴室があった部分は土面は水分をかなり含んでおりましたので入念に鋤取りも行います。

横浜市H様邸_基礎

土台の差し替えを行います。

横浜市H様邸_基礎

砕石をし転圧をかけます。

横浜市H様邸_基礎
横浜市H様邸_基礎

フォールアンカー工法により既存の布基礎とあらたにコンクリートを打設するベタ面のメッシュを緊結させます。

横浜市H様邸_基礎

メッシュ配筋を緊結させながら敷きこんでいきます。

横浜市H様邸_基礎
横浜市H様邸_基礎
横浜市H様邸_基礎

コンクリート立ち上がり高さに墨出しを行い、生コンクリート業者へ指示をだします。

横浜市H様邸_基礎
横浜市H様邸_基礎

コンクリートミキサー車を呼び、コンクリートが打設されました。

横浜市H様邸_基礎

基礎補強についての詳しい内容はこちらで詳しく解説させています。

2-4 木工事
横浜市H様邸_木工事

解体工事、基礎工事が終わると大工工事に工事過程が移っていきます。H様邸2世帯(住宅)フルリフォームは構造から矯正・補強をしていくので構造材が大工事の工程にあわせ搬入されます。

横浜市H様邸_木工事

新しい間取りに合わせ基礎が必要な個所が出てきます。このようなところは基礎をあらたにつくり、土台も新規で設置することになります。

横浜市H様邸_木工事

H様邸2世帯(住宅)フルリフォームでは大工2人が中心となり、手元大工1人が現場に入り進行しました。

横浜市H様邸_木工事

現場に多くの職人が入れば工程が早く進むわけではありません。現場に多くの人が入ればそれだけ動きが鈍くなる場合があります。大工を中心に、水道設備屋・電気屋等も入ってきます。納まりだけでなく段取りが現場監督の重要な仕事になり、工程管理は現場をスムーズに無駄なく動くためには重要となってきます。

横浜市H様邸_木工事

床下には断熱材スタイロホームが引き詰めます。

横浜市H様邸_木工事

断熱材を床下に引きつめた後は、構造用合板の捨て貼りを施工していきます

横浜市H様邸_木工事

新たに下地を組んでいきます。

横浜市H様邸_木工事

H様邸の2世帯(住宅)フルリフォームでは耐震に対しての不安があるとのことで今回、制震ダンパーを提案させていただきました。耐震補強と制震工事をダブルで対策しています。金物補強を柱・床などにしていきます。

横浜市H様邸_木工事
横浜市H様邸_木工事
2-5 サッシ工事(サッシ全てを新しいサッシに入替)

スケルトンリフォームの場合サッシを全て入れ替えるか、入れ替えないかで費用価格が大きく変わるポイントです。サッシは既存のサッシを取ったら、そこに新しいサッシを入れて終わりというわけにはいきません。古いサッシと今の規格のサッシは高さが違います。古いサッシは高さが6尺約1m80cmが多く、新しいサッシは2m高が主となってきます。古いサッシを取り換える場合、取り外した後新しいサッシの高さに合わせて外壁も弄らなくてはなりません。サッシを取り換える事により、既存外壁と窓廻りの為の新規外壁下地との段差が発生します。H様邸2世帯(住宅)フルリフォームでは、外壁は全てジョリパッド仕上になるので新規窓を設置した箇所の周りの繋ぎが解り難くなります。既存サッシをカッターを入れ撤去しサッシ枠造作します。

横浜市H様邸_サッシ

H様邸の2世帯(住宅)フルリフォームは全てのサッシが入替となります。

横浜市H様邸_サッシ

こちらもサッシ撤去後、あらたなサッシ枠を造作しているところです。

横浜市H様邸_サッシ

新たなサッシが搬入されてきました。

横浜市H様邸_サッシ

所定の寸法で大工が枠をつくり、サッシ屋がその枠に合わせサッシを設置します。

横浜市H様邸_サッシ

設置前に詳細の指示を現場監督がしています。

横浜市H様邸_サッシ

設置後細かな納まりの確認をします。

横浜市H様邸_サッシ

新しいサッシが設置されました。

横浜市H様邸_サッシ

H様邸2世帯(住宅)フルリフォームではリビングに出窓を設置するプランとなっております。こちらも設置が完了しました。

横浜市H様邸_サッシ

新しいサッシの周りには雨水対策で防湿シートを貼っていきます

横浜市H様邸_サッシ
横浜市H様邸_サッシ

ここまでの工程でサッシが設置され、外部の補修は、仕上は左官屋が施工を担当します。

2-6 耐震工事

鶴見区H様邸の2世帯(住宅)フルリフォームでは制震ダンパーを入れさせて頂いてます。

1階に5基

2階に2基

の計7か所、制震ダンパーを入れさせて頂きました。制震装置は既存の耐力と新規の間取りでの大量を出し、設置位置を構造計算書にもとづき指定されます。

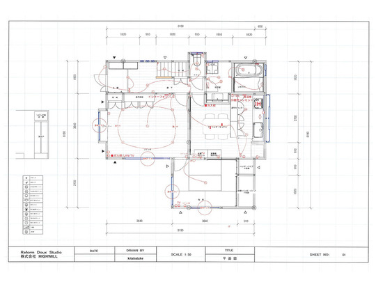
下記はH様に提出させていただきました計算書のなかの設置指示書になります。

■1階限界耐力計算平面図■
横浜市H様邸_耐震工事
■2階限界耐力計算平面図■
横浜市H様邸_耐震工事
横浜市H様邸_耐震工事
横浜市H様邸_耐震工事
横浜市H様邸_耐震工事
横浜市H様邸_耐震工事
横浜市H様邸_耐震工事

制震と耐震の考え方はまったく逆の考え方となります。

わかりやすくいえば、固めて地震エネルギーに対抗するのが耐震、地震のエネルギーを吸収するのが制震となります。今回の2世帯(住宅)フルリフォームのケースでは木造の場合1階部分には集中的に耐震補強も入れて、地震力に対抗する対策と同時に、制震での対策を提供しました。

制震対策をするから耐震はいらないということはありません。耐震は地震に対抗するための補強となり、地震の際に倒壊しないように補強し建物を強固に固めるわけですが、万が一その対抗力を失った際にどうなるのか?どの耐震でもそうですが、対抗力を失い、半壊→倒壊というように失った対抗力は戻ることがないというのが考え方になります。

制震は違います。地震のエネルギーそのものを吸収し逃がす考え方になりますので建物へのエネルギーがかかったさいにブレーキのような働きをします。

H様は地震への対策は万全にされたいとの要望であったため、耐震もしっかりと対策をしたうえで制震での対策にも万全を期しました。

2-7 断熱工事
横浜市H様邸_断熱工事

ダンパーを設置すると断熱材をいれることが可能になりますので面・2階天井へ入れていきます。

横浜市H様邸_断熱工事
横浜市H様邸_断熱工事
横浜市H様邸_断熱工事
2-8 内装工事

断熱材を入れた後はPB(プラスターボード)を貼っていきます。

横浜市H様邸_内装工事
横浜市H様邸_内装工事

ボードが全体に貼り終わると、表装職人担当のの工程へ移ります。建具の枠を設置し、ボードが貼られた後は内装職人がはいります。まず、パテでボードとの隙間・ビス穴を潰していきます。

横浜市H様邸_内装工事
横浜市H様邸_内装工事
横浜市H様邸_内装工事

横浜市H様邸_内装工事

パテ処理が終わったらパテをしごいていきます。この際、細かい粒子が部屋中に出てきます。戸建フルリフォーム場合は住みながらの工事は無いので良いのですが、住みながらのリフォームの場合はクロスを張り替えるとき細かい粒子なのでお部屋に広がってしまいます。

横浜市H様邸_内装工事

クロスなどの壁紙を貼って仕上げる際の決めてとなるのはクロス下地になります。下地を完璧に仕上げることが壁紙の仕上がりを決めます。もちろんクロスを貼る職人の腕は重要です。弊社の場合、クロス工事も表具職人、いわゆる一枚数十万を超えるような高級な襖等を納める職人が壁紙を貼ります。

横浜市H様邸_内装工事

部屋全体、パテ工事・しごきが終わるといよいよ内装を貼っていく過程へ移っていきます。

横浜市H様邸_内装工事

クロス下地処理が終わると、いよいよクロスを貼っていきます。

横浜市H様邸_内装工事
横浜市H様邸_内装工事
横浜市H様邸_内装工事

各部屋クロスが貼られていくといままでの雰囲気とガラッと変わってきます。

横浜市H様邸_内装工事

内装工事が終わると、残りの設備機器が設置されていきます。今回H様はキッチンはPanasonic ラクシーナです。

横浜市H様邸_内装工事
2-9 外壁工事

ここまでくると工事も大詰めになってきます。内装工事と同時に外壁工事も同時進行しています。

横浜市H様邸_外壁工事

外壁はジョリパッド仕上げになります。こちらも内装と同じで、下地処理をして塗装していきます。

横浜市H様邸_外壁工事
横浜市H様邸_外壁工事

今回のジョリパッドアルファ JP-100 パターン:乱流 です。

横浜市H様邸_外壁工事
横浜市H様邸_外壁工事
横浜市H様邸_外壁工事

戸建てフルリフォームをされる際に、サッシを取替を要望されるお客様は多いのですがサッシ交換をされ外壁塗装の塗替えをしてしまうと、既存外壁と新規サッシ廻り外壁との繋ぎ目がどうしても出てしまいます。コストは上がってしまいますが、ジョリパッドなどパターンのあるもので左官仕上げをすると綺麗に仕上がります。

3 竣工

3-1 外壁 Before → After
横浜市H様邸_施工前

サービス提供前

サッシは全て取替、外壁はサッシ交換の補修箇所が多いためジョリパッド(左官)を提案させていただきました。こちらは既存の状態です。屋根はリフォームしてまだ年月しか経っておりませんので既存をいかす方法でのご提案となりました。

横浜市H様邸_竣工

外装は全面のサッシ交換があったため、仕上がりでの段差をなくすため左官仕上げとしました。玄関脇のサッシはスリットの入った縦長のサッシをいれておしゃれな玄関ルームを演出しました。

横浜市H様邸_竣工
横浜市H様邸_竣工

玄関扉はLIXIL 親子ドアです。

横浜市H様邸_竣工

玄関脇のスリットガラスサッシです。

3-2 玄関・廊下・階段 Before → After
横浜市H様邸_施工前

サービス提供前

階段の位置はそのままで勾配を緩やかにする提案をさせて頂きました。

横浜市H様邸_竣工

室内の色味が変わったこともありまったく見違える空間となりました。

横浜市H様邸_竣工

玄関には下駄箱収納とクローゼットを設置させて頂いております。階段の勾配を取る為に当初1600間口の玄関収納だったのですが1200間口に変更となりました。

横浜市H様邸_竣工

玄関の立ち上がりが高かったため式台を一段かませています。

横浜市H様邸_竣工

H様2世帯(住宅)フルリフォームでは階段の下の箇所は勾配形に収納を造らさせて頂いてます。
中には可動棚を設置してあります。

3-3 リビング Before → After
横浜市H様邸_施工前

サービス提供前

サッシは今の大きさを活かして取替です。雨戸となっているので新規掃き出し窓はシャッター付に、腰窓は出窓に替わる提案でした。

横浜市H様邸_施工前

壁の向こうが既存ダイニングキッチンになります。リフォーム後はアウトセット2枚両開き扉でオープンに出来る様になります。

横浜市H様邸_施工前

造作家具で写真に少し見えてる家具と同じ大きさの物を扉・床のお色に合わせて納めさせて頂きます。

横浜市H様邸_竣工

リビングは大きな窓とお母様のご要望の出窓がポイントになっています。手前の収納棚も造作させていただきました。

横浜市H様邸_竣工

キッチンダイニングとリビングの間は間仕切り戸を設置しております。

横浜市H様邸_竣工

コチラの扉の両脇には制震ダンパーが設置してあり、柱もあるのでアウトセット両開きドアの設置になっております。

3-4 キッチン Before → After
横浜市H様邸_施工前
横浜市H様邸_施工前

和室が見える台所からのアングル写真ですが、ここは壁になりカップボードが設置されます。

サービス提供前

キッチンは同じ場所にPanasonicラクシーナが設置されます。キッチン後ろにキッチンの扉面材と合わせた造作家具を設置させて頂きます。

横浜市H様邸_竣工

キッチンは扉の色と合わせたPanasonicラクシーナです。昇降ウォール・食洗機・IHのオプションを付けております。

横浜市H様邸_竣工
横浜市H様邸_竣工

食器棚もキッチンお揃いのラクシーナです。

3-5 和室 Before → After
横浜市H様邸_施工前
横浜市H様邸_施工前

サービス提供前

床の間箇所は全てクローゼット収納へ、床柱を残すか残さないかでお母様は悩まれましたが、新たな空間での調和を考え、床柱は見えない状態でのご提案をさせていただきました。

横浜市H様邸_竣工
横浜市H様邸_竣工

お母様のお部屋は和室です。1階なので手動のシャッターを付けさせて頂きました。

3-6 トイレ Before → After
1階
横浜市H様邸_施工前
2階
横浜市H様邸_施工前

サービス提供前

既存和式の和式の便器です。新規は1階はPanasonicアラウーノSが設置されます。

1階
横浜市H様邸_竣工

トイレはPanasonicアラウーノSと専用手洗い器です。

2階
横浜市H様邸_竣工
3-7 洗面 Before → After
横浜市H様邸_施工前

サービス提供前

洗面化粧台は大きく取る為、窓側に設置します。

横浜市H様邸_竣工

洗面化粧台は大きく取る為、窓側に設置し洗面化粧台はPanasonicシーラインです。このPanasonicの縦ラインの照明はとても人気です!す。

3-8 浴室 Before → After
横浜市H様邸_施工前

サービス提供前

新規浴室は窓側を解体し、一部増築。浴室を広げ、ユニットバスPanasonicオフローラ1616サイズを設置予定でおります

横浜市H様邸_竣工

増築をして0.75坪から1坪の浴室にしたお風呂はPanasonicオフローラ1616サイズです。

3-9 2階廊下 Before → After
横浜市H様邸_施工前

サービス提供前

新規廊下は各居室に合わせてフローリングです。

横浜市H様邸_竣工
横浜市H様邸_竣工
3-10 2階居室 Before → After
横浜市H様邸_施工前

サービス提供前

各居室窓を取替です。床はフローリングへ、収納は折れ戸になります。

横浜市H様邸_施工前
横浜市H様邸_施工前
横浜市H様邸_施工前
横浜市H様邸_竣工
横浜市H様邸_竣工
横浜市H様邸_竣工
横浜市H様邸_竣工
横浜市H様邸_竣工
ハイウィルスタッフ

担当者より ハイウィル株式会社四代目代表 稲葉高志

H様は弊社のこちらのホームページを数年前より見て頂きファンでしたと初回のご相談時にお話し頂き、大変恐縮でございました。ご要望の中心が耐震補強と断熱性能の向上の2点と明確で、2世帯住宅リフォームでございましたが、完全同居型のスタイルをご希望されたため間取りの変更はありませんでした。通常の2世帯住宅リフォームですと大幅な間取り変更を伴うことが多く耐震補強も苦労いたしますが、H様邸はもともとの構造自体が技術的にしっかりと施工されていたこともあり大変助かりました。今回制震ダンパーを設置させていただき、サッシをすべて入れ替え、新設することで耐震性能と断熱「性能の向上を目指しました。

なおH様は半年後にお喜びの声を頂きました。メールを全文掲載しておりますので、こちらもご覧ください。

年末の忙しい時期でのお引渡しとなり、お引渡し日が引っ越し日となりましたので朝早い時間に、お客様ご夫婦、お子様、お母様をお呼びし、細かな確認をしていただき無事終了となりました。大変お喜びいただけました。

画像をクリックすると解説ページにジャンプします。

神奈川県の他のリフォーム事例を見る

神奈川県

横浜市川崎市・相模原市・茅ヶ崎市・藤沢市・鎌倉市・逗子市・平塚市・小田原市・横須賀市三浦郡

全国のフルリフォーム・リノベーション『ピックアップ事例』※プロの詳細解説付きレポート

HEAT20-G2/耐震等級3
新耐震基準の性能向上リノベーション
築30年ハウスメーカー軽量鉄骨
断熱改修&リノベーション
 
中古住宅を新築以上の耐震性能と断熱性能へ!
耐震等級3フルリフォーム
地下付き木造2階建て
自然素材をつかった性能向上リノベーション&フルリフォーム

東京都文京区 K様邸

長屋を切り離して1つの構造体へフルリフォーム&リノベーション
隣家との距離がない!
部屋から外壁を張り替えるフルリノベーション
中古住宅を耐震等級3へ!
中古住宅リノベーション
 
基礎がない??
築60年の古屋をジャッキアップで基礎新設フルリノベーション

東京都渋谷区 O様邸

戸建てリノベーション・リフォームに関するお問合せはこちら

増改築.comの一戸建てリフォーム専用ホームページに
お越しいただき、誠に有難うございます。
 
増改築.comメンバーは技術集団となり、
他社のような営業マンがおりません。
技術者が直接ご相談にのり問題解決を行います。
 
従いまして、
お客様の方である程度のご要望が整理されました段階、
お悩みが工事内容のどのようなところにあるのか?
ご予算がどの程度絞る必要があるのか?
など明確になった段階でのご相談をお願いしております。
お問合せ・ご相談はお電話・メールにて受け付けております。
メールの場合は以下のフォームに必要事項をご記入の上、
「送信する」ボタンをクリックをお願いします。

代表稲葉高志

戸建てリノベーションの専属スタッフが担当致します。
一戸建て家のリフォームに関することを
お気軽にお問合せください

よくあるご質問
  • 他社に要望を伝えたところできないといわれたのですが・・・
  • 他社で予算オーバーとなってしまい要望が叶わないのですが・・・
  • サービスについて詳しく聞きたいのですが・・・

どのようなお悩みのご相談でも結構です。

あなたの大切なお住まいに関するご相談をお待ちしております。

営業マンはおりませんので、しつこい営業等も一切ございません。

設計会社(建築家様)・同業の建築会社様のご相談につきましては、プランと共にご指定のIw値及びUa値等の性能値の目安もお願い申し上げます。

2026年の大型補助金が確定したことで現在大変込み合っております。

耐震性能と断熱性能を向上させるフルリフォームには6か月~7か月の工期がかかります。

補助金獲得には年内に報告を挙げる必要があることから、お早目にご相談をお願いいたします。(6月着工までが目安

ご提案までに大変お時間がかかっております。ご了承のほどお願い申し上げます。

(5月までの着工枠が埋まりました)・・・2026/03/01更新

※すでにプランをお持ちのお施主様・設計資料をお持ちのお施主様は内容をフォームで送信後、フォーム下のメールアドレスに資料をお送りください。対応がスムーズです。

必須

(例:増改築太郎)

必須

(例:contact@high-will.co.jp)

(例:03-5615-2826)

必須

(例:東京都荒川区西日暮里2-35-1)

(例:築40年)

(例:25坪・100㎡など)

(例:2000万程度など)

  • ※再建築不可のリフォームでは金融機関が限られます。事前審査をお勧めいたします。

    (例:2024年3月くらいに完成希望など)

    必須

    できるだけ具体的にお知らせくださいませ。既存設計資料、リフォーム後のイメージ図等をお持ちであれば下記のメールアドレスより添付をお願いします。

    ※次の画面がでるまで、4~5秒かかりますので、
    続けて2回押さないようにお願いいたします。

    ※次の画面が出るまで、4〜5秒かかりますので、
    続けて2回押さないようにお願いいたします。

    図面や写真等を送信いただく場合、また入力がうまくいかない場合は、上記内容をご確認のうえ、下記メールアドレスまでご連絡ください。

    お電話でのお問合せはこちら

    0120-246-991

    営業時間:10:00~17:00(土日祝日を除く)

    ★YouTube「増改築.comチャンネル」チャンネル登録して新動画解説をいち早くGET!!★
    「増改築.comリノベ診断」であなたに一番ふさわしいフルリフォームを診断!!(動画解説付き)
    ★Facebookページにいいね!を押して最新コンテンツ情報をいち早くGET!!★
    パソコン|モバイル
    ページトップに戻る