戸建フルリフォームなら「増改築.com®」TOP施工事例埼玉県新座市>O様 屋根を屋上にリフォーム 全面スケルトンリフォーム

新座市O様 屋根を屋上にリフォーム 全面スケルトンリフォーム

戸建てフルリフォーム 屋上庭園
新座市O様邸
新座市O様邸_竣工
新座市O様邸_竣工
新座市O様邸_竣工
建物概要
名前 O様
場所 埼玉県新座市
築年数 築40年
構造種別 木造戸建
家族構成 大人2人
対象面積 25.5坪
リフォーム部位 間取変更/サッシ取替/既存外壁撤去サイディング/断熱/制震仕口ダンパー/屋上庭園
工期 3.5ヶ月
価格 1566万(税別)※住宅設備機器はお施主様が建材商社の為持ち込みの為別途

お客様のご要望

お子様が独立されており、お二人で快適に過ごせる様間取り変更をしたい。

・現状のモルタル外壁にかなりクラックが入ってしまっているので、外壁は全て解体し新たに下地からやり直してほしい。仕上げは塗装壁ではなくサイディングにしたい。

住宅設備機器も古くなっているので全て新しい物へ交換したい。

木造一戸建ての屋根を屋上にリフォームし、屋上庭園、屋上リビングを作り休日には娘家族たちと週末はBBQしたい

プランニングのポイント

目的が明確であったO様は設備機器等には特別なこだわりはなく新しくなれば良いといったお考えで、間取り変更と外壁の解体工事、屋上新設工事を最も優先度の高い工事と相談を受けました。予めの予算をお話いただいておりましたので、ご予算の範囲で必ず必要な、耐震工事、補強工事の予算取りをさせていただきご契約をさせていただいたお客様です。

それでは、打ちあわせから竣工までを解説させて頂きたいと思います。

新座市O様邸 施工事例テーマカテゴリー

  • 屋根を屋上へリフォーム
  • 内外部スケルトンリフォーム

打合せから完成まで

1 着工前

1-1 打合せ

着工前に撮影した既存の建物の写真です。外壁はよく見ると無数のクラックが入っていることがわかります。クラックを補修後塗装という処置も可能ではありましたが、ご主人の優先順位がメンテナンス頻度の高い塗装仕上げよりもメンテナンス頻度の低いサイディングを希望されましたので外壁モルタルを剥がし外部補強後のサイディング張りをご提案致しました。

屋上部に立ち上がりが出来るため、新たに塗装壁を作るよりもこれを機会にサイディングしたいというお気持ちもおありでした。O様邸の基礎は 布基礎で、調査をさせて頂いたところ、状態が良い為、耐圧盤(ベタ基礎への変更)は優先順位を下げ既存の布基礎を使用する形をとりました。

新座市O様邸_施工前
新座市O様邸_施工前
新座市O様邸_施工前
新座市O様邸_施工前
新座市O様邸_施工前
新座市O様邸_施工前
新座市O様邸_施工前
新座市O様邸_施工前
1-2 提案

O様にはすでにお子さんもおられるお嬢さまが2人おられ、よく実家に泊まりにくることも多いとのことで、新規のプランでは、1つのお部屋をあえて2部屋にし2家族が同時に泊まりに来てもO様とお嬢様家族2世帯が宿泊できるようプランさせていただきました。

基本的な間取りは大きく変更せずに、O様が最も重視された一戸建ての屋根を屋上庭園、屋上リビングテラスへのリフォームの屋上を設置するための階段を設けなければならないため、階段をどこにもっていくのかを検討しました。

脱衣所、浴室も既存のサイズよりも大きくしたかったため、既存脱衣場スペースに階段を配置ち既存階段スペースを脱衣所にする計画としました。この配置により、浴室サイズを0.75坪から1坪へ、おなじく脱衣所のサイズも0.75坪から1坪へのサイズアップが出来ました。階段の勾配も緩くなり、3階部ベランダへの新たな上り階段の配置が可能となりました。

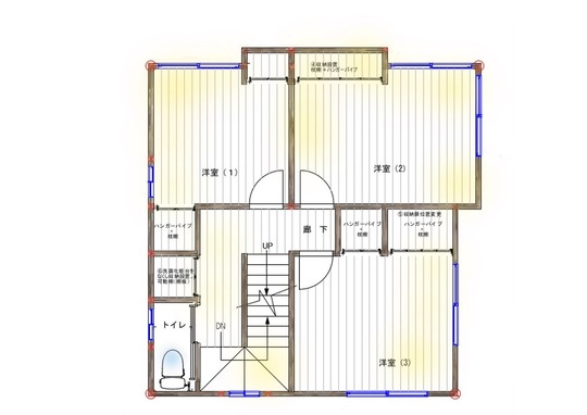
新座市戸建スケルトンリフォーム 既存図面

■既存図面■

新座市O様邸_新規図面
■新規図面1■
新座市O様邸_新規図面
■新規図面2■
新座市O様邸_新規図面
■新規屋上■
新座市O様邸_イメージ
■イメージパース■

今回O様がご希望されていた木造一戸建ての屋根を解体し屋上庭園、屋上リビングテラスへのリフォームについて。

従来は、木造に屋上という発想はタブーとされておりました、大正8年に屋根工事業を創業母体としてきた弊社としましても雨漏れと戦ってきた歴史から、木造で屋上という発想は正直、否定的な考えで疑って参りましたが、防水工法の技術の進化の結晶ともいえる画期的な工法が木造での屋上空間を可能にしました。新築木造一戸建て住宅ではここ数年で屋上を提案する会社も出て参りました。しかしながら木造改築で屋上を新設する屋上工事をする会社は、弊社の知る限り2016年では群馬に1社いるのみです。防水下地を大工工事でおこないますが、屋根の解体から下地補強まで、大変ナーバスな工事となりますため木造を熟知した工事会社に相談をお勧め致します。

 

下記は弊社がO様へ提案した屋上のイメージパースです。O様より当初よりご要望頂いておりました、お孫さんが遊びに来た時に屋上でBBQ(バーベキュー)したいという点もふまえて、タイル部分と人工芝を織り交ぜデザインしています。

新座市O様邸_イメージ

■屋上庭園 イメージ■

新座市O様邸_イメージ

■屋上庭園 イメージ■

2 着工

2-1 解体
新座市O様邸_解体

O様が最も今回のリフォームで優先度を高くご要望されたのがこの外壁の解体(剥がしたい)でした。今回はこの屋根を解体し、屋上を設置するスケルトンリフォームとなり、屋上部には立ち上がりができるために、壁を立ち上げ新たに外壁となる部分が生まれます。立ち上がりの部分を既存のモルタルに合わせて施工も可能でしたが、既存の傷み具合を検討し、剥がすことになりました。基礎については傷みがほぼなく状態が良かったこともあり既存の布基礎を利用しての工事を提案させていただきました。

新座市O様邸_解体

桁うえの屋根組(母屋組)を丁寧に棟梁が解体していきます。同時に屋上部の立ち上がりの構造躯体を組んでいきます。足場も通常の2階建てよりも高く架けていきます。

新座市O様邸_解体

屋上部には出入り口となる塔屋ができますのでその構造躯体の木組みも行っていきます。

新座市O様邸_解体

今回のような屋上工事のケースでは棟梁が屋根を解体するため、屋根を棟梁が施工している間に、解体職人は外壁の解体と内部の解体を進めていきます。

新座市O様邸_解体

外部表面の外部モルタルを剥がした後は、内部の解体を進めていきます。構造変更が必要なポイントは既存の階段部分のため、構造体が見えるように慎重に解体をしていきます。

新座市O様邸_解体

この階段を解体し、脱衣所スペースとします。奥に見えるサッシ部分がスケルトンリフォーム後の階段スペースとなります。柱を抜くところ、抜く想定であっても抜けない所などが、この段階でハッキリとみえてきます。

新座市O様邸_解体

木造二階屋の屋上リフォーム。室内2階部から見た屋根解体前の写真、梁から上の母屋組を解体していく経過をみていきます。

新座市O様邸_解体

屋根組を解体し2階の梁部分まで撤去していきます。天井が開口されていきます。

新座市O様邸_解体

屋根を完全に撤去した状態です。ここから屋上リフォームのキモとなる防水工事の下地(3階床組)を組んでいく事になります。

2-2 木工事(下地・構造補強)
新座市O様邸_木工事

屋上で作業できるための簡易床を作り屋上リフォームの防水工事前の下地組を開始していきます。

新座市O様邸_木工事

2階の間取り変更で必要になる構造材で補強を入れ、3階部の床組を開始します。

新座市O様邸_木工事

既存の梁の上端に根太を掛け、床組の下地を作ります。

新座市O様邸_木工事

根太の上に構造用合板で捨て貼りを行っていきます。屋上リフォームの床組でポイントになるのが、この床組で捨張り2重にするということです。写真のスケールの向きに1枚目の捨張りを行い、張り終えてから、スケールとは垂直に構造用合板を張り垂直方向への耐力をつけることとヨジレを下地で防止します。

新座市O様邸_木工事

屋上の防水層の床下地組の2重張りが終わり2階部からみたところです。各間仕切りの主要となる柱は新規で差し替えております。

新座市O様邸_木工事

2階の全面リフォーム後の間取りより新たな躯体部分の構造を決め弱いところなどは補強を入れていきます。O様のケースではほとんどの柱を新規で入れ直しております。

新座市O様邸_木工事

モルタル外壁が手壊しによって解体され、構造体があらわになり補強等がしやすくなりますので、構造補強を加え外周部全面を構造用合板で張っていきます。当然以前の建物よりも耐力が上がります。

新座市O様邸_木工事

サッシを設置する開口部以外の全外周を構造用合板を張っていきます。

新座市O様邸_木工事

開口部周りにはまぐさ、窓台を造作しておきます。外周部の主要な構造材と外部の構造用合板を張り合わせることで外周部周りの強度があがります。手壊しにより費用が上がってしまいますが外部のモルタル外壁を剥がすメリットはここにあると言っても良いと思います。

新座市O様邸_木工事

今回の全面リフォームではO様邸は屋上を新設するため、屋根がほとんどないのですが、一階の下屋となる屋根部分へのルーフィング工事をしていきます。

2-3 断熱工事
新座市O様邸_断熱工事

天井にも隙間なく断熱材を充填していきます。

新座市O様邸_断熱工事

壁内に断熱材を隙間なく充填していきます。

2-4 屋根から屋上にするための工事
新座市O様邸_屋上

屋根を解体し、床の2重補強を終えたら、屋上リフォームでは出入りとなる塔屋を組んでいきます。2階天井裏の梁との固定を入念におこなっていきます。

新座市O様邸_屋上

屋上には立ち上がり部が必要になってきます。屋根解体後に立ち上がり部は構造躯体を組み外部と内部両面を構造用合板で張っていきます。お孫さんが遊ぶことを考慮し立ち上がりは1.2メートル以上を確保し、やや高めに設計しました。

新座市O様邸_屋上

塔屋部と屋上用防水工事の下地が完了しました。

新座市O様邸_屋上

防水下地に谷があるのがわかります。防水層の下地を千鳥に2重張り後、金属防水の水路となる谷を予め施工しておきます。ここが木造一戸建て住宅の屋上リフォームでのポイントとなります。

新座市O様邸_屋上

この溝に金属防水側での水路を加工し水を流す構造となっています。

新座市O様邸_屋上

溝の先、屋上バルコニー外周には水路から流れた水を排水に落とすための内樋を作ります。O様邸は排水を2つとり中央から勾配をとり両側に設けたドレンへ排水する排水計画としました。特殊な金属板で加工していきます。

木造で屋上ができる防水の仕組みとは
新座市O様邸_屋上
新座市O様邸_屋上

1時間で240㎜の雨量でも漏水しなかったことが(財)建材試験センターの試験で確認されています

木造で屋上?

創業大正8年以来、木造を中心に改築をやってきた弊社では、木造で屋上?というあまりにセオリーではありえない工法に当初は誰よりも疑問を抱いていました。しかしこの工法と防水の仕組みをみて導入を決めました。

地震について

木構造で屋上部全面にシート防水、その他塗膜防水などを施工しても、地震の際に割れて防水層に亀裂が入る恐れがあり、とても危険です。そのため地震の揺れの問題を解決できる防水ではなければなりません。

今回の金属防水の仕組みは揺れることで力を分散させ、むしろ耐震性を発揮する木造住宅にマッチした施工になっています。下地の木部を構造用合板にて2重張りにしていることも水平耐力に対抗できる要素になりますので強度もあがります。

継ぎ目をあえてつくることで“遊び=ゆとり”をつくるにより、表面亀裂が起こりうる状況を回避、雨漏れの原因となる亀裂を防いでいます。

心配の雨仕舞について

防水層に雨が侵入しても、傾斜を設けた特殊形状の金属板で排水経路を確保(溝の部分)。4層構造にて排水します。

「雨を逃す、雨水を侵入させない」ジョイントがこの防水構造のキモと言えるパーツとなっています。木造住宅が自然現象に逆らうこと無く存続するために、必要とされる構造です。

また和瓦の1/16と軽量の為、 重心も低く、荷重も小さくなるため耐震面でも有利といえる工法になっています。

また屋根の代わりとなる屋上には遮燃、遮炎、延焼を防ぐ素材である必要があります。

O様邸で採用したこの防水工法は、国の不燃認定を取得している工法になります。

国の不燃認定を取得(NM-1981)

新座市O様邸_屋上

結露防止マットを敷設、スプリングキャッチャーも設置していきます。

新座市O様邸_屋上

予め設置された内樋部へ本体を加工設置していきます。

新座市O様邸_屋上

本体は工場で予め加工され、現場にて加工し設置をしていきます。

新座市O様邸_屋上

本体を敷き込みあとはカバーキャップを入れて完了となります。

新座市O様邸_屋上

屋上防水が完成、O様邸では仕上げにタイルと人工芝を設置します。サイディング工事等の施工は仕上げ材が乗ってからの施工となります。それまで養生をしておきます。

新座市O様邸_屋上

O様邸では、お嬢様家族が来られた際に、バーベキューがしたいとのご要望がありましたので給水も屋上まで引き込みしています。

新座市O様邸_屋上

立ち上がり部には防水透湿シートを張ります。

新座市O様邸_屋上

塔屋部、屋上立ち上がり部へは防水透湿シートを張ります。

新座市O様邸_屋上

屋上の大きさ、屋上部の形状によって、排水計画が変わって参ります。水をどのように逃がすのか、排水勾配を防水側で加工できる画期的な金属防水技術です。

新座市O様邸_屋上

外部周りを構造用合板にて全面張り後、防水透湿シートを全面に張っていきます。防水透湿シートを張りこんだ後の工程は、通気胴縁を打っていきます。

新座市O様邸_屋上

ベランダには、人工芝パネルとタイルパネルが設計通りに張られました。

新座市O様邸_屋上

人工芝パネルをデザインした通りに設置していきます。

新座市O様邸_屋上

こちらは屋上のタイルパネルスペースになります。こちらもデザインした通りに組み合わせて設置していきます。

新座市O様邸_屋上

タイルと人工芝の組み合わせでバーべーキューができ、なおかつくつろげるスペースをとご提案させていただいたパネル割りです。

2-5 外壁工事(下地からサイディング張り)
新座市O様邸_外壁工事

外部周りを構造用合板にて全面張り後、防止透湿シートを全面に張っていきます。防水透湿シートを張りこんだ後の工程は、通気胴縁を打っていきます。

新座市O様邸_外壁工事

通気胴縁を設置することでサイディング外壁下地間での通気が可能となるため壁内結露を予防することができます。

新座市O様邸_外壁工事

外部はいよいよサイディングが納品されサイディング張りがスタートします。外部もいよいよ大詰めです。

新座市O様邸_外壁工事

水切りを外周部に設置後、コーナーには役物部材を張り、通気胴縁に設置していきます。

新座市O様邸_外壁工事

サイディングを張り終えシーリングを打つのみとなりました。

新座市O様邸_外壁工事

基礎天端の上、土台に沿って設置された水切が見えますが、この下から空気が抜ける構造となっており雨水は逃がし、空気は採り入れる構造になっています。

2-6 内装工事
新座市O様邸_内装工事

室内では造作工事が進んでいます。プラスターボード張り、この段階から工事は一気に佳境に入っています。お客様もこの段階でリアルな室内空間を体感することが出来るようになります。

新座市O様邸_内装工事

システムキッチン設置部は石膏ボードではなくベニヤとなります。

新座市O様邸_内装工事

天井・壁のボード張りが完了、その他の造作工事も着々と進んでいきます。

新座市O様邸_内装工事

構造用合板の捨て張りの上に仕上のフローリング材を張っていきます。

新座市O様邸_内装工事

木製建具、窓枠等クロスを張る前に設置していきます。

新座市O様邸_内装工事

クロス張りまえの下地パテ掛けをしていきます。

新座市O様邸_内装工事

クロス張り工事に着手。いよいよ大詰めです。

新座市O様邸_内装工事

室内はクロスを張るとあとはクリーニングのみとなります。

3 竣工

3-1 外壁 Before → After
新座市O様邸_施工前

Before

初期のご要望で屋根を解体し屋上を作りたいというご要望と外壁を塗装やサイディングを上張りするのではなく外壁解体をした全面リフォームをご要望がありましたので、外壁は手壊しによる解体でモルタルをすべて剥がし、構造用合板を全面張りし、サイディングを新規で張りました。屋根がなくなり屋上になっているのがお分かりいただけます。

新座市O様邸_竣工

O様がご希望されていた木造一戸建ての屋根を解体し屋上庭園、屋上リビングテラスへのリフォームの完成です。

3-2 キッチン Before → After
新座市O様邸_施工前

Before

キッチンの位置は既存の位置とは変えず、システムキッチンを取替えました。

トクラス社のシステムキッチンBbを採用しています。

システムキッチントクラスbbのキッチンリフォームのみを希望の方はコチラ(弊社別サービスサイトへリンクします。)

新座市O様邸_竣工
3-3 キッチン Before → After
新座市O様邸_施工前

Before

浴室は間取り変更により位置が変更となっております。O様宅ではユニットバスが設置されておりましたが、最新のシステムバスへ変更しました。

採用したのはLIXIL社のアライズです。

システムバス リクシルアライズのユニットバスリフォームのみを希望の方はコチラ(弊社別サービスサイトへリンクします。)

新座市O様邸_竣工
3-4 脱衣所 Before → After
新座市O様邸_施工前

Before

階段の位置変更により既存の脱衣所を旧階段スペースへ移動しています。洗面化粧台を更新しスペースは同じ広さを確保しました。

新座市O様邸_竣工
3-5 キッチン Before → After
新座市O様邸_施工前

Before

O様邸では構造部、屋上部での費用ウェイトが高く住宅設備機器はコストを抑えて提案させていただきました。トイレ便器も弊社オリジナルのTOTO製 壁付リモコンタイプのウォシュレット便器を採用致しました。

新座市O様邸_竣工
3-6 内装 Before → After
新座市O様邸_施工前

Before

今回のO様邸全面リフォームで最も間取りが変わったのが階段位置変更でした。部屋数は同じであったため、3階への階段のスペースを2階のどこに置くのか

ここからゾーニングをしていきました。極端に間取りを変更することなくプラン出来たと思います。

新座市O様邸_施工前
新座市O様邸_施工前
新座市O様邸_竣工
新座市O様邸_竣工
新座市O様邸_竣工
3-7 屋上 屋根から屋上にリフォーム

Before

当初のご要望が屋根を解体し屋上を作りたいというご要望。そして外壁はモルタル壁を解体し外壁補強の上サイディング仕上にしたいというご要望が優先順位の一番となっておりましたので、費用がかかるモルタルの剥がしを行い構造用合板を全面張りした上でサイディング施工をしております。

着工前
新座市O様邸_施工前
着工中
新座市O様邸_施工中
完成
新座市O様邸_竣工

木造二階屋の屋根を解体し新たに屋上が完成です。外壁は新たにサイディングを貼りましたので、かなりイメージが変わりました。本当にまるで新築です。

新座市O様邸_竣工

いよいよ完成。2階の階段を上ると、屋上ガーデンスペースが広がります。

新座市O様邸_竣工

出入り口のタイルまわりにも玉砂利を敷き込みました。電源も確保してありますので、テレビや音楽、携帯の充電、高圧洗浄機などの家電製品も使用することが可能となりました。

新座市O様邸_竣工

内樋部分に玉砂利を敷き込みメリハリを付けました。ちょっとしたスペースに屋上で使用する道具などを収納するための倉庫を置くことも出来ますね。

新座市O様邸_竣工

コンセントだけでなく、水栓も完備しているので、お孫さんが来た時に、プールなど水遊びが可能となりました。

新座市O様邸_竣工

照明も設置し、夜にご家族でバーべキューをしたり、夏は花火を見ることもできます。O様邸の屋上はタイル2色と人工芝の張り分けました。

新座市O様邸_竣工

O様邸では人工芝とタイルを張り分けるご提案をしましたが、今回の金属防水工法では、本当の芝を植えることも可能です。同様に家庭菜園など土いじりも可能な防水工法となっています。

新座市O様邸_竣工

立ち上がりは小さなお孫様がいらっしゃるため、若干高めで作りました。O様がご希望されていた木造一戸建ての屋根を解体し屋上庭園、屋上リビングテラスへのリフォームが完成しました。ここでバーべーキューすることはもちろん、プールなどの遊具を置いてお孫さんの遊び場にもなりますし、大人たちは外で音楽を聴きながら、晩酌する事もできますし、夏は家族親戚集まって、ご飯を食べながら、花火を見ることもできますね。

更新日:2020/12/10

ハイウィルスタッフ

4 担当者より ハイウィル株式会社四代目代表 稲葉高志

O様はお嬢様が建材商社へお勤めでサッシはビル等の施工も請け負う商社でございましたのでサッシ、玄関ドア等の鋼製建具、フローリング、室内ドアやクローゼット扉等木製建具、玄関収納、窓枠、笠木、階段といった木質建材はすべて御支給いただきましたので支給品を除く総工費(弊社請負費用)は、価格:約1566万円(サッシ・建材別)となりました。一般的な提供価格で1800万程度の費用感であると想定します。

一般のお施主様ですと階段の割り付けなど打ち合わせができないのですが、今回O様のケースですと、現場でお打ち合わせが可能ということでお願いができました。また、住宅設備機器につきましては弊社も卸売をしている絡みで、商社以上のコストで提案ができておりましたため採用頂けました。

今回のリフォームのメインは何といっても、木造2階屋の屋根を解体し、屋上を設置する屋上庭園、屋上リビングテラスへのリフォーム。

雨仕舞の点から今までは絶対に考えられなかった夢の屋上バルコニーが木造住宅でも楽しめる様にできた事です。O様邸はそんな夢を体現したような実例となりました。長い工期何度も打合せをさせて頂きまして誠に有難うございました

もし、今現在、木造の家に住まれていて、O様の様に屋上を作りたい!と思われている方は是非とも参考にしてくださいね。

 

埼玉県の他のリフォーム事例を見る

この事例と似たテーマカテゴリーを見る

全国のフルリフォーム・リノベーション『ピックアップ事例』※プロの詳細解説付きレポート

HEAT20-G2/耐震等級3
新耐震基準の性能向上リノベーション
築30年ハウスメーカー軽量鉄骨
断熱改修&リノベーション
 
中古住宅を新築以上の耐震性能と断熱性能へ!
耐震等級3フルリフォーム
地下付き木造2階建て
自然素材をつかった性能向上リノベーション&フルリフォーム

東京都文京区 K様邸

長屋を切り離して1つの構造体へフルリフォーム&リノベーション
隣家との距離がない!
部屋から外壁を張り替えるフルリノベーション
中古住宅を耐震等級3へ!
中古住宅リノベーション
 
基礎がない??
築60年の古屋をジャッキアップで基礎新設フルリノベーション

東京都渋谷区 O様邸

戸建てリノベーション・リフォームに関するお問合せはこちら

増改築.comの一戸建てリフォーム専用ホームページに
お越しいただき、誠に有難うございます。
 
増改築.comメンバーは技術集団となり、
他社のような営業マンがおりません。
技術者が直接ご相談にのり問題解決を行います。
 
従いまして、
お客様の方である程度のご要望が整理されました段階、
お悩みが工事内容のどのようなところにあるのか?
ご予算がどの程度絞る必要があるのか?
など明確になった段階でのご相談をお願いしております。
お問合せ・ご相談はお電話・メールにて受け付けております。
メールの場合は以下のフォームに必要事項をご記入の上、
「送信する」ボタンをクリックをお願いします。

代表稲葉高志

戸建てリノベーションの専属スタッフが担当致します。
一戸建て家のリフォームに関することを
お気軽にお問合せください

よくあるご質問
  • 他社に要望を伝えたところできないといわれたのですが・・・
  • 他社で予算オーバーとなってしまい要望が叶わないのですが・・・
  • サービスについて詳しく聞きたいのですが・・・

どのようなお悩みのご相談でも結構です。

あなたの大切なお住まいに関するご相談をお待ちしております。

営業マンはおりませんので、しつこい営業等も一切ございません。

設計会社(建築家様)・同業の建築会社様のご相談につきましては、プランと共にご指定のIw値及びUa値等の性能値の目安もお願い申し上げます。

2026年の大型補助金が確定したことで現在大変込み合っております。

耐震性能と断熱性能を向上させるフルリフォームには6か月~7か月の工期がかかります。

補助金獲得には年内に報告を挙げる必要があることから、お早目にご相談をお願いいたします。(6月着工までが目安

ご提案までに大変お時間がかかっております。ご了承のほどお願い申し上げます。

(5月までの着工枠が埋まりました)・・・2026/03/01更新

※すでにプランをお持ちのお施主様・設計資料をお持ちのお施主様は内容をフォームで送信後、フォーム下のメールアドレスに資料をお送りください。対応がスムーズです。

必須

(例:増改築太郎)

必須

(例:contact@high-will.co.jp)

(例:03-5615-2826)

必須

(例:東京都荒川区西日暮里2-35-1)

(例:築40年)

(例:25坪・100㎡など)

(例:2000万程度など)

  • ※再建築不可のリフォームでは金融機関が限られます。事前審査をお勧めいたします。

    (例:2024年3月くらいに完成希望など)

    必須

    できるだけ具体的にお知らせくださいませ。既存設計資料、リフォーム後のイメージ図等をお持ちであれば下記のメールアドレスより添付をお願いします。

    ※次の画面がでるまで、4~5秒かかりますので、
    続けて2回押さないようにお願いいたします。

    ※次の画面が出るまで、4〜5秒かかりますので、
    続けて2回押さないようにお願いいたします。

    図面や写真等を送信いただく場合、また入力がうまくいかない場合は、上記内容をご確認のうえ、下記メールアドレスまでご連絡ください。

    お電話でのお問合せはこちら

    0120-246-991

    営業時間:10:00~17:00(土日祝日を除く)

    ★YouTube「増改築.comチャンネル」チャンネル登録して新動画解説をいち早くGET!!★
    「増改築.comリノベ診断」であなたに一番ふさわしいフルリフォームを診断!!(動画解説付き)
    ★Facebookページにいいね!を押して最新コンテンツ情報をいち早くGET!!★
    パソコン|モバイル
    ページトップに戻る