戸建てフルリフォームなら「増改築.com®」TOP施工事例都道府県で探す東京都>足立> 二世帯住宅リフォーム(部分分離型)施工事例

 
 長期優良住宅化リフォーム推進事業の補助金利用

二世帯住宅リフォーム(部分分離型)施工事例 構造評点1.5以上

足立区Y様邸TOP

 

今回ご依頼をいただきましたY様は、元々世田谷のマンションにお住まいでしたが、お母様との同居を検討され、二世帯住宅リフォームを検討されておられました。

ご実家は東京都足立区の北千住駅から徒歩圏内のお住まいです。 北千住駅には、JR常磐線、東武伊勢崎線、つくばエクスプレス、東京メトロ日比谷線、千代田線、半蔵門線、 東京スカイツリーラインと7線もが乗り入れる国内7位のターミナル駅です。 都圏の交通の要衝なのです。駅前は近代的な駅ビルとなっておりますが、少し歩けば、 旧日光街道の面影をよく残した古い建物も興味深いエリアでもあります。今回のO様の現場は、そんな 江戸時代以来の宿場町として栄えた経緯から伝統や歴史が残る隅田川の千住大橋や、荒川の広大な河川敷のすぐ近くです。

O様からのご相談があった際にO様は大手リフォーム会社3社にご相談済の状態でした。なぜ3社ではダメだったのかを単刀直入にお聞きしたところ、どの3社も『長期優良住宅化リフォーム推進事業』での申請を行ってくれないという理由からでした。検査済証がない建物はできないと言われたとのことでした。弊社の方で調査させていただいたところ、評価基準型での申請は可能ということがわかりましたので、ご提案させていただきました。また大手リフォーム会社では住設機器は好きな商品をこだわりたいが、指定の商品以外は一気に金額が高くなってしまう事から『増改築.com®』へご依頼をいただくことになりました。

建物概要
名前 Y様
場所 東京都足立区
築年数

築40年

構造種別 木造一戸建て
家族構成 大人3人+子供2人
対象面積 35.5坪
リフォーム部位 長期優良住宅/間取変更/断熱サッシ取替/外壁リノベーション/外構
工期 6ヶ月
価格

3300万(税別)※外構込

お客様のご要望

今回の東京都足立区Y様二世帯住宅リフォームでのご要望は以下の7点です。

  • 基礎は補修ではなく基礎補強をして構造評点(Iw値)1.5を超える耐震改修
  • 長期優良住宅化リフォーム推進事業の補助金を利用したい
  • 基礎は補修ではなく補強をして欲しい
  • 断熱材はセルロースファイバーを採用したい
  • 各住宅設備機器や建材は好きなメーカー数社をショールームで選定したい
  • 二世帯住宅の為間取りの大幅変更をしたい
  • 外構もお願いしたい

Iw値とは?

1981年以前の旧耐震基準で建てられた木造家屋では、2000年の品確法で定められた『耐震等級』という耐震指標保有水平力、耐震等級によって耐震力を測れないため、Iw値という指標で耐震力を測ります。「Iw値=家の保有耐力/耐震のために必要な耐力」によって数値化されます。1.0をクリアすることで震度6強の地震に対して倒壊、または崩壊する可能性が低いとされており、国の耐震改修の最低基準値となっている指標であります。

プランナー 北畠より 
~二世帯住宅リフォームプランニングのポイント~

Y様はリフォームを検討されて他のリフォーム会社さんと打合せ等をしておりましたので、間取りの配置は明確なご要望がありました。Y様の間取りに関しての最優先事項と致しましては、1階LDKの明るい方を向いた位置に仏壇を持っていきたい、TVは壁掛けTVを設置したい。2階は主寝室からベランダに出られる様にプランをお願いしたい。とご要望を頂きました。

 
 

足立区Y様邸 戸建てリノベーション施工事例テーマカテゴリー

 

  • 耐震等級3相当(上部構造評点1.5以上)リフォーム(性能向上リノベーション)
  • 二世帯住宅リフォーム
  • セルロースファイバー仕様
  • 内部スケルトンリフォーム+サッシ交換

打ち合わせから着工、完成までの詳細施工事例紹介

1 二世帯住宅リフォーム着工前

1-1 現場調査・打合せ
足立区 戸建てリノベーション 既存外観

既存外観

足立区 戸建てフルリノベ 既存外観

既存外観

通り沿いで塀も解体のご要望でしたので工事のロケーションは多変良い現場となります。外壁は極力残す希望をいただいておりましたが、窓サッシは、断熱サッシへの取り換えを希望されておりましたので、窓周りの解体が必要になります。


足立区 戸建てリノベーション 既存玄関

既存玄関フロア

足立区 戸建てフルリノベーション 既存洋室

1階既存洋室

足立区Y様の今回のリフォームは二世帯住宅リフォームとなります。一階の既存の洋室はお母様の居室としてご利用されたいご要望でした。玄関には収納を多くとりたいとのご要望もいただきました。


既存LDK

足立区Y様の建物の既存LDKは10帖ありましたが、配置としてダイニングとリビングは分離されており現代の間取りとしては住まいづらい形状となっておりました。二世帯住宅リフォーム後は、居室を含む広いLDK空間へプランニングさせていただきました。

足立区 戸建てリノベーション 既存LDK

既存1階ダイニングキッチン

足立区 戸建てリノベーション既存ダイニングキッチン

既存1階ダイニングキッチン
 



築60年2階部

二階は一階の和室と違い、人が住んでいたこともあり、一階ほどの痛みはありませんでした。若干の傾きを体感レベルで把握できたことから、解体後にはジャッキアップによる補正、もしくは屋起こしが必要な旨をお伝えしました。

足立区 戸建てリノベ 既存2階洋室

2階既存洋室

足立区 戸建てフルリノベーション 2階既存和室

2階既存和室です。


1-2 東京都足立区Y様邸 二世帯住宅リフォームプラン

  間取りの変更プラン  

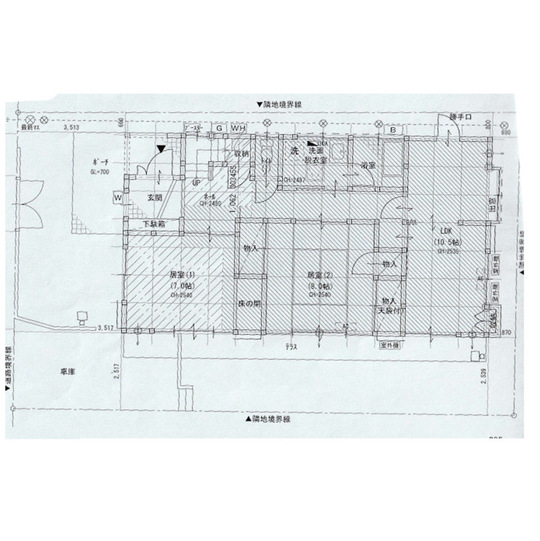
足立区 戸建フルリフォーム 1階既存図

1階 既存平面図

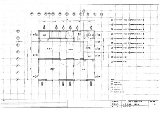
足立区 戸建フルリフォーム 2階既存図

2階 既存平面図

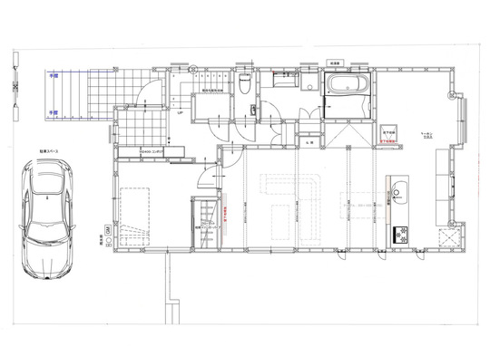
足立区 戸建てフルリノベーション 新規1階図面

1階 新規平面図

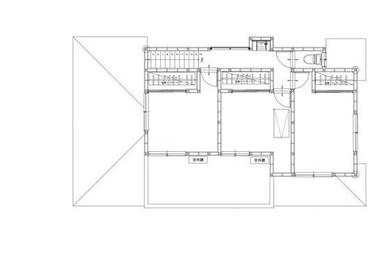
足立区 戸建フルリノベーション 新規2階図面

2階 新規平面図

今までは、お母様が一人で生活されていた建物。一人ではあまりに広すぎる建物ですが、子世帯となるY様がご家族4人が同居する形での二世帯住宅リフォームとなります。二世帯住宅リフォームを機に1階に一部屋お母様のお部屋を配置、LDK、その他水周りを共有スペースとし、2階を子世帯の居室としました。1階の方が床面積が広いこともあり、1階の一番日当たりの良い南面に家族が集まれる大きめなLDKを配置しました。対面型キッチンでのご提案をさせていただきました。

2 二世帯住宅リフォーム着工

2-1 解体・撤去

解体は手壊し作業になります。Y様の二世帯住宅リフォームの解体は、内部をスケルトン状態まで解体する解体工事となり、外壁までの剥離工事は行いません。しかしながらサッシは入れ替えをご要望されておられましたので、窓部分へはカッターを入れ解体となります。Y様の耐震補強計画では、上部構造評点(Iw値)を国の最低基準の1.5倍以上をご要望されておられました。1.5倍以上の数値を計画する場合は、基礎に鉄筋が入っていない場合は基礎補強が絶対条件となり、かつ内部からの補強だけにとどまらず、外部からの補強も必要となりますが、鉄筋探知機での検査結果、鉄筋コンクリート基礎であることがわかり、基礎補強なしでの補強計画が可能となりました。解体後は、非破壊段階での構造計算が、そのまま計画として成り立つのか、既存の状態と当てはめ入念に躯体チェックをしていきます。

内部スケルトンリフォーム(内部解体)

躯体の状態まで内壁を解体しました。

内部スケルトンリフォーム(内部解体) 足立区

主要構造部以外の内壁や床、天井が解体された状態です。

足立区 内部スケルトンリフォーム(内部解体)

この段階では、窓はそのままとします。

戸建てリノベ 内部スケルトンリフォーム(内部解体)

窓以外の内部が完全にスケルトン状態まで解体されました。

足立区 戸建てリノベーション 足場

2世帯住宅リフォームは、間取りが大きく変わるケースが多く、今回のような窓の解体があるケースではプランニングの段階で極力窓の位置を変えない、つまり窓の解体面積を少なくするように設計することが費用を抑えるポイントとなります。外部からみると窓のみがくりぬかれているイメージとなります。

足立区 戸建てリノベーション 補強工事

主要構造部の間取りに合わせて柱を抜き、梁補強をする段階で、いよいよ窓を解体していきます。

足立区 戸建てリノベ 窓サッシ解体

1階部の窓解体体が終了しました。

足立区 戸建てフルリノベーション 大工工事

主要構造部の間取りに合わせて二階にも補強を入れながら補強をする段階で、いよいよ窓を解体していきます。

窓サッシ解体

2階部の窓サッシ解体が完了しました。

大事な構造部のすべてが目視可能となるスケルトンリフォーム

内壁だけでなく外壁までを解体するフルスケルトンリフォームの最大のメリットはこのように重要な主要構造部のすべての状態が目視でわかることになります。フルリノベーション後は、これらの構造上の弱点をすべて修正し補強することで新築と同水準、もくしくはそれ以上の建物性能をもつ構造躯体へ甦らせることが可能となります。

2-2 基礎工事

今回Y様は長期優良住宅化リフォーム推進事業の補助金申請を行いました。耐震補強計画や断熱の省エネ計算もして申請をします。

耐震補強をする際に、前提となるのが、基礎と屋根の状態となります。今回のY様邸の二世帯住宅リフォームでは屋根は既存の瓦屋根を補修してそのまま残すというご要望です。その為、屋根荷重を踏まえた補強計画が必要になりました。基礎についても同様、既存の基礎が無筋コンクリート基礎なのか、鉄筋コンクリート基礎なのかで構造計算上は、30%の耐震強度が変わって参ります。築40年ということで、旧耐震基準の建物であるY様邸は無筋基礎のケースがあったため、鉄筋探知機での検査を行いました。

鉄筋探知機での無筋基礎検査
鉄筋探知機での無筋基礎検査
鉄筋探知機での無筋基礎検査

鉄筋探知機での検査の結果、Y様邸は鉄筋が入っていることがわかりました。その為基礎については、添え基礎といった補強ではなく、あくまで間取り変更により新たに必要になる新設基礎と一部既存基礎の劣化が激しい部分への補強で留めました。

基礎補強鋤取り

間取り変更により基礎が新設となる箇所への鋤取りを行います。

基礎補強の鋤取り工事

基礎新設部分への鋤取り工事が完了しました。

立上り基礎補強(配筋)

アンカーサイズM12にて既存無筋コンクリートへ打ち太さD13の鉄筋をピッチ200㎜にて千鳥上に配筋していきます。

基礎補強(ベース配筋)

立ち上がり部の配筋と同時にベース基礎部分への配筋も行います。

基礎新設工事の配筋工事

新たに基礎が必要な個所への配筋が完了しました。既存基礎との接合部には抱き合わせ基礎として補強します。

基礎補強時の基礎新設配筋工事

立ち上がり基礎とベース基礎の配筋工事が完了。

立上り基礎の差し筋

型既存基礎との緊結には立上り部分への抱き基礎補強をして一体化させます。

間取り変更による新設基礎

基礎が完成しアンカーボールトがみえてきました。

新設基礎に土台設置アンカーボルト取り付け

土台を設置しアンカーボルトを固定します。

新設基礎に土台設置アンカーボルト取り付け

既存基礎との添え基礎補強をした基礎部へも土台を新設しアンカーボルトを固定していきます。

ポイント

昭和56年と57年は旧耐震基準の建物と新耐震基準の建物のハザマとなり、特に基礎については曖昧な建物が多く存在します。例えば、旧耐震基準の建物にはなっているが、鉄筋コンクリート基礎の建物、その逆に新耐震基準ギリギリの建物で無筋コンクリートのケースもあります。

Y様邸は築40年ということで、旧耐震基準の建物であったため、無筋基礎を疑い、鉄筋探知機での検査を行いました。

その結果鉄筋コンクリート基礎であったことは幸いです。

ベタ基礎補強

ベタ基礎補強って?

布基礎が立ち上がりとフーチングで持たせる基礎に対して、ベタ基礎は、立上りだけでなく、底板一面も耐圧盤を設け、立ち上がりと底面が一体化された鉄筋コンクリートになっている基礎をいいます。

建物の荷重を底板全体の面で受け止めるため、ベタ基礎は不同沈下を起こさない。といわれますが、それは良好な地盤での話です。

基礎の下の地盤面の地耐力が均一でない場合は、不同沈下が起こる可能性が充分あるのです。

耐震の世界では、重い瓦屋根は外して、軽いものに変えましょうと言われておりますが、それ自体は間違っていませんが、この理屈でいくと。屋根の瓦を外して、基礎はベタ基礎にしても、地盤に与える荷重は、瓦屋根以上の荷重がベタ基礎の荷重により地盤面にかかることになります。

地盤が軟弱な場合、布基礎を採用した方が有利な場合も出てきます。

戸建てフルリフォームやリノベーションで、基礎補強をする際は、このような知識のある会社に相談することが必要です。

2-3 木工事
足立区 戸建てリフォーム 一般診断現状

一般診断 現状

足立区 戸建てリノベーション 補強計画
補強計画-01
足立区 戸建てリノベーション1階補強図

1階 補強後平面図

足立区 柱頭柱脚補強図

N値 柱頭柱脚金物補強図

足立区 戸建てリノベーション2階補強図
2階 補強後平面図

基礎補強工事が終わり大工工事へと移行します。

 

 

構造躯体の強度を担保するためのメイン工事となります。長期優良住宅化リフォーム推進事業の申請には、この補強についてたくさんの写真の提出が必要になります。躯体の差し替え、耐震金物の配置が必須となり、計画通りに金物が配置されているかなどすべて写真提出となります。足立区Y様邸の二世帯住宅リフォームでは大幅な間取り変更が必要となり、既存の端を抜き梁を架けたり補強個所が多く、大工工事の段階でこれらの解体を進めていきます。

足立区 戸建てフルリフォーム 補強工事

解体工事で解体していない主要構造部の柱などを解体し、火打ち金物など水平面の補強金物で補強できるところを補強していきます。

足立区 戸建てリノベ 補強工事

二階にも補強を入れながら仮筋交いを入れ倒壊を防止します。

足立区 戸建てリノベ 梁補強

LDK部は既存のDKと居室である8帖を1部屋にして開放的なものとなりますので柱を抜いています。その為、梁補強が必須となってきます。

足立区 戸建てフルリフォーム 梁補強

梁掛けが完了すると接合部への金物補強工事を行います。

足立区 戸建てフルリノベ 金物補強

構造計画での指示通りに梁かけを行い金物補強を進めていきます。

足立区 戸建てリノベ 金物補強

筋交いには指定された金物を配置していきます。

筋交いの柱脚、柱頭部への金物補強

足立区 戸建てフルリフォーム 窓廻り

Y様邸は内部スケルトンリフォームのため、外壁は残し、窓のみは断熱サッシへの取り換えとなります。新たな窓とサイズが異なるため、新たな窓サイズに合わせて窓台やまぐさを設置していきます。

足立区 戸建てフルリフォーム 柱頭金物補強

筋交い柱頭部、梁への羽子板ボルト、ホールダウン金物の補強。

足立区 戸建てリノベ 2階金物補強

二階部もすべての継手、仕口への金物補強を行います。

足立区 戸建てフルリフォーム 補強工事

2階部の多くの柱は抜かれ新たな構造体を組みなおしました。すべての継手と仕口に補強金物を配置します。

足立区 戸建てフルリノベ ベランダ構造体

2階のベランダはあらたに構造体を組みなおしました。

2-4 断熱工事

Y様の戸建てリノベーションでの断熱材は、セルロースファイバーを採用。
グラスウール断熱と比較し、吸音効果と調湿効果、そして何よりも蓄熱効果を望める素材となり、施工後にその快適性は体感できる断熱材です。

足立区 セルロースファイバー充填

二階天井は300㎜の充填を行い断熱層を設けました。

セルロースファイバー充填 足立区

天井面へは300㎜の充填

セルロースファイバー充填 戸建てリノベ

壁の充填が完了

セルロースファイバー充填 戸建てフルリフォーム

外面に面する外周面が魔法瓶のように囲われるようにセルロースファイバーが充填されています。パンパンの状態です。

2-5 屋根工事

Y様は屋根は既存の瓦葺きをそのまま残したいとのご要望でしたので。棟の取り直しを行い、大棟と隅棟は荒木田土で大面を取りその上に面土漆喰で補修を行いました。谷へは小勝手補修を行いました。

足立区 戸建てフルリノベ 屋根工事

棟の取り直し

足立区 戸建てフルリフォーム 屋根補修

谷も小勝手瓦をいれ整えました。瓦工事では「​覆せ勝手」・「差込勝手」等と言いますが、隅棟や谷に使用する三角形に切断された桟瓦や平瓦のことを勝手といいます。

足立区 戸建てフルリノベ 屋根補修工事

隅棟への面土漆喰補修が完了

足立区 戸建てリノベーション 屋根工事完了

完了

2-6 外壁工事

足立区のY様は内部はスケルトン解体し間取り変更、外部はできる限り残す二世帯住宅リフォームとなります。

しかしながら、既存のサッシは断熱性能も低く新たな断熱性能の高いサッシへの変更を希望されていました。このようなケースでは、内部をスケルトン状態まで解体し、窓周りのみカッターを入れ解体をして新たな窓サッシを入れ替える工事となります。外壁を極力残すことで外壁解体の手間や廃材処分費用を浮かすことができますので、外壁までを剥離解体するスケルトンリフォームよりも安価に納めることが可能になります。ここでのポイントは、リフォーム後の間取りになります。間取り変更により、極端に窓の位置が変わるようなケースですと、既存の窓を解体後に外壁に埋めなおす工事や、新たに新設するサッシ部分へは解体が必要になりますので、結局は外壁の多くを解体するケースとなって、結果として躯体残しのスケルトンリフォームと変わらない費用感になってしまう事もあります。

今回の足立区Y様邸では、プランニングの段階で既存の窓位置と極力窓の位置が変わらないようにプランニングをさせていただきました。

足立区 窓の入れ替え(解体工事)

外壁にカッターを入れ既存の窓を撤去していきます。

窓の入れ替え(解体工事) 足立区

既存窓の解体

戸建てリノベ 窓の入れ替え(解体工事)

新たな窓設置に備え窓台、まぐさを施工していきます。

戸建てフルリフォーム 窓交換(フルリフォーム)

旧サッシと新設する窓サッシでは規格寸法が異なりますので、新規格に合わせて枠を作っていきます。

足立区 戸建てフルリノベ 窓の入れ替え(解体工事)

既存の窓解体が終わると外部はこのように虫食いのような状態になり、窓だけがくりぬかれているような状態となります。

窓の入れ替え(解体工事)足立区 リノベ

既存のマルたる壁のみが残っている状態となります。

窓の入れ替え(解体工事)

ベランダ面はサッシ位置が変わる為、開口面積が大きく解体も既存以上に大きく解体となります。

窓の入れ替え(解体工事)

2階のバルコニーサッシ部分も既存の位置と新設位置がずれる事からい面解体となりました。

窓の入れ替え(外壁補修工事)

外壁となる部分へラスカットボードによる補修下地をしていきます。

窓の入れ替え(外壁補修工事)

規格寸法が違うためこのように補修が必要になります。

窓の入れ替え(外壁補修工事)

ベランダ面にサッシが新設され、壁面にはラスカットボードが張られます。

窓の入れ替え(外壁補修工事)

窓周り補修

窓の入れ替え(左官補修工事)

ラスカットボードによる下地工事が完了すると左官工事で補修塗りをしていきます。

窓の入れ替え(左官補修工事)

先ほどの補修部分にも左官補修塗りをしていきます。

窓の入れ替え(左官補修工事)

2階のバルコニー面の左官補修が完了しました。

窓の入れ替え(左官補修工事)

このようにサッシを入れ替えるケースでは窓周りの左官補修となります。ここで問題が出てくるのが、既存の外壁とどのように合わせるかです。既存の外壁はモルタルに塗装の状態です。左官で補修をしますが、補修部と外壁の目が変わってきます。このまま塗装をしてしまうとサッシを入れ替えたところ、つまり補修部分が色が同じであっても目立ってしまうわけです。よくそのような建物を見かけます。

窓の入れ替え(左官仕上げ工事)

補修部と既存の外壁を同じパターンにする場合は、塗装工事では塗り厚が薄く下地を拾ってしまいます。このような場合は、左官工事で仕上げをおこなう必要があります。

窓の入れ替え(左官仕上げ工事)

左官工事で仕上げた一階のベランダ面。サッシを入れ変えた形跡はなくなります。

窓の入れ替え(左官仕上げ工事)

2階のバルコニー面も同様です。

窓の入れ替え(左官仕上げ工事)

瓦を残すことから和モダン風に仕上げました。

2-7 内装仕上げ工事

構造部の構造補強が終わると、造作工事に入ります。

足立区 戸建てリノベーション 内装下地
足立区 戸建てフルリノベ 壁下地
足立区 戸建てフルリフォーム 大工作業
足立区 戸建てリノベーション 内部下地
足立区 戸建てフルリノベ 内部下地
足立区 戸建てスケルトンリフォーム 内部下地

3 竣工

約6カ月の工事を経て、いよいよ竣工です。長期優良住宅化リフォーム推進事業の補助金交付通知書も発行されました。
Y様邸の様子をご紹介します。

長期優良の補助金通知書

長期優良の補助金通知書


  =外観==  

足立区二世帯住宅リフォーム施工事例
足立区二世帯住宅リフォーム施工事例
足立区二世帯住宅リフォーム施工事例

  == 1F エントランス・玄関 ==  

足立区二世帯住宅リフォーム施工事例

玄関は断熱ドアを使用。

足立区二世帯住宅リフォーム施工事例

2世帯であっても玄関は共用のプラン。玄関スペースは広くレイアウトしました。玄関ドアから採光を取り入れてます。


  == 1F LDK ==  

1階に大きくLDKを持ってきました。リフォーム前はキッチン・ダイニングと分かれておりリビングは和室のお部屋で間仕切られており、リフォーム後は全て1つのLDKと致しました。

足立区二世帯住宅リフォーム施工事例
足立区二世帯住宅リフォーム施工事例
足立区二世帯住宅リフォーム施工事例
Before
足立区 戸建てリノベーション 既存キッチン

既存キッチンとダイニングになります。キッチンは北側の奥に設置されており、暗くて寒い空間でした。キッチンとダイニングは隣り合わせでアコーディオンカーテンで間仕切りをしていました。リビングへは一度廊下にでた脇の和室にありました。

 


  == 階段 ==  

足立区二世帯住宅リフォーム施工事例

 2階に上がる階段です。階段の位置は既存とほぼ同じ位置に設置しました。

Before
足立区二世帯住宅リフォーム施工事例

 Y様邸は通常の木造戸建てより階高が高い為、階段の段数が1段多くしてあります。

足立区二世帯住宅リフォーム施工事例

 階段勾配の下は収納スペースとして使っています。

 


  == 1F 洋室 ==  

足立区二世帯住宅リフォーム施工事例

 1階親世帯寝室です。

足立区二世帯住宅リフォーム施工事例

 1階親世帯 廊下とLDKからどちらからでも入れる様ドアを2つ設置してあります。

足立区二世帯住宅リフォーム施工事例

 1階親世帯 道路に面した側は駐車スペースなので腰窓にし、お庭に面した窓は掃き出し窓にしました。


  == 水まわり ==  

Before

江東区 戸建てリノベーション 既存キッチン

既存キッチン

江東区 戸建てリノベーション 既存浴室

既存浴室

江東区 戸建てリノベーション 既存洗面

既存洗面室

江東区 戸建てリノベーション 既存トイレ

既存トイレ

足立区二世帯住宅リフォーム施工事例

 新規1階キッチンは トクラスBerry  I型2550サイズ

足立区二世帯住宅リフォーム施工事例

 1階新規カップボードは トクラスBerry  2700

足立区二世帯住宅リフォーム施工事例

 1階洗面化粧台はTOTOオクターブです。収納含めて間口2100になります。

足立区二世帯住宅リフォーム施工事例

 1階ユニットバス TOTOサザナ1616サイズです。

足立区二世帯住宅リフォーム施工事例

 1階トイレはハイウィルオリジナルです

足立区二世帯住宅リフォーム施工事例

 トイレはLIXILサティスです。

足立区二世帯住宅リフォーム施工事例

 2階にも洗面台を設置。


  == 2F 洋室 ==  

江東区 戸建てリノベーション 既存2階
Before
江東区 戸建てフルリフォーム 既存2階
足立区二世帯住宅リフォーム施工事例

二階 洋室-2です。

足立区二世帯住宅リフォーム施工事例

二階 洋室-1です。

足立区二世帯住宅リフォーム施工事例

二階 洋室-3です。

足立区二世帯住宅リフォーム施工事例

二階 洋室-3です。


  == 外構 ==  

足立区Y様の二世帯住宅リノベーションでは、外構工事もお手伝いさせていただきました。

足立区二世帯住宅リフォーム施工事例
足立区二世帯住宅リフォーム施工事例

4 担当者より(ハイウィル株式会社 取締役専務 稲葉悟)

Y様はご契約前のご相談中、数カ月にわたり何度も弊社の現場を見学され、弊社の実際に施工をする職人や管理体制をご覧になりご用命を頂きました。二世帯住宅の為、大きく間取りが変わる中で構造評点(Iw値)1.5以上の設計はできないかとの具体的なスペックのご指定もございました。

また、足立区Y様のエリアは準防火エリアとなりますので、使用するサッシや玄関ドアはすべて防火タイプとさせていただきました。建物が仕上がる中で、何度も仕様に関する相談を随時対応させていただきました。大変お喜びいただきまして施工冥利につきます。

Y様、この度はご依頼をいただき、誠にありがとうございました。

全国のフルリフォーム・リノベーション『ピックアップ事例』※プロの詳細解説付きレポート

HEAT20-G2/耐震等級3
新耐震基準の性能向上リノベーション
築30年ハウスメーカー軽量鉄骨
断熱改修&リノベーション
 
中古住宅を新築以上の耐震性能と断熱性能へ!
耐震等級3フルリフォーム
地下付き木造2階建て
自然素材をつかった性能向上リノベーション&フルリフォーム

東京都文京区 K様邸

長屋を切り離して1つの構造体へフルリフォーム&リノベーション
隣家との距離がない!
部屋から外壁を張り替えるフルリノベーション
中古住宅を耐震等級3へ!
中古住宅リノベーション
 
基礎がない??
築60年の古屋をジャッキアップで基礎新設フルリノベーション

東京都渋谷区 O様邸

戸建てリノベーション・リフォームに関するお問合せはこちら

増改築.comの一戸建てリフォーム専用ホームページに
お越しいただき、誠に有難うございます。
 
増改築.comメンバーは技術集団となり、
他社のような営業マンがおりません。
技術者が直接ご相談にのり問題解決を行います。
 
従いまして、
お客様の方である程度のご要望が整理されました段階、
お悩みが工事内容のどのようなところにあるのか?
ご予算がどの程度絞る必要があるのか?
など明確になった段階でのご相談をお願いしております。
お問合せ・ご相談はお電話・メールにて受け付けております。
メールの場合は以下のフォームに必要事項をご記入の上、
「送信する」ボタンをクリックをお願いします。

代表稲葉高志

戸建てリノベーションの専属スタッフが担当致します。
一戸建て家のリフォームに関することを
お気軽にお問合せください

よくあるご質問
  • 他社に要望を伝えたところできないといわれたのですが・・・
  • 他社で予算オーバーとなってしまい要望が叶わないのですが・・・
  • サービスについて詳しく聞きたいのですが・・・

どのようなお悩みのご相談でも結構です。

あなたの大切なお住まいに関するご相談をお待ちしております。

営業マンはおりませんので、しつこい営業等も一切ございません。

設計会社(建築家様)・同業の建築会社様のご相談につきましては、プランと共にご指定のIw値及びUa値等の性能値の目安もお願い申し上げます。

2026年の大型補助金が確定したことで現在大変込み合っております。

耐震性能と断熱性能を向上させるフルリフォームには6か月~7か月の工期がかかります。

補助金獲得には年内に報告を挙げる必要があることから、お早目にご相談をお願いいたします。(6月着工までが目安

ご提案までに大変お時間がかかっております。ご了承のほどお願い申し上げます。

(5月までの着工枠が埋まりました)・・・2026/03/01更新

※すでにプランをお持ちのお施主様・設計資料をお持ちのお施主様は内容をフォームで送信後、フォーム下のメールアドレスに資料をお送りください。対応がスムーズです。

必須

(例:増改築太郎)

必須

(例:contact@high-will.co.jp)

(例:03-5615-2826)

必須

(例:東京都荒川区西日暮里2-35-1)

(例:築40年)

(例:25坪・100㎡など)

(例:2000万程度など)

  • ※再建築不可のリフォームでは金融機関が限られます。事前審査をお勧めいたします。

    (例:2024年3月くらいに完成希望など)

    必須

    できるだけ具体的にお知らせくださいませ。既存設計資料、リフォーム後のイメージ図等をお持ちであれば下記のメールアドレスより添付をお願いします。

    ※次の画面がでるまで、4~5秒かかりますので、
    続けて2回押さないようにお願いいたします。

    ※次の画面が出るまで、4〜5秒かかりますので、
    続けて2回押さないようにお願いいたします。

    図面や写真等を送信いただく場合、また入力がうまくいかない場合は、上記内容をご確認のうえ、下記メールアドレスまでご連絡ください。

    お電話でのお問合せはこちら

    0120-246-991

    営業時間:10:00~17:00(土日祝日を除く)

    ★YouTube「増改築.comチャンネル」チャンネル登録して新動画解説をいち早くGET!!★
    「増改築.comリノベ診断」であなたに一番ふさわしいフルリフォームを診断!!(動画解説付き)
    ★Facebookページにいいね!を押して最新コンテンツ情報をいち早くGET!!★
    パソコン|モバイル
    ページトップに戻る