戸建てフルリフォームなら「増改築.com®」TOP施工事例都道府県で探す東京都文京区> K様 築60年混構造のリノベーション事例

 
東京都文京区の混構造を耐震改修してリノベーションしたい

 築60年の混構造のリノベーション事例(RC造+木造)構造評点1.5以上

文京区K様邸

 

東京都文京区のK様からのご依頼は、K様の先々代が60年前に建てられた古家をリノベーションしてK様ご家族が住まわれるご計画があり、現在は敷地内にあるもう一戸の建物に居住中で、本宅のリノベーション後は、敷地内併設の居住中の建物は改装をして賃貸戸建てとしたいとのご要望でした。弊社にご相談があった際にすでに他社様からの大まかなプランが出来ておられる状態でした。他社での問題点をお聞きすると、築60年の格天井(ごうてんじょう)を残して、耐震補強耐震フルリノベーションを考えているが、どうしても、構造評点(Iw値)が1.2程度までしかいかないので、1.5以上の設計はできないかとのお問い合わせでした。なた、K様の建物は、木造とRCの混構造となっていたため、木構造部のみを分離して構造設計、施工についても、分離して補強することを前提でIw値1.5(国の耐震推奨基準は1.0)を超える計画を提出させていただきました。

格天井のある建物は、現在の住宅では、まず見ないのですが、社寺仏閣、城などの天井に多く使われいる最も格式の高い天井様式になります。K様の先々代が建てられた建物も敷地内に池があった形跡や立派なお庭もあることから当時、かなりこだわられて建てられたことがわかりました。

建物概要
名前 K様
場所 東京都文京区
築年数

築60年

構造種別 混構造:木造一戸建て(一部RC造)
家族構成 大人2人+子供2人
対象面積 35.62坪
リフォーム部位 基礎補強/間取変更/断熱サッシ取替/外壁塗装/セルロースファイバー/耐震等級3/屋上防水/外構
工期 6ヶ月
価格

3000万(税別)※外構込・本管工事と敷地内建物の改装費用は別途

お客様のご要望

今回のK様築60年混構造リノベーションでのご要望は以下の6点です。

  • 格天井を残したうえで構造評点(Iw値)1.5を超える耐震改修
  • 屋根瓦は既存のまま構造評点(Iw値)1.5を超える耐震改修
  • 基礎は補修ではなく補強をして欲しい
  • 断熱材はセルロースファイバーを採用したい
  • 同敷地内の建物は賃貸戸建として改装してほしい
  • 水道の本管工事もお願いしたい

Iw値とは?

1981年以前の旧耐震基準で建てられた木造家屋では、2000年の品確法で定められた『耐震等級』という耐震指標保有水平力、耐震等級によって耐震力を測れないため、Iw値という指標で耐震力を測ります。「Iw値=家の保有耐力/耐震のために必要な耐力」によって数値化されます。1.0をクリアすることで震度6強の地震に対して倒壊、または崩壊する可能性が低いとされており、国の耐震改修の最低基準値となっている指標であります。

プランナー 北畠より ~プランニングのポイント~

K様は大手ハウスメーカーさんと、今回のリフォームについてかなりお話が進んでいたのでK様のご要望は直ぐ図面に落とす事ができました。既存建物はK様のご両親がお住まいになられてた家で、とても趣があり素敵な造りだったのですが耐震や断熱に関してはやはり築年数が経っているのでこのまま住むには不安があり、今のライフスタイルからも間取りも多少変えてのフルリフォームをさせて頂きました。1階のLDKの天井の格天井は残し、その他は全て解体をさせて頂きました。一階の一部がRC造となっており、構造計算上は、木造部とRC造部を分離して構造計算し、木造部分での構造評点を基準の1.5倍以上にする補強計画を立てました。屋根は瓦屋根をそのまま使用したいとのご意向があり、重い屋根として構造計算をさせていただき計画を致しました。

文京区K様邸 戸建てリノベーション施工事例テーマカテゴリー

 

  • 耐震等級3相当(上部構造評点1.5以上)リフォーム(性能向上リノベーション)
  • セルロースファイバー仕様
  • 混構造リフォーム
  • 内外部スケルトンリフォーム
  • 内部スケルトンリフォーム+サッシ交換

打ち合わせから着工、完成までの詳細施工事例紹介

1 着工前

1-1 現場調査・打合せ

既存外観

既存外観

外観のイメージは既存を活かし、サッシ開口面積が多いのでリノベーション後は位置を極力変えずに開口を今の標準の大きさに変えます。

 

既存玄関フロア

1階LDKの既存格天井は残します

既存玄関の位置はそのままで、サッシ周りは全て断熱サッシへ変更します。1階のLDKの格天井はそのまま残して、新たにプランをさせて頂きました。


既存和室

K様の建物は既存の和室部分が、RC造での平屋となっており、二階部はベランダとなっています。ここを耐震構造計算からは切り離して計画をたてました。

既存RC造の1階和室

既存1階広縁
 


既存浴室、タイル張りの昔ながらの造りです。

既存の間取りでは水回りは1階に全てありましたが、新規プランは2階に浴室・脱衣室を設置します。

既存階段、1階2階と天井高が高いので段数も通常より多いです。


築60年混構造の2階部

年代物の開口部の広い建具等の再利用の話を頂きましたが、耐震改修で構造評点(Iw値)1.5以上の補強計画を立てる必要からスケルトン解体が必要のため、大変残念ですが、諦めていただくことになりました。

2階廊下です。この時代特有の洋館造り

2階既存和室です。


1-2 東京都文京区K様邸 戸建リノベーションプラン

  間取りの変更プラン  

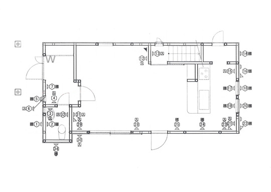
文京区 戸建フルリフォーム

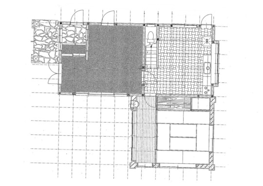
1階 既存平面図

文京区 戸建フルリフォーム

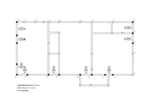
2階 既存平面図

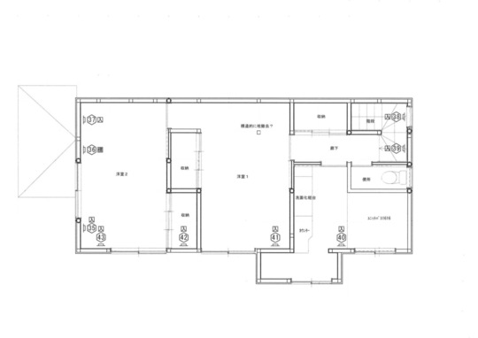
文京区 フルリフォーム

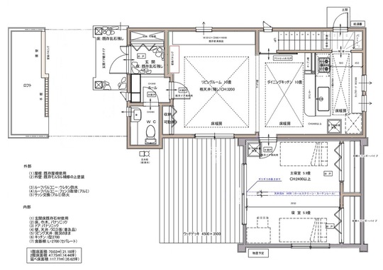
1階 新規平面図

文京区 戸建フルリフォーム

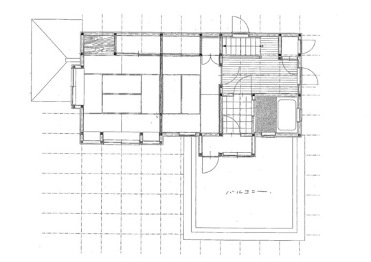
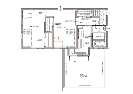
2階 新規平面図

***

K様の築60年混構造の戸建てリノベーションはこうして始まりました。

2 着工

2-1 解体・撤去

解体は手壊し作業になります。K様の耐震補強計画では、基本は内部スケルトン解体となりますが、構造計算上、一階部の多くは外壁までの剥離をして、内部からの補強だけにとどまらず、外部からの補強も必要であるため、まずは、内部をスケルトン状態の躯体残しまで解体後、一階の補強部の外壁を剥離する流れで解体工事は進みました。

 

文京区 戸建フルリフォーム

土壁は通常の壁より、手間もゴミ埃の量も倍以上かかります。

文京区 戸建フルリフォーム

昔の和室は土壁が結構あります。

文京区 戸建フルリフォーム

K様の敷地は、車が縦に3台は入るスペースがあり、工事期間中はお借りすることができましたので大変助かりました。

文京区 戸建フルリフォーム

K様邸は敷地が広く、産業廃棄物処理の車が敷地内に入って積み荷作業ができました。

解体と同時に、非破壊段階での構造計算が、そのまま計画として成り立つのか、既存の状態と当てはめ入念に躯体チェックをしていきます。

1階格天井は残しです。

二階内部解体後、母屋組が見えてきました。

一階LDKとなる部分の内部解体

文京区 戸建フルリフォーム

K様邸は1階平屋部分が木造ではなくRC造りで出来ています。

文京区 戸建フルリフォーム

1階の土台天端より二階の梁天端が3790㎜と階高が高い建物となり、2880㎜の位置に補強桁を入れる計画を立てることになりました。

文京区 戸建フルリフォーム

1階LDKとなる部分の内部スケルトン解体が完了

文京区 戸建フルリフォーム

内部スケルトン解体が完了後、1階の外壁を剥がし完全なスケルトン状態とします。

文京区 戸建フルリフォーム

建物の奥の邸は腐食が激しく、使える構造材がありませんでした。

文京区 戸建フルリフォーム

躯体状態になりました。

大事な構造部のすべてが目視可能となるスケルトンリフォーム

内外部のスケルトンリフォームの最大のメリットはこのような重要な主要構造部のすべての状態が目視でわかることになります。

フルリノベーション後は、これらの構造上の弱点をすべて修正し補強することで新築と同水準、もくしくはそれ以上の建物性能をもつ構造躯体へ甦らせることが可能となります。

2-2 基礎

構造上のチェックが終わると、フルスケルトンリフォームでは、基礎工事へと移行していきます。

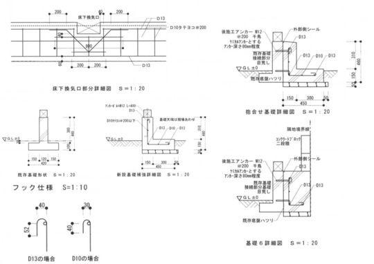
K様の建物は、無筋基礎になることから、抱き合わせ基礎(添え基礎)補強での補強が必要です。

文京区一戸建スケルトンリフォーム 基礎工事

既存の布基礎を目荒らしの上、あと施工アンカーによる配筋工事をしていきます。

文京区一戸建スケルトンリフォーム 基礎工事

アンカーサイズM12にて既存無筋コンクリートへ打ち太さD13の鉄筋をピッチ200㎜にて千鳥上に配筋していきます。

文京区一戸建スケルトンリフォーム 基礎工事

既存基礎の内側に抱き合わせ基礎を配置、配筋完了後に枠工となります。

文京区一戸建スケルトンリフォーム 基礎工事

型枠が完了

文京区一戸建スケルトンリフォーム 基礎工事

新たに基礎が必要な個所へは鉄筋コンクリート基礎を新設します。

文京区一戸建スケルトンリフォーム 基礎工事

コンクリートが打設されました。

文京区一戸建スケルトンリフォーム 基礎工事

湿潤期間を設けます。

文京区一戸建スケルトンリフォーム 基礎工事

枠が外されました。抱き合わせ基礎補強が完成です。既存基礎に抱き合うように増し打ちされているのがわかります。

ポイント

K様邸では、当初はベタ基礎での補強をご要望でしたが、我々が提案したのは、抱き合わせ基礎補強でした。

その理由は、瓦屋根を残して工事をするため、地盤に対してベタ基礎分のコンクリート荷重がかかる理由からでした。

すべてがベタ基礎が良いというわけではありません。

ベタ基礎は建物全体と同程度の荷重となりますので、建物の重さとのバランスもかかわってきます。足元だけ固めていても屋根を含めた建物とのバランスが悪いと大地震が起きた際にせん断力が働き、ホールダウン金物が抜けるような事態になるケースもあるからです。大手を含め多くのリフォーム会社が、基礎補強をしない現実がありますが、無筋基礎の状態の建物に基礎補強をしないのは、フルリフォームやリノベーションではありえないと弊社は考えております。基礎補強なしでいくら耐震といったところで、その計画は絵に描いた餅となるのです。

大規模な戸建てリノベーションをされる際には、木造を熟知し、実績が豊富な会社へ相談することをお勧めする理由でもあります。

ベタ基礎って?

布基礎が立ち上がりとフーチングで持たせる基礎に対して、ベタ基礎は、立上りだけでなく、底板一面も耐圧盤を設け、立ち上がりと底面が一体化された鉄筋コンクリートになっている基礎をいいます。

建物の荷重を底板全体の面で受け止めるため、ベタ基礎は不同沈下を起こさない。といわれますが、それは良好な地盤での話です。

基礎の下の地盤面の地耐力が均一でない場合は、不同沈下が起こる可能性が充分あるのです。

耐震の世界では、重い瓦屋根は外して、軽いものに変えましょうと言われておりますが、それ自体は間違っていませんが、この理屈でいくと。屋根の瓦を外して、基礎はベタ基礎にしても、地盤に与える荷重は、瓦屋根以上の荷重がベタ基礎の荷重により地盤面にかかることになります。

地盤が軟弱な場合、布基礎を採用した方が有利な場合も出てきます。

戸建てフルリフォームやリノベーションで、基礎補強をする際は、このような知識のある会社に相談することが必要です。

2-3 屋上ベランダ
2-4 木工事

1階 金物仕様及び位置

2階 金物仕様及び柱位置

1階 耐震補強後

基礎が終わり大工工事へと移行します。構造躯体の強度を担保するためのメイン工事となります。

仮の筋交いで補強を入れながら、木工事をスタートしてきます。

腐食している桁を補強。

梁補強+耐震金物による補強。

基礎補強部への土台抜け防止対策、アンカーボルト設置補強

既存土台へもビス止めホールダウンでの補強を入れ、抜け防止を図ります。

基礎と土台の抜け防止を徹底的に行います。

構造設計の指示通りに金物補強を入れていきます。

スケルトンになった1階部。ほとんどの構造材が新たに入れ直しとなりました。

既存土台へのホールダウン設置

二階柱と一階柱間のホールダウン補強

一階部の外周周りへは壁倍率2.5倍を取るために構造用合板張りとなります。

外周面の構造用合板張りが終了

既存RC部とは切り離しを図り、独立した木構造として構造設計をしています。

補強後はLDKの間仕切り壁を作っていきます。

二階床は水平耐力を担保するために、剛床工法しました。
➡剛床の詳しい解説はこちら

外周だけでなく一部室内も補強壁を設置しました。

2-5 断熱工事

東京都文京区のK様の戸建てリノベーションでの断熱材は、セルロースファイバーを採用。
グラスウール断熱と比較し、吸音効果と調湿効果を望める素材となり、施工後にその快適性は体感できる断熱材です。

K様の建物は階高が高く充填も大変でしたが、充填後には、中での作業音が外に漏れにくくなり、お施主様もビックリされておりました。

1階LDK部へのセルロースファイバー断熱充填

構造計算上は分離しているRC造となっている一階居室へもセルロースファイバーを充填しました。

手で触ってもパンパンに膨らんでいるのがわかるほど充填していきます。

天井、壁の充填が完了しました。

二階天井は勾配なりに下地を作り断熱層を設けました。

二階居室への充填

二階の天井、壁の充填が完了

外面に面する外周面が魔法瓶のように囲われるようにセルロースファイバーが充填されています。パンパンの状態です。

2-6 屋根工事

K様は屋根は既存の瓦葺きをそのまま残したいというご意向でしたので、屋根は棟の取り直しでの補修のみの工事となりました。

2-7 外壁工事

既存外壁

サッシの入れ替えによるカッターでの解体工事、新たな断熱サッシを設置後にモルタルでの補修を入れていきます。

外壁塗装仕上げ

塗装完了後

外壁解体をしている部分は塗装下地がないため、防水シートでの雨仕舞対策を行い、ラスカットボードを張り左官下地塗を行います。

モルタル下地塗

下地塗完了

塗装完了

2-8 内装仕上げ工事

構造部の構造補強が終わると、造作工事に入ります。

3 竣工

約6カ月の工事を経て、いよいよ竣工です。
K様邸の様子をご紹介します。


  =外観==  

外壁は塗装仕上げ

コンクリート造部分も塗装仕上げです。


  == 1F エントランス・玄関 ==  

玄関は断熱ドアとし既存の良さも残しつつ仕上がっています。

玄関ホール


  == 1F LDK ==  

1階のLDKは、既存の格天井を活かし、キッチンとリビングダイニングで2部屋だった間取りをひとつのLDK空間に。もともと天井高が高いこともあり、開放感がある空間へと生まれ変わりました。

Before

既存建物は昔ながらのキッチン・リビングダイニングと分けられておりました。


  == 階段 ==  

Before

 

既存階段

既存階段


  == 1F 洋室 ==  


  == 水まわり ==  

Before

既存キッチン

既存浴室

既存洗面室

既存トイレ

キッチン

トクラスBb

キッチン

トクラスBb

キッチン

トクラスBb カップボード

キッチン

トクラスBb カップボード

洗面脱衣所

広々とした洗面室

洗面化粧台

TOTOオクターブ

洗面脱衣室

空間にゆとりがあり開放的な空間です。

バスルーム

TOTOサザナ

1階トイレルーム

TOTOハイウィルオリジナルトイレ

1階トイレ手洗い

TOTOカウンター手洗い

2階トイレ

TOTOハイウィルオリジナルトイレ

1階トイレ

TOTOハイウィルオリジナルトイレ


  == 2F 洋室 ==  

Before

二階子供部屋

二階子供部屋


  == 外構 ==  

築60年文京区K様のリノベーションでは、敷地内にあるもう一つの戸建ての改装工事がありました。こちらを賃貸としてお貸しすることから、本宅と賃貸部を外構工事で目隠ししたいというご要望がありました。同時に水量が増えることから本管工事の必要もあり外構工事もお手伝いさせていただきました。

本宅内のアプローチ部分

仕切りがなく行き来ができていた本宅と賃貸部にフェンスを設置

奥の賃貸部と空間で仕切りを入れお互いのプライバシーを確保しました。

本宅アプローチ部分


4 担当者より(ハイウィル株式会社 取締役専務 稲葉悟)

弊社にご相談があった際にすでに他社様から構造評点(Iw値)が1.2程度までしかいかないので、1.5以上の設計はできないかとの具体的なスペックのお問い合わせでした。K様の建物は、木造とRCの混構造となっていたため、木構造部のみを分離して構造設計、施工についても、分離して補強することを前提でIw値1.5(国の耐震推奨基準は1.0)を超える計画を提出させていただきました。

難しかったのは、既存の格天井と瓦屋根を残しつつIw値を1.5以上にしなければならないことでしたので、基礎補強工事と内部スケルトンによる内側からの補強に加え、1階部については、外壁の多くを解体する内外部スケルトンリフォームにて外部からも補強を加えることで構造評点1.5以上をクリアすることができた事例となりました。大変お喜びいただきまして施工冥利につきます。

K様、この度はご依頼をいただき、誠にありがとうございました。

全国のフルリフォーム・リノベーション『ピックアップ事例』※プロの詳細解説付きレポート

HEAT20-G2/耐震等級3
新耐震基準の性能向上リノベーション
築30年ハウスメーカー軽量鉄骨
断熱改修&リノベーション
 
中古住宅を新築以上の耐震性能と断熱性能へ!
耐震等級3フルリフォーム
地下付き木造2階建て
自然素材をつかった性能向上リノベーション&フルリフォーム

東京都文京区 K様邸

長屋を切り離して1つの構造体へフルリフォーム&リノベーション
隣家との距離がない!
部屋から外壁を張り替えるフルリノベーション
中古住宅を耐震等級3へ!
中古住宅リノベーション
 
基礎がない??
築60年の古屋をジャッキアップで基礎新設フルリノベーション

東京都渋谷区 O様邸

戸建てリノベーション・リフォームに関するお問合せはこちら

増改築.comの一戸建てリフォーム専用ホームページに
お越しいただき、誠に有難うございます。
 
増改築.comメンバーは技術集団となり、
他社のような営業マンがおりません。
技術者が直接ご相談にのり問題解決を行います。
 
従いまして、
お客様の方である程度のご要望が整理されました段階、
お悩みが工事内容のどのようなところにあるのか?
ご予算がどの程度絞る必要があるのか?
など明確になった段階でのご相談をお願いしております。
お問合せ・ご相談はお電話・メールにて受け付けております。
メールの場合は以下のフォームに必要事項をご記入の上、
「送信する」ボタンをクリックをお願いします。

代表稲葉高志

戸建てリノベーションの専属スタッフが担当致します。
一戸建て家のリフォームに関することを
お気軽にお問合せください

よくあるご質問
  • 他社に要望を伝えたところできないといわれたのですが・・・
  • 他社で予算オーバーとなってしまい要望が叶わないのですが・・・
  • サービスについて詳しく聞きたいのですが・・・

どのようなお悩みのご相談でも結構です。

あなたの大切なお住まいに関するご相談をお待ちしております。

営業マンはおりませんので、しつこい営業等も一切ございません。

設計会社(建築家様)・同業の建築会社様のご相談につきましては、プランと共にご指定のIw値及びUa値等の性能値の目安もお願い申し上げます。

2026年の大型補助金が確定したことで現在大変込み合っております。

耐震性能と断熱性能を向上させるフルリフォームには6か月~7か月の工期がかかります。

補助金獲得には年内に報告を挙げる必要があることから、お早目にご相談をお願いいたします。(6月着工までが目安

ご提案までに大変お時間がかかっております。ご了承のほどお願い申し上げます。

(5月までの着工枠が埋まりました)・・・2026/03/01更新

※すでにプランをお持ちのお施主様・設計資料をお持ちのお施主様は内容をフォームで送信後、フォーム下のメールアドレスに資料をお送りください。対応がスムーズです。

必須

(例:増改築太郎)

必須

(例:contact@high-will.co.jp)

(例:03-5615-2826)

必須

(例:東京都荒川区西日暮里2-35-1)

(例:築40年)

(例:25坪・100㎡など)

(例:2000万程度など)

  • ※再建築不可のリフォームでは金融機関が限られます。事前審査をお勧めいたします。

    (例:2024年3月くらいに完成希望など)

    必須

    できるだけ具体的にお知らせくださいませ。既存設計資料、リフォーム後のイメージ図等をお持ちであれば下記のメールアドレスより添付をお願いします。

    ※次の画面がでるまで、4~5秒かかりますので、
    続けて2回押さないようにお願いいたします。

    ※次の画面が出るまで、4〜5秒かかりますので、
    続けて2回押さないようにお願いいたします。

    図面や写真等を送信いただく場合、また入力がうまくいかない場合は、上記内容をご確認のうえ、下記メールアドレスまでご連絡ください。

    お電話でのお問合せはこちら

    0120-246-991

    営業時間:10:00~17:00(土日祝日を除く)

    ★YouTube「増改築.comチャンネル」チャンネル登録して新動画解説をいち早くGET!!★
    「増改築.comリノベ診断」であなたに一番ふさわしいフルリフォームを診断!!(動画解説付き)
    ★Facebookページにいいね!を押して最新コンテンツ情報をいち早くGET!!★
    パソコン|モバイル
    ページトップに戻る