戸建てフルリフォームなら「増改築.com®」TOP施工事例都道府県で探す東京都文京区> 二世帯住宅へ全面リフォーム(耐震等級3相当)S様 

 
築60年の木造戸建てを耐震等級3相当へ性能向上

二世帯住宅リフォーム&リノベーション事例

文京区S様邸

 

S様は執筆業をされておられ、普段は地方に撮影所を完備するスタジオ併設のお住まいに住まわれております。頻繁に東京にお戻りになられることから、ご実家で同居を前提とした二世帯住宅への全面リフォームのご相談として弊社にいらっしゃいました。ご実家ではご両親が縫製のお仕事をされておられ、ご両親の作業場も考慮した2世帯住宅への全面リフォームとなります。また、築60年と建物が老朽化していること、補修こそされておりますが、過去に火事で一部が被害に遭ったということもお聞きしましたので、スケルトン状態にして躯体の状態を調査し、しかるべき補強をされることをお勧め致しました。S様は耐震等級3での性能向上をご要望されておられましたので、こちらも構造計算を行い補強計画を立案しました。

建物概要
名前 S様
場所 東京都文京区
築年数

築60年

構造種別 木造一戸建て
家族構成 大人3人
対象面積 26坪
リフォーム部位 断熱工事/外壁工事/内外部スケルトンリフォーム/耐震等級3
工期 6ヶ月
価格

2200万(税別)

お客様のご要望

今回の全面リフォームで、S様からのご要望は以下の6点です。

  • 断熱材は高性能グラスウールで
  • 白アリ対策
  • 屋根貼替
  • 全体的に洋室な造りにし、バリアフリーへ
  • サッシは全て取り替えたい
  • 耐震をしっかりしたい

プランナー 北畠より ~プランニングのポイント~

S様はご夫婦で自宅の1室でお仕事をさせていらっしゃるので、全面リフォーム後も引き続き仕事スペースは同じ大きさ位で欲しいとご要望を頂きました。

 

 

文京区S様邸 戸建てリノベーション施工事例テーマカテゴリー

 

  • 耐震等級3相当(上部構造評点1.5以上)リフォーム(性能向上リノベーション)
  • 二世帯住宅リフォーム
  • 内外部スケルトンリフォーム

打ち合わせから着工、完成までの詳細施工事例紹介

1 全面リフォーム着工前

1-1 現場調査・打合せ
文京区 戸建フルリフォーム既存写真

既存外壁は昔のマルチサイディング

文京区 戸建フルリフォーム既存写真

既存サッシには雨戸が付いています

既存外壁はマルチサイディングなので目立った劣化した箇所などはありませんでした。

 

文京区 戸建フルリフォーム 既存

階段は急勾配で上り下りが不安になります。

文京区 戸建フルリフォーム 既存

玄関は昔ながらのランマの付いた引き違い戸です。

既存廊下の壁も全て真壁で造られています。

リフォーム後はフラットな大壁の造りになります。


既存キッチン箇所はお隣様のボヤを貰ってしまった箇所なので、構造から心配な場所です。

既存キッチンはブロックキッチン

文京区 戸建フルリフォーム 既存

既存トイレは洋風トイレです。


文京区 戸建フルリフォーム 既存

窓が大きく在来の浴室

浴室はタイル張りの在来お風呂、大きな窓もあるので冬の寒さが厳しいお風呂です。

文京区 戸建フルリフォーム 既存

洗面化粧台は比較的新しい物です。


各居室和室が中心の造りです。

文京区 戸建フルリフォーム 既存

窓が大きく昔のサッシなので冬はとても寒いです。

文京区 戸建フルリフォーム 既存

断熱が無いので窓を小さくして断熱効果を上げたい。


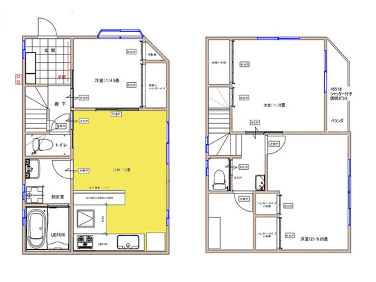
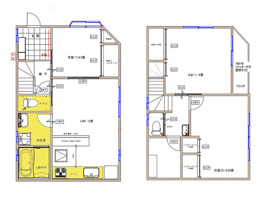
1-2 東京都文京区S様邸 戸建全面リフォームプラン

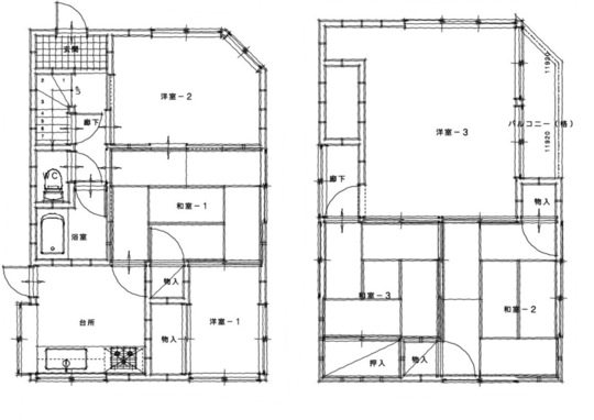
  間取りの変更プラン  

文京区 戸建フルリフォーム 既存図面

 既存図面

文京区 戸建フル衛フォーム新規図面

 全面リフォームプラン

新しい間取りは和室を無くし全てフローリングでバリアフリー仕様です。

S様の2世帯住宅化全面リフォーム(耐震等級3)工事はこうしてはじまりました。

2 全面リフォーム着工

2-1 戸建全面リフォームの解体・撤去

解体は手壊し作業

S様邸は内部のみをスケルトン状態にする全面リフォームではなく、外壁までも剥離する全面リフォームとなりますので、完全な躯体残しの工事となります。

文京区 戸建フルリフォーム

室内の面材より解体を進めていきます。

文京区 戸建フルリフォーム

S様邸は外部にサイディングが張られておりましたが、土壁の上からサイディングを上張りしている状態となっていたため、サイディングを剥がした状態でさらに、土壁を解体していくため手間が通常の現場以上にかかりました。

文京区 戸建フルリフォーム

躯体だけの状態まで解体していきます。

文京区 戸建フルリフォーム

解体を進めていくと火事でダメージを受けている柱が出てきました。火災の際に被害を受けていた躯体部は差し替えて補強を入れておきます。

解体後の躯体チェック

文京区 戸建フルリフォーム 解体後

柱を抜いた際に梁補強をどのように補強するかを現場にて大工、管理者、設計で打ち合わせを行います。

S様邸では火事があった際に一部改修をされており柱の位置が既存平面図と違う箇所がありました。またピッチも一部狂っている箇所がありました。これらの現況を踏まえ、正式な構造計算へと移行していきます。

文京区 戸建フルリフォーム 解体

柱の直下で基礎が割れています。無筋基礎となっているため、基礎補強は必須となります。

文京区 戸建フルリフォーム 大工工事

ブロックで束の代用をしていました。

文京区 戸建フルリフォーム

昔お隣さんの小火を貰いS様邸もキッチン廻りが小火にあった箇所です。構造の柱が煤になって真っ黒です。

文京区 戸建フルリフォーム

水周り部分は予想していた通り土台が腐食しておりました。差し替えとなります。

大事な構造部のすべてが目視可能となる全面リフォーム

全面リフォームの最大のメリットはこのような重要な主要構造部のすべての状態が目視でわかることになります。

全面リフォーム後は、これらの構造上の弱点をすべて修正し補強することで新築と同水準、もくしくはそれ以上の建物性能をもつ構造躯体へ甦らせることが可能となります。

2-2 基礎

構造上のチェックが終わると、全面リフォームでは、基礎工事へと移行していきます。

S様は耐震改修が今回の二世帯住宅化全面リフォームでのメインテーマとなっておりますので、基礎補強は重要な工程となります。

築年数が古く旧耐震基準で建てられている建物になりますので、基礎は当然無筋基礎の状態となっていました。

添え基礎(抱かせ基礎・増し基礎)補強が必要となります。

今回は、全面リフォーム後の間取りから通常の補強では耐震等級3への計画が難しく特許工法を採用しました。計画上耐力壁となる1階部分へは基礎と土台、柱、梁までを一体化させる工法です。

基礎は、既存の基礎に増し基礎(抱き合わせ基礎・添え基礎)補強となりますが、特許工法ではここで10kNの引っ張りに耐えられるアラミド繊維を配筋に結束しコンクリートで固めます。土台より上部の上部構造体へは耐力壁に設置する補強プレートで耐力壁をアラミド繊維と固定することで壁倍率6.3倍となります。

文京区 戸建フルリフォーム 基礎

敷地の境界線ギリギリで建てられている建物であることから増し打ち基礎は外側ではなく内部からのアプローチとなりました。既存の基礎に対しては増し打ち、新たに間仕切り壁が設置される土台下には、新たに布基礎を新設となります。
 

文京区 戸建フルリフォーム 基礎

6.3倍の壁倍率となる耐力壁部分に配筋後に9kNの引張力に耐えるアラミド繊維を結束します。

文京区 戸建フルリフォーム 基礎

配筋後にアラミド繊維を配筋に結束し底面部のコンクリート打設を行います。

文京区 戸建フルリフォーム 基礎

地震力は耐力壁、つまり壁倍率が高いところへ最も作用します。その為、耐力壁設置部分へは、基礎と土台を固定し地震が来た際に、土台が基礎から抜けないように補強が必要です。

文京区 戸建フルリフォーム 基礎

増し打ち基礎と新設基礎が入り組むコーナー部分の納まり

文京区 戸建フルリフォーム 基礎

アラミド繊維がコンクリート内に納められました。

文京区 戸建フルリフォーム 基礎

型枠を一部取り除くと内側に新たに基礎が設置されていることがわかります。

文京区 戸建フルリフォーム 基礎

増し打ち基礎が完了しました。

東京都文京区S様邸の全面リフォームでは旧耐震基準の建物かつ無筋基礎であったことから、増し打ちによる基礎補強(抱き合わせ基礎補強・ツイン基礎)を行いました。

旧耐震基準で建てられた建物の多くは無筋基礎であることが多く、耐震改修をする上では、基礎より上部、つまり土台より上部構造体を補強しても、肝心な基礎が割れてしまったり、土台が基礎から抜けてしまっては耐震は絵に描いた餅となってしまいます。(もちろん評点も減点対象となります)古い基礎の外側(もしくは内側)の地盤面を堀り、立ち上がり基礎部と底面部をL型に配筋しあと施工アンカーにより緊結します。既存の基礎の表面仕上げにコンクリートが接着なじみ易いよう凸凹を付ける(目荒らし)、新規の基礎との接着力を高めるのがポイントになる。

大規模な戸建て全面リフォームをされる際には、木造を熟知し、実績が豊富な会社へ相談することをお勧めする理由でもあります。

増し打ち基礎(抱き合わせ基礎・ツイン基礎)って?

基礎補強の方法にはさまざまな方法があります。その代表的な補強法に増し打ち基礎補強(抱き合わせ基礎・ツイン基礎)による基礎補強があります。

良好な地盤では立ち上がり部と底面が一体化された鉄筋コンクリートになっている基礎であるベタ基礎による補強を行うケースもありますが

基礎の下の地盤面の地耐力が均一でない場合は、不同沈下が起こる可能性があるためしっかりとした地盤調査が必要になります。

増し打ち基礎は、既存の基礎に対して外側(もしくは内側)に新たにL型に鉄筋コンクリート基礎を新設し、既存の基礎と抱き合わせる形で接着させる補強法となります。旧耐震基準の建物の多くが無筋基礎であることが多い為、鉄筋コンクリート基礎をあと施工アンカーにより接着し補強します。

戸建て全面リフォームで、基礎補強をする際は、このような知識のある会社に相談することが必要です。

2-3 木工事

1階平面補強箇所

2階平面補強箇所

床伏図

基礎が終わり大工工事へと移行します。構造躯体の強度を担保するためのメイン工事となります。今回の築60年二世帯住宅化全面リフォームでは、耐震等級3での耐震改修がメインとなります。構造計算された指示に基づき、補強を行っていきます。

文京区 戸建フルリフォーム 解体

2世帯住宅化全面リフォームとなることから、大幅な間取り変更となりました。既存の柱を抜き新たに柱を立てる箇所などが多数できて参ります。梁の補強の方法も構造計算ですべて定められているため仕様に乗っ取り確実な施工をしていきます。

文京区 戸建フルリフォーム 解体

充腹梁での補強

文京区 戸建フルリフォーム 大工工事

充腹梁にシールを張り、ビスを打つピッチを指定しています。

文京区 戸建フルリフォーム 大工工事

基礎と結合したアラミド繊維を固定する補強プレートを設置することで土台、柱、梁までが一体化されます。

文京区 戸建フルリフォーム 大工工事

二階部の補強プレート補強

 

文京区 戸建フルリフォーム 大工工事

ベランダ部分の床下地工事。構造用合板を井桁に2重張りをします。

文京区 戸建フルリフォーム 大工工事

構造計算された補強計画に基づき、充腹梁の設置、補強プレートの設置をしていきます。

文京区 戸建フルリフォーム 大工工事

S様邸は1階・二階合わせて24か所に壁倍率6.3倍の補強プレートを設置することで耐震等級3の建物へと耐震補強されました。

文京区 戸建フルリフォーム 大工工事

木部補強が終わると大量のプラスターボードが納入され現場は造作フェーズへと移行していきます。

文京区 戸建フルリフォーム 大工工事

階段の側板を施工していきます。

文京区 戸建フルリフォーム 大工工事

この段階になるとフロアーや建具の工事になっていきます。お施主様へは、現場へ足をお運び頂きながら、空間のイメージと選定された建具やフロアがイメージと相違が無いかをチェックしていただきます。

文京区 戸建フルリフォーム 大工工事

補強が完了した時点(断熱材が充填される前)に補強された構造体をお施主様に見ていだき、次の工程へと移行していきます。

木部補強が終わると造作工事へと移行していきます。

2-4 断熱工事

東京都文京区のS様の戸建て全面リフォームでの断熱材は、高性能グラスウールを採用。

文京区 戸建フルリフォーム 断熱

断熱工事のキモは何といっても隙間なく施工がされているかどうかにつきます。

文京区 戸建フルリフォーム 断熱

隙間なく充填されているかのチェックを行ったのち、耐力壁となる補強箇所へ構造用合板を張っていきます。

文京区 戸建フルリフォーム 断熱

グラスウール充填時の注意はコンセントや筋交部への充填になります。隙間がないようチェックをします。

文京区 戸建フルリフォーム 断熱

耐力壁設置部には構造用合板が張られ、グラスウールが見えている部分がプラスターボードとなります。

2-5 屋根工事
文京区 戸建フルリフォーム 屋根

屋根は断熱材付きの断熱トップを採用しました。

文京区 戸建フルリフォーム 屋根

***

文京区 戸建フルリフォーム 屋根

***

文京区 戸建フルリフォーム 屋根

***

2-6 外壁工事
文京区 戸建フルリフォーム 外壁

外部までを解体する全面リフォームとなりましたので、外周面はすべて構造用合板で補強しました。

文京区 戸建フルリフォーム 外壁

基礎と構造体を緊結する補強ガゼットは室内からの補強となりましたので外部がそのまま前面に構造用合板を張りました。

文京区 戸建フルリフォーム 外壁

ベランダの部屋側はサイディングの色見を変えました。

文京区 戸建フルリフォーム 外壁

サイディング施工が完了

2-7 内装仕上げ工事

構造部の構造補強が終わると、造作工事に入ります。

文京区 戸建フルリフォーム 内装

階段部の造作工事

文京区 戸建フルリフォーム 内装

LDK造作工事

文京区 戸建フルリフォーム 内装

玄関土間工事を残した造作工事が進んでいきます。

文京区 戸建フルリフォーム 内装

内装工事が進むと器具つけと呼ばれる住宅設備機器工事に入っていきます。

文京区 戸建フルリフォーム 内装

建具は枠から施工、扉のつり込みは最後です。

文京区 戸建フルリフォーム 内装

竣工間近となり建具扉が搬入されてきます。

3 全面リフォームの竣工

約6か月の工事を経て、いよいよ竣工です。
S様邸の様子をご紹介します。


  =外観==  

外壁はサイディング仕上げです。

文京区 戸建フルリフォーム 外観

1階は防犯の為、窓にシャッターと格子を付けています。


  == 1F エントランス・玄関 ==  

文京区 戸建フルリフォーム エントランス

ブロックは既存のままです。

文京区 戸建フルリフォーム エントランス

ポーチはタイル仕上げです。


  == 1F LDK ==  

文京区 戸建フルリフォーム 竣工
文京区 戸建フルリフォーム 竣工

文京区 戸建フルリフォーム 竣工

こそ壁を造り造り付けのカウンターを設置しています。

文京区 戸建フルリフォーム 竣工

キッチンはLIXILシエラです。

文京区 戸建フルリフォーム 竣工

窓枠はしっくいホワイト

Before
文京区 戸建フルリフォーム 既存キッチン

既存建物はブロックキッチンでした。


  == 階段 ==  

文京区 戸建フルリフォーム 竣工
After
文京区 戸建フルリフォーム 既存階段
Before

既存階段1間半の急勾配の階段でした。新規階段は14段で登りやすい勾配に変えています。


  == 1F下駄箱・2F洗面台 ==  

文京区 戸建フルリフォーム 竣工
文京区 戸建フルリフォーム 既存階段

下駄箱はPanasonicベリティスの間口1200のコの字プランです。

2階に新たに給排水を持ってきて小さな洗面化粧台を設置しました。


  == 1F ・2F 洋室 ==  

文京区 戸建フルリフォーム 竣工
Before
文京区 戸建フルリフォーム 既存階段
Before
文京区 戸建フルリフォーム 竣工

クローゼット扉は折戸のパナソニックベリティスです。

文京区 戸建フルリフォーム 竣工

ベランダに出るサッシです。構造上ベランダに出る窓のまたぎはフラットにはなりませんでした。

文京区 戸建フルリフォーム 竣工

同じく建具はPanasonicベリティスの折れ戸です。

文京区 戸建フルリフォーム 竣工


  == 1F 水まわり ==  

文京区 戸建フルリフォーム 竣工

Before

文京区 戸建フルリフォーム 既存キッチン

既存キッチン

文京区 戸建フルリフォーム 既存浴室

既存浴室

文京区 戸建フルリフォーム 既存洗面

既存洗面室

文京区 戸建フルリフォーム 既存トイレ

既存トイレ

キッチン
文京区 戸建フルリフォーム 竣工

LIXIL シエラ

浴室
文京区 戸建フルリフォーム 竣工

LIXIL アライズ

洗面室
文京区 戸建フルリフォーム 竣工

LIXIL オフト

トイレ
文京区 戸建フルリフォーム 竣工

ハイウィルオリジナル


  =バルコニー ==  

文京区 戸建フルリフォーム 竣工
文京区 戸建フルリフォーム 既存
Before

4 担当者より(ハイウィル株式会社・大谷)

 

S様は、ご実家での同居を想定された二世帯住宅化全面リフォームでした。築年数が古いことから、耐震改修を前提としたご相談から始まりましたが、弊社では、費用をかける大掛かりな工事となることから、耐震等級3での補強をお勧めさせていただきました。構造計算は必須になって参りますが、費用対効果をご検討いただき、特許工法にて施工させていただきました。

建物の置かれているロケーションから外部からの補強が難しく、内側からの基礎補強、耐震補強を行いました。

現場での打ち合わせに何度もお呼びしてお打合せを重ね、大変お喜びいただけました。長期間に渡り、安心してお住まい頂ければと考えております。

S様、この度はご依頼をいただき、誠にありがとうございました。

画像をクリックすると解説ページにジャンプします。

全国のフルリフォーム・リノベーション『ピックアップ事例』※プロの詳細解説付きレポート

HEAT20-G2/耐震等級3
新耐震基準の性能向上リノベーション
築30年ハウスメーカー軽量鉄骨
断熱改修&リノベーション
 
中古住宅を新築以上の耐震性能と断熱性能へ!
耐震等級3フルリフォーム
地下付き木造2階建て
自然素材をつかった性能向上リノベーション&フルリフォーム

東京都文京区 K様邸

長屋を切り離して1つの構造体へフルリフォーム&リノベーション
隣家との距離がない!
部屋から外壁を張り替えるフルリノベーション
中古住宅を耐震等級3へ!
中古住宅リノベーション
 
基礎がない??
築60年の古屋をジャッキアップで基礎新設フルリノベーション

東京都渋谷区 O様邸

戸建てリノベーション・リフォームに関するお問合せはこちら

増改築.comの一戸建てリフォーム専用ホームページに
お越しいただき、誠に有難うございます。
 
増改築.comメンバーは技術集団となり、
他社のような営業マンがおりません。
技術者が直接ご相談にのり問題解決を行います。
 
従いまして、
お客様の方である程度のご要望が整理されました段階、
お悩みが工事内容のどのようなところにあるのか?
ご予算がどの程度絞る必要があるのか?
など明確になった段階でのご相談をお願いしております。
お問合せ・ご相談はお電話・メールにて受け付けております。
メールの場合は以下のフォームに必要事項をご記入の上、
「送信する」ボタンをクリックをお願いします。

代表稲葉高志

戸建てリノベーションの専属スタッフが担当致します。
一戸建て家のリフォームに関することを
お気軽にお問合せください

よくあるご質問
  • 他社に要望を伝えたところできないといわれたのですが・・・
  • 他社で予算オーバーとなってしまい要望が叶わないのですが・・・
  • サービスについて詳しく聞きたいのですが・・・

どのようなお悩みのご相談でも結構です。

あなたの大切なお住まいに関するご相談をお待ちしております。

営業マンはおりませんので、しつこい営業等も一切ございません。

設計会社(建築家様)・同業の建築会社様のご相談につきましては、プランと共にご指定のIw値及びUa値等の性能値の目安もお願い申し上げます。

2026年の大型補助金が確定したことで現在大変込み合っております。

耐震性能と断熱性能を向上させるフルリフォームには6か月~7か月の工期がかかります。

補助金獲得には年内に報告を挙げる必要があることから、お早目にご相談をお願いいたします。(6月着工までが目安

ご提案までに大変お時間がかかっております。ご了承のほどお願い申し上げます。

(5月までの着工枠が埋まりました)・・・2026/03/01更新

※すでにプランをお持ちのお施主様・設計資料をお持ちのお施主様は内容をフォームで送信後、フォーム下のメールアドレスに資料をお送りください。対応がスムーズです。

必須

(例:増改築太郎)

必須

(例:contact@high-will.co.jp)

(例:03-5615-2826)

必須

(例:東京都荒川区西日暮里2-35-1)

(例:築40年)

(例:25坪・100㎡など)

(例:2000万程度など)

  • ※再建築不可のリフォームでは金融機関が限られます。事前審査をお勧めいたします。

    (例:2024年3月くらいに完成希望など)

    必須

    できるだけ具体的にお知らせくださいませ。既存設計資料、リフォーム後のイメージ図等をお持ちであれば下記のメールアドレスより添付をお願いします。

    ※次の画面がでるまで、4~5秒かかりますので、
    続けて2回押さないようにお願いいたします。

    ※次の画面が出るまで、4〜5秒かかりますので、
    続けて2回押さないようにお願いいたします。

    図面や写真等を送信いただく場合、また入力がうまくいかない場合は、上記内容をご確認のうえ、下記メールアドレスまでご連絡ください。

    お電話でのお問合せはこちら

    0120-246-991

    営業時間:10:00~17:00(土日祝日を除く)

    ★YouTube「増改築.comチャンネル」チャンネル登録して新動画解説をいち早くGET!!★
    「増改築.comリノベ診断」であなたに一番ふさわしいフルリフォームを診断!!(動画解説付き)
    ★Facebookページにいいね!を押して最新コンテンツ情報をいち早くGET!!★
    パソコン|モバイル
    ページトップに戻る