戸建フルリフォームなら「増改築.com®」TOP > 施工事例 > 都道府県で探す > 東京都中央区 > 施工事例 戸建てリノベーション 東京都中央区O様邸

耐震等級3相当(Iw値1.5以上)

東京都中央区O様 戸建てリノベーション施工事例

東京都中央区O様邸TOP

 

ハイウィルでは中央区の戸建てリノベーション実績は多数ですが、中央区とりわけ月島・佃エリアは、戦災や震災を免れたこともあり古屋も多く東京の古き良き風景を色濃く残しているのが特徴です。長屋造りが多いのもこの町の特徴です。

今回ご依頼いただいたO様は、海外勤務の息子様が東京へ戻るために築古となった家屋を性能向上リノベーションしたいご要望でした。

建物概要
名前 O様
場所 東京都中央区
築年数 築49年
構造種別 木造一戸建て
家族構成

大人3人 

対象面積 26.11坪
リフォーム部位 ベタ基礎/間取変更/断熱サッシ取替/外壁サイディング/断熱セルロースファイバー/耐震等級3/屋根葺き替え/外構
工期 6ヶ月
価格 2430万

お客様のご要望

今回のリフォームで、O様からのご要望は以下の*点です。

  • 耐震は評点1.5以上で設計して欲しい
  • 地震が不安なので耐震補強はしっかりとやりたい
  • 断熱材にはこだわりたい。
  • 基礎は補修ではなく基礎補強したい

プランナー 北畠より ~プランニングのポイント~

既存インナーガレージが今物置の様になってしまってもったいないので洋室にしたいとご要望を頂きました。インナーガレージの上には中二階の位置で既存洋室が有りその部屋との天井高のバランスを考えプランをしました。その他の間取りは、基本あまり変更せず和室を洋室へ替える等のリフォーム内容になります。

 

 

中央区H様邸 戸建てリノベーション施工事例テーマカテゴリー

 

  • セットバック
  • 中古戸建てフルリフォーム
  • 増築リフォーム
  • 狭小住宅リフォーム
  • 内外部スケルトンリフォーム

打ち合わせから着工、完成までの詳細施工事例紹介

1 戸建てリノベーション着工前

1-1 現場調査・打合せ

中央区の戸建て事情として、密集エリアであることが業者泣かせともいえるロケーションではありますがO様の建物は比較的恵まれたロケーションであり、ホッとしました。

東京都中央区O様邸 既存

既存外観。玄関の裏手はスペースがあります。

東京都中央区O様邸 既存

既存玄関の1側面は道路となっており、こちらも工事ロケーションは恵まれております。

東京都中央区O様邸 既存

既存玄関正面。一面は隣家と接しており足場が入らないと判断しました。


既存1階

東京都中央区O様邸 既存

既存玄関

東京都中央区O様邸 既存

既存キッチン

東京都中央区O様邸 既存

既存リビング


既存2階

東京都中央区O様邸 既存

既存には中2階の洋室がありました。

東京都中央区O様邸 既存

既存階段。途中に洋室があります。

東京都中央区O様邸 既存

既存2階の和室

東京都中央区O様邸 既存

既存2階の和室

1-2 東京都中央区O様邸 戸建リノベーションプラン

  間取りの変更プラン  

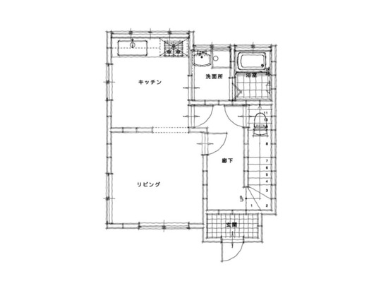
東京都中央区O様邸 既存図面

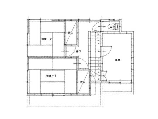
1階 戸建てリノベーション前平面図

東京都中央区O様邸 既存図面

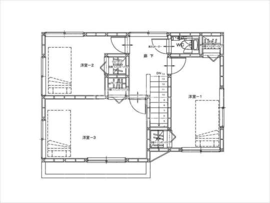
2階 戸建てリノベーション前平面図

東京都中央区O様邸 新規図面

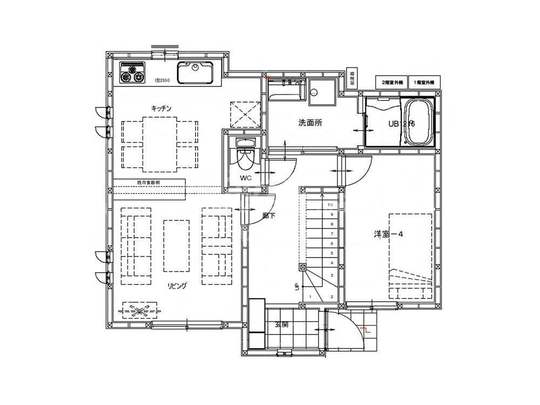
1階 戸建てリノベーション後プラン

東京都中央区O様邸 新規図面

2階 戸建てリノベーション後プラン

既存和室は全て洋室に変えて、今インナーガレージとして使用している空間を洋室として使用したい。と間取りに関しましてご要望を頂きました。既存中二階の位置にあった洋室を2階からは入れる様にし、1階既存インナーガレージ箇所に新たに洋室を作成させて頂きました。

O様の戸建てフルリフォーム&性能向上リノベーション工事はこうしてはじまりました。

2 戸建てリノベーション着工

2-1 足場・解体

解体は手壊し作業

スケルトンリフォームでは、内部をすべて解体し間取り変更に応じて、柱を抜き梁補強などを行いますが、外壁の傷み具合によっては外壁まで剥離解体する完全なスケルトンリフォームもございます。中央区のO様の性能向上戸建てリノベーションでは、外壁の傷みはそこまで進行しておらず残す選択肢もご提案させていただきましたが、せっかくの大々的な工事ならば、外壁までしっかりやっていただきたいという強いご要望もいただきましたため。内部のみのスケルトン解体ではなく、外壁までを解体する内外部スケルトンリフォームとなります。その為、完全な躯体(スケルトン)残しとなります。

そもそも外壁までを解体する躯体残しのリフォームでは、新築のような機械壊しが出来ないことから、解体職人による手壊し作業となります。それもリノベーション後の間取りを検討し、抜く柱や抜けない柱など細心の注意を払いながらの解体となります。

東京都中央区O様邸 解体

まずは内部の壁や天井など構造体では無い部位を剥がしていきます。

東京都中央区O様邸 解体

室内側の天井・壁・床を剥離解体して内部をスケルトン状態まで解体していきmす。

東京都中央区O様邸 解体

解体職人では抜けない柱などは大工が仮補強を入れながら解体する為、まずは既存の柱などは残したまま解体を行います。

東京都中央区O様邸 解体

主要構造体のみが残り、内部のみはスケルトン(躯体)となりました。

東京都中央区O様邸 解体

主要構造体のみを残す解体が終わりました。廃棄物をまとめておきます。

東京都中央区O様邸 解体

内部解体が終わると外壁を剥離解体していきます。徐々に骨の状態になってきました。

東京都中央区O様邸 解体

解体の廃棄物処理が終わると、大工が入り仮筋交いの設置をします。解体職人では抜けない柱などは大工が抜き仮での補強を入れます。

東京都中央区O様邸 解体

主要構造体のみが残り、完全なスケルトン(躯体)となりました。

大事な構造部のすべてが目視可能となるスケルトンリフォーム

内部の天井・壁・床だけでなく外壁まで解体しスケルトン状態(躯体残し)にする戸建てリノベーションの最大のメリットはこのような重要な主要構造部のすべての状態が目視でわかることになります。

フルリノベーション後は、これらの構造上の弱点をすべて修正し補強することで新築と同水準、もくしくはそれ以上の建物性能をもつ構造躯体へ甦らせることが可能となります。

2-2 基礎

構造上のチェックが終わると、フルスケルトンリフォームでは、基礎工事へと移行していきます。

O様は、基礎は補修ではなく、基礎補強をして欲しいとの強うご要望がございました。O様の建物は旧耐震基準の建物となっておりました。旧耐震基準の多くは、無筋基礎であることが多くO様のお住まいも無筋基礎となっておりました。

無筋基礎の場合、どんなに木部の補強を加えても、耐震補強で指標となる上部構造評点では、国の最低基準である1.0をクリアするのがやっととなります。それは、構造計算をした際に無筋基礎の場合は30パーセント程度の耐力がダウンとなってしまうからです。増改築comでは、国の基準の1.5倍を推奨しておりますので、無筋基礎の場合は基礎補強を必ずご提案させていただいております。

東京都中央区O様邸 基礎

現場にて基礎職人と綿密な打ち合わせを行っていきます。まずは掘方からスタート。転圧後にポリフィルム張りをした後は、配筋です。千鳥状に配筋をしていきます。D13を200mm間隔で配筋していきます。

東京都中央区O様邸 基礎

O様邸はツイン基礎となります。基礎補強で最も大切なポイントが立ち上がり基礎となります。

東京都中央区O様邸 基礎

鋤取り、ツイン基礎のベース部分にコンクリートを打設します。

東京都中央区O様邸 基礎

ベース基礎にコンクリート打設後に立ち上がり部に型枠枠工を施工します。

東京都中央区O様邸 基礎

配筋工事が完了後にベースコンクリート打設、立ち上がり部分については枠工後にコンクリート二度打ちとなります。

東京都中央区O様邸 基礎

浴室部は、土間打ちです。

東京都中央区O様邸 基礎

コンクリート打設後。型枠を外します。

東京都中央区O様邸 基礎

基礎補強工事が完了しました。

今回の基礎補強工事はツイン基礎を採用しました。お施主様よりベタ基礎補強をご要望される方もおられます。

ベタ基礎は建物全体と同程度の荷重となりますので、建物の重さとのバランスもかかわってきます。足元だけ固めていても屋根を含めた建物とのバランスが悪いと大地震が起きた際にせん断力が働き、ホールダウン金物が抜けるような事態になるケースもあるからです。

大規模な戸建てリノベーションをされる際には、木造を熟知し、実績が豊富な会社へ相談することをお勧めする理由でもあります。

ベタ基礎って?

ベタ基礎って?

布基礎が立ち上がりとフーチングで持たせる基礎に対して、ベタ基礎は、立上りだけでなく、底板一面も耐圧盤を設け、立ち上がりと底面が一体化された鉄筋コンクリートになっている基礎をいいます。

建物の荷重を底板全体の面で受け止めるため、ベタ基礎は不同沈下を起こさない。といわれますが、それは良好な地盤での話です。

基礎の下の地盤面の地耐力が均一でない場合は、不同沈下が起こる可能性が充分あるのです。

 

耐震の世界では、重い瓦屋根は外して、軽いものに変えましょうと言われておりますが、それ自体は間違っていませんが、この理屈でいくと。屋根の瓦を外して、基礎はベタ基礎にしても、地盤に与える荷重は、瓦屋根以上の荷重がベタ基礎の荷重により地盤面にかかることになります。

地盤が軟弱な場合、布基礎を採用した方が有利な場合も出てきます。

そもそも正しい基礎補強方法を知らず、基礎補補修程度しか行わないリフォーム会社が多くを占めている現状ですが、

戸建て一軒家のリノベーションで、基礎補強をする際は、このような知識のある会社に相談することが必要です。

2-4 木工事

基礎が終わり大工工事へと移行します。構造躯体の強度を担保するためのメイン工事となります。

東京都中央区O様邸 大工工事

土台はすべて入れ替えを行いました。

東京都中央区O様邸 大工工事

給水の配管を引き込みを行っておきます。

東京都中央区O様邸 大工工事

土台と大引きの接合部に金物を配置。基礎補強部は基礎が内側に出ているのがわかります。

東京都中央区O様邸 大工工事

一階の床組の構造躯体はほぼ新規の構造材にて組み直し施工となりました。

東京都中央区O様邸 大工工事

基礎補強部は内側に基礎がふけて一体化されているのがわかります。

東京都中央区O様邸 大工工事

2階の荷重を背負う尺梁を配置。仮支えを入れます。

東京都中央区O様邸 大工工事

柱と梁の仕口にはすべて金物を配置します。

東京都中央区O様邸 大工工事

土台と柱部分にも金物補強は必須となります。

東京都中央区O様邸 大工工事

梁へは受金物、梁と柱の仕口へも金物補強をしていきます。戸建てフルリフォームでの大工の技量の問われるところになってきます。

東京都中央区O様邸 大工工事

外壁下地には全面構造用合板張り

東京都中央区O様邸 大工工事

内部の躯体補強と外部の補強が完了しました。ここからは断熱工事へと移行します。

Iw値とは?

1981年以前の旧耐震基準で建てられた木造家屋では、2000年の品確法で定められた『耐震等級』という耐震指標保有水平力、耐震等級によって耐震力を測れないため、Iw値という指標で耐震力を測ります。「Iw値=家の保有耐力/耐震のために必要な耐力」によって数値化されます。1.0をクリアすることで震度6強の地震に対して倒壊、または崩壊する可能性が低いとされており、国の耐震改修の最低基準値となっている指標であります。

2-5 断熱工事

O様の戸建てリノベーションでの断熱材は、セルロースファイバーを採用。
極力自然素材を使用したいとのご要望がありました為、新聞紙を原材料としたエコ素材でありながら「断熱」「防音」「防燃」「防虫」「防湿」の効果を併せ持つセルロースファイバーはまさに理想的な素材となりました。

東京都中央区O様邸 断熱工事

O様邸の戸建てフルリノベーションでは断熱材はセルロースファイバーを採用しました。セルロースファイバー充填後は室内の内壁は構造用合板張りとなります。

東京都中央区O様邸 断熱工事

一階、二階の天井へのセルロースファイバー充填

東京都中央区O様邸 断熱工事

天井へのセルロースファイバー充填が終わりました。

東京都中央区O様邸 断熱工事

不織布を張りセルロースファイバーを充填

2-6 外壁工事
東京都中央区O様邸 外壁工事

O様邸の戸建てフルリノベーションでは、外壁も解体しましたので壁下地は構造用合板張りとなります。

東京都中央区O様邸 外壁工事

一階、二階の外周周りに防湿と薄いシートを張ります。

東京都中央区O様邸 外壁工事

通気胴縁を施工後サイディングをしたから張り込んでいきます。

東京都中央区O様邸 外壁工事

外壁工事が終わりました。

2-7 造作工事

構造部の構造補強が終わると、造作工事に入ります。

東京都中央区O様邸 造作工事

内壁は12.5㎜のプラスターボードボードを張っていきます。

東京都中央区O様邸 造作工事

二階階段部

東京都中央区O様邸 造作工事

内装仕上げ工事まえにシステムキッチン・洗面化粧台・トイレなど、浴室以外の設備が搬入されます。

3 戸建てリノベーション竣工

約6か月の工事を経て、いよいよ竣工です。

超都心の築49年戸建てがどのように生まれ変わったのか。
O様邸の様子をご紹介します。


  =外観==  

東京都中央区O様邸 竣工

バルコニー屋根はLIXILスピーネF型

東京都中央区O様邸 竣工

外壁は金属サイディングはる一番/石柄グラングレー

Before

東京都中央区O様邸 既存

リフォーム前は中2階がありました。

After

東京都中央区O様邸 竣工

外壁バルコニー箇所 はる一番クリーミーホワイト


  == 玄関==  

東京都中央区O様邸 竣工

玄関ドア:トステムジエスタM17型防火戸

東京都中央区O様邸 竣工

玄関収納:Panasonicベリティスコンポリアフロートタイプ


  == 1F LDK・洋室 ==  

東京都中央区O様邸 新規図面
東京都中央区O様邸 竣工

LDKのリビング側 掃出し窓に手動シャッター装備です。

東京都中央区O様邸 竣工

LDKのキッチン側

東京都中央区O様邸 竣工

1階洋室 床フローリングはすべてPanasonicベリティス

東京都中央区O様邸 竣工

階段下の収納スペース

リフォーム前のリビング
東京都中央区O様邸 既存

既存のリビングはとても凝った造りで重厚感があるお部屋でした。只、築49年なので断熱性のは無く、夏は暑く冬は寒いお部屋でした。写真でも解る様に掃き出し窓の上にさらに欄間(らんま)窓が付いています。アルミサッシでシングルガラスの仕様なので、この窓から多くの外気の影響を受けていきます。室内の熱の半分は窓から逃げると言われています。断熱材の他に窓の断熱性能は同じ位大切です。


  == 水まわり ==  

Before

東京都中央区O様邸 既存

既存キッチン

東京都中央区O様邸 既存

既存浴室

東京都中央区O様邸 既存

既存洗面

東京都中央区O様邸 既存

既存トイレ

東京都中央区O様邸 竣工

キッチン:トクラスBb I型2550

東京都中央区O様邸 竣工

浴室:TOTOサザナ1216

東京都中央区O様邸 竣工

洗面化粧台:TOTOオクターブ900

東京都中央区O様邸 竣工

トイレ:オリジナルトイレ


  == 2階 洋室 ==  

東京都中央区O様邸 新規図面
東京都中央区O様邸 竣工

洋室1

東京都中央区O様邸 竣工

洋室2

東京都中央区O様邸 竣工

洋室3

東京都中央区O様邸 竣工

階段


ハイウィル株式会社4代目代表 稲葉高志

4 担当者より
(「増改築.com®」本部ハイウィル株式会社四代目代表稲葉高志)

ハイウィルでは中央区の戸建てリノベーション実績は多数ですが、中央区とりわけ月島・佃エリアは、戦災や震災を免れたこともあり古屋も多く東京の古き良き風景を色濃く残しているのが特徴です。長屋造りが多いのもこの町の特徴です。

今回ご依頼いただいたO様は、海外勤務の息子様が東京へ戻るために築古となった家屋を性能向上リノベーションしたいご要望でした。現地調査もO様ご夫妻と息子様3名様の要望を整理させていただき、メーリングリストを作成しすべての情報を共有できるようにさせていただきました。

出来る工事と法律的に出来ない工事を整理してお話しさせていただき、間取りを確定後の仕様決定では、かなり迷われながらも一つ一つ素材をショールームへお出かけいただきながら確定していきました。年明け早々に「おかげ様で結露がない快適な生活を過ごせています。収納も十分でとても快適です。ありがとうございます。」というお言葉を頂きお喜び頂けたんだとこちらもうれしい気持ちになりました。

O様、この度はご依頼をいただき、誠にありがとうございました。

全国のフルリフォーム・リノベーション『ピックアップ事例』※プロの詳細解説付きレポート

HEAT20-G2/耐震等級3
新耐震基準の性能向上リノベーション
築30年ハウスメーカー軽量鉄骨
断熱改修&リノベーション
 
中古住宅を新築以上の耐震性能と断熱性能へ!
耐震等級3フルリフォーム
地下付き木造2階建て
自然素材をつかった性能向上リノベーション&フルリフォーム

東京都文京区 K様邸

長屋を切り離して1つの構造体へフルリフォーム&リノベーション
隣家との距離がない!
部屋から外壁を張り替えるフルリノベーション
中古住宅を耐震等級3へ!
中古住宅リノベーション
 
基礎がない??
築60年の古屋をジャッキアップで基礎新設フルリノベーション

東京都渋谷区 O様邸

戸建てリノベーション・リフォームに関するお問合せはこちら

増改築.comの一戸建てリフォーム専用ホームページに
お越しいただき、誠に有難うございます。
 
増改築.comメンバーは技術集団となり、
他社のような営業マンがおりません。
技術者が直接ご相談にのり問題解決を行います。
 
従いまして、
お客様の方である程度のご要望が整理されました段階、
お悩みが工事内容のどのようなところにあるのか?
ご予算がどの程度絞る必要があるのか?
など明確になった段階でのご相談をお願いしております。
お問合せ・ご相談はお電話・メールにて受け付けております。
メールの場合は以下のフォームに必要事項をご記入の上、
「送信する」ボタンをクリックをお願いします。

代表稲葉高志

戸建てリノベーションの専属スタッフが担当致します。
一戸建て家のリフォームに関することを
お気軽にお問合せください

よくあるご質問
  • 他社に要望を伝えたところできないといわれたのですが・・・
  • 他社で予算オーバーとなってしまい要望が叶わないのですが・・・
  • サービスについて詳しく聞きたいのですが・・・

どのようなお悩みのご相談でも結構です。

あなたの大切なお住まいに関するご相談をお待ちしております。

営業マンはおりませんので、しつこい営業等も一切ございません。

設計会社(建築家様)・同業の建築会社様のご相談につきましては、プランと共にご指定のIw値及びUa値等の性能値の目安もお願い申し上げます。

2026年の大型補助金が確定したことで現在大変込み合っております。

耐震性能と断熱性能を向上させるフルリフォームには6か月~7か月の工期がかかります。

補助金獲得には年内に報告を挙げる必要があることから、お早目にご相談をお願いいたします。(6月着工までが目安

ご提案までに大変お時間がかかっております。ご了承のほどお願い申し上げます。

(5月までの着工枠が埋まりました)・・・2026/03/01更新

※すでにプランをお持ちのお施主様・設計資料をお持ちのお施主様は内容をフォームで送信後、フォーム下のメールアドレスに資料をお送りください。対応がスムーズです。

必須

(例:増改築太郎)

必須

(例:contact@high-will.co.jp)

(例:03-5615-2826)

必須

(例:東京都荒川区西日暮里2-35-1)

(例:築40年)

(例:25坪・100㎡など)

(例:2000万程度など)

  • ※再建築不可のリフォームでは金融機関が限られます。事前審査をお勧めいたします。

    (例:2024年3月くらいに完成希望など)

    必須

    できるだけ具体的にお知らせくださいませ。既存設計資料、リフォーム後のイメージ図等をお持ちであれば下記のメールアドレスより添付をお願いします。

    ※次の画面がでるまで、4~5秒かかりますので、
    続けて2回押さないようにお願いいたします。

    ※次の画面が出るまで、4〜5秒かかりますので、
    続けて2回押さないようにお願いいたします。

    図面や写真等を送信いただく場合、また入力がうまくいかない場合は、上記内容をご確認のうえ、下記メールアドレスまでご連絡ください。

    お電話でのお問合せはこちら

    0120-246-991

    営業時間:10:00~17:00(土日祝日を除く)

    ★YouTube「増改築.comチャンネル」チャンネル登録して新動画解説をいち早くGET!!★
    「増改築.comリノベ診断」であなたに一番ふさわしいフルリフォームを診断!!(動画解説付き)
    ★Facebookページにいいね!を押して最新コンテンツ情報をいち早くGET!!★
    パソコン|モバイル
    ページトップに戻る