このエントリーをはてなブックマークに追加

中央区H様 中古物件を購入されて、戸建てフルリフォーム

中央区林様邸

 

林様東京都中央区築地で中古住宅を購入された林様ご一家の中古住宅フルリフォームです。

建物概要
名前 林様
場所 東京都中央区築地
築年数 築50~60年
構造種別 木造一戸建て
家族構成 ご夫婦+お子様(2人)
対象面積 27.4坪
リフォーム部位 間取り変更/断熱サッシ取替/外壁サイディング/グラスウール/水まわり一式/屋根葺き替え
工期 3.5ヶ月
価格 1950万(税別)

お客様のご要望

今回のリフォームで、林様からのご要望は以下の6点です。

  • 中古物件を購入し、現状はとても住める状況ではないので全てリフォームしたい。
  • 土地柄住宅・店舗と密集しているので、耐震・防火を優先にリフォームしたい。
  • 出来れば既存3階部分にバルコニーを付けたい。
  • LDKは日当たりが一番良く、スペースの有る2階に持っていきたい。
  • 洋室は3部屋は欲しい。
  • キッチンは対面キッチンにしたい。

プランナー 北畠より ~プランニングのポイント~

東京理科大の大学院にて木造の建築学を専攻されていた林様ご主人。職場からほど近い築地に中古住宅を購入されました。
築50年を超える築古戸建で、セットバックの問題から、建て替えをしてしまうと間口、奥行ともにかなり狭くなってまうことから、改築を選択されることになったそうです。

改築や新築での提案を数多くのハウスメーカーや建築家、不動産仲介会社の紹介工務店から受けていたようですが、今回木造に強い弊社にご依頼をいただくことになりました。

 
※この事例の最後に林様のお客様アンケートを全文掲載したもののリンクを貼っておりますが、10社以上に声を掛けられていたようです・・汗。。。さすが専門家と思いました。弊社を採用いただいた経緯は一番下のリンクよりお客様の声をご覧いただくことで林様の心境も含め共感いただけるかと思います。
 
長きにわたり空き家状態だった中古住宅です。誰も住んでいない空き家なので外観だけでなく室内もかなり痛んでます。リフォーム後はサッシも入れ替え、外壁もフルリフォームしたい。大学院で伝統工法も学ばれたご主人です。構造の補強もご要望をかなりいただきました。
内部フルスケルトンでの中古住宅リフォーム、内部の構造はほぼやり直す想定で、工事期間は3.5ヶ月を見させていただきました。

中央区O様邸 戸建てリノベーション施工事例テーマカテゴリー

 

  • 耐震等級3相当リフォーム
  • セルロースファイバー仕様
  • 内外部スケルトンリフォーム

打ち合わせから着工、完成までの詳細施工事例紹介

1 着工前

1-1 現場調査・打合せ
中央区林様邸_施工前

写真では2階屋のようにみえますが、3階部もございます。

中央区林様邸_施工前

建物の側面部分ですが隣家との離隔距離がわずか数十センチ程度しかなく、最悪の場合、手前のみの解体しかできない可能性を示唆させていただきお打ち合わせをさせていただきました。

中央区林様邸_施工前

既存建物の造りが当時下宿舎を思わせる造りになっていました

中央区林様邸_施工前

以前住んでた方の物らしきものが少し残ってました。

中央区林様邸_施工前

間仕切り壁があまり無く、建具で部屋を仕切ってます。

中央区林様邸_施工前

既存分電盤は30Aになります。こちらも4人家族では厳しい容量になって参りますので変更。

中央区林様邸_施工前

階段はとても急勾配の鉄砲階段です。中古住宅フルリフォーム後のご提案では、階段の位置自体もすべて変わってきます。

中央区林様邸_施工前

既存水周りはとても歴史を感じます。

中央区林様邸_施工前

既存の和式トイレ


既存2階部分

中央区林様邸_施工前

2階和室部分は中古住宅フルリフォーム後はワンフロアのLDKになります。

中央区林様邸_施工前

2階にあるミニキッチンは当時の下宿用のスペースの物です。

中央区林様邸_施工前

2階のバルコニー箇所は中古住宅リフォーム後は増築をします。築地、下町らしいロケーションです。


既存3階部分

中央区林様邸_施工前

3階に登る階段はさらに急勾配となっておりました。このスペースはお子様のお部屋となりますのでここも改善が必要なポイントとなります。

中央区林様邸_施工前

3階には昔住まわれていた方のお荷物が満載に詰まっていました。新規3階部は中古住宅フルリフォーム後にはお子様のお部屋にリフォームされます。


既存屋根部分

中央区林様邸_施工前

3階扉を開くと、屋根の上に抜けられるようになっておりました。お子様部屋でこの状態では当然危ないですので中古住宅フルリフォーム後はここにバルコニーを設置します。

中央区林様邸_施工前

こちらの物件を管理する元宮大工の弊社竹政が屋根の状況を検査します。

1-2 東京都中央区林様邸 戸建リノベーションプラン
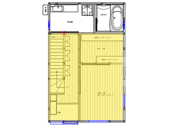
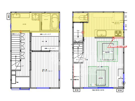
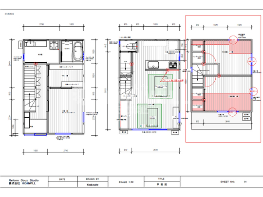
  間取りの変更プラン  
中央区林様邸_既存図面

既存平面図

中央区林様邸_新規図面

新規平面図

新規ご提案でのゾーニングです。

1階に寝室・浴室・洗面化粧室
2階にLDK
3階に洋室2部屋

になります。

  3Dプレゼンテーション  

中央区林様邸_3D
中央区林様邸_3D
中央区林様邸_3D

中古住宅フルリフォーム後のイメージとして、このような提案をさせていただき、いよいよ林様の中古住宅フルリフォームはスタートとなりました。

2 着工

2-1 足場・解体

解体は手壊し作業

既存の躯体部を残しながら使える構造材を見定め解体をしていくため、機械壊しではなく、手作業で解体をしていきます。

中央区林様邸_解体

築50年以上の家なので、解体による廃材の量も通常より多くなります。

中央区林様邸_解体

解体をしていくと腐っている土台がさっそく出てきました。

中央区林様邸_解体

築50年の間リフォームをされていないためサッシが木製枠の年代物です。

中央区林様邸_解体

天井・壁・床と解体を進めていきます。

中央区林様邸_解体

玄関より向かって奥の面、写真の壁面は、隣家との離隔距離がほぼないため、解体できない可能性があると林様にはお伝えしておりました。解体してやはり想定通りでした。

中央区林様邸_解体

築地のもんじゃ街の脇を入ったところに位置する建物での中古住宅フルリフォームとなりますので、車両が浸入するスペースはなく、郊外のように家の前に廃材車や搬送車を付ける事が出来ません。手運びで出た残材や廃材はトラックへ持って行きます。もちろん運ばせて頂いている道の汚れは清掃させて頂きます。

2-2 基礎

解体作業が一巡し終わるとこのようなフルスケルトンリフォームでは基礎工事に移っていきます。

林様の中古住宅は築50年以上を経過。布基礎となっていました。
この布基礎をフォールアンカーにて鉄筋を接続しベタ基礎へ変更して補強するという工程です。

中央区林様邸_基礎

鋤取りを終えてから砕石をひいて転圧をかけたのち鉄筋を敷いていきます。

中央区林様邸_基礎

フォールアンカー工法で既存の基礎にアンカーを打ち布基礎と緊結させます。

中央区林様邸_基礎

フルスケルトンリフォームのため、間取りは大幅に変更されております。新しい間取りに合わせて、新たに土台を設置する箇所も出てきますので型枠を作り新たな布基礎も作っていきます。

中央区林様邸_基礎

このように古い既存基礎と新たな基礎をここでも緊結していきます。

中央区林様邸_基礎

こちらの林邸、先ほども触れましたが密集地となり、廃材車と搬送車と同じでコンクリートミキサー車を現場前につけることができません。そのため、手間がかかりますが、ベタ基礎工事も手作業になります。

中央区林様邸_基礎

解体が終わり、ベタ基礎への基礎補強工事、新しい布基礎の新設工事までの工程が終わりました。そして構造部のみの躯体だけの状態になりました。

中央区林様邸_基礎

当初、側面部は壊せないかもしれないと林様にはお話していましたが、専門の解体職人に相談依頼し解体するなんとかできました。また、熟練の鳶職人に数十センチの隙間の中で単管足場を架けてもらうこともできました。

中央区林様邸_基礎

この状態、基礎が終わり既存の構造部がスケルトン状態になった段階で、弊社ではお施主様を現場にお呼びし現状の確認をしていただきます。側面は外部まで解体が可能となり、林様に確認したところ解体してほしいとのご意向であったため、施工不可能な建物の奥以外はすべて解体されております。

2-3 木工事

新築とフルスケルトンリフォームの違い

フルスケルトンリフォームは新築同様の仕上がりになりますが、新築との大きな違いの一つに、解体をして既存の構造体が浮き彫りになって初めて仕掛けがわかるということがあります。
特に年代が古ければ古いほど、そして持ち主が変われば変わるほど、構造体をいじっていたり、構造体の組み方がこちらが予想している組み方と違っていたりすることが往々にしてあります。
そのため、どうしても抜けない柱が解体後に判明したりということがあります。

中央区林様邸_木工事

弊社監督、宮大工出身の竹政が弊社大工に構造体の組み方を指示している風景

中央区林様邸_木工事

第一弾の材木が運ばれてきました。都心でのリフォームでは材料を置くスペースが限られることが多く、この林邸も例外ではありません。数回に分けて搬送されてきます。

中央区林様邸_木工事

3階部の増築は棟上げがありますので構造体の組み直しがありました。

中央区林様邸_木工事

3階部分のスペースは一部棟上げをして屋根を新規で野地板かた施工します。

中央区林様邸_木工事

築50年を超える構造物となり、建物の歪みも相当なものがありました。外壁を落としているため、外壁荷重もかからないため、既存建物を補強前に引っ張り正しい位置に補正をしていきます。

中央区林様邸_木工事

3階増築箇所に梁を掛けて下地を組んでいきます。ほぼ新しい材木になっていると思います。林様とお話して、材木量分の追加のお話をさせていただきほぼ新しい構造材となりました。

今回の林様中古住宅フルリフォーム、大工工事が進み、大幅な構造の変更も有りながら現場は進行していったわけですが、弊社の大工は、『この現場は本当に難易度の高すぎる現場です』と言っておりました・・・。

現場監督とこの時期は何度も現場で打合せを重ねて構造の組み方の指導を行っておりました。
私も既存の組み方をみて、その状態から提案のプランで構造をくみ上げるのは絡むところがあまりに多すぎて監督の竹政に相談しながら林様とも打ち合わせをしていきました。

中央区林様邸_木工事

林様邸を解体して出てきた昭和36年に建てられた際の棟札が出てきました。毎日施工しているのですが、棟札をみるとやはり感慨深いものがあります。

中央区林様邸_木工事

木工事では構造を補強していきながら、サッシは一番初めに納めます。下町の密集地にある住宅ですので目の前がすぐご近所様のお住まいであったりします。そのため、外からの目線等を考慮し窓を通常より高い位置で設置するなど林様のご要望を聞きながら選定させて頂きました。

中央区林様邸_木工事

既存建物では3階部分は1部屋、それも納戸のように使用されていた状態であり天井高も低い為、今回、2人のお子様のお部屋として屋根の組み直しをし2部屋を設ける提案をさせて頂きました。

中央区林様邸_木工事

がしかし。。。。このプランが更に構造の組み方の難易度を上げてしまうのでございました。。。。

中央区林様邸_木工事

サッシ取付が終わり内部構造工事に移っていきます。

中央区林様邸_木工事

建物の天井高を取る必要があったため屋根勾配をゆるくする必要がありましたので野地板から新規で屋根組をしました。コストもあり、あくまでリフォームなので使える母屋は活かします。

中央区林様邸_木工事

弊社は、一級建築士の建築家や住まいのプロからの仕事依頼も多いのですが、今回のような理科大大学院で木造建築、伝統構法を学ばれたご主人は打ち合わせでの理解も早く助かったのは、工事の進行上大きかったと言えます。

中央区林様邸_木工事

各所に金物補強が設置されます。金物補強は住宅の強度に繋がり耐震強度が高まります。

中央区林様邸_木工事

たすき掛けで筋交いを入れます。コチラの筋交いにも金物でしっかり固定されています。

中央区林様邸_木工事

3階を背負う2階はワンフロアLDKになるので、補強は必須。しっかりとした補強工事を行いました。

中央区林様邸_木工事

林様邸ではこの補強工事に当初の予定より大幅に時間が掛かってしまっております。この時点でも林様に現場に来て頂いて、現場の状況・補強の位置等を見て頂きました。

高難度のフルリフォームになった理由

大工工事で一番時間が掛かる所が構造を造っていく過程です。
弊社が約1世紀にわたり建築をやってこれたのもこの技術をおいては語れません。弊社の最大の強みといって良いところだと思います。

今回の林様邸で大工泣かせとなった難易度が高いフルリフォームになっていた要素を整理しますと

・3階に増築を兼ね、既存1部屋だった所に、2部屋+バルコニーを造る点。

・階段の位置が既存と反対に設置となり間取りが大幅に変わる。つまり、構造までも大幅に変更となる。

・2階LDKを増築した上でワンフロアにする。しかも、3階を背負う状態であったこと。

上記3点が1階の最も重要な構造体と絡み合い、補強をしながら1階+2階+3階のバランスを考え木組みしなければならなかった点です。

3階に2部屋にするには増築をし、屋根勾配を替えなくてはなりませんでした。。部屋が増えるのに、2階はワンフロアです。

当然、3階をささえる構造体が重要になり、梁・補強がかなり必要になりました。その上で階段の位置が大幅に変わり、既存の構造材を支えていた梁の配置も変えていかなくてはなりませんでした。

中央区林様邸_木工事

構造体の組み直し、補強の写真です。

中央区林様邸_木工事

構造、つまり骨組を設計し、組み上げる。ここまでで重要な80%は終わったようなものなのです。


しっかりとした構造工事が組み上がると室内工事へと移っていきます。断熱材の充填、バルコニー作成、建具準備などを行っていきます。

中央区林様邸_木工事

石膏ボードを貼る前に断熱材をいれていきます。

中央区林様邸_木工事

各居室のドア枠を先に納めていきます。この辺りから徐々にお部屋らしくなってきます。

中央区林様邸_木工事

完全に位置が変わった階段もこの段階より造られていきます。築年数の経過した古い家の木造の家は、急勾配の階段を多くみます。今回フルリフォームをするので、ゆったりとした階段勾配で納めさせて頂きます。

中央区林様邸_木工事

断熱材が入れ終わるとボードを貼っていきます。ボードを貼ってしまうと、もう構造は見えなくなってしまいます。

中央区林様邸_木工事

3階の新規バルコニーも増築し新規で造らせて頂きました。

中央区林様邸_木工事

防水をしてサイディングを貼っていきます。

中央区林様邸_木工事

大工工事もボードを貼る作業に入ると後は引渡まであっという間に作業は進んでいきます。

中央区林様邸 中古住宅フルリフォーム工事。
大工工事が終わり、大工から内装職人へバトンタッチ、大工は次の現場へ移動となるわけです。

次は内装工事へと移行していきます。

2-4 造作工事
中央区林様邸_造作工事

クロスを貼る前にパテで下地処理をしていきます。大工の施工技術が高いとパテの量は少ないのです。

中央区林様邸_造作工事

下地処理が終わるとクロスを貼っていきます。

中央区林様邸_造作工事

クロスが貼り終わる段階になりますとほぼ完成に近づいて来た証拠です。あとはアクセサリー等の取り付けや細かいチェックをスタッフで行っていく段階に入っていきます。

中央区林様邸_造作工事

テレビボードとなるパナソニックキュビオスを監督の竹政とその弟子である私の弟が施工します。

中央区林様邸_造作工事

ポストの取付です。

中央区林様邸_造作工事

お引渡前1週間はお部屋全体の養生が剥がしにはじまりルームクリーニング最終チェックなどであっという間に過ぎていきます。同時にお引渡までが楽しみな1週間でもあります。

3 竣工

いよいよ中央区築地林様邸 中古物件フルリフォームもお引渡しを迎えました。竣工です。

工事期間は年末年始を挟み4ヶ月です。
3.5ヶ月を目標にさせて頂いたのですが、解体をし構造部において大工工事の難易度が高く日数が掛かってしまいました。


  =外観==  

中央区林様邸_竣工

外観は前面と向って左側はサイディング仕上げで通りの目に入らない右側は塗装で仕上げさせて頂いてます。

中央区林様邸_竣工

下町情緒の残る人通りが多い小道に位置する建物なのでサッシは通常より高い位置に設置させて頂いてます。


  == 1F 寝室・WIC・階段下収納==  

中央区林様邸_新規図面
Before
中央区林様邸_施工前

下宿舎を思わせるつくりでした。

Before
中央区林様邸_施工前

お部屋はすべて和室でした。

1階はパウダールームと浴室、大きめのウォークインクローゼットと寝室となる洋室です。階段下は全て収納にさせて頂きました。

中央区林様邸_竣工

寝室となる洋室です。

中央区林様邸_竣工

どのお部屋もクロスが個性的です。寝室らしいシックな色合い。

中央区林様邸_竣工

隣がWICです。

中央区林様邸_竣工

アクセントクロスが大人の雰囲気です。

中央区林様邸_竣工

階段下を利用して収納を作りました。

中央区林様邸_竣工

階段下の収納は定番ですね。


  == 2F LDK ==  

中央区林様邸_新規図面
Before
中央区林様邸_施工前

下宿舎時代のミニキッチンもありました。

Before
中央区林様邸_施工前

2階バルコニー部分は増築でLDKの一部になっています。

中央区林様邸_竣工

2階にはトイレとワンフロアのLDKです。

中央区林様邸_竣工

3階への階段はリフォーム前より勾配が緩くなっています。

中央区林様邸_竣工

パナソニックキュビオス。お子様お二人の勉強スペースです。

中央区林様邸_竣工

2階長手の一面はクロスの色を変えました。


  == 3F 洋室 ==  

中央区林様邸_新規図面
Before
中央区林様邸_施工前

3階は天井が低く荷物が満載でした。

Before
中央区林様邸_施工前

屋根の勾配も変えて増築してあります。

中央区林様邸_竣工

3階は洋室を2つ造りました。屋根勾配を活かして極力天井高を取れる様に納めさせて頂いてます。

中央区林様邸_竣工

3階バルコニーは新設です。

中央区林様邸_竣工

屋根は勾配を替えてるので新規で組んで納めてます。

中央区林様邸_竣工

収納スペースです。天井勾配が有るので建具の高さをオーダーしています。


  == 水まわり ==  

中央区林様邸_新規図面
Before
中央区林様邸_施工前

既存キッチン

Before
中央区林様邸_施工前

既存和式トイレ

キッチン
中央区林様邸_竣工

PanasonicラクシーナI型2550サイズ

浴室
中央区林様邸_竣工

TOTO サザナ1616サイズ

洗面室
中央区林様邸_竣工

Panasonic シーライン

トイレ
中央区林様邸_竣工

Panasonic アラウーノS

お客さまの声  中央区月島 林様 (施工会社:ハイウィル株式会社)

丁寧な対応に感動!

なぜみなハイウィルさんでやらないのだろう? やれば絶対満足するのに。と思う次第です。

お客様の声

なぜみなハイウィルさんでやらないのだろう? やれば絶対満足するのに。と思う次第です。

メールにてお引き渡し後にアンケートをいただきました。

その全文を公開致します。※他社の名前等は●印で伏せさせていただきます。

 

 

 

 

質問1 弊社ハイウィルを知る前にどのようなことで悩んでましたか? 様は中古戸建を購入された際にお問い合わせを頂いたと思います。

 

回答1.    購入した土地&築55年の家を建て直し(新築)するかリフォームすか判断ができなかった。どちらがコスト安いか?と希望の家(間取り)を本当に建てられるのかどうか?

 

回答2 .新築及びリフォームの工法などの技術的なことが分からなかった。木造新築で3階は耐火認定の技術でないと建てられないとか●●●設計は888万で実際に建ててくれると思っていたとか木造にも2×4、在来、鉄骨にも軽量鉄骨、重量鉄骨がありそれぞれどれぐらいのコストでどんなメーカーがあるのか、納期は?などすべてが分からなかった。

★当時、電話やネットで調べていたメモを添付します。

  

回答3 .付随的な工事(見積もり外項目)については皆目分からなかった。地盤改良が必要な場合がある。それは調査しないと分からないとか調査方法の種類、コストど築なら解体が必要だが、解体のコスト等前面道路が狭いことで小運搬についてなど水道管やガス管が通っているか。通っていても細い場合は敷きなおしが必要など

 

回答4 規制・法律的なこと、障害があるとは思いつつも何が引っかかってくるか分からなかった。容積率、建ぺい率について。バルコニーは入らないとか、中2階は高さにより参入されないとか防火地域では木造3階は耐火建築が必要。高さ制限、北側斜線・・・前面道路の細さでセットバック。条例による緩和など購入時点の知識は、前面道路は狭いが多少制限があるにしても、商業地で容積率が500%だから高い建物が建つ。鉄骨で2000万で新築するか木造で●●●で1200万で新築かなと思い込んで購入をしました。その後に、不動産屋の容積率500%は前面制限により260%まで落ちることを知り、木造3階で作るなら耐火建築で分厚い壁が必要と知りました。

 

回答5 .税金や資産価値についてほとんど知識がなく、ネットのざっくり金額を当てにしていた。固定資産税の額が新築と築55年で大きく変わること。そして20年で見ると数百万変わることなど最初知らなかった。前面道路が狭いと敷地いっぱいに新築が立てられず資産価値が低いことなど。

 ※購入時に、不動産屋から地元の建築家さんを紹介されていて木造新築なら3000万、リフォーム3階なら2000-2500万、リフォーム2階建てなら1500-2000万とざっくり言われていました。なので高いけど、最終的に地元の業者かなと思っていました。

 その後に、●●設計から●●、●●建設など安いところはあたりましたが今回の土地ではできないとか検討が必要といわれ、たらい回しに。このあたりから、軽量鉄骨の新築と全面リフォーム3階を考えるようになり、御社に相談しました、

 

 

 

質問2 ハイウィルに問い合わせをし、現場調査を終え、提案をされた際すぐに弊社に工事を任せることをご家族でご決定されましたか?しなかったとすればなぜですか?決して安い買い物ではございません。林様ご家族がどのように我々を見られていたかをお聞きしたいと思います。

 

回答2:    価格は正直なところ、新築とは比較にならず御社は安かったですし(新築正式見積もりで最安値3200万)他のリフォームやさん(●●工房、●●、●●、あと7社 ぐらい)の中でも最安値近辺でした。ただ、難しいリフォームになるとこのころから分かっていたので  同様の物件をやっている地元業者が安心なのではと思っていまし た。他のリフォーム会社さんは、「できない」「むずかしい」ということをよくおっしゃりこちらの要望をちゃんと考えてくれているか疑問でした。対して、御社はこちらの要望に対して、「できる」とおっしゃって頂い たことを印象深く覚えています。ご提案を頂いた日(御社オフィス)への行きの道中では20%御社で 80% 地元業者で考えていました。帰りの道中では御社90%、地元業者10%ぐらいになっていました。

 

        こちらの希望に対して

   ■ほとんど「できますよ」とおっしゃって頂いたこ と

   ■御社のオフィスの雰囲気が良かったこと

        ■具体的な対応策を考えて頂いたこと

        ■人となりが非常に信頼できたこと

        ■子供の面倒をよく見ていただいたこと

        これらがまとまって「ハイウィルさんにしたい」という気持ちで帰りの車ではいっぱいでした。たぶん、地元の業者に任せるのが一番アンパイと思っていましたが、それ以上に「できますよ」と自信を持って言って頂いたハイウィルさんにお願いしたいという気持ちになりました。

 

 

 

質問3:  実際に工事が始まり、工事期間中にも何度か現場にお呼びすることが多かったかと思います。お引渡しの日を迎え、弊社ハイウィルは工事期間中全体を通していかがでしたでしょうか?忌憚のないところでご意見をいただければ幸甚です。

 

回答3:     当初頂いていたスケジュールから1月のタイミングで大幅にずれて いたのできっと3月中はむずかしいだろうなと思っていました。またユニットバスの納入が初期だったのがなかなか入らなかった ので嫁はかなり不安がっていました。壁は残すとおっしゃっていたのに、柱だけにしてしまったときは(われわれとしてはうれしかったのですが)これはきっと工事が大変でハイウィルさんの負担が増えるだろうなとは感じていました。

 

 

 

質問4 良かったこと嬉しかったこと、どのような些細なことでも結構です。後弊社で施工されるお客様へ向けて是非お言葉を頂戴できましたら嬉しいです。

 

 

回答4   

 

私は大学で建築を学び、大学院でリフォーム、増改築の専攻をし、築20年~30年の積水ハイムの研究をしていました。

就職は建築から離れてしまったので専門知識などほとんどない状態でしたがからの夢で既製品ではなく自分らしい一軒家を持ちたいと思って いました。

そんな中、築55年という古家を新築そっくりさん的リフォームすることでコストを抑えて間取りも自由に、内装も自由な3階建ての新築 のような家をに入れることができました。

実際ハイウィルさんに出会うまでにハウスメーカー10社程度、リフォーム会社も10社程度検討しましたが、リフォームの内容とコストパフォーマンス、そして、この人たちなら信頼できると言う思いから御社に決めました。

信頼できると思った一番の決め手は、真摯に私たちの家造りに 向き合ってくれたことだと思います。

築55年の超狭小地、前面道路4m以下という難題、そして私たち家族の望む間取りとコストに対して、 まず「できます」というところから出発して考え、提案をして頂け たことだと思います。

他のメーカー、リフォーム会社さんは「難しいので○○にしてみませんか」と妥協案の提案だったり「もしそうするならコストが上がりますよ」とコストアップでの解決策 だったりしました。

また、何度も工事中の現場を見行きましたが、築55年の古家が、まさに新築のように生まれ変わる過程を目の 当たりにし大工さんの職人技に感動すら覚えました。現場で木にノミでホゾを作っているのを見たときはすごいと思い、5歳の息子に、これが家を建てるってことだよと話していました。

釘を使わず二つの木を組み合わせるためのほぞを、手で墨を入れたりして自ら作っていました。大学時代に社寺仏閣の構造の教授の研究室にいたので日本には 木を組み合わせるだけで造形美を兼ね備えた建造物ができること を知ってはいましたが、まさか自分の家でもそのような技術が使われるとは思ってもいませんでした。

効率よく画一的で同じものを安価に作ることを目的とした工業化住 宅(量産住宅)と言われるハウスメーカーの家にはない、 完全オリジナル の家はこのような職人の技術がないとできないのだなとしみじ み感じました。

都内に「土地付き戸建て」でしかも、自分好みを家を造るとしたら 中古住宅をハイウィルさんで全面リフォームというのが私の中で、 もっともオススメしたい方法です。妻ともそんな話を今もしています。

 

 乱文にて申し訳ございません。なかなか私や妻の思いが言葉にまとまりませんが、本当に感謝しております。

なぜ、みなハイウィルさんでやらないのだろう? やれば絶対満足するのに。と思う次第です。

 

最後に皆様に御礼申し上げます。返信は不要ですのであしからず。

 

  >社長稲葉様    こちらの要望を通した案を受け入れて頂きありがとうございます。 かなり無理をして頂いたと思います。ルーフバルコニーもできる!階段の位置も変えられる!と何でもできるはうれしかったです

 

  >三代目社長 専務の稲葉様 ルーフバルコニーはやめておいたほうがよいよということを言いにわざわざパナショールームまできていただきありがとうございます。当初から、妻からルーフバルこーにはやめておきなよと 言われており、社長のひとことで私の気持ちに整理がつきました。

 

  >竹政様        妻が竹政さんのようなシブかっこいいおじ様になれるといいねとよく言います。構造上での対応策や設備関連全てに対してとても安 定 感のあるアドバイスをいただけて、安心そのものでした。

  

>北畠様    一番やり取りをさせていただき無理を言ったと思いますが、いやな顔をせずひとつひとつ丁寧に対応して頂きありがとうございます。また一番息子と娘の相手をして頂きありがとうございます。なぜか北畠さんのことを「けいこさん」と呼ぶ息子ですがあれは   あれで愛情表現なので許してやってください。

 

 >(5代目?社長) 稲葉様    ネットを担当しているとお聞きししました。あのネットがなければハイウィルさんに出会わなかったので本当に感謝 しています。妻が夜な夜なハイウィルさんのネットを見ては、江戸川の家ができたよ!とか家の画像がでているよ!と姑のような感覚で見ていました。

 

ハイウィルスタッフ

4 担当者より(ハイウィル株式会社・稲葉)

当初の予定より工事期間を頂きましたが、お子様の新学期に間に合いましてスタッフ一同安心致しました。

既存の建物のイメージが何も残らず、新築同様にリフォームが出来ました。
解体当初から、お忙しい中ご家族で何度も現場へ足を運んで頂きまして誠に有難うございました。

 

林様、この度はご依頼をいただき、誠にありがとうございました。

 

 

林様からお喜びの声を頂いております。全文掲載しておりますので生の感想をご覧ください!

お客様の声 中央区月島 林様

 

全国のフルリフォーム・リノベーション『ピックアップ事例』※プロの詳細解説付きレポート

HEAT20-G2/耐震等級3
新耐震基準の性能向上リノベーション
築30年ハウスメーカー軽量鉄骨
断熱改修&リノベーション
 
中古住宅を新築以上の耐震性能と断熱性能へ!
耐震等級3フルリフォーム
地下付き木造2階建て
自然素材をつかった性能向上リノベーション&フルリフォーム

東京都文京区 K様邸

長屋を切り離して1つの構造体へフルリフォーム&リノベーション
隣家との距離がない!
部屋から外壁を張り替えるフルリノベーション
中古住宅を耐震等級3へ!
中古住宅リノベーション
 
基礎がない??
築60年の古屋をジャッキアップで基礎新設フルリノベーション

東京都渋谷区 O様邸

戸建てリノベーション・リフォームに関するお問合せはこちら

増改築.comの一戸建てリフォーム専用ホームページに
お越しいただき、誠に有難うございます。
 
増改築.comメンバーは技術集団となり、
他社のような営業マンがおりません。
技術者が直接ご相談にのり問題解決を行います。
 
従いまして、
お客様の方である程度のご要望が整理されました段階、
お悩みが工事内容のどのようなところにあるのか?
ご予算がどの程度絞る必要があるのか?
など明確になった段階でのご相談をお願いしております。
お問合せ・ご相談はお電話・メールにて受け付けております。
メールの場合は以下のフォームに必要事項をご記入の上、
「送信する」ボタンをクリックをお願いします。

代表稲葉高志

戸建てリノベーションの専属スタッフが担当致します。
一戸建て家のリフォームに関することを
お気軽にお問合せください

よくあるご質問
  • 他社に要望を伝えたところできないといわれたのですが・・・
  • 他社で予算オーバーとなってしまい要望が叶わないのですが・・・
  • サービスについて詳しく聞きたいのですが・・・

どのようなお悩みのご相談でも結構です。

あなたの大切なお住まいに関するご相談をお待ちしております。

営業マンはおりませんので、しつこい営業等も一切ございません。

設計会社(建築家様)・同業の建築会社様のご相談につきましては、プランと共にご指定のIw値及びUa値等の性能値の目安もお願い申し上げます。

2026年の大型補助金が確定したことで現在大変込み合っております。

耐震性能と断熱性能を向上させるフルリフォームには6か月~7か月の工期がかかります。

補助金獲得には年内に報告を挙げる必要があることから、お早目にご相談をお願いいたします。(6月着工までが目安

ご提案までに大変お時間がかかっております。ご了承のほどお願い申し上げます。

(5月までの着工枠が埋まりました)・・・2026/03/01更新

※すでにプランをお持ちのお施主様・設計資料をお持ちのお施主様は内容をフォームで送信後、フォーム下のメールアドレスに資料をお送りください。対応がスムーズです。

必須

(例:増改築太郎)

必須

(例:contact@high-will.co.jp)

(例:03-5615-2826)

必須

(例:東京都荒川区西日暮里2-35-1)

(例:築40年)

(例:25坪・100㎡など)

(例:2000万程度など)

  • ※再建築不可のリフォームでは金融機関が限られます。事前審査をお勧めいたします。

    (例:2024年3月くらいに完成希望など)

    必須

    できるだけ具体的にお知らせくださいませ。既存設計資料、リフォーム後のイメージ図等をお持ちであれば下記のメールアドレスより添付をお願いします。

    ※次の画面がでるまで、4~5秒かかりますので、
    続けて2回押さないようにお願いいたします。

    ※次の画面が出るまで、4〜5秒かかりますので、
    続けて2回押さないようにお願いいたします。

    図面や写真等を送信いただく場合、また入力がうまくいかない場合は、上記内容をご確認のうえ、下記メールアドレスまでご連絡ください。

    お電話でのお問合せはこちら

    0120-246-991

    営業時間:10:00~17:00(土日祝日を除く)

    ★YouTube「増改築.comチャンネル」チャンネル登録して新動画解説をいち早くGET!!★
    「増改築.comリノベ診断」であなたに一番ふさわしいフルリフォームを診断!!(動画解説付き)
    ★Facebookページにいいね!を押して最新コンテンツ情報をいち早くGET!!★
    パソコン|モバイル
    ページトップに戻る