江戸川区K様 一戸建て増改築リフォーム

江戸川区K様邸_TOP
江戸川区K様邸_竣工
江戸川区K様邸_竣工
江戸川区K様邸_竣工
江戸川区K様邸_竣工
江戸川区K様邸_竣工
江戸川区K様邸_竣工
建物概要
名前 K様
場所 東京都江戸川区
築年数

築40年

構造種別 木造在来工法
家族構成 大人2人
対象面積 18.4坪
工期 ヶ月
価格 1100万

お客様のご要望

・耐震ダンパーを設置したい。

・断熱はセルロースファイバーを使用したい。

・1階にあるLDKを2階へ移設。

・サッシは全て取替、インナーサッシも設置。

・2階LDKには床下にも断熱材設置。

・外壁塗装

今まで住んで居た家をフルスケルトンリフォームです。耐震・断熱が一番心配なので重点的にやっていきたい。

プランニングのポイント

東京都江戸川区、一級建築士の施主K様の一戸建て(一軒家)住宅内部をまるごとスケルトン状態まで解体にし、新築そっくりまるごとリフォームの既存から完成までの流れを解説した施工事例となります。

ご契約までお伺いした数も10回以上。5社の提案比較の中でハイウィルの技術力を採用いただきました。今回、1級建築士でもあるK様が最重視したのは

『耐震と断熱』

です。

それでは、打ちあわせから完成までの詳細をお伝えさせて頂きたいと思います。

江戸川区K様邸 戸建てリノベーション施工事例テーマカテゴリー

 

  • 増築リフォーム
  • 内外部スケルトンリフォーム

打合せから完成まで

1 着工前

1-1 打合せ

江戸川区K様邸は2016年1月21日着工の一戸建て増改築リフォームです。

【DATA】
江戸川区H様
築年数:40年
構造:木造2階建て
家族構成:大人2人

現在住まわれている築40年の一戸建のお住まいが全体的に古くなってきたのでスケルトンリフォームをご検討されたのがきっかけでした。他に2社ほど工務店とリフォーム会社が来られておりましたが弊社にご用命頂きました。

江戸川区K様邸_施工前

K様邸の一戸建て増改築リフォームはサッシまでの入れ替えが入ります。外壁はK様のご要望とご予算をお打ち合わせしながら、既存を残して、塗装仕上げにすることで構造に費用をかける方針となりました。

江戸川区K様邸_施工前

既存の流し台は現在のライフスタイルには大きすぎるとのことでしたので、新たに設置予定となるシステムキッチンは間取りに合わせて現在よりも収納力がありなおかつコンパクトなシステムキッチンを提案させていただきました。

江戸川区K様邸_施工前

お風呂はキッチンの隣にあり脱衣所はなく、築40年のためタイル張りの在来浴室で狭く感じるとお聞きしていたので新規お風呂浴室はユニットバスの1616サイズ(1坪)を提案させていただきました。

江戸川区K様邸_施工前

こちらは台所のとなりにある1階のリビングスペースになります。新規間取りも同じ位置にリビングがきますが、スペースが窮屈であるとのことでK様の一戸建て増改築リフォームでは増築を提案させていただきました。

江戸川区K様邸_施工前

既存の2階部分は和室が2部屋となっておりました。一戸建て増改築リフォーム後の新規プランでは洋室にし、収納力を担保するために新規でロフトを設置します。

1-2 提案
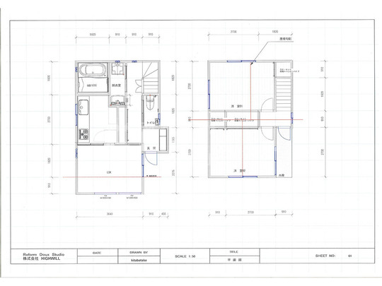
■ 新規提案図面 ■
江戸川区K様邸_新規平面図
■ リフォーム後イメージパース ■
江戸川区K様邸_施工後イメージ
■ リフォーム後イメージパース ■
江戸川区K様邸_施工後イメージ
■ リフォーム後イメージパース ■
江戸川区K様邸_施工後イメージ
■ リフォーム後イメージパース ■
江戸川区K様邸_施工後イメージ

江戸川区K様の一戸建て増改築リフォームの工事期間は約3ヶ月の工程を組ませていただきました。

2 着工

2-1 解体

ここからは着工後の工程に沿ってお話をしていきます。

まずは解体工事からスタート。足場を架け養生をしてからの着工となります。

江戸川区K様邸_解体
江戸川区K様邸_解体

こちらの写真の一階部分(リビングルーム)を3尺分出して増築予定となります。

江戸川区K様邸_解体

K様邸の一戸建て増改築リフォームは、外壁に関しては既存を活かしながらの増築を含むリフォームになります。間取りが大幅に変更されるため、リフォーム後の間取りを意識しながら、丁寧に内側から解体を進めていきます。

江戸川区K様邸_解体
江戸川区K様邸_解体
江戸川区K様邸_解体

解体が進むにつれ、既存建物の骨格となる構造が現れてきました上下の写真は2階部の写真となりますが、この屋根勾配を利用して一戸建て増改築リフォームは2階洋室にロフトを造作します。

江戸川区K様邸_解体
江戸川区K様邸_解体

K様邸の一戸建て増改築リフォームで解体して判明したことは基礎の部分の床束が不安定な納め方をされていたことです。新たに構造を見直すので、しっかりとした補強が必要になります。築30年以上の新耐震基準前の建物はこのようないい加減な納め方をしている現場が大変多いので注意が必要です。

江戸川区K様邸_解体

このような納め方となっておりました。大変危険です。。間に合わせで納めたとしか考えられない納め方です。

江戸川区K様邸_解体

スケルトン状態まで解体して初めて、このような構造上の問題がリアルに判明していきます。

2-2 補強
江戸川区K様邸_補強

後にこのようなぜい弱な構造体にならないように、そして永続的に安心して住むことができる構造体にするために新しい間取りに合わせて基礎を作っていきます。

江戸川区K様邸_補強

新たな間仕切り部分には土台が乗るため基礎を新設します。そのため、このように鉄筋を組んで型枠を設置していきます。

江戸川区K様邸_補強

砕石をし転圧をかけます。

江戸川区K様邸_補強

同時に今回のK様一戸建て増改築リフォームでは増築がありますので増築部への基礎新設も行っていきます。

江戸川区K様邸_補強

3尺分リビング部分が突き出しているのがわかります。こちらが増築箇所になります

江戸川区K様邸_補強

1階部のベタ基礎が終わり、増築箇所に新規布基礎を新設し、土台を敷いていきます。アンカーボルトで土台と布をしっかりと固定していきます。

江戸川区K様邸_補強

新規増築屋根の箇所には既存柱に力板を加え新規梁を抱かせて、補強をしています。

江戸川区K様邸_補強
江戸川区K様邸_補強

K様邸一戸建て増改築リフォームの増築の断面写真です。既存の使える土台は利用し、構造体が組みあがってまいります。

新規の場所以外にも、筋違・金物を入れていきます。

解体が終わると弊社では必ずお施主様を現場にお呼びし、現状の構造の説明をさせていただきます。またここですべての構造の軸組が見える状態となっておりますので、既存の木組みから一戸建て増改築リフォーム後のプランにするために、抜けない柱、もしくは木組みの仕掛けによっては、構造上抜きたくな柱や耐力壁などが見えて参ります。このあたりをお施主のK様と現場で打合せをさせて頂きました。

 

このような絡みの中で実際に変更を余儀なくされるケースもあるのですが、K様の一戸建て増改築リフォームにおいて実際に変更になったのは、窓の設置位置でした。プラン上の窓サッシ設置位置をみますと筋交いが入っていたため、出来ればその壁は構造上苛めたくないので、設置変更位置を現場を見ながら説明をさせて頂きました。

2-3 木工事
江戸川区K様邸_木工事

大工工事を進めていきます。床下の断熱材を入れながら床は作られています。

江戸川区K様邸_木工事
江戸川区K様邸_木工事

一階の増築部の柱(既存ベランダの下の柱)が腐っていました。当初、目視での調査ではベランダ防水は補修程度でみさせて頂いたのですが雨水での漏れが原因となり柱が腐ってしまってます。

江戸川区K様邸_木工事

納まりの原因として考えられるのは、ベランダ笠木が板金で巻かれており、手摺がアルミで設置をされておりましたが、この取り合いから水が浸透していた可能性が高いと判断しました。

江戸川区K様邸_木工事

1階LDKの増築箇所は下地が組まれて進んでいます。

江戸川区K様邸_木工事

江戸川区一戸建て増改築リフォームK様邸でのロフト部分が形になってきました。造作前にお施主様に解体後の屋根勾配や解体できない梁などを確認頂いてから造作に入ります

築古の戸建住宅でロフトがある住宅はなかなかありません。グルニエがあるケースはたまにあります。空間の開放感を出す意味ではやはりロフトをおススメしたいところです。このように新規にロフトを造作するケースでは、既存の屋根勾配を生かしその中で最大の空間を作ることになります。。

江戸川区K様邸_木工事

既存屋根勾配は、当然建築時にロフトを作る想定で屋根を作っておりませんので、解体をした段階で屋根裏の木組みが見えた段階でどのように作るかを決定します。熟練をようする現場監督でも解体前に予測は出来てもミリ単位で確保スペースを予測することは難しいといえます。

江戸川区K様邸_木工事

このように増改築リフォームは新築と違って、本来のその家を組まれた棟梁の腕や建物の年代で様々な工法で建築されていますので、当初の増改築リフォームプランと変更なってしまう事が多々ございます。このような点も踏まえつつ、増改築リフォーム後に長い年月安心してお住まいいただけるよう、お施主様と建物全体の事を考慮し現場監督・棟梁等が最もお施主様に要望に沿ったプランで構造を練って提案をさせて頂いております。

木造の増改築リフォーム工事では構造部の木工事に相当な時間が掛かります。構造部分は仕上の段階に入ると、当然隠れて見えなくなってしまいますので、この構造体が見える段階時にお施主様には沢山現場に足を運んでいただいております。

江戸川区K様邸_木工事

木造戸建ての増改築リフォームで近年のご要望を多くに、『2階をワンフロアのLDKにしたい!』というご要望があります。

江戸川区K様邸_木工事

2階建の戸建で2階部をワンフロアにする場合、マンションでの間取り変更とは違いますので、木造では、柱や梁、耐力壁で耐力を持たせつつ屋根も支えなければなりません。今回も小屋裏で梁補強を加えました。

江戸川区K様邸_木工事
江戸川区K様邸_木工事

一階部↑

江戸川区K様邸_木工事

二階部↑  1階と2階では補強の仕方が異なるのがお分かりいただけたかと思います。

増改築リフォームは、投資家の方やアパートオーナー様でもない限り、そう何回も気軽にやる機会があるわけではないです。

やっても2回、3回あるかどうかかと思います。そのため、初めて増改築リフォームされるお客様も大変多いため、極力お客様のご要望と、お客様のこれから住まわれる家の構造を考え慎重に工事を進めさせて頂いております。

江戸川区K様邸_木工事

構造の大事な工程が終わりました。造作工事に入っていきます。断熱材を天井、壁面、床に入れてボード、捨て貼りをしていきます。

江戸川区K様邸_木工事

K様邸の江戸川区一戸建て増改築リフォームではサッシカラーはシャイングレーの型ガラスです。増築部は近隣様との離隔距離が近い為、LDKのサッシはFIXの横長の窓を採光効果が高まるよう上部に設置しています。

江戸川区K様邸_木工事

造作工事が進んでいきます。

江戸川区K様邸_木工事

ロフトもイメージが見えてきました。

江戸川区K様邸_木工事

階段下は勾配形に収納スペースを確保しました。

江戸川区K様邸_木工事

各居室ボード張りが完成。

江戸川区K様邸_木工事

ご近隣様が建物が近いのでLDKの窓はすべて高めにFIX窓で納めさせて頂きました。

江戸川区K様邸_木工事

各居室のドア枠・ドアもこの段階で設置してゆきます。

江戸川区K様邸_木工事

階段は手摺を設置するのため下地をボードではなく木に替えます。

江戸川区K様邸_木工事

母屋束の松丸太は現しで納める方向でお客様と打ち合わせしました。

江戸川区K様邸_木工事
江戸川区K様邸_木工事

工事もここまでくると終盤戦。現場監督と大工達とで細かい打合せであわただしくなります。

江戸川区K様邸_木工事

内装職人が入る前に細かな納まりをチェックしていきます。

江戸川区K様邸_木工事

この後の工程は、住宅設備機器が搬入・設置され、合わせて内装工事に移っていきます。江戸川区一戸建て増改築リフォームK様邸では、外構の工事も一部ありますのでこの段階でお客様に現場に立ち会っていただきまして各居室の確認と外構の打合せをさせて頂きました。

2-4 耐震工事
2-5 断熱工事
2-6 外壁工事

屋内工事は内装工事を残してほぼ完成しております。外構工事も始まりました。

江戸川区K様邸_外壁工事
江戸川区K様邸_外壁工事

外壁塗装をする前にサッシを入れ替えた箇所など下地に段差が出てしまう部分が出て参ります。この部分を左官工事で既存壁とのレベルを合わせをしていきます。これは地味な作業ではありますが結構難易度高い作業です。

江戸川区K様邸_外壁工事
江戸川区K様邸_外壁工事

左官下地が終わると外壁塗装の工事にいよいよ移っていきます。

2-7 内装工事 

下の写真を見ていただき確認いただきたいのが、全てのお部屋にボードが貼られている写真です。これは普通に見えますが、このボードの納め方(技術)で、内装の仕上がり(ここではクロス)が変わってきます。

ボードの面をピッタリと合わせることが出来ない大工がいます。ここで造作の技術がわかります。凸凹のでた壁でおさめてしまいますと、後々クロス職人が下地でパテで平らにすることになります。その程度にも限界が当然あります。ボードの貼り方もしかりですが、ビスの打ち方一つとっても適当に打っているとクロス職人の手間となるわけです。

下の写真で上手く伝わりにくいかもしれないですが弊社の大工は、手前みその自画自賛になりますが、本当にボードの納め方が美しいです。

現場でこの状態を確認するわけですが何処を何処から見ても綺麗なボード納めをしております。弊社のクロス職人は社寺仏閣の襖などの経師をしている職人がクロスを貼りますのでかなりの腕前です。美しく仕上がらないはずが有りません。

江戸川区K様邸_内装工事
江戸川区K様邸_内装工事
江戸川区K様邸_内装工事
江戸川区K様邸_内装工事
江戸川区K様邸_内装工事
江戸川区K様邸_内装工事
江戸川区K様邸_内装工事
江戸川区K様邸_内装工事
江戸川区K様邸_内装工事
江戸川区K様邸_内装工事
江戸川区K様邸_内装工事
江戸川区K様邸_内装工事

さあ最後の仕上げ、内装クロス工事です。パテ下地を掛けてクロスを貼っていきます。

江戸川区K様邸_内装工事

クロス作業中はパテの粉がでます。床養生をしたまま作業していきます。

江戸川区K様邸_内装工事

まずは階段部です。

江戸川区K様邸_内装工事

居室も入っていきます。

江戸川区K様邸_内装工事

同時に外部では、外構工事もスタート。新規ブロック工事。片引き戸の門扉を付けます。

江戸川区K様邸_内装工事
江戸川区K様邸_内装工事

ブロックが出来上がってきたらインターホンを設置。

江戸川区K様邸_内装工事

同時に、養生を剥がし、クリーニング作業も終えたので最終チェックは監督が責任をもっておこないます。

江戸川区K様邸_内装工事

最終でクリーニング後に残った汚れなども拭いていきます。

江戸川区K様邸_内装工事

監督による入念なチェックが終わるといよいよお引渡となります。

江戸川区戸建て増改築リフォーム工事 K様邸いよいよ工事御引渡しの日を無事迎えることができました。工事期間は約3ヶ月間。

3 竣工

監督による入念なチェックが終わるといよいよお引渡となります。

 江戸川区戸建て増改築リフォーム工事 K様邸いよいよ工事御引渡しの日を無事迎えることができました。工事期間は約3ヶ月間。

サッシは全て新規に取替させて頂きました。外壁は塗装仕上げです。

3-1 外壁 Before → After
江戸川区K様邸_施工前

サービス提供前

 

江戸川区K様邸_竣工

1階LDKになる場所を増築しました。

江戸川区K様邸_竣工

サッシを入れ替えた箇所の納まりがキレイです。

江戸川区K様邸_竣工
江戸川区K様邸_竣工

隣家が近いので窓は高めに設置しFIX窓で納めさせて頂いてます。

江戸川区K様邸_竣工

玄関の位置は既存と同じ位置です。
1階の引違いサッシのみ防犯対策でシャッターを付けさせて頂いてます。

3-2 キッチン Before → After
江戸川区K様邸_施工前

サービス提供前

 

江戸川区K様邸_竣工

キッチンはPanasonic Vスタイル I型2550サイズ

3-3 バス Before → After
江戸川区K様邸_施工前

サービス提供前

 

江戸川区K様邸_竣工

システムバスは 人気のTOTOサザナ 1616サイズ(1坪)タイプです。

3-4 洗面 Before → After
江戸川区K様邸_施工前

サービス提供前

 

江戸川区K様邸_竣工

洗面化粧台はLIXIL オフト750サイズです。

3-5 トイレ Before → After
江戸川区K様邸_施工前

サービス提供前

 

江戸川区K様邸_竣工

トイレはK様のご要望で広々空間を確保しました。

3-6 1階 Before → After

1階はLDKと主に水周りゾーンでプランニング(キッチン・バス・トイレ・洗面)しております。廊下には収納スペースを確保、設置しました。収納内部は可動棚付きです。

江戸川区K様邸_竣工
江戸川区K様邸_竣工

LDKの入口の扉はガラス入りで採光が取れるデザインを採用。

江戸川区K様邸_竣工
江戸川区K様邸_竣工
江戸川区K様邸_竣工

右が廊下への扉で左がキッチンスペースの扉で仕切れるようにしました。

江戸川区K様邸_竣工

LDK内部よりリビング扉をみた写真です。

江戸川区K様邸_竣工

1階増築分やはりリビングが広くなりました。

江戸川区K様邸_竣工
江戸川区K様邸_竣工

竣工した記念にお客様と一緒に写真撮影をさせて頂きました。

この事例と似たテーマカテゴリーを見る

全国のフルリフォーム・リノベーション『ピックアップ事例』※プロの詳細解説付きレポート

HEAT20-G2/耐震等級3
新耐震基準の性能向上リノベーション
築30年ハウスメーカー軽量鉄骨
断熱改修&リノベーション
 
中古住宅を新築以上の耐震性能と断熱性能へ!
耐震等級3フルリフォーム
地下付き木造2階建て
自然素材をつかった性能向上リノベーション&フルリフォーム

東京都文京区 K様邸

長屋を切り離して1つの構造体へフルリフォーム&リノベーション
隣家との距離がない!
部屋から外壁を張り替えるフルリノベーション
中古住宅を耐震等級3へ!
中古住宅リノベーション
 
基礎がない??
築60年の古屋をジャッキアップで基礎新設フルリノベーション

東京都渋谷区 O様邸

戸建てリノベーション・リフォームに関するお問合せはこちら

増改築.comの一戸建てリフォーム専用ホームページに
お越しいただき、誠に有難うございます。
 
増改築.comメンバーは技術集団となり、
他社のような営業マンがおりません。
技術者が直接ご相談にのり問題解決を行います。
 
従いまして、
お客様の方である程度のご要望が整理されました段階、
お悩みが工事内容のどのようなところにあるのか?
ご予算がどの程度絞る必要があるのか?
など明確になった段階でのご相談をお願いしております。
お問合せ・ご相談はお電話・メールにて受け付けております。
メールの場合は以下のフォームに必要事項をご記入の上、
「送信する」ボタンをクリックをお願いします。

代表稲葉高志

戸建てリノベーションの専属スタッフが担当致します。
一戸建て家のリフォームに関することを
お気軽にお問合せください

よくあるご質問
  • 他社に要望を伝えたところできないといわれたのですが・・・
  • 他社で予算オーバーとなってしまい要望が叶わないのですが・・・
  • サービスについて詳しく聞きたいのですが・・・

どのようなお悩みのご相談でも結構です。

あなたの大切なお住まいに関するご相談をお待ちしております。

営業マンはおりませんので、しつこい営業等も一切ございません。

設計会社(建築家様)・同業の建築会社様のご相談につきましては、プランと共にご指定のIw値及びUa値等の性能値の目安もお願い申し上げます。

2026年の大型補助金が確定したことで現在大変込み合っております。

耐震性能と断熱性能を向上させるフルリフォームには6か月~7か月の工期がかかります。

補助金獲得には年内に報告を挙げる必要があることから、お早目にご相談をお願いいたします。(6月着工までが目安

ご提案までに大変お時間がかかっております。ご了承のほどお願い申し上げます。

(5月までの着工枠が埋まりました)・・・2026/03/01更新

※すでにプランをお持ちのお施主様・設計資料をお持ちのお施主様は内容をフォームで送信後、フォーム下のメールアドレスに資料をお送りください。対応がスムーズです。

必須

(例:増改築太郎)

必須

(例:contact@high-will.co.jp)

(例:03-5615-2826)

必須

(例:東京都荒川区西日暮里2-35-1)

(例:築40年)

(例:25坪・100㎡など)

(例:2000万程度など)

  • ※再建築不可のリフォームでは金融機関が限られます。事前審査をお勧めいたします。

    (例:2024年3月くらいに完成希望など)

    必須

    できるだけ具体的にお知らせくださいませ。既存設計資料、リフォーム後のイメージ図等をお持ちであれば下記のメールアドレスより添付をお願いします。

    ※次の画面がでるまで、4~5秒かかりますので、
    続けて2回押さないようにお願いいたします。

    ※次の画面が出るまで、4〜5秒かかりますので、
    続けて2回押さないようにお願いいたします。

    図面や写真等を送信いただく場合、また入力がうまくいかない場合は、上記内容をご確認のうえ、下記メールアドレスまでご連絡ください。

    お電話でのお問合せはこちら

    0120-246-991

    営業時間:10:00~17:00(土日祝日を除く)

    ★YouTube「増改築.comチャンネル」チャンネル登録して新動画解説をいち早くGET!!★
    「増改築.comリノベ診断」であなたに一番ふさわしいフルリフォームを診断!!(動画解説付き)
    ★Facebookページにいいね!を押して最新コンテンツ情報をいち早くGET!!★
    パソコン|モバイル
    ページトップに戻る