戸建フルリフォームなら「増改築.com®」TOP施工事例東京都北区>M様邸 まるごと2世帯(住宅)新築そっくりリフォーム

北区M様邸 戸建まるごと2世帯(住宅)新築そっくりリフォーム

北区M様邸
北区M様邸_竣工
北区M様邸_竣工
北区M様邸_竣工
北区M様邸_竣工
北区M様邸_竣工
北区M様邸_竣工
建物概要
名前 M様
場所 東京都北区
築年数 築50年
構造種別 木造戸建
家族構成 大人3人子供1人
対象面積 19坪
工期 2か月
価格 1200万

お客様のご要望

2世帯(住宅)新築そっくりまるごとリフォームのきっかけは、お婆様がお孫さんご夫婦とその御子息様と一緒に暮らす事となり今の造りでは間取りとしても不便な点と古い建物なので段差も多いとのことで屋内に関しては、2世帯(住宅)新築そっくりまるごとリフォームをして構造から見直したい。というご要望をいただきました。

プランニングのポイント

東京都北区、施主M様の一戸建て(一軒家)住宅内部をまるごとスケルトン状態まで解体にし、新築そっくりまるごとリフォームの既存から完成までの流れを解説した施工事例となります。

それでは、打ちあわせから完成までの詳細をお伝えさせて頂きたいと思います。

北区M様邸 戸建てリノベーション施工事例テーマカテゴリー

  • 二世帯住宅リフォーム
  • 内部スケルトンリフォーム+サッシ交換

打合せから完成まで

1 着工前

1-1 打合せ

家族構成:お婆様+お孫さんご夫婦+お孫さんご夫婦のお子様(大人3:小人1)

木造戸建て 築50年以上(御神楽2階建て9坪)

※お神楽と書きましたが、数十年前に、お神楽をされた建物を今回2世帯(住宅)新築そっくりまるごとリフォームさせていただきます。以前に外壁塗装・玄関扉はリフォームしたばかりなので現状のままでプランニングで2世帯(住宅)新築そっくりまるごとリフォームをさせていただきました。

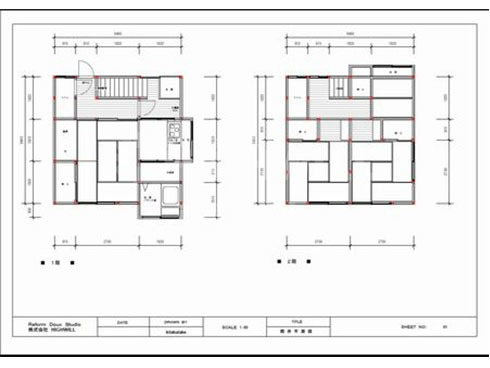
■ 既存図面 ■
北区M様邸_既存図面

1階は6畳居間とキッチンと浴室とトイレ。2階は昔賃貸で2部屋貸していたので4.5畳に入る脇に小さな流しが付いている。トイレと納戸。

1-2 提案

ご予算とご要望をお聞きして弊社が提案させていただいた2世帯(住宅)新築そっくりまるごとリフォームプランが下記です。

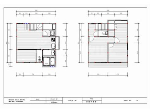
■ 新規図面 ■
1階既存和室
北区M様邸_施工前

1階は既存和室だったのを、2世帯(住宅)新築そっくりまるごとリフォーム後はフローリングにしワンフロアにします。

1階既存和室
北区M様邸_施工前
既存キッチン
北区M様邸_施工前

置き型のキッチンでFF式給湯器。2世帯(住宅)新築そっくりまるごとリフォーム後はシステムキッチン トクラス Bbコンパクトになるのでスッキリします。もちろん給湯器を設置するので瞬間湯沸かし器はなくなります。

既存浴室
北区M様邸_施工前

既存浴室はタイル貼りの在来浴室。冬は物凄く寒く、段差も有るのでとても危険な浴室です。こちらも今はバランス釜ですが、2世帯(住宅)新築そっくりまるごとリフォーム後は給湯器(追い焚き)を設置するのでお湯を沸かすのも楽になります。

既存階段
北区M様邸_施工前

既存階段はかなりの急勾配です。洗濯物を持って2階のベランダに行くのはかなり大変です。

既存2階
北区M様邸_施工前

既存2階は4畳半が2部屋。昔に、賃貸として貸していたので入口の所に小さな流し台があります。

既存2階
北区M様邸_施工前

既存階段はかなりの急勾配です。洗濯物を持って2階のベランダに行くのはかなり大変です。

既存トイレ
北区M様邸_施工前

2階はその他3畳の納戸とトイレがあります。

既存2階

今回の北区M様邸 外壁・屋根など外回りの工事が無いのですが、お盆・シルバーウィークを挟む時期ですので工期はやや余裕のある3ヶ月間を頂きました。

2 着工

2-1 解体

さて、狭小一戸建て家の2世帯(住宅)新築そっくりまるごとリフォームの解体工事がスタートしました。

当初改装+水まわり交換を想定した費用を考えて当社にお話がきたくらいですので予算、費用(価格)もふまえ、外壁とサッシは3ヶ所のみの解体にとどめる内容となっていますので今回の一戸建て家の2世帯(住宅)新築そっくりまるごとリフォームでの解体工事は主に内部解体(フルスケルトン)となります。

北区M様邸_解体

解体工事期間は実働7日間になります。一戸建て家のフルスケルトンリフォームで全ての窓を取替や外壁解体箇所がある場合は、解体日数も10日程程度掛かってきます。

北区M様邸_解体
北区M様邸_解体

内装下地は剥がしていくことで軸組が現れてきます。

北区M様邸_解体

こちらの北区の一戸建て家の2世帯(住宅)新築そっくりまるごとリフォームのM様邸は隣の家と繋がっている長屋造りとなっています。従いまして、解体後の耐震補強では、隣家の状況もみながら補強を考えなくてはなりません。解体をしていくと隣家の外壁も出てきます。隣の方は以前窓を塞いでいることがわかります。東京でも下町はこのような作りの建物がまだまだ多く存在します。

北区M様邸_解体

今回の一戸建て家の2世帯(住宅)新築そっくりまるごとリフォームでのポイントは長屋の隣家との構造上の  接合部の耐震補強になってきます。費用(価格)もここを当然みております。

北区M様邸_解体

解体を進めていくと築50年以上ということもあり、当時どのような施工をされてきたのかがあらわになっていきます。上は最も荷重がかかる基礎部分がレンガを組積して間に合わせていた状態の基礎です。これは危ないです。

北区M様邸_解体

2階の荷重をモロに受ける柱を受ける土台下の基礎部分がレンガで束としておさめている。これも危険です。

北区M様邸_解体

しっかりとした束石をたてていないため床束がそのまま土中に埋まってしまっている。腐食が始まりかけている。

北区M様邸_解体

築50年以上、特に前回の東京オリンピック前の建物は、このような細い柱で施工されていることが多く補強が必要になります。

北区M様邸_解体

今回の一戸建て家の2世帯(住宅)新築そっくりまるごとリフォームで長屋に気を遣いましたが、お客様の最も気になっていた部分は2階部の傾きです。スケルトンに解体をすることでその原因もはっきりと表れてきます。2階に傾きがあった一番の原因は既存浴室があった柱は腐っていた事が大きな要因となってました。柱が水を吸い完全に腐食してしまっています。柱としての強度を保つことなく沈下してしまっている状態でした。

ハイウィルでは一戸建て家のフルスケルトンリフォームをされるお客様には、例外なく、スケルトンになった状態で、一度現場をみていただくようにしています。M様はご近隣にお部屋を借りて頂いているので解体が終わった時点で、既存構造の状況を現場で見て頂きました。

既存の状態を見て頂く事により、基礎工事・大工工事・設備工事などをやらせて頂いていく過程で補強箇所をご説明させて頂く際により明確になって頂けると思っております。

今回の2世帯(住宅)新築そっくりまるごとリフォームは戸建て家のフルスケルトンリフォームとなり、仕上げ重視のリフォームというよりは、構造部、柱の強度、梁の架け方と強度、土台と基礎の状況などを全体的に完成するプランから逆算し、全体のバランスをみて最適な構造状態へと再構築する作業となります。

ブログでも何度もお話しておりますが、ここで最も重要な能力を発揮するのが大工、いわゆる棟梁なのです。

50年前の仕掛け方を熟知し、現在の基準以上の強度で軸組を再構築する能力が問われます。構造補強をする際は、新築と違いプレカットで加工されてきた構造材を組み立てるわけではありませんので構造材を手刻みで仕口や継手を作ることも必要になってきます。

 

今回の2世帯(住宅)新築そっくりまるごとリフォームのような家の一戸建て家のフルスケルトンフルリフォームを要望されている方は、このように大工工事(木工事)の技術優位な会社に相談されることをお勧めいたします。

2-2 補強

解体工事が終わり基礎工事の工程に入りますと、鋤取り後 砂石+メッシュを敷いて転圧を掛けてベタ基礎にしていきます。スケルトンフルリフォーム後の構造より間取りに合わせ新しい型枠に入れて新しい基礎を作っていきます。

築50年を超えた家もベタ基礎にする事で、荷重を面で支えるので不同沈下し難くなり床下の湿度は安定させることが可能となります。

木造一戸建て家の築年数が経っている建物は、布基礎の場合が多くスケルトンフルリフォームをする際、費用(価格)と予算との兼ね合いもありますが、今回のM様の2世帯(住宅)新築そっくりまるごとリフォームのようにベタ基礎にする方は大変多くいらっしゃいます。

 

M様は家の歪みも気になり、冬は床が物凄く寒さを感じるのでベタ基礎は今回の一戸建て家の2世帯(住宅)新築そっくりまるごとリフォームでは優先順位の高い必要条件でした。

北区M様邸_補強

鋤取り後にメッシュをひいていきます。

北区M様邸_補強
北区M様邸_補強
北区M様邸_補強
北区M様邸_補強

生コンクリート打設後、型枠に新たな布を作っていきます。

北区M様邸_補強

弊社では元宮大工の現場監督が、基礎幅、アンカーの位置などを細かくチェックしていきます。

北区M様邸_補強
北区M様邸_補強

一戸建て2世帯(住宅)新築そっくりまるごとリフォームの全体の基礎となる基礎工事が完了。この基礎を前提として、次のフェーズより大工工事がスタートしていきます。

2-3 木工事

解体工事、そして基礎補強工事が終わり最も大事な木工事(大工工事)に入っていきます。

北区M様邸_木工事

新たな基礎の上に新規土台を敷き、柱を建てていきます。

北区M様邸_木工事

2階床下地も新たにやり直す箇所が多く新築並に材木が必要になりました。

北区M様邸_木工事

既存の梁は松丸太だったので、新規で抱き合わせて梁を掛け補強をいれました。

北区M様邸_木工事

腐っていた浴室周りの柱は、現状機能しておりません、しかしながら他の構造部との絡みで抜くことができません。このようなケースでは、新たな柱を抱き合わせて補強します。

北区M様邸_木工事

一戸建て(一軒家)リフォーム後の新規の間取りに合わせて、新たに間仕切りの下地を組んでいきます。柱を抜いた箇所には梁補強を加えております。

北区M様邸_木工事
北区M様邸_木工事

ハイウィルでは、解体後お施主様にスケルトン状態になった今までの建物を見ていただきどのような補強を加えるのか?どの柱を抜くのか?など綿密にお話をさせていただきます。ここで、現状の傷み具合をみて驚かれるお施主様も多いです。今回のM様ではこの段階で、屋根裏収納を作る工事を要望され追加工事をさせて頂く運びとなりました。着工前よりM様より『狭小住宅なので少しでも収納スペースを確保したい。』ご要望は頂いてました。我々も小屋裏を利用した収納に関しまして『人が立って生活空間にする事は出来ませんが階段を付けて段ボールなのどを置くスペースなら確保できます。』と提案させて頂きました。M様もスケルトン状態になった実際の屋根勾配等を見て頂いて屋根裏収納工事のご依頼を頂きました。

北区M様邸_木工事

小屋裏収納のハッチ部分が完成しました。

北区M様邸_木工事

細かく納まりのチェックを監督がします。

北区M様邸_木工事

都心の狭小住宅では、このように屋根裏のスペースも有効利用することが多いです。屋根勾配にもより、人が立てる状態の高さがギリギリとれることもあります。

2-4 耐震工事
2-5 断熱工事
北区M様邸_断熱工事

木軸組が納まったあとは断熱工事です。グラスウールを施工する際は、しっかりと隙間なく敷き込み、タッカーで固定していきます。

北区M様邸_断熱工事

床は、303ピッチの根太の間にスタイロフォームで断熱をとります。

北区M様邸_断熱工事

天井、壁と断熱材を敷きこんでいきます。

北区M様邸_断熱工事
北区M様邸_断熱工事

断熱材を入れ終えるとボードを貼る工程に入りますので建具枠を設置していきます。

北区M様邸_断熱工事

木下地が完了し、ボードを張っていきます。

北区M様邸_断熱工事
北区M様邸_断熱工事
2-7 内装工事 
北区M様邸_内装工事

大工がボードを貼り終えるとクロス職人が現場に入り壁・天井にクロスを貼っていきます。下地を作るためにパテでしごいていきます。

北区M様邸_内装工事

下地、つまりボードを張る大工が下地をそろえないと、全面パテ(総パテ)となりクロス職人なかせの大工となってしまいます。類フォームではクロス職人は、大工の技術がしっかりしていないとやりたがらないのはそういうことなのです。

北区M様邸_内装工事
北区M様邸_内装工事
2-6 外壁工事

内装工事と並行して外構工事も入ります。

M様邸は外壁は既存のままです。

北区M様邸_外壁工事

バルコニーは新しく取替になります。施工前に現場にて細かい納め方の打合を施工2週間前位にします。今回は敷地内に納める為に既存バルコニーを少し詰めて納めて貰います。

北区M様邸_外壁工事

サッシは、今回の現場では一部のみ変更というプランとなっております。

北区M様邸_外壁工事

バルコニーに関しては、メーカーの施工が来て1日で設置していきます。(設置前)

北区M様邸_外壁工事

バルコニー設置後

北区M様邸_外壁工事

今回のM様2世帯(住宅)新築そっくりまるごとリフォームでは、既存外壁がそのままなので、新しくサッシを替えた箇所は2ヶ所です。浴室の窓とLDKのFIX窓。それ以外は全て既存の窓を残し、室内で2重サッシ(インナーサッシ)で納めさせて頂いてます。新規窓廻りはラスカットを貼り既存外壁に合わせて塗装をしていきます。

北区M様邸_外壁工事

全ての部屋のクロスが貼り終わり、内窓(インナーサッシ)を設置します。各居室設置しています。比較的、長時間居ないお部屋の窓には設置していません。(トイレ・階段)

北区M様邸_外壁工事
北区M様邸_外壁工事

3 竣工

北区 M様の2世帯(住宅)新築そっくりまるごとリフォームは、7月21日より着工をさせて頂きまして10月21日にお引渡をさせて頂きました。

2世帯リフォーム前と2世帯(住宅)新築そっくりまるごとリフォーム後でどのように変化したかご紹介します。

■2世帯(住宅)新築そっくりまるごとリフォーム施工前LDK■
北区M様邸_施工前

既存1階は和室で冬はとても寒く夏は暑いのと、小さな段差が所々にあるのが今回の2世帯(住宅)新築そっくりまるごとリフォーム後に解消したい点でした。

■2世帯(住宅)新築そっくりまるごとリフォーム施工前LDK■
北区M様邸_施工前
■2世帯(住宅)新築そっくりまるごとリフォーム施工後LDK■
北区M様邸_竣工

2世帯(住宅)新築そっくりまるごとリフォーム後は廊下を極力作らずワンフロアで広々と使える様にプランをさせて頂きました。

■2世帯(住宅)新築そっくりまるごとリフォーム施工後LDK■
北区M様邸_竣工

お婆様は1階にベットを設置するので、2世帯(住宅)新築そっくりまるごとリフォームプランでは夜は間仕切れる様に3枚扉を設置しました。

■2世帯(住宅)新築そっくりまるごとリフォーム施工後LDK■
■2世帯リフォーム施工前 キッチン■
北区M様邸_施工前

キッチンはまだリフォームしたばかりだったのですが、もう少しお掃除がし易い物で収納力が増えるキッチンにしたい。

■2世帯(住宅)新築そっくりまるごとリフォーム施工後キッチン■
北区M様邸_竣工

キッチンは全て収納は引き出しにし、上には吊戸を設置しました。今回は配管も全てやり直しておりますので、瞬間湯沸かし器では無く給湯配管をしております。

■2世帯(住宅)新築そっくりまるごとリフォーム施工後キッチン■
■2世帯リフォーム施工前 浴室廻り■
北区M様邸_施工前

お風呂はタイル張りで段差が有りとても危険なので、リフォーム後は安心して入れるお風呂にしたい。

■2世帯リフォーム施工前 浴室廻り■
北区M様邸_施工前
■2世帯リフォーム施工前 浴室廻り■
北区M様邸_施工前

トイレは設置場所を替えたい。

■2世帯(住宅)新築そっくりまるごとリフォーム施工後浴室廻り■
北区M様邸_竣工

お風呂はTOTO サザナ1216サイズです。極力シンプルにし、中は手摺を設置しました。

■2世帯(住宅)新築そっくりまるごとリフォーム施工後浴室廻り■
北区M様邸_竣工

洗面化粧台スペースも限られた空間なので、収納力を少しでも上げる為に吊り戸を設置させて頂きます。

■2世帯(住宅)新築そっくりまるごとリフォーム施工後浴室廻り■
北区M様邸_竣工

トイレ場所も移設し、広々と空間を取りました。

■2世帯リフォーム施工前 階段■
北区M様邸_施工前

階段は急勾配なので、もう少し緩やかな勾配にしたい。2世帯(住宅)新築そっくりまるごとリフォーム後は手摺を付けたい。

■2世帯(住宅)新築そっくりまるごとリフォーム施工後階段■
北区M様邸_竣工

階段の勾配を緩やかにし、手摺を設置。既存の窓は採光を取る為にも残したままです。

■2世帯リフォーム施工前 2階和室■
北区M様邸_施工前

昔、2階を下宿として貸していたので小さな流しなどが部屋に付いているので2世帯(住宅)新築そっくりまるごとリフォームする際は、スペースを重視したいので収納も手洗い場も無くしたい。

■2世帯(住宅)新築そっくりまるごとリフォーム施工後2階洋室■
北区M様邸_竣工

お部屋を広く取らせて頂きました。サッシは既存の物にインプラス(2重窓)を設置させて頂いてます。

■2世帯(住宅)新築そっくりまるごとリフォーム施工後2階洋室■
北区M様邸_竣工
■2世帯リフォーム施工前 2階和室■
北区M様邸_施工前

コチラのお部屋も下宿出来る様な造りになっているので、洋室にリフォームをしたい。

■2世帯(住宅)新築そっくりまるごとリフォーム施工後2階洋室■
北区M様邸_竣工

コチラのお部屋も窓は既存を活かし、インプラス(2重窓)にさせて頂きました。

■2世帯リフォーム施工前 2階廊下■
北区M様邸_施工前

極力廊下のスペースは無くしてお部屋に活かして貰いたい。

■2世帯(住宅)新築そっくりまるごとリフォーム施工後2階廊下■
北区M様邸_竣工

廊下は洋室1のスペースに入れてしまい、洋室1から各洋室に入る様にしたい。

■2世帯(住宅)新築そっくりまるごとリフォーム施工後2階廊下■
北区M様邸_竣工

ちょっとしたスペースに収納を設置させて頂きました。

■2世帯リフォーム施工前 2階和室■
北区M様邸_施工前

既存もとても小さいスペースで納戸で使用していたのですが、明るくして子供部屋として活かしたい。

■2世帯(住宅)新築そっくりまるごとリフォーム施工後2階洋室■
北区M様邸_竣工

こちらも既存の窓はそのままで、インプラス(2重窓)を設置させて頂きました。

■2世帯(住宅)新築そっくりまるごとリフォーム施工後2階洋室■
北区M様邸_竣工

階段上のスペースを活かしての収納です。

■2世帯リフォーム施工前 2階トイレ■
北区M様邸_施工前

2階トイレも場所を少し移動し新規で設置します。

■2世帯(住宅)新築そっくりまるごとリフォーム施工後2階トイレ■
北区M様邸_竣工
■2世帯(住宅)新築そっくりまるごとリフォーム施工後 2階の小屋裏に収納スペースを新規に造作しました■
北区M様邸_竣工

収納スペースより空間の広さを重視されていたのですが、解体後を見て頂いた際小屋裏に収納スペースが造れるなら造って頂きたいとご要望を頂きまして追加工事として小屋裏収納を造らせて頂きました。


 
北区M様邸_竣工

居住スペースで使用はしないので小屋裏収納内の内装仕上げはしておりません。

北区M様邸_竣工

3 竣工

3-1 外壁 Before → After
北区M様邸_施工前

サービス提供前

 

北区M様邸_竣工
3-2 キッチン Before → After
北区M様邸_施工前

サービス提供前

 

北区M様邸_竣工
3-3 バス Before → After
北区M様邸_施工前

サービス提供前

 

北区M様邸_竣工
3-5 トイレ Before → After
北区M様邸_施工前

サービス提供前

 

北区M様邸_竣工
3-6 リビング Before → After
北区M様邸_施工前

サービス提供前

 

北区M様邸_竣工
ハイウィルスタッフ

担当者より ハイウィル株式会社四代目代表 稲葉高志

M様の建物はお神楽をされていた建物でしたが、解体をしてみると2階を背負う1階の構造体がかなり危険な状態でした。予算の中で最も比重をおいたのが構造補強でした。2階を背負うための構造体にすべく、基礎、一階の木構造の補強をメインに施工させていただき、以前に外壁塗装・玄関扉は他社さまでリフォームしたばかりの状態でしたのでなので、外部は現状のままのプランニングで2世帯(住宅)新築そっくりまるごとリフォームをさせていただきました。

画像をクリックすると解説ページにジャンプします。

全国のフルリフォーム・リノベーション『ピックアップ事例』※プロの詳細解説付きレポート

HEAT20-G2/耐震等級3
新耐震基準の性能向上リノベーション
築30年ハウスメーカー軽量鉄骨
断熱改修&リノベーション
 
中古住宅を新築以上の耐震性能と断熱性能へ!
耐震等級3フルリフォーム
地下付き木造2階建て
自然素材をつかった性能向上リノベーション&フルリフォーム

東京都文京区 K様邸

長屋を切り離して1つの構造体へフルリフォーム&リノベーション
隣家との距離がない!
部屋から外壁を張り替えるフルリノベーション
中古住宅を耐震等級3へ!
中古住宅リノベーション
 
基礎がない??
築60年の古屋をジャッキアップで基礎新設フルリノベーション

東京都渋谷区 O様邸

戸建てリノベーション・リフォームに関するお問合せはこちら

増改築.comの一戸建てリフォーム専用ホームページに
お越しいただき、誠に有難うございます。
 
増改築.comメンバーは技術集団となり、
他社のような営業マンがおりません。
技術者が直接ご相談にのり問題解決を行います。
 
従いまして、
お客様の方である程度のご要望が整理されました段階、
お悩みが工事内容のどのようなところにあるのか?
ご予算がどの程度絞る必要があるのか?
など明確になった段階でのご相談をお願いしております。
お問合せ・ご相談はお電話・メールにて受け付けております。
メールの場合は以下のフォームに必要事項をご記入の上、
「送信する」ボタンをクリックをお願いします。

代表稲葉高志

戸建てリノベーションの専属スタッフが担当致します。
一戸建て家のリフォームに関することを
お気軽にお問合せください

よくあるご質問
  • 他社に要望を伝えたところできないといわれたのですが・・・
  • 他社で予算オーバーとなってしまい要望が叶わないのですが・・・
  • サービスについて詳しく聞きたいのですが・・・

どのようなお悩みのご相談でも結構です。

あなたの大切なお住まいに関するご相談をお待ちしております。

営業マンはおりませんので、しつこい営業等も一切ございません。

設計会社(建築家様)・同業の建築会社様のご相談につきましては、プランと共にご指定のIw値及びUa値等の性能値の目安もお願い申し上げます。

2026年の大型補助金が確定したことで現在大変込み合っております。

耐震性能と断熱性能を向上させるフルリフォームには6か月~7か月の工期がかかります。

補助金獲得には年内に報告を挙げる必要があることから、お早目にご相談をお願いいたします。(6月着工までが目安

ご提案までに大変お時間がかかっております。ご了承のほどお願い申し上げます。

(5月までの着工枠が埋まりました)・・・2026/03/01更新

※すでにプランをお持ちのお施主様・設計資料をお持ちのお施主様は内容をフォームで送信後、フォーム下のメールアドレスに資料をお送りください。対応がスムーズです。

必須

(例:増改築太郎)

必須

(例:contact@high-will.co.jp)

(例:03-5615-2826)

必須

(例:東京都荒川区西日暮里2-35-1)

(例:築40年)

(例:25坪・100㎡など)

(例:2000万程度など)

  • ※再建築不可のリフォームでは金融機関が限られます。事前審査をお勧めいたします。

    (例:2024年3月くらいに完成希望など)

    必須

    できるだけ具体的にお知らせくださいませ。既存設計資料、リフォーム後のイメージ図等をお持ちであれば下記のメールアドレスより添付をお願いします。

    ※次の画面がでるまで、4~5秒かかりますので、
    続けて2回押さないようにお願いいたします。

    ※次の画面が出るまで、4〜5秒かかりますので、
    続けて2回押さないようにお願いいたします。

    図面や写真等を送信いただく場合、また入力がうまくいかない場合は、上記内容をご確認のうえ、下記メールアドレスまでご連絡ください。

    お電話でのお問合せはこちら

    0120-246-991

    営業時間:10:00~17:00(土日祝日を除く)

    ★YouTube「増改築.comチャンネル」チャンネル登録して新動画解説をいち早くGET!!★
    「増改築.comリノベ診断」であなたに一番ふさわしいフルリフォームを診断!!(動画解説付き)
    ★Facebookページにいいね!を押して最新コンテンツ情報をいち早くGET!!★
    パソコン|モバイル
    ページトップに戻る