戸建フルリフォームなら「増改築.com®」TOP施工事例東京都北区>Y様邸 スケルトンリフォーム一戸建て(一軒家)

北区 スケルトンリフォーム一戸建て(一軒家) 傾き補正有り

北区Y様邸
北区Y様邸_竣工
北区Y様邸_竣工
北区Y様邸_竣工
北区Y様邸_竣工
北区Y様邸_竣工
北区Y様邸_竣工
建物概要
名前 Y様
場所 東京都北区
築年数 築50年
構造種別 木造戸建
家族構成 大人 人
対象面積 25坪
工期 ヶ月
価格 1600万

お客様のご要望

Y様の家族構成はご夫婦とお子さんが2人の4人家族。そもそものリフォームのきっかけは、家が傾いていて、隙間風があり冬場が本当に寒い。というもの。向って右半分(下の写真右)は昔賃貸で、当時は2世帯貸していて、今は空き家になって使用していない空間になっている為、賃貸までを解体して一つの世帯用に間取りを変更したい。というご要望でした。

プランニングのポイント

一戸建て(一軒家)スケルトンリフォームの際に構造の傾きを補正するケース(北区Y様邸①着工前)

創業大正8年のハイウィルでは、年間を通じ、常に順番待ちになっている工事があります。その最も多い工事のご依頼の一つが、スケルトンリフォーム戸建ての全面工事です。

今回のスケルトンリフォーム一戸建ては、『家が傾いている??』といったお悩みです。

家が傾いている? とビックリされる方もおられるかと思いますが、実は、弊社のように改築工事を毎日やっておりますと、その度合いに差こそありますがかなりの頻度で傾きを気にされておられる方も多いのも現実です。

そもそも木造の住まいは基礎の上に木構造体が乗って建物を構成していますが、傾きも、基礎より下の部分、つまり地盤自体が傾いているケースと基礎より上の木構造部分で傾いているケースがございます。

地盤自体が下がってしまってるケースでは、近くに高層マンションが建って地盤に影響が出てしまうエースやもともと地盤がゆるく、隣の家が新築をした際などに傾いてしまうケースなどがあります。

基礎工事より木構造体部分が傾いている場合は、築年数とともに木が痩せてしまってという自然なケース(この場合度合はひどくないケースが多い)と一部の構造体に過度な荷重がかかってしまい傾いてしまっているケースやそもそもの施工不良のケースなどさまざまです。

ここで紹介する事例は地盤自体が近隣のマンション等の建設をしていく段階で傾いていたお住まいで、尚且つ築年数の古く、無筋の基礎で、一部束がなかったりといった状態で現場調査の段階では、床板がフカフカしている状態であったお住まいの内部スケルトンリフォーム一戸建て(改築)をご紹介致します。

 

今回ご紹介させて頂く事例のお施主様である東京都北区のY様と同じお悩みを持たれている方も非常に多いとおもいますので、参考になれば幸いです。

北区Y様邸 戸建てリノベーション施工事例テーマカテゴリー

  • 内部スケルトンリフォーム+サッシ交換

打合せから完成まで

1 着工前

1-1 打合せ
■既存外観
北区Y様邸_施工前
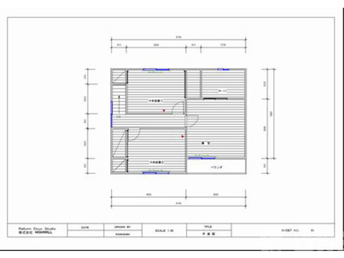
■既存図面
北区Y様邸_施工前

現場で採寸後起こした既存図面です。

北区Y様邸_施工前

トイレは隅付便器で和式便所のタイル造り。冬はとても寒くお掃除も大変です。

北区Y様邸_施工前
北区Y様邸_施工前

既存浴室も、タイル張りの在来浴室になっています。

北区Y様邸_施工前

既存階段は急勾配です。

北区Y様邸_施工前

1階リビングのは床が下地が無いかの様にフワフワしました。私が飛び跳ねると今にも割れそうな勢いです。点検口から床下をみました。

北区Y様邸_施工前

解体前に床下をのぞいてみても見える範囲では決定的な原因を判断できませんでした。

北区Y様邸_施工前

床を上げるまで解りませんが下地補強レベルではなく、やり替えを提案させて頂きました。

北区Y様邸_施工前
北区Y様邸_施工前
北区Y様邸_施工前

既存屋根は屋根勾配が違う為、セメント瓦と板金で納められてました。セメント瓦の方は屋根勾配が3寸5分 板金側は2寸勾配新規はガルバでおさめる提案をさせていただきました。

セメント瓦と板金屋根の境目の納まりに問題がありました。こちらも下地からやり変える提案をさせていただきました。

1-2 提案
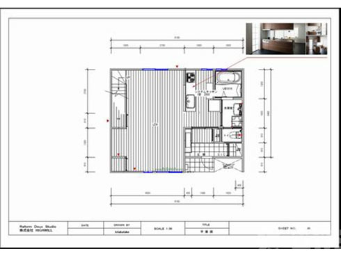
■新規1階図面
北区Y様邸_新規図面
■新規2階図面
北区Y様邸_新規図面

2 着工

2-1 解体

スケルトンリフォーム一戸建て着工をしてまず初めに解体作業からです。Y邸は基本、一戸建ての内部スケルトンリフォーム一戸建てになりますが、サッシを入れ替え位置が変更される部分があるため、外部もある程度解体が必要なります。

解体をして木構造を裸にして、最終の補強計画を立てます。

北区Y様邸_解体

スケルトンリフォーム一戸建てになると、当然住みながらでは工事ができませんので仮住まいをご用意いただく形になります。基本木構造を残し手作業で解体していく為時間と手間は掛ります。しかも解体職人ではなく大工が解体します。それは、リフォーム後の間取りを考えながら解体が必要になるからです。

北区Y様邸_解体

この解体工事でまず最初の大量の廃棄物がでます。

北区Y様邸_解体
北区Y様邸_解体

徐々に躯体が露わになってきます。

北区Y様邸_解体

ほぼ構造体が浮き彫りになっている状態です。現状の痛み具体や荷重のかかり具合、どのような施工がなされていたのか?ここから提案させていただいた間取りが本当に可能なのか?こちらが想定していた状況と合致しているかを確認します。

北区Y様邸_解体
北区Y様邸_解体

床がふかふかになっていた原因が判明。束に大引が乗っていない。。。。乗っている箇所も垂木で噛ませているような状況となっており、ほぼ下地がないのと同じ状況でお住まいになられていたことになります。これは危険です。床下収納からは見ることができなかったところです。傾きも地盤の傾きとともに、構造自体でも傾いていることがわかります。

北区Y様邸_解体

家の中心部の基礎に大きな亀裂。中心の柱に二階の荷重負担がかなり強いのが直接の原因です。

北区Y様邸_解体

しかも基礎が割れたことで沈下し、土台との間に隙間も。。ここは本格的に補強が必要なところになります。

北区Y様邸_解体

屋根はシート養生。一通りの解体が終わり構造躯体のみの状態になりました。屋根の野地板も張り替えるため、ブルーシートを家全体に覆い工事期間中の雨対策をします。

北区Y様邸_解体

建物にシートを覆い、外周部を足場も架け、シートをはります。

北区Y様邸_解体

出入り口は扉が解体されてありませんので防犯用に板張りをします。

ここまでで解体の工程が完了しました。

Y様のスケルトンリフォーム一戸建てはここからいよいよ基礎工事→木工事へと移行していくわけです。

2-2 補強

ひき続いて一戸建てスケルトンリフォームの基礎工事にはいっていきます。解体作業が終わると基礎補強工事になります。こちらのお住まいはベタ基礎への変更工事だけでなく中心部の基礎に亀裂が入っている為、基礎補強が必要になります。

北区Y様邸_補強

まず鋤取りして基礎の高さの墨出しします。

北区Y様邸_補強

鋤取りすると既存の土台が浮いているのが一際目立っている状況です。この部分は建物自体の傾きをジャッキアップで補正後にべた基礎&基礎補強で対処します。

北区Y様邸_補強

仕上げ材はほとんど効いていない状況であったことがわかります。

北区Y様邸_補強

一箇所ではなくこのように土台が浮いてしまっている箇所が数カ所ありました。今回の一戸建てスケルトンリフォーム(改築)は良いタイミングであったと思います。

北区Y様邸_補強

基礎工事 フォールアンカー工法により配筋を布基礎に緊結します。

北区Y様邸_補強
北区Y様邸_補強

既存の間取りでは、基礎が十分ではなく、外周部以外のほとんどが束(ピンコロ)で土台を支えるという状況であったため提案間取りでは、構造的にみても頑丈になるように布基礎を立てる箇所を増やし建物を安定させる狙いです。新規で布基礎を設置する箇所に新規配筋を施します。

北区Y様邸_補強

生コンクリートを土間に打設しベタ基礎にします。

北区Y様邸_補強
北区Y様邸_補強

コンクリートミキサー車が入り組んでおり入りませんので、猫車で運び手作業で、土間を打設しました。

北区Y様邸_補強
北区Y様邸_補強

打設後は湿潤期間を設けます。

北区Y様邸_補強

17センチ建物が傾いている状況であることが解体後の調査でわかっておりましたので、落ちている部分の土台にジャッキを当ててジャッキアップをします。

北区Y様邸_補強

ジャッキアップにより

北区Y様邸_補強

新規布基礎間仕切り基礎部分。既存の間取りで布基礎がない箇所(床がフワフワしていた箇所)布基礎を設置するための型枠組みをします。

北区Y様邸_補強
北区Y様邸_補強

亀裂が入っていた中心部の基礎は補強を加えるため基礎幅を増やし強固にするためにアンカーを入れ緊結する想定で型枠を組みます。

北区Y様邸_補強

中心部の亀裂の入っていた補強部とその他の構造上弱いポイントに型枠を組んでいます。中心部は両側から補強する計画です。

北区Y様邸_補強

コンクリートを打設後の布基礎です。これで2階の荷重を受け一階の床をしっかりとした本来の理想的な形へ施工できました。

北区Y様邸_補強

このあと木工事の工程で土台を乗せ、床組ができるという段階になりました。

アンカーボルトは土台の中心に来るように打ち込んでいます。

2-3 木工事

解体・基礎の次は、スケルトンリフォーム一戸建ての要となる大工工事、新規土台・大引を設置していきます。

北区Y様邸_木工事

設置大引を受ける鋼製束を設置予定です。

北区Y様邸_木工事

基礎の芯にアンカーボルト出し、土台を緊結していきます。

北区Y様邸_木工事

1階床下地に本格的に入っていきます。新規土台、大引の設置、鋼製束を設置していきます。

北区Y様邸_木工事

こちらのお住まいは、ジャッキーアップにより建物の傾きを補正しているため、ジャッキーアップした箇所は土台と基礎の間に隙間ができることになります。その部分を計算して加工処理していきます。

北区Y様邸_木工事

間取り変更により抜く柱がどうしてもでてきます。スパンにもよりますが、荷重のかかり具合によって梁を入れる梁のせいもかわってまいります。

北区Y様邸_木工事

柱を抜いて、二階の柱を受けているような荷重がかかる部分にはせいの高い梁をいれていきます。既存の活かせる梁、活かせない梁を見分け適切に施工をしていきます。

北区Y様邸_木工事

一階の天井高も考えつつ、2階の荷重をどのように受けるのが一番良いのか、荷重の分布も検討し梁掛けをしていきます。このような仕掛けは、内装大工ではできません。棟梁と呼ばれる大工が施工をします。

2-4 耐震工事

木工事の中で最も大事な構造部分が終わり、次は耐震対策である制震ダンパーの設置に入ります。

正確には耐震対策は、木工事の工程の中で、補強を施しており万全ではありますが、耐震に+して制震を検討。

一戸建てスケルトンリフォーム後の新たな間取りから構造計算をして、最悪の事態が起きた際、地震力が加わりどの構造部の力を逃がす必要があるかを診断し、減衰力が必要な構造壁に制震ダンパー装置の設置指示が出てきます。

下記はその指示図です。赤い部分が設置個所となります。

■ 1階 診断書
北区Y様邸_耐震工事
■ 2階 診断書
北区Y様邸_耐震工事

赤い部分を数えると1階に5基 2階に2基の設置ということがわかります。

北区Y様邸_耐震工事

ここのお住まいは一階はほぼ外周部に設置指示がでていますので指示通りに設置をしていきます。

北区Y様邸_耐震工事
北区Y様邸_耐震工事
北区Y様邸_耐震工事
北区Y様邸_耐震工事

2階部制震ダンパー設置。今回の間取りでは2か所の指示となっております。

北区Y様邸_耐震工事
北区Y様邸_耐震工事

こちらが北区Y邸での制震ダンパー設置です。弊社では改築されるお客様にはおススメさせていただいております。

費用も耐震補強工事よりもかからず、効果は耐震補強以上の設計です。備えあれば憂いなし。ご自宅がご心配の方は、まずは下記に詳しい内容が掲載されています。

2-5 断熱工事

制震ダンパーの設置が終わると断熱工事となります。

今回東京都北区Y邸での断熱は外周面の壁面、2階天井裏の断熱材は グラスウール、1階床下はスタイロホームです。

Y既存建物壁・床に断熱材は入っていませんでしたので、かなり寒かったはずです。

実際に「住んでいても隙間風が吹いていたので換気は良かったけどとても寒かった」とおっしゃられてました。

北区Y様邸_断熱工事

外周面にグラスウールを隙間なく張り込んでいきます。

北区Y様邸_断熱工事
北区Y様邸_断熱工事
北区Y様邸_断熱工事
北区Y様邸_断熱工事

2階天井も隙間なく重なりあうように張り込んでいきます。

北区Y様邸_断熱工事

1階床下は根太のピッチのスペースにスタイロホームを貼っていきます。

2-6 外壁工事
北区Y様邸_外壁工事

既存屋根の形状は2軒が連棟となっており、切妻が直角に交差し乗越し屋根となっております。

しかし、2つの屋根の勾配は違います。もともと住居部分であった家屋部分は3寸5分勾配でセメント瓦葺き既存賃貸部分は2寸5分勾配の板金納めとなっておりました。

今回のケースは、2寸5分勾配では、コロニアル瓦は葺けませんので、ガルバリウム鋼板への変更をご提案しました。こちらをすべて剥がし、野地板を張替えルーフィングを貼りガルバリウム鋼板で仕上げます。

北区Y様邸_外壁工事

野地板貼りの工程での写真を撮り忘れましたが。。。汗。。ルーフィングが貼りおわったとこです。

北区Y様邸_外壁工事

このような下地の防水処理が最も大事になります。

北区Y様邸_外壁工事

ルーフィングは、屋根の流れ方向に対して横方向に施工するのが鉄則です。平部は、横方向に200mm以上重ねておさめしっかりと雨仕舞をすることが必要です。ガルバリウムで一番大切なのが軒先部の納め方になります。軒先水切り(通称:唐草)に重ねて必ず納めます。

北区Y様邸_外壁工事

ケラバの野地板端部まで取りつけます。

北区Y様邸_外壁工事

ガルバリウム鋼板をしっかりとはめ込んでいきます。

北区Y様邸_外壁工事
北区Y様邸_外壁工事
北区Y様邸_外壁工事
北区Y様邸_外壁工事

谷部分がもっとも雨漏りの原因となる箇所であるため、最も注意を払うところになります。

北区Y様邸_外壁工事
北区Y様邸_外壁工事

弊社は大正8年創業の社寺仏閣専門の瓦葺き業者として創業したルーツがありますが、最近では和瓦を新たに葺き替えるお客様も少なくなってきました。

ガルバリウムを張るのは通常板金職人、瓦を葺くのは瓦職人とテリトリーも変わってまいります。

今回施工したのは弊社の板金職人のメンバーによる施工です。

2-7 内装工事 

構造補強 断熱 ダンパー設置と一番重要なフェーズを超えました。

ここからは内装を仕上げていきます。

北区Y様邸_内装工事

天井野縁組後のボード仮設置。

北区Y様邸_内装工事

断熱材を敷き詰めたあとボードを張っていきます。

北区Y様邸_内装工事
北区Y様邸_内装工事

重いものを壁に固定する箇所などは、お客様に予めヒアリングさせていただき、ボードではなく12ミリの板を貼っておきます。

北区Y様邸_内装工事
北区Y様邸_内装工事
北区Y様邸_内装工事
北区Y様邸_内装工事

キッチンも設置されてます。今回はTOTOのミッテ I型2550サイズを採用いたしました。

北区Y様邸_内装工事

今回構造部の傾きが最も大変な工事となっておりましたが、スケルトンリフォーム一戸建て内装工事でもっとも施工的に苦労するのが階段の設置になります。新規で階段を設置する位置がもともと浴室があった場所であり、かつ、既存浴室壁がブロックであったことと、最も家の歪みが激しい箇所がこの部分であったため壁を補正するとともに、階段は既製品を採用していたことから、プレカットにて搬入されます。

北区Y様邸_内装工事

ジャッキアップにて相当補正を試みておりますが、家自体がよじれていることもありミリ単位で、すべての傾きを0mmにもっといくことが現実的に難しいこともあり限界レベルにて補正をとどめており補強を施しております。そのため階段については大工が加工しながら納めました。以前の急こう配の階段とは違い緩やかな登り易い勾配になってます。

こちらの現場を解体から内装まで工事の流れと共に解説しています。今回が⑧になります。最初から見たい場合①からです。

一戸建てスケルトンリフォームには内部スケルトンリフォームと外部の壁まで解体する躯体残しの内外部スケルトンリフォームが方法論としてあり、ここ数年ハイウィルでは内部スケルトンリフォームをされる方が増えております。

その人気の一戸建ての内部スケルトンリフォームでもどこまでやるかで費用が変わってきます。

基本的に内部のみスケルトン状態になりますので、間取り変更は自由、階段の位置、水まわりの移設などは自由となります。では、費用が変わってくるのはどういう工事をした時に変わってくるのか?

ここを工事をしたお客様に契約前に聞かれます。

内部スケルトンリフォームは内部をすべて解体し、内部が構造体のみになっている状態から補強等を加え再度あらたな間取りでくみ上げていくリフォームになりますが、下記のような工事を加えていくと費用もそれぞれ上がっていく事になります。

基礎を布基礎からベタ基礎に変更するか?

断熱材をグラスウール以外の高性能素材にするか?(セルロースファイバーなど)

外部と絡みのでてくるサッシを入れ替えるか?

耐震補強に加え、地震に備え制震ダンパー等を設置するか?

断熱や防音などを考慮し2重サッシ(インナーサッシ)を設置するか?

外壁塗装ではなく、サイディング・ガルバリウム鋼板仕様、もしくは左官壁などにしたいか?

など内部をフルで解体したあと付加価値をどれだけつけるかで費用の増減が決まってきます。

 

今回の北区 Y様邸 は ベタ基礎へ変更、制震ダンパーの設置、既存のサッシ(窓)の位置に新しくサッシ(窓)を全て入れ替えとなりました。

サッシ(窓)を入れ替える工程として既存窓廻りにを大きめにカッターを入れ取り外します。その後内部工事では大工が、サッシ枠を新たに造作し、新しいサッシ(窓)を入れます。カッターを入れ切り取った外部廻りは左官で補修をして、その後塗装になります。

どうしても左官を塗り直して塗装をするので既存壁との段差が出てしまいますので、下地が目立たないように極力既存の目に合わせて塗装になります。

北区Y様邸

まずフェルトにラス網を貼ってモルタルを塗ります。

北区Y様邸

Y様邸ではサッシ入れ替えの為、外部の解体面が、かなり大きくなり補修面積も大きくなります。

北区Y様邸
北区Y様邸

これらラス網の箇所を左官工事で下地を塗っていきます。

北区Y様邸

塗り終わったら乾くまで待ち塗装の工程となります。

3 竣工

3-1 外壁 Before → After
北区Y様邸_施工前

サービス提供前

 

北区Y様邸_竣工

賃貸が併設された住まいとなっておりましたので、間取りは大幅に変わっております。外壁は既存を一部残しつつ、内部スケルトンリフォームとなっており、サッシは全て取替ました。

3-2 1階キッチン+リビング Before → After
北区Y様邸_施工前

サービス提供前

 

北区Y様邸_竣工

ゆったりの玄関を入って扉を開けると、開放感のあるLDKです。廊下が極力無いスペースなので、お部屋のスペースが最大限取れてます。

北区Y様邸_竣工

既存での玄関スペースは狭かったこともあり、スケルトンリフォーム後の玄関は広々と取り、奥に可動棚付きの収納を納めさせて頂きました。

北区Y様邸_竣工
北区Y様邸_竣工
北区Y様邸_竣工

キッチンはTOTO ミッテ I型 2550サイズ。良く使うモノを取り出しやすく、しまいやすいセンターラインキャビネット搭載。

3-3 バス Before → After
北区Y様邸_施工前

サービス提供前

 

北区Y様邸_竣工

ユニットバスは TOTOサザナ 1616サイズ。ほっからり床、魔法瓶浴槽搭載で充実したラインナップの商品です

3-4 洗面 Before → After
北区Y様邸_施工前

サービス提供前

 

北区Y様邸_竣工

洗面化粧台はTOTO サクア 間口750サイズ。たっぷり収納と、洗いやすいひろびろボウルを搭載。

3-5 トイレ Before → After
北区Y様邸_施工前

サービス提供前

 

北区Y様邸_竣工

トイレは TOTO ピュアレスト 4.8の節水トイレ、従来品に比べて71%も節水

3-6 2階洋室 廊下
北区Y様邸_竣工

設置に苦労を伴った新規階段はゆったりの勾配で小さなお子様でもとても上り下りし易くなっております。

北区Y様邸_竣工

2階は洋室3部屋です。

北区Y様邸_竣工

各お部屋たっぷりの収納スペースです。

北区Y様邸_竣工
北区Y様邸_竣工

寝室には3畳のスペースのウォークインクローゼットです。

 

ハイウィルスタッフ

担当者より ハイウィル株式会社四代目代表 稲葉高志

Y様の建物は、大変難易度の高い現場でした。

このように、リフォームをすれば、真新しくきれいになります。大事なのは、中身となり、特に木造一戸建てのスケルトンリフォームでは目に見える表装ではなく、目に見えない壁の中、床の下となります。特に構造部の取り合い、補強計画、には時間がかかりますし、施工する木工事職人の高い技術が必要となります。

当社では大正時代から続く技術の継承を重要視しており、正直価格だけを見て安い職人はいます。しかし、大切な財産である住まいを預かる身として、そのような無責任な技術は提供できませんので施工費用は安売りはしていません。

その分、スケルトンリフォームを構成する商品や建材を全国の工務店に卸売りしており、お客様にもお安く提供できております。安くない施工費用(工)と安く提供できる定価の決まっている商品(材)。このような真の良質安価を目指しており、価格優先の仕事は致しておりません。

現在リフォーム市場は、さまざまな業種からの参入が相次ぎ、彼らの利益重視のビジネススタイルから、安い職人が必然的に大手や新規参入会社へ流れていきます。

そのため、木造のスケルトンリフォームなど家の構造部をさわるような大掛かりな工事は、お客様の確かな目で相談するようにおススメおいたしております。

この事例と似たテーマカテゴリーを見る

全国のフルリフォーム・リノベーション『ピックアップ事例』※プロの詳細解説付きレポート

HEAT20-G2/耐震等級3
新耐震基準の性能向上リノベーション
築30年ハウスメーカー軽量鉄骨
断熱改修&リノベーション
 
中古住宅を新築以上の耐震性能と断熱性能へ!
耐震等級3フルリフォーム
地下付き木造2階建て
自然素材をつかった性能向上リノベーション&フルリフォーム

東京都文京区 K様邸

長屋を切り離して1つの構造体へフルリフォーム&リノベーション
隣家との距離がない!
部屋から外壁を張り替えるフルリノベーション
中古住宅を耐震等級3へ!
中古住宅リノベーション
 
基礎がない??
築60年の古屋をジャッキアップで基礎新設フルリノベーション

東京都渋谷区 O様邸

戸建てリノベーション・リフォームに関するお問合せはこちら

増改築.comの一戸建てリフォーム専用ホームページに
お越しいただき、誠に有難うございます。
 
増改築.comメンバーは技術集団となり、
他社のような営業マンがおりません。
技術者が直接ご相談にのり問題解決を行います。
 
従いまして、
お客様の方である程度のご要望が整理されました段階、
お悩みが工事内容のどのようなところにあるのか?
ご予算がどの程度絞る必要があるのか?
など明確になった段階でのご相談をお願いしております。
お問合せ・ご相談はお電話・メールにて受け付けております。
メールの場合は以下のフォームに必要事項をご記入の上、
「送信する」ボタンをクリックをお願いします。

代表稲葉高志

戸建てリノベーションの専属スタッフが担当致します。
一戸建て家のリフォームに関することを
お気軽にお問合せください

よくあるご質問
  • 他社に要望を伝えたところできないといわれたのですが・・・
  • 他社で予算オーバーとなってしまい要望が叶わないのですが・・・
  • サービスについて詳しく聞きたいのですが・・・

どのようなお悩みのご相談でも結構です。

あなたの大切なお住まいに関するご相談をお待ちしております。

営業マンはおりませんので、しつこい営業等も一切ございません。

設計会社(建築家様)・同業の建築会社様のご相談につきましては、プランと共にご指定のIw値及びUa値等の性能値の目安もお願い申し上げます。

2026年の大型補助金が確定したことで現在大変込み合っております。

耐震性能と断熱性能を向上させるフルリフォームには6か月~7か月の工期がかかります。

補助金獲得には年内に報告を挙げる必要があることから、お早目にご相談をお願いいたします。(6月着工までが目安

ご提案までに大変お時間がかかっております。ご了承のほどお願い申し上げます。

(5月までの着工枠が埋まりました)・・・2026/03/01更新

※すでにプランをお持ちのお施主様・設計資料をお持ちのお施主様は内容をフォームで送信後、フォーム下のメールアドレスに資料をお送りください。対応がスムーズです。

必須

(例:増改築太郎)

必須

(例:contact@high-will.co.jp)

(例:03-5615-2826)

必須

(例:東京都荒川区西日暮里2-35-1)

(例:築40年)

(例:25坪・100㎡など)

(例:2000万程度など)

  • ※再建築不可のリフォームでは金融機関が限られます。事前審査をお勧めいたします。

    (例:2024年3月くらいに完成希望など)

    必須

    できるだけ具体的にお知らせくださいませ。既存設計資料、リフォーム後のイメージ図等をお持ちであれば下記のメールアドレスより添付をお願いします。

    ※次の画面がでるまで、4~5秒かかりますので、
    続けて2回押さないようにお願いいたします。

    ※次の画面が出るまで、4〜5秒かかりますので、
    続けて2回押さないようにお願いいたします。

    図面や写真等を送信いただく場合、また入力がうまくいかない場合は、上記内容をご確認のうえ、下記メールアドレスまでご連絡ください。

    お電話でのお問合せはこちら

    0120-246-991

    営業時間:10:00~17:00(土日祝日を除く)

    ★YouTube「増改築.comチャンネル」チャンネル登録して新動画解説をいち早くGET!!★
    「増改築.comリノベ診断」であなたに一番ふさわしいフルリフォームを診断!!(動画解説付き)
    ★Facebookページにいいね!を押して最新コンテンツ情報をいち早くGET!!★
    パソコン|モバイル
    ページトップに戻る