外壁リノベーション 傾き補正&外壁解体 小金井市N様

小金井市N様邸
小金井市N様邸_竣工
小金井市N様邸_竣工
小金井市N様邸_竣工
小金井市N様邸_竣工
小金井市N様邸_竣工
小金井市N様邸_竣工
建物概要
名前

N様

場所 東京都小金井市
築年数

築30年

構造種別 木造戸建
家族構成 大人2人
対象面積 25.5坪
工期 2ヶ月
価格 1200万

お客様のご要望

・2階が傾いているので直してほしい。

・冬の寒さが厳しいので断熱性能を上げたい。

・耐震性能を上げたい。

・屋根をふき替えたい。

一度リフォームをしているが、耐震が不安であり冬寒く音が隣家に漏れるのでなんとかしたい。

プランニングのポイント

N様の今回のプランは、間取り変更はなく、あくまで、2階和室の傾き補正,屋根の張り替え、断熱、耐震をご要望されていましたが、現場調査の段階で外壁の傷みが激しいことがわかり、外壁であるモルタルの剥離解体工事及び外周部全面の構造用合板補強の提案(外壁リノベーション)をさせていただきました。

また、メインのご要望であった耐震補強と断熱につきましては、外部から柱間に断熱材を充填し、仕上に張るガルバリウム鋼板に断熱材がついているものを採用する方法でご提案しました。隣家への音漏れはサッシの入れ替えを提案し寝室へは2重サッシを提案させていただきました。

 

小金井市N様邸 戸建てリノベーション施工事例テーマカテゴリー

  • 外部スケルトンリフォーム

外壁リノベーション打合せから完成まで

▼目次▼

 1 着工前

  1-1 打ち合わせ

  1-2 提案

 2 着工

  2-1 解体

  2-2 補強

  2-3 木工事

  2-4 耐震工事

  2-5 断熱工事

  2-6 外壁工事

  2-7 内装工事 

 3 竣工

  3-1 外壁 Beofre → After

  3-2 キッチン Beofre → After 

  3-3 バス beofre → After

  3-4 洗面 Bbeofre → After

  3-5 トイレ Beofre → After

  3-6 リビング Beofre → After

 4 担当者より

1 外壁リノベーション着工前

1-1 打合せ

こちらは小金井市N様の施工事例です。このN様の外壁リノベーションは、リフォーム、リノベーションでは珍しいカテゴリに入るのではないでしょうか、間取りをまったくかえることなく、モルタル解体外壁の解体(モルタル解体剥離)による構造補強工事と軽量なガルバリウム鋼板張りサイディングリフォーム、2階の傾き補正、断熱がメインとなった外壁リノベーション工事になります。ご夫婦2人でお住まいの建物で、冬の寒さ、隣家への音の配慮、2階の傾きなど長年悩まれていたことを弊社へご相談されたのがきっかけになります。

N様とは、工事期間中も含めメールで100回以上もやり取りをしておりました。

見た目以上に、建物の性能を上げたい。これがN様ご夫婦の強いご要望でした。

まず弊社にご相談いただいたメールをそのまま掲載いたします。

・・・・・・・・・・・・・・・・・・・・・・・・・・・・・・・・・・・・・・・・

東京都小金井市、2004年に築約40年の中古住宅を購入。
木造2階建延べ床82平米。購入時部分リフォーム実施。
このほど地震時の不安や老朽化のためリフォームを検討。
スケルトンまでを希望するが、予算も限られるため、耐震、断熱(サッシ含む)、屋根補修などの順で優先度を想定中。ご相談によりリフォームの規模、方向性を定めたい。
若干の補足説明をさせて頂きますと、リフォームをお願いしたい我が家は、46年頃に建てられ、先住者の方が一度増改築をされたものを15程年前に我々が購入し、入居の際に某新築そっくり○○でリフォームをして現在に至るという建物です。

 

我が家の問題点について。

購入当時より、二階の一部屋が傾いた状態です。
入居の際のリフォームでは、一部の増改築と耐震補強と内部リフォーム(壁紙の張替、襖、畳の張替、床板張替、キッチン交換)を行いました。
しかし、経年劣化は避けられず、トタン屋根が壊れ、大暴風雨の際にたまに雨漏りを起こしています。雨樋は割れ落ちて、木製の雨戸は朽ち、二階の軒下には腐食による大きな穴まで開いてしまいました。また、洗面所の天井などにカビが生えてきています。壁が薄く遮音性がないため外部の音も内部の音もとてもよく聞こえます。断熱材が入っていないため、冬は大変寒く、夏は二階が暑く、時々ねずみらしき小動物が家の内側を走り回る始末です。

という状態なので、まずは壊れた屋根の改修と、耐震補強、および断熱材を入れることを希望しております。
更に、二階の部屋の傾きの調整、コンセントの増設、二階のベランダ(アルミ製の物を外付け)と、二階ベランダへの出入り口である窓が小さいため掃き出し窓に変更、洗面台の交換、浴室のリフォームなども可能な限り行いたいです。

予算が厳しいので、内部のリフォームも収納を作る程度の最小限に抑え、キッチンセットなど使えるものはそのまま使い、間取りも現状維持の予定です。外部も、屋根とベランダ部分以外は、現状維持の予定でおります。

『これから数十年住み続けるための改修』という目的で、限りある予算の中で優先順位をつけて検討していきたいと思っておりますのでどうぞよろしくお願い申し上げます。

 

それと質問があります。

給排水管のことなのですが、かれこれ50年近くになる建物なので、給排水管が大丈夫なのかどうかが気になります。(水道水に錆が混じることはないですが、排水管は詰まり気味で、近く洗浄予定です。)

リフォームの時期については、軒下の腐食が進んでおり、屋根の修理もあるため、できれば年内に、それが無理なら来年半ばまでに完成できたらありがたいです。コストダウンのためのご提案も頂けたら大変ありがたいです。

・・・・・・・・・・・・・・・・・・・・・・・・・・・・・・・・・・・・・・

 

こちらの内容でご相談をいただきました。

弊社の方で返信させていただいた内容も掲載いたします。

↓↓↓↓↓↓↓↓↓

購入当時より、二階の一部屋が傾いた状態。

 →建物の傾きを補正する際、ジャッキアップ等での補正も方法としては考えられますが外壁を落とさない状態ですと荷重がかかり過ぎることなどもあり別の壁にクラックが入るなどの問題もございますので傾きの度合い、傾きの原因を調査し、選択肢の一つとして検討させていただければと思います。

 

入居の際のリフォームでは、一部の増改築と耐震補強と内部リフォーム(壁紙の張替、襖、畳の張替、床板張替、キッチン交換)を行いました。しかし、経年劣化は避けられず、トタン屋根が壊れ、大暴風雨の際にたまに雨漏りを起こしています。雨樋は割れ落ちて、木製の雨戸は朽ち、二階の軒下には腐食による大きな穴まで開いてしまいました。

 →天井からの雨漏れのみであれば、屋根材を剥がし、下地である野地板を張り直すことで、今後の不安は無くなるかと思います。しかし、厄介なのがサッシまわりから雨水が入りこんでいる場合になります。この場合、サッシまわりの内壁を落とし下地の防水と外側からのシール打ちなどの処理が必要かもしれません。

 

今回の工事で外壁より断熱工事をされる場合になりますが、外壁リノベーションによる外周部の外壁を解体するイメージになるかと思いますので、そこで4方からの構造用合板を外部全面張りにする耐震補強と雨水侵入の補修という形が最も効率的と予測します。

また、洗面所の天井などにカビが生えてきています。壁が薄く遮音性がないため外部の音も内部の音もとてもよく聞こえます。断熱材が入っていないため、冬は大変寒く、夏は二階が暑く、時々ねずみらしき小動物が家の内側を走り回る始末です。

 →カビにつきましては屋根や外壁もしくはサッシまわりから入り込んだ雨水が湿気を呼び内部結露をおこしている可能性もござます。こちらも現場をみて検討したいと思います。断熱もどのような解体方法をとるかによって工事の方法が変わってまいりますので合わせて検討いたします。ネズミの侵入は、外壁に空いた穴からの侵入ではないでしょうか? 

 

という状態なので、まずは壊れた屋根の改修と、耐震補強、および断熱材を入れることを希望しております。更に、二階の部屋の傾きの調整、コンセントの増設、二階のベランダ(アルミ製の物を外付け)と、二階ベランダへの出入り口である窓が小さいため掃き出し窓に変更、洗面台の交換、浴室のリフォームなども可能な限り行いたいです。

 →屋根の改修・耐震補強・断熱工事を軸に2階部の傾き(1階部の傾きはないですか?)ベランダ設置及びベランダへの出入り口サッシを掃き出しへ変更(既存のベランダとの段差があるということは和室という認識でよろしいですね)洗面台の交換・浴室リフォーム(在来→システムバス)等も現地を見てご要望等をお聞かせください。

 

予算が厳しいので、内部のリフォームも収納を作る程度の最小限に抑え、キッチンセットなど使えるものはそのまま使い、間取りも現状維持の予定です。外部も、屋根とベランダ部分以外は、現状維持の予定でおります。

 →今回の改修でございますが、今後のお住まいを長持ちさせるための補強や補修的な要素が強いと考えておりますが、ご予算内で最大限のご提案をさせて頂きたく存じます。

 

それと質問があります。給排水管のことなのですが、かれこれ50年近くになる建物なので、給排水管が大丈夫なのかどうかが気になります。(水道水に錆が混じることはないですが、排水管は詰まり気味で、近く洗浄予定です。)

 → 今回の優先順位から浴室と洗面は工事予定とのことで、給排水をみることになりますが、キッチン・トイレとどのような給排水の配管経路になっているかにもよりますが、宅内での対象の経路の床や壁等を剥がして給排水を一新することも可能でございます。こちらにつきましても現地で拝見させていただければと思います。

 

リフォームの時期については、軒下の腐食が進んでおり、屋根の修理もあるため、できれば年内に、それが無理なら来年半ばまでに完成できたらありがたいです。コストダウンのためのご提案も頂けたら大変ありがたいです。

 →今回の工事は、外壁からアプローチするのか、または内部からアプローチするのかによって工事期間、工事金額も変わってくるかと考えます。ご相談に乗れる最大限の提案をさせて頂きたいと考えております。 

 

 

上記が返信させていただいた文章になります。その後、現地を拝見させていただき、外壁リノベーションのご依頼いただいた現場になります。

既存の外観
小金井市N様邸_施工前
既存の外観
小金井市N様邸_施工前

破風や軒裏が朽ちているのがわかります。

1-2 提案

N様に現状の建物、住まいの問題点をお聞かせいただき、建物の調査をさせていただき、こちらで最も気になっていた傾きは、2階の屋根置き式ベランダにつながってる和室であることがわかりました。ベランダの下にあたる一階の和室部分には傾きが見られなかったため、一階部部の構造に原因があることが推測できました。一階のベランダが屋根置き式のためここからの漏水が考えにくいことと、一階部に雨漏りの形跡がないため、もともとも構造、もしくは入居前のリフォームの際にどのような工事をされたのがをお聞きしました。すると、玄関の位置を以前の入居者が大手リフォーム会社で変えたことがわかりました。玄関の現在の位置は、間取り変更されたあとに新設された位置になっていることから、ここの構造になんらかの問題があるはずとN様にはお話させていただき、一階のベランダを背負っている和室部部は、内部を解体させ傾きを補正させていただくご提案をさせていただきました。

 

また、メインのご要望であった耐震補強と断熱につきましては、お客様のご要望として、セルロースファイバーがございました。確かにセルロースファイバーであれば、断熱性能に加え、吸音効果も期待できますので、隣家への音を気にされていたN様に取って一石二鳥の素材となります。こちらもお勧めしたい断熱材でした。しかしセルロースを採用する場合、リフォームであれば、最低でも外部に接する外周部の室内壁をすべて剥がし充填が必要になります。外壁の傷みがあまりないような建物であれば採用を推薦したかったのですが、外部の傷みが激しかったため、弊社では外壁を剥がし、柱間に断熱材を入れ、外壁面を構造用合板で全面張りし、その上に、断熱材入りの金属サイディングをはる外壁リノベーションをお勧めいたしました。もちろん、内外部を解体する完全なスケルトンリフォームであれば、セルロースファイバーも可能です。しかしそうなってきますとどうやってもご予算を大幅に超えてしまう事もお伝えし、外壁より断熱、耐震補強をはかる方法で工事を進めさせていただくことになりました。

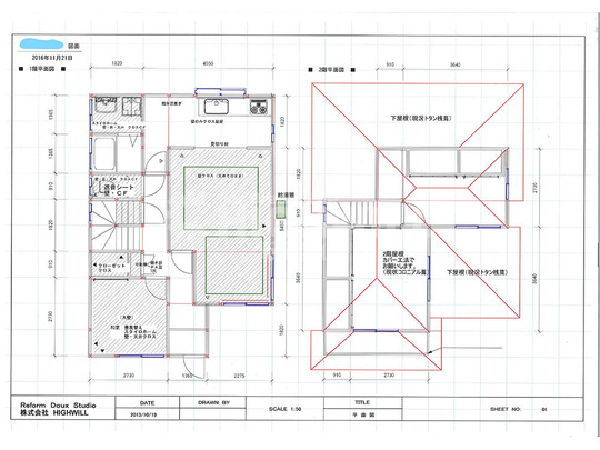
N様 平面図
小金井市N様邸_新規図面

既存と間取りが変わることはありません。2階のベランダの下に当たる一階和室部分は解体。床暖房もご希望されましたのでリビング部分にガス式の床暖房の敷設をはかります。

2 外壁リノベーションの着工

2-1 外壁リノベーションの外壁解体
小金井市N様邸_解体

外壁リノベーションでは既存の外壁を手壊しで解体していきます。かなり手間のかかる工事になりますが、機械で外壁だけを剥離することはできませんので、時間をかけて外壁解体をしていきます。

小金井市N様邸_解体

軒裏はすでに穴が開いている状態でした。ここも剥がしていきます。

小金井市N様邸_解体

破風も腐食がすすんでおります。ここもすべて解体していきます。

小金井市N様邸_解体

モルタルを剥がしていくと、ザラ板が出てきます。今回の外壁リノベーションでは、柱間に外部から断熱材を入れ、外周部全面を構造用合板で補強しますのでこちらも剥がしていきます。

小金井市N様邸_解体

建物側面は、雨が吹き込みにくいこともあり、痛みはこちらの面はヒドイ状態ではありませんでした。

小金井市N様邸_解体

建物裏側もザラ板まで剥がしてきます。

 

小金井市N様邸_解体

外部と同時に室内の解体も進めていきます。こちらのN様宅の最も気になっていた傾きの原因を知るためには必須の工事でありました。一階の和室部の床と天井を解体していきます。まずは畳を撤去し、床下地まで解体していきます。

小金井市N様邸_解体
小金井市N様邸_解体
小金井市N様邸_解体

最も気になっていた天井を解体しました。

小金井市N様邸_解体

やはり、予想通りでした。2階を受ける構造体に問題がありました。和室中央の柱が2階の床を請けていますが垂木ではとても持ちません、、

小金井市N様邸_解体

まさに2階が外に落ちている原因となっていることがわかる写真となります。2階和室のベランダ側で受けているかに見える梁が見えます。

小金井市N様邸_解体

この矢印の部分の梁が2階の和室を支えるのに、最も必要な構造体になります。

小金井市N様邸_解体

近づいてみてみると梁は両側で柱で受けをすることで階上の荷重に対抗する構造体になります。垂木で請けていますが、これでは無意味です。

小金井市N様邸_解体

最も深刻であったのが、写真奥へ伸びている梁ですが本来どこかで柱が入っているのが普通になります。がN様の建物はこの梁が途中で切れてしまっていました。これではこの梁はまったく効果がないものとなってしまっています。かなり危険な状態です。

小金井市N様邸_解体

前のオーナーが以前玄関の位置を大手リフォーム会社で変えたとお聞きしていましたが、こちら柱を抜き、補強をいれていないことが原因であることがわかります。

N様も現場にお呼びしてこの状態をみていただきました。なぜ柱をいれなかったのか?

購入前に入居者が大手リフォームで間取り変更をした際に、写真の壁の裏手に玄関を持ってきたようで、本来あった柱を抜いてしまったことからこのような構造になっていることがわかりました。このような構造になってしまうと、一時的に間取りは作れても、2階を支える為に必要な4本の柱が3本で立っているようなもので、実際二階も柱がない方へ傾いていました。この構造をみて、N様へ2階へ上がっていただきましたが、浮いている状態の柱がない角へは怖くて行けないとおっしゃっていました。「いままでこの状態だったなんて本当に怖かった」と。大手だから安心というのは妄想です。大手が職人を雇用しているわけではなく、結局は下請けや孫請けが工事をしているのが現実だからです。

2-2 補強

 

小金井市N様邸_補強

まず10トン用のジャッキを使用しこの梁を押し上げ、傾きを補正していきます。そこへあらたに1階の和室内に新たに柱を立て、2階の梁を支えるよう補強させていただきました。

小金井市N様邸_補強

もともと真壁の和室となっておりましたが、柱ピッチが等間隔にはならないため、柱が見える真壁の仕様ではなく、大壁で工事をさせていただくことになりました。

2-3 木工事
2-4 耐震工事
2-5 断熱工事

N様のお住まいには断熱材が一切入っていない状態でした。「冬が寒くて仕方ない。」とおっしゃっておりました。強制排気型の石油暖房がリビングには設置されている状態でした。当初、セルロースファイバーでの断熱を希望されておりましたが、外部からの充填ができないことから、スタイロでの断熱を提案させていただきました。

小金井市N様邸_断熱工事

外周部すべての柱間にスタイロを張りこみました。

小金井市N様邸_断熱工事

隙間のないようしっかりと張り込んでいきます。

小金井市N様邸_断熱工事
小金井市N様邸_断熱工事
2-6 外壁リノベーションの外壁工事

〜外部構造用合板張り〜

N様の建物はモルタル塗装仕様の建物です。今回のリフォームで大規模な工事は最後にしたいと当初のお話でご要望がございましたので、内部からの解体でセルロースファイバーを使用し、外部は塗装という選択肢もありましたが、耐震上の不安と外部が塗装で長期間もつのかという不安がありました。そのため、費用は内部解体よりも上がってしまいますが、長期で建物を考えた際、安心してお住まいいただけるのは外部解体からのアプロ―チであるというこちらの考えに同意していただき今回の工事となっております。

断熱材を張り終えた後は、外周部全面を構造用合板で張っていきます。壁倍率2.5倍取れることからも、以前の状態に比べ、剛性が高まります。

小金井市N様邸_外壁工事
小金井市N様邸_外壁工事

サッシもすべて入れ替えております。

小金井市N様邸_外壁工事

2階部にも張り込んでいきます。サッシはすべて新規で新設となりました。断熱をさらに上げたいとのご要望からリビングと寝室はインナーサッシも入れ2重窓となっています。

小金井市N様邸_外壁工事

残すは正面の一部のみです。構造用合板を張り終わるとすぐに防水シートは張らなければなりませんので、ピッチを上げていきます。

小金井市N様邸_外壁工事

〜屋根工事〜様の建物は正面に下屋がありますので、こちらの屋根も解体し、新たに構造用合板で下地を張っています。

小金井市N様邸_外壁工事
小金井市N様邸_外壁工事

下地を張り終えたら、すぐに屋根ルーフィングをはり工事期間中の雨に備えます。

小金井市N様邸_外壁工事

屋根ルーフィングは屋根材の下に張る防水になりますので、後々の雨漏りがないよう丁寧に張り込んでいきます。

小金井市N様邸_外壁工事

下屋が終わったらすぐに本体の大屋根の方へ工事は移行していきます。

小金井市N様邸_外壁工事

屋根は状態をみてカバー工法をご提案しました。既存の屋根材の上に防水シートを張っていきます。

二階は横噴き、一階の下屋は縦噴きによるガルテクト葺きです。
アイジー工業スーパーガルテクトを採用しました。

〜内部断熱工事〜

外壁を解体し、外部から柱間に断熱材を充填したあとは、居室で解体した天井、床にも断熱材が入っていませんでしたので、天井へはグラスウールを充填、床へは、スタイロフォームを入れました。

小金井市N様邸_内部断熱

傾きを調査するために解体した1階和室の天井へグラスウールを充填

小金井市N様邸_内部断熱

床の根太間にはスタイロフォームを設置

〜外部透湿防水シート張り〜

構造用合板を外周面に張り終えた後は、間髪いれずに、透湿防水シートを全面に張っていきます。壁内の湿気は外へ排出しつつ外部からの水は通さないシートになりますので、このあとサイディングの下地に通気胴縁を打ち付け空気層を作ることで壁内結露を防ぐ意味もあります。

小金井市N様邸_防水シート

サッシまわりは最も水が侵入しやすい弱点となる箇所のためしっかりと処理をします。

小金井市N様邸_防水シート

透湿防水シートは横張りをしていき、10センチ以上重ねて張り込んでいきます。

小金井市N様邸_防水シート
小金井市N様邸_防水シート

全面の防湿透湿シートが張り終わりました。

2-7 内装工事 

〜内部造作工事〜

外部が進行している間に内部でも造作工事を進めていきます。

小金井市N様邸_内装工事

2階の傾いていた和室を押し入れはクロゼットへ変更し、床はそのまま畳をご希望されました。

小金井市N様邸_内装工事

脱衣所も給排水もやり直しあとは化粧台を設置するのみとなっています。

〜外壁リノベーション:サイディング工事〜

外部ではサイディング張りが進んでいきます。

小金井市N様邸_内装工事

色もかなり迷われましたが、ケイミューのはる一番シリーズより選定ただきました。

小金井市N様邸_内装工事

かなり全体のイメージがわかるようになってきました。ベランダも屋根のせ式ではなく木軸でベランダをあらたに作り一体化いたしました。。

ご要望にありましたベランダのテラス屋根も設置

3 外壁リノベーション竣工

3-1 外壁 Before → After
小金井市N様邸_施工前

外壁リノベーション前

いよいよお引渡しです。足場も外れ、外観がはっきりわかるようになりました。玄関はリフォームされておりましたので、そのままその他のサッシはすべて新たに入れ替えております。ベランダは屋根置き式から躯体一体型へ変更いたしました。

小金井市N様邸_竣工
小金井市N様邸_竣工

既存の状態がかなり老朽化していたこともあり、外壁リノベーション後は見違えるようになりました。もちろん構造からやり直しておりますので、リフレッシュ目的での外壁工事ではありません。サイディングに断熱材が付いていますので、実際は断熱材は2重となっています。

小金井市N様邸_竣工

建物裏手
お客様も感激してくださり、こちらも喜びの瞬間となります。

3-2 リビング
小金井市N様邸_竣工

リビング室内の建具や天井はそのままですが、壁紙の貼り換えと床暖房設置のため床の張り替えをしています。

3-3 キッチン
小金井市N様邸_竣工

キッチンも15年以上前のキッチンをそのまま残しております。クリナップ社のSSでした。

3-4 洗面化粧台
小金井市N様邸_竣工

老朽化したための取り換えということで、洗面化粧台は普及品でコストを抑える提案を致しました。

3-5 トイレ

トイレはパナソニックのアラウーノVをご提案させていただきました。

3-6 和室
小金井市N様邸_竣工

2階の和室には畳も新調され、サッシもインナーサッシが入り、これで冬も暖かく
お住まいいただけると思います。

小金井市N様邸_竣工
3-7 インナーサッシ
小金井市N様邸_竣工

滞在時間の長い寝室とリビングはインナーサッシを設置し2重窓としました。

今回のN様のリフォームでは、以前大手リフォーム会社で工事された改築が原因となって2階部の傾きが起きていました。どのようなことが理由で、あのような納めになってしまったのだろうかと考えてしまいますが、日々の解体後の現場をみて、本当にこのような工事が多いことには驚かされます。リフォームは大手に頼んだから技術が安心ということはありません。大手は自社で施工はしませんので、下請け会社、孫請けが工事をします。弊社も大手の下請施工をしていた時期がありますので、その体質、体制は理解しています。

管理者がどのような指示をしていたのか、木造を熟知していたのだろうかというケースがあります。担当者へ連絡をしてもその担当者がすでに退社、転職している入れ替わりの激しい業界であることも問題でしょう。

木造の構造を触る様な間取り変更などの工事をする際は、木構造を熟知した会社へ相談をしてほしいと思います。

 
ハイウィルスタッフ

担当者より ハイウィル株式会社四代目代表 稲葉高志

当初のご要望がセルロースファイバー断熱、外壁は塗装でした。しかし、弊社では外壁剥がす外壁リノベーションを提案しました。それは建物を長期で維持しなおかつ性能を上げるためには現況の状態では塗装では問題解決にならないと考えたからでした。当初この提案をさせて頂いた際、セルロースファイバーを充填できないのは残念とおっしゃっておられましたが、セルロースファイバーの性能を普及断熱材のスタイロフォームとサッシの性能をあげることでカバーしつつ外壁からの耐震補強を目指しました。結果として大変ご満足頂けることになり大変うれしく思います。外壁モルタル壁の剥離解体は手間のかかる、どちらかといえばリフォームでは珍しい工事に入ります。しかし訪問販売の塗装会社ではこのような提案をせず塗装をしてしまいます。一瞬の見た目はキレイになりますが耐震性能は上がらず、断熱性能も上がりません。お施主様が大掛かりな工事は最後にしたいとご要望されておられましたので、長期でみて最も有利な提案をさせて頂きました。

この事例と似たテーマカテゴリーを見る

全国のフルリフォーム・リノベーション『ピックアップ事例』※プロの詳細解説付きレポート

HEAT20-G2/耐震等級3
新耐震基準の性能向上リノベーション
築30年ハウスメーカー軽量鉄骨
断熱改修&リノベーション
 
中古住宅を新築以上の耐震性能と断熱性能へ!
耐震等級3フルリフォーム
地下付き木造2階建て
自然素材をつかった性能向上リノベーション&フルリフォーム

東京都文京区 K様邸

長屋を切り離して1つの構造体へフルリフォーム&リノベーション
隣家との距離がない!
部屋から外壁を張り替えるフルリノベーション
中古住宅を耐震等級3へ!
中古住宅リノベーション
 
基礎がない??
築60年の古屋をジャッキアップで基礎新設フルリノベーション

東京都渋谷区 O様邸

戸建てリノベーション・リフォームに関するお問合せはこちら

増改築.comの一戸建てリフォーム専用ホームページに
お越しいただき、誠に有難うございます。
 
増改築.comメンバーは技術集団となり、
他社のような営業マンがおりません。
技術者が直接ご相談にのり問題解決を行います。
 
従いまして、
お客様の方である程度のご要望が整理されました段階、
お悩みが工事内容のどのようなところにあるのか?
ご予算がどの程度絞る必要があるのか?
など明確になった段階でのご相談をお願いしております。
お問合せ・ご相談はお電話・メールにて受け付けております。
メールの場合は以下のフォームに必要事項をご記入の上、
「送信する」ボタンをクリックをお願いします。

代表稲葉高志

戸建てリノベーションの専属スタッフが担当致します。
一戸建て家のリフォームに関することを
お気軽にお問合せください

よくあるご質問
  • 他社に要望を伝えたところできないといわれたのですが・・・
  • 他社で予算オーバーとなってしまい要望が叶わないのですが・・・
  • サービスについて詳しく聞きたいのですが・・・

どのようなお悩みのご相談でも結構です。

あなたの大切なお住まいに関するご相談をお待ちしております。

営業マンはおりませんので、しつこい営業等も一切ございません。

設計会社(建築家様)・同業の建築会社様のご相談につきましては、プランと共にご指定のIw値及びUa値等の性能値の目安もお願い申し上げます。

2026年の大型補助金が確定したことで現在大変込み合っております。

耐震性能と断熱性能を向上させるフルリフォームには6か月~7か月の工期がかかります。

補助金獲得には年内に報告を挙げる必要があることから、お早目にご相談をお願いいたします。(6月着工までが目安

ご提案までに大変お時間がかかっております。ご了承のほどお願い申し上げます。

(5月までの着工枠が埋まりました)・・・2026/03/01更新

※すでにプランをお持ちのお施主様・設計資料をお持ちのお施主様は内容をフォームで送信後、フォーム下のメールアドレスに資料をお送りください。対応がスムーズです。

必須

(例:増改築太郎)

必須

(例:contact@high-will.co.jp)

(例:03-5615-2826)

必須

(例:東京都荒川区西日暮里2-35-1)

(例:築40年)

(例:25坪・100㎡など)

(例:2000万程度など)

  • ※再建築不可のリフォームでは金融機関が限られます。事前審査をお勧めいたします。

    (例:2024年3月くらいに完成希望など)

    必須

    できるだけ具体的にお知らせくださいませ。既存設計資料、リフォーム後のイメージ図等をお持ちであれば下記のメールアドレスより添付をお願いします。

    ※次の画面がでるまで、4~5秒かかりますので、
    続けて2回押さないようにお願いいたします。

    ※次の画面が出るまで、4〜5秒かかりますので、
    続けて2回押さないようにお願いいたします。

    図面や写真等を送信いただく場合、また入力がうまくいかない場合は、上記内容をご確認のうえ、下記メールアドレスまでご連絡ください。

    お電話でのお問合せはこちら

    0120-246-991

    営業時間:10:00~17:00(土日祝日を除く)

    ★YouTube「増改築.comチャンネル」チャンネル登録して新動画解説をいち早くGET!!★
    「増改築.comリノベ診断」であなたに一番ふさわしいフルリフォームを診断!!(動画解説付き)
    ★Facebookページにいいね!を押して最新コンテンツ情報をいち早くGET!!★
    パソコン|モバイル
    ページトップに戻る