戸建てフルリフォームなら「増改築.com®」TOP施工事例都道府県で探す東京都江東区> 二世帯住宅リフォーム(完全分離型)施工事例

 
東京都江東区の築60年の実家に同居

二世帯住宅リフォーム(完全分離型)施工事例 構造評点1.5以上

江東区K様邸 竣工外観

 

東京メトロ東西線と都営大江戸線の2路線が使える「門前仲町」駅から数分の立地、江戸情緒を残す商店街の裏手に佇む、東京都江東区門前仲町のK様の施工事例。K様からのご依頼は、K様の先代が60年前に建てられた古家をリノベーションして娘様と同居するご計画があり、弊社にご相談があった際にすでに他社様からの大まかなプランが出来ておられる状態でした。他社での問題点をお聞きすると、基礎の補強までをお願いしたところ、基礎は補修で十分だと言われた事、住設機器は好きな商品をこだわりたいが、指定の商品以外は一気に金額が高くなってしまう事。外壁までを剥がしてフルリノベーションを希望したが、外壁を剥がす工事はできないと言われた事が問題となり、『増改築.com®』へご相談を頂いたお施主様です。

建物概要
名前 K様
場所 東京都江東区門前仲町
築年数

築60年

構造種別 木造一戸建て
家族構成 大人3人
対象面積 35.62坪
リフォーム部位 基礎補強/間取変更/断熱サッシ取替/外壁リノベーション/セルロースファイバー/耐震等級3/外構
工期 6ヶ月
価格

4800万(税別)※外構込

お客様のご要望

今回の東京都江東区K様二世帯住宅リフォームでのご要望は以下の6点です。

  • 基礎は補修ではなく基礎補強をして構造評点(Iw値)1.5を超える耐震改修
  • 外壁までを剥がすフルリノベーション工事
  • 基礎は補修ではなく補強をして欲しい
  • 断熱材はセルロースファイバーを採用したい
  • 各住宅設備機器や建材は好きなメーカー数社をショールームで選定したい。
  • 2世帯住宅の為、防音にも気を遣いたい
  • 外構もお願いしたい

Iw値とは?

1981年以前の旧耐震基準で建てられた木造家屋では、2000年の品確法で定められた『耐震等級』という耐震指標保有水平力、耐震等級によって耐震力を測れないため、Iw値という指標で耐震力を測ります。「Iw値=家の保有耐力/耐震のために必要な耐力」によって数値化されます。1.0をクリアすることで震度6強の地震に対して倒壊、または崩壊する可能性が低いとされており、国の耐震改修の最低基準値となっている指標であります。

プランナー 北畠より 
~二世帯住宅リフォームプランニングのポイント~

K様邸は当初メールでのやり取りのみでリノベーション計画は進んでおりました。何回かメールのみでプラン等のやり取りが続き、K様よりお電話を頂いて現場調査へ伺わせて頂きましたらその日にご契約したいとおっしゃって頂きました。

今まで1世帯で暮らしていたご実家を2世帯(完全分離型)でリフォームのご要望でした。

1階に親世帯を配置し、LDKは対面キッチンにし小さくても和室をLDKの中に納めて欲しい。とのご要望をいただきました。

将来の事を考えて、1階はバリアフリーで車椅子や介護でも利用出来る水回りにしたい。2階の子世帯は、個室として2部屋取りLDKは間仕切り戸を付けて部屋を分けられる様にしたい。家の構造ではお母さまが気にされていたのは、床下の湿気とベランダと屋根を重くない材質の物にして欲しいとご要望を頂きました。

 
 
 

江東区K様邸 戸建てリノベーション施工事例テーマカテゴリー

  • 耐震等級3相当(上部構造評点1.5以上)リフォーム(性能向上リノベーション)
  • 二世帯住宅リフォーム
  • セルロースファイバー仕様
  • 内外部スケルトンリフォーム

打ち合わせから着工、完成までの詳細施工事例紹介

1 二世帯住宅リフォーム着工前

1-1 現場調査・打合せ
江東区 戸建てリノベーション 既存外観

既存外観

江東区 戸建てフルリフォーム 既存外観

既存外観

外構も老朽化しているので外構工事も踏まえ、外壁・内壁をすべて解体して大幅な間取り変更をされたいとご要望があり、早速現地にお伺いいたしました。


江東区 戸建てリノベーション 既存玄関

既存玄関フロア

江東区戸建てフルリノベーション 既存廊下

1階既存廊下

江東区K様の建物は2面が道路に面しており、スケルトンリフォームが前提であった今回のリフォームでは玄関の位置変更も可能ではありましたが、日当たりのよい南面にLDKを配置する計画をご提案させていただき、現在との位置は変えずに計画をさせていただきました。


既存和室

江東区K様の建物の既存和室は、物置の状態となっており、数十年もの間、人が入らないような状態とのことで、結露によるカビがひどく、解体後の躯体の影響が心配でした。

江東区 戸建てリノベーション 既存居間

既存LDK

江東区 戸建てリノベーション既存和室

既存1階和室
 



築60年2階部

二階は一階の和室と違い、人が住んでいたこともあり、一階ほどの痛みはありませんでした。若干の傾きを体感レベルで把握できたことから、解体後にはジャッキアップによる補正、もしくは屋起こしが必要な旨をお伝えしました。

2階和室

2階既存和室です。


1-2 東京都江東区K様邸 二世帯住宅リフォームプラン

  間取りの変更プラン  

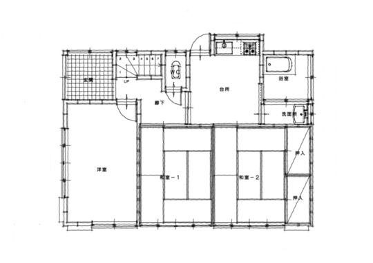
文京区 戸建フルリフォーム

1階 二世帯住宅リフォーム前の既存平面図

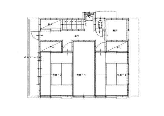
文京区 戸建フルリフォーム

2階 二世帯住宅リフォーム前の既存平面図

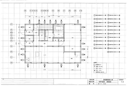
江東区 フルリフォーム

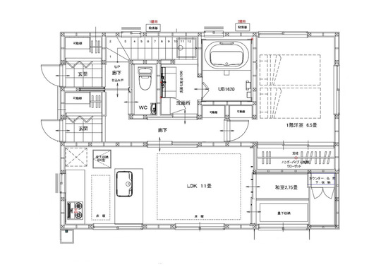
1階 二世帯住宅リフォームプラン平面図

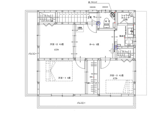
江東区 戸建フルリフォーム

2階 二世帯住宅リフォームプラン平面図

今までは1世帯で生活をしていたK様邸。リフォームを機に1階を親世帯、2階を子世帯の完全分離型の二世帯住宅リフォームです。1階の方が床面積が広いこともあり、1階の一番日当たりの良い南面に家族が集まれる大きめなLDKを配置しました。当初、対面型キッチンをご要望だったのですが対面型キッチンを入れてしまうと動線を考えるととても小さいサイズになってしまうので、Ⅱ型キッチンを提案させて頂きました。

ユニットバスも子世帯も使用できる様に、1620サイズの大きなサイズを入れております。2階の子世帯はLIXILさんの新商品のワンランク上のシャワーユニットNSを採用しました。

1階は基本家族が集まれる空間、2階はコンパクトでも高級感を感じる水周り仕様になっています。

2 二世帯住宅リフォーム着工

2-1 解体・撤去

解体は手壊し作業になります。K様の耐震補強計画では、上部構造評点(Iw値)を国の最低基準の1.5倍以上をご要望されておられました。内部だけでなく外壁までを解体する躯体残しのスケルトンリフォームとなります。1.5倍以上の数値を計画する場合は、基礎補強が絶対条件となり、かつ内部からの補強だけにとどまらず、外部からの補強も必要となります。解体後は、非破壊段階での構造計算が、そのまま計画として成り立つのか、既存の状態と当てはめ入念に躯体チェックをしていきます

躯体の状態まで内壁及び外壁を剥離していきます。

主要構造部以外の木部も極力この段階で解体を進めていきます。

この段階では間取り変更による柱を抜く箇所等の解体は進めず、あくまでも既存の構造体を躯体状態まですることを目的として解体を進めていきます。

文京区 戸建フルリフォーム

K様邸は二世帯住宅リフォームとなることから、大幅に間取りが変更されます。

文京区 戸建フルリフォーム

完全分離型の2世帯住宅リフォームは、間取りが大きく変わるケースが多くK様も例外ではありません。本来、間取りが変更部の柱を抜きたいところですが、同時に補強も必要となることから、木工事の際に解体を進めます。

文京区 戸建フルリフォーム

解体時に既存の釘等までを処理することが次工程の木工事の際に工事が進めやすくなりますので、大工が作業しやすい環境を作るためにこのような処理も進めていきます。

文京区 戸建フルリフォーム

1階部の解体体が終了しました。

文京区 戸建フルリフォーム

建物の調査を進め、解体前に行った構造計算等が、現状の構造躯体でそのまま補強が可能か否かの判断をしていきます。第三者を入れての検査もおこなっち来ます。

文京区 戸建フルリフォーム

2階部の解体が完了しました。

大事な構造部のすべてが目視可能となるスケルトンリフォーム

内壁だけでなく外壁までを解体するフルスケルトンリフォームの最大のメリットはこのように重要な主要構造部のすべての状態が目視でわかることになります。フルリノベーション後は、これらの構造上の弱点をすべて修正し補強することで新築と同水準、もくしくはそれ以上の建物性能をもつ構造躯体へ甦らせることが可能となります。

2-2 基礎補強工事
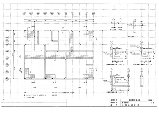
基礎伏せ図 戸建てスケルトンリフォーム

基礎伏図

構造上のチェックが終わると、K様の二世帯住宅リフォーム(完全分離型)では、基礎補強工事へと移行していきます。

他社の提案では基礎は補修をすれば大丈夫との提案を頂いていたようですが、K様の建物は、築60年を経過した建物であり旧耐震基準の建物であることから基礎に鉄筋が入っていない「無筋基礎」になることから、弊社では抱き合わせ基礎(添え基礎)補強での補強を提案させていただきました。

文京区一戸建スケルトンリフォーム 基礎工事

既存の布基礎の高さをチェック

文京区一戸建スケルトンリフォーム 基礎工事

アンカーサイズM12にて既存無筋コンクリートへ打ち太さD13の鉄筋をピッチ200㎜にて千鳥上に配筋していきます。

文京区一戸建スケルトンリフォーム 基礎工事

既存基礎の内側に、補強計画に基づき、配筋をあと施工アンカーにて施工していきます。

文京区一戸建スケルトンリフォーム 基礎工事

柱を設置する箇所へは、抱き合わせ基礎の配筋時に耐震用金物と耐震金物を緊結させることでコンクリート打設後に、基礎、土台、柱を連結一体化させることで抜け防止をします。大事な工程となります。

文京区一戸建スケルトンリフォーム 基礎工事

新たに基礎が必要な個所へは鉄筋コンクリート基礎を新設します。

文京区一戸建スケルトンリフォーム 基礎工事

コンクリートが打設されました。

文京区一戸建スケルトンリフォーム 基礎工事

型枠を外していきます。

文京区一戸建スケルトンリフォーム 基礎工事

枠が外されました。抱き合わせ基礎補強が完成です。既存基礎に抱き合うように増し打ちされているのがわかります。

ポイント

K様邸では、当初はベタ基礎での補強をご要望でしたが、我々が提案したのは、抱き合わせ基礎補強でした。

その理由は、ベタ基礎は建物全体と同程度の荷重となりますので、建物の重さとのバランスもかかわってきます。足元だけ固めていても屋根を含めた建物とのバランスが悪いと大地震が起きた際にせん断力が働き、ホールダウン金物が抜けるような事態になるケースもあるからです。大手を含め多くのリフォーム会社が、基礎補強をしない現実がありますが、無筋基礎の状態の建物に基礎補強をしないのは、フルリフォームやリノベーションではありえないと弊社は考えております。基礎補強なしでいくら耐震といったところで、その計画は絵に描いた餅となるのです。

大規模な戸建てリノベーションをされる際には、木造を熟知し、実績が豊富な会社へ相談することをお勧めする理由でもあります。

ベタ基礎って?

布基礎が立ち上がりとフーチングで持たせる基礎に対して、ベタ基礎は、立上りだけでなく、底板一面も耐圧盤を設け、立ち上がりと底面が一体化された鉄筋コンクリートになっている基礎をいいます。

建物の荷重を底板全体の面で受け止めるため、ベタ基礎は不同沈下を起こさない。といわれますが、それは良好な地盤での話です。

基礎の下の地盤面の地耐力が均一でない場合は、不同沈下が起こる可能性が充分あるのです。

耐震の世界では、重い瓦屋根は外して、軽いものに変えましょうと言われておりますが、それ自体は間違っていませんが、この理屈でいくと。屋根の瓦を外して、基礎はベタ基礎にしても、地盤に与える荷重は、瓦屋根以上の荷重がベタ基礎の荷重により地盤面にかかることになります。

地盤が軟弱な場合、布基礎を採用した方が有利な場合も出てきます。

戸建てフルリフォームやリノベーションで、基礎補強をする際は、このような知識のある会社に相談することが必要です。

2-3 木工事
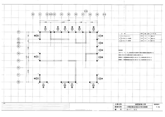
江東区 戸建てリフォーム 金物位置

1階 金物仕様及び柱位置

江東区 戸建てリノベーション 柱位置
2階 金物仕様及び柱位置
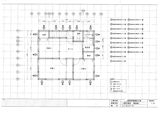
江東区 戸建てリノベーション1階補強図

1階 補強後平面図

江東区 戸建てリノベーション2階補強図
2階 補強後平面図

基礎補強工事が終わり大工工事へと移行します。構造躯体の強度を担保するためのメイン工事となります。この段階より間取り変更を想定した解体が始まります。いわゆる躯体の差し替えです。江東区K様邸の二世帯住宅リフォーム(完全分離型)では大幅な間取り変更が必要となり、既存の端を抜き梁を架けたり補強個所が多く、大工工事の段階でこれらの解体を進めていきます。

仮の筋交いで補強を入れながら、木工事をスタートしてきます。

二階にも補強を入れながら仮筋交いを入れ倒壊を防止します。

二階床は水平耐力を担保するために、剛床工法しました。
➡剛床の詳しい解説はこちら

下地が完了すると構造用合板24㎜を床前面に打ち込んでいきます。

既存土台へもビス止めホールダウンでの補強を入れ、抜け防止を図ります。

基礎と土台の抜け防止を徹底的に行います。

2階の剛床が完了しているのがわかります。指示通りに金物補強を入れていきます。

スケルトンになった1階部。ほとんどの構造材が新たに入れ直しとなりました。アンカーボルトを設置します。

既存土台へのホールダウン設置

補強が終わるとサッシ枠造作と外壁補強を行います。外周周りの主要構造体へ構造用合板を全面張りにし、在来工法+壁工法とします。

一階部のすべての継手、仕口への金物補強を行います。

外周面の構造用合板張りが終了。断熱サッシを設置していきます。K様のエリアは準防火地区になりますので防火タイプのサッシを採用しています。

2階部の多くの柱は抜かれ新たな構造体を組みなおしました。すべての継手と仕口に補強金物を配置します。

補強後はLDKの間仕切り壁を作っていきます。

2階は新設された構造体と既存の母屋組部との補強も入念に施工していきます。

外2階が子世帯の空間となることから階下への音も考慮し遮音シートを張っていきます。

2-4 断熱工事

東京都江東区のK様の戸建てリノベーションでの断熱材は、セルロースファイバーを採用。
グラスウール断熱と比較し、吸音効果と調湿効果を望める素材となり、施工後にその快適性は体感できる断熱材です。

K様の建物は階高が高く充填も大変でしたが、充填後には、中での作業音が外に漏れにくくなり、お施主様もビックリされておりました。

1階LDK部へのセルロースファイバー断熱充填(壁への充填)

一階天井へもセルロースファイバーを充填。

手で触ってもパンパンに膨らんでいるのがわかるほど充填していきます。

天井、壁の充填が完了しました。

二階天井は300㎜の充填を行い断熱層を設けました。

二階居室への充填

二階の天井、壁の充填が完了

外面に面する外周面が魔法瓶のように囲われるようにセルロースファイバーが充填されています。パンパンの状態です。

2-5 屋根工事

K様は屋根は既存の瓦葺きでしたので、既存の野地板に増し打ちをして新たな仕上げ材を葺いていきます。

野地板増し打ち

ルーフィング張り完了

GL鋼板張り仕上げ

完了

2-6 外壁工事

外壁面には、壁倍率2.5倍の構造用合板を全面に張っていきます。

躯体と一体化させたベランダ部へも構造用合板を張っていきます。

構造用合板全面張りが完了

透湿防水シートを構造用合板を張り終えた部分に全面張りしていきます。

今回採用される外壁サイディング材が横張りの商品となることから縦に通気胴縁を設置していきます。

通気胴縁の施工が完了しました。

水切りより下からサイディングを張り上げていきます。

2層に色分けをご希望されておりましたので見切り材を入れ張り分けを行ます。

張り分け部のサイディング御張り上げていきます。

ベランダフェンス部を残し完了に近づいて参りました。

サイディング工事が完了

ベランダフェンスの設置が完了しました。

2-7 内装仕上げ工事

構造部の構造補強が終わると、造作工事に入ります。

3 竣工

約6カ月の工事を経て、いよいよ竣工です。
K様邸の様子をご紹介します。


  =外観==  

江東区 戸建てリノベーション 外観竣工

外壁はサイディング仕上げ

江東区 戸建てフルリフォーム 外観竣工

外壁はサイディング仕上げ


  == 1F エントランス・玄関 ==  

江東区 戸建てリノベーション 玄関竣工

玄関は断熱ドアを使用。

江東区 戸建てフルリフォーム 玄関竣工

2世帯完全分離なので玄関スペースはコンパクトになってしまったので玄関ドアから採光を取り入れてます。


  == 1F LDK ==  

1階の親世帯のLDKは、普段子世帯も集まれる様に大きめにスペースをとりました。

キッチンをⅡ型にしてキッチンスペースを開放的にしています。奥に見えるのが間仕切戸を付けた和室スペースを作っています。

江東区 戸建てリノベーション LDK竣工
江東区 戸建てフルリフォーム LDK
江東区 まるごとリフォーム LDK
Before
江東区 戸建てリノベーション 既存台所

既存建物は昔ながらのブロックキッチンを使用し、北側の暗い場所にありましたた。リフォーム後は、1階親世帯をのLDKをメインとして使用するので一番日当たりの良い場所にオープンなキッチンを設置します。


  == 階段 ==  

江東区 戸建てリノベーション 新規階段

 子世帯の玄関から2階へ上がる階段

Before
江東区 戸建てリノベーション 竣工階段

 階段は踏面と蹴上と色を分けています。

江東区 戸建てフルリフォーム 新規階段

 階段勾配の下は脱衣室の洗濯機置き場になっています。

 


  == 1F 洋室 ==  

江東区 戸建てリノベーション 1階寝室

 1階親世帯寝室です。

江東区 戸建てフルリフォーム 竣工寝室

 1階親世帯 寝室の収納スペースです。

江東区 戸建てリノベーション 和室

 1階親世帯LDKの隣の和室スペースです。


  == 水まわり ==  

Before

江東区 戸建てリノベーション 既存キッチン

既存キッチン

江東区 戸建てリノベーション 既存浴室

既存浴室

江東区 戸建てリノベーション 既存洗面

既存洗面室

江東区 戸建てリノベーション 既存トイレ

既存トイレ

江東区 戸建てリノベーション Ⅱ型キッチン

 新規1階キッチンは LIXILリシェル Ⅱ型です。

江東区 戸建てフルリフォーム Ⅱ型キッチン

 1階新規キッチンはLIXILリシェルです。シンク側・コンロ側共に間口1800サイズです。

 1階ユニットバスはLIXILアライズです。

 1階ユニットバスアライズはZタイプです。

江東区 戸建てリノベーション 洗面化粧台竣工

 1階洗面化粧台はLIXILルミシスです。

江東区 戸建てリノベーション シャワーユニットNS

 2階洗面化粧台はLIXILエスタです。

江東区 戸建てフルリフォーム 洗面化粧台 竣工

 1階洗面化粧台LIXILルミシス 間口は900です。

江東区 戸建てフルリフォーム シャワーユニットNS

 2階シャワーユニットはLIXILシャワーユニットNS0812サイズです。

江東区 戸建てリノベーション トイレ

 トイレはLIXILサティスです。

江東区 戸建てリノベーション パウダールーム

 トイレ内の壁面にはエコカラットが貼られています。

江東区 戸建てまるごとリフォーム トイレ

 1階2階ともトイレはLIXILサティスです。


  == 2F 洋室 ==  

江東区 戸建てリノベーション 既存2階
Before
江東区 戸建てフルリフォーム 既存2階
江東区 戸建てリノベーション 竣工子世帯

二階子世帯LDK

江東区 戸建てフルリフォーム 竣工洋室

二階子世帯 洋室

江東区 戸建てリノベーション 竣工 子世帯洋室

二階子供世帯 洋室

江東区 戸建てフルリフォーム 竣工洋室

二階子世帯 洋室


  == 外構 ==  

築60年江東区K様のリノベーションでは、外構工事もお手伝いさせていただきました。


4 担当者より(ハイウィル株式会社 取締役専務 稲葉悟)

弊社にご相談があった際にすでに他社様から基礎の補修でなく基礎補強をして欲しいとのご要望がございました。完全分離タイプの二世帯住宅の為、大きく間取りが変わる中で構造評点(Iw値)1.5以上の設計はできないかとの具体的なスペックのご指定もございました。基礎補強することを前提でIw値1.5(国の耐震推奨基準は1.0)を超える計画を提出させていただきました。

また、江東区K様のエリアは準防火エリアとなりますので、使用するサッシや玄関ドアはすべて防火タイプとさせていただきました。建物が仕上がる中で、何度も仕様に関する相談を随時対応させていただきました。大変お喜びいただきまして施工冥利につきます。

K様、この度はご依頼をいただき、誠にありがとうございました。

全国のフルリフォーム・リノベーション『ピックアップ事例』※プロの詳細解説付きレポート

HEAT20-G2/耐震等級3
新耐震基準の性能向上リノベーション
築30年ハウスメーカー軽量鉄骨
断熱改修&リノベーション
 
中古住宅を新築以上の耐震性能と断熱性能へ!
耐震等級3フルリフォーム
地下付き木造2階建て
自然素材をつかった性能向上リノベーション&フルリフォーム

東京都文京区 K様邸

長屋を切り離して1つの構造体へフルリフォーム&リノベーション
隣家との距離がない!
部屋から外壁を張り替えるフルリノベーション
中古住宅を耐震等級3へ!
中古住宅リノベーション
 
基礎がない??
築60年の古屋をジャッキアップで基礎新設フルリノベーション

東京都渋谷区 O様邸

戸建てリノベーション・リフォームに関するお問合せはこちら

増改築.comの一戸建てリフォーム専用ホームページに
お越しいただき、誠に有難うございます。
 
増改築.comメンバーは技術集団となり、
他社のような営業マンがおりません。
技術者が直接ご相談にのり問題解決を行います。
 
従いまして、
お客様の方である程度のご要望が整理されました段階、
お悩みが工事内容のどのようなところにあるのか?
ご予算がどの程度絞る必要があるのか?
など明確になった段階でのご相談をお願いしております。
お問合せ・ご相談はお電話・メールにて受け付けております。
メールの場合は以下のフォームに必要事項をご記入の上、
「送信する」ボタンをクリックをお願いします。

代表稲葉高志

戸建てリノベーションの専属スタッフが担当致します。
一戸建て家のリフォームに関することを
お気軽にお問合せください

よくあるご質問
  • 他社に要望を伝えたところできないといわれたのですが・・・
  • 他社で予算オーバーとなってしまい要望が叶わないのですが・・・
  • サービスについて詳しく聞きたいのですが・・・

どのようなお悩みのご相談でも結構です。

あなたの大切なお住まいに関するご相談をお待ちしております。

営業マンはおりませんので、しつこい営業等も一切ございません。

設計会社(建築家様)・同業の建築会社様のご相談につきましては、プランと共にご指定のIw値及びUa値等の性能値の目安もお願い申し上げます。

2026年の大型補助金が確定したことで現在大変込み合っております。

耐震性能と断熱性能を向上させるフルリフォームには6か月~7か月の工期がかかります。

補助金獲得には年内に報告を挙げる必要があることから、お早目にご相談をお願いいたします。(6月着工までが目安

ご提案までに大変お時間がかかっております。ご了承のほどお願い申し上げます。

(5月までの着工枠が埋まりました)・・・2026/03/01更新

※すでにプランをお持ちのお施主様・設計資料をお持ちのお施主様は内容をフォームで送信後、フォーム下のメールアドレスに資料をお送りください。対応がスムーズです。

必須

(例:増改築太郎)

必須

(例:contact@high-will.co.jp)

(例:03-5615-2826)

必須

(例:東京都荒川区西日暮里2-35-1)

(例:築40年)

(例:25坪・100㎡など)

(例:2000万程度など)

  • ※再建築不可のリフォームでは金融機関が限られます。事前審査をお勧めいたします。

    (例:2024年3月くらいに完成希望など)

    必須

    できるだけ具体的にお知らせくださいませ。既存設計資料、リフォーム後のイメージ図等をお持ちであれば下記のメールアドレスより添付をお願いします。

    ※次の画面がでるまで、4~5秒かかりますので、
    続けて2回押さないようにお願いいたします。

    ※次の画面が出るまで、4〜5秒かかりますので、
    続けて2回押さないようにお願いいたします。

    図面や写真等を送信いただく場合、また入力がうまくいかない場合は、上記内容をご確認のうえ、下記メールアドレスまでご連絡ください。

    お電話でのお問合せはこちら

    0120-246-991

    営業時間:10:00~17:00(土日祝日を除く)

    ★YouTube「増改築.comチャンネル」チャンネル登録して新動画解説をいち早くGET!!★
    「増改築.comリノベ診断」であなたに一番ふさわしいフルリフォームを診断!!(動画解説付き)
    ★Facebookページにいいね!を押して最新コンテンツ情報をいち早くGET!!★
    パソコン|モバイル
    ページトップに戻る