戸建フルリフォームなら「増改築.com®」TOP > 施工事例 > 都道府県で探す > 東京都江東区 > 施工事例 江東区築65年住宅の減築リノベーション事例紹介

再建築不可でも新築以上の耐震性能と断熱性能に生まれ変わる!

江東区 築65年住宅の減築リノベーション事例紹介

東京都江東区 H様邸

 

密集地でのセットバックや減築の現状、江東区リノベーションの現状、H様の性能向上リノベーションの経緯

東京都江東区北砂は、都心からのアクセスが良好でありながら、昔ながらの下町の風情を残すエリアとして多くの人々に親しまれています。しかし、その魅力的な立地条件から、年々住宅が増加し、特に近年は住宅の密集度が高まってきました。このような密集地では、隣接する建物との距離や日照、通風などの問題が生じやすく、新しい建築基準に適合するためのセットバックや減築が一般的な課題として挙がっています。

H様邸も、この北砂の密集地に位置する築65年の歴史を持つ家で、時代とともに周囲の環境や法規制の変化により、セットバックが必要となる状況に直面していました。特に、都市部の古い家は、現行の法規制や建築基準に合わせるためのリノベーションが求められるケースが増えており、H様邸もその例外ではありませんでした。

H様は、妻の実家を継ぐ形でこの家に住むこととなり、スケルトンリフォームを検討。その中で、家の性能向上を最優先とし、耐震等級3の高い安全性を持つ家へのリノベーションを決意されました。このような背景から、H様邸のリノベーションは、ただのリフォームを超えた、新しい時代の住まいへの変革とも言えるプロジェクトとなりました。

建物概要
名前 H様
場所 東京都江東区
築年数 築65年
構造種別 木造一戸建て
家族構成 大人2人 子供2人
対象面積 25坪
リフォーム部位 ベタ基礎/間取り変更/断熱サッシ/耐震補強/太陽光発電/外構
工期 8ヶ月
価格 2500万

お客様のご要望

今回のリフォームで、H様からのご要望は以下の5点です。

  • 無垢材など自然素材を使用し温かい雰囲気にしたい
  • 地震が不安なので耐震補強はしっかりとやりたい
  • 断熱材にはこだわりたい。
  • ベタ基礎にしたい
  • 補助金があるなら活用したい

プランナー 北畠より ~プランニングのポイント~

プランニングの際、特に都市部や住宅密集地においては、法規制や隣接する建物との関係を考慮することが非常に重要です。

H様邸の場合、既存の玄関面を1階・2階共に455㎜(1尺5寸)セットバックすることとなりました。このセットバックは、周囲の環境や法規制に適合するためのものであり、新しい住まいのデザインや機能性を向上させるための重要なポイントとなります。セットバックにより、玄関前の空間が広がり、より開放的なエントランスを実現することができました。また、自然光が室内にたっぷりと取り込まれることとなり、明るく快適な生活空間を提供することができるようになりました。さらに、セットバックにより、建物全体のバランスやデザインが一新され、モダンで洗練された外観を持つ住まいとなりました。

このように、セットバックは単なる法規制への対応だけでなく、新しい価値や魅力を住まいにもたらす要素となります。このようなセットバックを活かしたプランニングを行うことで、お客様のライフスタイルや要望に合わせた、より快適で機能的な住まいを提案することができると考えております。

江東区H様邸 戸建てリノベーション施工事例テーマカテゴリー

  • 再建築不可リフォーム
  • 耐震等級3相当(上部構造評点1.5以上)リフォーム(性能向上リノベーション)
  • 減築リフォーム 
  • 補助金活用リフォーム

打ち合わせから着工、完成までの詳細施工事例紹介

1 戸建てリノベーション着工前

1-1 現場調査・打合せ

老朽化した築65年のH様邸。

この家は、東京都江東区北砂という、都市部の密集地に位置しています。長い年月を経て、多くの変遷を経験したこの地域は、新旧の建物が入り混じる特有の風景を持っています。H様邸もその一つで、築65年の歴史を持つこの家は、その年月とともに多くの変化と老朽化を経験してきました。

まず、現場調査を開始する前に、周囲の環境をチェックしました。密集地特有の問題として、隣接する建物との距離の狭さや、日照の取り入れの難しさ、通風の制約などが挙げられます。また、道路の狭さからくる建材の搬入の難しさや、騒音、振動の問題も考慮する必要があります。H様邸の周囲も、これらの問題が予想される環境でした。

次に、建物の外観をチェックしました。外壁には、経年による劣化やひび割れ、変色が見られました。また、屋根の瓦にも欠けやズレが見受けられ、内部に入ると雨漏れの状態でした。

基礎部分にも、微細なひび割れや沈下の兆候が見られました。建物の内部に入ると、床や壁にも老朽化の兆候が明らかでした。特に、床下の湿気や、天井の変形、窓枠のゆがみなど、多くの問題点が浮き彫りになりました。

また、古い配線や給排水設備も、現代の生活スタイルには適していないことが確認されました。さらに、建物の構造的な問題も確認されました。特に、築65年のH様邸は、多くの老朽化や劣化の兆候を示していました。しかし、これらの問題点をしっかりと把握し、適切なリノベーションを行うことで、再び快適で安全な住まいとして生まれ変わる可能性を秘めています。

東京都江東区H様邸 既存
東京都江東区H様邸 既存
東京都江東区H様邸 既存
東京都江東区H様邸 既存
東京都江東区H様邸 既存
東京都江東区H様邸 既存
東京都江東区H様邸 既存
東京都江東区H様邸 既存
東京都江東区H様邸 既存

1-2 東京都江東区H様邸 戸建リノベーションプラン

  間取りの変更プラン  

東京都江東区H様邸 既存図面

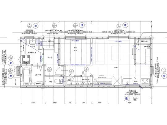
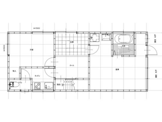
1階 戸建てリノベーション前平面図

東京都江東区H様邸 既存図面

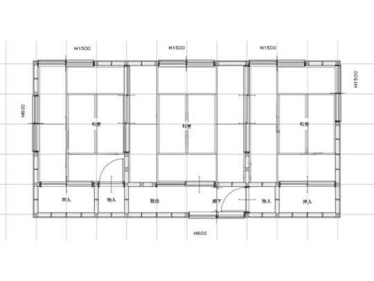
2階 戸建てリノベーション前平面図

東京都江東区H様邸 新規図面

1階 戸建てリノベーション後プラン

東京都江東区H様邸 新規図面

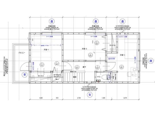
2階 戸建てリノベーション後プラン

H様の再建築不可戸建てのフルリフォーム&フルリノベーション工事はこうしてはじまりました。

2 戸建てリノベーション着工

2-1 足場・解体

解体は手壊し作業

スケルトン人力解体工事は、築65年の老朽化した木造住宅を再生するための重要な第一歩です。

この工事は、建物の骨組みだけを残し、それ以外の部分を取り除く作業を指します。H様邸のような長い年月を経てきた古い住宅では、この工事が特に重要となります。

まず、築65年の木造住宅は、多くの部分が老朽化しています。外壁や屋根、床などの大部分は、時間とともに劣化しており、これらをそのまま利用することは難しいです。また、古い設計のままでは、現代の生活スタイルやニーズに合わせることができません。そのため、これらの部分を取り除き、新しい設計に基づいて再構築することが求められます。

スケルトン人力解体工事では、まず外壁や屋根を取り除きます。H様は正面がパラペットになっておりましたので、これが原因で谷の部分から雨水が進入していました。ここも解体をしていきます。これにより、建物の内部が露出し、次の工程に移るための準備が整います。次に、内部の間仕切りや床、天井などを取り除きます。この工事の際、特に注意が必要なのは、建物の骨組みを傷つけないことです。骨組みは、建物の基本的な構造を支える部分であり、これを傷つけてしまうと、後の工程で大きな問題が発生する可能性があります。そのため、人力による解体が選ばれるのです。人力による解体は、機械による解体と比べて、細かい部分まで丁寧に作業を行うことができます。これにより、骨組みを傷つけるリスクを最小限に抑えることができます。

また、スケルトン人力解体工事では、解体された材料のリサイクルも考慮されます。これにより、資源の無駄を減らし、環境に優しいリノベーションを実現することができます。このように、スケルトン人力解体工事は、築65年の木造住宅を再生するための重要な工程です。この工事を通じて、古い住宅が新しい生命を吹き込まれ、再び長い年月を安心して過ごすことができる住まいとして生まれ変わります。

東京都江東区H様邸 解体
東京都江東区H様邸 解体
東京都江東区H様邸 解体
東京都江東区H様邸 解体
東京都江東区H様邸 解体
東京都江東区H様邸 解体

解体後の躯体チェック

手壊しによる解体工事が終わり、産業廃棄物の廃棄が完了、大工による仮補強が終わると、初めて躯体のチェックが可能となります。

築65年のH様邸のリノベーションに際して、最も重要な工程の一つが既存の躯体の状態検査でした。

この検査は、建物の安全性や耐久性を確認し、リノベーションの方針を決定するための基盤となるものです。

まず、解体後のH様邸の躯体は、年月の経過とともに多くの部分が劣化しており、その状態は非常に不安定でした。

そのため、H様邸では、解体後の躯体が不安定な状態になったことを受けて、まず仮筋交いなどを設置し、建物が倒壊しないように安定化させました。安定化の工程が完了した後、専門家による躯体の状態検査が行われました。

この検査では、構造体の劣化の程度、木材の腐食や虫害の有無、基礎のひび割れや沈下など、建物全体の状態を詳細に調査しました。また、壁や床、天井などの内部構造も詳しく調査され、リノベーションにおけるリスクや課題を明確にしました。

この検査の結果、H様邸の躯体は、築65年の年月を経て多くの部分が劣化していることが確認されました。特に、構造体の劣化が進行している部分は、補強や交換が必要と判断されました。また、木材の腐食や虫害も見られ、これらの部分も修復や交換が必要となりました。

このような詳細な躯体の状態検査により、H様邸のリノベーション計画は、安全性や耐久性を最優先としたものとなりました。

また、この検査の結果を基に、リノベーションの詳細な構造計画、スケジュールなどが決定されました。

最後に、この躯体の状態検査は、H様邸のリノベーションを成功させるための重要なステップであり、専門家の目線での詳細な調査と分析が、安全で快適な住まいづくりの基盤となりました。

東京都江東区H様邸 解体
東京都江東区H様邸 解体
東京都江東区H様邸 解体

大事な構造部のすべてが目視可能となるスケルトンリフォーム

内部の天井・壁・床だけでなく外壁まで解体しスケルトン状態(躯体残し)にする戸建てリノベーションの最大のメリットはこのような重要な主要構造部のすべての状態が目視でわかることになります。

フルリノベーション後は、これらの構造上の弱点をすべて修正し補強することで新築と同水準、もくしくはそれ以上の建物性能をもつ構造躯体へ甦らせることが可能となります。

2-2 基礎

構造上のチェックが終わると、フルスケルトンリフォームでは、基礎工事へと移行していきます。

築65年という長い時を経て、H様邸の基礎にはさまざまな問題が生じていました。基礎は建物の土台となる部分であり、その状態が良好でないと、建物全体の安全性や耐久性に大きな影響を及ぼす可能性があります。このため、リノベーションの際には基礎の補強が不可欠となります。

H様邸の基礎調査の結果、基礎高が低いことが判明しました。基礎高が低いと、地震の際の揺れや地盤の沈下などによる影響を受けやすくなります。また、添え基礎補強を行う場合、引き抜きに対しての効果が低くなるという問題がありました。これは、基礎の深さが浅いため、補強材が十分に地中に固定されず、地震の際の揺れに対して十分な耐久性を持たない可能性があるためです。

このような問題を解決するため、H様邸ではベタ基礎補強を採用しました。ベタ基礎とは、建物全体の下にコンクリートの板を敷くような形で基礎を作る方法です。この方法により、基礎の面積が増え、地震の際の揺れや地盤の沈下に対する耐久性が向上します。また、ベタ基礎補強により、基礎の深さも増し、引き抜きに対しての効果も高まります。

H様邸のベタ基礎補強の工程では、まず既存の基礎を掘り下げ、新たにベース配筋を行い、コンクリートを打設しました。この際、鉄筋を十分に配置し、コンクリートの硬化後にはしっかりと固定されるように工夫がされました。また、基礎の外周部には防水処理も施され、雨水や地下水による浸水のリスクを低減しました。

基礎補強の工程は、リノベーションの中でも特に重要な部分となります。H様邸のように築年数が経過している建物では、基礎の劣化や問題が生じている可能性が高いため、専門家の目線での詳細な調査と適切な補強方法の選択が不可欠です。H様邸のベタ基礎補強は、そのような専門家の知識と経験に基づいて行われ、安全で快適な住まいを実現するための大切なステップとなりました。

東京都江東区H様邸 基礎工事
東京都江東区H様邸 基礎工事
東京都江東区H様邸 基礎工事
東京都江東区H様邸 基礎工事
東京都江東区H様邸 基礎工事
東京都江東区H様邸 基礎工事

H様邸では地盤が良好であることからベタ基礎を採用しました。

すべてがベタ基礎が良いというわけではありません。

ベタ基礎は建物全体と同程度の荷重となりますので、建物の重さとのバランスもかかわってきます。足元だけ固めていても屋根を含めた建物とのバランスが悪いと大地震が起きた際にせん断力が働き、ホールダウン金物が抜けるような事態になるケースもあるからです。

大規模な戸建てリノベーションをされる際には、木造を熟知し、実績が豊富な会社へ相談することをお勧めする理由でもあります。

東京都

ベタ基礎って?

布基礎が立ち上がりとフーチングで持たせる基礎に対して、ベタ基礎は、立上りだけでなく、底板一面も耐圧盤を設け、立ち上がりと底面が一体化された鉄筋コンクリートになっている基礎をいいます。

建物の荷重を底板全体の面で受け止めるため、ベタ基礎は不同沈下を起こさない。といわれますが、それは良好な地盤での話です。

基礎の下の地盤面の地耐力が均一でない場合は、不同沈下が起こる可能性が充分あるのです。

 

耐震の世界では、重い瓦屋根は外して、軽いものに変えましょうと言われておりますが、それ自体は間違っていませんが、この理屈でいくと。屋根の瓦を外して、基礎はベタ基礎にしても、地盤に与える荷重は、瓦屋根以上の荷重がベタ基礎の荷重により地盤面にかかることになります。

地盤が軟弱な場合、布基礎を採用した方が有利な場合も出てきます。

そもそも正しい基礎補強方法を知らず、基礎補補修程度しか行わないリフォーム会社が多くを占めている現状ですが、

戸建て一軒家のリノベーションで、基礎補強をする際は、このような知識のある会社に相談することが必要です。

2-3 木工事

基礎が終わり大工工事へと移行します。構造躯体の強度を担保するためのメイン工事となります。

築65年という長い時を経て、H様邸の木造住宅は多くの経年変化や劣化を経験してきたことでしょう。このような古い木造住宅のリノベーションにおいて、最も重要なのはその構造の補強です。安全性を確保し、さらに長持ちさせるための補強は、専門的な知識と技術が求められる作業となります。

弊社の通常の補強方法では、内部の補強だけで上部構造評点を1.5以上にすることを目指しています。この評点は、建物の耐震性を示すもので、1.5以上であれば、新築時の最低基準の1.5倍を満たしているとされます。しかし、H様邸の場合、内部の補強だけではこの評点を達成するのが難しい状況でした。これは、築年数の長さや既存の構造の特性、さらにはリノベーションの内容や範囲など、さまざまな要因によるものです。

そこで、弊社はH様邸の補強方法を再考しました。まず、外周面に構造用合板を全面張りすることで、建物全体の剛性を向上させることを計画しました。構造用合板は、その強度や耐久性が高く、外部からの衝撃や揺れに対しても十分な耐力を持っています。また、外周面に配置された引き抜き金物は、地震の際の揺れに対して建物をしっかりと支え、倒壊を防ぐ役割を果たします。

さらに、減築部分については、新築時と同様の方法で躯体を組み上げることとしました。これにより、減築部分も新築同様の強度と耐久性を持つことができ、全体としての安全性が大きく向上しました。このような補強方法は、H様邸の特性や要望を考慮した上でのものです。古い木造住宅のリノベーションにおいては、一般的な方法だけではなく、その建物の特性や状態を詳しく調査し、最適な補強方法を選択することが重要です。H様邸の補強工事は、そのような専門的な知識と技術を活かし、安全で快適な住まいを実現するための大切なステップとなりました。

東京都江東区H様邸 木工事
東京都江東区H様邸 木工事
東京都江東区H様邸 木工事
東京都江東区H様邸 木工事
東京都江東区H様邸 木工事
東京都江東区H様邸 木工事
2-4 断熱工事

断熱工事は、住まいの快適性やエネルギー効率を大きく左右する要素の一つです。特に、H様邸のような家では、適切な断熱材の選択と施工が求められます。

H様は、ZEHグレードの高い断熱性能を希望されたため、その要望に応えるべく、最新の断熱材と施工技術を駆使して工事を進めました。1階床には、75㎜のラムダを使用しました。ラムダは、その高い断熱性能で知られる断熱材で、狭い空間でも高い断熱効果を発揮します。床下の冷気の侵入を防ぐことで、足元からの冷えを感じにくくし、室内の温度差を最小限に抑える効果があります。外周面の壁には、120㎜の高性能グラスウールを充填。グラスウールは、空気の動きを制限することで、断熱性を高める材料です。120㎜という厚さは、一般的な住宅よりも厚く、これにより外部からの熱の侵入や室内の熱の逃失を大きく防ぐことができます。また、最上階の天井には、250㎜の高性能グラスウールを充填しました。天井部は、夏場の直射日光や冬場の冷気の影響を直接受けやすいため、特に厚みを持たせて断熱性能を高めることが重要です。さらに、これらの断熱材の充填により、外部からの騒音や振動の影響も大きく軽減されます。都市部では、交通騒音や隣接する住宅との騒音問題が生じやすいため、断熱材の選択は、騒音対策としても非常に効果的です。

H様邸の断熱工事は、単にエネルギー効率を上げるだけでなく、住む人の快適性や生活品質の向上を目指したものでした。軽量鉄骨造の特性を活かし、最新の断熱材と施工技術で、長持ちする快適な住まいを実現しました。これらの工事は、住まい手のニーズをしっかりと捉え、それに応える形で進められた結果、H様邸は、高い断熱性能を持つ、快適な住まいとして生まれ変わりました。

東京都江東区H様邸 断熱工事
東京都江東区H様邸 断熱工事
東京都江東区H様邸 断熱工事

3 戸建てリノベーション竣工

約7か月の工事を経て、いよいよ竣工です。
下町の築65年戸建てがどのように生まれ変わったのか。
H様邸の様子をご紹介します。

 

外観の変化は、リノベーションの成果を最も直接的に感じる部分であり、H様邸のリノベーションもその例外ではありません。

築65年という長い時を経て、風雨や紫外線にさらされ続けた外壁は、劣化が進行し、色褪せやひび割れが目立つ状態となっていました。このような状態の外壁は、見た目の美しさだけでなく、建物の耐久性や断熱性にも影響を及ぼすため、適切な対応が求められます。

H様邸のリノベーションでは、外壁に窯業サイディングを全面張りすることで、これらの問題を一気に解決しました。窯業サイディングは、その耐久性と美しさから、近年の住宅リノベーションで多く採用される材料です。

特に、天候の変化や湿度の影響を受けにくい性質を持つため、長期間にわたって外観の美しさを保つことができます。H様邸の外観は、窯業サイディングの採用により、モダンで洗練されたデザインへと生まれ変わりました。従来の古びた外観から、シャープでスタイリッシュな佇まいへと変貌を遂げ、周囲の景観とも調和する美しい住まいとなりました。

さらに、耐久性が高いため、外壁のメンテナンスコストを大幅に削減することができます。総じて、H様邸の外観リノベーションは、見た目の美しさと機能性を両立させた成功例と言えるでしょう。長い年月を経て劣化した外壁を、最新の材料と技術で蘇らせ、新築同様の美しい住まいへと生まれ変わらせました。


  =外観==  

Before

東京都江東区H様邸 既存

施工前は外観も中もかなり古く、安心して住める状態ではありませんでした

After

東京都江東区H様邸 竣工

施工後はシャープでスタイリッシュな外観の住まいに生まれ変わりました

Before

東京都江東区H様邸 既存

以前は1階店舗の作りでした

After

東京都江東区H様邸 竣工

施工後は耐震性能も断熱性能も格段に向上した安心安全な住まいが実現しました

東京都江東区H様邸 竣工

外壁は窯業サイディングを採用

東京都江東区H様邸 竣工

給湯器はエコキュート

東京都江東区H様邸 竣工

玄関ドアはYKKapコンコードS30防火断熱引戸です


  == 水まわり ==  

Before

東京都江東区H様邸 既存

施工前はガス台別設置のキッチンでした

After

東京都江東区H様邸 竣工

新しいキッチンはTOTO「ミッテ」I型壁付け2400mm IHヒーター、食洗器付き

東京都江東区H様邸 竣工

キッチン横のパントリー。カップボードも「ミッテ」シリーズです。

東京都江東区H様邸 竣工

浴室はTOTO「サザナ」1618サイズ

東京都江東区H様邸 竣工

洗面化粧台はTOTO「オクターブ」間口1000mm

東京都江東区H様邸 竣工

トイレはハイウィルTOTOオリジナルトイレ


  == 居室ほか ==  

Before

東京都江東区H様邸 既存

施工前の階段はとても急こう配でした

After

東京都江東区H様邸 竣工

施工後は緩やかになって安心です

東京都江東区H様邸 竣工
東京都江東区H様邸 竣工

H様邸のフローリングは自然素材である杉無垢材です。柔らかい色合いに癒されます。

東京都江東区H様邸 竣工
東京都江東区H様邸 竣工

4 補助金利用

江東区H様邸の工事では、国の補助金「こどもエコすまい支援事業」と「先進的窓リノベ事業」、東京都の「既存住宅における省エネ改修促進事業(高断熱窓・ドア)」を併用利用予定です。(申請中)

省エネにつながるエコ住宅設備や、断熱性能の高い断熱材・ドア・窓の設置などに対して交付される補助金です。

 

H様邸の補助金対象工事

エコ住宅設備の設置 給湯器(エコキュート)、高断熱浴槽、節水型トイレ、節湯水栓
断熱改修

外壁・床・天井の断熱材、断熱窓、断熱ドア

※断熱窓・断熱ドアは東京都補助金併用

子育て対応改修 掃除しやすいレンジフード、ビルトイン食洗器、浴室乾燥機

 

ハイウィル株式会社 稲葉悟

5 担当者より
(「増改築.com®」本部ハイウィル株式会社 専務取締役稲葉悟)

 

H様、この度はご依頼をいただき、誠にありがとうございました。

H様邸のリノベーションを担当させていただき、改めて住まいというものの価値や、それを守り、より良くするための技術の大切さを感じることができました。私たち専門家としての役割は、単に建物を修繕するだけではなく、お客様の大切な思い出や日常を守り、さらに快適な空間を提供することにあります。H様がこの邸宅に対して抱いている想いや期待、そして不安や疑問を私たちに打ち明けてくださったこと、それを信頼して手を託してくださったことは、私たちにとって何よりの励みとなりました。築65年という長い時間を経て、多くの出来事や思い出が刻まれたこの家。それを現代のライフスタイルや技術に合わせて再生するというのは、非常に大きな責任を伴う仕事です。私たちが施工を進める中で、H様邸の各部分に歴史や思い出が詰まっていることを実感しました。古い木材の一つ一つには、時代の変遷や家族の歴史が刻まれています。それを感じながら、新しい技術や材料を取り入れてリノベーションを進めることは、過去と未来をつなぐかけ橋のようなものだと感じています。H様がご要望されたZEHグレードの断熱性能や、外観の変化など、具体的なリノベーションの内容についても、私たちとしては最新の技術や知識を駆使して取り組みました。しかし、それ以上に、H様の「こうしたい」という思いや「これが理想」というビジョンを形にすることの難しさと喜びを感じるプロジェクトでした。最後に、H様に心からの感謝の言葉を述べさせていただきます。このような大切なプロジェクトを私たちに託してくださり、ありがとうございました。私たちの技術や知識だけでなく、H様とのコミュニケーションを通じて得た多くの学びや経験は、今後の私たちの仕事にも大きく役立つことと確信しています。これからも、H様の住まいがより長く、より快適にご利用いただけるよう、サポートさせていただきます。

全国のフルリフォーム・リノベーション『ピックアップ事例』※プロの詳細解説付きレポート

HEAT20-G2/耐震等級3
新耐震基準の性能向上リノベーション
築30年ハウスメーカー軽量鉄骨
断熱改修&リノベーション
 
中古住宅を新築以上の耐震性能と断熱性能へ!
耐震等級3フルリフォーム
地下付き木造2階建て
自然素材をつかった性能向上リノベーション&フルリフォーム

東京都文京区 K様邸

長屋を切り離して1つの構造体へフルリフォーム&リノベーション
隣家との距離がない!
部屋から外壁を張り替えるフルリノベーション
中古住宅を耐震等級3へ!
中古住宅リノベーション
 
基礎がない??
築60年の古屋をジャッキアップで基礎新設フルリノベーション

東京都渋谷区 O様邸

戸建てリノベーション・リフォームに関するお問合せはこちら

増改築.comの一戸建てリフォーム専用ホームページに
お越しいただき、誠に有難うございます。
 
増改築.comメンバーは技術集団となり、
他社のような営業マンがおりません。
技術者が直接ご相談にのり問題解決を行います。
 
従いまして、
お客様の方である程度のご要望が整理されました段階、
お悩みが工事内容のどのようなところにあるのか?
ご予算がどの程度絞る必要があるのか?
など明確になった段階でのご相談をお願いしております。
お問合せ・ご相談はお電話・メールにて受け付けております。
メールの場合は以下のフォームに必要事項をご記入の上、
「送信する」ボタンをクリックをお願いします。

代表稲葉高志

戸建てリノベーションの専属スタッフが担当致します。
一戸建て家のリフォームに関することを
お気軽にお問合せください

よくあるご質問
  • 他社に要望を伝えたところできないといわれたのですが・・・
  • 他社で予算オーバーとなってしまい要望が叶わないのですが・・・
  • サービスについて詳しく聞きたいのですが・・・

どのようなお悩みのご相談でも結構です。

あなたの大切なお住まいに関するご相談をお待ちしております。

営業マンはおりませんので、しつこい営業等も一切ございません。

設計会社(建築家様)・同業の建築会社様のご相談につきましては、プランと共にご指定のIw値及びUa値等の性能値の目安もお願い申し上げます。

2026年の大型補助金が確定したことで現在大変込み合っております。

耐震性能と断熱性能を向上させるフルリフォームには6か月~7か月の工期がかかります。

補助金獲得には年内に報告を挙げる必要があることから、お早目にご相談をお願いいたします。(6月着工までが目安

ご提案までに大変お時間がかかっております。ご了承のほどお願い申し上げます。

(5月までの着工枠が埋まりました)・・・2026/03/01更新

※すでにプランをお持ちのお施主様・設計資料をお持ちのお施主様は内容をフォームで送信後、フォーム下のメールアドレスに資料をお送りください。対応がスムーズです。

必須

(例:増改築太郎)

必須

(例:contact@high-will.co.jp)

(例:03-5615-2826)

必須

(例:東京都荒川区西日暮里2-35-1)

(例:築40年)

(例:25坪・100㎡など)

(例:2000万程度など)

  • ※再建築不可のリフォームでは金融機関が限られます。事前審査をお勧めいたします。

    (例:2024年3月くらいに完成希望など)

    必須

    できるだけ具体的にお知らせくださいませ。既存設計資料、リフォーム後のイメージ図等をお持ちであれば下記のメールアドレスより添付をお願いします。

    ※次の画面がでるまで、4~5秒かかりますので、
    続けて2回押さないようにお願いいたします。

    ※次の画面が出るまで、4〜5秒かかりますので、
    続けて2回押さないようにお願いいたします。

    図面や写真等を送信いただく場合、また入力がうまくいかない場合は、上記内容をご確認のうえ、下記メールアドレスまでご連絡ください。

    お電話でのお問合せはこちら

    0120-246-991

    営業時間:10:00~17:00(土日祝日を除く)

    ★YouTube「増改築.comチャンネル」チャンネル登録して新動画解説をいち早くGET!!★
    「増改築.comリノベ診断」であなたに一番ふさわしいフルリフォームを診断!!(動画解説付き)
    ★Facebookページにいいね!を押して最新コンテンツ情報をいち早くGET!!★
    パソコン|モバイル
    ページトップに戻る