このエントリーをはてなブックマークに追加

アパートリノベーション 施工事例 目黒区祐天寺S様

 

今回弊社にフルリフォームをご依頼いただきましたのたのは、宮大工のS様です。

長年弊社でもお世話になった弊社の熟練棟梁であり、弊社の大工達の恩師的立場のいわば大先輩が所有するアパートリノベーションです。

 

S様は引退後の現在は、福島の実家に帰り奥様と生活されておりますが、50年前に一人で建てたアパートの老朽化に伴い、リノベーションしたいと弊社4代目代表に依頼があり、4代目代表も二つ返事でお請けしたものです。

打ち合わせに福島にも何度か足を運び、下小屋から使える材木など見にいっては温泉に入って帰ってくるなど大変お世話になりました。

 
建物概要
名前 S様
場所 東京都目黒区祐天寺
築年数 築50年
構造種別 木造一戸建て
家族構成 4世帯
対象面積 41.2坪
リフォーム部位 ベタ基礎/間取変更/断熱サッシ取替/外壁サイディング/断熱/外構
工期 6ヶ月
価格 3200万

お客様のご要望

今回のリフォームで、S様からのご要望は以下の4点です。

  • 既存の構造を活かしたい。
  • 賃貸なので、防音を考慮したい。
  • 賃貸なので、住宅設備機器はシンプルなものに。
  • べタ基礎にしたい

プランナー 北畠より ~プランニングのポイント~

既存のワンルームアパート6世帯を1LDKの4世帯へ変更しました。

お施主様であるS様は棟梁であったため、間取り変更で必要になる柱の撤去などでは、お施主様自らが、「ここは抜けないから間仕切りはこの配置で」など平面だけでなく、床伏図や梁伏図まで手書きで書いていただきリフォーム後にありがちなプラン変更が全くない現場となりました。

目黒区S様邸 戸建てリノベーション施工事例テーマカテゴリー

 

  • アパートリノベーション
  • 内外部スケルトンリフォーム

打ち合わせから着工、完成までの詳細施工事例紹介

1 着工前

1-1 現場調査・打合せ
戸建スケルトンリフォーム 既存

戸建スケルトンリフォーム 既存

「外壁まで剥がす大掛かりなものは、棟梁一人ではできない。俺が現場はみるから一緒にやろう」との仰せがあり、現場も一緒に入る珍しい現場であります。

 

S様の目黒区祐天寺の入り組んだ住宅街にあり、大型のトラックが搬入しずらいロケーションでありました。解体時の搬出処理には手間がかかることが予測ができます。

戸建スケルトンリフォーム 既存

しばらく空き家になっていたとのことですが、メンテナンスがしっかりとされているため、傷みが少ないです。

戸建スケルトンリフォーム 既存

新築時は福島から材木を運びながら一人で組み上げ、さらにメンテナンスで手直しをしていることから築50年には見えない作りです。

 

建物の構造と納め方については、施主自身が棟梁であったため、解体前に軸組がわかることから、抜けない柱などは事前にわかったためプランの制作は、施主であるS様と一緒に決めてしまいました。

一番のネックは建物の道路付けにありました。坂の途中に建物が建っていることと

道路から建物が坂がったところに建てられている為、搬入搬出の手間がかかるというということでした。

戸建スケルトンリフォーム 既存

既存のブロックは補強が必要なため、やり直そうという話になりました。

戸建スケルトンリフォーム 既存

写真のように道路と建物には段差があります。


既存1階部分

戸建スケルトンリフォーム 既存

外構周りの工事もやってくれとの仰せがあり、福島のご実家で外構周りをすべて一人で施工した現場も見ている4代目が、「S師匠が手伝ってくれるなら」ということでやらせていただくことになりました。昔の棟梁は左官もできます。

戸建スケルトンリフォーム 既存

内部のチェックをしていきますが、施主であるS棟梁が、「ここには尺梁がここまで入っている」などすべて解説付きのため、計画がスムーズ過ぎるくらいに早く進んでいきました。


既存2階部分

階段はマメに塗装をされておりましたので、既存の鉄骨階段の傷みもほぼない状態でした。今回の目的がこの先、孫の代まで持たせる資産にしたいとのことでしたので、性能面で一新させてほしいのが第一のご要望でした。すべてを躯体にしてリニューアルをさせていただきます。

階段の新設も今回予定しました。

母屋組も棟梁が教えてくれましたので、間取り変更の可否が即座にわかりました。

 


1-2 東京都目黒区祐天寺S様邸 アパートリノベーション(フルリフォーム)プラン

  間取りの変更プラン  

戸建スケルトンリフォーム 既存図面

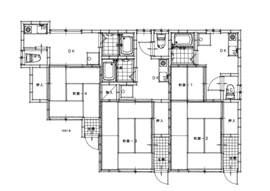
1階 既存平面図

戸建スケルトンリフォーム 既存図面

2階 既存平面図

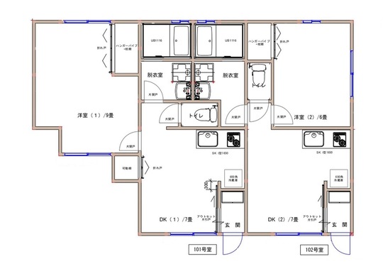
戸建スケルトンリフォーム 新規図面

1階 新規平面図

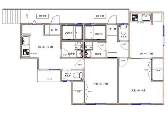
戸建スケルトンリフォーム 新規図面

2階 新規平面図

既存は1階3世帯、2階3世帯の計6世帯の造りでした。

リフォーム後は1階2世帯、2階2世帯の計4世帯に変わります。

既存は和室がメインでしたが、リフォーム後は全て洋室の造りになります。

 

S棟梁のお住まいへ訪問(福島遠征)

平屋の切妻みのこ、五寸勾配の屋根に天井を高く取り、梁間を利用して屋根裏部屋を作っています。

桁行7間の軒に天秤梁に二重桁を取り付けてあります。重い雪にも耐えられるように工夫されています。

五寸勾配の屋根に化粧棟長く映えています。

室内の各部屋に欄間が取り付けられ長押も空間を演出しています。戸襖も全部屋S様の彫り物で造られております。

屋根裏部屋は1間おきに太めの梁と柱によって構築されています。

二重桁天秤梁もしっかり1間おきに取り付けられております。

2 着工

2-1 足場・解体

解体は内部と外部の2回に分け手壊し作業

S様のアパートフルリノベーションでは、内部のみのスケルトン解体ではなく、外壁までを解体する内外部スケルトンリフォームとなります。その為、完全な躯体(スケルトン)残しとなります。解体は2回に分け内部と外部の2工程に分け進めさせていただきました。

入り組んだ住宅街かつ普通車がギリギリ通れる道路付けの条件となりましたので、搬入搬出は工夫が必要です。

内外部の解体ですがまずは内部の解体から。機械壊しではなく、人力での手壊しとなります。

S様邸のアパートフルリフォーム&フルリノベーションでは、廃棄物を仮置きするスペースが無かったため、室内にまとめながら、複数回に分け廃棄物処理車を呼び、こまめに搬出が必要でした。

戸建スケルトンリフォーム 解体作業

S様は毎日現場に来てくださり、解体の指示もいただきました。

戸建スケルトンリフォーム 解体作業

解体していくなかで躯体が見えて参りますが、S様が言っていた通りの構造体になっており、既存住宅での解体での想定外の出来事はなくスムーズです。

戸建スケルトンリフォーム 解体作業

解体処理の廃棄物処理が終わると、大工が入り仮筋交いの設置をします。解体職人では抜けない柱などは大工が抜き仮での補強を入れます。

戸建スケルトンリフォーム 解体作業

廃棄物回収のトラックも長時間の横付けが難しい為、廃棄物をトラック前まで集めておき、トラックが到着次第一気に積荷します。

 

解体後の躯体チェック

S様邸は内部解体と外部解体を分けて行いました。内部のスケルトン化(躯体状態)になった段階で、施主のS棟梁と弊社の棟梁とで構造状態のチェック、そして今後の補強方法について、入念に打ち合わせを行いました。S様の建物は築50年を経過しておりましたが、構造体はさすがに全く傷んでおりませんでした。使える構造体と取り換える構造体、梁の架け方など打ち合わせを行いました。

戸建スケルトンリフォーム 解体作業

築50年経過でほぼ傷みがない建物を見ることは、だいぶ少なくなりましたが、木造と雨仕舞を知り尽くしたS様の仕事は見事の一言に尽きます。

戸建スケルトンリフォーム 解体作業

S様(写真右)と大工、プランナーでフルリフォーム後の間取りで修正が必要な個所などを共有していきます。

戸建スケルトンリフォーム 解体作業

2階の荷重を考慮した梁の補強法では、S棟梁と弊社の№1棟梁で綿密なすり合わせを行いました。若い大工も大変勉強になりました。

大事な構造部のすべてが目視可能となるスケルトンリフォーム

今回のS様は自身が棟梁であることから、木構造を熟知されていることから傷みはほぼなく補強もスムーズでしたが、本来のスケルトンリフォームのメリットは、一度構造躯体を裸にすることで、雨仕舞による構造の腐食、内部結露による構造体のダメージなど、外からではわからない傷みを明らかにすることが可能であることです。木構造へのダメージを与える要素は、雨仕舞の施工不備による浸水、内部結露による腐食、白蟻被害の3点です。この基本を当たり前にやっている施工者がいかに少ないかということです。中古住宅などを購入された場合は、前オーナーがどのような工事をしたのか、どのようなメンテナンスをしたのか?などが不明なことが多い為、スケルトンリフォームを推奨しております。

2-2 基礎

構造躯体のチェック、補強法の確認をしたところで、工程は基礎工事へと移行していきます。

戸建スケルトンリフォーム 基礎工事

鋤取りから砕石、転圧を行っていきます。

戸建スケルトンリフォーム 基礎工事

配筋工事150㎜ピッチで既存の布基礎に差し筋、立ち上がり基礎への差し筋を行っていきます。

戸建スケルトンリフォーム 基礎工事

転圧後にはポリフィルム張りをし、防湿処理を行います。

戸建スケルトンリフォーム 基礎工事

配筋は千鳥状にD13を150mm間隔で配筋していきます。

戸建スケルトンリフォーム 基礎工事

何が大変だったかと言えば、コンクリートミキサー車が横付けできない立地であったこと。100m以上離れた場所へ車を停め、何往復も手運びしていきました。大変手間のかかる作業となります。

戸建スケルトンリフォーム 基礎工事

鏝で均していきます。

戸建スケルトンリフォーム 基礎工事

立ち上がり基礎も含め布基礎とほぼ同じ高さまでコンクリートを打設しました。

戸建スケルトンリフォーム 基礎工事

打設後S様にも確認頂き次のも億工事へと移行していきます。

S様邸では地盤が良好であることからベタ基礎を採用しました。本来地盤が安定しているところでの採用を推奨する工法となりますが、

すべてがベタ基礎が良いというとそうではありません。ベタ基礎自体の荷重は建物全体と同程度の荷重となります。コンクリートは1立米あたり2.5tの荷重がかかります。掘った土は1立米あたり1.6tの荷重ですから、差し引いても約1t分荷重が増す事になるからです。この荷重増から安定していた地盤が沈下する恐れがあるからです。

大規模な戸建てリノベーションをされる際には、木造を熟知し、実績が豊富な会社へ相談することをお勧めする理由でもあります。

戸建スケルトンリフォーム 基礎工事

ベタ基礎って?

布基礎が立ち上がりとフーチングで持たせる基礎に対して、ベタ基礎は、立上りだけでなく、底板一面も耐圧盤を設け、立ち上がりと底面が一体化された鉄筋コンクリートになっている基礎をいいます。

建物の荷重を底板全体の面で受け止めるため、ベタ基礎は不同沈下を起こさない。といわれますが、それは良好な地盤での話です。

基礎の下の地盤面の地耐力が均一でない場合は、不同沈下が起こる可能性が充分あるのです。

耐震の世界では、重い瓦屋根は外して、軽いものに変えましょうと言われておりますが、それ自体は間違っていませんが、この理屈でいくと。屋根の瓦を外して、基礎はベタ基礎にしても、地盤に与える荷重は、瓦屋根以上の荷重がベタ基礎の荷重により地盤面にかかることになります。

地盤が軟弱な場合、布基礎を採用した方が有利な場合も出てきます。

戸建てフルリフォームやリノベーションで、基礎補強をする際は、このような知識のある会社に相談することが必要です。

2-3 屋根工事
戸建スケルトンリフォーム 屋根

屋根は軽量化し、ガルバリウム鋼板へ葺き替えをしました。

 

戸建スケルトンリフォーム 屋根

横葺きを希望されましたので横葺きで施工しております。

2-4 木工事

基礎が終わり、本格的な補強工事へと工程は進みますが、ここで外壁を解体し、完全なスケルトン状態にします。

担当大工は、弊社で和風建築を作らせたら一番の棟梁を指名し、メインで木工事を進めていきます。お孫様の代まで十分に耐えられる構造躯体を組んでいきます。

戸建スケルトンリフォーム 木工事

今回の現場に入る棟梁すべてが寸法を共有できるようにS邸の寸法を板に書いていきます。

外部は構造用合板で補強されるため、内部の補強から進めていきます。

戸建スケルトンリフォーム 木工事

二階は床先行で足場を安定させました。

戸建スケルトンリフォーム 木工事

唯一柱の差し替え補強が必要だったところです。50年前に風呂場であったところになります。

戸建スケルトンリフォーム 木工事

2階は強床納めとなっておりますので1階の横架材へ24㎜の構造用合板を直打ちとなります。
 

戸建スケルトンリフォーム 木工事

2階間取り変更により柱の位置が大きく変わり、それに伴い旧構造体への補強が加わります。

戸建スケルトンリフォーム 木工事

築50年ではもっと多くの構造材が必要ですが、状態が良い為、残す構造体も他の現場に比べ多い現場です。

戸建スケルトンリフォーム 木工事

強床敷設後の金物補強

戸建スケルトンリフォーム 木工事

二階の外階段が乗る構造部。雨仕舞をしっかりと施工します。

戸建スケルトンリフォーム 木工事

2階外階段を一階からみた仕掛け。

戸建スケルトンリフォーム 木工事

2階床遮音工事があるため構造的に剛床仕様で24㎜の合板を張りその後遮音工事をします。

戸建スケルトンリフォーム 木工事

毎日現場に顔を出してくださったので、都度、設計、工務、大工と打ち合わせをさせていただきました。

目黒区祐天寺のS様のアパートリノベーションでは、最も時間がかかる木工事の重要パートで、施主のS棟梁がすべての納まりをチェックしていただいたこともあり、これ以上ないほど現場の進行はスムーズとなりました。若い大工をこれを機会に増員して、スキルアップもさせていただくなど我々にとっても大変ありがたい工事となりました。

2-5 断熱工事

東京都目黒区祐天寺のS様(元棟梁)の戸建てアパートリノベーションでの断熱材はグラスウールを採用しています。
グラスウールは、施工に最も注意を払う断熱材となります。隙間があればそこが弱点となりますので、隙間なく張り込んでいきます。

戸建スケルトンリフォーム 断熱工事

S様戸建てアパートフルリノベーションでの断熱材はグラスウール。コストパフォーマンスは良いですが、施工を間違えると断熱効果は皆無となりますので最新の注意を払います。

戸建スケルトンリフォーム 断熱工事

断熱材充填後、構造計算上耐力壁となる壁には構造用合板を張り補強していきます。

 

2-6 外壁工事
戸建スケルトンリフォーム 外壁工事

S様戸建てアパートフルリノベーションでは外壁の解体を2次工事で行いました。外壁解体をすることでサッシの位置を大幅に変更可能になる利点もありますが、何といっても外周周りに構造用壁を全面に張ることができる利点があります。壁倍率2.5倍の構造用合板で内部躯体の補強だけでなく外部からも補強が可能になります。

戸建スケルトンリフォーム 外壁工事

二階の玄関となる外階段設置前の建物裏手面。構造用合板が張り終わりました。

戸建スケルトンリフォーム 外壁工事

構造用合板全面張り完了後は、すぐさま防湿シート張りを行います。

戸建スケルトンリフォーム 外壁工事

防湿シート張りが雨仕舞の施工に最も差がつくところになってきますので、窓周りやダクト周りの処理を確実に行っていきます。

2-7 造作工事

構造部の構造補強が終わると、造作工事に入ります。

戸建スケルトンリフォーム 造作工事

内壁は構造用合板を全面張りとしその上からボードを張っていきます。

戸建スケルトンリフォーム 造作工事

二階床は最も遮音が気になるところ、コンクリートスラブ打設工法を推奨したかったのですが、ロケーションとしてかなり厳しい搬入経路であったことから、24㎜構造用合板の上に吸音マット+遮音マット+吸音ボード+構造用合板+仕上げフロアとしました。

戸建スケルトンリフォーム 造作工事

アパートリノベーションで大切なのは遮音と界壁工事になります。各世帯の境界壁となる箇所へは天井裏までボードを2重張りしていきます。

3 竣工

目黒区 木造アパートフルリノベーション竣工致しました。

外観も以前はモルタル塗装仕上げだったのが、メンテナンスも考慮しサイディングに変えました。

サッシは基本あまり場所移動せず、同じ位置に性能UPしたサッシに取替ました。

 


  =外観==  

戸建スケルトンリフォーム 竣工

アプローチも、コストを抑えた形で納めさせて頂きました。

戸建スケルトンリフォーム 竣工

外壁はKMEW MWレーベンベージュB です。

戸建スケルトンリフォーム 竣工

廊下にはポリカーボの屋根を設置しました。

戸建スケルトンリフォーム 竣工

2階バルコニーは既製品で納めさせて頂きました。


  == 1F エントランス・玄関 ==  

戸建スケルトンリフォーム 竣工

1階のサッシはシャッター付き窓です。

戸建スケルトンリフォーム 竣工

廊下はたっぷりとした広さです。


  == 1F 101号室==  

戸建スケルトンリフォーム 新規図面
戸建スケルトンリフォーム 竣工

玄関収納はフロウトタイプの800サイズを少し詰めたオーダー品です

戸建スケルトンリフォーム 竣工

玄関を入るとLDKになります。

戸建スケルトンリフォーム 竣工

各居室LDKとは別に洋室が1部屋あります。

戸建スケルトンリフォーム 竣工

クローゼットは1間の奥行3尺のたっぷりとした収納です。

戸建スケルトンリフォーム 竣工

枕棚とハンガーパイプの各クローゼット設置してあります。

Before
戸建スケルトンリフォーム 既存

既存建物は和室がメインのお部屋でした。世帯数も1階に3軒、2階に3軒

計6世帯の造りでした。

 

新たに設計した世帯数は、1階2世帯2階2世帯の計4世帯です。

大人2人暮らすにはちょうど良い大きさです。


  == 外階段 ==  

戸建スケルトンリフォーム 新規図面
Before
戸建スケルトンリフォーム 既存

既存階段はかなりの急階段でした。新規階段はゆったりめに造りご提案させて頂きました。

戸建スケルトンリフォーム 竣工

外階段は既製品では収まらないのでオーダーで造作しました。

戸建スケルトンリフォーム 竣工

2階の廊下はゆったりとした広さです。

戸建スケルトンリフォーム 竣工

  階段は滑り止め付です。


  == 2F 202号室 ==  

戸建スケルトンリフォーム 新規図面
戸建スケルトンリフォーム 竣工

斜線で吊り戸が設置でず、202号室だけ吊り戸無しです。

戸建スケルトンリフォーム 竣工

こちらのお部屋も斜線に掛かっています。

戸建スケルトンリフォーム 竣工

クローセット内には枕棚とハンガーパイプ

戸建スケルトンリフォーム 竣工

玄関の段差も極力低く設置しました。


  == 1F ・2F水まわり ==  

戸建スケルトンリフォーム 新規図面
新規図面

Before

戸建スケルトンリフォーム 既存

既存キッチン

戸建スケルトンリフォーム 既存

既存浴室

戸建スケルトンリフォーム 既存

既存洗面室

戸建スケルトンリフォーム 既存

既存トイレ

キッチン
戸建スケルトンリフォーム 竣工

ナスラック リヴィエール

浴室
戸建スケルトンリフォーム 竣工

LIXILリノビオ Fit

洗面室
戸建スケルトンリフォーム 竣工

LIXIL  オフト

トイレ
戸建スケルトンリフォーム 竣工

ハイウィルオリジナルトイレ


4 担当者より(ハイウィル株式会社四代目代表 稲葉高志)

S様は、熟練の棟梁であり弊社でも大変お世話になった方でした。昔の大工は、なんでもできてこそ大工と私も幼き頃から言われて育ちましたが、まさにその言葉を体現しているような大工さんです。大工仕事だけでなく、左官や塗装などは当たり前にこなしてしまいます。福島のお住まいには初めてお伺いしましたが、築60年経過の建物ですが傷みは全くなく見事な納まりとなっており大変勉強にもなりました。このような一流の大工からの指名を受け工事が出来たことを誇りに思いますし、施工者の立場ながら学びが多い現場となりました。弊社の職人たちにも良い刺激となり感謝いたしております。工事の途中、弊社の大工と何度かS様で福島まで資材を取りに行き、構造材を使用させていただくなどS様にとっても特別な工事であったのだと思いました。半年の工程となり、大変長い工事となりましたが、ほぼ毎日現場に来られ、大工と打ち合わせをしてくださいました。

お孫様の代までしっかりと見守らせていただきたいと強く決意をさせていただきました。

S様、この度はご依頼をいただき、誠にありがとうございました。

この事例と似たテーマカテゴリーを見る

全国のフルリフォーム・リノベーション『ピックアップ事例』※プロの詳細解説付きレポート

HEAT20-G2/耐震等級3
新耐震基準の性能向上リノベーション
築30年ハウスメーカー軽量鉄骨
断熱改修&リノベーション
 
中古住宅を新築以上の耐震性能と断熱性能へ!
耐震等級3フルリフォーム
地下付き木造2階建て
自然素材をつかった性能向上リノベーション&フルリフォーム

東京都文京区 K様邸

長屋を切り離して1つの構造体へフルリフォーム&リノベーション
隣家との距離がない!
部屋から外壁を張り替えるフルリノベーション
中古住宅を耐震等級3へ!
中古住宅リノベーション
 
基礎がない??
築60年の古屋をジャッキアップで基礎新設フルリノベーション

東京都渋谷区 O様邸

戸建てリノベーション・リフォームに関するお問合せはこちら

増改築.comの一戸建てリフォーム専用ホームページに
お越しいただき、誠に有難うございます。
 
増改築.comメンバーは技術集団となり、
他社のような営業マンがおりません。
技術者が直接ご相談にのり問題解決を行います。
 
従いまして、
お客様の方である程度のご要望が整理されました段階、
お悩みが工事内容のどのようなところにあるのか?
ご予算がどの程度絞る必要があるのか?
など明確になった段階でのご相談をお願いしております。
お問合せ・ご相談はお電話・メールにて受け付けております。
メールの場合は以下のフォームに必要事項をご記入の上、
「送信する」ボタンをクリックをお願いします。

代表稲葉高志

戸建てリノベーションの専属スタッフが担当致します。
一戸建て家のリフォームに関することを
お気軽にお問合せください

よくあるご質問
  • 他社に要望を伝えたところできないといわれたのですが・・・
  • 他社で予算オーバーとなってしまい要望が叶わないのですが・・・
  • サービスについて詳しく聞きたいのですが・・・

どのようなお悩みのご相談でも結構です。

あなたの大切なお住まいに関するご相談をお待ちしております。

営業マンはおりませんので、しつこい営業等も一切ございません。

設計会社(建築家様)・同業の建築会社様のご相談につきましては、プランと共にご指定のIw値及びUa値等の性能値の目安もお願い申し上げます。

2026年の大型補助金が確定したことで現在大変込み合っております。

耐震性能と断熱性能を向上させるフルリフォームには6か月~7か月の工期がかかります。

補助金獲得には年内に報告を挙げる必要があることから、お早目にご相談をお願いいたします。(6月着工までが目安

ご提案までに大変お時間がかかっております。ご了承のほどお願い申し上げます。

(5月までの着工枠が埋まりました)・・・2026/03/01更新

※すでにプランをお持ちのお施主様・設計資料をお持ちのお施主様は内容をフォームで送信後、フォーム下のメールアドレスに資料をお送りください。対応がスムーズです。

必須

(例:増改築太郎)

必須

(例:contact@high-will.co.jp)

(例:03-5615-2826)

必須

(例:東京都荒川区西日暮里2-35-1)

(例:築40年)

(例:25坪・100㎡など)

(例:2000万程度など)

  • ※再建築不可のリフォームでは金融機関が限られます。事前審査をお勧めいたします。

    (例:2024年3月くらいに完成希望など)

    必須

    できるだけ具体的にお知らせくださいませ。既存設計資料、リフォーム後のイメージ図等をお持ちであれば下記のメールアドレスより添付をお願いします。

    ※次の画面がでるまで、4~5秒かかりますので、
    続けて2回押さないようにお願いいたします。

    ※次の画面が出るまで、4〜5秒かかりますので、
    続けて2回押さないようにお願いいたします。

    図面や写真等を送信いただく場合、また入力がうまくいかない場合は、上記内容をご確認のうえ、下記メールアドレスまでご連絡ください。

    お電話でのお問合せはこちら

    0120-246-991

    営業時間:10:00~17:00(土日祝日を除く)

    ★YouTube「増改築.comチャンネル」チャンネル登録して新動画解説をいち早くGET!!★
    「増改築.comリノベ診断」であなたに一番ふさわしいフルリフォームを診断!!(動画解説付き)
    ★Facebookページにいいね!を押して最新コンテンツ情報をいち早くGET!!★
    パソコン|モバイル
    ページトップに戻る