戸建フルリフォームなら「増改築.com®」TOP > 施工事例 > 都道府県で探す > 東京都目黒区 > 施工事例 H様 再建築不可のフルリフォーム&フルリノベーション

再建築不可でも新築以上の耐震性能と断熱性能に生まれ変わる!

目黒区 再建築不可のフルリフォーム&フルリノベーション事例

東京都目黒区 H様邸

 

東京都目黒区の再建築不可の戸建てリノベーションの現状、H様の性能向上リノベーションの経緯東京都目黒区、一見平穏な住宅街に位置するH様邸。

この邸宅は、再建築不可という厳しい制約を背負った土地に建てられたものでした。再建築不可とは、都市計画法や建築基準法などの法的な制約から、建物の新築や大規模な改築が許されない土地や建物を指します。

このような制約があるにも関わらず、H様はこの家に特別な思い入れを持っていました。H様は、この家の耐震性や断熱性に大きな不安を感じていました。特に、近年の地震の多発や厳しい冬の寒さを考えると、家族の安全や快適な生活のためには、家の性能向上が急務であると感じていました。

そこで、性能向上リノベーションを行うことを決意。しかし、再建築不可の制約があるため、通常の大規模なリノベーションはできません。そこで、最新の技術を駆使して、スケルトンリフォームを選択することとなりました。

建物概要
名前 H様
場所 東京都目黒区
築年数 築40年
構造種別 木造一戸建て
家族構成 大人2人 子供2人
対象面積 28坪
リフォーム部位 間取り変更/断熱サッシ/屋上テラス/耐震補強/
工期 7ヶ月
価格 2800万

お客様のご要望

今回のリフォームで、H様からのご要望は以下の3点です。

  • 地震が不安なので耐震補強はしっかりとやりたい
  • 二階はルーフバルコニーテラスにしたい
  • 補助金があるなら活用したい

プランナー 北畠より ~プランニングのポイント~

H様邸のプランニングポイント解説

H様邸のリノベーションプランは、多くの独自の要素を持つものでした。以下に、そのプランニングの際に特に重視されたポイントを、プランナーの視点から詳しく解説いたします。

1. 再建築不可の制約の克服

H様邸は再建築不可の土地に位置しているため、新築や大規模な改築が難しい状況でした。しかし、この制約を逆手に取り、既存の良さを活かしつつ、最新の技術やデザインを取り入れることで、新しい価値を生み出す方向性が取られました。

2. 大スパン空間の実現

1階のリビングは大スパンの設計となっており、開放感ある空間が求められました。これを実現するために、梁や柱の補強が計画的に行われ、安全性とデザイン性を両立させる工夫がされました。

3. ボストンスタイルの取り入れ

H様からの要望である「ボストンスタイル」を取り入れるため、内装や家具の選定、色使いなど、細部にわたるデザインの調整が行われました。これにより、都会の中の洗練されたアメリカの伝統的な住空間が実現されました。

4. 環境への配慮

断熱工事や窓の選定など、エコロジーを考慮した家づくりが行われました。これにより、快適な室内環境を保ちつつ、エネルギー消費を抑えることができる住まいが実現されました。

5. 2階の部屋配置の工夫

H様の要望である「2階の部屋は狭くても3部屋欲しい」という点を実現するため、効率的な間取りの設計が行われました。また、天井裏を活用することで、収納スペースや趣のある空間が生まれました。

6. 1階のガラス仕切り

1階の部屋の仕切りにはガラスを使用することで、開放感を保ちつつ、部屋ごとのプライバシーも確保されました。これにより、明るく広々とした空間が生まれ、家族のコミュニケーションも円滑になりました。

7. ベランダの延長

ベランダを隣の部屋とつなげることで、より広い外部空間を確保。これにより、家族のリラックススペースや趣味のスペースとしての利用が拡がりました。

8. 予算とのバランス

全ての要望を実現するためには、予算の制約も考慮しながらの設計が必要でした。プランナーは、H様の要望を最大限に反映しつつ、コストパフォーマンスの良い材料選びや工法の選定を行いました。

総じて、H様邸のプランニングは、クライアントの要望を最前線に、最新の技術やデザイントレンドを取り入れながら、予算や制約を巧みに乗り越えることで、理想の住空間を実現するものでした。プランナーの経験と知識、そしてH様との綿密なコミュニケーションが、この成功の鍵となりました。

 

目黒区H様邸 戸建てリノベーション施工事例テーマカテゴリー

  • 再建築不可リフォーム
  • 二世帯住宅リフォーム
  • 耐震等級3相当(上部構造評点1.5以上)リフォーム(性能向上リノベーション)
  • 屋根を屋上リフォーム
  • 補助金活用リフォーム

打ち合わせから着工、完成までの詳細施工事例紹介

1 戸建てリノベーション着工前

1-1 現場調査・打合せ

H様邸の特徴として、門扉から建物までの距離が約20m近くもあり、その間には緑豊かな庭が広がっています。この庭はH様の癒しの場所であり、家族の憩いの場所でもありました。しかし、この長い距離がリノベーション時の大きな課題となりました。なぜなら、車両の進入が非常に難しく、特に大型の4トン車などは進入できる道幅が存在しないためです。このため、建材や機材の運搬はすべて手作業で行われることとなり、非常に時間と労力がかかる作業と予測しました。

調査の初めには、まず建物の外観をチェックします。壁のひび割れや傾き、屋根の状態など、目視で確認できる範囲でのチェックが行われます。特に、古い建物の場合、外観からも多くの情報が得られることがあります。

次に、建物の内部へと移動します。ここでは、床や壁、天井などの状態を詳細に調査します。特に、水回りや電気設備、換気設備などの点検は欠かせません。また、床下や天井裏など、普段目にすることのない部分もしっかりと調査されます。

このような調査を通じて、建物の構造的な問題や、リノベーション時に考慮すべき点などが明らかになります。また、土地の特性や近隣の環境も考慮され、計画の方向性が決定されます。

現場調査は、リノベーションや建築の成功を左右する非常に重要な工程です。専門家のチームが、その経験と知識を駆使して、現場の状況を正確に把握し、最適な計画を立てるための基盤を築いていきます。

目黒区H様邸 既存
目黒区H様邸 既存
目黒区H様邸 既存
目黒区H様邸 既存
目黒区H様邸 既存
目黒区H様邸 既存
目黒区H様邸 既存
目黒区H様邸 既存
目黒区H様邸 既存

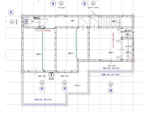
1-2 東京都目黒区H様邸 戸建リノベーションプラン

新規平面図

目黒区H様邸 新規平面図

1階 戸建てリノベーション後プラン

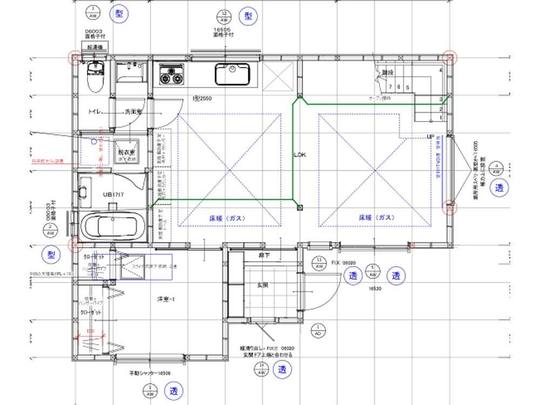
目黒区H様邸 新規平面図

2階 戸建てリノベーション後プラン

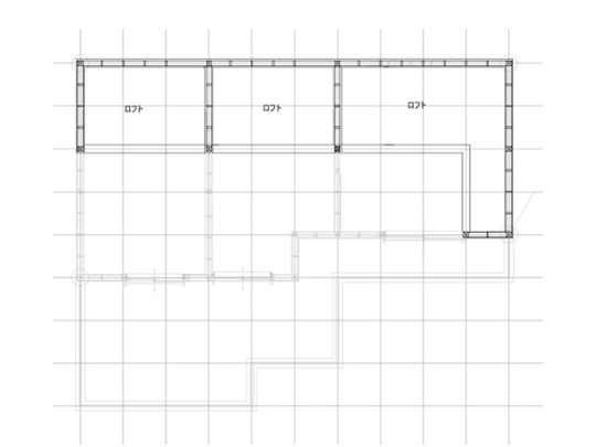
目黒区H様邸 新規平面図

2階ロフト 戸建てリノベーション後プラン

H様の再建築不可戸建てのフルリフォーム&フルリノベーション工事はこうしてはじまりました。

2 戸建てリノベーション着工

2-1 足場・解体

解体は手壊し作業

再建築不可の木造戸建てのリノベーションは、特有の課題とともに、新たな価値を生み出すチャンスを持っています。

H様邸の場合、外壁を維持しつつ、内部を躯体までスケルトン解体するという大がかりな工事が行われました。まず、スケルトン解体とは、建物の骨組みだけを残し、内部の間仕切りや設備を全て取り除く工事のことを指します。

この工事を行うことで、新しい間取りや設計に合わせて、最適な空間を再構築することができます。

特に、H様邸のように再建築が許可されない物件の場合、この方法が有効となります。人力による解体は、機械を使用する解体とは異なり、手作業で行われます。これにより、細かい部分まで丁寧に作業を行うことができ、既存の良好な部分を維持しつつ、不要な部分を取り除くことが可能となります。

また、近隣への騒音や振動の影響を最小限に抑えることができるのも、人力解体の大きなメリットです。

H様邸の場合、外壁を残すという条件下での解体は、通常の解体工事よりも複雑で繊細な作業が求められました。特に、外壁と内部の接続部分や、隣接する建物との境界部分は、慎重に作業を進める必要がありました。また、解体時の産業廃棄物の搬出は、大きな課題となりました。H様邸は、車両の進入が難しい立地条件であったため、廃材を一つ一つ手作業で運び出す必要がありました。この作業は、非常に時間と労力を要するものであり、作業員の連携や計画的な進行が不可欠でした。このような状況下でも、プロの技術者たちは、高い技術と経験を活かして、安全かつ効率的に作業を進めました。再建築不可の制約がある中で、新しい価値を生み出すリノベーションを実現するための、そのプロセスと努力は、計り知れないものがあります。

目黒区H様邸 解体
目黒区H様邸 解体
目黒区H様邸 解体

解体後の躯体チェック

手壊しによる解体工事が終わり、産業廃棄物の廃棄が完了、大工による仮補強が終わると、初めて躯体のチェックが可能となります。

解体工事が完了した後の躯体チェックは、リノベーションの成功を左右する非常に重要な工程となります。このチェックを通じて、建物の基本的な健全性や、今後のリノベーションにおける方針が決定されます。

まず、解体後の躯体チェックでは、以下の点が主に確認されます。

構造体の健全性:木造の場合、柱や梁、土台などの木部に腐食やシロアリの被害がないかを確認します。

水平・垂直の傾き:建物が沈下していないか、または傾いていないかを確認するため、水平器やレーザー測定器を使用して、水平・垂直の状態を測定します。

基礎の状態:基礎部分に亀裂や沈下、浮き上がりがないかを確認します。特に、地盤の弱いエリアや古い建物の場合、基礎の問題はリノベーションの大きな障壁となることがあります。

H様邸の場合、解体後の躯体チェックの結果、躯体の痛みは経年劣化程度であり、想定していたよりも痛みは少なかったとのこと。これは、建物がしっかりとした造りであったことを示しています。このような状態の良好な躯体は、リノベーションの基盤として非常に有利です。安全性が確保されるだけでなく、予算や工期の面でも大きなメリットが期待できます。このように、解体後の躯体チェックは、リノベーションの方向性を決定するための重要なステップとなります。しっかりとした躯体の確認を行い、適切なリノベーション計画を立てることで、安全で快適な住まいを実現することができます。

目黒区H様邸 解体
目黒区H様邸 解体
目黒区H様邸 解体
目黒区H様邸 解体
目黒区H様邸 解体
目黒区H様邸 解体

大事な構造部のすべてが目視可能となるスケルトンリフォーム

内部の天井・壁・床だけでなく外壁まで解体しスケルトン状態(躯体残し)にする戸建てリノベーションの最大のメリットはこのような重要な主要構造部のすべての状態が目視でわかることになります。

フルリノベーション後は、これらの構造上の弱点をすべて修正し補強することで新築と同水準、もくしくはそれ以上の建物性能をもつ構造躯体へ甦らせることが可能となります。

2-2 木工事

大工工事は、構造躯体の強度を担保するためのメイン工事となります。

H様邸のリノベーションにおける木工事は、その規模や複雑さから、非常に高度な技術と経験が求められる工程となりました。

特に、1階のリビングの大スパン化や、オープン階段の設置は、通常のリノベーションとは一線を画すものでした。

大スパンのリビングと梁補強

大スパンのリビングは、開放的で広々とした空間を実現するためのものですが、その裏には多くの技術的な課題が潜んでいます。特に、広い空間を確保するためには、柱や壁を極力減らす必要がありますが、それに伴い、天井や2階の床を支える梁の役割が増大します。このため、H様邸では、梁の補強が多数必要となりました。具体的には、特殊な金物を使用して、梁同士を連結し、その強度を増加させる作業が行われました。

オープン階段とその補強

また、オープン階段の設置により、階段周辺の梁にも追加の補強が必要となりました。オープン階段は、空間を一体的に見せる効果がありますが、その分、階段の支えとなる梁や柱の役割が増大します。このため、階段部分の梁には、通常よりも太い梁を使用し、さらに金物での補強を施すことで、安全性を確保しました。

耐震対策としての制震ダンパーと耐力面材

東京都という地震の多い地域に位置するH様邸では、耐震性の向上も大きな課題となりました。このため、限界耐力計算に基づき、制震ダンパーの設置が行われました。制震ダンパーは、地震の揺れを吸収し、建物の揺れを抑制する装置です。また、耐力面材の設置により、壁の耐震性が向上しました。これらの対策により、H様邸は、大きな地震が発生しても、安全に過ごすことができる住まいとなりました。

以上のように、H様邸のリノベーションにおける木工事は、多くの技術的な課題を乗り越え、安全で快適な住まいを実現するための重要な工程となりました。

目黒区H様邸 大工工事
目黒区H様邸 大工工事
目黒区H様邸 大工工事
目黒区H様邸 大工工事
目黒区H様邸 大工工事
目黒区H様邸 大工工事
2-3 断熱工事

断熱工事は、住まいの快適性やエネルギー効率を大きく左右する重要な工程の一つです。特に、H様邸のような再建築不可の住宅においては、断熱性能の向上は住む方の生活品質を大きく向上させる要因となります。

断熱材の選定

H様邸では、ZEH(ゼロエネルギーハウス)以上の断熱性能を目指しており、そのためには高性能な断熱材の選定が不可欠でした。地下部の床には、75㎜のラムダ断熱材を使用。ラムダ断熱材は、一般的な断熱材に比べて断熱性能が高く、薄くても高い断熱効果を発揮します。外周壁には、高性能グラスウール120㎜を使用し、天井部には250㎜の高性能グラスウールを充填。これにより、冬の寒さや夏の暑さから住まいを守り、室内の温度を一定に保つことが可能となりました。

気密性の確保

断熱性能を最大限に活かすためには、気密性の確保も欠かせません。H様邸では、断熱材を充填する際に、気密シートも併せて施工。これにより、外部からの冷気や暖気の侵入を防ぎ、室内の温度を安定させるとともに、エネルギーの無駄を削減しました。

断熱塗料の利用

外壁や屋根には、断熱塗料を使用しての塗装が行われました。断熱塗料は、太陽の熱を反射する性質を持ち、建物の外部からの熱の侵入を大きく抑えることができます。これにより、夏場の冷房の効率を上げるとともに、冬場の暖房の効果も高めることができました。

結果としての効果

これらの断熱工事を経て、H様邸は、一年を通して快適な室温を保つことができる住まいとなりました。また、エネルギーの消費量も大きく削減され、光熱費の節約にも寄与しました。断熱工事は初期投資が必要ですが、長期的に見ればその効果は計り知れないものがあります。

最後に、断熱工事は単に材料を選ぶだけではなく、その施工方法や組み合わせによってもその効果が大きく変わります。H様邸のように、プロの技術者が適切な方法で施工を行った結果、高い断熱性能を持つ住まいが実現されました。

目黒区H様邸 断熱工事
目黒区H様邸 断熱工事
目黒区H様邸 断熱工事
2-4 外壁工事

外壁は住宅の顔とも言える部分であり、その美観や耐久性は住まいの価値を大きく左右します。H様邸の外壁工事は、特に窓周りの解体部の補修と断熱塗料の塗装施工が主な作業となりました。

窓周り解体部の補修

窓周りは、外部からの雨水や風などの影響を直接受けやすい部分であり、経年劣化が進みやすい箇所です。H様邸では、窓周りの解体部に特に注意を払い、しっかりとした補修作業を行いました。まず、解体された部分の骨組みを確認し、必要に応じて補強を行いました。次に、防水処理を施し、雨水の侵入を防ぐための対策を取りました。

雨仕舞の施工

雨仕舞は、雨水が外壁に直接当たらないようにするための工夫です。H様邸では、窓周りや外壁の一部に雨仕舞を設置し、雨水の侵入を最小限に抑えることで、外壁の劣化を防ぎました。

窓解体部の凹凸の左官処理

窓を解体した部分は、凹凸が生じやすい箇所です。この凹凸を放置すると、塗装時にムラが生じやすくなります。そこで、左官処理を行い、表面を滑らかに仕上げました。これにより、塗装が均一になり、美観を保つことができました。

断熱塗料の塗装施工

最後に、断熱塗料を使用して外壁を塗装しました。断熱塗料は、太陽の熱を反射する性質を持ち、室内の温度上昇を抑える効果があります。また、耐久性が高く、長期間の美観を保つことができます。H様邸では、この断熱塗料を使用することで、夏の暑さを和らげ、冬の寒さを防ぐとともに、外壁の美観を長期間保つことができました。

外壁工事は、住まいの耐久性や快適性、そして美観を保つための重要な工程です。H様邸の外壁工事は、これらの要素をしっかりと考慮し、プロの技術者の手によって丁寧に施工されました。

目黒区H様邸 外壁工事
目黒区H様邸 外壁工事
目黒区H様邸 外壁工事
目黒区H様邸 外壁工事
目黒区H様邸 外壁工事
目黒区H様邸 外壁工事
2-5 造作工事

構造部の構造補強が終わると、造作工事に入ります。

H様の要望に基づき、造作仕上げ工事では、全体の建材をトータルコーディネートしました。

H様は、ボストンスタイルを取り入れたいとの要望がありました。これは、アメリカの伝統的なスタイルで、シンプルかつ上品なデザインが特徴です。ナチュラルな風合いとボストンスタイルのシンプルさが組み合わさることで、落ち着いた雰囲気の中にも洗練された空間が実現しました。

造作仕上げ工事の最終段階では、細部の仕上げに特に注意を払いました。家具や照明などのアクセントにもこだわり、全体の調和を保ちつつ、H様の個性を反映した空間を実現しました。総じて、H様邸の造作仕上げ工事は、ボストンスタイルの洗練されたデザインが見事に融合したものとなりました。このような造作仕上げは、住まいの質を大きく向上させるだけでなく、長年にわたって住む人の心を豊かにするものとなります。

目黒区H様邸 造作工事
目黒区H様邸 造作工事
目黒区H様邸 造作工事
目黒区H様邸 造作工事
目黒区H様邸 造作工事
目黒区H様邸 造作工事

3 戸建てリノベーション竣工

約7か月の工事を経て、いよいよ竣工です。
都会の築40年戸建てがどのように生まれ変わったのか。
H様邸の様子をご紹介します。


  =外観==  

Before

目黒区H様邸 既存

After

目黒区H様邸 竣工

施工後の外壁はセラミック塗装です。屋根置きバルコニーはスカイプロムナードになりました。


  == 1F LDK ==  

Before

目黒区H様邸 既存

After

目黒区H様邸 竣工

施工後のLDKは壁のアクセントクロスがシックな印象です。

目黒区H様邸 竣工

階段はウッドワンのデザイン階段です

目黒区H様邸 竣工

壁クロスはサンゲツ、フローリングはパナソニックベリティスシリーズ


  == 水まわり ==  

Before

目黒区H様邸 既存

施工前のキッチン

After

目黒区H様邸 竣工

施工後も同じくI型壁付けキッチンですが、LDK全体のシックで落ち着いた雰囲気です。カップボードの壁にはスワンタイルを貼りました。キッチン、カップボードともにウッドワンの「スイージ」。

目黒区H様邸 竣工

浴室はTOTO「サザナ」1717サイズ

目黒区H様邸 竣工

▲洗面台はTOTO「ドレーナ」無垢のオーク材をキャビネットに使っています。カウンターのタイルは美濃焼です。

目黒区H様邸 竣工

1,2階のトイレはどちらもTOTO

目黒区H様邸 竣工

2階トイレの手洗い器はLIXIL。壁クロスはお施主様支給品です。


  == 2階・ロフト ==  

Before

目黒区H様邸 既存

施工前の2階居室は和室でした

After

目黒区H様邸 竣工

施工後は洋室3室に。すべてロフト付きです。

目黒区H様邸 竣工
目黒区H様邸 竣工
目黒区H様邸 竣工
目黒区H様邸 竣工

4 補助金利用

目黒区H邸の工事では、国の補助金「こどもエコすまい支援事業」と「先進的窓リノベ事業」を活用しました。

省エネにつながるエコ住宅設備や、断熱性能の高い断熱材・ドア・窓の設置などに対して交付される補助金です。

「こどもエコ」「窓リノベ」合わせて1,306,000円の交付となりました。

 

H様邸の補助金対象工事

エコ住宅設備の設置 給湯器(エコジョーズ)、高断熱浴槽、節水型トイレ、節湯水栓
断熱改修 外壁・床・天井の断熱材、断熱窓、断熱ドア
子育て対応改修 ビルトイン自動調理対応コンロ、掃除しやすいレンジフード、ビルトイン食洗器、浴室乾燥機
バリアフリー改修 段差解消(浴室入口)、手すり設置(浴室)

 

目黒区H様邸 補助金
目黒区H様邸 補助金
ハイウィル株式会社 稲葉高志

5 担当者より
(「増改築.com®」本部ハイウィル株式会社四代目代表稲葉高志)

まず初めに、この度は私たちとともに、H様邸のリノベーションをお任せいただき、誠にありがとうございます。プロジェクトを通じて、H様の夢や願いを形にするお手伝いをさせていただけること、私たちにとっても大変光栄であり、喜びでいっぱいです。

H様邸のリノベーションにおいて、再建築不可という制約の中で、どのようにして最良の住空間を実現するか、私たちも多くの時間をかけて考え、検討しました。その結果、既存の良さを最大限に活かしつつ、新しい価値を加えることができるプランを提案させていただきました。

特に、大スパンのリビングやボストンスタイルの取り入れ、そして環境への配慮など、H様のご要望を形にする過程は、私たちにとっても新しい挑戦でありました。しかし、H様との綿密なコミュニケーションの中で、その都度最適な解決策を見つけ出すことができ、今回のプロジェクトが一層深いものとなりました。

また、1階のガラス仕切りや2階の部屋配置など、細部にわたるデザインの調整にも、H様の熱意を感じることができました。私たちもその熱意に応えるべく、最高の材料や技術を駆使して、H様の理想を実現するために尽力いたしました。

このプロジェクトを通じて、私たちはH様の夢や願い、そして家族の絆の深さを改めて感じることができました。家とは、ただの建物ではなく、家族の思い出や未来を紡ぐ場所であるということを、H様とともに再認識することができました。

最後に、H様邸のリノベーションが、H様やご家族にとって、新しい生活のスタート地点となり、これからの日々がより豊かで幸せなものとなることを心より願っております。今後とも、何かご不明点やご要望などがございましたら、いつでもお気軽にお知らせください。

全国のフルリフォーム・リノベーション『ピックアップ事例』※プロの詳細解説付きレポート

HEAT20-G2/耐震等級3
新耐震基準の性能向上リノベーション
築30年ハウスメーカー軽量鉄骨
断熱改修&リノベーション
 
中古住宅を新築以上の耐震性能と断熱性能へ!
耐震等級3フルリフォーム
地下付き木造2階建て
自然素材をつかった性能向上リノベーション&フルリフォーム

東京都文京区 K様邸

長屋を切り離して1つの構造体へフルリフォーム&リノベーション
隣家との距離がない!
部屋から外壁を張り替えるフルリノベーション
中古住宅を耐震等級3へ!
中古住宅リノベーション
 
基礎がない??
築60年の古屋をジャッキアップで基礎新設フルリノベーション

東京都渋谷区 O様邸

戸建てリノベーション・リフォームに関するお問合せはこちら

増改築.comの一戸建てリフォーム専用ホームページに
お越しいただき、誠に有難うございます。
 
増改築.comメンバーは技術集団となり、
他社のような営業マンがおりません。
技術者が直接ご相談にのり問題解決を行います。
 
従いまして、
お客様の方である程度のご要望が整理されました段階、
お悩みが工事内容のどのようなところにあるのか?
ご予算がどの程度絞る必要があるのか?
など明確になった段階でのご相談をお願いしております。
お問合せ・ご相談はお電話・メールにて受け付けております。
メールの場合は以下のフォームに必要事項をご記入の上、
「送信する」ボタンをクリックをお願いします。

代表稲葉高志

戸建てリノベーションの専属スタッフが担当致します。
一戸建て家のリフォームに関することを
お気軽にお問合せください

よくあるご質問
  • 他社に要望を伝えたところできないといわれたのですが・・・
  • 他社で予算オーバーとなってしまい要望が叶わないのですが・・・
  • サービスについて詳しく聞きたいのですが・・・

どのようなお悩みのご相談でも結構です。

あなたの大切なお住まいに関するご相談をお待ちしております。

営業マンはおりませんので、しつこい営業等も一切ございません。

設計会社(建築家様)・同業の建築会社様のご相談につきましては、プランと共にご指定のIw値及びUa値等の性能値の目安もお願い申し上げます。

2026年の大型補助金が確定したことで現在大変込み合っております。

耐震性能と断熱性能を向上させるフルリフォームには6か月~7か月の工期がかかります。

補助金獲得には年内に報告を挙げる必要があることから、お早目にご相談をお願いいたします。(6月着工までが目安

ご提案までに大変お時間がかかっております。ご了承のほどお願い申し上げます。

(5月までの着工枠が埋まりました)・・・2026/03/01更新

※すでにプランをお持ちのお施主様・設計資料をお持ちのお施主様は内容をフォームで送信後、フォーム下のメールアドレスに資料をお送りください。対応がスムーズです。

必須

(例:増改築太郎)

必須

(例:contact@high-will.co.jp)

(例:03-5615-2826)

必須

(例:東京都荒川区西日暮里2-35-1)

(例:築40年)

(例:25坪・100㎡など)

(例:2000万程度など)

  • ※再建築不可のリフォームでは金融機関が限られます。事前審査をお勧めいたします。

    (例:2024年3月くらいに完成希望など)

    必須

    できるだけ具体的にお知らせくださいませ。既存設計資料、リフォーム後のイメージ図等をお持ちであれば下記のメールアドレスより添付をお願いします。

    ※次の画面がでるまで、4~5秒かかりますので、
    続けて2回押さないようにお願いいたします。

    ※次の画面が出るまで、4〜5秒かかりますので、
    続けて2回押さないようにお願いいたします。

    図面や写真等を送信いただく場合、また入力がうまくいかない場合は、上記内容をご確認のうえ、下記メールアドレスまでご連絡ください。

    お電話でのお問合せはこちら

    0120-246-991

    営業時間:10:00~17:00(土日祝日を除く)

    ★YouTube「増改築.comチャンネル」チャンネル登録して新動画解説をいち早くGET!!★
    「増改築.comリノベ診断」であなたに一番ふさわしいフルリフォームを診断!!(動画解説付き)
    ★Facebookページにいいね!を押して最新コンテンツ情報をいち早くGET!!★
    パソコン|モバイル
    ページトップに戻る