戸建フルリフォームなら「増改築.com®」TOP施工事例東京都三鷹市>M様 再建築不可 リフォーム(スケルトンリフォーム)

三鷹市M様 再建築不可 リフォーム(スケルトンリフォーム)施工事例

三鷹市M様邸
三鷹市M様邸_竣工
三鷹市M様邸_竣工
三鷹市M様邸_竣工
三鷹市M様邸_竣工
三鷹市M様邸_竣工
建物概要
名前 M様
場所 東京都三鷹市
築年数 築40年
構造種別 木造戸建
家族構成 大人2人
対象面積 24.6坪
工期 3ヶ月
価格

1600万(税別)

お客様のご要望

・収納、ウォークインクローゼットを大きく取りたい。

・LDKは2階に持っていき広々使いたい。

・耐震補強は入れたい。

・外部をキレイにしたい。

・窓は全て新しくしたい。

プランニングのポイント

ウォークインクローゼットと耐震補強

三鷹市M様邸 戸建てリノベーション施工事例テーマカテゴリー

  • 再建築不可リフォーム
  • 内外部スケルトンリフォーム

打合せから完成まで

1 着工前

1-1 打合せ

今回こちらの再建築不可物件のリノベーションの経緯は、M様奥様の親御様宅(三鷹市のご実家)の地続きに、奥様(娘さん)ご夫婦が再建築不可の中古住宅を購入、「再建築不可の建物をどこまでリフォームできますか?新築同様にリフォームできますか?」と相談依頼がM様より来たのが一番最初の出会いでした。再建築不可の建物の内部も外部も解体しフルスケルトンリフォーム(躯体残し)をすることになりました。

M様のリフォームのきっかけは、奥様のご実家の隣家の引越しを機に再建築不可ではありましたがその物件が売り出され、そのタイミングでM様がご実家の地続きの物件をご購入され、入居前に補強も含めた戸建一軒家全面リフォームのご依頼を頂きました。

 

M様から頂いたご要望は

①収納、ウォークインクローゼットを大きく取りたい。

②LDKは2階に持っていき広々使いたい。

③耐震補強は入れたい。

④外部をキレイにしたい。

⑤窓は全て新しくしたい。

 

上記、ご要望を頂きPLANさせて頂いたのが下記になります。

 

 

M様の現場は、解体後に通し柱の腐食、損傷が激しい建物であったため、

解体後に内部のみのスケルトン全面リフォームから、

内外部スケルトン全面リフォームへと工事内容が変更と

なった現場になります。

再建築不可の建物はどこまでリフォームできる?

新築同様にリフォームはできるのか?

現場調査から完成引き渡しまで完全公開していきたいと思います。

 

 

1-2 提案
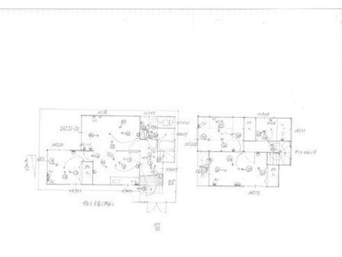
■ 既 存 図 面 ■
三鷹市M様邸_既存図面
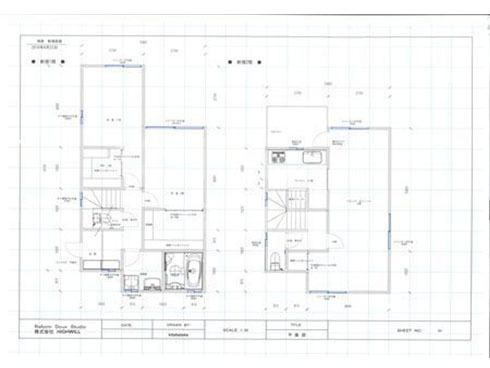
■ 新 規 図 面 ■
三鷹市M様邸_新規図面
■施工後イメージ■
三鷹市M様邸_イメージ図
詳細はこちらへ
■施工後イメージ■
三鷹市M様邸_イメージ図
■施工後イメージ■
三鷹市M様邸_イメージ図
戸建一軒家全面リフォーム前外観
三鷹市M様邸_施工前

正面の白い建物がM様のご購入された再建築不可戸建の一軒家になります。この建物をどこまでリフォームできるのか?外観は既存モルタル塗装仕上げですが全面スケルトンリフォーム後はサイディングになります。

戸建一軒家全面リフォーム前外観
三鷹市M様邸_施工前

再建築不可の戸建となることから、接道、道路付等工事ロケーションを入念に現場調査段階で見ておかなくてはなりません。

戸建一軒家全面リフォーム前外観
三鷹市M様邸_施工前

隣家との離隔距離がやはり取れていない建物になります。

戸建一軒家全面リフォーム前の玄関
三鷹市M様邸_施工前

玄関の位置は既存とリフォーム後も同じ位置になります。

戸建一軒家全面リフォーム前の階段
三鷹市M様邸_施工前

この板張りを剥がした後、どのようになっていたかは解体後の様子で解説します。想定外の状態になっておりました。

戸建一軒家全面リフォーム前の階段
三鷹市M様邸_施工前

既存階段は急勾配なのでリフォーム後は位置も変わりますが緩やかな箱型階段になります。

戸建一軒家全面リフォーム前の浴室
三鷹市M様邸_施工前

この年代の建物は一戸建て住宅では在来浴室が当たり前になりますので、目地の割れや脱衣所の床などを入念にチェックします。

戸建一軒家全面リフォーム前の浴室
三鷹市M様邸_施工前

既存浴室はタイル張りの在来浴室です。リフォーム後は1坪タイプ(1616)のユニットバスになります。

戸建一軒家全面リフォーム前のトイレ
三鷹市M様邸_施工前
戸建一軒家全面リフォーム前の洗面脱衣所
三鷹市M様邸_施工前
戸建一軒家全面リフォーム前のダイニングキッチン
三鷹市M様邸_施工前
戸建一軒家全面リフォーム前のダイニングキッチン
三鷹市M様邸_施工前

リフォーム後はLDKは陽当たりの良い2階へ

戸建一軒家全面リフォーム前のリビング
三鷹市M様邸_施工前
戸建一軒家全面リフォーム前のリビング
三鷹市M様邸_施工前

三鷹市M様邸の戸建一軒家全面リフォーム出は2階にLDKをもっていきますので1階は主に洋室2部屋になります。

戸建一軒家全面リフォーム前の2階和室
三鷹市M様邸_施工前
戸建一軒家全面リフォーム前の2階和室
三鷹市M様邸_施工前
戸建一軒家全面リフォーム前の2階洋室
三鷹市M様邸_施工前
戸建一軒家全面リフォーム前の2階洋室
三鷹市M様邸_施工前
戸建一軒家全面リフォーム前のベランダ
三鷹市M様邸_施工前

バルコニーも新規で既存より大きく取ります。

2 着工

2-1 解体

 

内部スケルトン解体から入っていきます。M様邸ではのちほどご紹介しますが、通し柱が3本腐食しているという大変な状態が判明します。

M様邸の三鷹市の現場では、再建築不可という条件下であり解体もしにくく、一気に解体ができないため、内部より解体をさせていただきました。

 

 

 

三鷹市M様邸_解体

再建築不可の建物の内部をスケルトン状態に解体をしていきます。サッシを変更しますので既存のサッシ設置部分にはカッターを入れ解体していきます。(サッシがくり抜かれているイメージです)

三鷹市M様邸_解体

建物の内部の解体が進み、既存建物の開口部がカッターで外されている状態になっています。

三鷹市M様邸_解体

一軒家をまるごと全面リフォームのため作業性を確保するため、2階の床の既存下地はしばらく利用していきます。

三鷹市M様邸_解体

内壁や天井、間仕切り壁などの解体が終わりました。

三鷹市M様邸_解体

内部の解体が終わると、既存の建物の状態があらわになってきます。
入念にチェックをしていきます。
 

三鷹市M様邸_解体

外壁と構造体を接合しているザラ板が一部腐食していることがわかります。この程度の腐食であれば補修で対処が可能です。

三鷹市M様邸_解体

一階も2階もかなりザラ板が腐食していることがわかりました。

三鷹市M様邸_解体

外周部の4面がすべてザラ板腐食がある状態でした。外壁がキレイに塗装されているので、これ以上の腐食はない状態ではありますが、劣化状態があまりに広範囲でした。

この様に完全にザラ板が朽ち果ててしまっている箇所の数か所ありました。

三鷹市M様邸_解体

ダメージを受けていない面がない状態です。

三鷹市M様邸_解体

通し柱が完全に腐食している状態となっており、こちらは補修で対応できる状態ではありません。

三鷹市M様邸_解体

指を入れるとズボッと指がめり込んでしまうほどの腐食状態でした。4隅の通し柱のうち3本が腐食という改築を日々施工している弊社でも滅多にない状態の建物であったのです。

 

M様の今回の全面リフォームでは当初、

内部のみを躯体残しにする

スケルトンリフォームを予定しておりました。

しかし、通し柱が3本腐食、

さらにはザラ板の腐食が広範囲であったため、

外壁までを剥離する内外部スケルトンリフォームの

提案をさせていただきました。

 

通し柱の腐食への対処は、

改築で最も手間がかかる作業になります。

 

通し柱とは、

土台から軒まで継ぎ目なく

通っている柱になりますが、

木造の軸組工法においては、

最も重要な構造体のひとつと言っても過言ではない

パーツとなっています。

 

 

築年数の経過した建物で通し柱はおもに、

外周部の4方に建っていることが大半です。

 

土台から軒まで1本で通っている、

この通し柱は1階の胴差しと2階の胴差しと、

側面で接合されているため、

1階と2階を接合する重要な構造体として

建物の耐震性を高める、

重要なパーツとなっています。

 

この通し柱が腐食している場合、

腐食の度合いによりますが、

接合されている胴差しまでをばらし、

再度構造体を組み上げなければならない

ケースがあります。

 

今回は、柱の損傷が酷かったため、

組み換えを選択しました。

 

ハイウィルでは、解体が完了すると、

既存の構造体の傷み具合を確認していただくために、

現場にお越しいただきますが、

今回もお越し頂き、状態をみていただきました。

 

既存の状態をみていただき、

工事の方針の変更と追加工事の発生について

しっかりとお話をさせていただきました。

費用面でのお話をしっかりとさせていただき、

承諾をいただくことができましたので、

外壁の剥離工事を進めることになりました。

 

再度、解体の段取りをしました。

 

お時間を再度頂く事と工程の延長のお話もさせて頂き、

外壁の剥離解体を行いました。

外部スケルトン解体工事完了です。

三鷹市M様邸_解体

腐食していたザラ板を解体して剥離しました。通し柱も新たに入れ直す大工事となっています。

三鷹市M様邸_解体

スケルトン(躯体)状態になっているため、構造部で腐食している管柱も入れ替えていきます。

2-2 補強(次項2-3木工事に合わせて記載)
2-3 木工事
三鷹市M様邸_木工事

続々と柱が搬入されてきます。新旧の材木量を写真でみると明らかですが、ほとんど新しい材木になります。野地板は、既存の下地に2重張りをしています。

三鷹市M様邸_木工事

相当数の柱を新設する工事となりました。

三鷹市M様邸_木工事


通し柱を差し替え、ほぼ通し柱付近の柱は新たに新設となっています。910㎜ピッチの柱間に外部より構造用合板を張って補強もしていきます。

三鷹市M様邸_木工事

通し柱を差し替えるという難易度の高い工事になりました。一部の桁や胴差の組み替えも必要になっています。

三鷹市M様邸_木工事

間取り変更にあわせ、構造体を生みあげていきます。

三鷹市M様邸_木工事

既存の布基礎は、鋤取り→砕石→転圧→防湿シート→配筋を経て、ベタ基礎へと基礎補強も行いました。また新たな間取りに合わせ、新たな布基礎も出来ています。

三鷹市M様邸_木工事

外壁解体(剥離)後の外周面の全面に構造用合板を張り
壁倍率を2倍にしていきます。

三鷹市M様邸_木工事

再建築不可の建物の多くが、接道の問題で再建築ができないことが多いのですが、隣家との距離が取れない現場も多々ございます。三鷹市のM様邸では、足場が入ったため、工事として4面の外壁補強が可能でした。

三鷹市M様邸_木工事

入り隅部の納まりは気を遣うところになります。

三鷹市M様邸_木工事

構造体の工事が大詰めを迎えます

三鷹市M様邸_木工事

既存の再利用に耐える構造体は再利用するのが前提ですが、三鷹市のM様邸では写真をみてお分かりの通り新築並の材木量になっています。

三鷹市M様邸_木工事

構造体の骨格が組み上がると、金物補強に入ります。金物補強が入った段階で、施主を現場にお招きし確認をしていただくようにしております。新たな布基礎に土台をアンカーボルトで固定してきます。

三鷹市M様邸_木工事

新旧の梁をホールダウン金物で固定、通し柱を差し替えた箇所になるため確実に行っていきます。

三鷹市M様邸_木工事

今回の三鷹市の現場では構造耐力が十分であったことから行いませんでしたが、外部だけでなく内壁全面へ構造用合板を張りダブルで壁倍率を上げる建物もあります。

三鷹市M様邸_木工事
三鷹市M様邸_木工事
2-4 耐震工事(制震工事)

三鷹市のM様邸では、基本となる構造部の耐震補強工事に加え、

制震ダンパー(仕口ダンパー)による制震工事を施工しました。

再建築不可の建物を購入され、

通し柱までの腐食があり、

外壁までの剥離解体を行った後に、

通し柱の補強、耐力壁の設置、

そして、外周部の全面の構造用合板による補強を

行っていますが、さらに制震仕口ダンパーの設置を

行いました。

 

三鷹市M様邸_耐震工事

リフォーム後(間取り変更後)の耐力計算をして、制震ダンパーの設置位置を決定します。

三鷹市M様邸_耐震工事

火打ちが入る4隅の一つへ制震ダンパーの設置指示があります。こちらの仕口に設置をしていきます。

三鷹市M様邸_耐震工事

指示通りに仕口に制震ダンパーを設置していきます。

三鷹市M様邸_耐震工事

1階 通し柱部付近へも制震ダンパー設置。

2-5 断熱工事
三鷹市M様邸_断熱工事

天井、壁をグラスウール充填、床をスタイロフォームにて断熱工事をします。

三鷹市M様邸_断熱工事

グラスウール断熱にて注意が必要なのが、隙間を作らずに充填するということになります。ここで隙間が出来てしまうと、冷気が熱が隙間から入り、断熱は絵に描いた餅となってしまうからです。

三鷹市M様邸_断熱工事
三鷹市M様邸_断熱工事
2-7 内装工事 
三鷹市M様邸_内装工事

クロス張前のパテ処理

三鷹市M様邸_内装工事

壁紙の工事は、もちろん内装職人の技量もありますが、大工の木工事の下地の納め方でクロスの仕上がりは決まってしまいます。

3 竣工

3-1 外壁 Before → After
三鷹市M様邸_施工前

サービス提供前

 

三鷹市M様邸_竣工
三鷹市M様邸_竣工
三鷹市M様邸_竣工
3-2 キッチン Before → After
三鷹市M様邸_施工前

サービス提供前

 

三鷹市M様邸_竣工
三鷹市M様邸_竣工
三鷹市M様邸_竣工
3-3 バス Before → After
三鷹市M様邸_施工前

サービス提供前

 

三鷹市M様邸_竣工
3-4 洗面 Before → After
三鷹市M様邸_施工前

サービス提供前

 

三鷹市M様邸_竣工
3-5 トイレ Before → After
三鷹市M様邸_施工前

サービス提供前

 

三鷹市M様邸_竣工
3-6 リビング Before → After
三鷹市M様邸_施工前

サービス提供前

 

三鷹市M様邸_竣工
三鷹市M様邸_竣工
三鷹市M様邸_竣工
3-7 ウォークインクローゼット 階段 内装
三鷹市M様邸_竣工
三鷹市M様邸_竣工
三鷹市M様邸_竣工
三鷹市M様邸_竣工
三鷹市M様邸_竣工
三鷹市M様邸_竣工
三鷹市M様邸_竣工
三鷹市M様邸_竣工
三鷹市M様邸_竣工
三鷹市M様邸_竣工
三鷹市M様邸_竣工
三鷹市M様邸_竣工
ハイウィルスタッフ

担当者より【ハイウィル株式会社 専務取締役 稲葉悟】

「再建築不可の建物をどこまでリフォームできますか?新築同様にリフォームできますか?」このような問い合わせを大変多く受けます。確認申請ができないのが再建築不可の建物になりますので、基本は建物の耐震化、断熱性能向上を行い、長期的に安心して住むことができる建物にすることが主題となります。事前に役所に相談するケースなどもあり、このようなケースは各自治体によっても考え方がかわります。弊社では、自治体に話をさせていただき、判断を仰ぎ、お施主様にとって最も良い結果になるよう尽力いたしております。

この事例と似たテーマカテゴリーを見る

全国のフルリフォーム・リノベーション『ピックアップ事例』※プロの詳細解説付きレポート

HEAT20-G2/耐震等級3
新耐震基準の性能向上リノベーション
築30年ハウスメーカー軽量鉄骨
断熱改修&リノベーション
 
中古住宅を新築以上の耐震性能と断熱性能へ!
耐震等級3フルリフォーム
地下付き木造2階建て
自然素材をつかった性能向上リノベーション&フルリフォーム

東京都文京区 K様邸

長屋を切り離して1つの構造体へフルリフォーム&リノベーション
隣家との距離がない!
部屋から外壁を張り替えるフルリノベーション
中古住宅を耐震等級3へ!
中古住宅リノベーション
 
基礎がない??
築60年の古屋をジャッキアップで基礎新設フルリノベーション

東京都渋谷区 O様邸

戸建てリノベーション・リフォームに関するお問合せはこちら

増改築.comの一戸建てリフォーム専用ホームページに
お越しいただき、誠に有難うございます。
 
増改築.comメンバーは技術集団となり、
他社のような営業マンがおりません。
技術者が直接ご相談にのり問題解決を行います。
 
従いまして、
お客様の方である程度のご要望が整理されました段階、
お悩みが工事内容のどのようなところにあるのか?
ご予算がどの程度絞る必要があるのか?
など明確になった段階でのご相談をお願いしております。
お問合せ・ご相談はお電話・メールにて受け付けております。
メールの場合は以下のフォームに必要事項をご記入の上、
「送信する」ボタンをクリックをお願いします。

代表稲葉高志

戸建てリノベーションの専属スタッフが担当致します。
一戸建て家のリフォームに関することを
お気軽にお問合せください

よくあるご質問
  • 他社に要望を伝えたところできないといわれたのですが・・・
  • 他社で予算オーバーとなってしまい要望が叶わないのですが・・・
  • サービスについて詳しく聞きたいのですが・・・

どのようなお悩みのご相談でも結構です。

あなたの大切なお住まいに関するご相談をお待ちしております。

営業マンはおりませんので、しつこい営業等も一切ございません。

設計会社(建築家様)・同業の建築会社様のご相談につきましては、プランと共にご指定のIw値及びUa値等の性能値の目安もお願い申し上げます。

2026年の大型補助金が確定したことで現在大変込み合っております。

耐震性能と断熱性能を向上させるフルリフォームには6か月~7か月の工期がかかります。

補助金獲得には年内に報告を挙げる必要があることから、お早目にご相談をお願いいたします。(6月着工までが目安

ご提案までに大変お時間がかかっております。ご了承のほどお願い申し上げます。

(5月までの着工枠が埋まりました)・・・2026/03/01更新

※すでにプランをお持ちのお施主様・設計資料をお持ちのお施主様は内容をフォームで送信後、フォーム下のメールアドレスに資料をお送りください。対応がスムーズです。

必須

(例:増改築太郎)

必須

(例:contact@high-will.co.jp)

(例:03-5615-2826)

必須

(例:東京都荒川区西日暮里2-35-1)

(例:築40年)

(例:25坪・100㎡など)

(例:2000万程度など)

  • ※再建築不可のリフォームでは金融機関が限られます。事前審査をお勧めいたします。

    (例:2024年3月くらいに完成希望など)

    必須

    できるだけ具体的にお知らせくださいませ。既存設計資料、リフォーム後のイメージ図等をお持ちであれば下記のメールアドレスより添付をお願いします。

    ※次の画面がでるまで、4~5秒かかりますので、
    続けて2回押さないようにお願いいたします。

    ※次の画面が出るまで、4〜5秒かかりますので、
    続けて2回押さないようにお願いいたします。

    図面や写真等を送信いただく場合、また入力がうまくいかない場合は、上記内容をご確認のうえ、下記メールアドレスまでご連絡ください。

    お電話でのお問合せはこちら

    0120-246-991

    営業時間:10:00~17:00(土日祝日を除く)

    ★YouTube「増改築.comチャンネル」チャンネル登録して新動画解説をいち早くGET!!★
    「増改築.comリノベ診断」であなたに一番ふさわしいフルリフォームを診断!!(動画解説付き)
    ★Facebookページにいいね!を押して最新コンテンツ情報をいち早くGET!!★
    パソコン|モバイル
    ページトップに戻る