このエントリーをはてなブックマークに追加

戸建てフルリフォームなら「増改築.com®」TOP施工事例都道府県で探す東京都>武蔵野市> I様 再建築不可戸建てのフルリフォーム&フルリノベーション

 
再建築不可でも新築以上の耐震性能と断熱性能に生まれ変わる!

再建築不可戸建てのフルリフォーム&フルリノベーション事例

I様は吉祥寺駅より徒歩3分という好立地での再建築不可物件を購入され、数社のリフォーム会社へご相談されておりましたが、K様のご要望に沿う提案がなかなかなく、再建築不可の戸建てリノベーション実績が豊富なハイウィルへご相談されたのが最初の出会いでした。

超都心の好立地の再建築不可を弊社でも幾度となくリノベーションさせて頂いて参りましたが、購入費用もそれ相応の価格となっておりました。

建物概要
名前 I様
場所 東京都武蔵野市吉祥寺
築年数 築50年
構造種別 木造一戸建て
家族構成 大人2人 子供2人
対象面積 26.3坪
リフォーム部位 ベタ基礎/間取り変更/断熱サッシ/セルロースファイバー/屋上テラス/耐震補強/太陽光発電/外構
工期 6ヶ月
価格 3400万(税別)※外構・太陽光発電設置費込

お客様のご要望

今回のリフォームで、K様からのご要望は以下の6点です。

  • 無垢材など自然素材を使用し温かい雰囲気にしたい
  • 地震が不安なので耐震補強はしっかりとやりたい
  • 断熱材にはこだわりたい。
  • ベタ基礎にしたい
  • 太陽光発電を導入したい
  • 二階はルーフバルコニーテラスにしたい

プランナー 北畠より ~プランニングのポイント~

とても立地条件の良い再建築不可物件をご購入されましたK様。既存建物は基礎もままならない物件の上、空家の期間が何年かありましたのでとても新たに住むには厳しい状態でした。K様も、極力スケルトンにし新築に近い形でリフォームをしたいとご要望頂きました。間取りは、1階は70㎡(21.2坪)あるのですが、2階は16.5㎡(5.1坪)しかないので1階に大きめのLDK・水周り・その他洋室と和室を各1部屋ずつのプランを造り、2階は洋室1部屋とトイレのプランを作成させて頂きました。

 

 

武蔵野市I様邸 戸建てリノベーション施工事例テーマカテゴリー

  • 中古(住宅)を買ってリフォーム&リノベーション 
  • 再建築不可リフォーム
  • セルロースファイバー仕様
  • 自然素材 
  • 減築リフォーム
  • 屋根を屋上にリフォーム
  • 内外部スケルトンリフォーム

打ち合わせから着工、完成までの詳細施工事例紹介

1 着工前

1-1 現場調査・打合せ

建築基準法上の道路に接していない再建築不可の建物

吉祥寺駅徒歩3分の好立地の再建築不可物件を購入されたK様

I 様の吉祥寺の再建築不可物件は、建築基準法上の道路に敷地が接道しておらず、再建築不可となっておりました。

搬入経路が厳しい現場になると予測ができます。

 

建築基準法上の道路であったとしても敷地の接道が1.8メートル以下のため再建築不可となります。

敷地に入ると中庭があり古い小屋も残っていました。

敷地と通路の接道も1.8m未満となっており、通路が指定道路であったとしても再建築不可となることがわかります。

I様の現場では通路から出てほど近い場所にコインパーキングがあったことは救いとなりました。

このようなロケーションでの長期間のリノベーションの場合、付近の月極駐車場を探すことが多いのですが、I様の現場の近くでは、土地柄もありますが、月極の駐車場自体が少なくコインパーキングを利用する方向で計画を立てます。

背後が大きなマンションとなっており、またマンションと敷地に距離がなく、マンション側の敷地に接するような形で目一杯建てられていました。

裏のマンションを背負う形で建っており一階の下屋部分にバルコニーテラスをご希望されました。

マンション側の境界ブロックと密着して建てられていることがわかります。


基礎と土台が塗装で一体化されていますが、塗装面に雨水のしみ込んでいる跡があることから土台腐食を予想します。

既存基礎部分

基礎高が低く土が湿っていること、1階基礎に基礎変色が有ることから白蟻糞(黒)の可能性も検討します。

土とモルタル塗装部分の間が縁が切れておらず、これでは白蟻が入りやすい環境となっています。


既存1階部分

中庭に広縁、建物の中心に和室となっており、この年代の作りとなっています。

広縁からは中庭の採光が入り、リフォーム後は明るいリビングになると思います。


既存2階部分

I様からは二階のルーフバルコニーテラスのスペースを増築して居室にしたいご要望が当初ございました。

しかしながら、確認申請ができない再建築不可での増築はNGになることから、ロフトを作ることで足りないスペースを確保する提案をさせていただきました。

マンション面に階段がある間取りとなっており奥の和室の窓からは小屋が見えます。

2階は一部屋。現状は腰窓となっていますが、ここを掃き出し窓にして、ルーフバルコニーテラスにしたいとご要望がありました。


既存バルコニー

一階の下屋にデッキが組まれバルコニーとなっていました。

下地が腐食して歩けませんでしたが、リノベーション後は下屋解体後にルーフバルコニーテラスとなります。

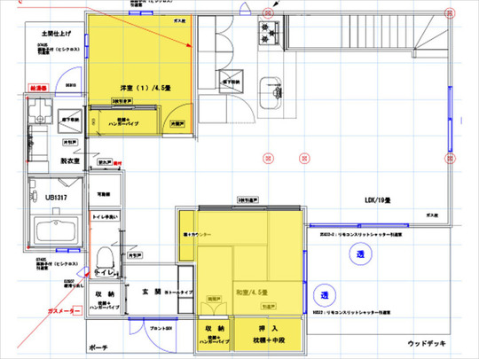
1-2 東京都武蔵野市I様邸 戸建リノベーションプラン

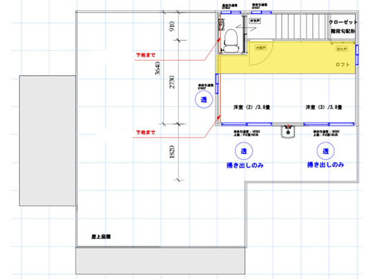
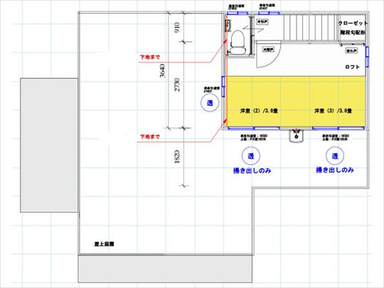
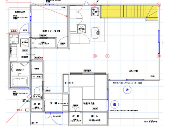
  間取りの変更プラン  

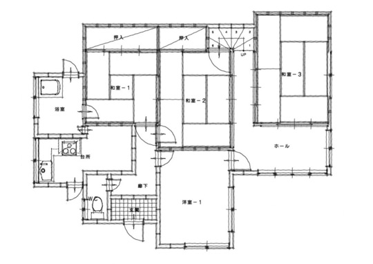
1階 既存平面図

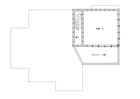
2階 既存平面図

1階 新規平面図

2階 新規平面図

既存図面は昔ながらの和室で何部屋も区切られた作りになっていました。リフォーム後はLDKを大きく取り、残りのスペースで和室・洋室を造りました。I様は極力家族がLDKを通ってお部屋に入る様にしたいとおっしゃられてました。

I様の再建築不可戸建てのフルリフォーム&フルリノベーション工事はこうしてはじまりました。

2 着工

2-1 足場・解体

解体は手壊し作業

武蔵野市吉祥寺のI様の戸建てフルリノベーションでは、内部のみのスケルトン解体ではなく、外壁までを解体する内外部スケルトンリフォームとなります。その為、完全な躯体(スケルトン)残しとなります。

再建築不可の建物のフルリフォームやフルリノベーションで最も大変工程の一つが、この解体工事となります。

そもそも内外部スケルトンリフォームのような躯体残しのリフォームでは、新築のような機械壊しが出来ないことから、解体職人による手壊し作業となります。それもリノベーション後の間取りを検討し、抜く柱や抜けない柱など細心の注意を払いながらの解体となります。解体の手間に加え、再建築不可のようなロケーションになると、解体した廃棄物を搬送する際に、トラックなどを現場に横付けすることはほぼできず、時には、数百メートル先のトラックまで手運びになる現場もあります。

I様邸のフルリノベーションでも数百メートル手運びとなりました。

主要構造体のみを残す解体が終わりました。廃棄物を中央にまとめておきます。

マンション側に密着して建てられていました。長期的に構造躯体を維持すためには、密着させたままでは今後の弱点ともなってきます。I様と打ち合わせをし役所と協議の上、柱一本分中へ入れリノベーションする方針で工事をすることになりました。

解体の廃棄物処理が終わると、大工が入り仮筋交いの設置をします。解体職人では抜けない柱などは大工が抜き仮での補強を入れます。

主要構造体のみが残り、完全なスケルトン(躯体)となりました。

解体後の躯体チェック

手壊しによる解体工事が終わり、産業廃棄物の廃棄が完了、大工による仮補強が終わると、初めて躯体のチェックが可能となります。

I様邸は築50年を超える建物となります。空き家であった期間が長かったこともあり、傷みはあると予測はしておりました。
使える躯体と使えない躯体を選別してく作業となります。

土台の腐食などは想定していたもののK様邸で最も驚いたのが白蟻により梁までが食べられていたことでした。

一部溶けてしまっていたため、解体時に切断してしまった梁もありましたが、土台から柱、そして梁まで食べられてしまっていました。

梁が白蟻被害にあっていた土台部分。やはりスカスカの状態になっています。

床下時に当時余ったのか敷居で床下地が組まれていました。

過去幾度となくフルスケルトンリフォームの現場で目の当たりにしてきましたが、I様邸でも束に束石が設置されていない箇所が、構造上重要なところで散見しました。

基礎の代わりに土台を敷いてあります。。

大事な構造部のすべてが目視可能となるスケルトンリフォーム

内外部のスケルトンリフォームの最大のメリットはこのような重要な主要構造部のすべての状態が目視でわかることになります。

フルリノベーション後は、これらの構造上の弱点をすべて修正し補強することで新築と同水準、もくしくはそれ以上の建物性能をもつ構造躯体へ甦らせることが可能となります。

2-2 基礎

構造上のチェックが終わると、フルスケルトンリフォームでは、基礎工事へと移行していきます。

I様はベタ基礎がご希望でした。

現場にて基礎職人と綿密な打ち合わせを行っていきます。

I様邸はベタ基礎への基礎補強工事となりますので、耐圧版の厚さ、配筋の方法を基礎伏図で指示します。

鋤取り、転圧後にポリフィルム張りをした後は、配筋です。千鳥状に配筋をしていきます。D13を200mm間隔で配筋していきます。

マンション側はブロック塀と密着していた為、減築し新たに基礎を作り直しです。

砕石→転圧後に、防湿シート張りをして、配筋工事となります。ベタ基礎の為、コンクリートは耐圧盤と立上がり基礎の2度打ちとなります。

立ち上がり基礎への縦筋

コンクリート打設後。リノベーション後にはキッチンスペースに床下収納が設置されるため予め高さを調整しておきます。

役所との協議を事前にし減築をしたため、柱の位置が変わります。

I様邸では地盤が良好であることからベタ基礎を採用しました。

すべてがベタ基礎が良いというわけではありません。

ベタ基礎は建物全体と同程度の荷重となりますので、建物の重さとのバランスもかかわってきます。足元だけ固めていても屋根を含めた建物とのバランスが悪いと大地震が起きた際にせん断力が働き、ホールダウン金物が抜けるような事態になるケースもあるからです。

大規模な戸建てリノベーションをされる際には、木造を熟知し、実績が豊富な会社へ相談することをお勧めする理由でもあります。

ベタ基礎って?

布基礎が立ち上がりとフーチングで持たせる基礎に対して、ベタ基礎は、立上りだけでなく、底板一面も耐圧盤を設け、立ち上がりと底面が一体化された鉄筋コンクリートになっている基礎をいいます。

建物の荷重を底板全体の面で受け止めるため、ベタ基礎は不同沈下を起こさない。といわれますが、それは良好な地盤での話です。

基礎の下の地盤面の地耐力が均一でない場合は、不同沈下が起こる可能性が充分あるのです。

耐震の世界では、重い瓦屋根は外して、軽いものに変えましょうと言われておりますが、それ自体は間違っていませんが、この理屈でいくと。屋根の瓦を外して、基礎はベタ基礎にしても、地盤に与える荷重は、瓦屋根以上の荷重がベタ基礎の荷重により地盤面にかかることになります。

地盤が軟弱な場合、布基礎を採用した方が有利な場合も出てきます。

戸建てフルリフォームやリノベーションで、基礎補強をする際は、このような知識のある会社に相談することが必要です。

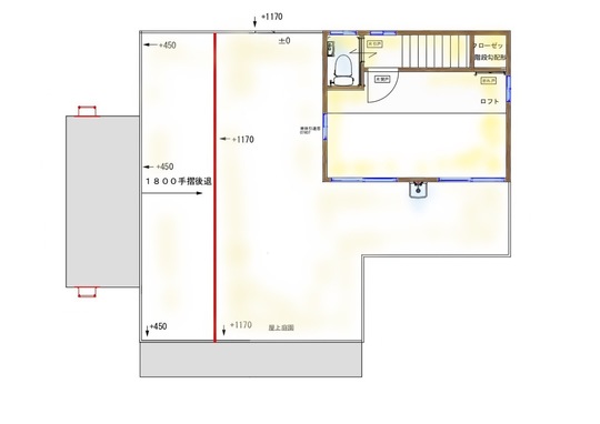
2-3 屋上テラス

一階の下屋だったスペースが全て屋上ルーフバルコニーテラスとなります。木造に最も相性の良い柔構造に対応した専用の金属防水工法を採用します。金属防水用の防水下地を製作していきます。

I様の戸建てフルリノベーションでは木造屋上ルーフバルコニーが広く、水勾配をしっかりとらなければなりません。その為、大工工事の防水下地が重要になります。

金属防水の排水の溝となる水路の下地

屋上ルーフバルコニーテラス水勾配の防水下地を中央より写真両端へ製作します。

金属防水下地が完了しました。仕上げまでは養生期間となります。

足場を建てる際も傷が付かないよう細心の注意を払います。

2-4 木工事

基礎が終わり大工工事へと移行します。構造躯体の強度を担保するためのメイン工事となります。

お施主さま、現場監督、大工、プランナーと現状の状態を踏まえた打ち合わせを開始します。

マンション側の減築部分へあらたな構造材を新設していきます。

二階は下屋となっていたスペースがルーフバルコニーとなります。構造材で補強をいれていきます。

白蟻に横架材まで食べられてしまっていたため一階の和室となるスペースの構造躯体はほぼ新規の構造材にて組み直し施工となりました。

柱頭、柱脚部への金物補強

2階はルーフバルコニーテラスとなるため、金属防水下地を木工事では施工します。

減築による構造体の組み直しを行い、2階構造体の仮支えを施工しました。

二階は強床工法とし水平耐力を満たす施工で対応させていただきました。

既存の構造躯体と新たな構造材とをくみ上げていくのが戸建てフルリフォームでの大工の技量の問われるところになってきます。

使える構造躯体は多くはなく、しかしながら新築ではありませんので、役所と協議もさせていただき、頑丈な構造体をくみ上げていく作業となります。

二階の構造補強に入ります。ここでも残せる躯体はあまりなくあたらな構造材で旧構造体を補強して組み上げを行いました。

I様邸では、内部の壁下地は全て構造用合板張りとしました。外部も構造用合板全面張りとなりますので、壁倍率5倍での補強となります。

吉祥寺I様邸のフルリノベーションでは、布基礎の新設部分が多いことから、新たに基礎配筋が出来ました。
その為、室内の内壁はすべて壁倍率2.5倍の構造用合板を張り、外周面との両面張りで壁倍率5倍での構造計算となりました。剛構造のためホールダウン金物や釘の指定を守り施工をさせていただきました。

2-5 断熱工事

吉祥寺のI様の戸建てリノベーションでの断熱材は、セルロースファイバーを採用。
極力自然素材を使用したいとのご要望がありました為、新聞紙を原材料としたエコ素材でありながら「断熱」「防音」「防燃」「防虫」「防湿」の効果を併せ持つセルロースファイバーはまさに理想的な素材となりました。

I様邸の戸建てフルリノベーションでは断熱材はセルロースファイバーを採用しました。セルロースファイバー充填後は室内の内壁は構造用合板張りとなります。

一階、二階の天井へのセルロースファイバー充填

天井へのセルロースファイバー充填が終わりました。

不織布を張りセルロースファイバーを充填

2-6 外壁工事

仕上げ前に構造用合板貼りの次の工程である防水透湿シート貼りを行います

防水透湿シート貼り

2-7 造作工事

構造部の構造補強が終わると、造作工事に入ります。

内壁は構造用合板を全面張りとしその上からボードを張っていきます。

二階はロフトを設置し高所用の断熱サッシを配置しています。

二階への階段も無垢材を使用。オープン階段で提案しました。

構造用合板+ボード(外周面はセルロースファイバー充填)

無垢フローリングはクルミを採用。

I様邸のLDKは対面型のオープンキッチンとなる為、給排水の立ち上げも一体化されたフロアに阿智和えgます。

I様戸建てリノベーションでは、内装仕上げも自然素材を希望されておられましたのでスペイン漆喰をご提案させていただきました。

3 竣工

約6か月の工事を経て、いよいよ竣工です。
築50年戸建てがどのように生まれ変わったのか。
I様邸の様子をご紹介します。


  =外観==  

玄関ドアの廻りは不燃のパネリングで納めて表情を作ってます。

1階LDKと和室の掃き出しには、都心の佇まいの中でしっかりと採光が入ります。断熱性能の高いサッシを使用しております。

門扉は付けずに、ポストとインターホンのみのシンプルな打ちっ放し風
 門柱です。

お庭にはYKKスピーネを設置し床はタイルと周りは石を敷きました。

玄関周りは自転車を置けるようにコンクリート土間にしました。

家の廻り全体を白砂利で敷き詰めています。

たっぷりの屋根と高めの目隠しでご近隣との視線を遮れます。

所々にシンボルツリーを植栽してあります。

片流れ屋根の上には太陽光が設置されます。

掃き出し窓の上にあるFIX窓はロフトへも採光が届く様に設置ましました。


  == 1F エントランス・玄関 ==  

玄関ドアは三共アルミ 防火ドア ファノーバです。

▲ 下駄箱はティグランのグリット:シェルフです。


  == 1F LDK ==  

キッチンはウッドワンのスイージ間口2575です。

1階は玄関からLDKへつながっています。

カップボードもキッチンと同じウッドワンのスイージです。

LDKが大開口がゆえ、抜けない柱が2本出てきました。K様より、柱間を利用し書籍・携帯が置けるようにしたいとご要望とラフ画を頂き大工さんが造って下さいました。ここで家具で造作で造るとコストと時間が伴ってきます。コストと時間をかけるべき場所なのかをご相談しながら工事を進めさせて頂きました。

都心なのに1階でもたっぷりの採光がはいります。

キッチン裏面に収納と、右側には可動棚を設置しました。

造作階段の奥にある棚は本棚です。こちらも大工造作によるものです。

裏表に書籍が設置出来ます。携帯なのの充電が出来る様コンセントも設置されています。

Before

既存建物は昔ながらの造りでした。開口が多く、お部屋は主に和室造り。


  == オープン階段 ==  

Before

既存階段はかなりの急階段でした。新規階段はゆったりめに造りご提案させて頂きました。

大工が差金ひとつで墨出しを行い刻んで造った階段です、床フローリングが全て無垢(クルミ)なので統一感のある造りになりました。

床のフローリングと階段の風合いがとても合います。

  無垢の階段でオープンな仕上がり

▲ 左脇の棚は書籍を入れる為の空間です。


  == 1F 和室・洋室 ==  

収納扉は和室用ではなく、壁面に合わせ真っ白の扉に統一しています。

和室の脇にカウンターテーブルを設置し、ちょっとした書斎スペースです。

左側の青い壁は、I様とお嬢様で塗装で塗って仕上げて頂きました。

1面の塗装以外はスペイン漆喰で仕上げてます。


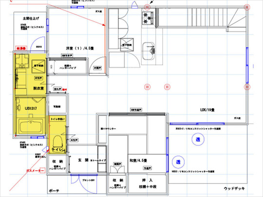
  == 1F 水まわり ==  

Before

既存キッチン

既存浴室

既存洗面室

既存トイレ

キッチン

ウッドワンスイージ

浴室

TOTOサザナ

洗面室

TOTOオクターブ

トイレ

ハイウィルオリジナルトイレ

panasonic アラウーノ


  == 2F 洋室 ==  

Before

ロフト階段も無垢材に合わせた物で納めさせて頂きました。

建具はウッドワンのピノアースです。


  == 2F ロフト ==  

2階が限られたスペースだったので、屋根勾配を利用してロフトを造りました。

 

屋根勾配の形なので天井髙が高くなる為、プロペラファンを設置しています。

梁は現しで納めさせて頂きました。白い壁面にアクセントとなり温かみがでました。

ロフト箇所です。十分な広さを取る事が出来ました。

現し梁がアクセントになってます。


  == ルーフバルコニーテラス ==  

Before

オプションでガーデンシンクを設置しました。

屋上庭園はたっぷりとした広さです。

4 担当者より(ハイウィル株式会社四代目代表稲葉高志)

I様の出会いは、弊社で主催している住宅建材メーカーショールームでの「増改築のフェア」を行っていた日に会社の方に奥様から「今からフェア会場に行ってご相談できますか?」とお電話があり、急きょ会場までご来場頂いたのが始まりでした。

「武蔵野市の吉祥寺で再建築不可の物件の購入間近で、建物の状態があまりに良くないので本当に新築同様の工事ができるのかが不安になったので来ました。」

私は、

「弊社のことはどこでお知りになられたのですか?」

とお聞きしましたが、

奥様は「仲介の不動産会社が増改築.comの施工事例を印刷して、私たちに見せてこのように新築同様にできると言われました。」

弊社ではお付き合いのない不動産会社でしたのでびっくりしてしまいましたが、「物件を見てみないと断言はできませんし、建物周囲の環境により出来ない工事があるかもしれませんよ」

とお答えしました。奥様は

「ハイウィルさんが工事ができるならこの物件を買いますので見てもらえませんか」

とお話しされてしまいましたので、I様ご夫妻と一緒に物件を拝見、調査させていただき、出来る工事と法律的に出来ない工事を整理してお話しさせていただき、購入を決定されました。

間取りを確定後の仕様決定では、かなり迷われながらも一つ一つ素材をショールームへお出かけいただきながら確定していきました。隣地境界がなく、役所とも協議をさせていただきながら工事を進めさせていただきました。工期はかかりましたが、お施主様が壁の一部を塗装するなどお施主様も参加してのリノベーションとなりました。年末の寒い中でのお引渡しになりましたが、年明け早々に「おかげ様で結露がない快適な生活を過ごせています。収納も十分でとても快適です。ありがとうございます。」というお言葉を頂きお喜び頂けたんだとこちらもうれしい気持ちになりました。

I様、この度はご依頼をいただき、誠にありがとうございました。

全国のフルリフォーム・リノベーション『ピックアップ事例』※プロの詳細解説付きレポート

HEAT20-G2/耐震等級3
新耐震基準の性能向上リノベーション
築30年ハウスメーカー軽量鉄骨
断熱改修&リノベーション
 
中古住宅を新築以上の耐震性能と断熱性能へ!
耐震等級3フルリフォーム
地下付き木造2階建て
自然素材をつかった性能向上リノベーション&フルリフォーム

東京都文京区 K様邸

長屋を切り離して1つの構造体へフルリフォーム&リノベーション
隣家との距離がない!
部屋から外壁を張り替えるフルリノベーション
中古住宅を耐震等級3へ!
中古住宅リノベーション
 
基礎がない??
築60年の古屋をジャッキアップで基礎新設フルリノベーション

東京都渋谷区 O様邸

戸建てリノベーション・リフォームに関するお問合せはこちら

増改築.comの一戸建てリフォーム専用ホームページに
お越しいただき、誠に有難うございます。
 
増改築.comメンバーは技術集団となり、
他社のような営業マンがおりません。
技術者が直接ご相談にのり問題解決を行います。
 
従いまして、
お客様の方である程度のご要望が整理されました段階、
お悩みが工事内容のどのようなところにあるのか?
ご予算がどの程度絞る必要があるのか?
など明確になった段階でのご相談をお願いしております。
お問合せ・ご相談はお電話・メールにて受け付けております。
メールの場合は以下のフォームに必要事項をご記入の上、
「送信する」ボタンをクリックをお願いします。

代表稲葉高志

戸建てリノベーションの専属スタッフが担当致します。
一戸建て家のリフォームに関することを
お気軽にお問合せください

よくあるご質問
  • 他社に要望を伝えたところできないといわれたのですが・・・
  • 他社で予算オーバーとなってしまい要望が叶わないのですが・・・
  • サービスについて詳しく聞きたいのですが・・・

どのようなお悩みのご相談でも結構です。

あなたの大切なお住まいに関するご相談をお待ちしております。

営業マンはおりませんので、しつこい営業等も一切ございません。

設計会社(建築家様)・同業の建築会社様のご相談につきましては、プランと共にご指定のIw値及びUa値等の性能値の目安もお願い申し上げます。

2026年の大型補助金が確定したことで現在大変込み合っております。

耐震性能と断熱性能を向上させるフルリフォームには6か月~7か月の工期がかかります。

補助金獲得には年内に報告を挙げる必要があることから、お早目にご相談をお願いいたします。(6月着工までが目安

ご提案までに大変お時間がかかっております。ご了承のほどお願い申し上げます。

(5月までの着工枠が埋まりました)・・・2026/03/01更新

※すでにプランをお持ちのお施主様・設計資料をお持ちのお施主様は内容をフォームで送信後、フォーム下のメールアドレスに資料をお送りください。対応がスムーズです。

必須

(例:増改築太郎)

必須

(例:contact@high-will.co.jp)

(例:03-5615-2826)

必須

(例:東京都荒川区西日暮里2-35-1)

(例:築40年)

(例:25坪・100㎡など)

(例:2000万程度など)

  • ※再建築不可のリフォームでは金融機関が限られます。事前審査をお勧めいたします。

    (例:2024年3月くらいに完成希望など)

    必須

    できるだけ具体的にお知らせくださいませ。既存設計資料、リフォーム後のイメージ図等をお持ちであれば下記のメールアドレスより添付をお願いします。

    ※次の画面がでるまで、4~5秒かかりますので、
    続けて2回押さないようにお願いいたします。

    ※次の画面が出るまで、4〜5秒かかりますので、
    続けて2回押さないようにお願いいたします。

    図面や写真等を送信いただく場合、また入力がうまくいかない場合は、上記内容をご確認のうえ、下記メールアドレスまでご連絡ください。

    お電話でのお問合せはこちら

    0120-246-991

    営業時間:10:00~17:00(土日祝日を除く)

    ★YouTube「増改築.comチャンネル」チャンネル登録して新動画解説をいち早くGET!!★
    「増改築.comリノベ診断」であなたに一番ふさわしいフルリフォームを診断!!(動画解説付き)
    ★Facebookページにいいね!を押して最新コンテンツ情報をいち早くGET!!★
    パソコン|モバイル
    ページトップに戻る