このエントリーをはてなブックマークに追加

戸建フルリフォームなら「増改築.com®」TOP施工事例東京都中野区>H様中古戸建て2世帯住宅リフォーム(完全同居型)

中古戸建て2世帯住宅リフォーム(完全同居型) 施工事例(実例)中野区東中野 H様

中野区H様邸_TOP
中野区H様邸_竣工
中野区H様邸_竣工
中野区H様邸_竣工
建物概要
名前 H様
場所 東京都中野区
築年数 築40年
構造種別 木造戸建
家族構成 大人3人+子供1人
対象面積 31.4坪
リフォーム部位 ベタ基礎/間取変更/断熱サッシ取替/外壁サイディング/断熱工事
工期 4.5ヶ月
価格 2900万

お客様のご要望


・再建築不可で中古戸建て住宅の物件を購入したのでスケルトンでリフォームしたい。

・1階を大きくワンフロアを取りたい。

・2階の天井裏にロフトが設置出来れば設置したい。

・サッシは全て取り替えたい。

・床下を布基礎からべた基礎へ

・外壁は全て剥がしてサイディングへ

・1階の増築してある場所を減築したい。

・トイレは玄関から見えない位置に設置したい。  

 LDKからトイレに入るのも避けたい。

・洗面化粧台は間口900以上は欲しい

・浴室は大きめの浴槽が入る物を入れたい。

・キッチンは間口2000以上は欲しい。出来たら

 対面キッチン希望。

・2階には3部屋+トイレが欲しい

 

 

 

プランニングのポイント


東京都中野区に中古戸建をご購入され

て、間取りも全て変えてスケルトンリ

フォームにされたいとご要望を頂きま

した。

H様の奥様のお母様とH様ご夫妻、お

子様の4人、二世帯住宅リフォームに

なります。

大手リフォーム会社にて提案をされて

おられましたが、予算とプランで折り

合いがつかず弊社に相談が来ました。

過去の申請書類を見ると既存建物が1

階がすでに増築されていることがわか

りましたため、1階部分は減築への是

正を提案させていただきました。

ご要望の1階に大きめのLDKと水周り

スペースを配置、2階に洋室3部屋を

配置するプランです。

1階は、LDK空間を最優先し廊下

スペースを削りLDK空間を目一杯と

るプランニングとしました。

2階は、バルコニー側に3部屋配置し

てあるので各お部屋からバルコニー

に出る事が出来る動線としました。

 

 

中野区H様邸 戸建てリノベーション施工事例テーマカテゴリー

 

  • 再建築不可リフォーム
  • 二世帯住宅リフォーム
  • 内外部スケルトンリフォーム

打合せから完成まで

1 着工前

1-1 打合せ

私道奥にある建物がH様が購入されました中

古戸建てです。

築45年の建物で、私道の持ち分がない理由で

再建築不可となっておりました。

前の所有者が1階部を増築をしていため、減

築による是正をさせて頂きました。

中野区H様邸_施工前

中野区H様邸_施工前

中野区H様邸_施工前

1-2 提案

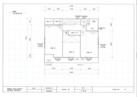
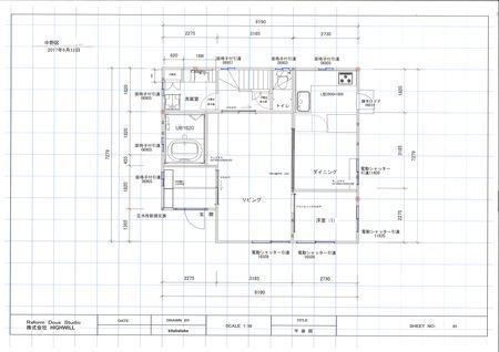
中野区H様邸_新規平面図

■新規の1階平面図■

中野区H様邸_新規平面図

■施工前の2階平面図■

中野区H様邸_施工後イメージ

■施工後のイメージパース■

中野区H様邸_施工後イメージ

■施工後のイメージパース■

2 着工

2-1 解体


H様邸の完全同居型2世帯住宅リフォームで

は大幅な間取り変更、築年数45年経過し、

前所有者のモルタル壁のメンテナンスが行き

届いておらず痛んでいたことから、耐震面で

も十分な補強が必要と判断し、外壁までを剥

がす内外部スケルトンリフォームにてご提案

させていただきました。

H様は外壁を落とすことは大手リフォーム会

社では提案されておらず中からの耐震補強の

みと提案を受けていたようですが、既存の状

態と補強方法を説明させていただき、ご納得

いただきました。

解体費用コストはかなり上がってしまいます

が、外周部全面からの構造補強が可能になる

ことで長期的に住まわれる前提で建物を検討

する際、こちらの方法が望ましいとお話させ

ていただきました。

内部の解体から進行していきます。

中野区H様邸_解体
中野区H様邸_解体

隣家との離隔距離が十分とれず足場がギリギリの面があり、外壁を内側から剥離し、部屋うちにモルタルを引っ張るような解体方法をとりました。

中野区H様邸_解体
中野区H様邸_解体
中野区H様邸_解体
中野区H様邸_解体

2階の天井、壁を解体し、作業しやすいよ

う、2階部の床は最後に行います。階段は

最後に解体します。

中野区H様邸_解体
中野区H様邸_解体

2階北部の内部解体がほぼ完了してきました。既存の構造体の骨格が見えてきます。

中野区H様邸_解体
中野区H様邸_解体

前所有者の増築部は基礎から解体をしました。解体時には補強を入れながらの解体が基本になるため、構造上大事なポイントの解体は棟梁大工みずから変更後の間取りを想定しながら解体していきます。

2-2 基礎


H様邸も布基礎から耐圧盤基礎への変更を希

望されました。

鋤取りをした後、砕石→転圧→防湿フィルム

→鉄筋工→コンクリート打設を敷いていきま

す。

中野区H様邸_基礎
中野区H様邸_基礎

 

コンクリート打設後、H様をお呼びしての既存の構造チェックをお願いしました。構造の痛みをじっくりみていただき、現在ご提案している完全同居型の二世帯住宅リフォームの間取りプランが可能かどうかの検証をしていくことになります。解体から基礎工事と構造チェックまでの工程期間で1か月をかけてハイウィルでは工事を進めていきます。

中野区H様邸_基礎

 

 

2-3 大工工事


中野区H様邸_大工工事
中野区H様邸_大工工事

桁の腐食があったため、鉄骨での補強を先行して行いました。

2世帯住宅への間取り変更のため抜く柱も多く、

一階のLDKが大スパンであることから、

鉄梁による補強が必要な部分もありました。

中野区H様邸_大工工事

一階LDKは2世帯の共有スペースとなるため、大空間となります。桁梁に鉄骨での補強、木での尺梁補強も行いました。

中野区H様邸_大工工事

外周部には構造用合板を全面張りも同時に進めていきます。

中野区H様邸_大工工事

2階の梁補強

中野区H様邸_大工工事

子供部屋にロフトの要望もありましたが、屋根形状が方形

中野区H様邸_大工工事

バルコニー部分の下地組

中野区H様邸_大工工事

3部屋からバルコニーへ移動ができる設計になっています。中央に耐力壁を設置。

中野区H様邸_大工工事

既存のバルコニーの木下地が腐食していたことから、
あらたに立ち上がり部分の壁も作り直ししました。

中野区H様邸_大工工事

バルコニー下地完了

2-4 断熱工事


H様邸は天井、壁をグラスウール、床をスタイロフォームでの断熱となりました。

中野区H様邸_断熱
中野区H様邸_断熱

2-6 外壁工事


モルタル外壁を手壊して解体する躯体残しの

スケルトンリフォームでは、

外周部全面に構造用合板を張り、

壁補強を加えることが可能となります。

H様邸二世帯住宅リフォームでは、

外壁仕上げがサイディングでしたので、

外周面の構造用合板全面張り後、

透湿防水シートを張り、

通気胴縁を打ち、

仕上となるサイディングを張っていく工程と

なります。

 

中野区H様邸_外壁工事

外周全面への構造用合板張りが完了

中野区H様邸_外壁工事

サイディングが搬入されました。

中野区H様邸_外壁工事

防水シートを下から張り込んでいきます。

中野区H様邸_外壁工事

一階、依頼主である子世帯のS様居住スペース(寝室)面の壁となっていますが、窓をつけなかったのは、構造計算上どうしても耐力壁にしたかったからです。そのためこちら面にクローゼットを配置し、窓の位置は違う面で開口をしました。

中野区H様邸_外壁工事

透湿防水シート張り後の通気胴縁施工が終わり、
水切りから施工をスタートしていきます。

中野区H様邸_外壁工事

中野区H様邸_外壁工事

通りからベランダの視界を避けたいとのご要望、
スクリーンタイプのルーバーで
おしゃれでスタイリッシュなものを採用

中野区H様邸_外壁工事

採用されたサイディングはケイミュー社の15mm厚ランブル EW4262です。重厚感がありとても上品なサイディングです。

中野区H様邸_外壁工事

2階のベランダバルコニーは通り面(玄関上)だけは目隠しをしたいとご要望があり、おしゃれなスクリーンタイプの目隠しを採用しました。

 

3 竣工

中野区H様邸_竣工

中野区H様邸_竣工
中野区H様邸_竣工

▲ 玄関は既存と同じ位置でプランしてあります。玄関スペースは1坪です。

中野区H様邸_竣工
中野区H様邸_竣工

▲ 玄関入って直ぐ、ゆったりしたLDKです。キッチンスペースとの間仕切りに3枚引違戸を設置してあります。リビング・ダイニングには壁面収納Panasonicキュビオスを設置させて頂いております。

中野区H様邸_竣工
中野区H様邸_竣工

▲1階のLDKの所に扉を付け洋室をもう1部屋設置してあります。 キッチンスペースにも、腰窓の下まででPanasonicキュビオスを設置させて頂いております。 

中野区H様邸_竣工
中野区H様邸_竣工

▲ キッチンはトクラスBerry L型キッチンです。  カウンターもトクラスBerryになります。

中野区H様邸_竣工
中野区H様邸_竣工

▲ 洗面化粧台はPanasonicラシスです。ユニットバスはLIXIL SOLEO です。

中野区H様邸_竣工
中野区H様邸_竣工

▲ トイレはPanasonicアラウーノです。

中野区H様邸_竣工
中野区H様邸_竣工
中野区H様邸_竣工
中野区H様邸_竣工
中野区H様邸_竣工
中野区H様邸_竣工

▲ 各所室、大きめの収納スペースを設置してあります。収納内は枕棚とハンガーパイプが設置されています。

中野区H様邸_竣工
中野区H様邸_竣工

▲ バルコニーも大きく取っております。

3-1 外壁 Before → After

中野区H様邸_施工前

リフォーム前

東京都中野区東中野に中古物件

(再建築不可)をご購入されたH様邸。

築40年の中古木造住宅の完全同居型2世帯住

宅リフォームです。

2世帯住宅のため間取りも大幅に変更させて頂

きました。

H様のご要望は1階に大きめのLDKと水周り

スペースを配置、2階は洋室3部屋とトイレ、そ

して出来たらロフトを設置したいとご要望を頂

いていたのですが、解体後梁組を見て頂き、既

存梁がクロスしていたためロフトを造ってもそ

の梁が邪魔になってしまう造りなりご相談して

ロフトはキャンルとなりました。

 

 

 

中野区H様邸_竣工

バルコニーコーナー箇所に目隠し・デザイン性でスクリーンルーバーを設置してあります。通常のバルコニーより高級感がでます。
 戸建リフォームで間取りを大きく変えましたが、玄関の位置は既存のままなのでアプローチ 外構は既存のままでお引渡しをさせて頂いてます。

ハイウィルスタッフ

4 担当者より ハイウィル株式会社四代目代表 稲葉高志

H様は、中古住宅を購入し2世帯住宅へのリフォーム相談を大手リフォーム会社に当初しておりました。大手リフォーム会社で提案されたプランと工事内容、費用面で折り合いがつかず弊社へ相談が来ました。ロフトのご要望が構造上できませんでしたが、完全同居型の2世帯住宅の間取りと工事内容にご納得頂き工事をお任せいただきました。H様は住宅設備にこだわりがあり、キッチン・バスはグレードの高い商品での選定となりました。お引き渡し後、大変お喜びいただき、別の工事をご紹介いただけるなど大変お世話になっておりますお施主様です。

画像をクリックすると解説ページにジャンプします。

全国のフルリフォーム・リノベーション『ピックアップ事例』※プロの詳細解説付きレポート

HEAT20-G2/耐震等級3
新耐震基準の性能向上リノベーション
築30年ハウスメーカー軽量鉄骨
断熱改修&リノベーション
 
中古住宅を新築以上の耐震性能と断熱性能へ!
耐震等級3フルリフォーム
地下付き木造2階建て
自然素材をつかった性能向上リノベーション&フルリフォーム

東京都文京区 K様邸

長屋を切り離して1つの構造体へフルリフォーム&リノベーション
隣家との距離がない!
部屋から外壁を張り替えるフルリノベーション
中古住宅を耐震等級3へ!
中古住宅リノベーション
 
基礎がない??
築60年の古屋をジャッキアップで基礎新設フルリノベーション

東京都渋谷区 O様邸

戸建てリノベーション・リフォームに関するお問合せはこちら

増改築.comの一戸建てリフォーム専用ホームページに
お越しいただき、誠に有難うございます。
 
増改築.comメンバーは技術集団となり、
他社のような営業マンがおりません。
技術者が直接ご相談にのり問題解決を行います。
 
従いまして、
お客様の方である程度のご要望が整理されました段階、
お悩みが工事内容のどのようなところにあるのか?
ご予算がどの程度絞る必要があるのか?
など明確になった段階でのご相談をお願いしております。
お問合せ・ご相談はお電話・メールにて受け付けております。
メールの場合は以下のフォームに必要事項をご記入の上、
「送信する」ボタンをクリックをお願いします。

代表稲葉高志

戸建てリノベーションの専属スタッフが担当致します。
一戸建て家のリフォームに関することを
お気軽にお問合せください

よくあるご質問
  • 他社に要望を伝えたところできないといわれたのですが・・・
  • 他社で予算オーバーとなってしまい要望が叶わないのですが・・・
  • サービスについて詳しく聞きたいのですが・・・

どのようなお悩みのご相談でも結構です。

あなたの大切なお住まいに関するご相談をお待ちしております。

営業マンはおりませんので、しつこい営業等も一切ございません。

設計会社(建築家様)・同業の建築会社様のご相談につきましては、プランと共にご指定のIw値及びUa値等の性能値の目安もお願い申し上げます。

2026年の大型補助金が確定したことで現在大変込み合っております。

耐震性能と断熱性能を向上させるフルリフォームには6か月~7か月の工期がかかります。

補助金獲得には年内に報告を挙げる必要があることから、お早目にご相談をお願いいたします。(6月着工までが目安

ご提案までに大変お時間がかかっております。ご了承のほどお願い申し上げます。

(5月までの着工枠が埋まりました)・・・2026/03/01更新

※すでにプランをお持ちのお施主様・設計資料をお持ちのお施主様は内容をフォームで送信後、フォーム下のメールアドレスに資料をお送りください。対応がスムーズです。

必須

(例:増改築太郎)

必須

(例:contact@high-will.co.jp)

(例:03-5615-2826)

必須

(例:東京都荒川区西日暮里2-35-1)

(例:築40年)

(例:25坪・100㎡など)

(例:2000万程度など)

  • ※再建築不可のリフォームでは金融機関が限られます。事前審査をお勧めいたします。

    (例:2024年3月くらいに完成希望など)

    必須

    できるだけ具体的にお知らせくださいませ。既存設計資料、リフォーム後のイメージ図等をお持ちであれば下記のメールアドレスより添付をお願いします。

    ※次の画面がでるまで、4~5秒かかりますので、
    続けて2回押さないようにお願いいたします。

    ※次の画面が出るまで、4〜5秒かかりますので、
    続けて2回押さないようにお願いいたします。

    図面や写真等を送信いただく場合、また入力がうまくいかない場合は、上記内容をご確認のうえ、下記メールアドレスまでご連絡ください。

    お電話でのお問合せはこちら

    0120-246-991

    営業時間:10:00~17:00(土日祝日を除く)

    ★YouTube「増改築.comチャンネル」チャンネル登録して新動画解説をいち早くGET!!★
    「増改築.comリノベ診断」であなたに一番ふさわしいフルリフォームを診断!!(動画解説付き)
    ★Facebookページにいいね!を押して最新コンテンツ情報をいち早くGET!!★
    パソコン|モバイル
    ページトップに戻る